·Î±×ÀÎ
1078
±Ù¸°»ó°¡
ÀÎõÁö¹æ¹ý¿ø ºÎõÁö¿ø
 °¨Á¤°¡439,000,000 ¿ø
 ÃÖÀú°¡(49%) 215,110,000 ¿ø
 º¸Áõ±Ý(10%) 21,511,000 ¿ø
 Ã»±¸¾×267,666,912 ¿ø
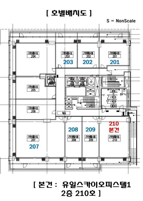
°æ±âµµ ±èÆ÷½Ã ±èÆ÷ÇѰ­4·Î 565, 2Ãþ 210È£ (±¸·¡µ¿, À¯ÀϽºÄ«ÀÌ¿ÀÇǽºÅÚ1)
°æ±âµµ ±èÆ÷½Ã ±¸·¡µ¿ 6878-4
»ç°Ç¹øÈ£ 2024Ÿ°æ54346
°æ¸ÅÁ¾·ùºÎµ¿»êÀÓÀǰæ¸Å
¸Å°¢´ë»óÅäÁö ¹× °Ç¹°Àϰý ¸Å°¢
¸Å°¢±âÀÏ    2026.02.24(È­) 10:00 ÀÔÂû 3ÀÏÀü    
ÅäÁö¸éÀû20.04§³(6.06 Æò)
°Ç¹°¸éÀû68.69§³(20.78 Æò)
乫/¼ÒÀ¯ÀÚÁ¶OO / Á¶OO
ä±ÇÀÚÁßOOOOOOO
ÆäÀ̽ººÏ Æ®À§ÅÍ ±¸±Û+
īī¿À½ºÅ丮
īī¿ÀÅå sms¹®ÀÚº¸³»±â
 

±âÀϳ»¿ª

°æ°ú ³¯Â¥ Àú°¨ ÃÖÀú°¡ °á°ú
Á¢¼öÀÏ 2024-11-20 °æ¸ÅÁ¢¼ö
~1ÀÏ 
2024-11-21 °æ¸Å°³½Ã°áÁ¤
~78ÀÏ 
2025-02-06 ¹è´ç¿ä±¸Á¾±âÀÏ
~330ÀÏ 
2025-10-16 100%
439,000,000
À¯Âû
~365ÀÏ 
2025-11-20 70%
307,300,000
º¯°æ
~435ÀÏ 
2026-01-29 70%
307,300,000
À¯Âû
~461ÀÏ 
2026-02-24 49%
215,110,000
ÁøÇà
¹°°Ç¸í¼¼¼­ ÇöȲÁ¶»ç¼­ ¹®°ÇÁ¢¼ö ¼Û´Þ³»¿ª

°¨Á¤Æò°¡ÇöȲ

¸ñ·Ï ÁÖ¼Ò ±¸Á¶/¿ëµµ/´ëÁö±Ç ¸éÀû ºñ°í
´ëÁö±Ç
±¸·¡µ¿ 6878-4 1504.1ºÐÀÇ 20.0352 20.0352 §³
(6.06Æò)
°Ç¹°
±¸·¡µ¿ 6878-4 2Ãþ 210È£ ö±ÙÄÜÅ©¸®Æ®±¸Á¶ 68.692 §³
(20.78Æò)
1) À§Ä¡/µµ½ÃÁö¿ª/ÀϹݻó¾÷Áö¿ª/Á¦1Á¾Áö±¸´ÜÀ§°èȹ±¸¿ª/½Ã³»¹ö½ºÁ¤·ùÀå/Â÷·®ÀÇ Á¢±ÙÀÌ °¡´É/ö±ÙÄÜÅ©¸®Æ®±¸Á¶ ´õº¸±â
°¨Á¤Æò°¡ ¿äÇ×Ç¥
1)À§Ä¡ ¹× ÁÖÀ§È¯°æ
º»°ÇÀº °æ±âµµ ±èÆ÷½Ã ±¸·¡µ¿ ¼ÒÀç "ÇѰ¡¶÷»ï°Å¸®" µ¿Ãø Àαٿ¡ À§Ä¡ÇÏ´Â "À¯ÀϽºÄ«ÀÌ ¿ÀÇǽºÅÚ1" 2Ãþ 210È£·Î¼­ ºÎ±ÙÀº ¿ÀÇǽºÅÚ, ¾ÆÆÄÆ®´ÜÁö ¹× °¢Á¾ ±Ù¸°»ýȰ½Ã¼³ µîÀÌ È¥ÀçÇÏ´Â Áö¿ªÀ¸·Î¼­ ÁÖÀ§ ȯ°æÀÌ ¹«³­½ÃµÊ.
2)±³Åë»óȲ
º»°Ç±îÁö Â÷·®ÀÇ Á¢±ÙÀÌ °¡´ÉÇϰí Àαٿ¡ ½Ã³»¹ö½ºÁ¤·ùÀå ¹× ±¸·¡¿ªÀÌ À§Ä¡ÇÏ¿© ´ëÁß±³Åë »óȲÀº ¾çÈ£ÇÑ ÆíÀÓ.
3)°Ç¹°ÀÇ ±¸Á¶
ö±ÙÄÜÅ©¸®Æ®±¸Á¶ ö±ÙÄÜÅ©¸®Æ®ÁöºØ 16Ãþ °Ç³» 2Ãþ 210È£·Î¼­

¿Üº® : °­È­À¯¸® ¹× º¹ÇÕÆÇ³Ú ¸¶°¨ µî.
âȣ : ¼¦½Ã âȣÀÓ.


4)ÀÌ¿ë»óÅÂ
±Ù¸°»ýȰ½Ã¼³ÀÓ.
5)¼³ºñ³»¿ª
±Þ.¹è¼ö½Ã¼³, À§»ý¼³ºñ, È­ÀçŽÁö¼³ºñ, ½Â°­±â¼³ºñ µîÀ» °®Ãß¾úÀ½.
6)ÅäÁöÀÇ Çü»ó ¹× ÀÌ¿ë»óÅÂ
À广Çü ÅäÁö·Î¼­ ±Ù¸°»ýȰ½Ã¼³ µîÀÇ ºÎÁö·Î ÀÌ¿ëÁßÀÓ.
7)ÀÎÁ¢ µµ·Î»óŵî
º»°Ç°ú ¿¬°áµÈ ¿Ü°ûµµ·Î¸¦ ÀÌ¿ëÇÏ¿© ÃâÀÔÇÔ.
8)ÅäÁöÀÌ¿ë°èȹ ¹× Á¦ÇÑ»óÅÂ
µµ½ÃÁö¿ª, ÀϹݻó¾÷Áö¿ª, Á¦1Á¾Áö±¸´ÜÀ§°èȹ±¸¿ª(±èÆ÷ÇѰ­½Åµµ½Ã), ´ë·Î2·ù(Æø 30m-35m)(Á¢ÇÕ), Áß·Î2·ù(Æø 15m-20m)(2014-11-27)(Á¢ÇÕ). °¡Ãà»çÀ°Á¦Çѱ¸¿ª(¸ðµçÃàÁ¾ Á¦ÇÑ)<°¡ÃàºÐ´¢ÀÇ °ü¸® ¹× À̿뿡 °üÇÑ ¹ý·ü>, ¼ºÀå°ü¸®±Ç¿ª<¼öµµ±ÇÁ¤ºñ°èȹ¹ý>, ÅÃÁö°³¹ßÁö±¸(±èÆ÷½Åµµ½ÃÅÃÁö°³¹ß)<ÅÃÁö°³¹ßÃËÁø¹ý>, Çϼö󸮱¸¿ª(¾çÃÌ󸮺б¸) <Çϼöµµ¹ý>.
9)°øºÎ¿ÍÀÇ Â÷ÀÌ
--
10)±âŸÂü°í»çÇ×(ÀÓ´ë°ü·Ê ¹× ±âŸ)
- ÀÓ´ë°ü°è´Â ¹Ì»ó.
Âü°í
»çÇ×

¸ñ·Ï ºÎµ¿

°ÇÃ๰ÇöȲ

¼ÒÀçÁö °æ±âµµ ±èÆ÷½Ã ±¸·¡µ¿ 6878-4¹øÁö
´ëÁö¸éÀû 1504.1§³
(455.79Æò)
¿¬¸éÀû 13385.42§³
(4056.19Æò)
°ÇÃà¸éÀû 901.74§³
(273.25Æò)
¿ëÀû·ü»êÁ¤
¿¬¸éÀû
7519.762§³
(2278.72Æò)
°ÇÆóÀ² 59.95% ¿ëÀû·ü 499.95%
Áö»óÃþ¼ö 16Ãþ ÁöÇÏÃþ¼ö 5Ãþ
ÁÖ¿ëµµ ¾÷¹«½Ã¼³ ±¸Á¶ ö±ÙÄÜÅ©¸®Æ®±¸Á¶
Âø°øÀÏÀÚ 2017.06.27 »ç¿ë½ÂÀÎÀÏÀÚ 2019.09.02
°ÇÃ๰Ãþº°ÇöȲ [º¸±â]


µî±âºÎµîº» ¿ä¾à(°Ç¹°)

  Á¢¼öÀÏÀÚ µî±â¸ñÀû/±Ç¸®ÀÚ ±Ç¸®±Ý¾× ±âÁØ
1 2019³â9¿ù30ÀÏ
¼ÒÀ¯±Ç
Á¶OO
¼Ò¸ê
2 2019³â9¿ù30ÀÏ
±ÙÀú´ç±Ç
ÁßOOOO
336,000,000 ¼Ò¸ê±âÁØ
3 2024³â2¿ù8ÀÏ
°¡¾Ð·ù
ÄÉOOOO
45,806,593 ¼Ò¸ê
4 2024³â6¿ù17ÀÏ
°¡¾Ð·ù
½ÅOOOO
50,000,000 ¼Ò¸ê
5 2024³â11¿ù21ÀÏ
ÀÓÀǰæ¸Å
ÁßOOOO
¼Ò¸ê

ÀÓÂ÷ÀÎÇöȲ (¹è´ç¿ä±¸Á¾±âÀÏ: 2025-02-06)


Á¶»çµÈ ÀÓÂ÷³»¿ªÀÌ ¾ø½À´Ï´Ù


¿©ÀÇÁÖ°æ¸Å Á¶¾ð ÇÑ ¸¶µð


ÁÖÀÇ»çÇ× (ÃÖ¼±¼øÀ§ ¼³Á¤ÀÏ: 2019.9.30.±ÙÀú´ç ¼³Á¤)

¸Å°¢À¸·Î ¼Ò¸êµÇÁö ¾Ê´Â µî±âºÎ±Ç¸®:
¸Å°¢À¸·Î ¼³Á¤µÈ °ÍÀ¸·Î º¸´Â Áö»ó±Ç:
2025.11.19 ä±ÇÀÚ ÁßOOOOOOO ±âÀϺ¯°æ½Åû¼­ Á¦Ãâ
±Ù¸°»ýȰ½Ã¼³·Î ³»ºÎ °ø½Ç»óÅÂÀÓ
¡Ø¹Ì³³°ü¸®ºñ(°ø¿ë) Àμö¿©ºÎ¸¦ ÀÔÂû Àü¿¡ È®ÀÎÇϽñ⠹ٶø´Ï´Ù

 

Áö¿ªºÐ¼®

ÁöÇÏö¸í Á÷¼±°Å¸®

Çб³¸í ÀüÈ­¹øÈ£ ÁÖ¼Ò Á÷¼±°Å¸®

¹ý¿ø

ÀÎõÁö¹æ¹ý¿ø ºÎõÁö¿ø (146-02)°æ±âµµ ºÎõ½Ã ¿ø¹Ì±¸ »óÀÏ·Î 129(»óµ¿)
´ëÇ¥ : 032)320-1114, ¹Î¿ø : 032)320-1234
°üÇÒÁö¿ª : ºÎõ½Ã, ±èÆ÷½Ã

µî±â¼Ò ÀÎõÁö¹æ¹ý¿ø ºÎõÁö¿ø ±èÆ÷µî±â¼Ò (´ëÇ¥:1544-0773, ÆÑ½º:(031)982-6997, °æ±âµµ ±èÆ÷½Ã ºÀÈ­·Î 16 (»ç¿ìµ¿ 240-2))
¼¼¹«¼­ ±èÆ÷¼¼¹«¼­ (´ëÇ¥:031-980-32, ÆÑ½º:031-987-9932, °æ±âµµ ±èÆ÷½Ã ±èÆ÷ÇѰ­1·Î 22 (Àå±âµ¿))

Àαٳ«ÂûÅë°è

±â°£ ¸Å°¢°Ç¼ö Æò±Õ°¨Á¤°¡
Æò±Õ¸Å°¢°¡
¸Å°¢°¡À²
Æò±ÕÀ¯Âû¼ö


º» °æ¸ÅÁ¤º¸´Â ¹ý¿øÀÚ·á¿Í ÀÏÄ¡Çϵµ·Ï ÇÏ¿´À¸³ª ±Ç¸®»çÇ׺¯µ¿, ÀÔ·ÂÂø¿À µîÀÇ ¿øÀÎÀ¸·Î »ç½Ç°ú ´Ù¸¦ ¼ö ÀÖ½À´Ï´Ù. ÀÌ¿ë¾à°ü¿¡ ÀǰЏéÃ¥Á¶°ÇÀ¸·Î Á¦°øµÊÀ» ¾Ë¸®¸ç, °æ¸ÅÀÔÂû½Ã ¹Ýµå½Ã °ü·Ã °øºÎ¸¦ ÀçÈ®ÀÎÇϽñ⠹ٶø´Ï´Ù. º¸´Ù Æí¸®ÇÑ °æ¸ÅÁ¤º¸ Á¦°øÀ» À§ÇØ Áö¼ÓÀûÀ¸·Î °³¼±ÇϰڽÀ´Ï´Ù. ÀÌ¿ëÇØ Áּż­ °¨»çÇÕ´Ï´Ù.