·Î±×ÀÎ
15
´Ù¼¼´ë(ºô¶ó)
ÀÇÁ¤ºÎÁö¹æ¹ý¿ø °í¾çÁö¿ø
 °¨Á¤°¡231,000,000 ¿ø
 ÃÖÀú°¡(70%) 161,700,000 ¿ø
 º¸Áõ±Ý(10%) 16,170,000 ¿ø
 Ã»±¸¾×202,000,000 ¿ø
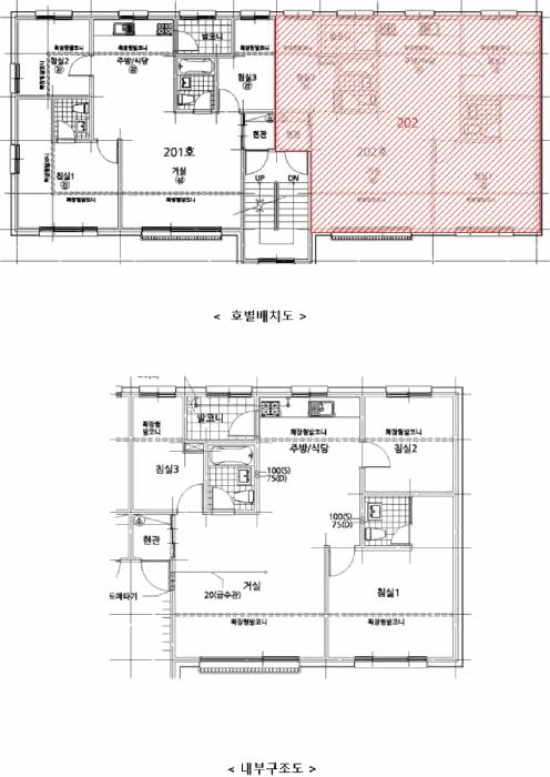
°æ±âµµ °í¾ç½Ã ´ö¾ç±¸ ³»À¯µ¿ 672-37 ¿ä»ê¾ÆÆ®ºô 402µ¿ 2Ãþ202È£
»ç°Ç¹øÈ£ 2025Ÿ°æ62604
°æ¸ÅÁ¾·ùºÎµ¿»ê°­Á¦°æ¸Å
¸Å°¢´ë»óÅäÁö ¹× °Ç¹°Àϰý ¸Å°¢
¸Å°¢±âÀÏ    2025.11.19(¼ö) 10:00 ÀÔÂû 4ÀÏÀü    
ÅäÁö¸éÀû66.28§³(20.05 Æò)
°Ç¹°¸éÀû56.68§³(17.15 Æò)
乫/¼ÒÀ¯ÀÚ±ÇOO / ±ÇOO
ä±ÇÀÚÁÖOOOOOOO
ÆäÀ̽ººÏ Æ®À§ÅÍ ±¸±Û+
īī¿À½ºÅ丮
īī¿ÀÅå sms¹®ÀÚº¸³»±â
 

±âÀϳ»¿ª

°æ°ú ³¯Â¥ Àú°¨ ÃÖÀú°¡ °á°ú
Á¢¼öÀÏ 2025-03-13 °æ¸ÅÁ¢¼ö
~1ÀÏ 
2025-03-14 °æ¸Å°³½Ã°áÁ¤
~88ÀÏ 
2025-06-09 ¹è´ç¿ä±¸Á¾±âÀÏ
~216ÀÏ 
2025-10-15 100%
231,000,000
À¯Âû
~251ÀÏ 
2025-11-19 70%
161,700,000
ÁøÇà
¹°°Ç¸í¼¼¼­ ÇöȲÁ¶»ç¼­ ¹®°ÇÁ¢¼ö ¼Û´Þ³»¿ª

°¨Á¤Æò°¡ÇöȲ

¸ñ·Ï ÁÖ¼Ò ±¸Á¶/¿ëµµ/´ëÁö±Ç ¸éÀû ºñ°í
´ëÁö±Ç
³»À¯µ¿ 672-37 994ºÐÀÇ 66.28 66.28 §³
(20.05Æò)
°Ç¹°
³»À¯µ¿ 672-37 402µ¿ 2Ãþ202È£ ö±ÙÄÜÅ©¸®Æ®±¸Á¶ 56.68 §³
(17.15Æò)
Âü°í
»çÇ×
½Åûä±ÇÀÚÀÎ ÁÖÅõµ½Ãº¸Áõ°ø»ç(¾çµµÀü:ÁÖÅÃÀÓÂ÷±ÇÀÚ ±èÁöÇý)°¡ ¡®ÀÓÂ÷º¸Áõ±Ý¿¡ ´ëÇÏ¿© ¿ì¼±º¯Á¦±Ç¸¸ ÁÖÀåÇÏ°í ´ëÇ×·ÂÀº Æ÷±âÇϸç, Àü¾×À» º¯Á¦¹ÞÁö ¸øÇÏ´õ¶óµµ ÀÓÂ÷±Çµî±â¸¦ ¸»¼ÒÇÔ¿¡ µ¿ÀÇÇÑ´Ù.¡¯´Â ³»¿ëÀÇ 2025.3.27.ÀÚ ÀμöÁ¶°Çº¯°æÈ®¾à¼­¸¦ Á¦ÃâÇÔ
À̰ÇÀº ö±ÙÄÜÅ©¸®Æ®±¸Á¶ (ö


µî±âºÎµîº» ¿ä¾à(°Ç¹°)

  Á¢¼öÀÏÀÚ µî±â¸ñÀû/±Ç¸®ÀÚ ±Ç¸®±Ý¾× ±âÁØ
1 2020³â11¿ù26ÀÏ
¼ÒÀ¯±Ç
±ÇOO
¼Ò¸ê
2 2022³â4¿ù7ÀÏ
¾Ð·ù
±¹
¼Ò¸ê±âÁØ
3 2022³â9¿ù20ÀÏ
°¡¾Ð·ù
ÁÖOOOO
2,071,000,000 ¼Ò¸ê
4 2022³â12¿ù22ÀÏ
ÀÓÂ÷±Ç¼³Á¤
±èOO
202,000,000 ¼Ò¸ê
5 2023³â1¿ù30ÀÏ
¾Ð·ù
°íOO
¼Ò¸ê
6 2025³â3¿ù6ÀÏ
¾Ð·ù
±¹
¼Ò¸ê
7 2025³â3¿ù14ÀÏ
°­Á¦°æ¸Å
ÁÖOOOO
¼Ò¸ê

ÀÓÂ÷ÀÎÇöȲ (¹è´ç¿ä±¸Á¾±âÀÏ: 2025-06-09)

ÀÓÂ÷ÀÎ ¿ëµµ/Á¡À¯ º¸Áõ±Ý/¿ù¼¼ ´ëÇ×·Â
ÀüÀÔÀÏ/È®Á¤ÀÏ ¹è´ç¿ä±¸ ºñ°í
±èOO
X
2024.03.25.
±èOO ÀüºÎ 202,000,000
O
2020.11.19.
2020.11.19.
2025.5.29. 2020.11.19.~2022.11.18.
ºñ°í
(¸Å°¢¹°°Ç
¸í¼¼¼­)
<ºñ°í> ±èÁöÇý : ÀÓÂ÷º¸Áõ±Ý¹Ýȯä±ÇÀ» ä±ÇÀÚ ÁÖÅõµ½Ãº¸Áõ°ø»ç¿¡°Ô ¾çµµÇÔ

¿©ÀÇÁÖ°æ¸Å Á¶¾ð ÇÑ ¸¶µð

¼±¼øÀ§ ÀÓÂ÷±Çµî±â°¡ µÇ¾î ÀÖ½À´Ï´Ù
´ëÇ×·ÂÀÌ ÀÖ´Â ¼±¼øÀ§ ÀÓÂ÷±Çµî±â ±Ç¸®ÀÚ°¡ ¹è´çÀ» Àü¾× ¹ÞÁö ¸øÇÒ °æ¿ì ³«ÂûÀÚ°¡ ÀÜ¿© º¸Áõ±ÝÀ» ÀμöÇØ¾ßÇÏ´Â °æ¿ìµµ ÀÖ½À´Ï´Ù.

ÁÖÀÇ»çÇ× (ÃÖ¼±¼øÀ§ ¼³Á¤ÀÏ: 2022.4.7. ¾Ð·ù ¼³Á¤)

¸Å°¢À¸·Î ¼Ò¸êµÇÁö ¾Ê´Â µî±âºÎ±Ç¸®: ÇØ´ç»çÇ×¾øÀ½
¸Å°¢À¸·Î ¼³Á¤µÈ °ÍÀ¸·Î º¸´Â Áö»ó±Ç: ÇØ´ç»çÇ×¾øÀ½
½Åûä±ÇÀÚÀÎ ÁÖÅõµ½Ãº¸Áõ°ø»ç(¾çµµÀü:ÁÖÅÃÀÓÂ÷±ÇÀÚ ±èÁöÇý)°¡ ¡®ÀÓÂ÷º¸Áõ±Ý¿¡ ´ëÇÏ¿© ¿ì¼±º¯Á¦±Ç¸¸ ÁÖÀåÇÏ°í ´ëÇ×·ÂÀº Æ÷±âÇÏ ¸ç, Àü¾×À» º¯Á¦¹ÞÁö ¸øÇÏ´õ¶óµµ ÀÓÂ÷±Çµî±â¸¦ ¸»¼ÒÇÔ¿¡ µ¿ÀÇÇÑ´Ù.¡¯´Â ³»¿ëÀÇ 2025.3.27.ÀÚ ÀμöÁ¶°Çº¯°æÈ®¾à¼­¸¦ Á¦ÃâÇÔ
¡Ø¹Ì³³°ü¸®ºñ(°ø¿ë) Àμö¿©ºÎ¸¦ ÀÔÂû Àü¿¡ È®ÀÎÇϽñ⠹ٶø´Ï´Ù

 

Áö¿ªºÐ¼®

ÁöÇÏö¸í Á÷¼±°Å¸®

Çб³¸í ÀüÈ­¹øÈ£ ÁÖ¼Ò Á÷¼±°Å¸®

¹ý¿ø

ÀÇÁ¤ºÎÁö¹æ¹ý¿ø °í¾çÁö¿ø (104-13)°æ±âµµ °í¾ç½Ã Àϻ굿±¸ Àå¹é·Î 209
´ëÇ¥ : 031)920-6114, ¾ß°£ : 031)920-6550, ÆÑ½º : 031)920-6119
°üÇÒÁö¿ª : °í¾ç½Ã, ÆÄÁÖ½Ã

µî±â¼Ò ÀÇÁ¤ºÎÁö¹æ¹ý¿ø °í¾çÁö¿ø °í¾çµî±â¼Ò (´ëÇ¥:1544-0773, ÆÑ½º:(031)920-5959, °æ±âµµ °í¾ç½Ã Àϻ굿±¸ Áß¾Ó·Î1275¹ø±æ 38-30 (ÀåÇ×µ¿ 773))
¼¼¹«¼­ µ¿°í¾ç¼¼¹«¼­ (´ëÇ¥:031-900-62, ÆÑ½º:031-963-2979, °æ±âµµ °í¾ç½Ã ´ö¾ç±¸ È­Áß·Î 104¹ø±æ 16(È­Á¤µ¿))

Àαٳ«ÂûÅë°è

±â°£ ¸Å°¢°Ç¼ö Æò±Õ°¨Á¤°¡
Æò±Õ¸Å°¢°¡
¸Å°¢°¡À²
Æò±ÕÀ¯Âû¼ö
3°³¿ù 4°Ç 206,000,000¿ø
120,365,000¿ø
56%
2.3ȸ
6°³¿ù 7°Ç 183,000,000¿ø
110,637,143¿ø
60%
2ȸ
12°³¿ù 9°Ç 181,444,444¿ø
116,700,778¿ø
64%
1.8ȸ


º» °æ¸ÅÁ¤º¸´Â ¹ý¿øÀÚ·á¿Í ÀÏÄ¡Çϵµ·Ï ÇÏ¿´À¸³ª ±Ç¸®»çÇ׺¯µ¿, ÀÔ·ÂÂø¿À µîÀÇ ¿øÀÎÀ¸·Î »ç½Ç°ú ´Ù¸¦ ¼ö ÀÖ½À´Ï´Ù. ÀÌ¿ë¾à°ü¿¡ ÀǰЏéÃ¥Á¶°ÇÀ¸·Î Á¦°øµÊÀ» ¾Ë¸®¸ç, °æ¸ÅÀÔÂû½Ã ¹Ýµå½Ã °ü·Ã °øºÎ¸¦ ÀçÈ®ÀÎÇϽñ⠹ٶø´Ï´Ù. º¸´Ù Æí¸®ÇÑ °æ¸ÅÁ¤º¸ Á¦°øÀ» À§ÇØ Áö¼ÓÀûÀ¸·Î °³¼±ÇϰڽÀ´Ï´Ù. ÀÌ¿ëÇØ Áּż­ °¨»çÇÕ´Ï´Ù.