·Î±×ÀÎ
9
¿ÀÇǽºÅÚ
¼ö¿øÁö¹æ¹ý¿ø
 °¨Á¤°¡102,000,000 ¿ø
 ÃÖÀú°¡(70%) 71,400,000 ¿ø
 º¸Áõ±Ý(10%) 7,140,000 ¿ø
 Ã»±¸¾×79,532,224 ¿ø
°æ±âµµ È­¼º½Ã µ¿ÅºÁ߽ɻó°¡2±æ 30, 7Ãþ708È£ (¹Ý¼Ûµ¿,¾ÆÀÌ-Æç¸®½º)
°æ±âµµ È­¼º½Ã ¹Ý¼Ûµ¿ 87-5
»ç°Ç¹øÈ£ 2024Ÿ°æ91370
°æ¸ÅÁ¾·ùºÎµ¿»êÀÓÀǰæ¸Å
¸Å°¢´ë»óÅäÁö ¹× °Ç¹°Àϰý ¸Å°¢
¸Å°¢±âÀÏ    2025.11.17(¿ù) 10:00 ÀÔÂû 3ÀÏÀü    
ÅäÁö¸éÀû3.85§³(1.16 Æò)
°Ç¹°¸éÀû17.83§³(5.39 Æò)
乫/¼ÒÀ¯ÀÚ±âOO / ±âOO
ä±ÇÀÚÈ­OOOOOOOOOO
ÆäÀ̽ººÏ Æ®À§ÅÍ ±¸±Û+
īī¿À½ºÅ丮
īī¿ÀÅå sms¹®ÀÚº¸³»±â
 

±âÀϳ»¿ª

°æ°ú ³¯Â¥ Àú°¨ ÃÖÀú°¡ °á°ú
Á¢¼öÀÏ 2024-09-30 °æ¸ÅÁ¢¼ö
~2ÀÏ 
2024-10-02 °æ¸Å°³½Ã°áÁ¤
~78ÀÏ 
2024-12-17 ¹è´ç¿ä±¸Á¾±âÀÏ
~380ÀÏ 
2025-10-15 100%
102,000,000
À¯Âû
~413ÀÏ 
2025-11-17 70%
71,400,000
ÁøÇà
¹°°Ç¸í¼¼¼­ ÇöȲÁ¶»ç¼­ ¹®°ÇÁ¢¼ö ¼Û´Þ³»¿ª

°¨Á¤Æò°¡ÇöȲ

¸ñ·Ï ÁÖ¼Ò ±¸Á¶/¿ëµµ/´ëÁö±Ç ¸éÀû ºñ°í
´ëÁö±Ç
¹Ý¼Ûµ¿ 87-5 541.9ºÐÀÇ 3.8503 3.8503 §³
(1.16Æò)
°Ç¹°
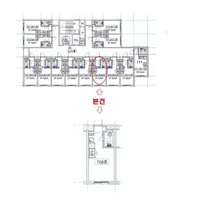
¹Ý¼Ûµ¿ 87-5 7Ãþ708È£ ö±ÙÄÜÅ©¸®Æ®±¸Á¶ 17.83 §³
(5.39Æò)
1) À§Ä¡/Á߽ɻó¾÷Áö¿ª/Áö±¸´ÜÀ§°èȹ±¸¿ª/¹ö½ºÁ¤·ùÀå ´õº¸±â
°¨Á¤Æò°¡ ¿äÇ×Ç¥
1)À§Ä¡ ¹× ÁÖÀ§È¯°æ
º»°ÇÀº °æ±âµµ °æ±âµµ È­¼º½Ã ¹Ý¼Ûµ¿ µ¿Åº1½Åµµ½Ã³» ¼ÒÀç·Î¼­ ¼®¿ìÁßÇб³ ³²µ¿Ãø Àαٿ¡

À§Ä¡ÇÏ´Â ¾ÆÀÌ-Æç¸®½º ¾÷¹«½Ã¼³(¿ÀÇǽºÅÚ) 7Ãþ 708È£ ±¸ºÐ°Ç¹°·Î¼­ ÀαÙÀÏ´ë´Â ¾ÆÆÄÆ®´ÜÁö,

»ó¾÷¿ë ¹× ¾÷¹«¿ë°Ç¹°, °¢Á¾ ±Ù¸°»ýȰ½Ã¼³ µîÀÌ ¼ÒÀçÇÏ´Â Áö¿ªÀÓ.
2)±³Åë»óȲ
º»°Ç±îÁö Â÷·® Á¢±Ù °¡´ÉÇÏ°í ´ëÁß±³Åë¼ö´ÜÀÎ ¹ö½ºÁ¤·ùÀåÀÌ Àαٿ¡ À§Ä¡Çϴ¹Ù

ÀüüÀûÀÎ ´ëÁß±³Åë»çÁ¤Àº º¸ÅëÀÓ.
3)°Ç¹°ÀÇ ±¸Á¶
ö±ÙÄÜÅ©¸®Æ®±¸ (ö±Ù)ÄÜÅ©¸®Æ®ÁöºØ 12ÃþÁß 7Ãþ ÀϺημ­

(ÁýÇÕ°ÇÃ๰´ëÀå»ó 2016.05.20 »ç¿ë½ÂÀÎÀÏÀÓ)

¿Üº®: Ä¡Àå¼®ÀçºÙÀÓ, ¸ôÅ»À§ÆäÀÎÆ® ¸¶°¨ µî

³»º®: º®Áö ¹× ³»ºÎÀÎÅ׸®¾î ¸¶°¨ µî

âȣ: ¼¦½Ã ¹× ÀÌÁß Ã¢È£ ¸¶°¨ µî.
4)ÀÌ¿ë»óÅÂ
¾÷¹«½Ã¼³(¿ÀÇǽºÅÚ)ÀÓ.

(³»ºÎ±¸Á¶´Â °Ç¹°°³È²µµ ÂüÁ¶)
5)¼³ºñ³»¿ª
À§»ý ¹× ±Þ¹è¼ö ½Ã¼³, ¼ÒÈ­Àü, È­ÀçŽÁö¼³ºñ, ½Â°­±â½Ã¼³ µî.
6)ÅäÁöÀÇ Çü»ó ¹× ÀÌ¿ë»óÅÂ
ÀÎÁ¢ÅäÁö ´ëºñ µî°í ÆòźÇÑ ¼¼ÀåÇüÀÇ ¾÷¹«½Ã¼³ µî °ÇºÎÁö·Î ÀÌ¿ëÁßÀÓ.
7)ÀÎÁ¢ µµ·Î»óŵî
Áß·Î µîÀÇ Æ÷Àåµµ·Î¿Í ¿¬°áµÊ.
8)ÅäÁöÀÌ¿ë°èȹ ¹× Á¦ÇÑ»óÅÂ
Á߽ɻó¾÷Áö¿ª, ƯÁ¤¿ëµµÁ¦ÇÑÁö±¸, Áö±¸´ÜÀ§°èȹ±¸¿ª, Áß·Î2·ùÁ¢ÇÔ, °¡Ãà»çÀ°Á¦Çѱ¸¿ª,

¼ºÀå°ü¸®±Ç¿ª.
9)°øºÎ¿ÍÀÇ Â÷ÀÌ
-
10)±âŸÂü°í»çÇ×(ÀÓ´ë°ü·Ê ¹× ±âŸ)
ÀÓ´ë°ü°è ¹Ì»óÀÓ.
Âü°í
»çÇ×

ÇØ´ç ºÎµ¿»êÀÇ ÇöȲÀº ¿Ü


±¹ÅäºÎ½Ç°Å·¡°¡ °æ±âµµ È­¼º½Ã ¹Ý¼Ûµ¿

¡Ü ¸Å¸Å

¸éÀû(§³), ±Ý¾×(¸¸¿ø)

¡Ü Àü¼¼

¸éÀû(§³), ±Ý¾×(¸¸¿ø)

°è¾àÀϰǹ°¸íĪÃþÀü¿ëº¸Áõ±Ý¿ù¼¼°ÇÃà
25.10.29i-palace817.836,00002016
25.10.27i-palace617.83500452016
25.10.21i-palace217.831,000302016
25.09.02i-palace417.83500452016
25.08.25i-palace817.83500402016
¢Ñ ´õº¸±â

µî±âºÎµîº» ¿ä¾à(°Ç¹°)

  Á¢¼öÀÏÀÚ µî±â¸ñÀû/±Ç¸®ÀÚ ±Ç¸®±Ý¾× ±âÁØ
1 2016³â10¿ù14ÀÏ
¼ÒÀ¯±Ç
±âOO
¼Ò¸ê
2 2016³â10¿ù14ÀÏ
±ÙÀú´ç±Ç
È­OOOO
108,810,000 ¼Ò¸ê±âÁØ
3 2024³â6¿ù3ÀÏ
°¡µî±â
´ëOOOO
¼Ò¸ê
4 2024³â10¿ù2ÀÏ
ÀÓÀǰæ¸Å
È­OOOO
¼Ò¸ê
5 2024³â10¿ù16ÀÏ
¾Ð·ù
±¹
¼Ò¸ê
6 2024³â12¿ù17ÀÏ
°¡¾Ð·ù
ÇÏOOOO
35,985,608 ¼Ò¸ê
7 2025³â2¿ù24ÀÏ
¾Ð·ù
È­OO
¼Ò¸ê
8 2025³â3¿ù12ÀÏ
°¡¾Ð·ù
¼­OOOO
185,000,000 ¼Ò¸ê

ÀÓÂ÷ÀÎÇöȲ (¹è´ç¿ä±¸Á¾±âÀÏ: 2024-12-17)


Á¶»çµÈ ÀÓÂ÷³»¿ªÀÌ ¾ø½À´Ï´Ù


¿©ÀÇÁÖ°æ¸Å Á¶¾ð ÇÑ ¸¶µð


ÁÖÀÇ»çÇ× (ÃÖ¼±¼øÀ§ ¼³Á¤ÀÏ: 2016.10.14. ±ÙÀú´ç±Ç ¼³Á¤)

¸Å°¢À¸·Î ¼Ò¸êµÇÁö ¾Ê´Â µî±âºÎ±Ç¸®: ÇØ´ç»çÇ×¾øÀ½
¸Å°¢À¸·Î ¼³Á¤µÈ °ÍÀ¸·Î º¸´Â Áö»ó±Ç: ÇØ´ç»çÇ×¾øÀ½
¡Ø¹Ì³³°ü¸®ºñ(°ø¿ë) Àμö¿©ºÎ¸¦ ÀÔÂû Àü¿¡ È®ÀÎÇϽñ⠹ٶø´Ï´Ù

 

Áö¿ªºÐ¼®

ÁöÇÏö¸í Á÷¼±°Å¸®

Çб³¸í ÀüÈ­¹øÈ£ ÁÖ¼Ò Á÷¼±°Å¸®

¹ý¿ø

¼ö¿øÁö¹æ¹ý¿ø (165-12)°æ±âµµ ¼ö¿ø½Ã ¿µÅ뱸 ¹ýÁ¶·Î 105, Çϵ¿, ¼ö¿ø¹ý¿øÁ¾ÇÕû»ç
´ëÇ¥ : 031)210-1114, ¾ß°£ : 031)210-1111
°üÇÒÁö¿ª : ¼ö¿ø½Ã, ¿À»ê½Ã, È­¼º½Ã, ¿ëÀνÃ

µî±â¼Ò ¼ö¿øÁö¹æ¹ý¿ø º»¿ø È­¼ºµî±â¼Ò (´ëÇ¥:1544-0773, ÆÑ½º:(031)375-3964, °æ±âµµ ¿À»ê½Ã ¹ý¿ø·Î 65 (±Èµ¿ 662))
¼¼¹«¼­ µ¿¼ö¿ø¼¼¹«¼­ (´ëÇ¥:031-695-42, ÆÑ½º:031-273-2416, °æ±âµµ ¼ö¿ø½Ã ¿µÅ뱸 û¸í³²·Î 13 (¿µÅ뵿))

Àαٳ«ÂûÅë°è

±â°£ ¸Å°¢°Ç¼ö Æò±Õ°¨Á¤°¡
Æò±Õ¸Å°¢°¡
¸Å°¢°¡À²
Æò±ÕÀ¯Âû¼ö
3°³¿ù 37°Ç 125,000,000¿ø
83,850,917¿ø
64%
2.8ȸ
6°³¿ù 59°Ç 120,067,797¿ø
79,233,319¿ø
64%
2.7ȸ
12°³¿ù 91°Ç 127,752,747¿ø
87,498,963¿ø
67%
2.5ȸ


º» °æ¸ÅÁ¤º¸´Â ¹ý¿øÀÚ·á¿Í ÀÏÄ¡Çϵµ·Ï ÇÏ¿´À¸³ª ±Ç¸®»çÇ׺¯µ¿, ÀÔ·ÂÂø¿À µîÀÇ ¿øÀÎÀ¸·Î »ç½Ç°ú ´Ù¸¦ ¼ö ÀÖ½À´Ï´Ù. ÀÌ¿ë¾à°ü¿¡ ÀǰЏéÃ¥Á¶°ÇÀ¸·Î Á¦°øµÊÀ» ¾Ë¸®¸ç, °æ¸ÅÀÔÂû½Ã ¹Ýµå½Ã °ü·Ã °øºÎ¸¦ ÀçÈ®ÀÎÇϽñ⠹ٶø´Ï´Ù. º¸´Ù Æí¸®ÇÑ °æ¸ÅÁ¤º¸ Á¦°øÀ» À§ÇØ Áö¼ÓÀûÀ¸·Î °³¼±ÇϰڽÀ´Ï´Ù. ÀÌ¿ëÇØ Áּż­ °¨»çÇÕ´Ï´Ù.