·Î±×ÀÎ
20
¾ÆÆÄÆ®
¼ö¿øÁö¹æ¹ý¿ø
 °¨Á¤°¡412,000,000 ¿ø
 ÃÖÀú°¡(70%) 288,400,000 ¿ø
 º¸Áõ±Ý(10%) 28,840,000 ¿ø
 Ã»±¸¾×177,338,759 ¿ø
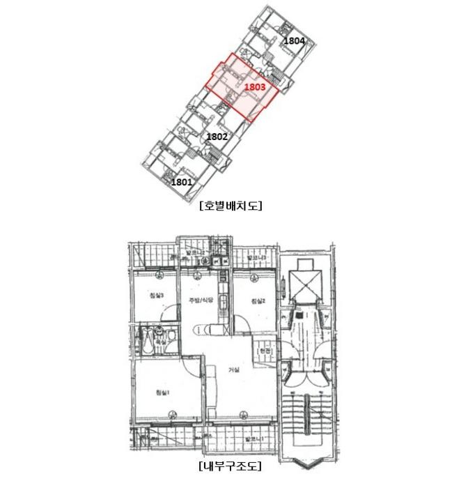
°æ±âµµ ¼ö¿ø½Ã ±Ç¼±±¸ ¼¼±Ç·Î316¹ø±æ 15, 341µ¿ 18Ãþ1803È£ (±Ç¼±µ¿,»ó·Ï¾ÆÆÄÆ®)
°æ±âµµ ¼ö¿ø½Ã ±Ç¼±±¸ ±Ç¼±µ¿ 1303
»ç°Ç¹øÈ£ 2024Ÿ°æ86286
°æ¸ÅÁ¾·ùºÎµ¿»êÀÓÀǰæ¸Å
¸Å°¢´ë»óÅäÁö ¹× °Ç¹°Àϰý ¸Å°¢
¸Å°¢±âÀÏ    2025.11.14(±Ý) 10:00 (¿À´Ã ÀÔÂû)    
ÅäÁö¸éÀû33.22§³(10.05 Æò)
°Ç¹°¸éÀû59.59§³(18.03 Æò)
乫/¼ÒÀ¯ÀÚº¯OO / º¯OO
ä±ÇÀÚ¿¡OOOOOOOOO OOOO(OOOOOOOO OOOOOOOO)
ÆäÀ̽ººÏ Æ®À§ÅÍ ±¸±Û+
īī¿À½ºÅ丮
īī¿ÀÅå sms¹®ÀÚº¸³»±â
 

±âÀϳ»¿ª

°æ°ú ³¯Â¥ Àú°¨ ÃÖÀú°¡ °á°ú
Á¢¼öÀÏ 2024-08-27 °æ¸ÅÁ¢¼ö
~2ÀÏ 
2024-08-29 °æ¸Å°³½Ã°áÁ¤
~79ÀÏ 
2024-11-14 ¹è´ç¿ä±¸Á¾±âÀÏ
~413ÀÏ 
2025-10-14 100%
412,000,000
À¯Âû
~444ÀÏ 
2025-11-14 70%
288,400,000
¸Å°¢
¹°°Ç¸í¼¼¼­ ÇöȲÁ¶»ç¼­ ¹®°ÇÁ¢¼ö ¼Û´Þ³»¿ª

°¨Á¤Æò°¡ÇöȲ

¸ñ·Ï ÁÖ¼Ò ±¸Á¶/¿ëµµ/´ëÁö±Ç ¸éÀû ºñ°í
´ëÁö±Ç
±Ç¼±µ¿ 1303 16134.9ºÐÀÇ 33.2199 33.2199 §³
(10.05Æò)
°Ç¹°
±Ç¼±µ¿ 1303 341µ¿ 18Ãþ1803È£ ö±ÙÄÜÅ©¸®Æ®º®½ÄÁ¶ 59.592 §³
(18.03Æò)
 
1) À§Ä¡/µµ½ÃÁö¿ª/Á¦2Á¾ÀϹÝÁÖ°ÅÁö¿ª/Áö±¸´ÜÀ§°èȹ±¸¿ª/Â÷·®ÃâÀÔ °¡´É/¹ö½ºÁ¤·ùÀå/ÁöÇÏö/ÁöÇÏÁÖÂ÷Àå ´õº¸±â
°¨Á¤Æò°¡ ¿äÇ×Ç¥
1)À§Ä¡ ¹× ÁÖÀ§È¯°æ
º»°ÇÀº °æ±âµµ ¼ö¿ø½Ã ±Ç¼±±¸ ±Ç¼±µ¿ ¼ÒÀç "¸í´çÃʵîÇб³" ³²¼­Ãø Àαٿ¡ À§Ä¡Çϸç, ÁÖÀ§´Â ¾ÆÆÄÆ®´ÜÁö, ±Ù¸°»ýȰ½Ã¼³, ´Ù¼¼´ëÁÖÅÃ, Çб³ µîÀÌ È¥ÀçÇϸç ÁÖÀ§È¯°æÀº º¸ÅëÀÓ.
2)±³Åë»óȲ
º»°Ç ´ÜÁö±îÁö Â÷·®ÃâÀÔ °¡´ÉÇϸç, Àαٿ¡ ¹ö½ºÁ¤·ùÀå ¹× ÁöÇÏö ¸Åź±Ç¼±¿ª(¼öÀκд缱)ÀÌ ¼ÒÀçÇÏ´Â µî ´ëÁß±³Åë»óȲÀº ¾çÈ£ÇÔ.
3)°Ç¹°ÀÇ ±¸Á¶
ö±ÙÄÜÅ©¸®Æ®º®½ÄÁ¶ ¹Ú°øÁöºØ 20Ãþ °Ç¹°³» 18Ãþ 1803È£·Î¼­,
¿Üº® : ½Ã¸àÆ® ¸ôÅ»À§ ÆäÀÎÆÃ ¸¶°¨ µî.
³»º® : º®Áöµµ¹è ¹× ÀϺΠŸÀϸ¶°¨ µî.
âȣ : ¼¦½Ãâȣ µîÀÓ.
4)ÀÌ¿ë»óÅÂ
¾ÆÆÄÆ®·Î ÀÌ¿ëÁßÀÓ.
(ÈÄ÷ °Ç¹°°³È²µµ ÂüÁ¶)
5)¼³ºñ³»¿ª
±âº»ÀûÀÎ À§»ý ¹× ±Þ¹è¼ö¼³ºñ, ³­¹æ¼³ºñ, ¼Ò¹æ¼³ºñ, ½Â°­±â¼³ºñ, ÁöÇÏÁÖÂ÷Àå µî µÇ¾îÀÖÀ½.


6)ÅäÁöÀÇ Çü»ó ¹× ÀÌ¿ë»óÅÂ
´ëü·Î °¡ÀåÇü ÅäÁö·Î¼­, ¾ÆÆÄÆ® °ÇºÎÁö·Î ÀÌ¿ëÁßÀÓ.
7)ÀÎÁ¢ µµ·Î»óŵî
¾ÆÆÄÆ®´ÜÁö ºÏ¼­Ãø Á¤¹®À» ÀÌ¿ëÇÏ¿© ´ÜÁöÃâÀÔÀÌ °¡´ÉÇÏ¸ç ¿ÜºÎ°øµµ¿Í ¿¬°áµÊ.
8)ÅäÁöÀÌ¿ë°èȹ ¹× Á¦ÇÑ»óÅÂ
µµ½ÃÁö¿ª, Á¦2Á¾ÀϹÝÁÖ°ÅÁö¿ª, Áö±¸´ÜÀ§°èȹ±¸¿ª(2011.9.23_±Ç¼±3Áö±¸), Áö±¸´ÜÀ§°èȹ±¸¿ª(°î¼±Áö±¸), ¼Ò·Î2·ù(Æø 8m-10m)(º¸ÇàÀÚÀü¿ëµµ·Î)(Á¢ÇÕ), Áß·Î1·ù(Æø 20m-25m)(Á¢ÇÕ), Áß·Î2·ù(Æø 15m-20m)(2011.9.23)(Á¢ÇÕ), °¡Ãà»çÀ°Á¦Çѱ¸¿ª<°¡ÃàºÐ´¢ÀÇ °ü¸® ¹× À̿뿡 °üÇÑ ¹ý·ü>, »ó´ëº¸È£±¸¿ª(¸í´çÃʵîÇб³(¼ö¿ø±³À°Áö¿øÃ»¹®ÀÇ))<±³À°È¯°æ º¸È£¿¡ °üÇÑ ¹ý·ü>, »ó´ëº¸È£±¸¿ª(È­È«°íµîÇб³(¼ö¿ø±³À°Áö¿øÃ»¹®ÀÇ))<±³À°È¯°æ º¸È£¿¡ °üÇÑ ¹ý·ü>, Àý´ëº¸È£±¸¿ª(¸í´çÃʵîÇб³(¼ö¿ø±³À°Áö¿øÃ»¹®ÀÇ))<±³À°È¯°æ º¸È£¿¡ °üÇÑ ¹ý·ü>, Àý´ëº¸È£±¸¿ª(È­È«°íµîÇб³(¼ö¿ø±³À°Áö¿øÃ»¹®ÀÇ))<±³À°È¯°æ º¸È£¿¡ °üÇÑ ¹ý·ü>, ºñÇà¾ÈÀüÁ¦6±¸¿ª(Àü¼ú)<±º»ç±âÁö ¹× ±º»ç½Ã¼³ º¸È£¹ý>, µµ½Ã±³ÅëÁ¤ºñÁö¿ª <µµ½Ã±³ÅëÁ¤ºñÃËÁø¹ý>, °ú¹Ð¾ïÁ¦±Ç¿ª<¼öµµ±ÇÁ¤ºñ°èȹ¹ý>, ÅÃÁö°³¹ßÁö±¸<ÅÃÁö°³¹ßÃËÁø¹ý>.
9)°øºÎ¿ÍÀÇ Â÷ÀÌ
ÇØ´ç»çÇ× ¾øÀ½.
10)±âŸÂü°í»çÇ×(ÀÓ´ë°ü·Ê ¹× ±âŸ)
ÀÓ´ë°ü°è ¹Ì»óÀÓ.
Âü°í
»çÇ×

ÇØ´ç ºÎµ¿»êÀÇ ÇöȲÀº ¿Ü°ü»ó °øºÎÀÇ ³»¿ë°ú ÀÏÄ¡ÇÏ´Â °ÍÀ¸·Î º¸ÀÓ.


µî±âºÎµîº» ¿ä¾à(°Ç¹°)

  Á¢¼öÀÏÀÚ µî±â¸ñÀû/±Ç¸®ÀÚ ±Ç¸®±Ý¾× ±âÁØ
1 2017³â6¿ù30ÀÏ
¼ÒÀ¯±Ç
º¯OO
¼Ò¸ê
2 2017³â6¿ù30ÀÏ
±ÙÀú´ç±Ç
ÇöOOOO
212,406,305 ¼Ò¸ê±âÁØ
3 2021³â11¿ù29ÀÏ
±ÙÀú´ç±Ç
¿¡OOOO
182,000,000 ¼Ò¸ê
4 2022³â1¿ù26ÀÏ
±ÙÀú´ç±Ç
¿¡OOOO
39,000,000 ¼Ò¸ê
5 2024³â7¿ù18ÀÏ
°¡¾Ð·ù
¿ÀOOOO
18,353,546 ¼Ò¸ê
6 2024³â8¿ù29ÀÏ
ÀÓÀǰæ¸Å
(OOOO
¼Ò¸ê
7 2024³â11¿ù22ÀÏ
¾Ð·ù
¼öOO
¼Ò¸ê

ÀÓÂ÷ÀÎÇöȲ (¹è´ç¿ä±¸Á¾±âÀÏ: 2024-11-14)


Á¶»çµÈ ÀÓÂ÷³»¿ªÀÌ ¾ø½À´Ï´Ù


¿©ÀÇÁÖ°æ¸Å Á¶¾ð ÇÑ ¸¶µð


ÁÖÀÇ»çÇ× (ÃÖ¼±¼øÀ§ ¼³Á¤ÀÏ: 2017. 6. 30. ±ÙÀú´ç±Ç ¼³Á¤)

¸Å°¢À¸·Î ¼Ò¸êµÇÁö ¾Ê´Â µî±âºÎ±Ç¸®: ÇØ´ç»çÇ×¾øÀ½
¸Å°¢À¸·Î ¼³Á¤µÈ °ÍÀ¸·Î º¸´Â Áö»ó±Ç: ÇØ´ç»çÇ×¾øÀ½
¡Ø¹Ì³³°ü¸®ºñ(°ø¿ë) Àμö¿©ºÎ¸¦ ÀÔÂû Àü¿¡ È®ÀÎÇϽñ⠹ٶø´Ï´Ù

 

Áö¿ªºÐ¼®

ÁöÇÏö¸í Á÷¼±°Å¸®

Çб³¸í ÀüÈ­¹øÈ£ ÁÖ¼Ò Á÷¼±°Å¸®

¹ý¿ø

¼ö¿øÁö¹æ¹ý¿ø (165-12)°æ±âµµ ¼ö¿ø½Ã ¿µÅ뱸 ¹ýÁ¶·Î 105, Çϵ¿, ¼ö¿ø¹ý¿øÁ¾ÇÕû»ç
´ëÇ¥ : 031)210-1114, ¾ß°£ : 031)210-1111
°üÇÒÁö¿ª : ¼ö¿ø½Ã, ¿À»ê½Ã, È­¼º½Ã, ¿ëÀνÃ

µî±â¼Ò ¼ö¿øÁö¹æ¹ý¿ø º»¿ø µ¿¼ö¿øµî±â¼Ò (´ëÇ¥:1544-0773, ÆÑ½º:(031)206-1934, 204-4677, °æ±âµµ ¼ö¿ø½Ã ¿µÅ뱸 û¸í·Î 127 (¿µÅ뵿 961-16))
¼¼¹«¼­ ¼ö¿ø¼¼¹«¼­ (´ëÇ¥:031-250-42, ÆÑ½º:031-258-9411, °æ±âµµ ¼ö¿ø½Ã ÆÈ´Þ±¸ ¸Å»ê·Î 61 (¸Å»ê·Î3°¡))

Àαٳ«ÂûÅë°è

±â°£ ¸Å°¢°Ç¼ö Æò±Õ°¨Á¤°¡
Æò±Õ¸Å°¢°¡
¸Å°¢°¡À²
Æò±ÕÀ¯Âû¼ö
3°³¿ù 27°Ç 351,222,222¿ø
307,819,685¿ø
86%
1.1ȸ
6°³¿ù 50°Ç 383,160,000¿ø
329,248,558¿ø
86%
1.1ȸ
12°³¿ù 98°Ç 432,602,041¿ø
384,092,065¿ø
88%
1.1ȸ


º» °æ¸ÅÁ¤º¸´Â ¹ý¿øÀÚ·á¿Í ÀÏÄ¡Çϵµ·Ï ÇÏ¿´À¸³ª ±Ç¸®»çÇ׺¯µ¿, ÀÔ·ÂÂø¿À µîÀÇ ¿øÀÎÀ¸·Î »ç½Ç°ú ´Ù¸¦ ¼ö ÀÖ½À´Ï´Ù. ÀÌ¿ë¾à°ü¿¡ ÀǰЏéÃ¥Á¶°ÇÀ¸·Î Á¦°øµÊÀ» ¾Ë¸®¸ç, °æ¸ÅÀÔÂû½Ã ¹Ýµå½Ã °ü·Ã °øºÎ¸¦ ÀçÈ®ÀÎÇϽñ⠹ٶø´Ï´Ù. º¸´Ù Æí¸®ÇÑ °æ¸ÅÁ¤º¸ Á¦°øÀ» À§ÇØ Áö¼ÓÀûÀ¸·Î °³¼±ÇϰڽÀ´Ï´Ù. ÀÌ¿ëÇØ Áּż­ °¨»çÇÕ´Ï´Ù.