·Î±×ÀÎ
1173
´Ù¼¼´ë(ºô¶ó)
ÀÎõÁö¹æ¹ý¿ø ºÎõÁö¿ø
 °¨Á¤°¡183,000,000 ¿ø
 ÃÖÀú°¡(49%) 89,670,000 ¿ø
 º¸Áõ±Ý(10%) 8,967,000 ¿ø
 Ã»±¸¾×142,179,357 ¿ø
°æ±âµµ ±èÆ÷½Ã ÅëÁøÀ¾ Èï½Å·Î254¹ø±æ 10-24, 108µ¿ 1Ãþ102È£ (ºí·çÇÏÀÓ)
°æ±âµµ ±èÆ÷½Ã ÅëÁøÀ¾ µµ»ç¸® 776-6
»ç°Ç¹øÈ£ 2025Ÿ°æ100
°æ¸ÅÁ¾·ùºÎµ¿»êÀÓÀǰæ¸Å
¸Å°¢´ë»óÅäÁö ¹× °Ç¹°Àϰý ¸Å°¢
¸Å°¢±âÀÏ    2026.03.19(¸ñ) 10:00 ÀÔÂû 24ÀÏÀü    
ÅäÁö¸éÀû80.44§³(24.33 Æò)
°Ç¹°¸éÀû66.41§³(20.09 Æò)
乫/¼ÒÀ¯ÀÚ¹ÚOO / ¹ÚOO
ä±ÇÀÚÄÉOOOOOOOOOOOOOO OOOO(OOOOOOOOOOOO)
ÆäÀ̽ººÏ Æ®À§ÅÍ ±¸±Û+
īī¿À½ºÅ丮
īī¿ÀÅå sms¹®ÀÚº¸³»±â
 

±âÀϳ»¿ª

°æ°ú ³¯Â¥ Àú°¨ ÃÖÀú°¡ °á°ú
Á¢¼öÀÏ 2025-01-09 °æ¸ÅÁ¢¼ö
~1ÀÏ 
2025-01-10 °æ¸Å°³½Ã°áÁ¤
~91ÀÏ 
2025-04-10 ¹è´ç¿ä±¸Á¾±âÀÏ
~278ÀÏ 
2025-10-14 100%
183,000,000
À¯Âû
~306ÀÏ 
2025-11-11 70%
128,100,000
À¯Âû
~348ÀÏ 
2025-12-23 49%
89,670,000
º¯°æ
~434ÀÏ 
2026-03-19 49%
89,670,000
ÁøÇà
¹°°Ç¸í¼¼¼­ ÇöȲÁ¶»ç¼­ ¹®°ÇÁ¢¼ö ¼Û´Þ³»¿ª

°¨Á¤Æò°¡ÇöȲ

¸ñ·Ï ÁÖ¼Ò ±¸Á¶/¿ëµµ/´ëÁö±Ç ¸éÀû ºñ°í
´ëÁö±Ç
µµ»ç¸® 776-6 1287ºÐÀÇ 80.44 80.44 §³
(24.33Æò)
°Ç¹°
µµ»ç¸® 776-6 108µ¿ 1Ãþ102È£ ö±ÙÄÜÅ©¸®Æ®±¸Á¶ 66.41 §³
(20.09Æò)
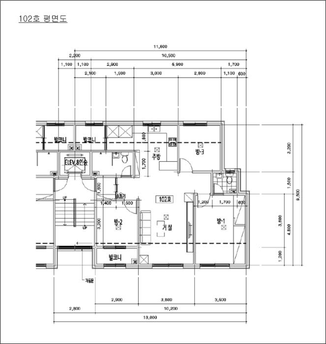
1) À§Ä¡/°èȹ°ü¸®Áö¿ª/¹ö½ºÁ¤·ùÀå/ö±ÙÄÜÅ©¸®Æ®±¸Á¶/°³º°³­¹æ/¹æ3/È­Àå½Ç2 ´õº¸±â
°¨Á¤Æò°¡ ¿äÇ×Ç¥
1)À§Ä¡ ¹× ÁÖÀ§È¯°æ
°æ±âµµ ±èÆ÷½Ã ÅëÁøÀ¾ µµ»ç¸® ¼ÒÀç "¸¶¼ÛÃʵîÇб³" ³²µ¿Ãø Á÷¼±°Å¸® ¾à700¹ÌÅÍ ÁöÁ¡¿¡ À§Ä¡
ÇÏ´Â ºí·çÇÏÀÓ(´Ù¼¼´ëÁÖÅÃ) 108µ¿ ³»¿¡ ¼ÒÀçÇϸç, ÀαÙÀÏ´ë´Â ´Ù¼¼´ëÁÖÅÃ, ¿¬¸³ÁÖÅÃ, °ø¾÷
¿ëºÎµ¿»ê µîÀÌ È¥ÀçÇÏ´Â Áö¿ªÀÓ.
2)±³Åë»óȲ
¹ö½ºÁ¤·ùÀåÀÌ ¼ÒÀçÇÏ´Â 355¹ø Áö¹æµµ·Î(¿Õº¹4Â÷¼±) ºÏµ¿Ãø Àαٿ¡ À§Ä¡ÇÑ Áö¿ªÀ¸·Î¼­ º»
°Ç¹°±îÁö Â÷·®Á¢±Ù °¡´ÉÇϸç, ºÏµ¿Ãø ±Ù°Å¸®·Î 48¹ø±¹µµ°¡ Åë°úÇϰí ÀÖÀ½.
3)°Ç¹°ÀÇ ±¸Á¶
ö±ÙÄÜÅ©¸®Æ®±¸Á¶ (ö±Ù)ÄÜÅ©¸®Æ®ÁöºØ 4Ãþ°Ç ³» 1Ãþ 102È£·Î¼­
¿Üº® : º®µ¹ÇüŸÀϺÙÀÓ, µ¹ºÙÀÓ µî ¸¶°¨.
³»º® : º®Áö ¹× ŸÀÏ µî ¸¶°¨.
âȣ : ÇÏÀ̼¦½Ã ¹× Ä®¶ó¼¦½Ã µî âȣÀÓ.
4)ÀÌ¿ë»óÅÂ
´Ù¼¼´ëÁÖÅÃ(¹æ3, °Å½Ç, ÁÖ¹æ°â½Ä´ç, È­Àå½Ç2 µî)À¸·Î ÀÌ¿ëÁßÀÓ.
5)¼³ºñ³»¿ª
º¸ÀÏ·¯¼³ºñ¿¡ ÀÇÇÑ °³º°³­¹æ ±¸Á¶À̸ç, À§»ý¼³ºñ, ±Þ.¹è¼ö¼³ºñ, ÃâÀÔ±¸º¸¾È°³Æó¼³ºñ, ¿¤¸®
º£ÀÌÅͼ³ºñ µî µÇ¾îÀÖÀ½.


6)ÅäÁöÀÇ Çü»ó ¹× ÀÌ¿ë»óÅÂ
ºÎÁ¤ÇüÀÇ ÆòÁö·Î¼­ ´Ù¼¼´ëÁÖÅà °ÇºÎÁö·Î ÀÌ¿ëÁßÀÓ.
7)ÀÎÁ¢ µµ·Î»óŵî
ºÏµ¿ÃøÀ¸·Î Æø5-6¹ÌÅÍ Á¤µµÀÇ ´ÜÁö³» Æ÷Àåµµ·Î¿¡ Á¢ÇÔ.
8)ÅäÁöÀÌ¿ë°èȹ ¹× Á¦ÇÑ»óÅÂ
°èȹ°ü¸®Áö¿ª(2023-05-02)(°èȹ°ü¸®Áö¿ª), ¼ºÀå°ü¸®°èȹ±¸¿ª(º¹ÇÕÇü, Á¾ÇÕÇã°¡°ú ¹®ÀÇ)
°¡Ãà»çÀ°Á¦Çѱ¸¿ª(¸ðµçÃàÁ¾ Á¦ÇÑ)<°¡ÃàºÐ´¢ÀÇ °ü¸® ¹× À̿뿡 °üÇÑ ¹ý·ü>, ¼ºÀå°ü¸®±Ç¿ª
<¼öµµ±ÇÁ¤ºñ°èȹ¹ý>
9)°øºÎ¿ÍÀÇ Â÷ÀÌ
¾ø À½.
10)±âŸÂü°í»çÇ×(ÀÓ´ë°ü·Ê ¹× ±âŸ)
ÀÓ´ë°ü°è : ¹Ì »ó ÀÓ.
±â Ÿ : º»°Ç ³»ºÎÀÌ¿ë»óÅ´ °ü°èÀÎ ºÎÀç·Î ÀÎÇÏ¿© °ÇÃ๰ÇöȲµµ ¹× ޹®Á¶»ç¿¡ ÀǰÅ
ÇÏ¿´À¸¸ç, µ¿ À¯Çü °øµ¿ÁÖÅÃÀÇ ÀϹÝÀûÀÎ ¼³ºñ»óȲÀ» ±âÁØÇÏ¿© Æò°¡ÇÏ¿´À¸´Ï
°æ¸ÅÁøÇà½Ã Âü°íÇϽñ⠹ٶ÷.


±¹ÅäºÎ½Ç°Å·¡°¡ °æ±âµµ ±èÆ÷½Ã ÅëÁøÀ¾

¡Ü ¸Å¸Å

¸éÀû(§³), ±Ý¾×(¸¸¿ø)

¡Ü Àü¼¼

¸éÀû(§³), ±Ý¾×(¸¸¿ø)

°è¾àÀϰǹ°¸íĪÃþ¿¬¸éÀûº¸Áõ±Ý¿ù¼¼°ÇÃà
26.02.05ÅëÁø¸Ç¼Ç3µ¿252.296,0002000
26.02.04ÄýÁîÆÄÅ©Aµ¿352.9712,0002017
26.02.03¼­¾Ï´Ù¼¼´ë(°¡µ¿)154.78500451987
26.01.29¼­¾Ï´Ù¼¼´ë(´Ùµ¿)154.78500401987
26.01.27´õÁ¸ÇϿ콺Bµ¿432.798,40002019
¢Ñ ´õº¸±â

µî±âºÎµîº» ¿ä¾à(°Ç¹°)

  Á¢¼öÀÏÀÚ µî±â¸ñÀû/±Ç¸®ÀÚ ±Ç¸®±Ý¾× ±âÁØ
1 2021³â1¿ù12ÀÏ
¼ÒÀ¯±Ç
¹ÚOO
¼Ò¸ê
2 2021³â1¿ù12ÀÏ
±ÙÀú´ç±Ç
(OOOO
172,800,000 ¼Ò¸ê±âÁØ
3 2025³â1¿ù10ÀÏ
ÀÓÀǰæ¸Å
(OOOO
¼Ò¸ê

ÀÓÂ÷ÀÎÇöȲ (¹è´ç¿ä±¸Á¾±âÀÏ: 2025-04-10)


Á¶»çµÈ ÀÓÂ÷³»¿ªÀÌ ¾ø½À´Ï´Ù


¿©ÀÇÁÖ°æ¸Å Á¶¾ð ÇÑ ¸¶µð


ÁÖÀÇ»çÇ× (ÃÖ¼±¼øÀ§ ¼³Á¤ÀÏ: 2021.01.12.±ÙÀú´ç±Ç ¼³Á¤)

¸Å°¢À¸·Î ¼Ò¸êµÇÁö ¾Ê´Â µî±âºÎ±Ç¸®: ÇØ´ç»çÇ×¾øÀ½
¸Å°¢À¸·Î ¼³Á¤µÈ °ÍÀ¸·Î º¸´Â Áö»ó±Ç: ÇØ´ç»çÇ×¾øÀ½
¡Ø¹Ì³³°ü¸®ºñ(°ø¿ë) Àμö¿©ºÎ¸¦ ÀÔÂû Àü¿¡ È®ÀÎÇϽñ⠹ٶø´Ï´Ù

 

Áö¿ªºÐ¼®

ÁöÇÏö¸í Á÷¼±°Å¸®

Çб³¸í ÀüÈ­¹øÈ£ ÁÖ¼Ò Á÷¼±°Å¸®

¹ý¿ø

ÀÎõÁö¹æ¹ý¿ø ºÎõÁö¿ø (146-02)°æ±âµµ ºÎõ½Ã ¿ø¹Ì±¸ »óÀÏ·Î 129(»óµ¿)
´ëÇ¥ : 032)320-1114, ¹Î¿ø : 032)320-1234
°üÇÒÁö¿ª : ºÎõ½Ã, ±èÆ÷½Ã

µî±â¼Ò ÀÎõÁö¹æ¹ý¿ø ºÎõÁö¿ø ±èÆ÷µî±â¼Ò (´ëÇ¥:1544-0773, ÆÑ½º:(031)982-6997, °æ±âµµ ±èÆ÷½Ã ºÀÈ­·Î 16 (»ç¿ìµ¿ 240-2))
¼¼¹«¼­ ±èÆ÷¼¼¹«¼­ (´ëÇ¥:031-980-32, ÆÑ½º:031-987-9932, °æ±âµµ ±èÆ÷½Ã ±èÆ÷ÇѰ­1·Î 22 (Àå±âµ¿))

Àαٳ«ÂûÅë°è

±â°£ ¸Å°¢°Ç¼ö Æò±Õ°¨Á¤°¡
Æò±Õ¸Å°¢°¡
¸Å°¢°¡À²
Æò±ÕÀ¯Âû¼ö
3°³¿ù 32°Ç 196,500,000¿ø
117,060,940¿ø
59%
2.3ȸ
6°³¿ù 47°Ç 195,659,574¿ø
124,122,257¿ø
63%
2ȸ
12°³¿ù 65°Ç 192,215,385¿ø
117,706,768¿ø
61%
2.4ȸ


º» °æ¸ÅÁ¤º¸´Â ¹ý¿øÀÚ·á¿Í ÀÏÄ¡Çϵµ·Ï ÇÏ¿´À¸³ª ±Ç¸®»çÇ׺¯µ¿, ÀÔ·ÂÂø¿À µîÀÇ ¿øÀÎÀ¸·Î »ç½Ç°ú ´Ù¸¦ ¼ö ÀÖ½À´Ï´Ù. ÀÌ¿ë¾à°ü¿¡ ÀǰЏéÃ¥Á¶°ÇÀ¸·Î Á¦°øµÊÀ» ¾Ë¸®¸ç, °æ¸ÅÀÔÂû½Ã ¹Ýµå½Ã °ü·Ã °øºÎ¸¦ ÀçÈ®ÀÎÇϽñ⠹ٶø´Ï´Ù. º¸´Ù Æí¸®ÇÑ °æ¸ÅÁ¤º¸ Á¦°øÀ» À§ÇØ Áö¼ÓÀûÀ¸·Î °³¼±ÇϰڽÀ´Ï´Ù. ÀÌ¿ëÇØ Áּż­ °¨»çÇÕ´Ï´Ù.