| °¨Á¤°¡ | 128,000,000 ¿ø |
| ÃÖÀú°¡ | (80%) 102,400,000 ¿ø |
| º¸Áõ±Ý | (10%) 10,240,000 ¿ø |
| û±¸¾× | 300,000,000 ¿ø |
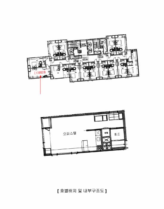
¼¿ïƯº°½Ã °ºÏ±¸ ¼öÀ¯µ¿ 95-7 ¼öÀ¯µ¿ÀÌÅ×Å©¹ë¸®¿ÀÇǽºÅÚ Á¦9Ãþ Á¦902È£
| »ç°Ç¹øÈ£ |
2025Ÿ°æ12029
|
| °æ¸ÅÁ¾·ù | ºÎµ¿»êÀÓÀǰæ¸Å |
| ¸Å°¢´ë»ó | ÅäÁö ¹× °Ç¹°Àϰý ¸Å°¢ |
| ¸Å°¢±âÀÏ |
2025.11.18(È) 10:00
ÀÔÂû 9ÀÏÀü
|
| ÅäÁö¸éÀû | 6.59§³(1.99 Æò) |
| °Ç¹°¸éÀû | 36.78§³(11.13 Æò) |
| 乫/¼ÒÀ¯ÀÚ | ÁÖOOO OOOOO / ÁÖOOO OOOO |
| ä±ÇÀÚ | À¯OOOOOOOOOOO OOOO(OOOOOOOOOO) |
±âÀϳ»¿ª
| °æ°ú |
³¯Â¥ |
Àú°¨ |
ÃÖÀú°¡ |
°á°ú |
| Á¢¼öÀÏ |
2025-02-28 |
°æ¸ÅÁ¢¼ö |
~4ÀÏ |
2025-03-04 |
°æ¸Å°³½Ã°áÁ¤ |
~91ÀÏ |
2025-05-30 |
¹è´ç¿ä±¸Á¾±âÀÏ |
~228ÀÏ |
2025-10-14 |
100% |
128,000,000 |
À¯Âû |
~263ÀÏ |
2025-11-18 |
80% |
102,400,000 |
ÁøÇà |
°¨Á¤Æò°¡ÇöȲ
| ¸ñ·Ï |
ÁÖ¼Ò |
±¸Á¶/¿ëµµ/´ëÁö±Ç |
¸éÀû |
ºñ°í |
´ëÁö±Ç
|
¼öÀ¯µ¿ 95-7 |
1356ºÐÀÇ 6.59 |
6.59 §³ (1.99Æò)
|
|
°Ç¹°
|
¼öÀ¯µ¿ 95-7 |
Á¦9Ãþ Á¦902È£ ö±ÙÄÜÅ©¸®Æ®Á¶ |
36.78 §³ (11.13Æò)
|
|
Âü°í »çÇ× |
* Æó¹®ºÎÀç·Î ¼ÒÀ¯ÀÚ ¹× Á¡À¯ÀÚµéÀ» ¸¸³ªÁö ¸øÇÏ¿© ³ë |
±¹ÅäºÎ½Ç°Å·¡°¡ ¼¿ïƯº°½Ã °ºÏ±¸ ¼öÀ¯µ¿
| °è¾àÀÏ | °Ç¹°¸íĪ | Ãþ | Àü¿ë | ±Ý¾× | °ÇÃà |
| 24.03.02 | ¼öÀ¯µ¿ÀÌÅ×Å©¹ë¸®¿ÀÇǽºÅÚ | 11 | 36.78 | 12,800 | 2005 |
| 24.02.02 | ¼öÀ¯µ¿ÀÌÅ×Å©¹ë¸®¿ÀÇǽºÅÚ | 8 | 27.81 | 11,000 | 2005 |
| 24.01.04 | ¼öÀ¯µ¿ÀÌÅ×Å©¹ë¸®¿ÀÇǽºÅÚ | 12 | 27.98 | 9,500 | 2005 |
| °è¾àÀÏ | °Ç¹°¸íĪ | Ãþ | Àü¿ë | º¸Áõ±Ý | ¿ù¼¼ | °ÇÃà |
| 25.10.28 | ¼öÀ¯µ¿ÀÌÅ×Å©¹ë¸®¿ÀÇǽºÅÚ | 7 | 27.81 | 10,100 | | 2005 |
| 25.10.13 | ¼öÀ¯µ¿ÀÌÅ×Å©¹ë¸®¿ÀÇǽºÅÚ | 9 | 27.98 | 3,000 | 40 | 2005 |
| 25.09.11 | ¼öÀ¯µ¿ÀÌÅ×Å©¹ë¸®¿ÀÇǽºÅÚ | 14 | 34.23 | 1,000 | 68 | 2005 |
| 25.09.11 | ¼öÀ¯µ¿ÀÌÅ×Å©¹ë¸®¿ÀÇǽºÅÚ | 13 | 27.81 | 10,000 | | 2005 |
| 25.08.13 | ¼öÀ¯µ¿ÀÌÅ×Å©¹ë¸®¿ÀÇǽºÅÚ | 17 | 34.83 | 11,000 | 0 | 2005 |
| 25.08.06 | ¼öÀ¯µ¿ÀÌÅ×Å©¹ë¸®¿ÀÇǽºÅÚ | 10 | 40.15 | 14,800 | | 2005 |
| 25.07.30 | ¼öÀ¯µ¿ÀÌÅ×Å©¹ë¸®¿ÀÇǽºÅÚ | 10 | 40.93 | 500 | 77 | 2005 |
| 25.07.28 | ¼öÀ¯µ¿ÀÌÅ×Å©¹ë¸®¿ÀÇǽºÅÚ | 6 | 27.81 | 500 | 60 | 2005 |
| 25.07.28 | ¼öÀ¯µ¿ÀÌÅ×Å©¹ë¸®¿ÀÇǽºÅÚ | 5 | 36.78 | 1,000 | 75 | 2005 |
| 25.07.26 | ¼öÀ¯µ¿ÀÌÅ×Å©¹ë¸®¿ÀÇǽºÅÚ | 14 | 36.78 | 1,000 | 75 | 2005 |
| 25.06.30 | ¼öÀ¯µ¿ÀÌÅ×Å©¹ë¸®¿ÀÇǽºÅÚ | 8 | 27.81 | 9,000 | 5 | 2005 |
| 25.06.20 | ¼öÀ¯µ¿ÀÌÅ×Å©¹ë¸®¿ÀÇǽºÅÚ | 8 | 27.81 | 10,000 | | 2005 |
| 25.06.10 | ¼öÀ¯µ¿ÀÌÅ×Å©¹ë¸®¿ÀÇǽºÅÚ | 5 | 27.81 | 500 | 55 | 2005 |
| 25.06.09 | ¼öÀ¯µ¿ÀÌÅ×Å©¹ë¸®¿ÀÇǽºÅÚ | 7 | 27.98 | 500 | 60 | 2005 |
| 25.06.02 | ¼öÀ¯µ¿ÀÌÅ×Å©¹ë¸®¿ÀÇǽºÅÚ | 11 | 27.81 | 1,000 | 60 | 2005 |
| 25.05.23 | ¼öÀ¯µ¿ÀÌÅ×Å©¹ë¸®¿ÀÇǽºÅÚ | 8 | 27.81 | 500 | 60 | 2005 |
| 25.05.13 | ¼öÀ¯µ¿ÀÌÅ×Å©¹ë¸®¿ÀÇǽºÅÚ | 14 | 34.23 | 12,000 | | 2005 |
| 25.05.10 | ¼öÀ¯µ¿ÀÌÅ×Å©¹ë¸®¿ÀÇǽºÅÚ | 7 | 36.78 | 1,000 | 68 | 2005 |
| 25.04.24 | ¼öÀ¯µ¿ÀÌÅ×Å©¹ë¸®¿ÀÇǽºÅÚ | 15 | 27.81 | 500 | 60 | 2005 |
| 25.02.05 | ¼öÀ¯µ¿ÀÌÅ×Å©¹ë¸®¿ÀÇǽºÅÚ | 11 | 36.78 | 3,000 | 60 | 2005 |
| 25.02.04 | ¼öÀ¯µ¿ÀÌÅ×Å©¹ë¸®¿ÀÇǽºÅÚ | 12 | 27.81 | 500 | 60 | 2005 |
| 25.02.03 | ¼öÀ¯µ¿ÀÌÅ×Å©¹ë¸®¿ÀÇǽºÅÚ | 13 | 27.81 | 500 | 60 | 2005 |
| 25.01.20 | ¼öÀ¯µ¿ÀÌÅ×Å©¹ë¸®¿ÀÇǽºÅÚ | 14 | 27.81 | 500 | 60 | 2005 |
| 25.01.18 | ¼öÀ¯µ¿ÀÌÅ×Å©¹ë¸®¿ÀÇǽºÅÚ | 15 | 34.23 | 11,900 | | 2005 |
| 25.01.04 | ¼öÀ¯µ¿ÀÌÅ×Å©¹ë¸®¿ÀÇǽºÅÚ | 5 | 27.81 | 4,000 | 32 | 2005 |
| 25.01.02 | ¼öÀ¯µ¿ÀÌÅ×Å©¹ë¸®¿ÀÇǽºÅÚ | 9 | 27.98 | 9,600 | | 2005 |
| 24.12.28 | ¼öÀ¯µ¿ÀÌÅ×Å©¹ë¸®¿ÀÇǽºÅÚ | 14 | 27.98 | 500 | 55 | 2005 |
| 24.12.26 | ¼öÀ¯µ¿ÀÌÅ×Å©¹ë¸®¿ÀÇǽºÅÚ | 7 | 34.23 | 500 | 60 | 2005 |
| 24.12.21 | ¼öÀ¯µ¿ÀÌÅ×Å©¹ë¸®¿ÀÇǽºÅÚ | 7 | 29.61 | 500 | 60 | 2005 |
| 24.12.19 | ¼öÀ¯µ¿ÀÌÅ×Å©¹ë¸®¿ÀÇǽºÅÚ | 9 | 31.63 | 1,000 | 63 | 2005 |
| 24.12.11 | ¼öÀ¯µ¿ÀÌÅ×Å©¹ë¸®¿ÀÇǽºÅÚ | 11 | 34.23 | 11,800 | | 2005 |
| 24.11.29 | ¼öÀ¯µ¿ÀÌÅ×Å©¹ë¸®¿ÀÇǽºÅÚ | 11 | 27.81 | 500 | 55 | 2005 |
| 24.11.29 | ¼öÀ¯µ¿ÀÌÅ×Å©¹ë¸®¿ÀÇǽºÅÚ | 11 | 27.81 | 500 | 55 | 2005 |
| 24.11.02 | ¼öÀ¯µ¿ÀÌÅ×Å©¹ë¸®¿ÀÇǽºÅÚ | 9 | 40.93 | 1,000 | 80 | 2005 |
| 24.10.23 | ¼öÀ¯µ¿ÀÌÅ×Å©¹ë¸®¿ÀÇǽºÅÚ | 8 | 34.23 | 1,000 | 62 | 2005 |
| 24.09.28 | ¼öÀ¯µ¿ÀÌÅ×Å©¹ë¸®¿ÀÇǽºÅÚ | 10 | 40.93 | 500 | 74 | 2005 |
| 24.09.28 | ¼öÀ¯µ¿ÀÌÅ×Å©¹ë¸®¿ÀÇǽºÅÚ | 10 | 40.93 | 500 | 73 | 2005 |
| 24.09.21 | ¼öÀ¯µ¿ÀÌÅ×Å©¹ë¸®¿ÀÇǽºÅÚ | 14 | 40.93 | 1,000 | 80 | 2005 |
| 24.08.17 | ¼öÀ¯µ¿ÀÌÅ×Å©¹ë¸®¿ÀÇǽºÅÚ | 10 | 27.81 | 500 | 60 | 2005 |
| 24.08.03 | ¼öÀ¯µ¿ÀÌÅ×Å©¹ë¸®¿ÀÇǽºÅÚ | 11 | 27.98 | 500 | 60 | 2005 |
| 24.07.24 | ¼öÀ¯µ¿ÀÌÅ×Å©¹ë¸®¿ÀÇǽºÅÚ | 13 | 34.23 | 500 | 70 | 2005 |
| 24.07.19 | ¼öÀ¯µ¿ÀÌÅ×Å©¹ë¸®¿ÀÇǽºÅÚ | 13 | 27.81 | 500 | 60 | 2005 |
| 24.07.13 | ¼öÀ¯µ¿ÀÌÅ×Å©¹ë¸®¿ÀÇǽºÅÚ | 9 | 27.81 | 500 | 60 | 2005 |
| 24.07.13 | ¼öÀ¯µ¿ÀÌÅ×Å©¹ë¸®¿ÀÇǽºÅÚ | 9 | 27.81 | 500 | 60 | 2005 |
| 24.07.08 | ¼öÀ¯µ¿ÀÌÅ×Å©¹ë¸®¿ÀÇǽºÅÚ | 11 | 34.23 | 500 | 63 | 2005 |
| 24.05.16 | ¼öÀ¯µ¿ÀÌÅ×Å©¹ë¸®¿ÀÇǽºÅÚ | 14 | 27.98 | 500 | 58 | 2005 |
| 24.05.07 | ¼öÀ¯µ¿ÀÌÅ×Å©¹ë¸®¿ÀÇǽºÅÚ | 17 | 27.81 | 500 | 60 | 2005 |
| 24.05.06 | ¼öÀ¯µ¿ÀÌÅ×Å©¹ë¸®¿ÀÇǽºÅÚ | 6 | 36.78 | 1,000 | 70 | 2005 |
| 24.04.22 | ¼öÀ¯µ¿ÀÌÅ×Å©¹ë¸®¿ÀÇǽºÅÚ | 16 | 27.81 | 10,000 | | 2005 |
| 24.04.12 | ¼öÀ¯µ¿ÀÌÅ×Å©¹ë¸®¿ÀÇǽºÅÚ | 15 | 29.61 | 500 | 60 | 2005 |
| 24.04.03 | ¼öÀ¯µ¿ÀÌÅ×Å©¹ë¸®¿ÀÇǽºÅÚ | 13 | 27.81 | 500 | 60 | 2005 |
| 24.03.22 | ¼öÀ¯µ¿ÀÌÅ×Å©¹ë¸®¿ÀÇǽºÅÚ | 11 | 36.78 | 3,000 | 50 | 2005 |
| 24.02.28 | ¼öÀ¯µ¿ÀÌÅ×Å©¹ë¸®¿ÀÇǽºÅÚ | 6 | 27.81 | 500 | 60 | 2005 |
| 24.01.20 | ¼öÀ¯µ¿ÀÌÅ×Å©¹ë¸®¿ÀÇǽºÅÚ | 13 | 27.98 | 1,000 | 50 | 2005 |
| 24.01.17 | ¼öÀ¯µ¿ÀÌÅ×Å©¹ë¸®¿ÀÇǽºÅÚ | 5 | 27.81 | 4,000 | 32 | 2005 |
| 24.01.16 | ¼öÀ¯µ¿ÀÌÅ×Å©¹ë¸®¿ÀÇǽºÅÚ | 10 | 27.81 | 500 | 60 | 2005 |
| 24.01.06 | ¼öÀ¯µ¿ÀÌÅ×Å©¹ë¸®¿ÀÇǽºÅÚ | 10 | 34.23 | 500 | 65 | 2005 |
| 24.01.03 | ¼öÀ¯µ¿ÀÌÅ×Å©¹ë¸®¿ÀÇǽºÅÚ | 14 | 36.78 | 1,000 | 73 | 2005 |
µî±âºÎµîº» ¿ä¾à(°Ç¹°)
| |
Á¢¼öÀÏÀÚ |
µî±â¸ñÀû/±Ç¸®ÀÚ |
±Ç¸®±Ý¾× |
±âÁØ |
| 1 |
2022³â2¿ù22ÀÏ |
¼ÒÀ¯±Ç
(OOOO
|
|
¼Ò¸ê |
| 2 |
2022³â11¿ù1ÀÏ |
±ÙÀú´ç±Ç
ÁßOOOO
|
300,000,000 |
¼Ò¸ê±âÁØ |
| 3 |
2024³â10¿ù31ÀÏ |
°¡¾Ð·ù
¼OOOO
|
93,270,794 |
¼Ò¸ê |
| 4 |
2025³â1¿ù21ÀÏ |
°¡¾Ð·ù
¼OOOO
|
292,537,379 |
¼Ò¸ê |
| 5 |
2025³â2¿ù19ÀÏ |
°¡¾Ð·ù
½ÅOOOO
|
100,000,000 |
¼Ò¸ê |
| 6 |
2025³â3¿ù4ÀÏ |
ÀÓÀǰæ¸Å
ÁßOOOO
|
|
¼Ò¸ê |
ÀÓÂ÷ÀÎÇöȲ (¹è´ç¿ä±¸Á¾±âÀÏ: 2025-05-30)
| ÀÓÂ÷ÀÎ |
¿ëµµ/Á¡À¯ |
º¸Áõ±Ý/¿ù¼¼ |
´ëÇ×·Â |
| ÀüÀÔÀÏ/È®Á¤ÀÏ |
¹è´ç¿ä±¸ |
ºñ°í |
| ±èOO |
902È£ |
¹Ì»ó
[¿ù]¹Ì»ó |
X |
2024.09.13 ¹Ì»ó |
|
¹Ì»ó |
ºñ°í (¸Å°¢¹°°Ç ¸í¼¼¼) |
±èÁ¤¼ö:乫ÀÚ ¹× ¼ÒÀ¯ÀÚÀÇ »ç³»ÀÌ»çÀÓ. |
ÁÖÀÇ»çÇ× (ÃÖ¼±¼øÀ§ ¼³Á¤ÀÏ: 2022.11.01. ±ÙÀú´ç±Ç ¼³Á¤)
| ¸Å°¢À¸·Î ¼Ò¸êµÇÁö ¾Ê´Â µî±âºÎ±Ç¸®: |
| ¸Å°¢À¸·Î ¼³Á¤µÈ °ÍÀ¸·Î º¸´Â Áö»ó±Ç: |
|
¡Ø¹Ì³³°ü¸®ºñ(°ø¿ë) Àμö¿©ºÎ¸¦ ÀÔÂû Àü¿¡ È®ÀÎÇϽñ⠹ٶø´Ï´Ù
|
Áö¿ªºÐ¼®
| Çб³¸í |
ÀüȹøÈ£ |
ÁÖ¼Ò |
Á÷¼±°Å¸® |
| ¹ý¿ø |
¼¿ïºÏºÎÁö¹æ¹ý¿ø (013-22)¼¿ïƯº°½Ã µµºÀ±¸ ¸¶µé·Î749 (µµºÀ2µ¿ 626) ´ëÇ¥ : 02)910-3114 °üÇÒÁö¿ª : °ºÏ±¸, ³ë¿ø±¸, µµºÀ±¸, µ¿´ë¹®±¸, ¼ººÏ±¸, Áß¶û±¸ |
| µî±â¼Ò |
¼¿ïºÏºÎÁö¹æ¹ý¿ø º»¿ø µî±â±¹ (´ëÇ¥:1544-0773, ÆÑ½º:(02)2030-2330, ¼¿ïƯº°½Ã µµºÀ±¸ ³ëÇØ·Î 325 (⵿ 337¹øÁö)) |
| ¼¼¹«¼ |
µµºÀ¼¼¹«¼ (´ëÇ¥:02-944-020, ÆÑ½º:02-984-2580, ¼¿ïƯº°½Ã °ºÏ±¸ µµºÀ·Î 117 (¹Ì¾Æµ¿)) |
Àαٳ«ÂûÅë°è
| ±â°£ |
¸Å°¢°Ç¼ö |
Æò±Õ°¨Á¤°¡ Æò±Õ¸Å°¢°¡ |
¸Å°¢°¡À² Æò±ÕÀ¯Âû¼ö |
| 3°³¿ù |
3°Ç |
306,666,667¿ø 243,666,667¿ø |
80% 2.3ȸ |
| 6°³¿ù |
5°Ç |
725,951,360¿ø 514,999,980¿ø |
79% 2ȸ |
| 12°³¿ù |
6°Ç |
643,959,467¿ø 460,962,817¿ø |
79% 2.2ȸ |
º» °æ¸ÅÁ¤º¸´Â ¹ý¿øÀÚ·á¿Í ÀÏÄ¡Çϵµ·Ï ÇÏ¿´À¸³ª ±Ç¸®»çÇ׺¯µ¿, ÀÔ·ÂÂø¿À µîÀÇ ¿øÀÎÀ¸·Î »ç½Ç°ú ´Ù¸¦ ¼ö ÀÖ½À´Ï´Ù.
ÀÌ¿ë¾à°ü¿¡ ÀǰЏéÃ¥Á¶°ÇÀ¸·Î Á¦°øµÊÀ» ¾Ë¸®¸ç, °æ¸ÅÀÔÂû½Ã ¹Ýµå½Ã °ü·Ã °øºÎ¸¦ ÀçÈ®ÀÎÇϽñ⠹ٶø´Ï´Ù.
º¸´Ù Æí¸®ÇÑ °æ¸ÅÁ¤º¸ Á¦°øÀ» À§ÇØ Áö¼ÓÀûÀ¸·Î °³¼±ÇϰڽÀ´Ï´Ù. ÀÌ¿ëÇØ Áּż °¨»çÇÕ´Ï´Ù.