| °¨Á¤°¡ | 905,256,000 ¿ø |
| ÃÖÀú°¡ | (80%) 724,204,000 ¿ø |
| º¸Áõ±Ý | (10%) 72,420,400 ¿ø |
| û±¸¾× | 270,000,000 ¿ø |
¼¿ïƯº°½Ã Áß¶û±¸ Áßȵ¿ 25-9
| »ç°Ç¹øÈ£ |
2025Ÿ°æ12013
|
| °æ¸ÅÁ¾·ù | ºÎµ¿»êÀÓÀǰæ¸Å |
| ¸Å°¢´ë»ó | ÅäÁö ¹× °Ç¹°Àϰý¸Å°¢ |
| ¸Å°¢±âÀÏ |
2025.11.18(È) 10:00
ÀÔÂû 9ÀÏÀü
|
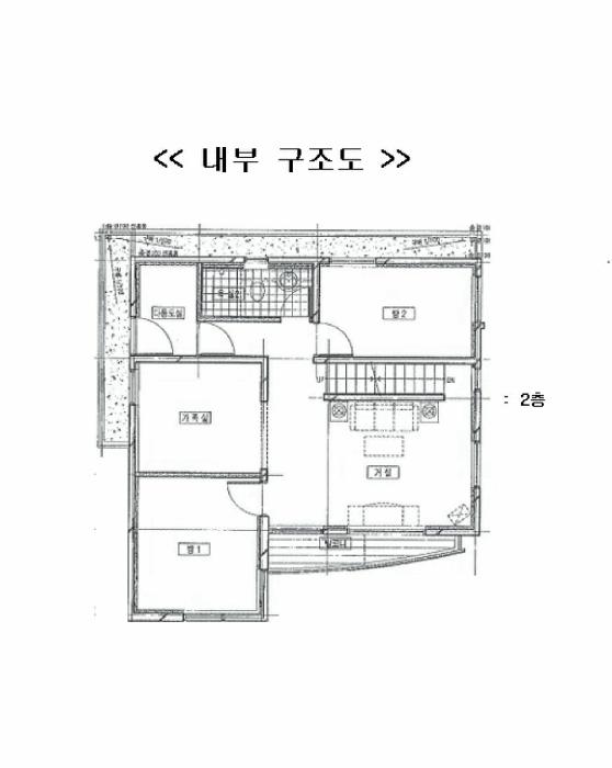
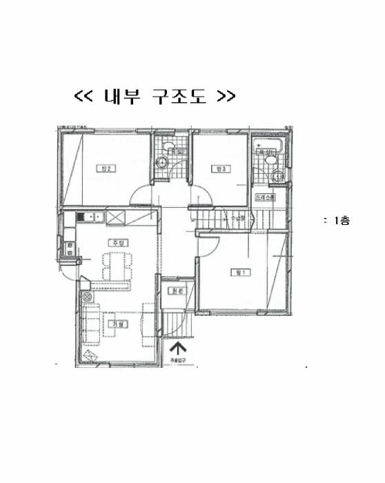
| ÅäÁö¸éÀû | 132.00§³(39.93 Æò) |
| °Ç¹°¸éÀû | 179.85§³(54.40 Æò) |
| 乫/¼ÒÀ¯ÀÚ | ½ÅOO¿Ü 1¸í / ½ÅOO¿Ü 1¸í |
| ä±ÇÀÚ | ÁÖOOOOOOOOOOO |
±âÀϳ»¿ª
| °æ°ú |
³¯Â¥ |
Àú°¨ |
ÃÖÀú°¡ |
°á°ú |
| Á¢¼öÀÏ |
2025-02-26 |
°æ¸ÅÁ¢¼ö |
~1ÀÏ |
2025-02-27 |
°æ¸Å°³½Ã°áÁ¤ |
~93ÀÏ |
2025-05-30 |
¹è´ç¿ä±¸Á¾±âÀÏ |
~230ÀÏ |
2025-10-14 |
100% |
905,256,000 |
À¯Âû |
~265ÀÏ |
2025-11-18 |
80% |
724,204,000 |
ÁøÇà |
°¨Á¤Æò°¡ÇöȲ
| ¸ñ·Ï |
ÁÖ¼Ò |
±¸Á¶/¿ëµµ/´ëÁö±Ç |
¸éÀû |
ºñ°í |
ÅäÁö
|
Áßȵ¿ 25-9 |
´ë |
132 §³ (39.93Æò)
|
|
°Ç¹°
|
Áßȵ¿ 25-9 |
1Ãþ ÁÖÅà ö±ÙÄÜÅ©¸®Æ®±¸Á¶ |
78.08 §³ (23.62Æò)
|
|
| Áßȵ¿ 25-9 |
2Ãþ ÁÖÅà ö±ÙÄÜÅ©¸®Æ®±¸Á¶ |
67.64 §³ (20.46Æò)
|
|
| Áßȵ¿ 25-9 |
3Ãþ ÁÖÅà ö±ÙÄÜÅ©¸®Æ®±¸Á¶ |
34.13 §³ (10.32Æò)
|
|
Âü°í »çÇ× |
Àϰý¸Å°¢
|
±¹ÅäºÎ½Ç°Å·¡°¡ ¼¿ïƯº°½Ã Áß¶û±¸ Áßȵ¿
| °è¾àÀÏ | À¯Çü | ¿¬¸éÀû | ´ëÁö | ±Ý¾× | °ÇÃà |
| 24.03.18 | ´Üµ¶ | 68.23 | 115.4 | 65,000 | 1973 |
| 24.03.12 | ´Üµ¶ | 50.58 | 101.8 | 36,000 | 1971 |
| 24.03.09 | ´Üµ¶ | 293.7 | 166.9 | 115,000 | 1995 |
| 24.01.18 | ´Üµ¶ | 181.5 | 121.6 | 91,866 | 1988 |
| °è¾àÀÏ | ¿¬¸éÀû | º¸Áõ±Ý | ¿ù¼¼ | °ÇÃà |
| 25.10.31 | 35.59 | 2,000 | 80 | 2017 |
| 25.10.29 | 35 | 19,000 | 0 | 2014 |
| 25.10.29 | 154.35 | 100 | 20 | 1974 |
| 25.10.29 | 69.72 | 2,000 | 75 | 2000 |
| 25.10.29 | 15 | 250 | 30 | 2011 |
| 25.10.29 | 119.02 | 30,000 | 30 | 2003 |
| 25.10.28 | 35.8 | 10,000 | 40 | 1995 |
| 25.10.27 | 24 | 700 | 40 | 2021 |
| 25.10.26 | 201.55 | 18,000 | 0 | 2003 |
| 25.10.26 | 26 | 1,000 | 35 | 1993 |
| 25.10.25 | 38 | 4,900 | 10 | 1992 |
| 25.10.25 | 27.68 | 8,000 | 25 | 1991 |
| 25.10.24 | 59.67 | 10,000 | 50 | 1994 |
| 25.10.23 | 112.8 | 35,000 | 0 | 2003 |
| 25.10.22 | 20 | 1,000 | 30 | 1992 |
| 25.10.22 | 48.07 | 12,000 | 40 | 2019 |
| 25.10.21 | 25 | 1,000 | 43 | 1975 |
| 25.10.21 | 27 | 7,000 | 25 | 1992 |
| 25.10.21 | 34.85 | 10,000 | 25 | 2019 |
| 25.10.21 | 65.95 | 20,000 | 0 | 1989 |
| 25.10.21 | 42 | 1,000 | 40 | 1993 |
| 25.10.21 | 73.19 | 12,000 | 60 | 1976 |
| 25.10.18 | 35 | 3,000 | 80 | 1990 |
| 25.10.18 | 55 | 1,500 | 75 | 1996 |
| 25.10.18 | 29 | 4,000 | 0 | 1990 |
| 25.10.18 | 17 | 1,000 | 30 | 1991 |
| 25.10.17 | 23 | 1,000 | 50 | 1998 |
| 25.10.17 | 43.12 | 13,000 | 60 | 1976 |
| 25.10.17 | 58 | 4,000 | 65 | 1994 |
| 25.10.16 | 75.13 | 13,000 | 15 | 1986 |
| 25.10.16 | 33.05 | 15,500 | 0 | 2018 |
| 25.10.16 | 57.54 | 6,000 | 65 | 1988 |
| 25.10.15 | 127.44 | 60,800 | | 1976 |
| 25.10.15 | 18 | 500 | 53 | 2015 |
| 25.10.15 | 199.25 | 58,000 | | 1993 |
| 25.10.15 | 53.3 | 20,000 | 5 | 1990 |
| 25.10.14 | 51 | 20,000 | 0 | 1992 |
| 25.10.13 | 52 | 3,500 | 50 | 2006 |
| 25.10.13 | 35 | 500 | 42 | 1994 |
| 25.10.12 | 33 | 500 | 50 | 1993 |
| 25.10.12 | 38.34 | 1,000 | 70 | 1994 |
| 25.10.11 | 23 | 500 | 30 | 1991 |
| 25.10.10 | 14.78 | 500 | 50 | 2019 |
| 25.10.10 | 24.54 | 4,700 | 0 | 1994 |
| 25.10.09 | 49 | 10,000 | 30 | 1975 |
| 25.10.07 | 219.06 | 200 | 35 | 1994 |
| 25.10.04 | 32.8 | 1,000 | 45 | 1993 |
| 25.10.04 | 26 | 4,000 | 52 | |
| 25.10.03 | 57.86 | 9,000 | 20 | 1989 |
| 25.10.03 | 35.85 | 14,000 | 22 | 2018 |
| 25.10.02 | 38.93 | 300 | 30 | 1989 |
| 25.10.02 | 126 | 1,000 | 35 | 2015 |
| 25.10.02 | 30 | 3,500 | 40 | 1992 |
| 25.10.01 | 29.96 | 500 | 40 | 1994 |
| 25.10.01 | 52.17 | 30,000 | 0 | 1993 |
| 25.09.30 | 16.5 | 200 | 20 | 1989 |
| 25.09.30 | 112 | 500 | 33 | 1989 |
| 25.09.30 | 69.15 | 10,000 | 50 | 1994 |
| 25.09.30 | 30.07 | 1,000 | 48 | 1992 |
| 25.09.30 | 32 | 10,000 | 35 | 2017 |
| 25.09.29 | 40.86 | 13,000 | 20 | 1993 |
| 25.09.29 | 15 | 300 | 33 | 1993 |
| 25.09.29 | 35 | 1,000 | 45 | 1993 |
| 25.09.29 | 30 | 19,000 | 0 | 2016 |
| 25.09.29 | 36.3 | 16,000 | 0 | 2013 |
| 25.09.29 | 28.4 | 4,000 | 0 | 1990 |
| 25.09.28 | 62.49 | 5,000 | 110 | 2018 |
| 25.09.28 | 33 | 500 | 35 | 1989 |
| 25.09.27 | 53 | 2,000 | 60 | 1990 |
| 25.09.27 | 33 | 14,000 | 0 | 1983 |
| 25.09.26 | 28 | 10,000 | 25 | 2015 |
| 25.09.26 | 35 | 1,000 | 25 | 1993 |
| 25.09.26 | 35.06 | 3,000 | 70 | 1990 |
| 25.09.25 | 65 | 28,000 | 0 | 1991 |
| 25.09.25 | 44 | 1,000 | 50 | 1992 |
| 25.09.25 | 80 | 12,800 | 15 | 1994 |
| 25.09.25 | 46.02 | 13,000 | 25 | 2003 |
| 25.09.25 | 30 | 1,000 | 85 | 2017 |
| 25.09.24 | 35 | 4,000 | 60 | 1989 |
| 25.09.23 | 46 | 1,000 | 70 | 1993 |
| 25.09.23 | 16 | 7,000 | 0 | 2011 |
| 25.09.23 | 32.71 | 9,000 | 30 | 1974 |
| 25.09.23 | 45 | 2,000 | 50 | 1990 |
| 25.09.23 | 46 | 1,000 | 70 | 1993 |
| 25.09.22 | 44 | 2,000 | 60 | 1993 |
| 25.09.22 | 22 | 100 | 20 | 1993 |
| 25.09.22 | 35 | 4,000 | 0 | 1993 |
| 25.09.22 | 45 | 1,500 | 85 | 2002 |
| 25.09.22 | 63 | 9,000 | 50 | 1975 |
| 25.09.20 | 71.96 | 25,000 | 25 | 2012 |
| 25.09.20 | 50 | 5,000 | 60 | 1994 |
| 25.09.20 | 45 | 1,000 | 65 | 1989 |
| 25.09.20 | 35 | 2,000 | 80 | 2017 |
| 25.09.20 | 47.33 | 15,000 | 0 | 1995 |
| 25.09.20 | 18 | 7,500 | 0 | 2015 |
| 25.09.20 | 32 | 12,000 | 25 | 2016 |
| 25.09.20 | 40.35 | 6,500 | 0 | 1990 |
| 25.09.20 | 24.88 | 13,000 | 15 | 1991 |
| 25.09.19 | 40.5 | 500 | 60 | 2018 |
| 25.09.19 | 30 | 800 | 38 | 1992 |
| 25.09.19 | 48.63 | 10,000 | 50 | 1989 |
| 25.09.19 | 32 | 500 | 45 | 1989 |
| 25.09.17 | 33 | 1,000 | 50 | 1992 |
| 25.09.16 | 79.56 | 24,000 | 0 | 1988 |
| 25.09.16 | 197.49 | 1,000 | 50 | 1976 |
| 25.09.15 | 19 | 10,000 | 0 | 2019 |
| 25.09.15 | 59 | 2,000 | 55 | 1996 |
| 25.09.15 | 105.74 | 14,000 | 80 | 1993 |
| 25.09.15 | 40 | 300 | 58 | 1994 |
| 25.09.14 | 68.13 | 15,000 | 0 | 1971 |
| 25.09.13 | 19.56 | 500 | 30 | 1991 |
| 25.09.13 | 34 | 1,000 | 40 | 1992 |
| 25.09.13 | 73.96 | 1,500 | 60 | 1993 |
| 25.09.12 | 40 | 15,500 | 0 | 1989 |
| 25.09.11 | 30 | 7,000 | 15 | 1992 |
| 25.09.11 | 30 | 4,750 | 60 | 2016 |
| 25.09.11 | 42.33 | 5,000 | 60 | 2018 |
| 25.09.11 | 47 | 1,000 | 80 | 1993 |
| 25.09.11 | 30.78 | 500 | 35 | 1986 |
| 25.09.11 | 24 | 3,000 | 0 | 1994 |
| 25.09.10 | 33 | 3,000 | 40 | 1991 |
| 25.09.10 | 23 | 500 | 30 | 1990 |
| 25.09.10 | 14 | 500 | 28 | 1994 |
| 25.09.10 | 31.55 | 8,000 | 0 | 1988 |
| 25.09.10 | 96.86 | 33,000 | 0 | 2003 |
| 25.09.10 | 31.55 | 8,000 | 0 | 1988 |
| 25.09.10 | 96.86 | 33,000 | 0 | 2003 |
| 25.09.10 | 203.09 | 100 | 20 | 1990 |
| 25.09.09 | 59.7 | 1,500 | 60 | 1975 |
| 25.09.09 | 31.09 | 20,000 | 5 | 2020 |
| 25.09.08 | 149.4 | 300 | 32 | 1993 |
| 25.09.08 | 149.78 | 300 | 25 | 1990 |
| 25.09.08 | 25 | 1,000 | 60 | 1995 |
| 25.09.07 | 16.5 | 300 | 50 | 2018 |
| 25.09.06 | 22 | 500 | 50 | 2012 |
| 25.09.06 | 42.66 | 3,000 | 60 | 2016 |
| 25.09.06 | 45.69 | 2,000 | 60 | 1997 |
| 25.09.05 | 159.3 | 1,000 | 65 | 2003 |
| 25.09.05 | 243.87 | 1,000 | 50 | 1989 |
| 25.09.04 | 20 | 200 | 32 | 1989 |
| 25.09.04 | 37.38 | 1,000 | 40 | 1990 |
| 25.09.04 | 247.58 | 500 | 50 | 1991 |
| 25.09.04 | 27 | 500 | 50 | 1993 |
| 25.09.04 | 54.3 | 5,000 | 60 | 1990 |
| 25.09.03 | 30 | 1,000 | 65 | 2015 |
| 25.09.02 | 93 | 2,000 | 40 | 1994 |
| 25.09.02 | 96.15 | 30,000 | 0 | 2007 |
| 25.09.02 | 51.11 | 4,200 | 10 | 1979 |
| 25.09.02 | 93.44 | 2,000 | 40 | 1994 |
| 25.09.01 | 17 | 1,000 | 43 | 2015 |
| 25.09.01 | 193.26 | 300 | 23 | 1991 |
| 25.09.01 | 35 | 2,000 | 80 | 2017 |
| 25.09.01 | 44 | 15,000 | 0 | 2003 |
| 25.09.01 | 28 | 2,000 | 60 | 2020 |
| 25.09.01 | 55 | 5,000 | 67 | 2002 |
| 25.09.01 | 44 | 15,000 | 0 | 2003 |
| 25.08.31 | 31.09 | 25,000 | 0 | 2020 |
| 25.08.30 | 25 | 1,000 | 55 | 1991 |
| 25.08.30 | 33.21 | 500 | 49 | 2019 |
| 25.08.30 | 51.39 | 12,000 | 40 | 1996 |
| 25.08.30 | 49.96 | 7,000 | 0 | 1987 |
| 25.08.30 | 30 | 300 | 35 | 1991 |
| 25.08.29 | 21 | 6,500 | 0 | 1992 |
| 25.08.29 | 27 | 400 | 32 | 1995 |
| 25.08.29 | 40 | 500 | 35 | 1990 |
| 25.08.29 | 206.85 | 300 | 38 | 1990 |
| 25.08.29 | 27.04 | 300 | 30 | 1991 |
| 25.08.29 | 27 | 400 | 32 | 1995 |
| 25.08.29 | 29.54 | 3,000 | 100 | 2025 |
| 25.08.28 | 32.09 | 200 | 33 | 1992 |
| 25.08.28 | 60.75 | 1,000 | 80 | 1997 |
| 25.08.27 | 19.83 | 9,500 | 0 | 2016 |
| 25.08.27 | 33 | 1,000 | 45 | 1993 |
| 25.08.27 | 74.88 | 21,000 | 0 | 1993 |
| 25.08.26 | 180.63 | 1,000 | 60 | 1984 |
| 25.08.26 | 99.43 | 1,000 | 70 | 1989 |
| 25.08.26 | 26.3 | 1,000 | 50 | 1995 |
| 25.08.25 | 61.83 | 20,000 | 30 | 2016 |
| 25.08.25 | 39 | 500 | 55 | 1987 |
| 25.08.24 | 67.26 | 5,000 | 85 | 1987 |
| 25.08.23 | 146.91 | 500 | 50 | 1991 |
| 25.08.23 | 19.8 | 3,000 | 45 | 2017 |
| 25.08.22 | 31.45 | 15,000 | 0 | 2014 |
| 25.08.21 | 34.77 | 3,000 | 65 | 2017 |
| 25.08.21 | 64.39 | 2,000 | 75 | 1998 |
| 25.08.21 | 27 | 500 | 40 | 1987 |
| 25.08.21 | 18 | 300 | 35 | 1980 |
| 25.08.21 | 30 | 1,000 | 55 | 1994 |
| 25.08.21 | 54.02 | 850 | 60 | 1990 |
| 25.08.21 | 27 | 500 | 46 | 1987 |
| 25.08.20 | 33 | 500 | 35 | 1990 |
| 25.08.20 | 55.62 | 8,000 | 80 | 2016 |
| 25.08.20 | 52.53 | 500 | 40 | 1990 |
| 25.08.19 | 16.5 | 100 | 15 | 1989 |
| 25.08.19 | 183.66 | 500 | 30 | 1991 |
| 25.08.19 | 33 | 500 | 50 | 1991 |
| 25.08.19 | 33 | 500 | 30 | 1994 |
| 25.08.19 | 36.22 | 5,000 | 80 | 2018 |
| 25.08.19 | 16.32 | 500 | 40 | 1994 |
| 25.08.18 | 35 | 1,000 | 40 | 1993 |
| 25.08.18 | 84.18 | 5,000 | 110 | 2003 |
| 25.08.18 | 20 | 3,000 | 43 | 2017 |
| 25.08.18 | 40 | 1,000 | 90 | 2018 |
| 25.08.18 | 57.8 | 20,000 | 0 | 1969 |
| 25.08.18 | 191.25 | 300 | 35 | 1988 |
| 25.08.18 | 49.45 | 1,000 | 70 | 1995 |
| 25.08.18 | 58.35 | 11,500 | 0 | 1997 |
| 25.08.18 | 53.35 | 2,000 | 45 | 1997 |
| 25.08.17 | 30 | 300 | 35 | 1994 |
| 25.08.15 | 198.12 | 75,000 | | 1993 |
| 25.08.15 | 174.5 | 200 | 50 | 2000 |
| 25.08.15 | 199.38 | 200 | 20 | 1993 |
| 25.08.15 | 48.74 | 3,000 | 75 | 2018 |
| 25.08.15 | 32 | 1,000 | 50 | 1994 |
| 25.08.15 | 36.01 | 500 | 40 | 1994 |
| 25.08.15 | 36 | 21,000 | 0 | 2021 |
| 25.08.14 | 50.05 | 1,000 | 45 | 1996 |
| 25.08.14 | 27.32 | 1,000 | 42 | 1994 |
| 25.08.14 | 35 | 400 | 40 | 1991 |
| 25.08.14 | 30 | 500 | 34 | 1984 |
| 25.08.14 | 30.74 | 1,000 | 50 | 1989 |
| 25.08.14 | 25 | 2,000 | 55 | 2017 |
| 25.08.14 | 30.74 | 1,000 | 50 | 1989 |
| 25.08.13 | 25 | 2,000 | 60 | 2021 |
| 25.08.13 | 45.16 | 13,000 | 10 | 1994 |
| 25.08.13 | 215.62 | 15,000 | 0 | 2015 |
| 25.08.13 | 196.78 | 300 | 27 | 1991 |
| 25.08.13 | 35 | 500 | 38 | 1991 |
| 25.08.12 | 28 | 3,000 | 55 | 2020 |
| 25.08.12 | 33.8 | 8,000 | 15 | 1991 |
| 25.08.12 | 30 | 2,000 | 50 | 2017 |
| 25.08.12 | 22 | 500 | 47 | 2018 |
| 25.08.11 | 32 | 6,800 | 0 | 1993 |
| 25.08.11 | 13.22 | 1,000 | 30 | 2017 |
| 25.08.11 | 65.88 | 13,000 | 55 | 1989 |
| 25.08.10 | 43.54 | 3,000 | 75 | 2020 |
| 25.08.10 | 43.54 | 3,000 | 75 | 2020 |
| 25.08.09 | 130.48 | 28,000 | 0 | 1976 |
| 25.08.09 | 44 | 4,000 | 60 | 1993 |
| 25.08.09 | 65.75 | 3,000 | 80 | 1996 |
| 25.08.08 | 30 | 1,000 | 50 | 1990 |
| 25.08.08 | 33.28 | 500 | 40 | 1991 |
| 25.08.08 | 79.23 | 15,000 | 40 | 1998 |
| 25.08.08 | 240.54 | 3,000 | 50 | 1993 |
| 25.08.08 | 27.81 | 500 | 37 | 1994 |
| 25.08.08 | 18.85 | 1,000 | 70 | 2021 |
| 25.08.06 | 36 | 10,000 | 0 | 1979 |
| 25.08.06 | 32.23 | 3,000 | 60 | 1969 |
| 25.08.06 | 30 | 500 | 47 | 1996 |
| 25.08.05 | 28 | 300 | 30 | 1994 |
| 25.08.05 | 40 | 1,000 | 70 | 1991 |
| 25.08.04 | 33 | 3,000 | 50 | 1989 |
| 25.08.04 | 14.78 | 2,000 | 35 | 2019 |
| 25.08.04 | 33 | 500 | 45 | 1994 |
| 25.08.04 | 22 | 4,000 | 45 | 2014 |
| 25.08.02 | 18 | 500 | 45 | 2020 |
| 25.08.02 | 33 | 8,000 | 0 | 1993 |
| 25.08.01 | 38 | 1,500 | 85 | |
| 25.07.31 | 12.96 | 1,500 | 0 | 2008 |
| 25.07.31 | 32 | 1,000 | 55 | 1990 |
| 25.07.31 | 64.89 | 14,000 | 20 | 1993 |
| 25.07.31 | 18 | 50 | 50 | 2009 |
| 25.07.30 | 28 | 500 | 50 | 1991 |
| 25.07.30 | 62.97 | 14,000 | 0 | 1992 |
| 25.07.30 | 41 | 1,000 | 30 | 1994 |
| 25.07.29 | 34 | 1,000 | 55 | 1995 |
| 25.07.29 | 34 | 1,000 | 55 | 1995 |
| 25.07.28 | 241.34 | 1,000 | 50 | 1990 |
| 25.07.28 | 14 | 500 | 35 | 2012 |
| 25.07.28 | 66.27 | 13,000 | 45 | 2003 |
| 25.07.28 | 36 | 9,500 | 0 | 1979 |
| 25.07.26 | 34.92 | 10,500 | 0 | 1990 |
| 25.07.26 | 51.47 | 30,000 | 0 | 1978 |
| 25.07.26 | 58.61 | 12,000 | 45 | 1996 |
| 25.07.26 | 60 | 10,000 | 50 | 1973 |
| 25.07.26 | 16 | 300 | 42 | 2011 |
| 25.07.25 | 58.57 | 1,000 | 0 | 1989 |
| 25.07.24 | 16 | 500 | 45 | 2018 |
| 25.07.24 | 68.68 | 0 | 33 | 1990 |
| 25.07.23 | 36 | 5,500 | 0 | 1979 |
| 25.07.23 | 42 | 1,500 | 43 | 1994 |
| 25.07.22 | 18 | 500 | 45 | 2016 |
| 25.07.22 | 20 | 200 | 22 | 1991 |
| 25.07.21 | 36.3 | 15,000 | 0 | 1992 |
| 25.07.21 | 33 | 1,000 | 60 | 1989 |
| 25.07.21 | 16.5 | 300 | 42 | 2011 |
| 25.07.21 | 23.1 | 3,000 | 30 | 1996 |
| 25.07.19 | 30 | 300 | 40 | 1990 |
| 25.07.19 | 18 | 500 | 30 | 2010 |
| 25.07.19 | 148.62 | 75,000 | | 1993 |
| 25.07.19 | 27 | 500 | 35 | 1991 |
| 25.07.19 | 14 | 100 | 23 | 1990 |
| 25.07.19 | 33.39 | 11,000 | 0 | 1974 |
| 25.07.18 | 29 | 1,000 | 65 | 2013 |
| 25.07.18 | 25 | 1,000 | 40 | 2003 |
| 25.07.17 | 19.8 | 500 | 35 | 2019 |
| 25.07.17 | 31.18 | 7,000 | 20 | 1991 |
| 25.07.17 | 33.87 | 9,000 | 20 | 1991 |
| 25.07.17 | 30 | 7,000 | 0 | 1989 |
| 25.07.16 | 238.68 | 11,000 | 33 | 2014 |
| 25.07.15 | 40.22 | 12,000 | 10 | 1995 |
| 25.07.15 | 45 | 7,000 | 50 | 1991 |
| 25.07.14 | 30 | 18,000 | 0 | 2016 |
| 25.07.14 | 305.15 | 290,000 | | 1981 |
| 25.07.14 | 96.86 | 32,000 | 0 | 2003 |
| 25.07.12 | 20 | 500 | 40 | 2018 |
| 25.07.12 | 69.55 | 2,000 | 70 | 1992 |
| 25.07.12 | 18 | 50 | 50 | 2009 |
| 25.07.11 | 181.62 | 2,000 | 60 | 1993 |
| 25.07.11 | 20 | 500 | 45 | 2021 |
| 25.07.11 | 43 | 3,000 | 50 | 1995 |
| 25.07.11 | 46.44 | 13,000 | 35 | 1989 |
| 25.07.11 | 76.09 | 13,000 | 30 | 2005 |
| 25.07.11 | 23.1 | 3,000 | 50 | 2018 |
| 25.07.11 | 28 | 15,000 | 0 | 2020 |
| 25.07.10 | 66.49 | 10,000 | 190 | 2022 |
| 25.07.10 | 40.92 | 5,000 | 45 | 2018 |
| 25.07.10 | 45 | 1,000 | 60 | 1997 |
| 25.07.10 | 20 | 500 | 35 | 1991 |
| 25.07.10 | 33 | 500 | 50 | 1993 |
| 25.07.08 | 20 | 1,000 | 40 | 1996 |
| 25.07.08 | 195.67 | 200 | 25 | 1990 |
| 25.07.07 | 102.39 | 79,000 | | 1987 |
| 25.07.07 | 30 | 1,000 | 75 | 2017 |
| 25.07.07 | 35 | 15,000 | 0 | 2016 |
| 25.07.07 | 35 | 15,000 | 0 | 2016 |
| 25.07.07 | 35 | 15,000 | 0 | 2016 |
| 25.07.05 | 33 | 1,000 | 50 | |
| 25.07.05 | 33 | 1,000 | 50 | 1993 |
| 25.07.04 | 45.61 | 10,000 | 0 | 1991 |
| 25.07.04 | 78.28 | 5,000 | 70 | 1975 |
| 25.07.04 | 36 | 1,500 | 30 | 1995 |
| 25.07.04 | 33 | 1,000 | 50 | 1987 |
| 25.07.04 | 45 | 1,500 | 75 | 2012 |
| 25.07.04 | 67.83 | 23,000 | 0 | 1979 |
| 25.07.04 | 23 | 500 | 40 | 1992 |
| 25.07.04 | 54.7 | 16,000 | 0 | 1992 |
| 25.07.03 | 44.88 | 11,000 | 25 | 1993 |
| 25.07.02 | 36 | 500 | 35 | 1993 |
| 25.07.02 | 33 | 500 | 35 | 1991 |
| 25.07.02 | 33.1 | 6,000 | 20 | 1991 |
| 25.07.02 | 49.54 | 1,000 | 75 | 1990 |
| 25.07.02 | 179.61 | 3,000 | 75 | 1993 |
| 25.07.02 | 179.61 | 3,000 | 75 | 1993 |
| 25.07.02 | 53.26 | 13,000 | 25 | 1975 |
| 25.07.01 | 79.2 | 1,500 | 98 | 1991 |
| 25.06.30 | 17.82 | 500 | 10 | 1980 |
| 25.06.30 | 221.22 | 100 | 22 | 1988 |
| 25.06.30 | 39 | 1,000 | 60 | 1994 |
| 25.06.30 | 15 | 300 | 35 | 1991 |
| 25.06.29 | 30 | 500 | 44 | 1992 |
| 25.06.29 | 20 | 300 | 20 | 1992 |
| 25.06.28 | 60.69 | 13,000 | 50 | 1977 |
| 25.06.28 | 18 | 1,000 | 30 | 2005 |
| 25.06.28 | 73.38 | 5,000 | 50 | 1997 |
| 25.06.28 | 65.99 | 10,000 | 70 | 1990 |
| 25.06.27 | 18 | 500 | 38 | 2010 |
| 25.06.27 | 33 | 3,000 | 50 | 1990 |
| 25.06.26 | 16.09 | 7,000 | 0 | 1993 |
| 25.06.26 | 16.5 | 3,000 | 30 | 2020 |
| 25.06.25 | 179.88 | 5,000 | 95 | 2021 |
| 25.06.25 | 26.44 | 1,000 | 45 | 2019 |
| 25.06.25 | 27.68 | 8,000 | 25 | 1991 |
| 25.06.25 | 21 | 5,000 | 15 | 2019 |
| 25.06.24 | 21 | 1,000 | 30 | 1992 |
| 25.06.24 | 49.6 | 12,000 | 40 | 1987 |
| 25.06.24 | 45 | 1,000 | 70 | 1991 |
| 25.06.24 | 45 | 1,000 | 75 | 1991 |
| 25.06.24 | 34.39 | 10,000 | 60 | 2021 |
| 25.06.24 | 25 | 300 | 30 | 1974 |
| 25.06.24 | 95.37 | 2,000 | 60 | 1991 |
| 25.06.23 | 32 | 500 | 43 | 1992 |
| 25.06.23 | 82.91 | 14,000 | 60 | 1977 |
| 25.06.21 | 15 | 500 | 38 | 2019 |
| 25.06.21 | 20 | 1,000 | 50 | 2018 |
| 25.06.21 | 46 | 1,500 | 80 | 1995 |
| 25.06.20 | 33 | 10,000 | 0 | 1991 |
| 25.06.20 | 20 | 8,000 | 0 | 2016 |
| 25.06.20 | 20 | 8,000 | 0 | 2016 |
| 25.06.19 | 149.46 | 64,700 | | 1991 |
| 25.06.19 | 40 | 9,000 | 0 | 1991 |
| 25.06.19 | 193.08 | 500 | 50 | 1992 |
| 25.06.19 | 34.89 | 1,000 | 47 | 1983 |
| 25.06.18 | 34 | 500 | 35 | 1990 |
| 25.06.18 | 39 | 1,000 | 55 | 1996 |
| 25.06.18 | 19.8 | 200 | 28 | 1976 |
| 25.06.17 | 72.9 | 3,000 | 75 | 1990 |
| 25.06.17 | 72.69 | 23,000 | 0 | 1994 |
| 25.06.17 | 36 | 300 | 35 | 1991 |
| 25.06.17 | 28.5 | 7,000 | 45 | 2019 |
| 25.06.17 | 32 | 500 | 30 | 1976 |
| 25.06.17 | 29 | 300 | 30 | 1991 |
| 25.06.16 | 66 | 29,000 | 0 | 2016 |
| 25.06.16 | 45 | 15,000 | 0 | 2012 |
| 25.06.15 | 30 | 1,000 | 59 | 2015 |
| 25.06.14 | 23 | 3,500 | 45 | 2021 |
| 25.06.14 | 60.03 | 19,000 | 0 | 2017 |
| 25.06.14 | 77.9 | 8,000 | 63 | 2003 |
| 25.06.14 | 38.78 | 10,000 | 55 | 2019 |
| 25.06.14 | 13.5 | 1,000 | 50 | 2025 |
| 25.06.14 | 16.28 | 2,000 | 50 | 2018 |
| 25.06.13 | 56.69 | 6,000 | 50 | 1976 |
| 25.06.13 | 25 | 15,000 | 0 | 2016 |
| 25.06.13 | 33 | 1,000 | 50 | 1997 |
| 25.06.13 | 15 | 100 | 35 | 1990 |
| 25.06.13 | 20 | 300 | 20 | 1996 |
| 25.06.13 | 25 | 15,000 | 0 | 2016 |
| 25.06.13 | 35.25 | 12,000 | 30 | 2017 |
| 25.06.12 | 32 | 1,000 | 50 | 1994 |
| 25.06.12 | 30 | 2,000 | 40 | 1990 |
| 25.06.11 | 77.26 | 15,000 | 0 | 1995 |
| 25.06.11 | 45 | 3,000 | 70 | 1996 |
| 25.06.10 | 65.7 | 9,000 | 0 | 1985 |
| 25.06.09 | 45 | 3,000 | 40 | |
| 25.06.09 | 82 | 8,000 | 50 | 1996 |
| 25.06.09 | 34.16 | 13,000 | 0 | 1989 |
| 25.06.07 | 49.61 | 4,000 | 65 | 1986 |
| 25.06.07 | 49.61 | 4,000 | 65 | 1986 |
| 25.06.07 | 36 | 12,000 | 0 | 1994 |
| 25.06.06 | 26 | 20,000 | 0 | 2018 |
| 25.06.06 | 214.06 | 7,000 | 75 | 1990 |
| 25.06.05 | 51 | 4,000 | 65 | |
| 25.06.05 | 90 | 2,000 | 90 | 1968 |
| 25.06.05 | 35 | 300 | 20 | 1991 |
| 25.06.05 | 123.18 | 18,000 | 0 | 1969 |
| 25.06.05 | 36 | 2,000 | 65 | 2021 |
| 25.06.05 | 22.57 | 5,000 | 55 | 2021 |
| 25.06.05 | 62 | 13,000 | 10 | |
| 25.06.04 | 32 | 4,000 | 50 | 2013 |
| 25.06.04 | 221.9 | 20,000 | 0 | 2001 |
| 25.06.04 | 40 | 3,000 | 45 | 1998 |
| 25.06.04 | 12 | 300 | 25 | 1993 |
| 25.06.03 | 160.5 | 24,000 | 0 | 1976 |
| 25.06.03 | 18 | 9,500 | 0 | 2019 |
| 25.06.03 | 48.39 | 8,000 | 50 | 1996 |
| 25.06.03 | 74.21 | 24,000 | 0 | 1976 |
| 25.06.03 | 29.65 | 1,000 | 50 | 1990 |
| 25.06.03 | 26 | 6,000 | 0 | 1994 |
| 25.06.03 | 79.56 | 1,000 | 40 | 1991 |
| 25.06.02 | 19.68 | 500 | 46 | 1992 |
| 25.06.02 | 39.4 | 3,000 | 60 | 1996 |
| 25.06.02 | 76.09 | 18,000 | 0 | 2005 |
| 25.06.02 | 31 | 4,700 | 7 | 1992 |
| 25.06.01 | 66.96 | 3,000 | 0 | 1989 |
| 25.06.01 | 21 | 500 | 65 | 2025 |
| 25.05.31 | 45.56 | 6,800 | 0 | 1990 |
| 25.05.31 | 50.82 | 8,000 | 20 | 1996 |
| 25.05.31 | 26 | 3,500 | 0 | 1992 |
| 25.05.31 | 23 | 12,500 | 0 | 2021 |
| 25.05.31 | 149.18 | 15,500 | 0 | 1994 |
| 25.05.31 | 65.84 | 13,000 | 0 | 1992 |
| 25.05.29 | 116 | 0 | 40 | 1991 |
| 25.05.29 | 19.52 | 2,000 | 40 | 2017 |
| 25.05.29 | 30 | 300 | 30 | 2006 |
| 25.05.28 | 60 | 10,000 | 60 | 2004 |
| 25.05.28 | 20 | 9,000 | 0 | 2016 |
| 25.05.27 | 20 | 500 | 35 | 2018 |
| 25.05.27 | 50.4 | 1,000 | 65 | 2003 |
| 25.05.27 | 54 | 17,000 | 0 | 2003 |
| 25.05.27 | 59.2 | 18,000 | 0 | 2015 |
| 25.05.27 | 67.72 | 12,000 | 10 | 1989 |
| 25.05.27 | 67.72 | 12,000 | 10 | 1989 |
| 25.05.26 | 30 | 2,000 | 10 | 1993 |
| 25.05.26 | 58.8 | 17,300 | 0 | 2002 |
| 25.05.26 | 32 | 13,000 | 0 | 1991 |
| 25.05.25 | 39.43 | 7,350 | 0 | 1990 |
| 25.05.24 | 35 | 3,000 | 42 | 2021 |
| 25.05.24 | 151.29 | 300 | 30 | 1989 |
| 25.05.24 | 21 | 500 | 60 | 2025 |
| 25.05.24 | 227.43 | 1,500 | 36 | 1990 |
| 25.05.24 | 33 | 300 | 30 | 1991 |
| 25.05.24 | 21 | 500 | 55 | |
| 25.05.24 | 15 | 300 | 30 | 2011 |
| 25.05.24 | 51.39 | 8,000 | 20 | 1996 |
| 25.05.24 | 35 | 12,000 | 0 | 2021 |
| 25.05.24 | 21 | 500 | 60 | 2025 |
| 25.05.24 | 61 | 12,000 | 39 | 2002 |
| 25.05.24 | 21 | 500 | 60 | |
| 25.05.24 | 25.06 | 5,000 | 80 | 2021 |
| 25.05.24 | 35 | 12,000 | 0 | 2021 |
| 25.05.24 | 35 | 12,000 | 0 | |
| 25.05.23 | 20 | 100 | 30 | 1993 |
| 25.05.23 | 18 | 500 | 35 | 2016 |
| 25.05.23 | 155.52 | 63,500 | | 1985 |
| 25.05.23 | 33 | 500 | 60 | 1987 |
| 25.05.22 | 32 | 500 | 50 | 1994 |
| 25.05.22 | 40 | 500 | 40 | 1990 |
| 25.05.22 | 199.9 | 200 | 32 | 1993 |
| 25.05.22 | 40 | 500 | 40 | 1990 |
| 25.05.21 | 33 | 5,000 | 20 | 1993 |
| 25.05.21 | 15.2 | 500 | 30 | 2019 |
| 25.05.21 | 20 | 500 | 30 | 1993 |
| 25.05.20 | 50.2 | 21,000 | 0 | 1993 |
| 25.05.20 | 25.29 | 3,000 | 55 | 2017 |
| 25.05.20 | 178.08 | 300 | 20 | 1989 |
| 25.05.20 | 40.86 | 13,000 | 8 | 1993 |
| 25.05.20 | 33 | 11,000 | 0 | 1993 |
| 25.05.20 | 33 | 8,000 | 20 | 1995 |
| 25.05.20 | 50.2 | 21,000 | 0 | |
| 25.05.19 | 29 | 500 | 40 | 1992 |
| 25.05.18 | 56.04 | 1,500 | 60 | 1987 |
| 25.05.17 | 33 | 6,000 | 0 | 1990 |
| 25.05.17 | 30 | 500 | 40 | 1994 |
| 25.05.17 | 43.45 | 800 | 45 | 1996 |
| 25.05.17 | 34.25 | 13,000 | 10 | 1989 |
| 25.05.17 | 45 | 1,000 | 83 | 2002 |
| 25.05.16 | 196.35 | 500 | 50 | 1990 |
| 25.05.16 | 51.53 | 7,800 | 25 | 1993 |
| 25.05.16 | 31 | 500 | 50 | 1990 |
| 25.05.15 | 34.71 | 24,000 | 0 | 2021 |
| 25.05.15 | 35 | 500 | 40 | 1989 |
| 25.05.15 | 30 | 5,000 | 0 | 1991 |
| 25.05.15 | 46.8 | 10,000 | 25 | 1991 |
| 25.05.14 | 39.66 | 4,000 | 65 | 1995 |
| 25.05.14 | 199.53 | 500 | 37 | 1993 |
| 25.05.13 | 35.5 | 3,000 | 0 | 1993 |
| 25.05.13 | 84 | 30,500 | 0 | 1997 |
| 25.05.13 | 31.51 | 7,000 | 0 | 1994 |
| 25.05.13 | 37.38 | 1,000 | 60 | 1990 |
| 25.05.12 | 181.62 | 500 | 40 | 1993 |
| 25.05.12 | 26.4 | 9,000 | 0 | 1994 |
| 25.05.11 | 188.75 | 6,000 | 55 | 1992 |
| 25.05.10 | 15 | 2,000 | 45 | 1986 |
| 25.05.10 | 43.32 | 13,000 | 35 | 1994 |
| 25.05.10 | 41 | 6,000 | 30 | 1994 |
| 25.05.10 | 35 | 12,500 | 0 | 2021 |
| 25.05.10 | 33 | 500 | 40 | 1974 |
| 25.05.09 | 46.68 | 20,000 | 0 | 1979 |
| 25.05.09 | 122.17 | 10,000 | 0 | 1974 |
| 25.05.08 | 30 | 300 | 30 | 1992 |
| 25.05.08 | 172.49 | 15,000 | 0 | 1991 |
| 25.05.08 | 60 | 15,000 | 15 | 1997 |
| 25.05.08 | 83.8 | 10,000 | 0 | 1978 |
| 25.05.07 | 147.04 | 2,000 | 0 | 1978 |
| 25.05.06 | 40 | 1,000 | 40 | 1995 |
| 25.05.06 | 38.77 | 9,000 | 0 | 1990 |
| 25.05.06 | 106.53 | 10,000 | 75 | 1996 |
| 25.05.06 | 17 | 2,500 | 0 | 1991 |
| 25.05.05 | 27 | 2,000 | 47 | 2016 |
| 25.05.05 | 25 | 500 | 55 | 2020 |
| 25.05.05 | 40 | 10,000 | 40 | 1994 |
| 25.05.05 | 30 | 300 | 35 | 1993 |
| 25.05.05 | 30 | 1,000 | 35 | 1994 |
| 25.05.04 | 64.05 | 50 | 60 | 2017 |
| 25.05.03 | 32.71 | 500 | 40 | 1991 |
| 25.05.03 | 40 | 3,000 | 45 | 1997 |
| 25.05.03 | 34 | 3,000 | 80 | 2015 |
| 25.05.02 | 35 | 14,000 | 50 | 2018 |
| 25.05.01 | 149.97 | 300 | 40 | 1992 |
| 25.05.01 | 149.97 | 300 | 40 | 1992 |
| 25.05.01 | 172.66 | 10,000 | 30 | 1993 |
| 25.04.30 | 20 | 300 | 25 | 1977 |
| 25.04.30 | 14 | 4,000 | 15 | 2019 |
| 25.04.30 | 28 | 500 | 40 | 1985 |
| 25.04.30 | 45 | 2,000 | 55 | 1993 |
| 25.04.30 | 249.75 | 1,000 | 35 | 1996 |
| 25.04.29 | 37.56 | 6,000 | 0 | 1994 |
| 25.04.29 | 18 | 500 | 30 | 2010 |
| 25.04.29 | 33 | 1,000 | 125 | 2014 |
| 25.04.29 | 33 | 3,000 | 43 | 1997 |
| 25.04.29 | 222.46 | 1,000 | 60 | 2012 |
| 25.04.29 | 40.9 | 800 | 40 | 1994 |
| 25.04.29 | 35 | 12,500 | 0 | 2021 |
| 25.04.28 | 41.06 | 10,000 | 0 | 1993 |
| 25.04.28 | 67.29 | 10,800 | 0 | 1993 |
| 25.04.28 | 25.74 | 12,500 | 0 | 1989 |
| 25.04.28 | 20 | 200 | 30 | 1994 |
| 25.04.28 | 33 | 300 | 29 | 1991 |
| 25.04.26 | 51.36 | 11,000 | 35 | 1991 |
| 25.04.26 | 18 | 9,500 | 0 | 2019 |
| 25.04.26 | 72.32 | 15,000 | 20 | 2005 |
| 25.04.25 | 34.46 | 1,000 | 80 | 2015 |
| 25.04.25 | 24.13 | 1,000 | 43 | 1989 |
| 25.04.25 | 63.6 | 1,000 | 80 | 1993 |
| 25.04.24 | 30 | 1,000 | 75 | 2012 |
| 25.04.24 | 235.2 | 300 | 40 | 1991 |
| 25.04.24 | 30 | 1,000 | 75 | 2012 |
| 25.04.24 | 78.03 | 17,000 | 35 | 2002 |
| 25.04.24 | 40 | 1,000 | 55 | 2018 |
| 25.04.23 | 222.77 | 10,000 | 40 | 1994 |
| 25.04.23 | 28 | 300 | 32 | 1990 |
| 25.04.23 | 199.08 | 72,000 | | 1991 |
| 25.04.22 | 40 | 1,000 | 40 | 1995 |
| 25.04.22 | 32 | 17,000 | 0 | 2012 |
| 25.04.21 | 30 | 500 | 50 | |
| 25.04.21 | 30 | 500 | 42 | 1996 |
| 25.04.21 | 33 | 6,000 | 20 | 1993 |
| 25.04.21 | 199.06 | 300 | 25 | 1993 |
| 25.04.19 | 41.14 | 9,000 | 0 | 1979 |
| 25.04.18 | 30 | 500 | 47 | 1994 |
| 25.04.18 | 164.97 | 200 | 25 | 1990 |
| 25.04.18 | 60 | 2,000 | 65 | 1994 |
| 25.04.18 | 31 | 22,000 | 8 | 2021 |
| 25.04.18 | 30 | 1,000 | 45 | 1994 |
| 25.04.18 | 15 | 100 | 55 | 1991 |
| 25.04.17 | 105.74 | 22,000 | 28 | 1989 |
| 25.04.16 | 66.48 | 14,000 | 30 | 1988 |
| 25.04.16 | 51 | 18,000 | 0 | 1991 |
| 25.04.16 | 34.72 | 2,000 | 55 | 2012 |
| 25.04.15 | 197.9 | 1,000 | 50 | 1992 |
| 25.04.14 | 26 | 15,800 | 0 | 2019 |
| 25.04.14 | 26.67 | 8,500 | 15 | 1989 |
| 25.04.14 | 20 | 1,000 | 27 | 2013 |
| 25.04.12 | 484.74 | 200,000 | | 1988 |
| 25.04.12 | 53 | 5,000 | 40 | 1996 |
| 25.04.12 | 42.54 | 347 | 11 | 1993 |
| 25.04.12 | 55 | 12,000 | 60 | 2012 |
| 25.04.12 | 65.1 | 14,000 | 50 | 2008 |
| 25.04.12 | 43.54 | 2,000 | 80 | 2020 |
| 25.04.12 | 216.25 | 500 | 38 | 2019 |
| 25.04.12 | 30 | 1,000 | 40 | 1990 |
| 25.04.12 | 42.54 | 6,945 | 0 | 1993 |
| 25.04.12 | 30 | 1,000 | 60 | 1991 |
| 25.04.12 | 56 | 3,000 | 60 | 1996 |
| 25.04.11 | 43.13 | 13,000 | 60 | 1976 |
| 25.04.11 | 52.14 | 2,000 | 83 | 1991 |
| 25.04.11 | 30 | 500 | 34 | 1984 |
| 25.04.11 | 39.77 | 12,000 | 40 | 2021 |
| 25.04.11 | 43.13 | 6,000 | 60 | |
| 25.04.10 | 22 | 250 | 20 | 1993 |
| 25.04.09 | 205.54 | 13,000 | 0 | 2014 |
| 25.04.09 | 39 | 20,000 | 0 | 2001 |
| 25.04.09 | 36.35 | 500 | 45 | 1993 |
| 25.04.09 | 64.56 | 10,000 | 50 | 1990 |
| 25.04.08 | 32.69 | 8,000 | 0 | 1993 |
| 25.04.07 | 35 | 3,000 | 0 | 1993 |
| 25.04.07 | 33 | 500 | 30 | 1991 |
| 25.04.07 | 35 | 15,000 | 0 | 2012 |
| 25.04.07 | 30 | 500 | 40 | |
| 25.04.07 | 20.1 | 2,000 | 25 | 1991 |
| 25.04.07 | 46.61 | 3,000 | 35 | 1989 |
| 25.04.07 | 24 | 300 | 35 | 1993 |
| 25.04.05 | 29.87 | 2,500 | 30 | 2012 |
| 25.04.05 | 39.6 | 5,000 | 75 | 2016 |
| 25.04.05 | 30.34 | 9,000 | 30 | 1989 |
| 25.04.05 | 191.5 | 10,000 | 0 | 1991 |
| 25.04.05 | 24.36 | 13,500 | 0 | 2021 |
| 25.04.05 | 37 | 1,000 | 55 | 1997 |
| 25.04.05 | 24.36 | 9,000 | 20 | 2021 |
| 25.04.05 | 24.36 | 8,000 | 20 | 2021 |
| 25.04.04 | 30 | 1,000 | 60 | 1984 |
| 25.04.04 | 69.51 | 6,000 | 30 | 1987 |
| 25.04.04 | 199.8 | 7,000 | 0 | 1991 |
| 25.04.04 | 33 | 500 | 45 | 1993 |
| 25.04.03 | 199.83 | 500 | 35 | 1992 |
| 25.04.03 | 204.29 | 500 | 45 | 2013 |
| 25.04.03 | 184.54 | 500 | 40 | |
| 25.04.02 | 29.2 | 20,000 | 0 | 2019 |
| 25.04.01 | 55 | 0 | 45 | 1976 |
| 25.04.01 | 20 | 300 | 20 | 1991 |
| 25.04.01 | 45 | 1,000 | 60 | 1996 |
| 25.04.01 | 48.47 | 500 | 50 | 1993 |
| 25.04.01 | 18 | 500 | 30 | 2010 |
| 25.04.01 | 30 | 300 | 35 | 1992 |
| 25.04.01 | 35 | 2,000 | 5 | 1990 |
| 25.04.01 | 32 | 1,000 | 55 | 1994 |
| 25.02.28 | 36.06 | 4,000 | 0 | 1991 |
| 25.02.26 | 39.6 | 10,395 | 0 | 1991 |
| 25.02.26 | 197.32 | 700 | 40 | 1992 |
| 25.02.26 | 25 | 11,000 | 0 | 2016 |
| 25.02.26 | 41.75 | 16,000 | 0 | 1987 |
| 25.02.25 | 174.84 | 300 | 27 | 1990 |
| 25.02.25 | 39.98 | 15,000 | 0 | 2014 |
| 25.02.24 | 28 | 1,000 | 45 | 1992 |
| 25.02.24 | 37 | 10,000 | 0 | 1995 |
| 25.02.24 | 39.9 | 2,500 | 30 | 2008 |
| 25.02.22 | 199.06 | 7,000 | 70 | 1993 |
| 25.02.22 | 27.97 | 17,000 | 0 | 2019 |
| 25.02.22 | 36 | 3,000 | 50 | 1991 |
| 25.02.22 | 20.17 | 7,000 | 0 | 1971 |
| 25.02.21 | 90 | 17,000 | 58 | 2003 |
| 25.02.21 | 177.12 | 300 | 40 | 1991 |
| 25.02.21 | 90 | 17,000 | 58 | 2003 |
| 25.02.20 | 59.55 | 3,000 | 60 | 2002 |
| 25.02.20 | 40 | 1,000 | 53 | 1994 |
| 25.02.20 | 18.47 | 10,000 | 43 | 2018 |
| 25.02.18 | 18 | 1,000 | 40 | 2018 |
| 25.02.18 | 232.65 | 500 | 45 | |
| 25.02.18 | 167.09 | 3,000 | 60 | 1994 |
| 25.02.18 | 30 | 1,000 | 40 | 2006 |
| 25.02.16 | 39.76 | 12,000 | 40 | 2021 |
| 25.02.16 | 73.96 | 1,000 | 57 | 1993 |
| 25.02.16 | 199.83 | 1,000 | 50 | 1991 |
| 25.02.15 | 25 | 3,000 | 50 | 2016 |
| 25.02.15 | 87 | 3,000 | 90 | 1977 |
| 25.02.15 | 70.38 | 30,000 | 15 | 2004 |
| 25.02.15 | 60.45 | 12,000 | 20 | 1996 |
| 25.02.14 | 86.31 | 18,800 | 0 | 2012 |
| 25.02.14 | 26.4 | 13,000 | 0 | 2021 |
| 25.02.14 | 33 | 1,000 | 90 | |
| 25.02.14 | 42.69 | 3,000 | 70 | 1990 |
| 25.02.14 | 35 | 500 | 35 | 1992 |
| 25.02.14 | 33 | 1,000 | 90 | 2018 |
| 25.02.13 | 46.64 | 17,000 | 0 | 2013 |
| 25.02.13 | 39 | 1,000 | 65 | 1991 |
| 25.02.13 | 42.66 | 5,000 | 50 | 2016 |
| 25.02.13 | 33.37 | 8,000 | 30 | 1992 |
| 25.02.13 | 40 | 2,000 | 70 | 1995 |
| 25.02.13 | 19.8 | 7,000 | 0 | 2011 |
| 25.02.13 | 19 | 7,000 | 0 | 2011 |
| 25.02.13 | 33.37 | 8,000 | 30 | 1992 |
| 25.02.12 | 25 | 1,500 | 30 | 1982 |
| 25.02.12 | 28.3 | 300 | 30 | 1994 |
| 25.02.12 | 237.42 | 16,000 | 0 | 2011 |
| 25.02.11 | 25 | 300 | 35 | 1992 |
| 25.02.11 | 27 | 300 | 38 | 1990 |
| 25.02.11 | 76.6 | 23,000 | 0 | 1974 |
| 25.02.10 | 30 | 300 | 35 | 1990 |
| 25.02.10 | 28.1 | 1,000 | 55 | 1995 |
| 25.02.09 | 26 | 4,000 | 54 | 2018 |
| 25.02.08 | 20 | 500 | 30 | 1993 |
| 25.02.08 | 40 | 18,000 | 0 | 2018 |
| 25.02.07 | 45.87 | 9,500 | 0 | 1993 |
| 25.02.07 | 30 | 600 | 40 | 1992 |
| 25.02.06 | 208.92 | 3,000 | 80 | 1990 |
| 25.02.06 | 37.62 | 3,400 | 64 | 2016 |
| 25.02.06 | 57.75 | 8,000 | 60 | 2003 |
| 25.02.06 | 16 | 500 | 43 | 2018 |
| 25.02.05 | 32 | 500 | 45 | 1991 |
| 25.02.05 | 40 | 6,000 | 60 | 2016 |
| 25.02.05 | 30 | 500 | 50 | 1990 |
| 25.02.05 | 42.97 | 500 | 45 | 1990 |
| 25.02.05 | 59.38 | 200 | 32 | 1986 |
| 25.02.03 | 25 | 1,000 | 70 | 2018 |
| 25.02.03 | 26.92 | 14,000 | 0 | 2018 |
| 25.02.03 | 13 | 1,000 | 45 | 2025 |
| 25.02.01 | 20 | 2,000 | 55 | 2014 |
| 25.02.01 | 55 | 2,000 | 55 | 1994 |
| 25.02.01 | 19.8 | 1,000 | 50 | 2017 |
| 25.02.01 | 18 | 500 | 55 | 2017 |
| 25.02.01 | 26.44 | 1,000 | 40 | 1991 |
| 25.01.27 | 27 | 1,500 | 45 | 1991 |
| 25.01.25 | 55 | 18,370 | 0 | 2012 |
| 25.01.24 | 20 | 5,000 | 30 | 2016 |
| 25.01.24 | 29.75 | 500 | 30 | 1991 |
| 25.01.24 | 13.22 | 1,000 | 25 | 2017 |
| 25.01.23 | 30 | 500 | 40 | 1990 |
| 25.01.23 | 48.93 | 2,000 | 55 | 1968 |
| 25.01.23 | 19.3 | 8,000 | 10 | 1976 |
| 25.01.22 | 119.7 | 500 | 45 | 1994 |
| 25.01.21 | 34.25 | 5,000 | 60 | 2017 |
| 25.01.21 | 30 | 1,000 | 50 | 1991 |
| 25.01.21 | 249.58 | 300 | 35 | 1996 |
| 25.01.20 | 41.45 | 1,000 | 40 | 1991 |
| 25.01.20 | 56.3 | 18,750 | 0 | 1984 |
| 25.01.19 | 36 | 200 | 20 | 1973 |
| 25.01.18 | 40 | 2,500 | 40 | 1996 |
| 25.01.18 | 33.74 | 3,000 | 60 | 2021 |
| 25.01.18 | 28.9 | 9,000 | 35 | 2021 |
| 25.01.17 | 20 | 500 | 40 | 1989 |
| 25.01.16 | 169.55 | 500 | 40 | 1978 |
| 25.01.15 | 42 | 500 | 50 | 1994 |
| 25.01.15 | 45 | 4,000 | 50 | 1996 |
| 25.01.14 | 32 | 6,000 | 0 | 1989 |
| 25.01.14 | 50 | 22,600 | 0 | 2017 |
| 25.01.14 | 32 | 1,000 | 45 | 1991 |
| 25.01.13 | 33 | 1,000 | 65 | 1974 |
| 25.01.13 | 40.5 | 2,000 | 40 | 2012 |
| 25.01.13 | 26 | 14,000 | 0 | 2020 |
| 25.01.13 | 27 | 1,000 | 45 | 1991 |
| 25.01.11 | 39.33 | 1,000 | 40 | 1991 |
| 25.01.11 | 35 | 14,280 | 0 | 2016 |
| 25.01.11 | 42 | 11,000 | 6 | 1996 |
| 25.01.10 | 16 | 500 | 40 | 2019 |
| 25.01.09 | 57.6 | 12,000 | 23 | 1993 |
| 25.01.09 | 150.29 | 500 | 45 | 1991 |
| 25.01.09 | 40 | 3,000 | 65 | 1996 |
| 25.01.09 | 25 | 3,000 | 55 | 2020 |
| 25.01.09 | 27.98 | 1,000 | 70 | 2019 |
| 25.01.08 | 21 | 500 | 35 | 1992 |
| 25.01.07 | 142.76 | 500 | 45 | 1974 |
| 25.01.06 | 36 | 17,000 | 0 | 2018 |
| 25.01.06 | 30 | 1,000 | 45 | 1991 |
| 25.01.06 | 28.09 | 5,000 | 40 | 2012 |
| 25.01.06 | 18.42 | 300 | 30 | 2018 |
| 25.01.04 | 28.19 | 5,000 | 56 | |
| 25.01.04 | 38.2 | 13,000 | 0 | 1988 |
| 25.01.04 | 25.74 | 8,000 | 0 | 1989 |
| 25.01.04 | 25.74 | 8,000 | 0 | 1989 |
| 25.01.04 | 41.34 | 1,000 | 25 | 1994 |
| 25.01.04 | 35 | 200 | 30 | 1992 |
| 25.01.04 | 149.46 | 500 | 42 | 1993 |
| 25.01.04 | 199.8 | 200 | 150 | 1991 |
| 25.01.03 | 248.41 | 16,000 | 0 | 2019 |
| 25.01.03 | 35 | 500 | 40 | 1991 |
| 25.01.03 | 58.17 | 2,000 | 65 | 1994 |
| 25.01.02 | 23 | 5,000 | 0 | 1991 |
| 25.01.02 | 42.88 | 10,000 | 20 | 2002 |
| 25.01.01 | 35.4 | 1,000 | 35 | 1983 |
| 25.01.01 | 167.9 | 1,000 | 30 | 1995 |
| 24.12.31 | 26.99 | 1,000 | 35 | 2018 |
| 24.12.31 | 47 | 500 | 30 | 1991 |
| 24.12.31 | 29 | 500 | 40 | 1992 |
| 24.12.31 | 25 | 500 | 30 | 1990 |
| 24.12.31 | 23 | 5,000 | 60 | 2021 |
| 24.12.30 | 56.17 | 6,000 | 60 | 1992 |
| 24.12.30 | 20 | 1,000 | 42 | 2017 |
| 24.12.28 | 31.35 | 13,000 | 20 | 1986 |
| 24.12.28 | 16.52 | 500 | 45 | 2017 |
| 24.12.28 | 35 | 5,000 | 65 | 2018 |
| 24.12.27 | 40.54 | 12,000 | 50 | 2018 |
| 24.12.27 | 33 | 500 | 65 | 1993 |
| 24.12.26 | 30 | 9,300 | 0 | 1993 |
| 24.12.26 | 42 | 20,000 | 0 | 2019 |
| 24.12.26 | 25 | 1,000 | 70 | 2018 |
| 24.12.25 | 35 | 500 | 50 | 1989 |
| 24.12.24 | 35 | 1,000 | 50 | 1993 |
| 24.12.24 | 177.12 | 8,000 | 60 | 1991 |
| 24.12.23 | 18.47 | 1,000 | 45 | 2018 |
| 24.12.23 | 16.5 | 1,000 | 35 | 2021 |
| 24.12.23 | 18 | 50 | 48 | 2009 |
| 24.12.23 | 20 | 1,000 | 53 | 2017 |
| 24.12.21 | 194.76 | 200 | 25 | |
| 24.12.20 | 38 | 1,000 | 40 | 1977 |
| 24.12.20 | 29.8 | 5,000 | 75 | 2014 |
| 24.12.19 | 31.68 | 5,000 | 0 | 1990 |
| 24.12.19 | 59 | 3,000 | 80 | 1995 |
| 24.12.18 | 29.89 | 13,000 | 38 | |
| 24.12.18 | 66.71 | 10,000 | 60 | 1977 |
| 24.12.17 | 40.07 | 13,000 | 35 | 2014 |
| 24.12.17 | 40.74 | 10,000 | 0 | 1980 |
| 24.12.17 | 30 | 500 | 47 | 1994 |
| 24.12.16 | 37.11 | 27,800 | 0 | |
| 24.12.16 | 34.25 | 5,000 | 60 | 2017 |
| 24.12.16 | 30 | 12,000 | 40 | 2017 |
| 24.12.14 | 218.73 | 3,000 | 100 | 1991 |
| 24.12.12 | 199.8 | 500 | 30 | 1993 |
| 24.12.11 | 25 | 4,000 | 45 | 2014 |
| 24.12.10 | 21 | 300 | 30 | 1995 |
| 24.12.10 | 25.78 | 6,500 | 25 | 1988 |
| 24.12.10 | 177.45 | 500 | 30 | 1991 |
| 24.12.09 | 23 | 3,000 | 62 | 2018 |
| 24.12.09 | 65.88 | 13,000 | 55 | 1989 |
| 24.12.09 | 41.47 | 17,500 | 0 | 2014 |
| 24.12.09 | 162.32 | 500 | 35 | 1990 |
| 24.12.07 | 28.54 | 13,000 | 15 | 1977 |
| 24.12.07 | 36.1 | 1,000 | 50 | 1991 |
| 24.12.06 | 33.21 | 13,000 | 25 | 1989 |
| 24.12.06 | 47 | 200 | 45 | 1995 |
| 24.12.06 | 30 | 1,000 | 40 | 1990 |
| 24.12.05 | 49.58 | 2,000 | 60 | 2008 |
| 24.12.04 | 37.36 | 300 | 35 | 1991 |
| 24.12.04 | 33.01 | 8,000 | 0 | 1992 |
| 24.12.04 | 33.1 | 8,000 | 0 | 1992 |
| 24.12.04 | 27.46 | 10,000 | 0 | 2015 |
| 24.12.03 | 221.34 | 9,000 | 0 | 2018 |
| 24.12.02 | 43.9 | 1,500 | 60 | 1990 |
| 24.12.02 | 173.28 | 300 | 30 | 1989 |
| 24.12.02 | 89.37 | 14,500 | 70 | 2006 |
| 24.12.02 | 55.41 | 22,000 | 0 | 2004 |
| 24.12.01 | 69.72 | 5,000 | 50 | 1990 |
| 24.11.30 | 34.43 | 13,000 | 15 | 1971 |
| 24.11.30 | 34 | 15,000 | 0 | 2013 |
| 24.11.30 | 75.33 | 10,000 | 0 | 1991 |
| 24.11.30 | 31.66 | 13,000 | 0 | 1993 |
| 24.11.30 | 33.3 | 12,000 | 0 | 1992 |
| 24.11.30 | 34 | 15,000 | 0 | 2013 |
| 24.11.30 | 31.66 | 13,000 | 0 | 1975 |
| 24.11.29 | 139 | 400 | 26 | 1997 |
| 24.11.29 | 42.5 | 13,000 | 20 | 1978 |
| 24.11.28 | 40 | 1,000 | 85 | 2014 |
| 24.11.27 | 149.31 | 2,000 | 60 | 1994 |
| 24.11.26 | 40.88 | 13,000 | 8 | 1994 |
| 24.11.26 | 199.96 | 3,000 | 30 | 1992 |
| 24.11.23 | 34.75 | 13,000 | 20 | 2012 |
| 24.11.22 | 40 | 500 | 40 | 1995 |
| 24.11.22 | 40 | 1,000 | 30 | 1992 |
| 24.11.22 | 18.39 | 1,000 | 55 | 2017 |
| 24.11.22 | 42.5 | 1,000 | 30 | 1978 |
| 24.11.22 | 126.38 | 700 | 45 | 1974 |
| 24.11.21 | 29.22 | 8,000 | 75 | 2019 |
| 24.11.20 | 30 | 50 | 30 | 1989 |
| 24.11.20 | 27.2 | 15,000 | 5 | 2019 |
| 24.11.20 | 75.9 | 5,500 | 5 | 1993 |
| 24.11.20 | 16.5 | 2,000 | 0 | 1993 |
| 24.11.20 | 183.74 | 1,000 | 80 | 1978 |
| 24.11.20 | 59.8 | 2,000 | 70 | 1995 |
| 24.11.19 | 240.81 | 1,000 | 85 | 2014 |
| 24.11.19 | 191.82 | 4,000 | 0 | 1991 |
| 24.11.18 | 26.99 | 14,700 | 0 | 2018 |
| 24.11.18 | 57.22 | 15,500 | 20 | 1993 |
| 24.11.18 | 45 | 7,500 | 30 | 2003 |
| 24.11.18 | 69 | 3,000 | 91 | 1994 |
| 24.11.18 | 45 | 11,000 | 0 | 2003 |
| 24.11.18 | 15 | 100 | 20 | 1991 |
| 24.11.16 | 197.28 | 500 | 50 | 1993 |
| 24.11.16 | 74.34 | 13,000 | 50 | 1990 |
| 24.11.15 | 40 | 3,000 | 55 | 2001 |
| 24.11.15 | 35.5 | 0 | 35 | 1993 |
| 24.11.15 | 33.05 | 1,000 | 50 | 1987 |
| 24.11.15 | 53.08 | 14,800 | 0 | 1993 |
| 24.11.15 | 30 | 500 | 45 | 1997 |
| 24.11.14 | 56 | 1,000 | 40 | 1976 |
| 24.11.13 | 29.36 | 16,500 | 0 | 2018 |
| 24.11.13 | 40 | 3,000 | 70 | 2018 |
| 24.11.12 | 65.55 | 500 | 55 | 1988 |
| 24.11.12 | 204.58 | 500 | 40 | 1990 |
| 24.11.11 | 38 | 12,000 | 0 | 2003 |
| 24.11.11 | 55 | 4,000 | 85 | 1997 |
| 24.11.11 | 33 | 1,000 | 40 | 1991 |
| 24.11.11 | 45.69 | 2,000 | 57 | 1997 |
| 24.11.11 | 56.1 | 3,000 | 80 | 1975 |
| 24.11.11 | 27.7 | 5,000 | 65 | 2023 |
| 24.11.11 | 36.68 | 10,000 | 40 | 2017 |
| 24.11.08 | 50 | 1,000 | 50 | 1994 |
| 24.11.07 | 16 | 300 | 20 | 1982 |
| 24.11.07 | 37 | 7,000 | 25 | 1992 |
| 24.11.07 | 38.76 | 300 | 34 | 1990 |
| 24.11.06 | 75.77 | 25,000 | 0 | 2018 |
| 24.11.06 | 38 | 1,000 | 37 | 1992 |
| 24.11.05 | 33 | 500 | 35 | 1990 |
| 24.11.05 | 17 | 1,000 | 43 | |
| 24.11.05 | 43.99 | 8,000 | 0 | 1968 |
| 24.11.05 | 167.3 | 4,000 | 70 | 1997 |
| 24.11.04 | 39.3 | 13,000 | 15 | 1993 |
| 24.11.04 | 43 | 1,500 | 60 | 1996 |
| 24.11.04 | 29.6 | 12,500 | 0 | 2019 |
| 24.11.03 | 35 | 1,000 | 55 | 1992 |
| 24.11.02 | 19.8 | 1,000 | 46 | 2016 |
| 24.11.02 | 32 | 3,000 | 30 | 1993 |
| 24.11.02 | 33 | 1,000 | 60 | 1985 |
| 24.11.01 | 178.95 | 500 | 40 | 2018 |
| 24.11.01 | 25.29 | 5,000 | 45 | 2017 |
| 24.10.31 | 107.88 | 25,000 | 0 | 1994 |
| 24.10.31 | 14 | 500 | 30 | 2010 |
| 24.10.31 | 30 | 5,500 | 0 | 1991 |
| 24.10.31 | 40 | 4,000 | 30 | 2002 |
| 24.10.30 | 19.19 | 500 | 50 | 2017 |
| 24.10.30 | 10 | 500 | 20 | 2018 |
| 24.10.30 | 33 | 16,000 | 0 | 2016 |
| 24.10.30 | 48.73 | 15,500 | 0 | 1993 |
| 24.10.30 | 70 | 15,000 | 0 | 1996 |
| 24.10.29 | 45.9 | 1,000 | 40 | 1990 |
| 24.10.29 | 31.51 | 7,000 | 0 | 1994 |
| 24.10.29 | 39 | 700 | 45 | 1991 |
| 24.10.26 | 36.81 | 6,000 | 30 | 2012 |
| 24.10.26 | 20 | 500 | 28 | 1991 |
| 24.10.25 | 19.41 | 500 | 50 | 2016 |
| 24.10.24 | 433.96 | 160,000 | | 1996 |
| 24.10.24 | 40 | 3,000 | 40 | 1997 |
| 24.10.23 | 30 | 13,000 | 0 | 2015 |
| 24.10.22 | 67.38 | 17,000 | 0 | 2006 |
| 24.10.22 | 25 | 1,000 | 40 | 2018 |
| 24.10.22 | 14 | 500 | 30 | 2010 |
| 24.10.21 | 28 | 1,000 | 35 | 1991 |
| 24.10.21 | 230.31 | 96,700 | | 1989 |
| 24.10.21 | 29.25 | 1,000 | 40 | 2012 |
| 24.10.21 | 23 | 1,000 | 35 | 1998 |
| 24.10.21 | 32 | 15,000 | 0 | 1995 |
| 24.10.21 | 236.03 | 124,500 | | 1991 |
| 24.10.19 | 25 | 2,000 | 50 | 2013 |
| 24.10.19 | 45.96 | 1,000 | 30 | 1997 |
| 24.10.19 | 83.07 | 20,000 | 0 | 1991 |
| 24.10.19 | 30 | 1,000 | 50 | 1991 |
| 24.10.19 | 51.25 | 5,000 | 105 | 2018 |
| 24.10.19 | 27 | 16,000 | 0 | 2019 |
| 24.10.17 | 201.61 | 89,500 | | 1995 |
| 24.10.17 | 34.35 | 14,000 | 0 | 2018 |
| 24.10.17 | 34.35 | 14,000 | 0 | 2018 |
| 24.10.17 | 30 | 500 | 45 | 1996 |
| 24.10.17 | 72.89 | 13,000 | 10 | 1996 |
| 24.10.17 | 25 | 500 | 40 | 1988 |
| 24.10.16 | 69.5 | 13,000 | 20 | 2012 |
| 24.10.16 | 30.5 | 500 | 40 | 1987 |
| 24.10.15 | 170.61 | 75,000 | | 1992 |
| 24.10.14 | 30 | 400 | 40 | 1992 |
| 24.10.14 | 30 | 400 | 40 | 1992 |
| 24.10.14 | 48.47 | 13,000 | 0 | 1974 |
| 24.10.14 | 31 | 1,000 | 50 | 1993 |
| 24.10.12 | 67.59 | 10,000 | 60 | 2012 |
| 24.10.12 | 44.32 | 13,000 | 0 | 1993 |
| 24.10.12 | 23.36 | 3,000 | 75 | 2020 |
| 24.10.11 | 38.4 | 8,500 | 30 | 1974 |
| 24.10.11 | 36.94 | 9,000 | 5 | 1990 |
| 24.10.11 | 20 | 300 | 25 | 1989 |
| 24.10.11 | 199.62 | 5,500 | 0 | 1993 |
| 24.10.10 | 33 | 500 | 30 | 1988 |
| 24.10.09 | 17.98 | 1,000 | 54 | 1992 |
| 24.10.09 | 19.38 | 7,000 | 0 | 1990 |
| 24.10.09 | 37 | 12,500 | 0 | 2013 |
| 24.10.08 | 36.8 | 1,000 | 50 | 1993 |
| 24.10.07 | 48.22 | 5,000 | 80 | 2003 |
| 24.10.07 | 15 | 300 | 30 | 1991 |
| 24.10.07 | 25 | 500 | 45 | 2020 |
| 24.10.07 | 41.04 | 13,000 | 0 | 1988 |
| 24.10.05 | 39.88 | 20,500 | 0 | 2024 |
| 24.10.05 | 41.5 | 1,000 | 24 | 1993 |
| 24.10.05 | 45 | 1,000 | 80 | 1993 |
| 24.10.05 | 45 | 1,000 | 75 | |
| 24.10.05 | 41.04 | 2,000 | 50 | 1988 |
| 24.10.05 | 26 | 5,000 | 70 | 2017 |
| 24.10.05 | 30.18 | 11,000 | 70 | 2022 |
| 24.10.05 | 50.57 | 10,000 | 27 | 1998 |
| 24.10.05 | 26 | 5,000 | 70 | 2017 |
| 24.10.05 | 41.04 | 1,000 | 40 | 1988 |
| 24.10.05 | 204.58 | 200 | 50 | 1990 |
| 24.10.04 | 16.5 | 500 | 40 | 2018 |
| 24.10.04 | 47.01 | 12,000 | 30 | 2003 |
| 24.10.04 | 63.56 | 9,500 | 0 | |
| 24.10.04 | 26 | 14,000 | 0 | 2020 |
| 24.10.04 | 45 | 1,000 | 75 | 2003 |
| 24.10.02 | 44.16 | 4,000 | 57 | 2014 |
| 24.10.02 | 32.51 | 8,000 | 0 | 1993 |
| 24.10.01 | 57.59 | 5,000 | 60 | 1991 |
| 24.10.01 | 24 | 1,000 | 35 | 1979 |
| 24.09.30 | 33 | 17,000 | 0 | 2019 |
| 24.09.30 | 55 | 14,000 | 20 | 2004 |
| 24.09.30 | 15 | 3,000 | 0 | 1980 |
| 24.09.28 | 37.93 | 12,000 | 0 | 1979 |
| 24.09.28 | 15.77 | 1,000 | 52 | 1976 |
| 24.09.28 | 17.01 | 6,000 | 0 | 1992 |
| 24.09.28 | 32 | 3,000 | 60 | 1995 |
| 24.09.28 | 28.46 | 22,000 | 0 | 2019 |
| 24.09.28 | 36.81 | 18,800 | 0 | |
| 24.09.27 | 28.68 | 8,000 | 0 | 1997 |
| 24.09.27 | 37 | 1,000 | 60 | 1988 |
| 24.09.27 | 58.02 | 18,650 | 10 | |
| 24.09.27 | 136.44 | 100 | 30 | 1989 |
| 24.09.26 | 24 | 5,000 | 45 | 2021 |
| 24.09.26 | 24 | 5,000 | 45 | 2021 |
| 24.09.26 | 66.71 | 12,000 | 50 | 1977 |
| 24.09.26 | 35 | 300 | 30 | 1993 |
| 24.09.25 | 33.29 | 5,000 | 60 | 2018 |
| 24.09.25 | 42 | 20,000 | 0 | 2004 |
| 24.09.24 | 45 | 14,000 | 0 | 1996 |
| 24.09.24 | 199.95 | 100 | 35 | 1993 |
| 24.09.24 | 28.68 | 8,000 | 0 | 1997 |
| 24.09.23 | 12 | 500 | 40 | |
| 24.09.23 | 51.48 | 10,000 | 55 | 1989 |
| 24.09.23 | 35 | 300 | 37 | 1991 |
| 24.09.23 | 33 | 500 | 40 | 1991 |
| 24.09.23 | 40 | 1,000 | 50 | 1994 |
| 24.09.21 | 14 | 500 | 33 | 2019 |
| 24.09.21 | 51.65 | 2,000 | 60 | 1998 |
| 24.09.21 | 35.46 | 18,000 | 0 | 2019 |
| 24.09.21 | 16.5 | 1,000 | 50 | 2017 |
| 24.09.20 | 38 | 10,000 | 0 | 1989 |
| 24.09.19 | 31.04 | 12,000 | 0 | 1991 |
| 24.09.19 | 19.8 | 4,500 | 0 | 2018 |
| 24.09.19 | 32.18 | 13,000 | 0 | 1991 |
| 24.09.19 | 50.43 | 2,000 | 60 | 1990 |
| 24.09.19 | 147.64 | 69,000 | | 1990 |
| 24.09.14 | 18 | 6,000 | 15 | |
| 24.09.14 | 32.54 | 11,000 | 0 | 1993 |
| 24.09.14 | 178.95 | 95,000 | | 2018 |
| 24.09.14 | 161.7 | 1,000 | 60 | 1993 |
| 24.09.13 | 214.06 | 500 | 27 | 1990 |
| 24.09.13 | 55.56 | 15,000 | 15 | 1989 |
| 24.09.12 | 187.23 | 300 | 30 | |
| 24.09.12 | 19.32 | 9,000 | 10 | |
| 24.09.12 | 25 | 500 | 40 | 1993 |
| 24.09.11 | 32.28 | 2,000 | 130 | 2014 |
| 24.09.11 | 25.69 | 8,800 | 0 | 1993 |
| 24.09.10 | 19.8 | 500 | 40 | 2011 |
| 24.09.10 | 36 | 3,500 | 0 | 1989 |
| 24.09.10 | 37 | 2,500 | 35 | 2008 |
| 24.09.09 | 16.56 | 300 | 35 | 1974 |
| 24.09.09 | 45.33 | 10,000 | 20 | 2001 |
| 24.09.09 | 33 | 1,000 | 43 | 1992 |
| 24.09.09 | 36.49 | 23,000 | 0 | 2024 |
| 24.09.08 | 96.5 | 200 | 23 | 1996 |
| 24.09.07 | 41 | 300 | 33 | 1994 |
| 24.09.06 | 59.13 | 17,500 | 0 | 1990 |
| 24.09.06 | 24 | 500 | 45 | 2021 |
| 24.09.06 | 18 | 9,000 | 0 | 2020 |
| 24.09.06 | 15 | 500 | 55 | 2017 |
| 24.09.06 | 39.8 | 10,000 | 15 | 1989 |
| 24.09.05 | 20 | 500 | 50 | 2017 |
| 24.09.05 | 39 | 2,000 | 75 | 1995 |
| 24.09.04 | 45 | 0 | 50 | 1993 |
| 24.09.04 | 24 | 2,000 | 35 | 2000 |
| 24.09.04 | 40.49 | 3,000 | 65 | 1997 |
| 24.09.03 | 30.88 | 12,000 | 0 | 1989 |
| 24.09.03 | 23 | 500 | 30 | 1990 |
| 24.09.03 | 34.72 | 3,000 | 50 | 2012 |
| 24.09.02 | 39.05 | 13,000 | 0 | 1996 |
| 24.09.02 | 25 | 8,000 | 0 | |
| 24.09.02 | 37.38 | 2,000 | 55 | 1990 |
| 24.09.02 | 198.05 | 500 | 30 | 1993 |
| 24.09.01 | 35 | 23,000 | 5 | 2018 |
| 24.08.31 | 31.5 | 1,000 | 45 | 1990 |
| 24.08.31 | 25 | 300 | 35 | 1994 |
| 24.08.30 | 30.04 | 12,000 | 0 | 1991 |
| 24.08.30 | 30.12 | 16,000 | 0 | |
| 24.08.29 | 54.74 | 1,000 | 50 | 1995 |
| 24.08.29 | 19.83 | 8,500 | 0 | 2017 |
| 24.08.29 | 35 | 2,500 | 25 | 1994 |
| 24.08.29 | 46 | 3,000 | 35 | 1976 |
| 24.08.28 | 32.23 | 3,000 | 60 | 1969 |
| 24.08.28 | 30 | 500 | 45 | 1994 |
| 24.08.28 | 33 | 8,500 | 0 | |
| 24.08.27 | 194.45 | 3,000 | 29 | 1994 |
| 24.08.27 | 32 | 3,000 | 0 | 1989 |
| 24.08.27 | 25 | 1,000 | 50 | 2015 |
| 24.08.27 | 33 | 300 | 35 | 1991 |
| 24.08.27 | 26.25 | 8,000 | 0 | 1986 |
| 24.08.26 | 46.7 | 1,000 | 50 | 1983 |
| 24.08.26 | 53 | 20,000 | 0 | 2015 |
| 24.08.24 | 39.81 | 3,000 | 20 | 1989 |
| 24.08.24 | 99.4 | 5,000 | 95 | 1994 |
| 24.08.23 | 14.78 | 500 | 48 | 2019 |
| 24.08.23 | 27.4 | 17,500 | 0 | 2021 |
| 24.08.23 | 144 | 20,000 | 0 | |
| 24.08.23 | 25.6 | 500 | 40 | 1990 |
| 24.08.22 | 33.69 | 18,000 | 0 | 2016 |
| 24.08.22 | 43.41 | 2,500 | 50 | 1989 |
| 24.08.22 | 30 | 1,000 | 35 | 1992 |
| 24.08.21 | 11.6 | 500 | 42 | 2009 |
| 24.08.19 | 18.15 | 500 | 45 | 2018 |
| 24.08.19 | 35 | 500 | 35 | 1998 |
| 24.08.17 | 45 | 3,000 | 70 | 1976 |
| 24.08.17 | 165.46 | 500 | 35 | 1991 |
| 24.08.17 | 27.4 | 17,500 | 0 | 2021 |
| 24.08.17 | 144 | 20,000 | 0 | 2015 |
| 24.08.17 | 45.45 | 5,000 | 55 | 1993 |
| 24.08.16 | 48.86 | 2,500 | 30 | 1996 |
| 24.08.16 | 29.83 | 18,000 | 0 | 2021 |
| 24.08.16 | 29.7 | 1,000 | 60 | 2018 |
| 24.08.14 | 45.56 | 9,000 | 20 | 1991 |
| 24.08.14 | 23 | 500 | 40 | 1974 |
| 24.08.13 | 26.3 | 11,000 | 0 | 1993 |
| 24.08.13 | 31.68 | 10,000 | 0 | 1994 |
| 24.08.13 | 25 | 14,000 | 0 | 2019 |
| 24.08.13 | 56.18 | 9,000 | 30 | 1986 |
| 24.08.12 | 39.06 | 6,500 | 20 | 1992 |
| 24.08.12 | 199.96 | 3,000 | 0 | |
| 24.08.12 | 35 | 3,000 | 0 | 1992 |
| 24.08.12 | 20 | 200 | 35 | 1989 |
| 24.08.12 | 20 | 300 | 40 | 2017 |
| 24.08.12 | 30 | 2,000 | 58 | 2014 |
| 24.08.12 | 32 | 200 | 25 | 1990 |
| 24.08.11 | 37.11 | 27,200 | 0 | |
| 24.08.09 | 40.34 | 12,000 | 15 | 1971 |
| 24.08.09 | 26.25 | 8,000 | 0 | 1977 |
| 24.08.09 | 20 | 500 | 40 | 1996 |
| 24.08.09 | 33.4 | 20,000 | 0 | 2016 |
| 24.08.09 | 125.89 | 500 | 30 | 1978 |
| 24.08.08 | 36.74 | 500 | 35 | 1990 |
| 24.08.07 | 36 | 1,000 | 40 | 1991 |
| 24.08.06 | 50.4 | 15,000 | 0 | 1994 |
| 24.08.06 | 48.63 | 10,000 | 0 | 1989 |
| 24.08.06 | 50.4 | 15,000 | 20 | 1994 |
| 24.08.06 | 35 | 18,000 | 0 | 2018 |
| 24.08.03 | 32.68 | 3,000 | 10 | 1991 |
| 24.08.03 | 51.98 | 13,000 | 0 | 2006 |
| 24.08.02 | 56.69 | 5,000 | 65 | 1991 |
| 24.08.02 | 30 | 5,000 | 70 | |
| 24.08.02 | 37.36 | 300 | 35 | 1991 |
| 24.08.02 | 38.17 | 5,500 | 0 | 1990 |
| 24.08.02 | 27 | 4,000 | 35 | 1989 |
| 24.08.01 | 25 | 1,000 | 52 | 1973 |
| 24.08.01 | 58.64 | 20,000 | 0 | 1990 |
| 24.08.01 | 37.16 | 10,000 | 20 | 1991 |
| 24.08.01 | 30 | 11,000 | 30 | 2016 |
| 24.07.31 | 32 | 800 | 30 | 1991 |
| 24.07.31 | 149.43 | 1,000 | 43 | 1993 |
| 24.07.30 | 83.14 | 18,000 | 0 | 2003 |
| 24.07.30 | 55.41 | 2,500 | 70 | 1970 |
| 24.07.30 | 89.37 | 16,000 | 95 | 2006 |
| 24.07.29 | 65.25 | 14,000 | 20 | 1989 |
| 24.07.27 | 29.34 | 22,000 | 0 | |
| 24.07.27 | 23 | 500 | 40 | 1992 |
| 24.07.27 | 176.58 | 1,000 | 30 | 1989 |
| 24.07.27 | 24 | 15,000 | 0 | 2021 |
| 24.07.26 | 40 | 500 | 45 | 1997 |
| 24.07.26 | 29.2 | 500 | 35 | 1990 |
| 24.07.26 | 27.22 | 13,000 | 0 | 2020 |
| 24.07.26 | 55.39 | 5,000 | 63 | 2023 |
| 24.07.26 | 26.05 | 12,780 | 0 | 2018 |
| 24.07.25 | 35.26 | 12,000 | 30 | 2017 |
| 24.07.25 | 16.5 | 300 | 30 | 1990 |
| 24.07.23 | 38.57 | 18,000 | 0 | 2017 |
| 24.07.23 | 38.57 | 18,000 | 0 | 2017 |
| 24.07.23 | 47.61 | 1,000 | 60 | 1995 |
| 24.07.23 | 16.53 | 500 | 45 | 2009 |
| 24.07.23 | 38.57 | 18,000 | 0 | 2017 |
| 24.07.22 | 30 | 1,000 | 50 | 1990 |
| 24.07.21 | 29.7 | 15,000 | 0 | 2018 |
| 24.07.21 | 29.7 | 15,000 | 0 | 2018 |
| 24.07.20 | 195.51 | 18,000 | 0 | 1990 |
| 24.07.20 | 41 | 15,500 | 0 | 2015 |
| 24.07.20 | 61.6 | 18,000 | 0 | 1990 |
| 24.07.19 | 29.7 | 15,000 | 0 | 2018 |
| 24.07.19 | 21 | 2,000 | 40 | 2019 |
| 24.07.18 | 41 | 1,000 | 50 | 1990 |
| 24.07.18 | 23 | 2,000 | 0 | 1993 |
| 24.07.18 | 41.06 | 11,000 | 15 | 1990 |
| 24.07.17 | 27.66 | 10,500 | 0 | 1985 |
| 24.07.16 | 40 | 2,000 | 30 | 1990 |
| 24.07.16 | 178.03 | 300 | 30 | 1991 |
| 24.07.16 | 35 | 15,000 | 5 | 2015 |
| 24.07.15 | 30 | 1,000 | 45 | 1991 |
| 24.07.13 | 35 | 1,000 | 45 | 1998 |
| 24.07.13 | 20 | 500 | 30 | 1991 |
| 24.07.13 | 13.22 | 1,000 | 45 | 2019 |
| 24.07.12 | 29.7 | 6,000 | 0 | 1985 |
| 24.07.12 | 34.07 | 11,000 | 0 | 2006 |
| 24.07.12 | 39.6 | 100 | 20 | 1990 |
| 24.07.12 | 50 | 2,000 | 53 | 1996 |
| 24.07.12 | 11 | 200 | 25 | 2019 |
| 24.07.11 | 30 | 1,000 | 90 | 2014 |
| 24.07.11 | 30 | 12,000 | 0 | 1990 |
| 24.07.11 | 52.17 | 10,000 | 0 | 1993 |
| 24.07.10 | 38 | 6,000 | 0 | 1989 |
| 24.07.09 | 35.59 | 13,000 | 7 | 1993 |
| 24.07.09 | 126.38 | 700 | 45 | 1974 |
| 24.07.08 | 60.15 | 12,000 | 50 | 2003 |
| 24.07.08 | 20 | 3,500 | 0 | 1992 |
| 24.07.08 | 35 | 1,000 | 70 | 2017 |
| 24.07.06 | 33 | 3,000 | 0 | 1990 |
| 24.07.06 | 46.02 | 13,000 | 20 | 2003 |
| 24.07.06 | 184.61 | 5,000 | 90 | 1986 |
| 24.07.05 | 163.74 | 6,300 | 5 | 1989 |
| 24.07.05 | 199.8 | 40,000 | 0 | 1975 |
| 24.07.05 | 35 | 500 | 35 | 1997 |
| 24.07.04 | 34.32 | 1,000 | 50 | 1994 |
| 24.07.04 | 33.4 | 11,000 | 20 | 1989 |
| 24.07.03 | 83.31 | 7,000 | 75 | 1996 |
| 24.07.03 | 60 | 2,000 | 60 | 1994 |
| 24.07.02 | 52.87 | 10,000 | 20 | 1996 |
| 24.07.02 | 56.19 | 12,000 | 20 | 1986 |
| 24.07.01 | 45.48 | 14,000 | 0 | 2013 |
| 24.07.01 | 68.23 | 20,000 | 0 | |
| 24.07.01 | 68.23 | 20,000 | 0 | 2013 |
| 24.07.01 | 58.25 | 14,000 | 60 | 1975 |
| 24.06.29 | 25 | 11,000 | 0 | 2016 |
| 24.06.28 | 16.5 | 1,000 | 48 | |
| 24.06.28 | 38 | 500 | 40 | 1987 |
| 24.06.28 | 195.51 | 4,000 | 0 | 1990 |
| 24.06.27 | 40 | 5,000 | 65 | 2016 |
| 24.06.27 | 23.21 | 7,860 | 5 | 1991 |
| 24.06.27 | 23.21 | 7,860 | 5 | 1991 |
| 24.06.26 | 44 | 13,000 | 35 | 1994 |
| 24.06.26 | 16.5 | 1,000 | 48 | 2017 |
| 24.06.25 | 47.74 | 13,000 | 35 | 1976 |
| 24.06.25 | 229.23 | 1,000 | 55 | 1991 |
| 24.06.25 | 41.16 | 12,000 | 0 | 1991 |
| 24.06.25 | 45 | 14,000 | 0 | 1997 |
| 24.06.23 | 38.46 | 6,000 | 25 | 2015 |
| 24.06.22 | 35 | 1,000 | 40 | 1995 |
| 24.06.21 | 31 | 1,000 | 50 | 1992 |
| 24.06.21 | 247.43 | 1,000 | 35 | 1991 |
| 24.06.21 | 91.18 | 24,000 | 0 | 1988 |
| 24.06.20 | 22 | 1,300 | 0 | 1993 |
| 24.06.20 | 225.9 | 300 | 30 | 1988 |
| 24.06.19 | 40 | 1,000 | 50 | 1990 |
| 24.06.19 | 25.1 | 18,000 | 0 | 2018 |
| 24.06.19 | 44.83 | 10,000 | 0 | 1997 |
| 24.06.19 | 40.83 | 12,000 | 0 | 1992 |
| 24.06.19 | 19.8 | 10,000 | 0 | 2019 |
| 24.06.19 | 30 | 3,000 | 0 | 1991 |
| 24.06.18 | 25 | 500 | 40 | 1991 |
| 24.06.18 | 119.42 | 20,000 | 0 | 1997 |
| 24.06.18 | 25 | 4,500 | 0 | 1991 |
| 24.06.18 | 40 | 1,000 | 30 | 1997 |
| 24.06.17 | 40 | 7,000 | 0 | 1994 |
| 24.06.17 | 42 | 2,000 | 60 | 1996 |
| 24.06.17 | 62.18 | 5,000 | 100 | 2012 |
| 24.06.16 | 35 | 3,000 | 45 | 1991 |
| 24.06.15 | 37 | 5,000 | 40 | 2003 |
| 24.06.14 | 19.8 | 200 | 28 | 1976 |
| 24.06.14 | 364.32 | 159,000 | | 2012 |
| 24.06.13 | 30 | 2,500 | 40 | 1991 |
| 24.06.13 | 28 | 4,000 | 35 | 1989 |
| 24.06.13 | 40 | 1,000 | 45 | 1992 |
| 24.06.12 | 179.78 | 5,000 | 0 | 1995 |
| 24.06.12 | 206.58 | 3,000 | 20 | 1989 |
| 24.06.12 | 85.13 | 12,000 | 45 | 2004 |
| 24.06.12 | 26 | 1,000 | 60 | |
| 24.06.12 | 30 | 500 | 25 | 1991 |
| 24.06.11 | 30 | 500 | 35 | 1993 |
| 24.06.11 | 39.3 | 13,000 | 15 | 1993 |
| 24.06.08 | 59.55 | 2,000 | 65 | 2002 |
| 24.06.08 | 19.8 | 1,000 | 40 | 2016 |
| 24.06.07 | 36.36 | 17,000 | 0 | 2018 |
| 24.06.06 | 24 | 500 | 35 | 1993 |
| 24.06.06 | 52.27 | 7,000 | 0 | 1990 |
| 24.06.06 | 34.54 | 10,000 | 0 | 1977 |
| 24.06.06 | 40 | 2,000 | 55 | 1996 |
| 24.06.06 | 43 | 700 | 45 | 1992 |
| 24.06.05 | 43 | 12,000 | 0 | 2001 |
| 24.06.05 | 29.92 | 3,000 | 0 | 1990 |
| 24.06.04 | 103.35 | 14,000 | 0 | 1988 |
| 24.06.04 | 30.12 | 8,000 | 0 | 1989 |
| 24.06.04 | 36.4 | 500 | 30 | 1990 |
| 24.06.04 | 30.12 | 8,000 | 0 | 1989 |
| 24.06.03 | 40 | 2,000 | 35 | 1989 |
| 24.06.03 | 32.29 | 1,000 | 50 | 1991 |
| 24.06.03 | 216.21 | 2,000 | 55 | 2015 |
| 24.06.03 | 32.29 | 1,000 | 50 | 1991 |
| 24.06.03 | 214.31 | 3,000 | 15 | 1993 |
| 24.06.01 | 56.98 | 13,000 | 15 | 2007 |
| 24.06.01 | 25 | 2,000 | 55 | 2016 |
| 24.05.31 | 33 | 13,000 | 20 | 2018 |
| 24.05.31 | 24 | 1,800 | 25 | 1992 |
| 24.05.31 | 33 | 4,000 | 60 | 1993 |
| 24.05.31 | 46.92 | 7,300 | 0 | 1991 |
| 24.05.31 | 293.7 | 115,000 | | 1995 |
| 24.05.30 | 53.13 | 15,000 | 0 | 1968 |
| 24.05.30 | 45 | 15,000 | 0 | 1989 |
| 24.05.28 | 26 | 17,000 | 0 | 2020 |
| 24.05.28 | 39 | 500 | 40 | 1992 |
| 24.05.28 | 19.38 | 200 | 30 | 1989 |
| 24.05.28 | 30 | 1,000 | 45 | 1995 |
| 24.05.28 | 290.18 | 180,000 | | 1994 |
| 24.05.27 | 34 | 1,000 | 43 | 1990 |
| 24.05.27 | 40 | 1,000 | 50 | 1993 |
| 24.05.27 | 19.8 | 3,000 | 42 | |
| 24.05.27 | 15 | 500 | 38 | 2019 |
| 24.05.26 | 38.34 | 3,000 | 60 | 1994 |
| 24.05.25 | 33 | 300 | 30 | 1990 |
| 24.05.25 | 30 | 500 | 43 | 1994 |
| 24.05.24 | 37.96 | 11,000 | 0 | 1993 |
| 24.05.24 | 33 | 3,500 | 0 | 1994 |
| 24.05.24 | 49.7 | 9,000 | 27 | 1992 |
| 24.05.23 | 43.71 | 11,000 | 0 | 1991 |
| 24.05.23 | 29.5 | 200 | 23 | 1993 |
| 24.05.22 | 33 | 1,000 | 45 | 1990 |
| 24.05.21 | 33 | 300 | 30 | 1991 |
| 24.05.21 | 120.99 | 7,000 | 0 | 1974 |
| 24.05.21 | 33.3 | 10,000 | 50 | 2018 |
| 24.05.21 | 111.93 | 1,000 | 20 | 1996 |
| 24.05.20 | 69.65 | 20,000 | 0 | 1977 |
| 24.05.20 | 164.4 | 200 | 35 | 1997 |
| 24.05.20 | 30 | 1,000 | 40 | 2016 |
| 24.05.20 | 33 | 500 | 30 | 1993 |
| 24.05.20 | 40 | 2,500 | 40 | 1995 |
| 24.05.18 | 26.44 | 15,000 | 0 | 2018 |
| 24.05.18 | 221.34 | 2,000 | 60 | 2018 |
| 24.05.18 | 60.17 | 20,000 | 0 | 1974 |
| 24.05.17 | 30 | 12,000 | 0 | 2015 |
| 24.05.17 | 25 | 1,000 | 46 | |
| 24.05.17 | 25 | 1,000 | 46 | |
| 24.05.17 | 25 | 1,000 | 44 | |
| 24.05.16 | 43.21 | 10,000 | 20 | 1994 |
| 24.05.16 | 39.73 | 9,000 | 0 | 1995 |
| 24.05.16 | 14 | 3,000 | 0 | 2012 |
| 24.05.16 | 39.73 | 9,000 | 0 | 1995 |
| 24.05.16 | 18 | 1,000 | 45 | 2017 |
| 24.05.16 | 40 | 1,000 | 90 | 2018 |
| 24.05.16 | 30 | 500 | 60 | 1978 |
| 24.05.16 | 31.35 | 11,000 | 20 | |
| 24.05.15 | 177.12 | 17,000 | 0 | 2012 |
| 24.05.15 | 26.49 | 19,900 | 15 | |
| 24.05.14 | 364.32 | 159,000 | | 2012 |
| 24.05.14 | 29 | 200 | 25 | 1996 |
| 24.05.14 | 33 | 17,000 | 0 | 2019 |
| 24.05.14 | 35 | 10,000 | 25 | 2019 |
| 24.05.14 | 43.75 | 3,500 | 0 | 1990 |
| 24.05.14 | 35 | 10,000 | 25 | 2019 |
| 24.05.13 | 298.94 | 115,000 | | 1993 |
| 24.05.13 | 50 | 2,000 | 75 | |
| 24.05.13 | 25 | 500 | 35 | 1990 |
| 24.05.13 | 39 | 15,000 | 0 | 2018 |
| 24.05.11 | 37.31 | 1,000 | 50 | |
| 24.05.11 | 37.31 | 1,000 | 50 | 1996 |
| 24.05.10 | 48.87 | 2,000 | 60 | 2003 |
| 24.05.10 | 48 | 5,000 | 80 | 2003 |
| 24.05.10 | 42.88 | 10,000 | 0 | |
| 24.05.10 | 42.88 | 10,000 | 0 | 2002 |
| 24.05.08 | 48.01 | 7,000 | 60 | 2003 |
| 24.05.08 | 33 | 2,000 | 40 | 1991 |
| 24.05.08 | 37 | 500 | 35 | 1990 |
| 24.05.07 | 32 | 500 | 40 | 1990 |
| 24.05.07 | 33 | 500 | 35 | 1990 |
| 24.05.06 | 47.4 | 17,000 | 0 | 1993 |
| 24.05.06 | 18 | 500 | 43 | 2019 |
| 24.05.06 | 182.97 | 200 | 20 | 1987 |
| 24.05.05 | 30.17 | 5,000 | 30 | 1990 |
| 24.05.04 | 33.06 | 15,000 | 15 | 2017 |
| 24.05.04 | 40 | 1,000 | 70 | 2013 |
| 24.05.04 | 19.8 | 800 | 57 | 2016 |
| 24.05.03 | 28 | 300 | 30 | 1994 |
| 24.05.02 | 16.46 | 7,500 | 0 | 1976 |
| 24.05.02 | 16.5 | 100 | 20 | 1991 |
| 24.05.02 | 25 | 1,000 | 40 | 1995 |
| 24.05.02 | 34 | 500 | 30 | 1990 |
| 24.05.02 | 57.88 | 8,000 | 31 | 2012 |
| 24.05.02 | 32.5 | 500 | 45 | 1994 |
| 24.05.02 | 35.14 | 9,000 | 0 | |
| 24.05.01 | 34 | 3,000 | 50 | 2003 |
| 24.05.01 | 199.92 | 500 | 45 | 1993 |
| 24.05.01 | 27 | 2,000 | 35 | 1991 |
| 24.05.01 | 37.36 | 8,000 | 50 | 2015 |
| 24.05.01 | 46.2 | 4,000 | 70 | 2017 |
| 24.05.01 | 31.58 | 5,000 | 75 | 2021 |
| 24.05.01 | 32.96 | 500 | 45 | 1993 |
| 24.05.01 | 72.27 | 20,000 | 0 | 1989 |
| 24.05.01 | 48 | 5,000 | 40 | 1996 |
| 24.04.30 | 30 | 500 | 58 | 1995 |
| 24.04.30 | 18 | 1,000 | 43 | |
| 24.04.30 | 19 | 5,000 | 0 | 1991 |
| 24.04.29 | 33 | 1,000 | 60 | 1990 |
| 24.04.29 | 25.67 | 6,000 | 0 | 1991 |
| 24.04.29 | 45 | 6,000 | 70 | |
| 24.04.28 | 33 | 4,000 | 53 | 2016 |
| 24.04.27 | 35.85 | 19,000 | 0 | |
| 24.04.27 | 39.42 | 1,000 | 50 | 1990 |
| 24.04.27 | 149.4 | 200 | 23 | 1992 |
| 24.04.27 | 39 | 20,000 | 0 | |
| 24.04.26 | 38.37 | 13,000 | 0 | 1995 |
| 24.04.26 | 30 | 500 | 43 | 1994 |
| 24.04.25 | 44 | 2,000 | 60 | 1993 |
| 24.04.25 | 26.42 | 2,000 | 0 | 1993 |
| 24.04.25 | 39.82 | 18,000 | 0 | |
| 24.04.24 | 40 | 5,000 | 70 | 2020 |
| 24.04.24 | 30 | 500 | 30 | 1996 |
| 24.04.23 | 33 | 1,000 | 35 | 1996 |
| 24.04.22 | 40 | 4,000 | 30 | 1990 |
| 24.04.22 | 38.8 | 10,000 | 0 | 1972 |
| 24.04.22 | 19 | 300 | 28 | 1993 |
| 24.04.22 | 26.5 | 1,000 | 45 | 1987 |
| 24.04.22 | 52.98 | 18,910 | 0 | 2016 |
| 24.04.20 | 197.77 | 400 | 60 | 1992 |
| 24.04.18 | 30 | 12,000 | 20 | |
| 24.04.18 | 30 | 12,000 | 20 | |
| 24.04.18 | 30 | 12,000 | 20 | |
| 24.04.18 | 35.59 | 13,000 | 7 | 1993 |
| 24.04.17 | 44.17 | 13,000 | 40 | |
| 24.04.17 | 67.14 | 5,000 | 70 | 2004 |
| 24.04.17 | 127.84 | 2,000 | 50 | 1976 |
| 24.04.17 | 157.83 | 3,000 | 50 | 1976 |
| 24.04.17 | 38.1 | 22,500 | 0 | |
| 24.04.16 | 142.65 | 1,500 | 55 | 1995 |
| 24.04.16 | 24.49 | 500 | 40 | 1993 |
| 24.04.15 | 30 | 500 | 40 | 1990 |
| 24.04.15 | 55.55 | 13,000 | 20 | 2001 |
| 24.04.15 | 30 | 100 | 34 | 1985 |
| 24.04.15 | 196.35 | 500 | 40 | 1990 |
| 24.04.15 | 62.43 | 3,000 | 80 | 1990 |
| 24.04.13 | 40 | 500 | 55 | 1994 |
| 24.04.13 | 50 | 2,000 | 53 | 1997 |
| 24.04.13 | 35 | 500 | 35 | |
| 24.04.12 | 23 | 300 | 25 | 1994 |
| 24.04.12 | 33 | 8,000 | 0 | 1989 |
| 24.04.12 | 35.5 | 18,500 | 0 | |
| 24.04.12 | 63.05 | 10,000 | 50 | 2013 |
| 24.04.11 | 23 | 1,000 | 60 | 2016 |
| 24.04.11 | 34 | 1,000 | 40 | 1990 |
| 24.04.11 | 47 | 3,000 | 60 | |
| 24.04.10 | 20 | 500 | 35 | 1991 |
| 24.04.10 | 40 | 7,000 | 32 | 1995 |
| 24.04.10 | 30 | 11,000 | 20 | 2016 |
| 24.04.09 | 33 | 9,000 | 0 | 1993 |
| 24.04.09 | 68.23 | 20,000 | 0 | 2013 |
| 24.04.09 | 197.82 | 1,500 | 75 | 1993 |
| 24.04.09 | 33 | 300 | 30 | 1984 |
| 24.04.09 | 33 | 9,000 | 0 | |
| 24.04.09 | 52.87 | 9,000 | 25 | 1996 |
| 24.04.08 | 59 | 3,000 | 80 | 1995 |
| 24.04.06 | 23.1 | 1,000 | 40 | 1990 |
| 24.04.06 | 39.5 | 16,500 | 0 | 2017 |
| 24.04.06 | 24.38 | 500 | 30 | 2019 |
| 24.04.05 | 40 | 12,000 | 30 | |
| 24.04.05 | 188.1 | 300 | 35 | 1991 |
| 24.04.05 | 40.92 | 5,000 | 45 | 2018 |
| 24.04.05 | 153.23 | 500 | 43 | 1990 |
| 24.04.05 | 16 | 6,000 | 0 | 2019 |
| 24.04.05 | 16.52 | 50 | 35 | 1992 |
| 24.04.04 | 177.66 | 1,000 | 45 | |
| 24.04.04 | 46.29 | 3,000 | 145 | |
| 24.04.03 | 30 | 500 | 40 | 1993 |
| 24.04.03 | 33.18 | 1,000 | 40 | |
| 24.04.03 | 42.9 | 6,000 | 40 | 1989 |
| 24.04.02 | 43 | 4,500 | 60 | 2018 |
| 24.04.02 | 120.46 | 4,000 | 65 | 1977 |
| 24.04.02 | 48.44 | 500 | 30 | 1988 |
| 24.04.01 | 36 | 500 | 40 | 1994 |
| 24.03.31 | 40.5 | 300 | 30 | |
| 24.03.30 | 34.25 | 2,000 | 75 | |
| 24.03.30 | 203.74 | 1,000 | 43 | |
| 24.03.30 | 26 | 3,500 | 0 | |
| 24.03.30 | 50 | 10,000 | 20 | |
| 24.03.30 | 27.2 | 21,000 | 0 | |
| 24.03.30 | 46.29 | 5,000 | 130 | |
| 24.03.29 | 16 | 300 | 30 | |
| 24.03.29 | 18 | 1,000 | 43 | |
| 24.03.29 | 157.38 | 10,000 | 0 | |
| 24.03.27 | 16.74 | 500 | 45 | |
| 24.03.27 | 63.58 | 3,000 | 75 | |
| 24.03.26 | 45 | 1,000 | 80 | |
| 24.03.26 | 31.35 | 7,200 | 27 | |
| 24.03.26 | 30 | 2,000 | 48 | |
| 24.03.26 | 36 | 1,000 | 40 | |
| 24.03.26 | 20 | 1,000 | 55 | |
| 24.03.26 | 25 | 1,000 | 50 | |
| 24.03.26 | 229.44 | 500 | 30 | |
| 24.03.25 | 32 | 500 | 35 | |
| 24.03.25 | 216.98 | 10,000 | 0 | |
| 24.03.25 | 58.17 | 3,000 | 55 | |
| 24.03.25 | 33.14 | 6,000 | 0 | |
| 24.03.24 | 25 | 2,000 | 52 | |
| 24.03.23 | 20 | 500 | 43 | |
| 24.03.23 | 50 | 18,000 | 0 | |
| 24.03.22 | 25.12 | 500 | 45 | |
| 24.03.22 | 43 | 10,000 | 40 | |
| 24.03.22 | 227.52 | 5,000 | 0 | |
| 24.03.22 | 31.35 | 2,000 | 75 | |
| 24.03.22 | 54.42 | 16,000 | 0 | |
| 24.03.21 | 36.76 | 9,500 | 25 | |
| 24.03.20 | 35 | 10,000 | 25 | |
| 24.03.20 | 53.32 | 20,000 | 0 | |
| 24.03.20 | 30 | 2,000 | 70 | |
| 24.03.20 | 60 | 6,000 | 75 | |
| 24.03.20 | 31.6 | 4,000 | 40 | |
| 24.03.19 | 27 | 1,500 | 35 | |
| 24.03.19 | 23 | 3,000 | 40 | |
| 24.03.19 | 178.75 | 20,000 | 0 | |
| 24.03.19 | 37 | 1,000 | 60 | |
| 24.03.19 | 32 | 500 | 30 | |
| 24.03.19 | 47.97 | 13,000 | 25 | |
| 24.03.19 | 50.57 | 9,000 | 10 | |
| 24.03.18 | 163.13 | 1,000 | 30 | |
| 24.03.18 | 228.36 | 16,500 | 0 | |
| 24.03.16 | 22 | 1,000 | 40 | |
| 24.03.16 | 25 | 1,000 | 35 | |
| 24.03.15 | 35 | 7,350 | 10 | |
| 24.03.15 | 25 | 300 | 35 | |
| 24.03.15 | 200.91 | 13,000 | 0 | |
| 24.03.15 | 50 | 20,000 | 20 | |
| 24.03.15 | 34.93 | 2,000 | 65 | |
| 24.03.14 | 29 | 15,000 | 0 | |
| 24.03.14 | 58.06 | 8,000 | 50 | |
| 24.03.13 | 39.05 | 3,000 | 60 | |
| 24.03.13 | 42.97 | 1,000 | 65 | |
| 24.03.13 | 30.78 | 3,000 | 30 | |
| 24.03.12 | 42 | 500 | 44 | |
| 24.03.12 | 44.07 | 2,000 | 85 | |
| 24.03.11 | 36 | 9,000 | 0 | |
| 24.03.11 | 189.18 | 1,000 | 65 | |
| 24.03.11 | 50.54 | 1,000 | 60 | |
| 24.03.11 | 16.5 | 3,000 | 30 | |
| 24.03.11 | 30 | 10,000 | 0 | |
| 24.03.11 | 49.99 | 15,000 | 0 | |
| 24.03.11 | 39 | 1,500 | 0 | |
| 24.03.11 | 57.33 | 4,000 | 55 | |
| 24.03.09 | 94.7 | 5,000 | 70 | |
| 24.03.09 | 22 | 250 | 20 | |
| 24.03.09 | 56.71 | 13,000 | 30 | |
| 24.03.08 | 20.1 | 6,000 | 0 | |
| 24.03.08 | 113.43 | 28,000 | 0 | |
| 24.03.08 | 45.36 | 1,000 | 60 | |
| 24.03.07 | 213.41 | 6,000 | 10 | |
| 24.03.07 | 30 | 2,000 | 55 | |
| 24.03.07 | 64.28 | 15,000 | 10 | |
| 24.03.07 | 48.63 | 2,000 | 70 | |
| 24.03.06 | 36.3 | 10,000 | 30 | |
| 24.03.06 | 29.34 | 12,000 | 0 | |
| 24.03.06 | 24.23 | 3,000 | 55 | |
| 24.03.06 | 37.62 | 17,000 | 15 | |
| 24.03.05 | 197.49 | 1,000 | 50 | |
| 24.03.05 | 112.56 | 30,000 | 0 | |
| 24.03.05 | 60.03 | 11,000 | 0 | |
| 24.03.05 | 60.03 | 11,000 | 0 | |
| 24.03.04 | 36.96 | 12,000 | 0 | |
| 24.03.04 | 179.82 | 5,000 | 0 | |
| 24.03.04 | 59.8 | 17,000 | 0 | |
| 24.03.04 | 36.96 | 12,000 | 0 | |
| 24.03.04 | 30 | 3,000 | 0 | |
| 24.03.04 | 214.97 | 100 | 34 | |
| 24.03.04 | 34 | 2,000 | 40 | |
| 24.03.03 | 36.57 | 1,000 | 50 | |
| 24.03.02 | 182.39 | 1,000 | 30 | |
| 24.03.02 | 50 | 1,000 | 55 | |
| 24.03.02 | 47.02 | 16,000 | 0 | |
| 24.03.02 | 38 | 500 | 35 | |
| 24.03.02 | 95.22 | 12,000 | 0 | |
| 24.03.01 | 178.75 | 20,000 | 0 | |
| 24.03.01 | 20 | 1,000 | 40 | |
| 24.02.29 | 27 | 1,000 | 30 | |
| 24.02.29 | 59.67 | 9,000 | 0 | |
| 24.02.29 | 28.1 | 1,500 | 43 | |
| 24.02.28 | 50.65 | 10,000 | 30 | |
| 24.02.28 | 39.05 | 3,000 | 65 | |
| 24.02.28 | 30 | 1,000 | 50 | |
| 24.02.27 | 40 | 19,100 | 0 | |
| 24.02.26 | 221.04 | 200 | 32 | |
| 24.02.26 | 19.8 | 3,000 | 50 | |
| 24.02.26 | 26.6 | 500 | 60 | |
| 24.02.26 | 36 | 1,000 | 50 | |
| 24.02.26 | 32.76 | 10,000 | 0 | |
| 24.02.26 | 40 | 15,000 | 0 | |
| 24.02.25 | 23 | 500 | 35 | |
| 24.02.24 | 35.8 | 10,000 | 45 | |
| 24.02.24 | 44.64 | 10,000 | 0 | |
| 24.02.24 | 39 | 11,000 | 0 | |
| 24.02.24 | 37.74 | 1,000 | 80 | |
| 24.02.23 | 55.15 | 13,000 | 35 | |
| 24.02.23 | 39.66 | 18,500 | 0 | |
| 24.02.23 | 30 | 5,500 | 0 | |
| 24.02.22 | 15.86 | 500 | 42 | |
| 24.02.21 | 31.9 | 0 | 30 | |
| 24.02.21 | 54.1 | 3,000 | 60 | |
| 24.02.21 | 25 | 2,000 | 50 | |
| 24.02.20 | 233.53 | 1,000 | 55 | |
| 24.02.20 | 35 | 1,000 | 50 | |
| 24.02.20 | 40 | 1,000 | 50 | |
| 24.02.19 | 25 | 400 | 35 | |
| 24.02.19 | 22 | 1,000 | 40 | |
| 24.02.19 | 42 | 1,000 | 50 | |
| 24.02.19 | 40 | 500 | 40 | |
| 24.02.19 | 43 | 500 | 35 | |
| 24.02.18 | 35 | 13,000 | 40 | |
| 24.02.17 | 39.81 | 2,000 | 29 | |
| 24.02.17 | 31.62 | 1,000 | 45 | |
| 24.02.17 | 37 | 2,000 | 49 | |
| 24.02.17 | 25 | 7,000 | 0 | |
| 24.02.17 | 30 | 5,000 | 0 | |
| 24.02.17 | 30 | 5,000 | 0 | |
| 24.02.17 | 20 | 500 | 25 | |
| 24.02.16 | 26 | 100 | 20 | |
| 24.02.16 | 22.95 | 9,000 | 0 | |
| 24.02.16 | 46 | 4,000 | 60 | |
| 24.02.15 | 20 | 300 | 33 | |
| 24.02.15 | 16.28 | 6,000 | 30 | |
| 24.02.14 | 74.22 | 20,000 | 0 | |
| 24.02.14 | 22.8 | 12,000 | 20 | |
| 24.02.14 | 75.37 | 20,000 | 0 | |
| 24.02.13 | 33 | 1,000 | 45 | |
| 24.02.13 | 45 | 1,000 | 55 | |
| 24.02.13 | 25 | 200 | 27 | |
| 24.02.12 | 23.14 | 6,000 | 0 | |
| 24.02.08 | 85.93 | 2,800 | 70 | 2004 |
| 24.02.06 | 26.92 | 14,000 | 0 | |
| 24.02.05 | 51.75 | 2,000 | 55 | |
| 24.02.05 | 30.05 | 13,000 | 0 | 1993 |
| 24.02.05 | 30 | 500 | 40 | 1989 |
| 24.02.05 | 38.52 | 10,000 | 0 | 1995 |
| 24.02.05 | 38 | 1,000 | 50 | |
| 24.02.03 | 24.2 | 13,000 | 0 | 2020 |
| 24.02.03 | 53.39 | 13,000 | 10 | 1978 |
| 24.02.03 | 55 | 1,000 | 45 | |
| 24.02.02 | 21 | 300 | 20 | |
| 24.02.02 | 26.99 | 1,000 | 35 | |
| 24.02.02 | 52 | 17,000 | 20 | |
| 24.02.02 | 82 | 2,000 | 100 | 1993 |
| 24.02.02 | 21.96 | 16,000 | 0 | 2019 |
| 24.02.02 | 16 | 7,000 | 0 | 2011 |
| 24.02.01 | 30 | 500 | 30 | |
| 24.02.01 | 10 | 300 | 40 | 1975 |
| 24.02.01 | 27.46 | 9,000 | 0 | 2015 |
| 24.02.01 | 34.42 | 15,000 | 0 | |
| 24.02.01 | 46 | 15,000 | 30 | 2017 |
| 24.01.31 | 26.44 | 250 | 25 | 1991 |
| 24.01.31 | 20 | 14,000 | 10 | 2018 |
| 24.01.31 | 25.37 | 7,000 | 30 | |
| 24.01.30 | 38.12 | 8,000 | 10 | 1990 |
| 24.01.30 | 29.68 | 22,100 | 0 | 2020 |
| 24.01.30 | 67.14 | 8,000 | 55 | 2004 |
| 24.01.29 | 40 | 500 | 30 | |
| 24.01.29 | 40 | 2,000 | 55 | |
| 24.01.29 | 52.87 | 8,500 | 10 | 1996 |
| 24.01.29 | 32.08 | 300 | 20 | 1988 |
| 24.01.28 | 30.22 | 500 | 45 | 2006 |
| 24.01.27 | 16.52 | 1,000 | 38 | |
| 24.01.27 | 67 | 13,000 | 40 | 1993 |
| 24.01.27 | 30 | 18,000 | 0 | 2015 |
| 24.01.26 | 31.51 | 15,000 | 0 | 1994 |
| 24.01.25 | 20 | 1,000 | 50 | 2017 |
| 24.01.25 | 22 | 1,500 | 47 | 2017 |
| 24.01.24 | 36.22 | 20,000 | 0 | 2018 |
| 24.01.24 | 112.8 | 30,000 | 0 | 2003 |
| 24.01.24 | 33 | 500 | 33 | |
| 24.01.24 | 23.1 | 8,000 | 0 | 1996 |
| 24.01.24 | 33.66 | 1,000 | 40 | 1995 |
| 24.01.22 | 20 | 300 | 30 | 1992 |
| 24.01.20 | 30 | 14,000 | 0 | 1987 |
| 24.01.20 | 30 | 200 | 30 | 1993 |
| 24.01.20 | 28.28 | 8,800 | 0 | 1991 |
| 24.01.20 | 25 | 300 | 35 | |
| 24.01.18 | 36.78 | 1,000 | 83 | |
| 24.01.18 | 22 | 100 | 30 | 1993 |
| 24.01.18 | 33 | 15,000 | 0 | |
| 24.01.18 | 33 | 15,000 | 0 | 1990 |
| 24.01.18 | 20.55 | 7,000 | 0 | 2013 |
| 24.01.18 | 20.55 | 7,000 | 0 | 2013 |
| 24.01.18 | 20 | 5,000 | 30 | |
| 24.01.17 | 14.97 | 1,000 | 37 | |
| 24.01.17 | 49.59 | 9,400 | 0 | 1989 |
| 24.01.17 | 34.1 | 13,000 | 10 | 2017 |
| 24.01.17 | 20 | 11,000 | 20 | 2020 |
| 24.01.16 | 33 | 16,000 | 0 | |
| 24.01.13 | 75.72 | 19,950 | 10 | 1997 |
| 24.01.12 | 22.98 | 21,000 | 10 | |
| 24.01.12 | 35.85 | 18,000 | 0 | 2018 |
| 24.01.12 | 59.22 | 9,000 | 55 | |
| 24.01.12 | 33 | 200 | 30 | 1991 |
| 24.01.11 | 33 | 1,000 | 40 | |
| 24.01.11 | 56.25 | 3,000 | 65 | 1991 |
| 24.01.11 | 39 | 15,000 | 0 | 2018 |
| 24.01.11 | 51.84 | 300 | 25 | 1983 |
| 24.01.11 | 34.46 | 1,000 | 70 | 2015 |
| 24.01.10 | 42 | 21,000 | 0 | 2019 |
| 24.01.10 | 39 | 1,000 | 60 | 1994 |
| 24.01.10 | 25 | 1,000 | 45 | 1988 |
| 24.01.10 | 45.23 | 1,000 | 42 | 1989 |
| 24.01.10 | 48.06 | 3,000 | 110 | 2020 |
| 24.01.09 | 25 | 9,000 | 0 | 1993 |
| 24.01.09 | 40 | 20,000 | 0 | 2016 |
| 24.01.08 | 33 | 11,000 | 0 | |
| 24.01.08 | 18 | 1,000 | 45 | 2018 |
| 24.01.08 | 33 | 11,000 | 0 | 1990 |
| 24.01.07 | 25.02 | 1,000 | 50 | 1985 |
| 24.01.06 | 36 | 10,000 | 0 | 2001 |
| 24.01.06 | 40 | 20,000 | 0 | 2016 |
| 24.01.06 | 112.8 | 31,000 | 0 | 2003 |
| 24.01.06 | 35 | 4,000 | 0 | 1996 |
| 24.01.06 | 26 | 200 | 20 | 1990 |
| 24.01.06 | 18 | 500 | 40 | 2011 |
| 24.01.06 | 28.99 | 5,000 | 70 | 2014 |
| 24.01.06 | 35 | 5,000 | 60 | 2016 |
| 24.01.06 | 28.99 | 5,000 | 70 | |
| 24.01.05 | 20 | 7,000 | 0 | 1994 |
| 24.01.04 | 61.4 | 10,000 | 30 | 1985 |
| 24.01.04 | 28.91 | 3,000 | 65 | 2021 |
| 24.01.04 | 84.81 | 12,000 | 10 | 1996 |
| 24.01.02 | 40.72 | 500 | 35 | 1988 |
µî±âºÎµîº» ¿ä¾à(ÅäÁö)
| |
Á¢¼öÀÏÀÚ |
µî±â¸ñÀû/±Ç¸®ÀÚ |
±Ç¸®±Ý¾× |
±âÁØ |
| 1 |
2020³â6¿ù26ÀÏ |
¼ÒÀ¯±Ç
˱OO
|
|
¼Ò¸ê |
| 2 |
2020³â6¿ù26ÀÏ |
¼ÒÀ¯±Ç
½ÅOO
|
|
¼Ò¸ê |
| 3 |
2024³â8¿ù20ÀÏ |
±ÙÀú´ç±Ç
(OOOO
|
405,000,000 |
¼Ò¸ê±âÁØ |
| 4 |
2025³â1¿ù10ÀÏ |
°¡¾Ð·ù
(OOOO
|
7,066,844 |
¼Ò¸ê |
| 5 |
2025³â2¿ù27ÀÏ |
ÀÓÀǰæ¸Å
(OOOO
|
|
¼Ò¸ê |
µî±âºÎµîº» ¿ä¾à(°Ç¹°)
| |
Á¢¼öÀÏÀÚ |
µî±â¸ñÀû/±Ç¸®ÀÚ |
±Ç¸®±Ý¾× |
±âÁØ |
| 1 |
2020³â6¿ù26ÀÏ |
¼ÒÀ¯±Ç
˱OO
|
|
¼Ò¸ê |
| 2 |
2020³â6¿ù26ÀÏ |
¼ÒÀ¯±Ç
½ÅOO
|
|
¼Ò¸ê |
| 3 |
2024³â8¿ù20ÀÏ |
±ÙÀú´ç±Ç
(OOOO
|
405,000,000 |
¼Ò¸ê±âÁØ |
| 4 |
2024³â8¿ù20ÀÏ |
Àü¼¼±Ç
(OOOO
|
5,000,000 |
¼Ò¸ê |
| 5 |
2025³â1¿ù10ÀÏ |
°¡¾Ð·ù
(OOOO
|
7,066,844 |
¼Ò¸ê |
| 6 |
2025³â2¿ù27ÀÏ |
ÀÓÀǰæ¸Å
(OOOO
|
|
¼Ò¸ê |
ÀÓÂ÷ÀÎÇöȲ (¹è´ç¿ä±¸Á¾±âÀÏ: 2025-05-30)
| ÀÓÂ÷ÀÎ |
¿ëµµ/Á¡À¯ |
º¸Áõ±Ý/¿ù¼¼ |
´ëÇ×·Â |
| ÀüÀÔÀÏ/È®Á¤ÀÏ |
¹è´ç¿ä±¸ |
ºñ°í |
| ±èOO |
¹Ì»ó |
¹Ì»ó
[¿ù]¹Ì»ó |
X |
2024.12.03 ¹Ì»ó |
|
¹Ì»ó |
| ÁÖOOOOOOOOOOO |
2Ãþ 67.64§³,3Ãþ 34.13§³ÀüºÎ |
5,000,000
|
|
|
|
2024.08.20ºÎÅÍ2025.08.19±îÁö |
¿©ÀÇÁÖ°æ¸Å Á¶¾ð ÇÑ ¸¶µð
ÃëÇÏ ¶Ç´Â Ãë¼ÒµÉ °¡´É¼º ÀÖ½À´Ï´Ù
ÀÌ ¹°°ÇÀÇ °¨Á¤°¡°ÝÀº 905,256,000¿øÀÔ´Ï´Ù. °æ¸Å¸¦ ½ÅûÇÑ Ã¤±ÇÀÚ°¡ ¹è´ç ¹Þ¾Æ¾ß ÇÒ ±Ý¾×Àº 270,000,000¿øÀ¸·Î °¨Á¤°¡°Ý ´ëºñ »ó´çÈ÷ ÀûÀº ±Ý¾×ÀÔ´Ï´Ù.
ÀÌ·± °æ¿ì, 乫°¡°¡ º¯Á¦ÇÏ¿© °æ¸Å¸¦ ÃëÇϽÃŰ°Å³ª °æ¸Å½Åûä±ÇÀÚ°¡ ¹è´ç¹ÞÀº ±Ý¿øÀÌ ¾ø°ÔµÇ¾î À̸¥ ¹Ù "¹«À׿©¿¡ ÀÇÇÑ Ãë¼Ò"°¡ µÉ °¡´É¼ºÀÌ ÀÖ½À´Ï´Ù.
|
|
ÁÖÀÇ»çÇ× (ÃÖ¼±¼øÀ§ ¼³Á¤ÀÏ: 2024.08.20 ±ÙÀú´ç±Ç ¼³Á¤)
| ¸Å°¢À¸·Î ¼Ò¸êµÇÁö ¾Ê´Â µî±âºÎ±Ç¸®: |
| ¸Å°¢À¸·Î ¼³Á¤µÈ °ÍÀ¸·Î º¸´Â Áö»ó±Ç: |
|
¡Ø¹Ì³³°ü¸®ºñ(°ø¿ë) Àμö¿©ºÎ¸¦ ÀÔÂû Àü¿¡ È®ÀÎÇϽñ⠹ٶø´Ï´Ù
|
Áö¿ªºÐ¼®
| Çб³¸í |
ÀüȹøÈ£ |
ÁÖ¼Ò |
Á÷¼±°Å¸® |
| ¹ý¿ø |
¼¿ïºÏºÎÁö¹æ¹ý¿ø (013-22)¼¿ïƯº°½Ã µµºÀ±¸ ¸¶µé·Î749 (µµºÀ2µ¿ 626) ´ëÇ¥ : 02)910-3114 °üÇÒÁö¿ª : °ºÏ±¸, ³ë¿ø±¸, µµºÀ±¸, µ¿´ë¹®±¸, ¼ººÏ±¸, Áß¶û±¸ |
| µî±â¼Ò |
¼¿ïºÏºÎÁö¹æ¹ý¿ø º»¿ø µî±â±¹ (´ëÇ¥:1544-0773, ÆÑ½º:(02)2030-2330, ¼¿ïƯº°½Ã µµºÀ±¸ ³ëÇØ·Î 325 (⵿ 337¹øÁö)) |
| ¼¼¹«¼ |
Áß¶û ¼¼¹«¼ (´ëÇ¥:02-2170-02, ÆÑ½º:02-493-7315, ¼¿ïƯº°½Ã Áß¶û±¸ ¸Á¿ì·Î 176(»óºÀµ¿ 137-1)) |
Àαٳ«ÂûÅë°è
| ±â°£ |
¸Å°¢°Ç¼ö |
Æò±Õ°¨Á¤°¡ Æò±Õ¸Å°¢°¡ |
¸Å°¢°¡À² Æò±ÕÀ¯Âû¼ö |
| 3°³¿ù |
4°Ç |
1,006,918,925¿ø 650,107,000¿ø |
64% 3.3ȸ |
| 6°³¿ù |
4°Ç |
1,006,918,925¿ø 650,107,000¿ø |
64% 3.3ȸ |
| 12°³¿ù |
8°Ç |
797,725,629¿ø 477,689,437¿ø |
57% 3.4ȸ |
º» °æ¸ÅÁ¤º¸´Â ¹ý¿øÀÚ·á¿Í ÀÏÄ¡Çϵµ·Ï ÇÏ¿´À¸³ª ±Ç¸®»çÇ׺¯µ¿, ÀÔ·ÂÂø¿À µîÀÇ ¿øÀÎÀ¸·Î »ç½Ç°ú ´Ù¸¦ ¼ö ÀÖ½À´Ï´Ù.
ÀÌ¿ë¾à°ü¿¡ ÀǰЏéÃ¥Á¶°ÇÀ¸·Î Á¦°øµÊÀ» ¾Ë¸®¸ç, °æ¸ÅÀÔÂû½Ã ¹Ýµå½Ã °ü·Ã °øºÎ¸¦ ÀçÈ®ÀÎÇϽñ⠹ٶø´Ï´Ù.
º¸´Ù Æí¸®ÇÑ °æ¸ÅÁ¤º¸ Á¦°øÀ» À§ÇØ Áö¼ÓÀûÀ¸·Î °³¼±ÇϰڽÀ´Ï´Ù. ÀÌ¿ëÇØ Áּż °¨»çÇÕ´Ï´Ù.