·Î±×ÀÎ
154
´Ù¼¼´ë(ºô¶ó)
¼­¿ïºÏºÎÁö¹æ¹ý¿ø
 °¨Á¤°¡251,000,000 ¿ø
 ÃÖÀú°¡(51%) 128,512,000 ¿ø
 º¸Áõ±Ý(10%) 12,851,200 ¿ø
 Ã»±¸¾×265,730,547 ¿ø
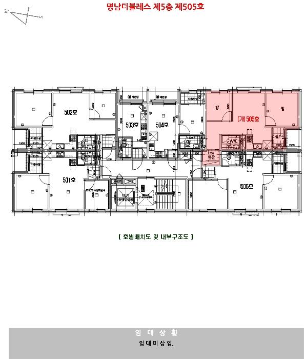
¼­¿ïƯº°½Ã ¼ººÏ±¸ Á¾¾Ï·Î36±æ 16, 5Ãþ505È£ (ÇÏ¿ù°îµ¿,¸í³²´õºí·¹½º)
¼­¿ïƯº°½Ã ¼ººÏ±¸ ÇÏ¿ù°îµ¿ 90-1817
»ç°Ç¹øÈ£ 2024Ÿ°æ120217
°æ¸ÅÁ¾·ùºÎµ¿»ê°­Á¦°æ¸Å
¸Å°¢´ë»óÅäÁö ¹× °Ç¹°Àϰý ¸Å°¢
¸Å°¢±âÀÏ    2026.01.27(È­) 10:00 ÀÔÂû 6ÀÏÀü    
ÅäÁö¸éÀû11.60§³(3.51 Æò)
°Ç¹°¸éÀû43.47§³(13.15 Æò)
乫/¼ÒÀ¯ÀÚÀÌOO / ÀÌOO
ä±ÇÀÚÁÖOOOOOOO
ÆäÀ̽ººÏ Æ®À§ÅÍ ±¸±Û+
īī¿À½ºÅ丮
īī¿ÀÅå sms¹®ÀÚº¸³»±â
 

±âÀϳ»¿ª

°æ°ú ³¯Â¥ Àú°¨ ÃÖÀú°¡ °á°ú
Á¢¼öÀÏ 2024-11-01 °æ¸ÅÁ¢¼ö
~4ÀÏ 
2024-11-05 °æ¸Å°³½Ã°áÁ¤
~77ÀÏ 
2025-01-17 ¹è´ç¿ä±¸Á¾±âÀÏ
~347ÀÏ 
2025-10-14 100%
251,000,000
À¯Âû
~382ÀÏ 
2025-11-18 80%
200,800,000
À¯Âû
~410ÀÏ 
2025-12-16 64%
160,640,000
À¯Âû
~452ÀÏ 
2026-01-27 51%
128,512,000
ÁøÇà
¹°°Ç¸í¼¼¼­ ÇöȲÁ¶»ç¼­ ¹®°ÇÁ¢¼ö ¼Û´Þ³»¿ª

°¨Á¤Æò°¡ÇöȲ

¸ñ·Ï ÁÖ¼Ò ±¸Á¶/¿ëµµ/´ëÁö±Ç ¸éÀû ºñ°í
´ëÁö±Ç
ÇÏ¿ù°îµ¿ 90-1817 495ºÐÀÇ 11.6 11.6 §³
(3.51Æò)
°Ç¹°
ÇÏ¿ù°îµ¿ 90-1817 5Ãþ505È£ ö±ÙÄÜÅ©¸®Æ®±¸Á¶ 43.47 §³
(13.15Æò)
1) À§Ä¡/ÁØÁÖ°ÅÁö¿ª/³ë¼±¹ö½ºÁ¤·ùÀå/ö±ÙÄÜÅ©¸®Æ®±¸Á¶/Æò½º¶óºêÁöºØ/µµ½Ã°¡½º ´õº¸±â
°¨Á¤Æò°¡ ¿äÇ×Ç¥
1)À§Ä¡ ¹× ÁÖÀ§È¯°æ
º»°ÇÀº ¼­¿ïƯº°½Ã ¼ººÏ±¸ »ó¿ù°îµ¿ ¼ÒÀç "¼­¿ïµµ½Ã°úÇбâ¼ú°íµîÇб³" ³²Ãø Àαٿ¡ À§Ä¡Çϸç, ÁÖÀ§´Â ´Üµ¶ÁÖÅÃ, ´Ù¼¼´ëÁÖÅÃ, ±Ù¸°»ýȰ½Ã¼³ µîÀÌ È¥ÀçÇÏ´Â Áö¿ªÀ¸·Î¼­ Á¦¹Ý ÁÖÀ§È¯°æÀº º¸ÅëÀÓ.
2)±³Åë»óȲ
´ë»ó¹°°Ç±îÁö Â÷·®ÀÇ ÁøÃâÀÔÀÌ °¡´ÉÇϸç, Àαٿ¡ ³ë¼±¹ö½ºÁ¤·ùÀåÀÌ ¼ÒÀçÇÏ´Â ¹Ù, ´ëÁß±³Åë ÀÌ¿ëÆíÀǵµ´Â º¸ÅëÀÓ.
3)°Ç¹°ÀÇ ±¸Á¶
2019³â 05¿ù 07ÀÏÀÚ·Î »ç¿ë½ÂÀÎµÈ Ã¶±ÙÄÜÅ©¸®Æ®±¸Á¶ Æò½º¶óºêÁöºØ 9Ãþ °Ç¹° ³» 5Ãþ 505È£·Î¼­,

¿Üº® : ¼®ÀçºÙÀÓ ¸¶°¨ µî,
³»º® : -
âȣ : »õ½Ãâȣ µîÀÓ.
4)ÀÌ¿ë»óÅÂ
±âÈ£ (°¡)´Â °øºÎ»ó ¿ÀÇǽºÅÚ·Î ÀÌ¿ëÁßÀÓ.
5)¼³ºñ³»¿ª
À§»ý ¹× ±Þ¹è¼ö¼³ºñ, ³­¹æ¼³ºñ, µµ½Ã°¡½º¼³ºñ µî Á¦¹Ý½Ã¼³À» °®Ãß°í ÀÖÀ½.
6)ÅäÁöÀÇ Çü»ó ¹× ÀÌ¿ë»óÅÂ
ÀÎÁ¢Áö ¹× ÀÎÁ¢µµ·Î ´ëºñ ´ëü·Î µî°íÆòźÇÑ 3ÇÊÁö ÀÏ´ÜÀÇ ¼¼ÀåÇü ÅäÁö·Î¼­, ÁÖ°Å¿ë °ÇºÎÁö·Î ÀÌ¿ëÁßÀÓ.
7)ÀÎÁ¢ µµ·Î»óŵî
ºÏÃøÀ¸·Î ³ëÆø ¾à 5¹ÌÅÍ ³»¿ÜÀÇ Æ÷Àåµµ·Î¿¡, µ¿ÃøÀ¸·Î ³ëÆø ¾à 4¹ÌÅÍ ³»¿ÜÀÇ Æ÷Àåµµ·Î¿¡ °¢°¢ Á¢ÇÔ.
8)ÅäÁöÀÌ¿ë°èȹ ¹× Á¦ÇÑ»óÅÂ
±âÈ£ (1),(2),(3) °øÈ÷
ÁØÁÖ°ÅÁö¿ª, °¡Ãà»çÀ°Á¦Çѱ¸¿ª<°¡ÃàºÐ´¢ÀÇ °ü¸® ¹× À̿뿡 °üÇÑ ¹ý·ü>,
»ó´ëº¸È£±¸¿ª<±³À°È¯°æ º¸È£¿¡ °üÇÑ ¹ý·ü>,
´ë°ø¹æ¾îÇùÁ¶±¸¿ª(À§Å¹°íµ¿:77-257m)<±º»ç±âÁö ¹× ±º»ç½Ã¼³ º¸È£¹ý>,
°ú¹Ð¾ïÁ¦±Ç¿ª<¼öµµ±ÇÁ¤ºñ°èȹ¹ý>ÀÓ.
9)°øºÎ¿ÍÀÇ Â÷ÀÌ
-
10)±âŸÂü°í»çÇ×(ÀÓ´ë°ü·Ê ¹× ±âŸ)
ÀÓ´ë¹Ì»óÀÓ.
Âü°í
»çÇ×

* Æó¹®ºÎÀç·Î ¼ÒÀ¯ÀÚ ¹× Á¡À¯ÀÚµéÀ» ¸¸³ªÁö ¸øÇÏ¿© ³ëÅ©ÇÏ¿©µµ ÀÀ´äÀÌ ¾øÀ½. * ¾È³»¹®À» Çö°ü¹®¿¡ ²È¾ÆµÎ¾úÀ¸³ª ¾Æ¹« ¿¬¶ôÀÌ ¾ø¾î Á¡À¯ÀÚ È®ÀÎ ºÒ´ÉÀÓ.


±¹ÅäºÎ½Ç°Å·¡°¡ ¼­¿ïƯº°½Ã ¼ººÏ±¸ ÇÏ¿ù°îµ¿

¡Ü ¸Å¸Å

¸éÀû(§³), ±Ý¾×(¸¸¿ø)

¡Ü Àü¼¼

¸éÀû(§³), ±Ý¾×(¸¸¿ø)

°è¾àÀϰǹ°¸íĪÃþ¿¬¸éÀûº¸Áõ±Ý¿ù¼¼°ÇÃà
26.01.13¼ººÏ¿õÁøº£¾î½ººô819.261,000802021
26.01.09(37-89)218.781,000602013
26.01.05ÇÁ·¡ºô216.811,000602016
26.01.03ÄýÁîºô2Â÷429.9519,00002017
26.01.03ÄýÁîºô2Â÷429.9519,00002017
¢Ñ ´õº¸±â

µî±âºÎµîº» ¿ä¾à(°Ç¹°)

  Á¢¼öÀÏÀÚ µî±â¸ñÀû/±Ç¸®ÀÚ ±Ç¸®±Ý¾× ±âÁØ
1 2019³â12¿ù9ÀÏ
¼ÒÀ¯±Ç
ÀÌOO
¼Ò¸ê
2 2022³â6¿ù7ÀÏ
¾Ð·ù
±¹
¼Ò¸ê±âÁØ
3 2024³â1¿ù16ÀÏ
ÀÓÂ÷±Ç¼³Á¤
°­OO
258,300,000 ¼Ò¸ê
4 2024³â11¿ù5ÀÏ
°­Á¦°æ¸Å
ÁÖOOOO
¼Ò¸ê
5 2025³â2¿ù18ÀÏ
¾Ð·ù
±¹
¼Ò¸ê

ÀÓÂ÷ÀÎÇöȲ (¹è´ç¿ä±¸Á¾±âÀÏ: 2025-01-17)

ÀÓÂ÷ÀÎ ¿ëµµ/Á¡À¯ º¸Áõ±Ý/¿ù¼¼ ´ëÇ×·Â
ÀüÀÔÀÏ/È®Á¤ÀÏ ¹è´ç¿ä±¸ ºñ°í
°­OO Á¦5ÃþÁ¦505È£ÀüºÎ 258,300,000
O
2019.11.26.
2019.12.9./2021.11.11.
2019.12.9.
ÁÖOOOOOOO Á¦5ÃþÁ¦505È£ÀüºÎ 258,300,000
O
2019.11.26.
2019.12.9./2021.11.11.
2024.12.20. 2019.12.9.~2024.7.24.
ºñ°í
(¸Å°¢¹°°Ç
¸í¼¼¼­)
°­µµÈñ:ÁÖÅÃÀÓÂ÷±Ç µî±âÀÏÀº 2024.1.16.ÀÓ ÁÖÅõµ½Ãº¸Áõ°ø»ç:1. ÀÓÂ÷ÀÎ °­µµÈñÀÇ ÀÓÂ÷º¸Áõ±Ý¹Ýȯä±ÇÀÇ ´ëÀ§º¯Á¦ÀÚÀ̸ç ÀÌ »ç°Ç °æ¸Å½Åû ä±ÇÀÚÀÓ. 2. º¸Áõ±Ý 258,300,000¿ø Áß 12,300,000¿øÀº 2021.11.11.Áõ¾×µÇ¾úÀ¸¸ç, Áõ¾×µÈ ºÎºÐ¿¡ ´ëÇÑ È®Á¤ÀÏÀÚ´Â 2021.11.11.ÀÓ

¿©ÀÇÁÖ°æ¸Å Á¶¾ð ÇÑ ¸¶µð

¼±¼øÀ§ ÀÓÂ÷±Çµî±â°¡ µÇ¾î ÀÖ½À´Ï´Ù
´ëÇ×·ÂÀÌ ÀÖ´Â ¼±¼øÀ§ ÀÓÂ÷±Çµî±â ±Ç¸®ÀÚ°¡ ¹è´çÀ» Àü¾× ¹ÞÁö ¸øÇÒ °æ¿ì ³«ÂûÀÚ°¡ ÀÜ¿© º¸Áõ±ÝÀ» ÀμöÇØ¾ßÇÏ´Â °æ¿ìµµ ÀÖ½À´Ï´Ù.

ÁÖÀÇ»çÇ× (ÃÖ¼±¼øÀ§ ¼³Á¤ÀÏ: 2022.6.7. ¾Ð·ù ¼³Á¤)

¸Å°¢À¸·Î ¼Ò¸êµÇÁö ¾Ê´Â µî±âºÎ±Ç¸®: À»±¸ 1¹ø ÁÖÅÃÀÓÂ÷±Çµî±â(¹è´ç¿¡¼­ º¸Áõ±ÝÀÌ Àü¾× º¯Á¦µÇÁö ¾Æ´ÏÇϸé Àܾ×À» ¸Å¼öÀÎÀÌ ÀμöÇÔ)
¸Å°¢À¸·Î ¼³Á¤µÈ °ÍÀ¸·Î º¸´Â Áö»ó±Ç: ÇØ´ç»çÇ×¾øÀ½
¡Ø¹Ì³³°ü¸®ºñ(°ø¿ë) Àμö¿©ºÎ¸¦ ÀÔÂû Àü¿¡ È®ÀÎÇϽñ⠹ٶø´Ï´Ù

 

Áö¿ªºÐ¼®

ÁöÇÏö¸í Á÷¼±°Å¸®

Çб³¸í ÀüÈ­¹øÈ£ ÁÖ¼Ò Á÷¼±°Å¸®

¹ý¿ø

¼­¿ïºÏºÎÁö¹æ¹ý¿ø (013-22)¼­¿ïƯº°½Ã µµºÀ±¸ ¸¶µé·Î749 (µµºÀ2µ¿ 626)
´ëÇ¥ : 02)910-3114
°üÇÒÁö¿ª : °­ºÏ±¸, ³ë¿ø±¸, µµºÀ±¸, µ¿´ë¹®±¸, ¼ººÏ±¸, Áß¶û±¸

µî±â¼Ò ¼­¿ïºÏºÎÁö¹æ¹ý¿ø º»¿ø µî±â±¹ (´ëÇ¥:1544-0773, ÆÑ½º:(02)2030-2330, ¼­¿ïƯº°½Ã µµºÀ±¸ ³ëÇØ·Î 325 (⵿ 337¹øÁö))
¼¼¹«¼­ ¼ººÏ¼¼¹«¼­ (´ëÇ¥:02-760-820, ÆÑ½º:02-744-6160, ¼­¿ïƯº°½Ã ¼ººÏ±¸ »ï¼±±³·Î 16±æ 13)

Àαٳ«ÂûÅë°è

±â°£ ¸Å°¢°Ç¼ö Æò±Õ°¨Á¤°¡
Æò±Õ¸Å°¢°¡
¸Å°¢°¡À²
Æò±ÕÀ¯Âû¼ö
3°³¿ù 1°Ç 156,000,000¿ø
85,290,000¿ø
55%
4ȸ
6°³¿ù 5°Ç 154,000,000¿ø
101,366,273¿ø
63%
4.2ȸ
12°³¿ù 12°Ç 226,750,000¿ø
167,277,864¿ø
71%
3.6ȸ


º» °æ¸ÅÁ¤º¸´Â ¹ý¿øÀÚ·á¿Í ÀÏÄ¡Çϵµ·Ï ÇÏ¿´À¸³ª ±Ç¸®»çÇ׺¯µ¿, ÀÔ·ÂÂø¿À µîÀÇ ¿øÀÎÀ¸·Î »ç½Ç°ú ´Ù¸¦ ¼ö ÀÖ½À´Ï´Ù. ÀÌ¿ë¾à°ü¿¡ ÀǰЏéÃ¥Á¶°ÇÀ¸·Î Á¦°øµÊÀ» ¾Ë¸®¸ç, °æ¸ÅÀÔÂû½Ã ¹Ýµå½Ã °ü·Ã °øºÎ¸¦ ÀçÈ®ÀÎÇϽñ⠹ٶø´Ï´Ù. º¸´Ù Æí¸®ÇÑ °æ¸ÅÁ¤º¸ Á¦°øÀ» À§ÇØ Áö¼ÓÀûÀ¸·Î °³¼±ÇϰڽÀ´Ï´Ù. ÀÌ¿ëÇØ Áּż­ °¨»çÇÕ´Ï´Ù.