·Î±×ÀÎ
1177
¾ÆÆÄÆ®
ÀÎõÁö¹æ¹ý¿ø
 °¨Á¤°¡70,000,000 ¿ø
 ÃÖÀú°¡(34%) 24,010,000 ¿ø
 º¸Áõ±Ý(10%) 2,401,000 ¿ø
 Ã»±¸¾×64,000,000 ¿ø
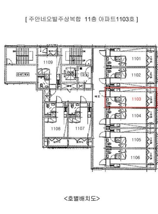
ÀÎõ±¤¿ª½Ã ¹ÌÃßȦ±¸ Á־ȼ­·Î 40, 11Ãþ¾ÆÆÄÆ®1103È£ (Á־ȵ¿,Á־ȳ׿ÀºôÁÖ»óº¹ÇÕ)
ÀÎõ±¤¿ª½Ã ¹ÌÃßȦ±¸ Á־ȵ¿ 219-4
»ç°Ç¹øÈ£ 2024Ÿ°æ532249
°æ¸ÅÁ¾·ùºÎµ¿»ê°­Á¦°æ¸Å
¸Å°¢´ë»óÅäÁö ¹× °Ç¹°Àϰý ¸Å°¢
¸Å°¢±âÀÏ    2026.03.19(¸ñ) 10:00 ÀÔÂû 20ÀÏÀü    
ÅäÁö¸éÀû4.01§³(1.21 Æò)
°Ç¹°¸éÀû17.51§³(5.30 Æò)
乫/¼ÒÀ¯ÀÚÀÌOO / ÀÌOO
ä±ÇÀÚÁÖOOOOOOO
ÆäÀ̽ººÏ Æ®À§ÅÍ ±¸±Û+
īī¿À½ºÅ丮
īī¿ÀÅå sms¹®ÀÚº¸³»±â
 

±âÀϳ»¿ª

°æ°ú ³¯Â¥ Àú°¨ ÃÖÀú°¡ °á°ú
Á¢¼öÀÏ 2024-05-16 °æ¸ÅÁ¢¼ö
~7ÀÏ 
2024-05-23 °æ¸Å°³½Ã°áÁ¤
~95ÀÏ 
2024-08-19 ¹è´ç¿ä±¸Á¾±âÀÏ
~515ÀÏ 
2025-10-13 100%
70,000,000
À¯Âû
~553ÀÏ 
2025-11-20 70%
49,000,000
º¯°æ
~553ÀÏ 
2025-11-20 100%
70,000,000
À¯Âû
~585ÀÏ 
2025-12-22 70%
49,000,000
À¯Âû
~629ÀÏ 
2026-02-04 49%
34,300,000
À¯Âû
~672ÀÏ 
2026-03-19 34%
24,010,000
ÁøÇà
¹°°Ç¸í¼¼¼­ ÇöȲÁ¶»ç¼­ ¹®°ÇÁ¢¼ö ¼Û´Þ³»¿ª

°¨Á¤Æò°¡ÇöȲ

¸ñ·Ï ÁÖ¼Ò ±¸Á¶/¿ëµµ/´ëÁö±Ç ¸éÀû ºñ°í
´ëÁö±Ç
Á־ȵ¿ 219-4 612.2ºÐÀÇ 4.0145 4.0145 §³
(1.21Æò)
°Ç¹°
Á־ȵ¿ 219-4 11Ãþ¾ÆÆÄÆ®1103È£ ö±ÙÄÜÅ©¸®Æ®±¸Á¶ 17.51 §³
(5.30Æò)
1) À§Ä¡/ÀϹݻó¾÷Áö¿ª/¹ö½ºÁ¤·ùÀå/ÁöÇÏö/ö±ÙÄÜÅ©¸®Æ®±¸Á¶ ´õº¸±â
°¨Á¤Æò°¡ ¿äÇ×Ç¥
1)À§Ä¡ ¹× ÁÖÀ§È¯°æ
´ë»ó¹°°ÇÀº ÀÎõ±¤¿ª½Ã ¹ÌÃßȦ±¸ Á־ȵ¿ ¼ÒÀç "ÁÖ¾È1µ¿ÇàÁ¤º¹Áö¼¾ÅÍ" ³²µ¿Ãø Àαٿ¡ À§Ä¡
Çϸç, ºÎ±ÙÀº ¾ÆÆÄÆ®, ´Ù¼¼´ëÁÖÅÃ, ±Ù¸°»ýȰ½Ã¼³ µîÀÌ È¥ÀçÇÏ´Â Áö¿ªÀ¸·Î¼­ Á¦¹Ý ÁÖÀ§È¯
°æÀº º¸ÅëÀÓ.
2)±³Åë»óȲ
´ë»ó¹°°Ç±îÁö Â÷·® µîÀÇ Á¢±ÙÀÌ °¡´ÉÇϸç, Àαٿ¡ ¹ö½ºÁ¤·ùÀå ¹× ÁöÇÏö 1È£¼±, ÀÎõ2È£
¼± "Á־ȿª" µîÀÌ ¼ÒÀçÇÏ¿© ´ëÁß±³Åë ÀÌ¿ëÆíÀÍÀº º¸ÅëÀÓ.
3)°Ç¹°ÀÇ ±¸Á¶
ö±ÙÄÜÅ©¸®Æ®±¸Á¶ ½½¶óºêÁöºØ 12Ãþ °Ç¹° ³» 11Ãþ ¾ÆÆÄÆ®1103È£·Î¼­,
2011³â 11¿ù 10ÀÏ »ç¿ë½ÂÀεǾúÀ¸¸ç,
¿Ü º® : ¼®Àç ºÙÀÓ ¹× µå¶óÀ̺ñÆ® ¸¶°¨ µî,
³» º® : º®Áöµµ¹è ¹× ÀϺΠŸÀϸ¶°¨ µî,
â È£ : ¼¦½Ãâ µîÀÓ.
4)ÀÌ¿ë»óÅÂ
´ë»ó¹°°ÇÀº ¿ø·ëÇü¾ÆÆÄÆ®·Î ÀÌ¿ëÁßÀÓ.
(ÈÄ÷ "³»ºÎ±¸Á¶µµ" ÂüÁ¶)
5)¼³ºñ³»¿ª
±Þ¡¤¹è¼ö½Ã¼³, À§»ý¼³ºñ, ³­¹æ¼³ºñ, ½Â°­±â µîÀ» °®Ãß¾úÀ½.
6)ÅäÁöÀÇ Çü»ó ¹× ÀÌ¿ë»óÅÂ
´ëü·Î ÀÎÁ¢ ÇÊÁö¿Í µî°íÆòźÇÑ ¼¼ÀåÇüÀÇ ÅäÁö·Î¼­, °øµ¿ÁÖÅà ºÎÁö·Î ÀÌ¿ëÁßÀÓ
7)ÀÎÁ¢ µµ·Î»óŵî
´ë»ó¹°°Ç ¼­ÃøÀ¸·Î ³ëÆø ¾à 15m ³»¿ÜÀÇ Æ÷Àåµµ·Î¿Í Á¢Çϸç, µµ·Î»óÅ º¸ÅëÀÓ.
8)ÅäÁöÀÌ¿ë°èȹ ¹× Á¦ÇÑ»óÅÂ
ÀϹݻó¾÷Áö¿ª(2022-06-13), ¹æÈ­Áö±¸(2020-03-30), °¡Ãà»çÀ°Á¦Çѱ¸¿ª(ÀÎõ±¤¿ª½Ã ¹ÌÃßȦ
±¸ °¡Ãà»çÀ°Á¦ÇÑ¿¡ °üÇÑ Á¶·Ê[2018. 7. 1.])<°¡ÃàºÐ´¢ÀÇ °ü¸® ¹× À̿뿡 °üÇÑ ¹ý·ü>, °ú
¹Ð¾ïÁ¦±Ç¿ª<¼öµµ±ÇÁ¤ºñ°èȹ¹ý>, öµµº¸È£Áö±¸(2016-07-30)(½Ã öµµ°ú-552)<öµµ¾ÈÀü¹ý>.
9)°øºÎ¿ÍÀÇ Â÷ÀÌ
¾ø À½.
10)±âŸÂü°í»çÇ×(ÀÓ´ë°ü·Ê ¹× ±âŸ)
ÀÓ´ë°ü°è´Â ¹Ì»óÀÓ.
Âü°í
»çÇ×
-º»°Ç ÃâÀÔ¹®¿¡ '°ü¸®ºñµ¶ÃËÀå, °ü¸®ºñ¹Ì³³À¸·Î ÀÎÇÑ ´Ü¼ö,´ÜÀüÅ뺸' ¾È³»¹®ÀÌ ºÎÂøµÇ¾î ÀÖÀ½
- º»°Ç ºÎµ¿»ê ¼¼´ëÃâÀÔ¹®¿¡´Â `°ü¸®ºñµ¶ÃËÀå, °ü

°ÇÃ๰ÇöȲ

¼ÒÀçÁö ÀÎõ±¤¿ª½Ã ¹ÌÃßȦ±¸ Á־ȵ¿ 219-4¹øÁö
´ëÁö¸éÀû 612.2§³
(185.52Æò)
¿¬¸éÀû 4575.24§³
(1386.44Æò)
°ÇÃà¸éÀû 489§³
(148.18Æò)
¿ëÀû·ü»êÁ¤
¿¬¸éÀû
4184.58§³
(1268.05Æò)
°ÇÆóÀ² 79.88% ¿ëÀû·ü 683.53%
Áö»óÃþ¼ö 12Ãþ ÁöÇÏÃþ¼ö 2Ãþ
ÁÖ¿ëµµ °øµ¿ÁÖÅà ±¸Á¶ ö±ÙÄÜÅ©¸®Æ®±¸Á¶
Âø°øÀÏÀÚ 2010.06.30 »ç¿ë½ÂÀÎÀÏÀÚ 2011.11.10
°ÇÃ๰Ãþº°ÇöȲ [º¸±â]


±¹ÅäºÎ½Ç°Å·¡°¡ ÀÎõ±¤¿ª½Ã ¹ÌÃßȦ±¸ Á־ȵ¿

¡Ü ¸Å¸Å

¸éÀû(§³), ±Ý¾×(¸¸¿ø)

¡Ü Àü¼¼

¸éÀû(§³), ±Ý¾×(¸¸¿ø)

°è¾àÀÏARTÃþÀü¿ëº¸Áõ±Ý¿ù¼¼°ÇÃà
25.06.02³×¿Àºô3Â÷1017.49300322011
25.05.30³×¿Àºô3Â÷717.49300352011
25.05.27³×¿Àºô3Â÷717.5150252011
25.03.24³×¿Àºô3Â÷1017.49300322011
25.02.12³×¿Àºô3Â÷917.49100252011

µî±âºÎµîº» ¿ä¾à(°Ç¹°)

  Á¢¼öÀÏÀÚ µî±â¸ñÀû/±Ç¸®ÀÚ ±Ç¸®±Ý¾× ±âÁØ
1 2022³â1¿ù24ÀÏ
¼ÒÀ¯±Ç
ÀÌOO
¼Ò¸ê
2 2022³â2¿ù15ÀÏ
±ÙÀú´ç±Ç
(OOOO
5,000,000,000 ¼Ò¸ê±âÁØ
3 2023³â2¿ù2ÀÏ
°¡¾Ð·ù
ÁÖOOOO
937,000,000 ¼Ò¸ê
4 2023³â3¿ù27ÀÏ
ÀÓÂ÷±Ç¼³Á¤
¹èOO
64,000,000 ¼Ò¸ê
5 2023³â4¿ù25ÀÏ
¾Ð·ù
±¹
¼Ò¸ê
6 2024³â5¿ù23ÀÏ
°­Á¦°æ¸Å
ÁÖOOOO
¼Ò¸ê

ÀÓÂ÷ÀÎÇöȲ (¹è´ç¿ä±¸Á¾±âÀÏ: 2024-08-19)

ÀÓÂ÷ÀÎ ¿ëµµ/Á¡À¯ º¸Áõ±Ý/¿ù¼¼ ´ëÇ×·Â
ÀüÀÔÀÏ/È®Á¤ÀÏ ¹è´ç¿ä±¸ ºñ°í
¹èOO ÀüºÎ 64,000,000
O
2021.12.29.
2021.12.10.
2021.12.29.
ÁÖOOOOOOOOOOOOOOOO ÀüºÎ 64,000,000
O
2021.12.29.
2021.12.10.
2024.7.30. 2021.12.29.~2023.12.28.
ºñ°í
(¸Å°¢¹°°Ç
¸í¼¼¼­)
¹è¼±¾Æ : ÁÖÅÃÀÓÂ÷±Çµî±â±Ç¸®Àڷμ­ ÁÖÅÃÀÓÂ÷±Çµî±âÀÏÀº 2023.3.27.ÀÓ ÁÖÅõµ½Ãº¸Áõ°ø»ç(ÀÓÂ÷ÀÎ:¹è¼±¾Æ) : ÀÓÂ÷ÀÎ ¹è¼±¾ÆÀÇ ÀÓÂ÷º¸Áõ±Ý¹Ýȯä±Ç ¾ç¼öÀÎÀ¸·Î¼­, º¸Áõ±Ý Àü¾×À» ¹è´ç¹ÞÁö ¸øÇÏ´õ¶óµµ

¿©ÀÇÁÖ°æ¸Å Á¶¾ð ÇÑ ¸¶µð

¼±¼øÀ§ ÀÓÂ÷±Çµî±â°¡ µÇ¾î ÀÖ½À´Ï´Ù
´ëÇ×·ÂÀÌ ÀÖ´Â ¼±¼øÀ§ ÀÓÂ÷±Çµî±â ±Ç¸®ÀÚ°¡ ¹è´çÀ» Àü¾× ¹ÞÁö ¸øÇÒ °æ¿ì ³«ÂûÀÚ°¡ ÀÜ¿© º¸Áõ±ÝÀ» ÀμöÇØ¾ßÇÏ´Â °æ¿ìµµ ÀÖ½À´Ï´Ù.

ÁÖÀÇ»çÇ× (ÃÖ¼±¼øÀ§ ¼³Á¤ÀÏ: 2022.02.15. ±ÙÀú´ç±Ç ¼³Á¤)

¸Å°¢À¸·Î ¼Ò¸êµÇÁö ¾Ê´Â µî±âºÎ±Ç¸®: À»±¸ ¼øÀ§ 2¹ø ÁÖÅÃÀÓÂ÷±Çµî±â(´Ù¸¸, ÁÖÅõµ½Ãº¸Áõ°ø»çÀÇ ¸»¼Òµ¿ÀÇ È®¾à¼­°¡ Á¦Ãâ µÊ)
¸Å°¢À¸·Î ¼³Á¤µÈ °ÍÀ¸·Î º¸´Â Áö»ó±Ç:
-º»°Ç ÃâÀÔ¹®¿¡ '°ü¸®ºñµ¶ÃËÀå, °ü¸®ºñ¹Ì³³À¸·Î ÀÎÇÑ ´Ü¼ö,´ÜÀüÅ뺸' ¾È³»¹®ÀÌ ºÎÂøµÇ¾î ÀÖÀ½
¡Ø¹Ì³³°ü¸®ºñ(°ø¿ë) Àμö¿©ºÎ¸¦ ÀÔÂû Àü¿¡ È®ÀÎÇϽñ⠹ٶø´Ï´Ù

 

Áö¿ªºÐ¼®

ÁöÇÏö¸í Á÷¼±°Å¸®

Çб³¸í ÀüÈ­¹øÈ£ ÁÖ¼Ò Á÷¼±°Å¸®

¹ý¿ø

ÀÎõÁö¹æ¹ý¿ø (222-20)ÀÎõ±¤¿ª½Ã ¹ÌÃßȦ±¸ ¼Ò¼º·Î 163¹ø±æ 17(ÇÐÀ͵¿)
´ëÇ¥ : 032)860-1113~4
°üÇÒÁö¿ª : Áß±¸, µ¿±¸, ³²±¸, ¿¬¼ö±¸, ³²µ¿±¸, ºÎÆò±¸, °è¾ç±¸, ¼­±¸, ¿ËÁø±º, °­È­±º

µî±â¼Ò ÀÎõÁö¹æ¹ý¿ø º»¿ø µî±â±¹ (´ëÇ¥:1544-0773, ÆÑ½º:(032)620-9099, ÀÎõ±¤¿ª½Ã ¹ÌÃßȦ±¸ °æ¿ø´ë·Î 881(Á־ȵ¿ 983))
¼¼¹«¼­ ÀÎõ¼¼¹«¼­ (´ëÇ¥:032-770-02, ÆÑ½º:032-777-8104, ÀÎõ±¤¿ª½Ã µ¿±¸ ¿ì°¢·Î 75 (⿵µ¿))

Àαٳ«ÂûÅë°è

±â°£ ¸Å°¢°Ç¼ö Æò±Õ°¨Á¤°¡
Æò±Õ¸Å°¢°¡
¸Å°¢°¡À²
Æò±ÕÀ¯Âû¼ö
3°³¿ù 137°Ç 237,058,394¿ø
149,088,199¿ø
62%
2.3ȸ
6°³¿ù 288°Ç 238,392,361¿ø
151,623,708¿ø
62%
2.3ȸ
12°³¿ù 563°Ç 235,820,604¿ø
146,764,284¿ø
62%
2.2ȸ


º» °æ¸ÅÁ¤º¸´Â ¹ý¿øÀÚ·á¿Í ÀÏÄ¡Çϵµ·Ï ÇÏ¿´À¸³ª ±Ç¸®»çÇ׺¯µ¿, ÀÔ·ÂÂø¿À µîÀÇ ¿øÀÎÀ¸·Î »ç½Ç°ú ´Ù¸¦ ¼ö ÀÖ½À´Ï´Ù. ÀÌ¿ë¾à°ü¿¡ ÀǰЏéÃ¥Á¶°ÇÀ¸·Î Á¦°øµÊÀ» ¾Ë¸®¸ç, °æ¸ÅÀÔÂû½Ã ¹Ýµå½Ã °ü·Ã °øºÎ¸¦ ÀçÈ®ÀÎÇϽñ⠹ٶø´Ï´Ù. º¸´Ù Æí¸®ÇÑ °æ¸ÅÁ¤º¸ Á¦°øÀ» À§ÇØ Áö¼ÓÀûÀ¸·Î °³¼±ÇϰڽÀ´Ï´Ù. ÀÌ¿ëÇØ Áּż­ °¨»çÇÕ´Ï´Ù.