·Î±×ÀÎ
1351
±Ù¸°»ó°¡
ÃáõÁö¹æ¹ý¿ø ¿øÁÖÁö¿ø
 °¨Á¤°¡1,692,176,720 ¿ø
 ÃÖÀú°¡(34%) 580,417,000 ¿ø
 º¸Áõ±Ý(20%) 116,083,400 ¿ø
 Ã»±¸¾×1,287,484,840 ¿ø
°­¿øÆ¯º°ÀÚÄ¡µµ ¿øÁֽà ³²¿ø·Î 528-31, 7Ãþ701È£ (´Ü±¸µ¿,½Å¼¼°èÇÁ¶óÀÚ)
°­¿øÆ¯º°ÀÚÄ¡µµ ¿øÁֽà ´Ü±¸µ¿ 1514-3
»ç°Ç¹øÈ£ 2024Ÿ°æ2939 ¹°°Ç¹øÈ£
°æ¸ÅÁ¾·ùºÎµ¿»êÀÓÀǰæ¸Å
¸Å°¢´ë»óÅäÁö ¹× °Ç¹°Àϰý ¸Å°¢
¸Å°¢±âÀÏ    2026.04.06(¿ù) 10:00 (¿À´Ã ÀÔÂû)    
ÅäÁö¸éÀû133.45§³(40.37 Æò)
°Ç¹°¸éÀû692.38§³(209.44 Æò)
乫/¼ÒÀ¯ÀÚ¼­OO / Á¶OO¿Ü 1¸í
ä±ÇÀÚÄÉOOOOOOOOOOOOOO OOOO(OOO OOOO)
ÆäÀ̽ººÏ Æ®À§ÅÍ ±¸±Û+
īī¿À½ºÅ丮
īī¿ÀÅå sms¹®ÀÚº¸³»±â
 

±âÀϳ»¿ª

°æ°ú ³¯Â¥ Àú°¨ ÃÖÀú°¡ °á°ú
Á¢¼öÀÏ 2024-09-20 °æ¸ÅÁ¢¼ö
~26ÀÏ 
2024-10-16 °æ¸Å°³½Ã°áÁ¤
~123ÀÏ 
2025-01-21 ¹è´ç¿ä±¸Á¾±âÀÏ
~388ÀÏ 
2025-10-13 100%
1,692,176,720
À¯Âû
~416ÀÏ 
2025-11-10 70%
1,184,524,000
À¯Âû
~444ÀÏ 
2025-12-08 49%
829,167,000
À¯Âû
~486ÀÏ 
2026-01-19 34%
580,417,000
¸Å°¢
³«Âû°¡ 598,741,700 (35%)
~532ÀÏ 
2026-03-06 ¹Ì³³
~563ÀÏ 
2026-04-06 34%
580,417,000
ÁøÇà
¹°°Ç¸í¼¼¼­ ÇöȲÁ¶»ç¼­ ¹®°ÇÁ¢¼ö ¼Û´Þ³»¿ª

°¨Á¤Æò°¡ÇöȲ

¸ñ·Ï ÁÖ¼Ò ±¸Á¶/¿ëµµ/´ëÁö±Ç ¸éÀû ºñ°í
´ëÁö±Ç
´Ü±¸µ¿ 1514-3 1090.4ºÐÀÇ 133.45 133.45 §³
(40.37Æò)
°Ç¹°
´Ü±¸µ¿ 1514-3 7Ãþ701È£ ö±ÙÄÜÅ©¸®Æ®±¸Á¶ 692.38 §³
(209.44Æò)
1) À§Ä¡/ÁØÁÖ°ÅÁö¿ª/Á¦1Á¾Áö±¸´ÜÀ§°èȹ±¸¿ª/Â÷·®Á¢±ÙÀÌ °¡´É/ö±ÙÄÜÅ©¸®Æ®Á¶ ´õº¸±â
°¨Á¤Æò°¡ ¿äÇ×Ç¥
1)À§Ä¡ ¹× ÁÖÀ§È¯°æ
°­¿øµµ ¿øÁֽà ´Ü±¸µ¿ ¼ÒÀç "°­¿øÁö¹æ¿ìÁ¤Ã»" ºÏ¼­Ãø Àαٿ¡ À§Ä¡Çϸç ÁÖÀ§´Â »ó°¡´ÜÁö
¹× ¾ÆÆÄÆ®´ÜÁö·Î ȯ°æÀº º¸ÅëÀÓ.
2)±³Åë»óȲ
Â÷·®Á¢±ÙÀÌ °¡´ÉÇÏ¸ç ´ëÁß±³ÅëÀº º¸ÅëÀÓ.

3)°Ç¹°ÀÇ ±¸Á¶
ö±ÙÄÜÅ©¸®Æ®Á¶ (ö±Ù)ÄÜÅ©¸®Æ®ÁöºØ 10Ãþ °Ç¹°·Î¼­,
¿Üº® : È­°­¼® ºÙÀÓ ¹× ÀϺΠµå¶óÀ̺ñÆ® ¸¶°¨
³»º® : ÆäÀÎÆ®
âȣ : ¾Ë·ç¹Ì´½ »þ½Ã Æä¾î±Û·¡½º âȣ.
4)ÀÌ¿ë»óÅÂ
°ø½Ç »óÅÂÀÓ.
5)¼³ºñ³»¿ª
À§»ý¼³ºñ, ±Þ¹è¼ö¼³ºñ, ½Â°­±â½Ã¼³, ¼ÒÈ­Àü¼³ºñ, ÁöÇÏÁÖÂ÷½Ã¼³ µî.
6)ÅäÁöÀÇ Çü»ó ¹× ÀÌ¿ë»óÅÂ
2ÇÊ ÀÏ´ÜÀÇ À广Çü ÆòÁö·Î ±Ù¸°»ýȰ½Ã¼³ °ÇºÎÁö·Î ÀÌ¿ë Áß.
7)ÀÎÁ¢ µµ·Î»óŵî
ºÏµ¿ÃøÀ¸·Î Æø ¾à 10M, ³²¼­ÃøÀ¸·Î Æø ¾à 12MÀÇ Æ÷Àåµµ·Î¿¡ Á¢ÇÔ.
8)ÅäÁöÀÌ¿ë°èȹ ¹× Á¦ÇÑ»óÅÂ
ÁØÁÖ°ÅÁö¿ª , Á¦1Á¾Áö±¸´ÜÀ§°èȹ±¸¿ª(ÁØÁÖ°Å¿ëÁö) , Áö±¸´ÜÀ§°èȹ±¸¿ª(±¸°îÁö±¸) ,
´Ü±¸µ¿ 1514-3 : ¼Ò·Î1·ù(Æø 10m-12m)(Á¢ÇÕ),
´Ü±¸µ¿ 1514-6 : Áß·Î3·ù(Æø 12m-15m)(Á¢ÇÕ),
°¡Ãà»çÀ°Á¦Çѱ¸¿ª(ÀüºÎÁ¦ÇÑ ¸ðµçÃàÁ¾Á¦ÇÑ)<°¡ÃàºÐ´¢ÀÇ °ü¸® ¹× À̿뿡 °üÇÑ ¹ý·ü>.
9)°øºÎ¿ÍÀÇ Â÷ÀÌ
ÇØ´ç»çÇ×¾øÀ½.
10)±âŸÂü°í»çÇ×(ÀÓ´ë°ü·Ê ¹× ±âŸ)
-
Âü°í
»çÇ×
- ¸Å¼ö½Åûº¸Áõ±ÝÀº ÃÖÀú¸Å°¢°¡°ÝÀÇ 20%

°ÇÃ๰ÇöȲ

¼ÒÀçÁö °­¿øÆ¯º°ÀÚÄ¡µµ ¿øÁֽà ´Ü±¸µ¿ 1514-3¹øÁö
´ëÁö¸éÀû 1090.4§³
(330.42Æò)
¿¬¸éÀû 8547.14§³
(2590.04Æò)
°ÇÃà¸éÀû 762.74§³
(231.13Æò)
¿ëÀû·ü»êÁ¤
¿¬¸éÀû
6693.9§³
(2028.45Æò)
°ÇÆóÀ² 69.95% ¿ëÀû·ü 613.89%
Áö»óÃþ¼ö 10Ãþ ÁöÇÏÃþ¼ö 2Ãþ
ÁÖ¿ëµµ ³ëÀ¯Àڽü³ ±¸Á¶ ö±ÙÄÜÅ©¸®Æ®±¸Á¶
Âø°øÀÏÀÚ 2006.11.27 »ç¿ë½ÂÀÎÀÏÀÚ 2007.12.11
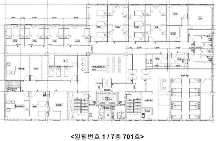
°ÇÃ๰Ãþº°ÇöȲ [º¸±â]


µî±âºÎµîº» ¿ä¾à(°Ç¹°)

  Á¢¼öÀÏÀÚ µî±â¸ñÀû/±Ç¸®ÀÚ ±Ç¸®±Ý¾× ±âÁØ
1 2011³â5¿ù9ÀÏ
¼ÒÀ¯±Ç
Á¶OO
¼Ò¸ê
2 2017³â11¿ù15ÀÏ
¼ÒÀ¯±Ç
¼­OO
¼Ò¸ê
3 2017³â4¿ù28ÀÏ
¼ÒÀ¯±Ç
¼­OO
¼Ò¸ê
4 2010³â4¿ù15ÀÏ
±ÙÀú´ç±Ç
¼öOOOO
1,500,720,000 ¼Ò¸ê±âÁØ
5 2024³â9¿ù30ÀÏ
°¡¾Ð·ù
°­OOOO
32,750,000 ¼Ò¸ê
6 2024³â10¿ù8ÀÏ
¾Ð·ù
¿øOO
¼Ò¸ê
7 2024³â10¿ù8ÀÏ
¾Ð·ù
¿øOO
¼Ò¸ê
8 2024³â10¿ù16ÀÏ
ÀÓÀǰæ¸Å
¼öOOOO
¼Ò¸ê
9 2024³â11¿ù4ÀÏ
°¡¾Ð·ù
ȕOOOO
20,744,690 ¼Ò¸ê
10 2024³â11¿ù18ÀÏ
¾Ð·ù
±¹
¼Ò¸ê
11 2025³â3¿ù14ÀÏ
¾Ð·ù
±¹
¼Ò¸ê

ÀÓÂ÷ÀÎÇöȲ (¹è´ç¿ä±¸Á¾±âÀÏ: 2025-01-21)


Á¶»çµÈ ÀÓÂ÷³»¿ªÀÌ ¾ø½À´Ï´Ù


¿©ÀÇÁÖ°æ¸Å Á¶¾ð ÇÑ ¸¶µð


ÁÖÀÇ»çÇ× (ÃÖ¼±¼øÀ§ ¼³Á¤ÀÏ: 2010. 4. 15. ±ÙÀú´ç±Ç ¼³Á¤)

¸Å°¢À¸·Î ¼Ò¸êµÇÁö ¾Ê´Â µî±âºÎ±Ç¸®:
¸Å°¢À¸·Î ¼³Á¤µÈ °ÍÀ¸·Î º¸´Â Áö»ó±Ç:
- ¸Å¼ö½Åûº¸Áõ±ÝÀº ÃÖÀú¸Å°¢°¡°ÝÀÇ 20%
¡Ø¹Ì³³°ü¸®ºñ(°ø¿ë) Àμö¿©ºÎ¸¦ ÀÔÂû Àü¿¡ È®ÀÎÇϽñ⠹ٶø´Ï´Ù

 

Áö¿ªºÐ¼®

ÁöÇÏö¸í Á÷¼±°Å¸®

Çб³¸í ÀüÈ­¹øÈ£ ÁÖ¼Ò Á÷¼±°Å¸®

¹ý¿ø

ÃáõÁö¹æ¹ý¿ø ¿øÁÖÁö¿ø (264-78)°­¿øµµ ¿øÁֽà ½Ãû·Î149 (¹«½Çµ¿)
´ëÇ¥ : 033)738-1000, ¾ß°£ : 033)738-1199
°üÇÒÁö¿ª : ¿øÁÖ½Ã, Ⱦ¼º±º

µî±â¼Ò ÃáõÁö¹æ¹ý¿ø ¿øÁÖÁö¿ø µî±â°ú (´ëÇ¥:1544-0773, ÆÑ½º:(033)743-5611, °­¿øµµ ¿øÁֽà ½Ãû·Î 149 (¹«½Çµ¿ 1800))
¼¼¹«¼­ ¼¼¹«¼­ (´ëÇ¥:, ÆÑ½º:, )

Àαٳ«ÂûÅë°è

±â°£ ¸Å°¢°Ç¼ö Æò±Õ°¨Á¤°¡
Æò±Õ¸Å°¢°¡
¸Å°¢°¡À²
Æò±ÕÀ¯Âû¼ö
3°³¿ù 9°Ç 1,658,339,769¿ø
559,175,778¿ø
26%
4.6ȸ
6°³¿ù 11°Ç 1,634,915,672¿ø
537,689,273¿ø
26%
4.5ȸ
12°³¿ù 21°Ç 1,594,149,933¿ø
628,449,857¿ø
31%
4.1ȸ


º» °æ¸ÅÁ¤º¸´Â ¹ý¿øÀÚ·á¿Í ÀÏÄ¡Çϵµ·Ï ÇÏ¿´À¸³ª ±Ç¸®»çÇ׺¯µ¿, ÀÔ·ÂÂø¿À µîÀÇ ¿øÀÎÀ¸·Î »ç½Ç°ú ´Ù¸¦ ¼ö ÀÖ½À´Ï´Ù. ÀÌ¿ë¾à°ü¿¡ ÀǰЏéÃ¥Á¶°ÇÀ¸·Î Á¦°øµÊÀ» ¾Ë¸®¸ç, °æ¸ÅÀÔÂû½Ã ¹Ýµå½Ã °ü·Ã °øºÎ¸¦ ÀçÈ®ÀÎÇϽñ⠹ٶø´Ï´Ù. º¸´Ù Æí¸®ÇÑ °æ¸ÅÁ¤º¸ Á¦°øÀ» À§ÇØ Áö¼ÓÀûÀ¸·Î °³¼±ÇϰڽÀ´Ï´Ù. ÀÌ¿ëÇØ Áּż­ °¨»çÇÕ´Ï´Ù.