·Î±×ÀÎ
335
µµ½ÃÇü»ýȰÁÖÅÃ
¿ï»êÁö¹æ¹ý¿ø
 °¨Á¤°¡117,000,000 ¿ø
 ÃÖÀú°¡(49%) 57,330,000 ¿ø
 º¸Áõ±Ý(10%) 5,733,000 ¿ø
 Ã»±¸¾×249,132,523 ¿ø
°æ»ó³²µµ ¾ç»ê½Ã »óºÏ¸é ¹Îµî´ë±æ 32, 6Ãþ604È£
°æ»ó³²µµ ¾ç»ê½Ã »óºÏ¸é ´ë¼®¸® 821-14
»ç°Ç¹øÈ£ 2024Ÿ°æ118452 ¹°°Ç¹øÈ£
°æ¸ÅÁ¾·ùºÎµ¿»êÀÓÀǰæ¸Å
¸Å°¢´ë»óÅäÁö ¹× °Ç¹°Àϰý ¸Å°¢
¸Å°¢±âÀÏ    2025.12.18(¸ñ) 10:00 ÀÔÂû 41ÀÏÀü    
ÅäÁö¸éÀû14.61§³(4.42 Æò)
°Ç¹°¸éÀû36.85§³(11.15 Æò)
乫/¼ÒÀ¯ÀÚ¼­OO / ¼­OO
ä±ÇÀÚ¿ïOOOOOOOOO
ÆäÀ̽ººÏ Æ®À§ÅÍ ±¸±Û+
īī¿À½ºÅ丮
īī¿ÀÅå sms¹®ÀÚº¸³»±â
 

±âÀϳ»¿ª

°æ°ú ³¯Â¥ Àú°¨ ÃÖÀú°¡ °á°ú
Á¢¼öÀÏ 2024-11-05 °æ¸ÅÁ¢¼ö
~1ÀÏ 
2024-11-06 °æ¸Å°³½Ã°áÁ¤
~367ÀÏ 
¹è´ç¿ä±¸Á¾±âÀÏ
~331ÀÏ 
2025-10-02 100%
117,000,000
À¯Âû
~366ÀÏ 
2025-11-06 70%
81,900,000
À¯Âû
~408ÀÏ 
2025-12-18 49%
57,330,000
ÁøÇà
¹°°Ç¸í¼¼¼­ ÇöȲÁ¶»ç¼­ ¹®°ÇÁ¢¼ö ¼Û´Þ³»¿ª

°¨Á¤Æò°¡ÇöȲ

¸ñ·Ï ÁÖ¼Ò ±¸Á¶/¿ëµµ/´ëÁö±Ç ¸éÀû ºñ°í
´ëÁö±Ç
´ë¼®¸® 821-14 720ºÐÀÇ 14.613 14.613 §³
(4.42Æò)
°Ç¹°
´ë¼®¸® 821-14 6Ãþ604È£ ö±ÙÄÜÅ©¸®Æ®±¸Á¶ 36.8487 §³
(11.15Æò)
1) À§Ä¡/ÀϹݻó¾÷Áö¿ª/Â÷·®Á¢±ÙÀÌ °¡´É/ö±ÙÄÜÅ©¸®Æ®±¸Á¶ ´õº¸±â
°¨Á¤Æò°¡ ¿äÇ×Ç¥
1)À§Ä¡ ¹× ÁÖÀ§È¯°æ
°æ»ó³²µµ ¾ç»ê½Ã »óºÏ¸é ´ë¼®¸® ¼ÒÀç <°ø¾Ï»ï°Å¸®> ³²µ¿Ãø Àαٿ¡ À§Ä¡Çϸç ÁÖÀ§´Â °øµ¿ÁÖÅÃ
, °øÀå¿ëÁö, ³ëº¯ ±Ù¸°»ýȰ½Ã¼³, ÁÖ»ó¿ë °Ç¹° ¹× ´Üµ¶ÁÖÅà µîÀ¸·Î Çü¼ºµÇ¾î ÀÖ½À´Ï´Ù.
2)±³Åë»óȲ
º»°Ç±îÁö Â÷·®Á¢±ÙÀÌ °¡´ÉÇϰí ÀϹÝÀûÀÎ ±³Åë»çÁ¤Àº º¸ÅëÀÔ´Ï´Ù.
3)°Ç¹°ÀÇ ±¸Á¶
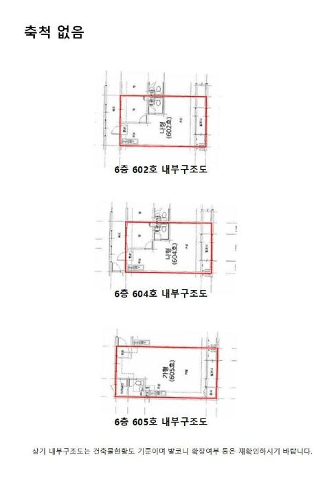
ö±ÙÄÜÅ©¸®Æ®±¸Á¶ (ö±Ù)ÄÜÅ©¸®Æ®ÁöºØ ÁöÇÏ1Ãþ, Áö»ó9Ãþ °Ç¹° Áß 6Ãþ 602È£, 6Ãþ 604È£ ¹×
6Ãþ 605È£·Î¼­,

¿Üº® : ÀϺΠġÀå¼® ºÙÀÓ ¹× ½ºÅæÄÚÆ® ¸¶°¨ µî
³»º® : º®Áö ¹× ŸÀÏ µî
âȣ : »þ½Ãâȣ µî
4)ÀÌ¿ë»óÅÂ
º»°Ç (1-3) °øÈ÷ µµ½ÃÇü»ýȰÁÖÅÃÀ¸·Î ÀÌ¿ëÁßÀÔ´Ï´Ù.
5)¼³ºñ³»¿ª
À§»ý ¹× ±Þ¹è¼ö¼³ºñ, ½Â°­±â, ¼ÒÈ­Àü ¹× °¡½º°ø±Þ¼³ºñ µîÀÌ µÇ¾î ÀÖ½À´Ï´Ù.
6)ÅäÁöÀÇ Çü»ó ¹× ÀÌ¿ë»óÅÂ
ÀÚ·çÇüÀÇ ÅäÁö·Î¼­ ¾÷¹«½Ã¼³(¿ÀÇǽºÅÚ) ¹× µµ½ÃÇü»ýȰÁÖÅÃÀÇ ºÎÁö·Î ÀÌ¿ëÁßÀÔ´Ï´Ù.
7)ÀÎÁ¢ µµ·Î»óŵî
ºÏÃøÀ¸·Î Æø ¾à 4¹ÌÅÍ ³»¿ÜÀÇ µµ·Î¿¡ Á¢ÇÕ´Ï´Ù.
8)ÅäÁöÀÌ¿ë°èȹ ¹× Á¦ÇÑ»óÅÂ
ÀϹݻó¾÷Áö¿ª, °¡Ãà»çÀ°Á¦Çѱ¸¿ª(¸ðµçÃàÁ¾ Á¦ÇÑÁö¿ª)<°¡ÃàºÐ´¢ÀÇ °ü¸® ¹× À̿뿡 °üÇÑ ¹ý·ü>
, »ó´ëº¸È£±¸¿ª<±³À°È¯°æ º¸È£¿¡ °üÇÑ ¹ý·ü>
9)°øºÎ¿ÍÀÇ Â÷ÀÌ
¾ø½À´Ï´Ù.
10)±âŸÂü°í»çÇ×(ÀÓ´ë°ü·Ê ¹× ±âŸ)
ÀÓ´ë°ü°è ¹Ì»óÀÌ¸ç º»°ÇÀÌ ¼ÓÇÑ °Ç¹°¿Üº®¿¡ À̶õ Ç¥½Ã°¡ µÇ¾î ÀÖ½À´Ï´Ù.
Âü°í
»çÇ×
1. º»°Ç °Ç¹°¿Üº®¿¡ 'J¾ÆÆ®ÇϿ콺ºô' À̶õ Ç¥½Ã°¡ ÀÖÀ½.
º»°Ç ºÎµ¿»êÀº ¾ç»ê »óºÏ¸é ´ë¼®¸® ¼ÒÀç ¾ç»ê´ë¼®ÈÞ¸Õ½Ã¾Æ¾ÆÆÄÆ® µ¿Ãø ÀαÙÇÑ `J¾ÆÆ®ÇϿ콺ºô` 602È£, 604È£, 605È£ÀÓ.

°ÇÃ๰ÇöȲ

¼ÒÀçÁö °æ»ó³²µµ ¾ç»ê½Ã »óºÏ¸é ´ë¼®¸® 821-14¹øÁö
´ëÁö¸éÀû 720§³
(218.18Æò)
¿¬¸éÀû 2887.79§³
(875.09Æò)
°ÇÃà¸éÀû 500.7§³
(151.73Æò)
¿ëÀû·ü»êÁ¤
¿¬¸éÀû
2720.83§³
(824.49Æò)
°ÇÆóÀ² 69.54% ¿ëÀû·ü 377.89%
Áö»óÃþ¼ö 9Ãþ ÁöÇÏÃþ¼ö 1Ãþ
ÁÖ¿ëµµ °øµ¿ÁÖÅà ±¸Á¶ ö±ÙÄÜÅ©¸®Æ®±¸Á¶
Âø°øÀÏÀÚ 2013.07.16 »ç¿ë½ÂÀÎÀÏÀÚ 2016.01.12
°ÇÃ๰Ãþº°ÇöȲ [º¸±â]


µî±âºÎµîº» ¿ä¾à(°Ç¹°)

  Á¢¼öÀÏÀÚ µî±â¸ñÀû/±Ç¸®ÀÚ ±Ç¸®±Ý¾× ±âÁØ
1 2016³â12¿ù27ÀÏ
¼ÒÀ¯±Ç
¼­OO
¼Ò¸ê
2 2016³â12¿ù27ÀÏ
±ÙÀú´ç±Ç
¿ïOOOO
89,284,000 ¼Ò¸ê±âÁØ
3 2017³â2¿ù10ÀÏ
±ÙÀú´ç±Ç
±èOO
12,000,000 ¼Ò¸ê
4 2024³â11¿ù6ÀÏ
ÀÓÀǰæ¸Å
¿ïOOOO
¼Ò¸ê

ÀÓÂ÷ÀÎÇöȲ (¹è´ç¿ä±¸Á¾±âÀÏ: )


Á¶»çµÈ ÀÓÂ÷³»¿ªÀÌ ¾ø½À´Ï´Ù


¿©ÀÇÁÖ°æ¸Å Á¶¾ð ÇÑ ¸¶µð


ÁÖÀÇ»çÇ× (ÃÖ¼±¼øÀ§ ¼³Á¤ÀÏ: 2016. 12. 27. ±ÙÀú´ç±Ç ¼³Á¤)

¸Å°¢À¸·Î ¼Ò¸êµÇÁö ¾Ê´Â µî±âºÎ±Ç¸®:
¸Å°¢À¸·Î ¼³Á¤µÈ °ÍÀ¸·Î º¸´Â Áö»ó±Ç:
1. º»°Ç °Ç¹°¿Üº®¿¡ 'J¾ÆÆ®ÇϿ콺ºô' À̶õ Ç¥½Ã°¡ ÀÖÀ½.
¡Ø¹Ì³³°ü¸®ºñ(°ø¿ë) Àμö¿©ºÎ¸¦ ÀÔÂû Àü¿¡ È®ÀÎÇϽñ⠹ٶø´Ï´Ù

 

Áö¿ªºÐ¼®

ÁöÇÏö¸í Á÷¼±°Å¸®

Çб³¸í ÀüÈ­¹øÈ£ ÁÖ¼Ò Á÷¼±°Å¸®

¹ý¿ø

¿ï»êÁö¹æ¹ý¿ø (446-43)¿ï»ê±¤¿ª½Ã ³²±¸ ¹ý´ë·Î 55(¿Áµ¿ 1415)
´ëÇ¥ : 052)216-8000, ¹Î¿ø : 052)216-8021~3
°üÇÒÁö¿ª : ¿ï»ê±¤¿ª½Ã, ¾ç»ê½Ã

µî±â¼Ò ¿ï»êÁö¹æ¹ý¿ø º»¿ø ¾ç»êµî±â¼Ò (´ëÇ¥:1544-0773, ÆÑ½º:(055)384-4180, °æ³² ¾ç»ê½Ã ºÏ¾È³²5±æ 12 (ºÏºÎµ¿ 373))
¼¼¹«¼­ ¾ç»ê¼¼¹«¼­ (´ëÇ¥:055-389-62, ÆÑ½º:055-389-6602, °æ»ó³²µµ ¾ç»ê½Ã ¹°±ÝÀ¾ Áõ»ê¿ª·Î135, 9Ãþ, 10Ãþ(°¡Ã̸® 1296-1))

Àαٳ«ÂûÅë°è

±â°£ ¸Å°¢°Ç¼ö Æò±Õ°¨Á¤°¡
Æò±Õ¸Å°¢°¡
¸Å°¢°¡À²
Æò±ÕÀ¯Âû¼ö
3°³¿ù 0°Ç 0¿ø
0¿ø
0%
0ȸ
6°³¿ù 0°Ç 0¿ø
0¿ø
0%
0ȸ
12°³¿ù 5°Ç 152,600,000¿ø
92,444,000¿ø
59%
2.2ȸ


º» °æ¸ÅÁ¤º¸´Â ¹ý¿øÀÚ·á¿Í ÀÏÄ¡Çϵµ·Ï ÇÏ¿´À¸³ª ±Ç¸®»çÇ׺¯µ¿, ÀÔ·ÂÂø¿À µîÀÇ ¿øÀÎÀ¸·Î »ç½Ç°ú ´Ù¸¦ ¼ö ÀÖ½À´Ï´Ù. ÀÌ¿ë¾à°ü¿¡ ÀǰЏéÃ¥Á¶°ÇÀ¸·Î Á¦°øµÊÀ» ¾Ë¸®¸ç, °æ¸ÅÀÔÂû½Ã ¹Ýµå½Ã °ü·Ã °øºÎ¸¦ ÀçÈ®ÀÎÇϽñ⠹ٶø´Ï´Ù. º¸´Ù Æí¸®ÇÑ °æ¸ÅÁ¤º¸ Á¦°øÀ» À§ÇØ Áö¼ÓÀûÀ¸·Î °³¼±ÇϰڽÀ´Ï´Ù. ÀÌ¿ëÇØ Áּż­ °¨»çÇÕ´Ï´Ù.