·Î±×ÀÎ
15
´Ù°¡±¸ÁÖÅÃ
ÀÇÁ¤ºÎÁö¹æ¹ý¿ø °í¾çÁö¿ø
 °¨Á¤°¡493,572,640 ¿ø
 ÃÖÀú°¡(49%) 241,851,000 ¿ø
 º¸Áõ±Ý(10%) 24,185,100 ¿ø
 Ã»±¸¾×220,636,800 ¿ø
°æ±âµµ ÆÄÁֽà ¿ù·Õ¸é ´É»ê¸® 287-2
»ç°Ç¹øÈ£ 2024Ÿ°æ9491
°æ¸ÅÁ¾·ùºÎµ¿»êÀÓÀǰæ¸Å
¸Å°¢´ë»óÅäÁö ¹× °Ç¹°Àϰý¸Å°¢
¸Å°¢±âÀÏ    2025.12.17(¼ö) 10:00 ÀÔÂû 31ÀÏÀü    
ÅäÁö¸éÀû275.00§³(83.19 Æò)
°Ç¹°¸éÀû281.58§³(85.18 Æò)
乫/¼ÒÀ¯ÀÚÀ±OO / À¯OO
ä±ÇÀÚÀ¯OOOOOOOOOOOOO OOOO(OOOOOOOO)
ÆäÀ̽ººÏ Æ®À§ÅÍ ±¸±Û+
īī¿À½ºÅ丮
īī¿ÀÅå sms¹®ÀÚº¸³»±â
 

±âÀϳ»¿ª

°æ°ú ³¯Â¥ Àú°¨ ÃÖÀú°¡ °á°ú
Á¢¼öÀÏ 2024-12-20 °æ¸ÅÁ¢¼ö
~3ÀÏ 
2024-12-23 °æ¸Å°³½Ã°áÁ¤
~87ÀÏ 
2025-03-17 ¹è´ç¿ä±¸Á¾±âÀÏ
~285ÀÏ 
2025-10-01 100%
493,572,640
À¯Âû
~327ÀÏ 
2025-11-12 70%
345,501,000
À¯Âû
~362ÀÏ 
2025-12-17 49%
241,851,000
ÁøÇà
¹°°Ç¸í¼¼¼­ ÇöȲÁ¶»ç¼­ ¹®°ÇÁ¢¼ö ¼Û´Þ³»¿ª

°¨Á¤Æò°¡ÇöȲ

¸ñ·Ï ÁÖ¼Ò ±¸Á¶/¿ëµµ/´ëÁö±Ç ¸éÀû ºñ°í
ÅäÁö
´É»ê¸® 287-2 ´ë 275 §³
(83.19Æò)
°Ç¹°
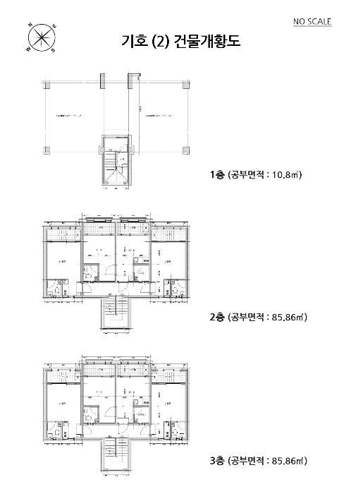
´É»ê¸® 287-2 1Ãþ °è´Ü½Ç ö±ÙÄÜÅ©¸®Æ®±¸Á¶ 10.8 §³
(3.27Æò)
´É»ê¸® 287-2 2Ãþ ´Ù°¡±¸ÁÖÅà ö±ÙÄÜÅ©¸®Æ®±¸Á¶ 85.86 §³
(25.97Æò)
´É»ê¸® 287-2 3Ãþ ´Ù°¡±¸ÁÖÅà ö±ÙÄÜÅ©¸®Æ®±¸Á¶ 85.86 §³
(25.97Æò)
´É»ê¸® 287-2 4Ãþ ´Ù°¡±¸ÁÖÅà ö±ÙÄÜÅ©¸®Æ®±¸Á¶ 85.86 §³
(25.97Æò)
´É»ê¸® 287-2 ¿Áž1Ãþ °è´Ü½Ç ö±ÙÄÜÅ©¸®Æ®±¸Á¶ 13.2 §³
(3.99Æò)
1) À§Ä¡/°èȹ°ü¸®Áö¿ª/ÁÖÂ÷Àå/³ë¼±¹ö½ºÁ¤·ùÀå/ö±ÙÄÜÅ©¸®Æ®±¸Á¶ ´õº¸±â
°¨Á¤Æò°¡ ¿äÇ×Ç¥
1)À§Ä¡ ¹× ÁÖÀ§È¯°æ
º»°ÇÀº °æ±âµµ ÆÄÁֽà ¿ù·Õ¸é ´É»ê¸® ¼ÒÀç "¼­¿µ´ëÇб³ ÆÄÁÖÄ·ÆÛ½º" ºÏ¼­Ãø Àαٿ¡ À§Ä¡Çϸç, ÀαÙÀº ³ó°æÁö, ÁÖÅà µîÀÌ È¥ÀçÇÏ´Â Áö´ëÀÔ´Ï´Ù.
2)±³Åë»óȲ
º»°Ç±îÁö Â÷·®ÁøÀÔÀÌ °¡´ÉÇϰí, Àαٿ¡ ³ë¼±¹ö½ºÁ¤·ùÀåÀÌ ¼ÒÀçÇÏ´Â µî ´ëÁß±³Åë À̿뿩°ÇÀº º¸ÅëÀÔ´Ï´Ù.
3)ÇüÅ ¹× ÀÌ¿ë»óÅÂ
º»°ÇÀº ¿Ï°æ»çÁö´ë ³» ÆòźȭÇÑ ÅäÁö·Î, ´ëü·Î Á¤ÇüÀ» ÀÌ·ç´Â ´Üµ¶(´Ù°¡±¸)ÁÖÅÃÀÇ °ÇºÎÁö·Î ÀÌ¿ëÁßÀÔ´Ï´Ù.
4)ÀÎÁ¢ µµ·Î»óÅÂ
º»°Ç ÇÊÁö ºÏ¼­ÃøÀ¸·Î ³ëÆø ¾à 6m ³»¿ÜÀÇ ´ÜÁö³» µµ·Î¿¡ Á¢Çϸç, À̸¦ ÅëÇØ ´ÜÁö ¿ÜºÎ µµ·Î¿Í ¿¬°èµË´Ï´Ù.
5)ÅäÁöÀÌ¿ë°èȹ ¹× Á¦ÇÑ»óÅÂ
º»°ÇÀº °èȹ°ü¸®Áö¿ª, °¡Ãà»çÀ°Á¦Çѱ¸¿ª(¸ðµçÃàÁ¾ »çÀ°Á¦ÇÑ)<°¡ÃàºÐ´¢ÀÇ °ü¸® ¹× À̿뿡 °üÇÑ ¹ý·ü>, ±º»ç±âÁö ¹× ±º»ç½Ã¼³±âŸ(15¹ÌÅÍÀ§ÀÓ)<±º»ç±âÁö ¹× ±º»ç½Ã¼³ º¸È£¹ý>, Á¦ÇѺ¸È£±¸¿ª(Àü¹æÁö¿ª:25km)<±º»ç±âÁö ¹× ±º»ç½Ã¼³ º¸È£¹ý>, °ÇÃà¹ý Á¦2Á¶Á¦1Ç×Á¦11È£³ª¸ñ¿¡ µû¸¥ µµ·Î(µµ·ÎÀÏºÎÆ÷ÇÔ) ÀÔ´Ï´Ù.
6)Á¦½Ã¸ñ·Ï ¿ÜÀÇ ¹°°Ç
ÇöÀåÁ¶»ç½Ã Æ÷ÂøµÈ ƯÀÌ»çÇ×Àº ¾ø¾ú½À´Ï´Ù.
7)°øºÎ¿ÍÀÇ Â÷ÀÌ
ÇöÀåÁ¶»ç½Ã Æ÷ÂøµÇ´Â ƯÀÌ»çÇ×Àº ¾ø½À´Ï´Ù.
8)±âŸÂü°í»çÇ×(ÀÓ´ë°ü·Ê ¹× ±âŸ)
¤· ÇöÀç ÀÓ´ëÂ÷ °ü°è´Â ¹Ì»óÀÔ´Ï´Ù.
1)°Ç¹°ÀÇ ±¸Á¶
º»°Ç2´Â ÇöȲ ö±ÙÄÜÅ©¸®Æ®±¸Á¶ ±âŸÁöºØ 4Ãþ °ÇÀ¸·Î, 2011³â 12¿ù 06ÀÏ »ç¿ë½ÂÀεǾúÀ¸¸ç

¿Üº®: ¼®Àç, ¸ôÅ»À§ ÆäÀÎÆ® ¸¶°¨ µî.
³»º®: -.
âȣ: ÀÌÁßâȣ µî ÀÔ´Ï´Ù.
2)ÀÌ¿ë»óÅÂ
°øºÎ»ó ´Üµ¶ÁÖÅÃ(´Ù°¡±¸ÁÖÅÃ,8°¡±¸) ÀÔ´Ï´Ù.
3)¼³ºñ³»¿ª
À§»ý ¹× ±Þ¹è¼ö½Ã¼³, ÁÖÂ÷Àå½Ã¼³ µîÀÌ µÇ¾îÀÖ½À´Ï´Ù.
4)ºÎÇÕ¹° ¹× Á¾¹°
ÇöÀåÁ¶»ç½Ã Æ÷ÂøµÇ´Â ƯÀÌ»çÇ×Àº ¾ø½À´Ï´Ù.
5)°øºÎ¿ÍÀÇ Â÷ÀÌ
¤· º»°ÇÀº °øºÎ»ó °Ç¹°¸íÀÌ ±âÀçµÇ¾î ÀÖÁö ¾Æ´ÏÇÑ ´Üµ¶(´Ù°¡±¸)ÁÖÅÃÀ̳ª, ÇöȲ ¿Ü°ü»ó À¯»çÇÑ ´Ù¼ö °Ç¹°ÀÌ ´ÜÁö¸¦ Çü¼ºÇÏ¿© "¸ð´×ºôB´ÜÁö"¶ó°í Ç¥±âµÇ¾î ÀÌ¿ëÁßÀ̸ç, º»°ÇÀº "¸ð´×ºôB-5µ¿"À¸·Î ¿Üº®¿¡ Ç¥±âµÇ¾î ÀÖ½À´Ï´Ù.
¤· º»°Ç °Ç¹°ÀÇ µî±â»çÇ×ÀüºÎÁõ¸í¼­¿¡´Â "´É»ê¸® 287-7"µµ º»°Ç ¼ÒÀçÁö·Î Ç¥±âµÇ¾î ÀÖÀ¸³ª, ÅäÁö´ëÀå»ó 2012³â 01¿ù 09ÀÏ 287-2¹øÀ¸·Î ÇÕº´µÇ¾î ¸»¼ÒµÈ °ÍÀ¸·Î Á¶»çµÇ´Ï Âü°í¹Ù¶ø´Ï´Ù.
6)±âŸÂü°í»çÇ×(ÀÓ´ë°ü·Ê ¹× ±âŸ)
¤· º»°Ç °Ç¹°Àº Æó¹®ºÎÀçÇÏ¿´°í, ÀÌÇØ°ü°èÀÎ µîÀ» ¸¸³¯ ¼ö ¾ø¾î ³»ºÎÈ®ÀÎÀ» ÇÒ ¼ö ¾ø¾ú½À´Ï´Ù. ÀÌ¿¡ º»°Ç °ÇÃ๰µµ¸é ¹× ¿Ü°ü Á¶»ç µî¿¡ ÀÇÇØ¼­ Æò°¡ÇÏ¿´À¸´Ï, °æ¸ÅÀÔÂû½Ã Âü°í¹Ù¶ø´Ï´Ù.
¤· ÇöÀç ÀÓ´ëÂ÷ °ü°è´Â ¹Ì»óÀÔ´Ï´Ù. (ÇöÀå Á¶»ç½Ã 1Ãþ ÃâÀÔ¹®»ó ±âÀçµÈ ¿¬¶ôó¸¦ È®ÀÎÇÏ¿´À¸³ª, °ú°Å ÀÓÂ÷ÀÎÀ¸·Î ÇöÀç´Â º»°Ç°ú ¹«°üÇÑ °ÍÀ¸·Î ޹®µÇ¾ú½À´Ï´Ù.)
Âü°í
»çÇ×
1. Àϰý¸Å°¢ 2. °øºÎ»ó °Ç¹°¸íÀÌ ±âÀçµÇ¾î ÀÖÁö ¾Æ´ÏÇÏ¿´À¸³ª, ¿Ü°ü»ó À¯»çÇÑ ´Ù¼ö °Ç¹°ÀÌ ´ÜÁö¸¦ Çü¼ºÇÏ¿© '¸ð´×ºôB´ÜÁö'¶ó°í Æ÷±âµÇ¾î ÀÌ¿ë ÁßÀÌ¸ç º»°ÇÀº '¸ð´×ºôB-5µ¿'À¸·Î ¿Üº®¿¡ Ç¥±âµÇ¾î ÀÖÀ½. 3. °Ç¹°ÀÇ µî±â»çÇ×ÀüºÎÁõ¸í¼­¿¡´Â '´É»ê¸® 287-7'µµ º»°Ç ¼ÒÀçÁö·Î Ç¥±âµÇ¾î ÀÖÀ¸³ª, ÅäÁö´ëÀå»ó 2012³â 1¿ù 9ÀÏ 287-2¹øÀ¸·Î ÇÕº´µÇ¾î ¸»¼ÒµÊ
1.¸ñ·Ï1ÅäÁö : ¸ñ·Ï2 °Ç¹°ÀÇ ´ëÁö·Î º¸À̰í, Á¤È®ÇÑ

°ÇÃ๰ÇöȲ

¼ÒÀçÁö °æ±âµµ ÆÄÁֽà ¿ù·Õ¸é ´É»ê¸® 287-2¹øÁö
´ëÁö¸éÀû 275§³
(83.33Æò)
¿¬¸éÀû 268.38§³
(81.33Æò)
°ÇÃà¸éÀû 107.04§³
(32.44Æò)
¿ëÀû·ü»êÁ¤
¿¬¸éÀû
268.38§³
(81.33Æò)
°ÇÆóÀ² 38.92% ¿ëÀû·ü 97.59%
Áö»óÃþ¼ö 4Ãþ ÁöÇÏÃþ¼ö  
ÁÖ¿ëµµ ´Üµ¶ÁÖÅà ±¸Á¶ ö±ÙÄÜÅ©¸®Æ®±¸Á¶
Âø°øÀÏÀÚ 2010.12.16 »ç¿ë½ÂÀÎÀÏÀÚ 2011.12.06
°ÇÃ๰Ãþº°ÇöȲ [º¸±â]


±¹ÅäºÎ½Ç°Å·¡°¡ °æ±âµµ ÆÄÁֽà ¿ù·Õ¸é

¡Ü ¸Å¸Å

¸éÀû(§³), ±Ý¾×(¸¸¿ø)

¡Ü Àü¼¼

¸éÀû(§³), ±Ý¾×(¸¸¿ø)

°è¾àÀÏÀ¯Çü¿¬¸éÀû´ëÁö±Ý¾×°ÇÃà
24.01.30´Ù°¡±¸219.0635028,0002009
24.01.01´Üµ¶105.6345938,3002020

µî±âºÎµîº» ¿ä¾à(°Ç¹°)

  Á¢¼öÀÏÀÚ µî±â¸ñÀû/±Ç¸®ÀÚ ±Ç¸®±Ý¾× ±âÁØ
1 2024³â12¿ù5ÀÏ
¼ÒÀ¯±Ç
À¯OO
¼Ò¸ê
2 2022³â5¿ù16ÀÏ
±ÙÀú´ç±Ç
(OOOO
220,636,800 ¼Ò¸ê±âÁØ
3 2024³â12¿ù13ÀÏ
±ÙÀú´ç±Ç
¼­OOOO
480,000,000 ¼Ò¸ê
4 2024³â12¿ù23ÀÏ
ÀÓÀǰæ¸Å
(OOOO
¼Ò¸ê

ÀÓÂ÷ÀÎÇöȲ (¹è´ç¿ä±¸Á¾±âÀÏ: 2025-03-17)


Á¶»çµÈ ÀÓÂ÷³»¿ªÀÌ ¾ø½À´Ï´Ù


¿©ÀÇÁÖ°æ¸Å Á¶¾ð ÇÑ ¸¶µð


ÁÖÀÇ»çÇ× (ÃÖ¼±¼øÀ§ ¼³Á¤ÀÏ: 2022. 05. 16. ±ÙÀú´ç ¼³Á¤)

¸Å°¢À¸·Î ¼Ò¸êµÇÁö ¾Ê´Â µî±âºÎ±Ç¸®:
¸Å°¢À¸·Î ¼³Á¤µÈ °ÍÀ¸·Î º¸´Â Áö»ó±Ç:
1. Àϰý¸Å°¢ 2. °øºÎ»ó °Ç¹°¸íÀÌ ±âÀçµÇ¾î ÀÖÁö ¾Æ´ÏÇÏ¿´À¸³ª, ¿Ü°ü»ó À¯»çÇÑ ´Ù¼ö °Ç¹°ÀÌ ´ÜÁö¸¦ Çü¼ºÇÏ¿© '¸ð´×ºôB´ÜÁö'¶ó°í Æ÷±âµÇ¾î ÀÌ ¿ë ÁßÀÌ¸ç º»°ÇÀº '¸ð´×ºôB-5µ¿'À¸·Î ¿Üº®¿¡ Ç¥±âµÇ¾î ÀÖÀ½. 3. °Ç¹°ÀÇ µî±â»çÇ×ÀüºÎÁõ¸í¼­¿¡´Â '´É»ê¸® 287-7'µµ º»°Ç ¼ÒÀçÁö·Î Ç¥±âµÇ¾î ÀÖÀ¸³ª, ÅäÁö´ëÀå»ó 2012³â 1¿ù 9ÀÏ 287-2¹øÀ¸ ·Î ÇÕº´µÇ¾î ¸»¼ÒµÊ
¡Ø¹Ì³³°ü¸®ºñ(°ø¿ë) Àμö¿©ºÎ¸¦ ÀÔÂû Àü¿¡ È®ÀÎÇϽñ⠹ٶø´Ï´Ù

 

Áö¿ªºÐ¼®

ÁöÇÏö¸í Á÷¼±°Å¸®

Çб³¸í ÀüÈ­¹øÈ£ ÁÖ¼Ò Á÷¼±°Å¸®

¹ý¿ø

ÀÇÁ¤ºÎÁö¹æ¹ý¿ø °í¾çÁö¿ø (104-13)°æ±âµµ °í¾ç½Ã Àϻ굿±¸ Àå¹é·Î 209
´ëÇ¥ : 031)920-6114, ¾ß°£ : 031)920-6550, ÆÑ½º : 031)920-6119
°üÇÒÁö¿ª : °í¾ç½Ã, ÆÄÁÖ½Ã

µî±â¼Ò ÀÇÁ¤ºÎÁö¹æ¹ý¿ø °í¾çÁö¿ø ÆÄÁÖµî±â¼Ò (´ëÇ¥:1544-0773, ÆÑ½º:(031)945-4764, 3628, °æ±âµµ ÆÄÁֽà ±ÝÁ¤·Î 45 (±ÝÃ̵¿ 947-28))
¼¼¹«¼­ ÆÄÁÖ¼¼¹«¼­ (´ëÇ¥:031-956-02, ÆÑ½º:031-957-0315, °æ±âµµ ÆÄÁֽà ±Ý¸ª¿ª·Î 62 (±ÝÃ̵¿))

Àαٳ«ÂûÅë°è

±â°£ ¸Å°¢°Ç¼ö Æò±Õ°¨Á¤°¡
Æò±Õ¸Å°¢°¡
¸Å°¢°¡À²
Æò±ÕÀ¯Âû¼ö
3°³¿ù 3°Ç 520,509,705¿ø
216,903,333¿ø
49%
2.3ȸ
6°³¿ù 5°Ç 413,812,887¿ø
191,636,000¿ø
55%
2ȸ
12°³¿ù 5°Ç 413,812,887¿ø
191,636,000¿ø
55%
2ȸ


º» °æ¸ÅÁ¤º¸´Â ¹ý¿øÀÚ·á¿Í ÀÏÄ¡Çϵµ·Ï ÇÏ¿´À¸³ª ±Ç¸®»çÇ׺¯µ¿, ÀÔ·ÂÂø¿À µîÀÇ ¿øÀÎÀ¸·Î »ç½Ç°ú ´Ù¸¦ ¼ö ÀÖ½À´Ï´Ù. ÀÌ¿ë¾à°ü¿¡ ÀǰЏéÃ¥Á¶°ÇÀ¸·Î Á¦°øµÊÀ» ¾Ë¸®¸ç, °æ¸ÅÀÔÂû½Ã ¹Ýµå½Ã °ü·Ã °øºÎ¸¦ ÀçÈ®ÀÎÇϽñ⠹ٶø´Ï´Ù. º¸´Ù Æí¸®ÇÑ °æ¸ÅÁ¤º¸ Á¦°øÀ» À§ÇØ Áö¼ÓÀûÀ¸·Î °³¼±ÇϰڽÀ´Ï´Ù. ÀÌ¿ëÇØ Áּż­ °¨»çÇÕ´Ï´Ù.