·Î±×ÀÎ
12
´Ù¼¼´ë(ºô¶ó)
ÀÇÁ¤ºÎÁö¹æ¹ý¿ø °í¾çÁö¿ø
 °¨Á¤°¡81,000,000 ¿ø
 ÃÖÀú°¡(49%) 39,690,000 ¿ø
 º¸Áõ±Ý(10%) 3,969,000 ¿ø
 Ã»±¸¾×29,523,297 ¿ø
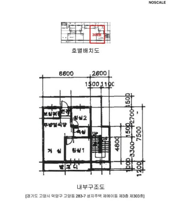
°æ±âµµ °í¾ç½Ã ´ö¾ç±¸ ´ë¾ç·Î285¹ø±æ 19, ¿¡À̵¿ 3Ãþ303È£ (°í¾çµ¿,¼ºÁöÁÖÅÃ)
°æ±âµµ °í¾ç½Ã ´ö¾ç±¸ °í¾çµ¿ 283-7
»ç°Ç¹øÈ£ 2024Ÿ°æ6928
°æ¸ÅÁ¾·ùºÎµ¿»êÀÓÀǰæ¸Å
¸Å°¢´ë»óÅäÁö ¹× °Ç¹°Àϰý ¸Å°¢
¸Å°¢±âÀÏ    2025.12.17(¼ö) 10:00 ÀÔÂû 30ÀÏÀü    
ÅäÁö¸éÀû38.25§³(11.57 Æò)
°Ç¹°¸éÀû49.50§³(14.97 Æò)
乫/¼ÒÀ¯ÀÚ±èOO¿Ü 3¸í / ±èOO¿Ü 3¸í
ä±ÇÀÚÇÑOOOOOOOO OOOOOO OOOO OOOO
ÆäÀ̽ººÏ Æ®À§ÅÍ ±¸±Û+
īī¿À½ºÅ丮
īī¿ÀÅå sms¹®ÀÚº¸³»±â
 

±âÀϳ»¿ª

°æ°ú ³¯Â¥ Àú°¨ ÃÖÀú°¡ °á°ú
Á¢¼öÀÏ 2024-09-06 °æ¸ÅÁ¢¼ö
~122ÀÏ 
2025-01-06 °æ¸Å°³½Ã°áÁ¤
~206ÀÏ 
2025-03-31 ¹è´ç¿ä±¸Á¾±âÀÏ
~390ÀÏ 
2025-10-01 100%
81,000,000
À¯Âû
~432ÀÏ 
2025-11-12 70%
56,700,000
À¯Âû
~467ÀÏ 
2025-12-17 49%
39,690,000
ÁøÇà
¹°°Ç¸í¼¼¼­ ÇöȲÁ¶»ç¼­ ¹®°ÇÁ¢¼ö ¼Û´Þ³»¿ª

°¨Á¤Æò°¡ÇöȲ

¸ñ·Ï ÁÖ¼Ò ±¸Á¶/¿ëµµ/´ëÁö±Ç ¸éÀû ºñ°í
´ëÁö±Ç
°í¾çµ¿ 283-7 492ºÐÀÇ 38.25 38.25 §³
(11.57Æò)
°Ç¹°
°í¾çµ¿ 283-7 ¿¡À̵¿ 3Ãþ303È£ ö±ÙÄÜÅ©¸®Æ®Á¶ 49.50 §³
(14.97Æò)
1) À§Ä¡/µµ½ÃÁö¿ª/Á¦1Á¾ÀϹÝÁÖ°ÅÁö¿ª/¹ö½ºÁ¤·ùÀå/Â÷·® Á¢±ÙÀÌ °¡´É/ö±ÙÄÜÅ©¸®Æ®Á¶/Æò½º¶óºêÁöºØ/µµ½Ã°¡½º ´õº¸±â
°¨Á¤Æò°¡ ¿äÇ×Ç¥
1)À§Ä¡ ¹× ÁÖÀ§È¯°æ
º»°ÇÀº °æ±âµµ °í¾ç½Ã ´ö¾ç±¸ °í¾çµ¿ ¼ÒÀç "¿¡½º¶ó¼º°æ´ëÇпø´ëÇб³" ³²Ãø Àαٿ¡ À§Ä¡Çϸç, ÁÖÀ§´Â ¿¬¸³ÁÖÅÃ, ºô¶ó ±Ù¸°»ýȰ½Ã¼³ µîÀÌ ¼ÒÀçÇÔ.
2)±³Åë»óȲ
º»°Ç±îÁö Â÷·® Á¢±ÙÀÌ °¡´ÉÇϸç Àαٿ¡ ¹ö½ºÁ¤·ùÀåÀÌ ¼ÒÀçÇϴ¹٠´ëÁß±³Åë»óȲÀº º¸ÅëÀÓ.
3)°Ç¹°ÀÇ ±¸Á¶
ö±ÙÄÜÅ©¸®Æ®Á¶ Æò½º¶óºêÁöºØ 4Ãþ ¿¬¸³ÁÖÅà °Ç ³» Á¦3Ãþ Á¦303È£·Î¼­,
(»ç¿ë½ÂÀÎ: 1995.11.16)
¿Üº®: ¸ôÅ»À§ ÆäÀÎÆÃ ¸¶°¨ µî.
âȣ: ¼¦½Ã âȣÀÓ.
4)ÀÌ¿ë»óÅÂ
¿¬¸³ÁÖÅÃÀ¸·Î ÀÌ¿ëÁßÀÓ.
5)¼³ºñ³»¿ª
º»°ÇÀº ±âº»ÀûÀÎ À§»ý ¹× ±Þ¹è¼ö¼³ºñ, ³­¹æ¼³ºñ, µµ½Ã°¡½º¼³ºñ µîÀÌ µÇ¾î ÀÖÀ½.
6)ÅäÁöÀÇ Çü»ó ¹× ÀÌ¿ë»óÅÂ
º»°ÇÀº »ç´Ù¸®Çü ÅäÁö·Î¼­ "¿¬¸³ÁÖÅÃ" °ÇºÎÁö·Î ÀÌ¿ëÁßÀÓ.
7)ÀÎÁ¢ µµ·Î»óŵî
º»°ÇÀº ³²µ¿ÃøÀ¸·Î Æø ¾à 6mÀÇ Æ÷Àåµµ·Î¿Í Á¢Çϰí ÀÖÀ½.
8)ÅäÁöÀÌ¿ë°èȹ ¹× Á¦ÇÑ»óÅÂ
Á¦1Á¾ÀϹÝÁÖ°ÅÁö¿ª, ¼Ò·Î3·ù(Æø 8m ¹Ì¸¸)(Á¢ÇÕ) °¡Ãà»çÀ°Á¦Çѱ¸¿ª(2024-11-12)(ÀüºÎÁ¦Çѱ¸¿ª [µµ½ÃÁö¿ª{ÁÖ°Å,»ó¾÷,°ø¾÷,³ìÁö(ÀÚ¿¬Ãë¶ôÁö±¸)}¹×ÁְŹÐÁýÁö¿ª])<°¡ÃàºÐ´¢ÀÇ °ü¸® ¹× À̿뿡 °üÇÑ ¹ý·ü>, ¿ª»ç¹®È­È¯°æº¸Á¸Áö¿ª(°í¾çÇâ±³)<°æ±âµµ¹®È­À纸ȣÁ¶·Ê>, »ó´ëº¸È£±¸¿ª(2013-12-20)(¿¡½º¶ó¼º°æ´ëÇпø´ëÇб³)<±³À°È¯°æ º¸È£¿¡ °üÇÑ ¹ý·ü>, »ó´ëº¸È£±¸¿ª(¹Ù´ÙÀǺ°¾î¸°ÀÌÁý)<±³À°È¯°æ º¸È£¿¡ °üÇÑ ¹ý·ü>, ¿ª»ç¹®È­È¯°æº¸Á¸Áö¿ª(º®Á¦°üÁö)<¹®È­À¯»êÀÇ º¸Á¸ ¹× Ȱ¿ë¿¡ °üÇÑ ¹ý·ü>, °ú¹Ð¾ïÁ¦±Ç¿ª<¼öµµ±ÇÁ¤ºñ°èȹ¹ý>.
9)°øºÎ¿ÍÀÇ Â÷ÀÌ
¾øÀ½.
10)±âŸÂü°í»çÇ×(ÀÓ´ë°ü·Ê ¹× ±âŸ)
ÀÓ´ë°ü°è´Â ¹Ì»óÀÓ.
Âü°í
»çÇ×

ÀÌ°Ç ¸ñ·Ï °Ç¹°Àº ¸ñ·Ïö

°ÇÃ๰ÇöȲ

¼ÒÀçÁö °æ±âµµ °í¾ç½Ã ´ö¾ç±¸ °í¾çµ¿ 283-7¹øÁö
´ëÁö¸éÀû 492§³
(149.09Æò)
¿¬¸éÀû 853.95§³
(258.77Æò)
°ÇÃà¸éÀû 220.74§³
(66.89Æò)
¿ëÀû·ü»êÁ¤
¿¬¸éÀû
787.92§³
(238.76Æò)
°ÇÆóÀ² 44.87% ¿ëÀû·ü 160.15%
Áö»óÃþ¼ö 4Ãþ ÁöÇÏÃþ¼ö 1Ãþ
ÁÖ¿ëµµ °øµ¿ÁÖÅà ±¸Á¶ ö±ÙÄÜÅ©¸®Æ®±¸Á¶
Âø°øÀÏÀÚ »ç¿ë½ÂÀÎÀÏÀÚ 1995.11.16


µî±âºÎµîº» ¿ä¾à(°Ç¹°)

  Á¢¼öÀÏÀÚ µî±â¸ñÀû/±Ç¸®ÀÚ ±Ç¸®±Ý¾× ±âÁØ
1 2024³â12¿ù16ÀÏ
¼ÒÀ¯±Ç
ÇãOO
¼Ò¸ê
2 2024³â12¿ù16ÀÏ
¼ÒÀ¯±Ç
ÇãOO
¼Ò¸ê
3 2024³â12¿ù16ÀÏ
¼ÒÀ¯±Ç
ÇãO
¼Ò¸ê
4 2024³â12¿ù16ÀÏ
¼ÒÀ¯±Ç
±èOO
¼Ò¸ê
5 2017³â9¿ù8ÀÏ
±ÙÀú´ç±Ç
(OOOO
33,000,000 ¼Ò¸ê±âÁØ
6 2017³â9¿ù8ÀÏ
±ÙÀú´ç±Ç
±ÇOO
20,000,000 ¼Ò¸ê
7 2025³â1¿ù6ÀÏ
ÀÓÀǰæ¸Å
ÇÑOOOO
¼Ò¸ê

ÀÓÂ÷ÀÎÇöȲ (¹è´ç¿ä±¸Á¾±âÀÏ: 2025-03-31)


Á¶»çµÈ ÀÓÂ÷³»¿ªÀÌ ¾ø½À´Ï´Ù


¿©ÀÇÁÖ°æ¸Å Á¶¾ð ÇÑ ¸¶µð


ÁÖÀÇ»çÇ× (ÃÖ¼±¼øÀ§ ¼³Á¤ÀÏ: 2017. 09. 08. ±ÙÀú´ç ¼³Á¤)

¸Å°¢À¸·Î ¼Ò¸êµÇÁö ¾Ê´Â µî±âºÎ±Ç¸®:
¸Å°¢À¸·Î ¼³Á¤µÈ °ÍÀ¸·Î º¸´Â Áö»ó±Ç:
2024.11.28 ä±ÇÀÚ ÇÑOOOOOOO º¸Á¤±âÀÏ¿¬±â½Åû¼­ Á¦Ãâ
¡Ø¹Ì³³°ü¸®ºñ(°ø¿ë) Àμö¿©ºÎ¸¦ ÀÔÂû Àü¿¡ È®ÀÎÇϽñ⠹ٶø´Ï´Ù

 

Áö¿ªºÐ¼®

ÁöÇÏö¸í Á÷¼±°Å¸®

Çб³¸í ÀüÈ­¹øÈ£ ÁÖ¼Ò Á÷¼±°Å¸®

¹ý¿ø

ÀÇÁ¤ºÎÁö¹æ¹ý¿ø °í¾çÁö¿ø (104-13)°æ±âµµ °í¾ç½Ã Àϻ굿±¸ Àå¹é·Î 209
´ëÇ¥ : 031)920-6114, ¾ß°£ : 031)920-6550, ÆÑ½º : 031)920-6119
°üÇÒÁö¿ª : °í¾ç½Ã, ÆÄÁÖ½Ã

µî±â¼Ò ÀÇÁ¤ºÎÁö¹æ¹ý¿ø °í¾çÁö¿ø °í¾çµî±â¼Ò (´ëÇ¥:1544-0773, ÆÑ½º:(031)920-5959, °æ±âµµ °í¾ç½Ã Àϻ굿±¸ Áß¾Ó·Î1275¹ø±æ 38-30 (ÀåÇ×µ¿ 773))
¼¼¹«¼­ µ¿°í¾ç¼¼¹«¼­ (´ëÇ¥:031-900-62, ÆÑ½º:031-963-2979, °æ±âµµ °í¾ç½Ã ´ö¾ç±¸ È­Áß·Î 104¹ø±æ 16(È­Á¤µ¿))

Àαٳ«ÂûÅë°è

±â°£ ¸Å°¢°Ç¼ö Æò±Õ°¨Á¤°¡
Æò±Õ¸Å°¢°¡
¸Å°¢°¡À²
Æò±ÕÀ¯Âû¼ö
3°³¿ù 2°Ç 287,500,000¿ø
178,565,000¿ø
62%
2.5ȸ
6°³¿ù 5°Ç 206,400,000¿ø
130,026,000¿ø
65%
2ȸ
12°³¿ù 7°Ç 197,714,286¿ø
132,282,429¿ø
68%
1.7ȸ


º» °æ¸ÅÁ¤º¸´Â ¹ý¿øÀÚ·á¿Í ÀÏÄ¡Çϵµ·Ï ÇÏ¿´À¸³ª ±Ç¸®»çÇ׺¯µ¿, ÀÔ·ÂÂø¿À µîÀÇ ¿øÀÎÀ¸·Î »ç½Ç°ú ´Ù¸¦ ¼ö ÀÖ½À´Ï´Ù. ÀÌ¿ë¾à°ü¿¡ ÀǰЏéÃ¥Á¶°ÇÀ¸·Î Á¦°øµÊÀ» ¾Ë¸®¸ç, °æ¸ÅÀÔÂû½Ã ¹Ýµå½Ã °ü·Ã °øºÎ¸¦ ÀçÈ®ÀÎÇϽñ⠹ٶø´Ï´Ù. º¸´Ù Æí¸®ÇÑ °æ¸ÅÁ¤º¸ Á¦°øÀ» À§ÇØ Áö¼ÓÀûÀ¸·Î °³¼±ÇϰڽÀ´Ï´Ù. ÀÌ¿ëÇØ Áּż­ °¨»çÇÕ´Ï´Ù.