·Î±×ÀÎ
7
´Ù¼¼´ë(ºô¶ó)
ÀÎõÁö¹æ¹ý¿ø
 °¨Á¤°¡156,000,000 ¿ø
 ÃÖÀú°¡(70%) 109,200,000 ¿ø
 º¸Áõ±Ý(10%) 10,920,000 ¿ø
 Ã»±¸¾×120,000,000 ¿ø
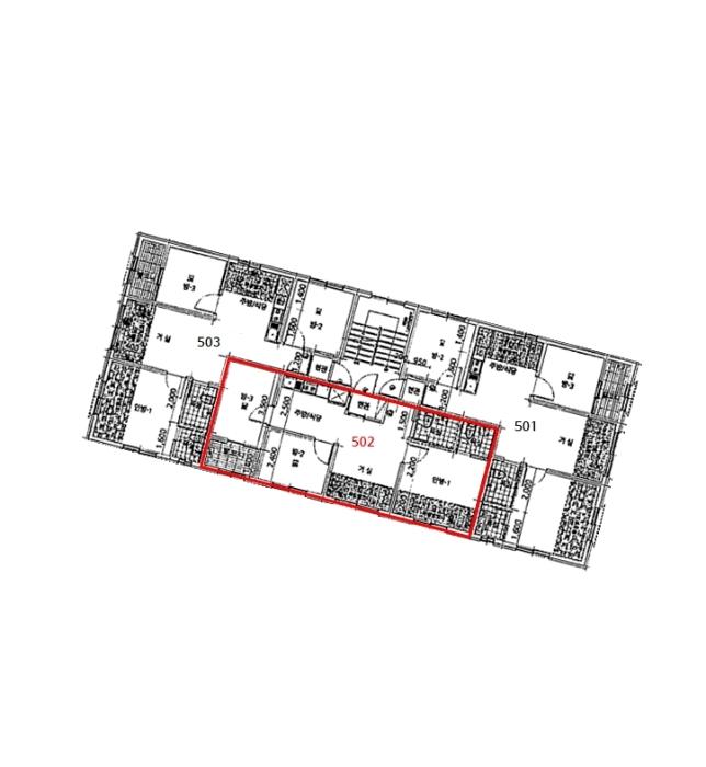
ÀÎõ±¤¿ª½Ã ¹ÌÃßȦ±¸ °æÀηÎ156¹ø±æ 43-1, 5Ãþ502È£ (¼þÀǵ¿,¼º¿ì¾ÆÆ®ºô)
ÀÎõ±¤¿ª½Ã ¹ÌÃßȦ±¸ ¼þÀǵ¿ 2-55
»ç°Ç¹øÈ£ 2024Ÿ°æ583971
°æ¸ÅÁ¾·ùºÎµ¿»ê°­Á¦°æ¸Å
¸Å°¢´ë»óÅäÁö ¹× °Ç¹°Àϰý ¸Å°¢
¸Å°¢±âÀÏ    2025.11.17(¿ù) 10:00 ÀÔÂû 2ÀÏÀü    
ÅäÁö¸éÀû29.50§³(8.92 Æò)
°Ç¹°¸éÀû47.52§³(14.37 Æò)
乫/¼ÒÀ¯ÀÚ±ÇOO / ±ÇOO
ä±ÇÀÚÁÖOOOOOOO
ÆäÀ̽ººÏ Æ®À§ÅÍ ±¸±Û+
īī¿À½ºÅ丮
īī¿ÀÅå sms¹®ÀÚº¸³»±â
 

±âÀϳ»¿ª

°æ°ú ³¯Â¥ Àú°¨ ÃÖÀú°¡ °á°ú
Á¢¼öÀÏ 2024-12-20 °æ¸ÅÁ¢¼ö
~18ÀÏ 
2025-01-07 °æ¸Å°³½Ã°áÁ¤
~101ÀÏ 
2025-03-31 ¹è´ç¿ä±¸Á¾±âÀÏ
~284ÀÏ 
2025-09-30 100%
156,000,000
À¯Âû
~332ÀÏ 
2025-11-17 70%
109,200,000
ÁøÇà
¹°°Ç¸í¼¼¼­ ÇöȲÁ¶»ç¼­ ¹®°ÇÁ¢¼ö ¼Û´Þ³»¿ª

°¨Á¤Æò°¡ÇöȲ

¸ñ·Ï ÁÖ¼Ò ±¸Á¶/¿ëµµ/´ëÁö±Ç ¸éÀû ºñ°í
´ëÁö±Ç
¼þÀǵ¿ 2-55 373ºÐÀÇ 29.5 29.5 §³
(8.92Æò)
°Ç¹°
¼þÀǵ¿ 2-55 5Ãþ502È£ ö±ÙÄÜÅ©¸®Æ®±¸Á¶ 47.52 §³
(14.37Æò)
1) À§Ä¡/ÁØÁÖ°ÅÁö¿ª/ö±ÙÄÜÅ©¸®Æ®±¸Á¶ ´õº¸±â
°¨Á¤Æò°¡ ¿äÇ×Ç¥
1)À§Ä¡ ¹× ÁÖÀ§È¯°æ
´ë»ó¹°°ÇÀº ÀÎõ±¤¿ª½Ã ¹ÌÃßȦ±¸ ¼þÀǵ¿ ¼ÒÀç "½ÂÀÇÃʵîÇб³" µ¿Ãø Àαٿ¡ À§Ä¡Çϸç ÁÖÀ§´Â ´Üµ¶ÁÖÅà ¹× ´Ù¼¼´ëÁÖÅÃ,¿ÀÇǽºÅÚ µîÀÌ ¼ÒÀçÇÏ´Â Áö¿ªÀÓ.
2)±³Åë»óȲ
º»°Ç±îÁö Â÷·®ÃâÀÔÀÌ °¡´ÉÇÏ¸ç ´ëÁß±³ÅëÆíÀÍÀº º¸ÅëÀÎ ÆíÀÓ.
3)°Ç¹°ÀÇ ±¸Á¶
ö±ÙÄÜÅ©¸®Æ®±¸Á¶ ÆòÁöºØ 5Ãþ°Ç³» Á¦5Ãþ Á¦502È£·Î¼­
¿Üº®: ÀÎÁ¶¼®ºÙÀÓ¸¶°¨ µî.
³»º®: ÀÎÅ׸®¾î¸¶°¨ µî.
âȣ: ÇÏÀÌ»õ½ÃâȣÀÓ.
4)ÀÌ¿ë»óÅÂ
´Ù¼¼´ëÁÖÅÃÀ¸·Î ÀÌ¿ëÁßÀÓ.
5)¼³ºñ³»¿ª
¾ø À½.
6)ÅäÁöÀÇ Çü»ó ¹× ÀÌ¿ë»óÅÂ
´ëü·Î ¼¼ÀåÇüÀÇ ÅäÁö·Î¼­ ´Ù¼¼´ëÁÖÅÃÀÇ ºÎÁö·Î ÀÌ¿ëÁßÀÓ.
7)ÀÎÁ¢ µµ·Î»óŵî
º»°Ç ³²ÃøÀ¸·Î ³ëÆø ¾à 4mÀÇ Æ÷Àåµµ·Î¸¦ ÀÌ¿ëÇÏ¿© ÃâÀÔÇÔ.
8)ÅäÁöÀÌ¿ë°èȹ ¹× Á¦ÇÑ»óÅÂ
ÁØÁÖ°ÅÁö¿ª, °¡Ãà»çÀ°Á¦Çѱ¸¿ª(ÀÎõ±¤¿ª½Ã ¹ÌÃßȦ±¸ °¡Ãà»çÀ°Á¦ÇÑ¿¡ °üÇÑ Á¶·Ê[2018. 7. 1.])<°¡ÃàºÐ´¢ÀÇ °ü¸® ¹× À̿뿡 °üÇÑ ¹ý·ü>, °ú¹Ð¾ïÁ¦±Ç¿ª<¼öµµ±ÇÁ¤ºñ°èȹ¹ý>
9)°øºÎ¿ÍÀÇ Â÷ÀÌ
¾ø À½.
10)±âŸÂü°í»çÇ×(ÀÓ´ë°ü·Ê ¹× ±âŸ)
¹Ì»óÀÓ.
Âü°í
»çÇ×

º»°ÇÀº ºô¶ó

°ÇÃ๰ÇöȲ

¼ÒÀçÁö ÀÎõ±¤¿ª½Ã ¹ÌÃßȦ±¸ ¼þÀǵ¿ 2-55¹øÁö
´ëÁö¸éÀû 373§³
(113.03Æò)
¿¬¸éÀû 656.88§³
(199.05Æò)
°ÇÃà¸éÀû 214.62§³
(65.04Æò)
¿ëÀû·ü»êÁ¤
¿¬¸éÀû
656.88§³
(199.05Æò)
°ÇÆóÀ² 57.53% ¿ëÀû·ü 176.1%
Áö»óÃþ¼ö 5Ãþ ÁöÇÏÃþ¼ö  
ÁÖ¿ëµµ °øµ¿ÁÖÅà ±¸Á¶ ö±ÙÄÜÅ©¸®Æ®±¸Á¶
Âø°øÀÏÀÚ 2014.09.23 »ç¿ë½ÂÀÎÀÏÀÚ 2015.03.27
°ÇÃ๰Ãþº°ÇöȲ [º¸±â]


±¹ÅäºÎ½Ç°Å·¡°¡ ÀÎõ±¤¿ª½Ã ¹ÌÃßȦ±¸ ¼þÀǵ¿

¡Ü ¸Å¸Å

¸éÀû(§³), ±Ý¾×(¸¸¿ø)

¡Ü Àü¼¼

¸éÀû(§³), ±Ý¾×(¸¸¿ø)

°è¾àÀϰǹ°¸íĪÃþ¿¬¸éÀû´ëÁö±Ý¾×°ÇÃà
24.03.30°æÁÖÆÄÅ©662.2824.924716,2502016
24.03.29dz°æÃ¤102µ¿450.7921.7418,0002015
24.03.28»ï¼ºÄ³½½958.3511.7615,5002014
24.03.28¿¡µ§ÇÏÀÌÃ÷Aµ¿239.9726.265,0002001
24.03.27µ¿¸í¾ÆÆ®ºôAµ¿257.8521.78414,0002001
¢Ñ ´õº¸±â

µî±âºÎµîº» ¿ä¾à(°Ç¹°)

  Á¢¼öÀÏÀÚ µî±â¸ñÀû/±Ç¸®ÀÚ ±Ç¸®±Ý¾× ±âÁØ
1 2020³â6¿ù2ÀÏ
¼ÒÀ¯±Ç
±ÇOO
¼Ò¸ê
2 2023³â1¿ù12ÀÏ
°¡¾Ð·ù
°ûOO
108,195,507 ¼Ò¸ê±âÁØ
3 2023³â7¿ù21ÀÏ
ÀÓÂ÷±Ç¼³Á¤
±èOO
120,000,000 ¼Ò¸ê
4 2023³â8¿ù17ÀÏ
°¡¾Ð·ù
°æOOOO
84,255,553 ¼Ò¸ê
5 2023³â9¿ù26ÀÏ
°¡¾Ð·ù
±ÙOOOO
9,630,170 ¼Ò¸ê
6 2023³â10¿ù25ÀÏ
¾Ð·ù
±¹OOOO
¼Ò¸ê
7 2024³â2¿ù22ÀÏ
¾Ð·ù
±¹
¼Ò¸ê
8 2024³â3¿ù12ÀÏ
¾Ð·ù
±¹
¼Ò¸ê
9 2025³â1¿ù7ÀÏ
°­Á¦°æ¸Å
ÁÖOOOO
¼Ò¸ê

ÀÓÂ÷ÀÎÇöȲ (¹è´ç¿ä±¸Á¾±âÀÏ: 2025-03-31)

ÀÓÂ÷ÀÎ ¿ëµµ/Á¡À¯ º¸Áõ±Ý/¿ù¼¼ ´ëÇ×·Â
ÀüÀÔÀÏ/È®Á¤ÀÏ ¹è´ç¿ä±¸ ºñ°í
±èOO ÀüºÎ 120,000,000
O
2020.7.16.
2020.7.1.
2020.7.20.~
ÁÖOOOOOOOOOOOOOOOO ÀüºÎ 120,000,000
O
2020.7.16.
2020.7.1.
2024.12.20. 2020.7.20.~2022.7.20.
ºñ°í
(¸Å°¢¹°°Ç
¸í¼¼¼­)
ÁÖÅõµ½Ãº¸Áõ°ø»ç(ÀÓÂ÷ÀÎ:±èÁ¾È£):ÁÖÅÃÀÓÂ÷±ÇÀÚÀÎ ±èÁ¾È£ÀÇ ÀÓÂ÷º¸Áõ±Ý¹Ýȯä±ÇÀ» ¾ç¼öÇÑ ½Â°èÀÎÀ¸·Î¼­ ½Åûä±ÇÀÚÀÌ¸ç ±Ç¸® ½Å°í ¹× ¹è´ç¿ä±¸ÀÏÀÚ´Â ÀÌ »ç°Ç ½ÅûÀÏÀÓ. ÀÌ »ç°Ç¿¡¼­ ÀÓÂ÷º¸Áõ±Ý Àü¾×À» ¹è´ç¹ÞÁö ¸øÇÏ´õ¶óµµ ¸Å¼öÀο¡ ´ëÇÑ ÀÜÁ¸ ÀÓÂ÷º¸ Áõ±Ý¹Ýȯä±ÇÀ» Æ÷±âÇϰí ÁÖÅÃÀÓÂ÷±Ç µî±âÀÇ ¸»¼Ò¿¡ µ¿ÀÇÇÑ´Ù´Â ÃëÁöÀÇ È®¾à¼­¸¦ Á¦ÃâÇÔ.

¿©ÀÇÁÖ°æ¸Å Á¶¾ð ÇÑ ¸¶µð

¼±¼øÀ§ ÀÓÂ÷±Çµî±â°¡ µÇ¾î ÀÖ½À´Ï´Ù
´ëÇ×·ÂÀÌ ÀÖ´Â ¼±¼øÀ§ ÀÓÂ÷±Çµî±â ±Ç¸®ÀÚ°¡ ¹è´çÀ» Àü¾× ¹ÞÁö ¸øÇÒ °æ¿ì ³«ÂûÀÚ°¡ ÀÜ¿© º¸Áõ±ÝÀ» ÀμöÇØ¾ßÇÏ´Â °æ¿ìµµ ÀÖ½À´Ï´Ù.

ÁÖÀÇ»çÇ× (ÃÖ¼±¼øÀ§ ¼³Á¤ÀÏ: 2023.1.12. °¡¾Ð·ù ¼³Á¤)

¸Å°¢À¸·Î ¼Ò¸êµÇÁö ¾Ê´Â µî±âºÎ±Ç¸®: À»±¸ ¼øÀ§ 6¹ø ÁÖÅÃÀÓÂ÷±Çµî±â(´Ù¸¸ ÁÖÅõµ½Ãº¸Áõ°ø»çÀÇ ¸»¼Òµ¿ÀÇ È®¾à¼­°¡ Á¦ÃâµÊ)
¸Å°¢À¸·Î ¼³Á¤µÈ °ÍÀ¸·Î º¸´Â Áö»ó±Ç:
¡Ø¹Ì³³°ü¸®ºñ(°ø¿ë) Àμö¿©ºÎ¸¦ ÀÔÂû Àü¿¡ È®ÀÎÇϽñ⠹ٶø´Ï´Ù

 

Áö¿ªºÐ¼®

ÁöÇÏö¸í Á÷¼±°Å¸®

Çб³¸í ÀüÈ­¹øÈ£ ÁÖ¼Ò Á÷¼±°Å¸®

¹ý¿ø

ÀÎõÁö¹æ¹ý¿ø (222-20)ÀÎõ±¤¿ª½Ã ¹ÌÃßȦ±¸ ¼Ò¼º·Î 163¹ø±æ 17(ÇÐÀ͵¿)
´ëÇ¥ : 032)860-1113~4
°üÇÒÁö¿ª : Áß±¸, µ¿±¸, ³²±¸, ¿¬¼ö±¸, ³²µ¿±¸, ºÎÆò±¸, °è¾ç±¸, ¼­±¸, ¿ËÁø±º, °­È­±º

µî±â¼Ò ÀÎõÁö¹æ¹ý¿ø º»¿ø µî±â±¹ (´ëÇ¥:1544-0773, ÆÑ½º:(032)620-9099, ÀÎõ±¤¿ª½Ã ¹ÌÃßȦ±¸ °æ¿ø´ë·Î 881(Á־ȵ¿ 983))
¼¼¹«¼­ ÀÎõ¼¼¹«¼­ (´ëÇ¥:032-770-02, ÆÑ½º:032-777-8104, ÀÎõ±¤¿ª½Ã µ¿±¸ ¿ì°¢·Î 75 (⿵µ¿))

Àαٳ«ÂûÅë°è

±â°£ ¸Å°¢°Ç¼ö Æò±Õ°¨Á¤°¡
Æò±Õ¸Å°¢°¡
¸Å°¢°¡À²
Æò±ÕÀ¯Âû¼ö
3°³¿ù 88°Ç 142,635,227¿ø
80,650,842¿ø
56%
2.4ȸ
6°³¿ù 172°Ç 144,226,163¿ø
87,109,953¿ø
60%
2.2ȸ
12°³¿ù 331°Ç 137,671,299¿ø
84,290,189¿ø
61%
2.2ȸ


º» °æ¸ÅÁ¤º¸´Â ¹ý¿øÀÚ·á¿Í ÀÏÄ¡Çϵµ·Ï ÇÏ¿´À¸³ª ±Ç¸®»çÇ׺¯µ¿, ÀÔ·ÂÂø¿À µîÀÇ ¿øÀÎÀ¸·Î »ç½Ç°ú ´Ù¸¦ ¼ö ÀÖ½À´Ï´Ù. ÀÌ¿ë¾à°ü¿¡ ÀǰЏéÃ¥Á¶°ÇÀ¸·Î Á¦°øµÊÀ» ¾Ë¸®¸ç, °æ¸ÅÀÔÂû½Ã ¹Ýµå½Ã °ü·Ã °øºÎ¸¦ ÀçÈ®ÀÎÇϽñ⠹ٶø´Ï´Ù. º¸´Ù Æí¸®ÇÑ °æ¸ÅÁ¤º¸ Á¦°øÀ» À§ÇØ Áö¼ÓÀûÀ¸·Î °³¼±ÇϰڽÀ´Ï´Ù. ÀÌ¿ëÇØ Áּż­ °¨»çÇÕ´Ï´Ù.