·Î±×ÀÎ
1162
¾ÆÆÄÆ®
ÀÎõÁö¹æ¹ý¿ø
 °¨Á¤°¡211,000,000 ¿ø
 ÃÖÀú°¡(100%) 211,000,000 ¿ø
 º¸Áõ±Ý(10%) 21,100,000 ¿ø
 Ã»±¸¾×270,934,460 ¿ø
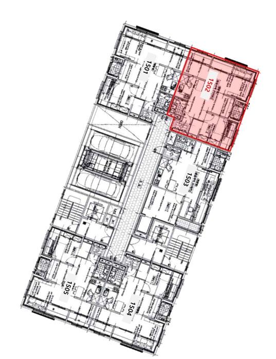
ÀÎõ±¤¿ª½Ã ¹ÌÃßȦ±¸ ÀÎÁß·Î 19, ¿¡À̵¿ 15Ãþ1502È£ (¼þÀǵ¿,ÇѸ¶À½¾ÆÆÄÆ®)
ÀÎõ±¤¿ª½Ã ¹ÌÃßȦ±¸ ¼þÀǵ¿ 353-22
»ç°Ç¹øÈ£ 2024Ÿ°æ568163
°æ¸ÅÁ¾·ùºÎµ¿»ê°­Á¦°æ¸Å
¸Å°¢´ë»óÅäÁö ¹× °Ç¹°Àϰý ¸Å°¢
¸Å°¢±âÀÏ    2026.03.13(±Ý) 10:00 ÀÔÂû 5ÀÏÀü    
ÅäÁö¸éÀû9.29§³(2.81 Æò)
°Ç¹°¸éÀû49.70§³(15.03 Æò)
乫/¼ÒÀ¯ÀÚ¹ÚOO / ¹ÚOO
ä±ÇÀÚÁÖOOOOOOO
ÆäÀ̽ººÏ Æ®À§ÅÍ ±¸±Û+
īī¿À½ºÅ丮
īī¿ÀÅå sms¹®ÀÚº¸³»±â
 

±âÀϳ»¿ª

°æ°ú ³¯Â¥ Àú°¨ ÃÖÀú°¡ °á°ú
Á¢¼öÀÏ 2024-10-18 °æ¸ÅÁ¢¼ö
~3ÀÏ 
2024-10-21 °æ¸Å°³½Ã°áÁ¤
~87ÀÏ 
2025-01-13 ¹è´ç¿ä±¸Á¾±âÀÏ
~347ÀÏ 
2025-09-30 100%
211,000,000
À¯Âû
~395ÀÏ 
2025-11-17 70%
147,700,000
À¯Âû
~425ÀÏ 
2025-12-17 49%
103,390,000
À¯Âû
~469ÀÏ 
2026-01-30 34%
72,373,000
º¯°æ
~511ÀÏ 
2026-03-13 100%
211,000,000
ÁøÇà
¹°°Ç¸í¼¼¼­ ÇöȲÁ¶»ç¼­ ¹®°ÇÁ¢¼ö ¼Û´Þ³»¿ª

°¨Á¤Æò°¡ÇöȲ

¸ñ·Ï ÁÖ¼Ò ±¸Á¶/¿ëµµ/´ëÁö±Ç ¸éÀû ºñ°í
´ëÁö±Ç
¼þÀǵ¿ 353-22 719.8ºÐÀÇ 9.29 9.29 §³
(2.81Æò)
°Ç¹°
¼þÀǵ¿ 353-22 ¿¡À̵¿ 15Ãþ1502È£ ö±ÙÄÜÅ©¸®Æ®±¸Á¶ 49.7 §³
(15.03Æò)
1) À§Ä¡/ÀϹݻó¾÷Áö¿ª/ÁöÇÏö/³ë¼±¹ö½º Á¤·ùÀå/ö±ÙÄÜÅ©¸®Æ®±¸Á¶/µµ½Ã°¡½º/°³º°³­¹æ ´õº¸±â
°¨Á¤Æò°¡ ¿äÇ×Ç¥
1)À§Ä¡ ¹× ÁÖÀ§È¯°æ
º»°ÇÀº ÀÎõ±¤¿ª½Ã ¹ÌÃßȦ±¸ ¼þÀǵ¿ ¼ÒÀç "¼þÀÇ·ÎÅ͸®" ºÏ¼­Ãø Àαٿ¡ À§Ä¡Çϸç ÁÖÀ§´Â °øµ¿ÁÖÅÃ, ¾÷¹«½Ã¼³, ±Ù¸°»ýȰ½Ã¼³ µîÀ¸·Î Çü¼ºµÇ¾î ÀÖ´Â »ó¾÷Áö´ë¿¡ ¼ÒÀçÇÔ.
2)±³Åë»óȲ
º»°Ç±îÁö Â÷·®ÀÇ Á¢±ÙÀÌ ¿ëÀÌÇϰí Àαٿ¡ ³ë¼±¹ö½º Á¤·ùÀå ¹× ÁöÇÏö ¼öÀκд缱"¼þÀÇ¿ª"ÀÌ ¼ÒÀçÇϰí ÀÖ¾î ´ëÁß±³Åë»çÁ¤Àº ¾çÈ£ÇÔ.
3)°Ç¹°ÀÇ ±¸Á¶
ö±ÙÄÜÅ©¸®Æ®±¸Á¶ (ö±Ù)ÄÜÅ©¸®Æ®ÁöºØ ÁöÇÏ1Ãþ-Áö»ó15Ãþ Áß 15Ãþ 1502È£·Î¼­,
(»ç¿ë½ÂÀÎÀÏ:2017.01.23)
¿Üº®: ½Ã¸àÆ®¸ôÅ» À§ ÆäÀÎÆ®¸¶°¨,
âȣ: »õ½ÃâÀÓ.
4)ÀÌ¿ë»óÅÂ
¾ÆÆÄÆ®·Î ÀÌ¿ëÁßÀÓ.
5)¼³ºñ³»¿ª
À§»ý¼³ºñ, ±Þ¹è¼ö¼³ºñ, µµ½Ã°¡½º¼³ºñ, °³º°³­¹æ¼³ºñ, ½Â°­±â¼³ºñ µîÀÌ µÇ¾îÀÖÀ½.
6)ÅäÁöÀÇ Çü»ó ¹× ÀÌ¿ë»óÅÂ
À广Çü ÆòÁö·Î¼­ ¾÷¹«½Ã¼³ ¹× °øµ¿ÁÖÅÃ¿ë °ÇºÎÁö·Î ÀÌ¿ëÁßÀÓ.
7)ÀÎÁ¢ µµ·Î»óŵî
º»°Ç ºÏÃøÀ¸·Î Æø25¹ÌÅÍ, ³²ÃøÀ¸·Î Æø4¹ÌÅÍ ³»¿Ü Æ÷Àåµµ·Î¿¡ Á¢ÇÔ.
8)ÅäÁöÀÌ¿ë°èȹ ¹× Á¦ÇÑ»óÅÂ
ÀϹݻó¾÷Áö¿ª(2022-06-13) , ¹æÈ­Áö±¸ , ½Ã°¡Áö°æ°üÁö±¸(2022-10-11),°¡Ãà»çÀ°Á¦Çѱ¸¿ª(ÀÎõ±¤¿ª½Ã ¹ÌÃßȦ±¸ °¡Ãà»çÀ°Á¦ÇÑ¿¡ °üÇÑ Á¶·Ê[2018. 7. 1.])<°¡ÃàºÐ´¢ÀÇ °ü¸® ¹× À̿뿡 °üÇÑ ¹ý·ü>, °ú¹Ð¾ïÁ¦±Ç¿ª<¼öµµ±ÇÁ¤ºñ°èȹ¹ý>.
9)°øºÎ¿ÍÀÇ Â÷ÀÌ
ÇØ´ç»çÇ× ¾øÀ½.
10)±âŸÂü°í»çÇ×(ÀÓ´ë°ü·Ê ¹× ±âŸ)
ÀÓ´ë°ü°è: ¹Ì»óÀÓ.

Âü°í
»çÇ×

1. ö±ÙÄÜÅ©¸®Æ®±¸Á¶ (ö±Ù)

°ÇÃ๰ÇöȲ

¼ÒÀçÁö ÀÎõ±¤¿ª½Ã ¹ÌÃßȦ±¸ ¼þÀǵ¿ 353-22¹øÁö
´ëÁö¸éÀû 719.8§³
(218.12Æò)
¿¬¸éÀû 5525.24§³
(1674.32Æò)
°ÇÃà¸éÀû 508.2§³
(154Æò)
¿ëÀû·ü»êÁ¤
¿¬¸éÀû
5339.22§³
(1617.95Æò)
°ÇÆóÀ² 70.6% ¿ëÀû·ü 741.76%
Áö»óÃþ¼ö 15Ãþ ÁöÇÏÃþ¼ö 1Ãþ
ÁÖ¿ëµµ °øµ¿ÁÖÅà ±¸Á¶ ö±ÙÄÜÅ©¸®Æ®±¸Á¶
Âø°øÀÏÀÚ 2015.12.24 »ç¿ë½ÂÀÎÀÏÀÚ 2017.01.23


±¹ÅäºÎ½Ç°Å·¡°¡ ÀÎõ±¤¿ª½Ã ¹ÌÃßȦ±¸ ¼þÀǵ¿

¡Ü ¸Å¸Å

¸éÀû(§³), ±Ý¾×(¸¸¿ø)

¡Ü Àü¼¼

¸éÀû(§³), ±Ý¾×(¸¸¿ø)

°è¾àÀÏARTÃþÀü¿ëº¸Áõ±Ý¿ù¼¼°ÇÃà
25.09.29ÇѸ¶À½¾ÆÆÄÆ®101749.81,000752017
25.09.23ÇѸ¶À½¾ÆÆÄÆ®101949.715,0002017
25.08.11ÇѸ¶À½¾ÆÆÄÆ®1011349.814,0002017
25.06.16ÇѸ¶À½¾ÆÆÄÆ®1011049.711,55002017

µî±âºÎµîº» ¿ä¾à(°Ç¹°)

  Á¢¼öÀÏÀÚ µî±â¸ñÀû/±Ç¸®ÀÚ ±Ç¸®±Ý¾× ±âÁØ
1 2017³â2¿ù6ÀÏ
¼ÒÀ¯±Ç
¹ÚOO
¼Ò¸ê
2 2022³â12¿ù1ÀÏ
¾àÁ¤/±ÝÁö»çÇ×/ȯ¸ÅƯ¾à
Àμö
3 2024³â2¿ù23ÀÏ
ÀÓÂ÷±Ç¼³Á¤
Á¶OO
260,000,000 Àμö
4 2024³â10¿ù22ÀÏ
°­Á¦°æ¸Å
ÁÖOOOO
¼Ò¸ê±âÁØ

ÀÓÂ÷ÀÎÇöȲ (¹è´ç¿ä±¸Á¾±âÀÏ: 2025-01-13)

ÀÓÂ÷ÀÎ ¿ëµµ/Á¡À¯ º¸Áõ±Ý/¿ù¼¼ ´ëÇ×·Â
ÀüÀÔÀÏ/È®Á¤ÀÏ ¹è´ç¿ä±¸ ºñ°í
Á¶OO ÀüºÎ 260,000,000
O
2023.1.16.
2022.12.23.
2023.1.16.~
ÁÖOOOOOOOOOOOOOOOO ÀüºÎ 260,000,000
O
2023.1.16.
2022.12.23.
2024.10.18. 2023.1.16.~2025.1.16.
ºñ°í
(¸Å°¢¹°°Ç
¸í¼¼¼­)
ÁÖÅõµ½Ãº¸Áõ°ø»ç(ÀÓÂ÷ÀÎ:Á¶¹®°æ):ÁÖÅÃÀÓÂ÷±ÇÀÚÀÎ Á¶¹®°æÀÇ ÀÓÂ÷º¸Áõ±Ý¹Ýȯä±ÇÀ» ¾ç¼öÇÑ ½Â°èÀÎÀ¸·Î¼­ ½Åûä±ÇÀÚÀÌ¸ç ±Ç¸® ½Å°í ¹× ¹è´ç¿ä±¸ÀÏÀÚ´Â ÀÌ »ç°Ç ½ÅûÀÏÀÓ. ÀÌ »ç°Ç¿¡¼­ ÀÓÂ÷º¸Áõ±Ý Àü¾×À» ¹è´ç¹ÞÁö ¸øÇÏ´õ¶óµµ ¸Å¼öÀο¡ ´ëÇÑ ÀÜÁ¸ ÀÓÂ÷º¸ Áõ±Ý¹Ýȯä±ÇÀ» Æ÷±âÇϰí ÁÖÅÃÀÓÂ÷±Ç µî±âÀÇ ¸»¼Ò¿¡ µ¿ÀÇÇÑ´Ù´Â ÃëÁöÀÇ È®¾à¼­¸¦ Á¦ÃâÇÔ.

¿©ÀÇÁÖ°æ¸Å Á¶¾ð ÇÑ ¸¶µð

¼±¼øÀ§ ÀÓÂ÷±Çµî±â°¡ µÇ¾î ÀÖ½À´Ï´Ù
´ëÇ×·ÂÀÌ ÀÖ´Â ¼±¼øÀ§ ÀÓÂ÷±Çµî±â ±Ç¸®ÀÚ°¡ ¹è´çÀ» Àü¾× ¹ÞÁö ¸øÇÒ °æ¿ì ³«ÂûÀÚ°¡ ÀÜ¿© º¸Áõ±ÝÀ» ÀμöÇØ¾ßÇÏ´Â °æ¿ìµµ ÀÖ½À´Ï´Ù.

ÁÖÀÇ»çÇ× (ÃÖ¼±¼øÀ§ ¼³Á¤ÀÏ: 2024.10.22. °­Á¦°æ¸Å°³½Ã ¼³Á¤ °áÁ¤)

¸Å°¢À¸·Î ¼Ò¸êµÇÁö ¾Ê´Â µî±âºÎ±Ç¸®: À»±¸ ¼øÀ§ 5¹ø ÁÖÅÃÀÓÂ÷±Çµî±â(´Ù¸¸ ÁÖÅõµ½Ãº¸Áõ°ø»çÀÇ ¸»¼Òµ¿ÀÇ È®¾à¼­°¡ Á¦ÃâµÊ)
¸Å°¢À¸·Î ¼³Á¤µÈ °ÍÀ¸·Î º¸´Â Áö»ó±Ç:
°Ç¹°¿Üº® '101µ¿'À¸·Î Ç¥±âµÊ
¡Ø¹Ì³³°ü¸®ºñ(°ø¿ë) Àμö¿©ºÎ¸¦ ÀÔÂû Àü¿¡ È®ÀÎÇϽñ⠹ٶø´Ï´Ù

 

Áö¿ªºÐ¼®

ÁöÇÏö¸í Á÷¼±°Å¸®

Çб³¸í ÀüÈ­¹øÈ£ ÁÖ¼Ò Á÷¼±°Å¸®

¹ý¿ø

ÀÎõÁö¹æ¹ý¿ø (222-20)ÀÎõ±¤¿ª½Ã ¹ÌÃßȦ±¸ ¼Ò¼º·Î 163¹ø±æ 17(ÇÐÀ͵¿)
´ëÇ¥ : 032)860-1113~4
°üÇÒÁö¿ª : Áß±¸, µ¿±¸, ³²±¸, ¿¬¼ö±¸, ³²µ¿±¸, ºÎÆò±¸, °è¾ç±¸, ¼­±¸, ¿ËÁø±º, °­È­±º

µî±â¼Ò ÀÎõÁö¹æ¹ý¿ø º»¿ø µî±â±¹ (´ëÇ¥:1544-0773, ÆÑ½º:(032)620-9099, ÀÎõ±¤¿ª½Ã ¹ÌÃßȦ±¸ °æ¿ø´ë·Î 881(Á־ȵ¿ 983))
¼¼¹«¼­ ÀÎõ¼¼¹«¼­ (´ëÇ¥:032-770-02, ÆÑ½º:032-777-8104, ÀÎõ±¤¿ª½Ã µ¿±¸ ¿ì°¢·Î 75 (⿵µ¿))

Àαٳ«ÂûÅë°è

±â°£ ¸Å°¢°Ç¼ö Æò±Õ°¨Á¤°¡
Æò±Õ¸Å°¢°¡
¸Å°¢°¡À²
Æò±ÕÀ¯Âû¼ö


º» °æ¸ÅÁ¤º¸´Â ¹ý¿øÀÚ·á¿Í ÀÏÄ¡Çϵµ·Ï ÇÏ¿´À¸³ª ±Ç¸®»çÇ׺¯µ¿, ÀÔ·ÂÂø¿À µîÀÇ ¿øÀÎÀ¸·Î »ç½Ç°ú ´Ù¸¦ ¼ö ÀÖ½À´Ï´Ù. ÀÌ¿ë¾à°ü¿¡ ÀǰЏéÃ¥Á¶°ÇÀ¸·Î Á¦°øµÊÀ» ¾Ë¸®¸ç, °æ¸ÅÀÔÂû½Ã ¹Ýµå½Ã °ü·Ã °øºÎ¸¦ ÀçÈ®ÀÎÇϽñ⠹ٶø´Ï´Ù. º¸´Ù Æí¸®ÇÑ °æ¸ÅÁ¤º¸ Á¦°øÀ» À§ÇØ Áö¼ÓÀûÀ¸·Î °³¼±ÇϰڽÀ´Ï´Ù. ÀÌ¿ëÇØ Áּż­ °¨»çÇÕ´Ï´Ù.