·Î±×ÀÎ
410
´Ù¼¼´ë(ºô¶ó)
ÀÎõÁö¹æ¹ý¿ø
 °¨Á¤°¡126,000,000 ¿ø
 ÃÖÀú°¡(70%) 88,200,000 ¿ø
 º¸Áõ±Ý(10%) 8,820,000 ¿ø
 Ã»±¸¾×155,000,000 ¿ø
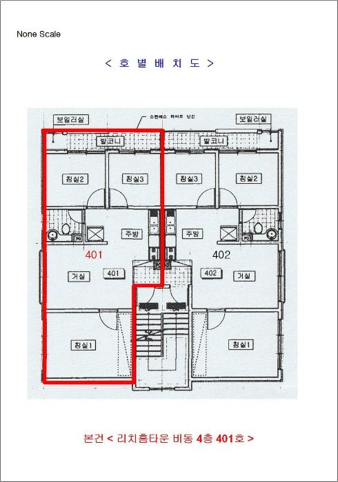
ÀÎõ±¤¿ª½Ã ¹ÌÃßȦ±¸ Áֽ·Π119-1, ºñµ¿ 4Ãþ401È£ (Á־ȵ¿,¸®Ä¡È¨Å¸¿î)
ÀÎõ±¤¿ª½Ã ¹ÌÃßȦ±¸ Á־ȵ¿ 1218-11
»ç°Ç¹øÈ£ 2024Ÿ°æ582831
°æ¸ÅÁ¾·ùºÎµ¿»ê°­Á¦°æ¸Å
¸Å°¢´ë»óÅäÁö ¹× °Ç¹°Àϰý ¸Å°¢
¸Å°¢±âÀÏ    2025.11.14(±Ý) 10:00 ÀÔÂû 7ÀÏÀü    
ÅäÁö¸éÀû29.73§³(8.99 Æò)
°Ç¹°¸éÀû55.92§³(16.91 Æò)
乫/¼ÒÀ¯ÀÚ¹ÚOO / ¹ÚOO
ä±ÇÀÚÁÖOOOOOOO
ÆäÀ̽ººÏ Æ®À§ÅÍ ±¸±Û+
īī¿À½ºÅ丮
īī¿ÀÅå sms¹®ÀÚº¸³»±â
 

±âÀϳ»¿ª

°æ°ú ³¯Â¥ Àú°¨ ÃÖÀú°¡ °á°ú
Á¢¼öÀÏ 2024-12-18 °æ¸ÅÁ¢¼ö
~1ÀÏ 
2024-12-19 °æ¸Å°³½Ã°áÁ¤
~86ÀÏ 
2025-03-14 ¹è´ç¿ä±¸Á¾±âÀÏ
~285ÀÏ 
2025-09-29 100%
126,000,000
À¯Âû
~331ÀÏ 
2025-11-14 70%
88,200,000
ÁøÇà
¹°°Ç¸í¼¼¼­ ÇöȲÁ¶»ç¼­ ¹®°ÇÁ¢¼ö ¼Û´Þ³»¿ª

°¨Á¤Æò°¡ÇöȲ

¸ñ·Ï ÁÖ¼Ò ±¸Á¶/¿ëµµ/´ëÁö±Ç ¸éÀû ºñ°í
´ëÁö±Ç
Á־ȵ¿ 1218-11 466ºÐÀÇ 29.73 29.73 §³
(8.99Æò)
°Ç¹°
Á־ȵ¿ 1218-11 ºñµ¿ 4Ãþ401È£ ö±ÙÄÜÅ©¸®Æ®Á¶ 55.915 §³
(16.91Æò)
1) À§Ä¡/Á¦2Á¾ÀϹÝÁÖ°ÅÁö¿ª/¹ö½ºÁ¤·ùÀå/Â÷·® Á¢±ÙÀÌ °¡´É/ö±ÙÄÜÅ©¸®Æ®Á¶/µµ½Ã°¡½º ´õº¸±â
°¨Á¤Æò°¡ ¿äÇ×Ç¥
1)À§Ä¡ ¹× ÁÖÀ§È¯°æ
º»°ÇÀº ÀÎõ±¤¿ª½Ã ¹ÌÃßȦ±¸ °ü±³µ¿ ¼ÒÀç "°ü±³¿©ÀÚÁßÇб³" ¼­Ãø Àαٿ¡ À§Ä¡Çϸç, ÁÖÀ§´Â
µ¿À¯ÇüÀÇ °øµ¿ÁÖÅÃ, ´Üµ¶ÁÖÅà ¹× ±Ù¸°»ýȰ½Ã¼³ µîÀÌ ¼ÒÀçÇÏ´Â Áö¿ªÀÓ.
2)±³Åë»óȲ
º»°Ç±îÁö Â÷·® Á¢±ÙÀÌ °¡´ÉÇϰí Àαٿ¡ ¹ö½ºÁ¤·ùÀåÀÌ ¼ÒÀçÇÏ´Â µî ´ëÁß±³Åë À̿뿩°ÇÀº
¹«³­ÇÑ ÆíÀÓ.
3)°Ç¹°ÀÇ ±¸Á¶
ö±ÙÄÜÅ©¸®Æ®Á¶ ÄÜÅ©¸®Æ®ÁöºØ 5Ãþ °Ç³» 4Ãþ 401È£·Î¼­
(»ç¿ë½ÂÀÎÀÏ: 2002.9.18)
¿Üº®: µå¶óÀ̺ñÆ® ¸¶°¨
³»º®: º®Áö µî ¸¶°¨
âȣ: ¼¦½Ã âȣ ¸¶°¨
4)ÀÌ¿ë»óÅÂ
´Ù¼¼´ëÁÖÅÃÀ¸·Î ÀÌ¿ëÁßÀÓ.
5)¼³ºñ³»¿ª
±Þ¹è¼ö¼³ºñ, À§»ý¼³ºñ, ³­¹æ¼³ºñ ¹× µµ½Ã°¡½º¼³ºñ µîÀ» ±¸ºñÇϰí ÀÖÀ½.


6)ÅäÁöÀÇ Çü»ó ¹× ÀÌ¿ë»óÅÂ
´ëü·Î À广ÇüÀÇ ÅäÁö·Î¼­ ´Ù¼¼´ëÁÖÅà °ÇºÎÁö·Î ÀÌ¿ëÁßÀÓ.
7)ÀÎÁ¢ µµ·Î»óŵî
º»°Ç ³²ÃøÀ¸·Î ³ëÆø ¾à 20¹ÌÅÍ, ¼­ÃøÀ¸·Î ¾à 8¹ÌÅÍ ³»¿ÜÀÇ Æ÷Àåµµ·Î¿Í Á¢ÇÔ.
8)ÅäÁöÀÌ¿ë°èȹ ¹× Á¦ÇÑ»óÅÂ
Á¦2Á¾ÀϹÝÁÖ°ÅÁö¿ª(2023-09-25),°¡Ãà»çÀ°Á¦Çѱ¸¿ª(ÀÎõ±¤¿ª½Ã ¹ÌÃßȦ±¸ °¡Ãà»ç
À°Á¦ÇÑ¿¡ °üÇÑ Á¶·Ê[2018.7.1.]),»ó´ëº¸È£±¸¿ª,°ú¹Ð¾ïÁ¦±Ç¿ª.
9)°øºÎ¿ÍÀÇ Â÷ÀÌ
¾ø À½.
10)±âŸÂü°í»çÇ×(ÀÓ´ë°ü·Ê ¹× ±âŸ)
1). ÀÓ´ë°ü°è: ¹Ì»óÀÓ.
2). ±âŸ»çÇ×: ¾ø À½.
Âü°í
»çÇ×

ö±ÙÄÜÅ©¸®Æ®Á¶

°ÇÃ๰ÇöȲ

¼ÒÀçÁö ÀÎõ±¤¿ª½Ã ¹ÌÃßȦ±¸ Á־ȵ¿ 1218-11¹øÁö
´ëÁö¸éÀû   ¿¬¸éÀû 500.72§³
(151.73Æò)
°ÇÃà¸éÀû 128.15§³
(38.83Æò)
¿ëÀû·ü»êÁ¤
¿¬¸éÀû
500.72§³
(151.73Æò)
°ÇÆóÀ²   ¿ëÀû·ü  
Áö»óÃþ¼ö 5Ãþ ÁöÇÏÃþ¼ö  
ÁÖ¿ëµµ °øµ¿ÁÖÅà ±¸Á¶ ö±ÙÄÜÅ©¸®Æ®±¸Á¶
Âø°øÀÏÀÚ 2002.02.22 »ç¿ë½ÂÀÎÀÏÀÚ 2002.09.18


±¹ÅäºÎ½Ç°Å·¡°¡ ÀÎõ±¤¿ª½Ã ¹ÌÃßȦ±¸ Á־ȵ¿

¡Ü ¸Å¸Å

¸éÀû(§³), ±Ý¾×(¸¸¿ø)

¡Ü Àü¼¼

¸éÀû(§³), ±Ý¾×(¸¸¿ø)

°è¾àÀϰǹ°¸íĪÃþ¿¬¸éÀû´ëÁö±Ý¾×°ÇÃà
24.03.30ÁøÁÖ¾ÆÆ®ºô3µ¿259.6430.7212,5002003
24.03.30Çö¼ºÄ³½½466.37526.6612,5002010
24.03.30ÁÖ°øºô¶ó(4,5µ¿)-141.3520.1575,2001992
24.03.30¿ù¹Ìºô¶ó(°¡,³ªµ¿)136.3824.765,9001991
24.03.29¼­¿ìº£½ºÆ®ºô6Â÷B45223.7414,7002002
¢Ñ ´õº¸±â

µî±âºÎµîº» ¿ä¾à(°Ç¹°)

  Á¢¼öÀÏÀÚ µî±â¸ñÀû/±Ç¸®ÀÚ ±Ç¸®±Ý¾× ±âÁØ
1 2022³â5¿ù16ÀÏ
¼ÒÀ¯±Ç
¹ÚOO
¼Ò¸ê
2 2024³â6¿ù12ÀÏ
ÀÓÂ÷±Ç¼³Á¤
±èOO
155,000,000 Àμö
3 2024³â12¿ù19ÀÏ
°­Á¦°æ¸Å
ÁÖOOOO
¼Ò¸ê±âÁØ

ÀÓÂ÷ÀÎÇöȲ (¹è´ç¿ä±¸Á¾±âÀÏ: 2025-03-14)

ÀÓÂ÷ÀÎ ¿ëµµ/Á¡À¯ º¸Áõ±Ý/¿ù¼¼ ´ëÇ×·Â
ÀüÀÔÀÏ/È®Á¤ÀÏ ¹è´ç¿ä±¸ ºñ°í
±èOO ÀüºÎ 155,000,000
O
2022. 4. 25.
2022. 3. 7.
2022. 4. 22.~
ÁÖOOOOOOOOOOOOOOO ÀüºÎ 155,000,000
O
2022. 4. 25.
2022. 3. 7.
2025. 2. 12. 2022. 4. 22.~2024. 10. 2.
ºñ°í
(¸Å°¢¹°°Ç
¸í¼¼¼­)
- ±è±¤Àç : ÁÖÅÃÀÓÂ÷±Çµî±â±ÇÀڷμ­ ÁÖÅÃÀÓÂ÷±Çµî±âÀÏÀº 2024. 6. 12.ÀÓ - ÁÖÅõµ½Ãº¸Áõ°ø»ç(ÀÓÂ÷ÀÎ ±è±¤Àç) : °æ¸Å½Åû±ÇÀÚÀ̸ç ÁÖÅÃÀÓ´ëÂ÷º¸È£¹ý Á¦3Á¶ÀÇ2 Á¦7Ç× Á¦9È£ÀÇ ±â°üÀ¸·Î ÀÓÂ÷ÀÎ ±è±¤Àç·Î ºÎÅÍ º¸Áõ±Ý¹Ýȯä±ÇÀ» °è¾àÀ¸·Î ¾ç¼öÇÔ. º¸Áõ±Ý Àü¾×À» ¹è´ç¹ÞÁö ¸øÇÏ´õ¶óµµ ÀÜÁ¸ ÀÓÂ÷ º¸Áõ±Ý¹Ýȯä±ÇÀ» Æ÷±âÇϰí ÁÖÅÃÀÓÂ÷±Çµî±â ¸»¼Ò¿¡ µ¿ÀÇÇÑ´Ù´Â ÃëÁöÀÇ È®¾à¼­¸¦ Á¦ÃâÇÔ

¿©ÀÇÁÖ°æ¸Å Á¶¾ð ÇÑ ¸¶µð

¼±¼øÀ§ ÀÓÂ÷±Çµî±â°¡ µÇ¾î ÀÖ½À´Ï´Ù
´ëÇ×·ÂÀÌ ÀÖ´Â ¼±¼øÀ§ ÀÓÂ÷±Çµî±â ±Ç¸®ÀÚ°¡ ¹è´çÀ» Àü¾× ¹ÞÁö ¸øÇÒ °æ¿ì ³«ÂûÀÚ°¡ ÀÜ¿© º¸Áõ±ÝÀ» ÀμöÇØ¾ßÇÏ´Â °æ¿ìµµ ÀÖ½À´Ï´Ù.

ÁÖÀÇ»çÇ× (ÃÖ¼±¼øÀ§ ¼³Á¤ÀÏ: 2024. 12. 19. ¼³Á¤ °­Á¦°æ¸Å°³½Ã°áÁ¤)

¸Å°¢À¸·Î ¼Ò¸êµÇÁö ¾Ê´Â µî±âºÎ±Ç¸®: À»±¸ ¼øÀ§ 9¹ø ÁÖÅÃÀÓÂ÷±Çµî±â(´Ù¸¸ ÁÖÅõµ½Ãº¸Áõ°ø»çÀÇ ¸»¼Òµ¿ÀÇ È®¾à¼­°¡ Á¦ÃâµÊ)
¸Å°¢À¸·Î ¼³Á¤µÈ °ÍÀ¸·Î º¸´Â Áö»ó±Ç:
2025.04.03 ä±ÇÀÚ ÁÖOOOOOOO ÀμöÁ¶°Çº¯°æÈ®¾à¹×¸Å°¢±âÀϺ¯°æ½Åû Á¦Ãâ
¡Ø¹Ì³³°ü¸®ºñ(°ø¿ë) Àμö¿©ºÎ¸¦ ÀÔÂû Àü¿¡ È®ÀÎÇϽñ⠹ٶø´Ï´Ù

 

Áö¿ªºÐ¼®

ÁöÇÏö¸í Á÷¼±°Å¸®

Çб³¸í ÀüÈ­¹øÈ£ ÁÖ¼Ò Á÷¼±°Å¸®

¹ý¿ø

ÀÎõÁö¹æ¹ý¿ø (222-20)ÀÎõ±¤¿ª½Ã ¹ÌÃßȦ±¸ ¼Ò¼º·Î 163¹ø±æ 17(ÇÐÀ͵¿)
´ëÇ¥ : 032)860-1113~4
°üÇÒÁö¿ª : Áß±¸, µ¿±¸, ³²±¸, ¿¬¼ö±¸, ³²µ¿±¸, ºÎÆò±¸, °è¾ç±¸, ¼­±¸, ¿ËÁø±º, °­È­±º

µî±â¼Ò ÀÎõÁö¹æ¹ý¿ø º»¿ø µî±â±¹ (´ëÇ¥:1544-0773, ÆÑ½º:(032)620-9099, ÀÎõ±¤¿ª½Ã ¹ÌÃßȦ±¸ °æ¿ø´ë·Î 881(Á־ȵ¿ 983))
¼¼¹«¼­ ÀÎõ¼¼¹«¼­ (´ëÇ¥:032-770-02, ÆÑ½º:032-777-8104, ÀÎõ±¤¿ª½Ã µ¿±¸ ¿ì°¢·Î 75 (⿵µ¿))

Àαٳ«ÂûÅë°è

±â°£ ¸Å°¢°Ç¼ö Æò±Õ°¨Á¤°¡
Æò±Õ¸Å°¢°¡
¸Å°¢°¡À²
Æò±ÕÀ¯Âû¼ö
3°³¿ù 88°Ç 142,635,227¿ø
80,650,842¿ø
56%
2.4ȸ
6°³¿ù 174°Ç 144,441,954¿ø
86,860,926¿ø
60%
2.2ȸ
12°³¿ù 332°Ç 137,578,916¿ø
84,241,122¿ø
61%
2.2ȸ


º» °æ¸ÅÁ¤º¸´Â ¹ý¿øÀÚ·á¿Í ÀÏÄ¡Çϵµ·Ï ÇÏ¿´À¸³ª ±Ç¸®»çÇ׺¯µ¿, ÀÔ·ÂÂø¿À µîÀÇ ¿øÀÎÀ¸·Î »ç½Ç°ú ´Ù¸¦ ¼ö ÀÖ½À´Ï´Ù. ÀÌ¿ë¾à°ü¿¡ ÀǰЏéÃ¥Á¶°ÇÀ¸·Î Á¦°øµÊÀ» ¾Ë¸®¸ç, °æ¸ÅÀÔÂû½Ã ¹Ýµå½Ã °ü·Ã °øºÎ¸¦ ÀçÈ®ÀÎÇϽñ⠹ٶø´Ï´Ù. º¸´Ù Æí¸®ÇÑ °æ¸ÅÁ¤º¸ Á¦°øÀ» À§ÇØ Áö¼ÓÀûÀ¸·Î °³¼±ÇϰڽÀ´Ï´Ù. ÀÌ¿ëÇØ Áּż­ °¨»çÇÕ´Ï´Ù.