·Î±×ÀÎ
24
¿ÀÇǽºÅÚ
ÀÎõÁö¹æ¹ý¿ø
 °¨Á¤°¡232,000,000 ¿ø
 ÃÖÀú°¡(49%) 113,680,000 ¿ø
 º¸Áõ±Ý(10%) 11,368,000 ¿ø
 Ã»±¸¾×270,000,000 ¿ø
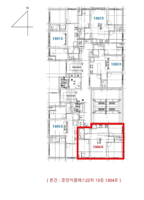
ÀÎõ±¤¿ª½Ã ºÎÆò±¸ ÀåÁ¦·Î52¹ø±æ 10-3, 13Ãþ1304È£ (ºÎÆòµ¿,Áß¾ÓÀÌŬ·¡½º22Â÷)
ÀÎõ±¤¿ª½Ã ºÎÆò±¸ ºÎÆòµ¿ 502-8
»ç°Ç¹øÈ£ 2024Ÿ°æ575017
°æ¸ÅÁ¾·ùºÎµ¿»ê°­Á¦°æ¸Å
¸Å°¢´ë»óÅäÁö ¹× °Ç¹°Àϰý ¸Å°¢
¸Å°¢±âÀÏ    2025.12.16(È­) 10:00 ÀÔÂû 23ÀÏÀü    
ÅäÁö¸éÀû7.63§³(2.31 Æò)
°Ç¹°¸éÀû59.67§³(18.05 Æò)
乫/¼ÒÀ¯ÀÚÀÌOO¿Ü 1¸í / ÀÌOO¿Ü 1¸í
ä±ÇÀÚÁÖOOOOOOO
ÆäÀ̽ººÏ Æ®À§ÅÍ ±¸±Û+
īī¿À½ºÅ丮
īī¿ÀÅå sms¹®ÀÚº¸³»±â
 

±âÀϳ»¿ª

°æ°ú ³¯Â¥ Àú°¨ ÃÖÀú°¡ °á°ú
Á¢¼öÀÏ 2024-11-20 °æ¸ÅÁ¢¼ö
~1ÀÏ 
2024-11-21 °æ¸Å°³½Ã°áÁ¤
~92ÀÏ 
2025-02-20 ¹è´ç¿ä±¸Á¾±âÀÏ
~313ÀÏ 
2025-09-29 100%
232,000,000
À¯Âû
~359ÀÏ 
2025-11-14 70%
162,400,000
À¯Âû
~391ÀÏ 
2025-12-16 49%
113,680,000
ÁøÇà
¹°°Ç¸í¼¼¼­ ÇöȲÁ¶»ç¼­ ¹®°ÇÁ¢¼ö ¼Û´Þ³»¿ª

°¨Á¤Æò°¡ÇöȲ

¸ñ·Ï ÁÖ¼Ò ±¸Á¶/¿ëµµ/´ëÁö±Ç ¸éÀû ºñ°í
´ëÁö±Ç
ºÎÆòµ¿ 502-8 594.3ºÐÀÇ 7.631 7.631 §³
(2.31Æò)
°Ç¹°
ºÎÆòµ¿ 502-8 13Ãþ1304È£ ö±ÙÄÜÅ©¸®Æ®±¸Á¶ 59.666 §³
(18.05Æò)
1) À§Ä¡/ÀϹݻó¾÷Áö¿ª/¹ö½ºÁ¤·ùÀå/ÁöÇÏö/ö±ÙÄÜÅ©¸®Æ®±¸Á¶/½½·¡ºêÁöºØ ´õº¸±â
°¨Á¤Æò°¡ ¿äÇ×Ç¥
1)À§Ä¡ ¹× ÁÖÀ§È¯°æ
º»°ÇÀº ÀÎõ±¤¿ª½Ã ºÎÆò±¸ ºÎ°³µ¿ ¼ÒÀç "ºÎ°³¼­ÃʵîÇб³" ¼­Ãø Àαٿ¡ À§Ä¡Çϸç, ÁÖÀ§´Â ¿ÀÇǽºÅÚ(ÁÖ°Å¿ë) ¹× ¾ÆÆÄÆ®, »ó¾÷¡¤¾÷¹«¿ëºôµù, °¢Á¾±Ù¸°»ýȰ½Ã¼³ µîÀÌ ¼ÒÀçÇÏ´Â »ó¾÷Áö¿ªÀ¸·Î Á¦¹Ý ÁÖÀ§È¯°æÀº º¸ÅëÀÓ.
2)±³Åë»óȲ
º»°Ç±îÁö Â÷·®ÃâÀÔÀÌ °¡´ÉÇϰí, Àαٿ¡ ¹ö½ºÁ¤·ùÀå ¹× ÁöÇÏö1È£¼± "ºÎÆò¿ª"ÀÌ ¼ÒÀç ÇÏ´Â µî ´ëÁß±³Åë»óȲÀº ¾çÈ£ÇÔ.
3)°Ç¹°ÀÇ ±¸Á¶
ö±ÙÄÜÅ©¸®Æ®±¸Á¶ ½½·¡ºêÁöºØ 17Ãþ °Ç¹° ³» Á¦13Ãþ Á¦1304È£·Î¼­,
(»ç¿ë½ÂÀÎÀÏ: 2017.11.02)
¿Üº®: ¸ôÅ»À§ ÆäÀÎÆÃ ¹× µ¹ºÙÀÓ ¸¶°¨ µî.
âȣ: ¼¦½Ã âȣ µîÀÓ.
4)ÀÌ¿ë»óÅÂ
¿ÀÇǽºÅÚ(ÁÖ°Å¿ë)·Î ÀÌ¿ëÁßÀÓ.(Æó¹®ºÎÀç·Î ³»ºÎÈ®ÀÎÀº ¸øÇÔ)
5)¼³ºñ³»¿ª
±âº»ÀûÀÎ À§»ý¼³ºñ ¹× ±Þ¡¤¹è¼ö¼³ºñ, ³­¹æ¼³ºñ, ¼ÒÈ­Àü¼³ºñ, ±â°è½ÄÁÖÂ÷¼³ºñ, ½Â°­±â¼³ºñ µîÀÌ ±¸ºñµÇ¾î ÀÖÀ½.
6)ÅäÁöÀÇ Çü»ó ¹× ÀÌ¿ë»óÅÂ
ÀÎÁ¢µµ·Î ´ëºñ µî°íÆòźÇÑ 2ÇÊÀÏ´ÜÀÇ ¼¼ÀåÇü ÅäÁö·Î¼­, ÁÖ»ó¿ë °ÇºÎÁö·Î ÀÌ¿ëÁßÀÓ.
7)ÀÎÁ¢ µµ·Î»óŵî
º»°ÇÅäÁö ºÏÃøÀ¸·Î ³ëÆø ¾à 8¹ÌÅÍ ³»¿Ü, ¼­ÃøÀ¸·Î ³ëÆø ¾à 4¹ÌÅÍ ³»¿ÜÀÇ Æ÷Àåµµ·Î¿¡ °¢°¢ Á¢ÇÔ.
8)ÅäÁöÀÌ¿ë°èȹ ¹× Á¦ÇÑ»óÅÂ
<ºÎÆòµ¿ 502-8, 502-9>
ÀϹݻó¾÷Áö¿ª, ¹æÈ­Áö±¸, °¡·Î±¸¿ªº° ÃÖ°í³ôÀÌ Á¦ÇÑÁö¿ª<°ÇÃà¹ý>, °ú¹Ð¾ïÁ¦±Ç¿ª<¼öµµ±ÇÁ¤ºñ°èȹ¹ý>
9)°øºÎ¿ÍÀÇ Â÷ÀÌ
¾øÀ½.
10)±âŸÂü°í»çÇ×(ÀÓ´ë°ü·Ê ¹× ±âŸ)
µî±â»çÇ×ÀüºÎÁõ¸í¼­ À»±¸ ¼øÀ§¹øÈ£ 3 ¿¡ "ÁÖÅÃÀÓÂ÷±Ç" µî±â ¼³Á¤µÊ.
-ÀÓÂ÷º¸Áõ±Ý: ±Ý270,000,000¿ø
-Á¡À¯°³½ÃÀÏ: 2021.10.29
º°Ã· "µî±â»çÇ×ÀüºÎÁõ¸í¼­" ÂüÁ¶
Âü°í
»çÇ×

º» °ÇÀº 17Ãþ ¾÷¹«½Ã¼³

°ÇÃ๰ÇöȲ

¼ÒÀçÁö ÀÎõ±¤¿ª½Ã ºÎÆò±¸ ºÎÆòµ¿ 502-8¹øÁö
´ëÁö¸éÀû 594.3§³
(180.09Æò)
¿¬¸éÀû 6506.983§³
(1971.81Æò)
°ÇÃà¸éÀû 460.61§³
(139.58Æò)
¿ëÀû·ü»êÁ¤
¿¬¸éÀû
6199.31§³
(1878.58Æò)
°ÇÆóÀ² 77.5% ¿ëÀû·ü 1043.13%
Áö»óÃþ¼ö 17Ãþ ÁöÇÏÃþ¼ö 1Ãþ
ÁÖ¿ëµµ ¾÷¹«½Ã¼³ ±¸Á¶ ö±ÙÄÜÅ©¸®Æ®±¸Á¶
Âø°øÀÏÀÚ 2016.10.05 »ç¿ë½ÂÀÎÀÏÀÚ 2017.11.02
°ÇÃ๰Ãþº°ÇöȲ [º¸±â]


±¹ÅäºÎ½Ç°Å·¡°¡ ÀÎõ±¤¿ª½Ã ºÎÆò±¸ ºÎÆòµ¿

¡Ü ¸Å¸Å

¸éÀû(§³), ±Ý¾×(¸¸¿ø)

¡Ü Àü¼¼

¸éÀû(§³), ±Ý¾×(¸¸¿ø)

°è¾àÀϰǹ°¸íĪÃþÀü¿ëº¸Áõ±Ý¿ù¼¼°ÇÃà
25.11.03Áß¾ÓEŬ·¡½º22Â÷759.5916,02002017
25.10.21Áß¾ÓEŬ·¡½º22Â÷1659.98219,5002017
25.09.21Áß¾ÓEŬ·¡½º22Â÷859.59121,5002017
25.07.21Áß¾ÓEŬ·¡½º22Â÷1784.96934,0002017
25.07.21Áß¾ÓEŬ·¡½º22Â÷1359.7719,80002017
¢Ñ ´õº¸±â

µî±âºÎµîº» ¿ä¾à(°Ç¹°)

  Á¢¼öÀÏÀÚ µî±â¸ñÀû/±Ç¸®ÀÚ ±Ç¸®±Ý¾× ±âÁØ
1 2020³â3¿ù9ÀÏ
¼ÒÀ¯±Ç
ÀÌOO
¼Ò¸ê
2 2022³â9¿ù19ÀÏ
°¡¾Ð·ù
ÁÖOOOO
1,393,000,000 ¼Ò¸ê±âÁØ
3 2023³â5¿ù24ÀÏ
ÀÓÂ÷±Ç¼³Á¤
º¯OO
270,000,000 ¼Ò¸ê
4 2023³â5¿ù26ÀÏ
¾Ð·ù
±¹
¼Ò¸ê
5 2024³â11¿ù21ÀÏ
°­Á¦°æ¸Å
ÁÖOOOO
¼Ò¸ê

ÀÓÂ÷ÀÎÇöȲ (¹è´ç¿ä±¸Á¾±âÀÏ: 2025-02-20)

ÀÓÂ÷ÀÎ ¿ëµµ/Á¡À¯ º¸Áõ±Ý/¿ù¼¼ ´ëÇ×·Â
ÀüÀÔÀÏ/È®Á¤ÀÏ ¹è´ç¿ä±¸ ºñ°í
±èOO
X
2024. 7. 5.
º¯OO ÀüºÎ 270,000,000
O
2021. 10. 29.
2021. 10. 5.
2021. 10. 29.~
ÁÖOOOOOOOOOOOOOOO 270,000,000
O
2021. 10. 29.
2021. 10. 5.
2025. 2. 20. 2021. 10. 29.~2023. 10. 29.
ºñ°í
(¸Å°¢¹°°Ç
¸í¼¼¼­)
- º¯¿©¿ø : ÁÖÅÃÀÓÂ÷±Çµî±â±ÇÀڷμ­ ÁÖÅÃÀÓÂ÷±Çµî±âÀÏÀº 2023. 5. 24.ÀÓ - ÁÖÅõµ½Ãº¸Áõ°ø»ç(ÀÓÂ÷ÀÎ º¯¿©¿ø) : °æ¸Å½Åû±ÇÀÚÀ̸ç ÁÖÅÃÀÓ´ëÂ÷º¸È£¹ý Á¦3Á¶ÀÇ2 Á¦7Ç× Á¦9È£ÀÇ ±â°üÀ¸·Î ÀÓÂ÷ÀÎ º¯¿©¿øÀ¸

¿©ÀÇÁÖ°æ¸Å Á¶¾ð ÇÑ ¸¶µð

¼±¼øÀ§ ÀÓÂ÷±Çµî±â°¡ µÇ¾î ÀÖ½À´Ï´Ù
´ëÇ×·ÂÀÌ ÀÖ´Â ¼±¼øÀ§ ÀÓÂ÷±Çµî±â ±Ç¸®ÀÚ°¡ ¹è´çÀ» Àü¾× ¹ÞÁö ¸øÇÒ °æ¿ì ³«ÂûÀÚ°¡ ÀÜ¿© º¸Áõ±ÝÀ» ÀμöÇØ¾ßÇÏ´Â °æ¿ìµµ ÀÖ½À´Ï´Ù.

ÁÖÀÇ»çÇ× (ÃÖ¼±¼øÀ§ ¼³Á¤ÀÏ: 2022. 9. 19. °¡¾Ð·ù ¼³Á¤)

¸Å°¢À¸·Î ¼Ò¸êµÇÁö ¾Ê´Â µî±âºÎ±Ç¸®: À»±¸ ¼øÀ§ 3¹ø ÁÖÅÃÀÓÂ÷±Çµî±â(´Ù¸¸ ÁÖÅõµ½Ãº¸Áõ°ø»çÀÇ ¸»¼Òµ¿ÀÇ È®¾à¼­°¡ Á¦ÃâµÊ)
¸Å°¢À¸·Î ¼³Á¤µÈ °ÍÀ¸·Î º¸´Â Áö»ó±Ç:
2025.09.19 ä±ÇÀÚ ¼Ò¼Û´ë¸®ÀÎ ¹ýOOO OOOOOO ¼Û´ÞÀå¼Ò º¯°æ½Åû¼­(乫ÀÚ) Á¦Ãâ
¡Ø¹Ì³³°ü¸®ºñ(°ø¿ë) Àμö¿©ºÎ¸¦ ÀÔÂû Àü¿¡ È®ÀÎÇϽñ⠹ٶø´Ï´Ù

 

Áö¿ªºÐ¼®

ÁöÇÏö¸í Á÷¼±°Å¸®

Çб³¸í ÀüÈ­¹øÈ£ ÁÖ¼Ò Á÷¼±°Å¸®

¹ý¿ø

ÀÎõÁö¹æ¹ý¿ø (222-20)ÀÎõ±¤¿ª½Ã ¹ÌÃßȦ±¸ ¼Ò¼º·Î 163¹ø±æ 17(ÇÐÀ͵¿)
´ëÇ¥ : 032)860-1113~4
°üÇÒÁö¿ª : Áß±¸, µ¿±¸, ³²±¸, ¿¬¼ö±¸, ³²µ¿±¸, ºÎÆò±¸, °è¾ç±¸, ¼­±¸, ¿ËÁø±º, °­È­±º

µî±â¼Ò ÀÎõÁö¹æ¹ý¿ø º»¿ø µî±â±¹ (´ëÇ¥:1544-0773, ÆÑ½º:(032)620-9099, ÀÎõ±¤¿ª½Ã ¹ÌÃßȦ±¸ °æ¿ø´ë·Î 881(Á־ȵ¿ 983))
¼¼¹«¼­ ºÏÀÎõ¼¼¹«¼­ (´ëÇ¥:032-540-62, ÆÑ½º:032-545-0411, ÀÎõ±¤¿ª½Ã °è¾ç±¸ È¿¼­·Î244(ÀÛÀüµ¿ 422-1) )

Àαٳ«ÂûÅë°è

±â°£ ¸Å°¢°Ç¼ö Æò±Õ°¨Á¤°¡
Æò±Õ¸Å°¢°¡
¸Å°¢°¡À²
Æò±ÕÀ¯Âû¼ö
3°³¿ù 104°Ç 219,807,692¿ø
160,718,155¿ø
73%
1.5ȸ
6°³¿ù 235°Ç 222,317,447¿ø
162,976,209¿ø
73%
1.6ȸ
12°³¿ù 413°Ç 223,321,065¿ø
170,720,812¿ø
77%
1.5ȸ


º» °æ¸ÅÁ¤º¸´Â ¹ý¿øÀÚ·á¿Í ÀÏÄ¡Çϵµ·Ï ÇÏ¿´À¸³ª ±Ç¸®»çÇ׺¯µ¿, ÀÔ·ÂÂø¿À µîÀÇ ¿øÀÎÀ¸·Î »ç½Ç°ú ´Ù¸¦ ¼ö ÀÖ½À´Ï´Ù. ÀÌ¿ë¾à°ü¿¡ ÀǰЏéÃ¥Á¶°ÇÀ¸·Î Á¦°øµÊÀ» ¾Ë¸®¸ç, °æ¸ÅÀÔÂû½Ã ¹Ýµå½Ã °ü·Ã °øºÎ¸¦ ÀçÈ®ÀÎÇϽñ⠹ٶø´Ï´Ù. º¸´Ù Æí¸®ÇÑ °æ¸ÅÁ¤º¸ Á¦°øÀ» À§ÇØ Áö¼ÓÀûÀ¸·Î °³¼±ÇϰڽÀ´Ï´Ù. ÀÌ¿ëÇØ Áּż­ °¨»çÇÕ´Ï´Ù.