·Î±×ÀÎ
6
´Ù¼¼´ë(ºô¶ó)
ÀÎõÁö¹æ¹ý¿ø ºÎõÁö¿ø
 °¨Á¤°¡150,000,000 ¿ø
 ÃÖÀú°¡(49%) 73,500,000 ¿ø
 º¸Áõ±Ý(10%) 7,350,000 ¿ø
 Ã»±¸¾×150,000,000 ¿ø
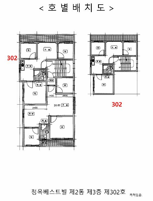
°æ±âµµ ºÎõ½Ã ¼Ò»ç±¸ ½É°îº»µ¿ 579-12 û¿Áº£½ºÆ®ºô 2µ¿ 3Ãþ 302È£
»ç°Ç¹øÈ£ 2025Ÿ°æ32535
°æ¸ÅÁ¾·ùºÎµ¿»ê°­Á¦°æ¸Å
¸Å°¢´ë»óÅäÁö ¹× °Ç¹°Àϰý ¸Å°¢
¸Å°¢±âÀÏ    2025.11.26(¼ö) 10:00 ÀÔÂû 9ÀÏÀü    
ÅäÁö¸éÀû26.58§³(8.04 Æò)
°Ç¹°¸éÀû43.79§³(13.25 Æò)
乫/¼ÒÀ¯ÀÚ¹éOO / ¹éOO
ä±ÇÀÚÁÖOOOOOOO
ÆäÀ̽ººÏ Æ®À§ÅÍ ±¸±Û+
īī¿À½ºÅ丮
īī¿ÀÅå sms¹®ÀÚº¸³»±â
 

±âÀϳ»¿ª

°æ°ú ³¯Â¥ Àú°¨ ÃÖÀú°¡ °á°ú
Á¢¼öÀÏ 2025-02-07 °æ¸ÅÁ¢¼ö
~3ÀÏ 
2025-02-10 °æ¸Å°³½Ã°áÁ¤
~89ÀÏ 
2025-05-07 ¹è´ç¿ä±¸Á¾±âÀÏ
~229ÀÏ 
2025-09-24 100%
150,000,000
À¯Âû
~264ÀÏ 
2025-10-29 70%
105,000,000
À¯Âû
~292ÀÏ 
2025-11-26 49%
73,500,000
ÁøÇà
¹°°Ç¸í¼¼¼­ ÇöȲÁ¶»ç¼­ ¹®°ÇÁ¢¼ö ¼Û´Þ³»¿ª

°¨Á¤Æò°¡ÇöȲ

¸ñ·Ï ÁÖ¼Ò ±¸Á¶/¿ëµµ/´ëÁö±Ç ¸éÀû ºñ°í
´ëÁö±Ç
½É°îº»µ¿ 579-12 223.9ºÐÀÇ 26.58 26.58 §³
(8.04Æò)
°Ç¹°
½É°îº»µ¿ 579-12 2µ¿ 3Ãþ 302È£ ö±ÙÄÜÅ©¸®Æ®Á¶ 43.79 §³
(13.25Æò)

°ÇÃ๰ÇöȲ

¼ÒÀçÁö °æ±âµµ ºÎõ½Ã ¼Ò»ç±¸ ½É°îº»µ¿ 579-12¹øÁö
´ëÁö¸éÀû 223.9§³
(67.85Æò)
¿¬¸éÀû 420.83§³
(127.52Æò)
°ÇÃà¸éÀû 116.66§³
(35.35Æò)
¿ëÀû·ü»êÁ¤
¿¬¸éÀû
420.83§³
(127.52Æò)
°ÇÆóÀ² 52.1% ¿ëÀû·ü 187.95%
Áö»óÃþ¼ö 5Ãþ ÁöÇÏÃþ¼ö  
ÁÖ¿ëµµ °øµ¿ÁÖÅà ±¸Á¶ ö±ÙÄÜÅ©¸®Æ®±¸Á¶
Âø°øÀÏÀÚ 2002.07.16 »ç¿ë½ÂÀÎÀÏÀÚ 2003.01.16
°ÇÃ๰Ãþº°ÇöȲ [º¸±â]


µî±âºÎµîº» ¿ä¾à(°Ç¹°)

  Á¢¼öÀÏÀÚ µî±â¸ñÀû/±Ç¸®ÀÚ ±Ç¸®±Ý¾× ±âÁØ
1 2021³â4¿ù28ÀÏ
¼ÒÀ¯±Ç
¹éOO
¼Ò¸ê
2 2022³â11¿ù10ÀÏ
°¡¾Ð·ù
ÁÖOOOO
778,000,000 ¼Ò¸ê±âÁØ
3 2023³â4¿ù14ÀÏ
¾Ð·ù
±¹
¼Ò¸ê
4 2023³â5¿ù30ÀÏ
ÀÓÂ÷±Ç¼³Á¤
±èOO
150,000,000 ¼Ò¸ê
5 2023³â7¿ù6ÀÏ
¾Ð·ù
ºÎOO
¼Ò¸ê
6 2025³â2¿ù10ÀÏ
°­Á¦°æ¸Å
ÁÖOOOO
¼Ò¸ê
7 2025³â2¿ù19ÀÏ
¾Ð·ù
±¹OOOO
¼Ò¸ê

ÀÓÂ÷ÀÎÇöȲ (¹è´ç¿ä±¸Á¾±âÀÏ: 2025-05-07)

ÀÓÂ÷ÀÎ ¿ëµµ/Á¡À¯ º¸Áõ±Ý/¿ù¼¼ ´ëÇ×·Â
ÀüÀÔÀÏ/È®Á¤ÀÏ ¹è´ç¿ä±¸ ºñ°í
FOOOOOOOOOOOOOOOOOOOOOOOOOOOOOOOOOO
X
2024.10.10
KOOOOOOOOOOOOOOOOOOOOOOOOO
X
2024.09.24
KOOOOOOOOOOOOOOOOOOO
X
2024.10.10
±èOO ÀüºÎ 150,000,000
O
2021.04.06
2021.03.22
2021.04.06
ÁÖOOOOOOOOOOOOOOO ÀüºÎ 150,000,000
O
2021.04.06
2021.03.22
2025.4.8. 2021.04.06.~2023.10.16
ºñ°í
(¸Å°¢¹°°Ç
¸í¼¼¼­)
±è³²ÁÖ: ÁÖÅÃÀÓÂ÷±Çµî±â±Ç¸®Àڷμ­ ÁÖÅÃÀÓÂ÷±Çµî±âÀÏÀº 2023. 5. 30.ÀÓÁÖÅõµ½Ãº¸Áõ°ø»ç(ÀÓÂ÷ÀÎ ±è³²ÁÖ): °æ¸Å½Åûä±ÇÀÚÀ̰í ÀÓÂ÷ÀÎ ±è³²ÁÖÀÇ ÀÓÂ÷º¸Áõ±Ý¹Ýȯä±Ç ¾ç¼öÀÎÀ¸·Î¼­, º¸Áõ±Ý Àü¾×À» ¹è ´ç¹ÞÁö ¸øÇÏ´õ¶óµµ ÀÜÁ¸ ÀÓÂ÷º¸Áõ±Ý¹Ýȯä±ÇÀ» Æ÷±âÇϰí ÁÖÅÃÀÓÂ÷±Çµî±â ¸»¼Ò¿¡ µ¿ÀÇÇÑ´Ù´Â ÃëÁöÀÇ È®¾à¼­¸¦ Á¦ÃâÇÔ

¿©ÀÇÁÖ°æ¸Å Á¶¾ð ÇÑ ¸¶µð

¼±¼øÀ§ ÀÓÂ÷±Çµî±â°¡ µÇ¾î ÀÖ½À´Ï´Ù
´ëÇ×·ÂÀÌ ÀÖ´Â ¼±¼øÀ§ ÀÓÂ÷±Çµî±â ±Ç¸®ÀÚ°¡ ¹è´çÀ» Àü¾× ¹ÞÁö ¸øÇÒ °æ¿ì ³«ÂûÀÚ°¡ ÀÜ¿© º¸Áõ±ÝÀ» ÀμöÇØ¾ßÇÏ´Â °æ¿ìµµ ÀÖ½À´Ï´Ù.

ÁÖÀÇ»çÇ× (ÃÖ¼±¼øÀ§ ¼³Á¤ÀÏ: 2022. 11. 10. °¡¾Ð·ù ¼³Á¤)

¸Å°¢À¸·Î ¼Ò¸êµÇÁö ¾Ê´Â µî±âºÎ±Ç¸®: À»±¸ ¼øÀ§ 13¹ø ÁÖÅÃÀÓÂ÷±Çµî±â(´Ù¸¸ ÁÖÅõµ½Ãº¸Áõ°ø»çÀÇ ¸»¼Òµ¿ÀÇ È®¾à¼­°¡ Á¦ÃâµÊ)
¸Å°¢À¸·Î ¼³Á¤µÈ °ÍÀ¸·Î º¸´Â Áö»ó±Ç:
¡Ø¹Ì³³°ü¸®ºñ(°ø¿ë) Àμö¿©ºÎ¸¦ ÀÔÂû Àü¿¡ È®ÀÎÇϽñ⠹ٶø´Ï´Ù

 

Áö¿ªºÐ¼®

ÁöÇÏö¸í Á÷¼±°Å¸®

Çб³¸í ÀüÈ­¹øÈ£ ÁÖ¼Ò Á÷¼±°Å¸®

¹ý¿ø

ÀÎõÁö¹æ¹ý¿ø ºÎõÁö¿ø (146-02)°æ±âµµ ºÎõ½Ã ¿ø¹Ì±¸ »óÀÏ·Î 129(»óµ¿)
´ëÇ¥ : 032)320-1114, ¹Î¿ø : 032)320-1234
°üÇÒÁö¿ª : ºÎõ½Ã, ±èÆ÷½Ã

µî±â¼Ò ÀÎõÁö¹æ¹ý¿ø ºÎõÁö¿ø µî±â°ú (´ëÇ¥:1544-0773, ÆÑ½º:(032)320-1484, 320-1485, °æ±âµµ ºÎõ½Ã »óÀÏ·Î 129 (»óµ¿ 445-1))
¼¼¹«¼­ ¼¼¹«¼­ (´ëÇ¥:, ÆÑ½º:, )

Àαٳ«ÂûÅë°è

±â°£ ¸Å°¢°Ç¼ö Æò±Õ°¨Á¤°¡
Æò±Õ¸Å°¢°¡
¸Å°¢°¡À²
Æò±ÕÀ¯Âû¼ö
3°³¿ù 81°Ç 219,200,988¿ø
154,314,851¿ø
69%
1.7ȸ
6°³¿ù 102°Ç 216,189,020¿ø
153,136,622¿ø
69%
1.7ȸ
12°³¿ù 162°Ç 223,215,802¿ø
166,826,174¿ø
73%
1.5ȸ


º» °æ¸ÅÁ¤º¸´Â ¹ý¿øÀÚ·á¿Í ÀÏÄ¡Çϵµ·Ï ÇÏ¿´À¸³ª ±Ç¸®»çÇ׺¯µ¿, ÀÔ·ÂÂø¿À µîÀÇ ¿øÀÎÀ¸·Î »ç½Ç°ú ´Ù¸¦ ¼ö ÀÖ½À´Ï´Ù. ÀÌ¿ë¾à°ü¿¡ ÀǰЏéÃ¥Á¶°ÇÀ¸·Î Á¦°øµÊÀ» ¾Ë¸®¸ç, °æ¸ÅÀÔÂû½Ã ¹Ýµå½Ã °ü·Ã °øºÎ¸¦ ÀçÈ®ÀÎÇϽñ⠹ٶø´Ï´Ù. º¸´Ù Æí¸®ÇÑ °æ¸ÅÁ¤º¸ Á¦°øÀ» À§ÇØ Áö¼ÓÀûÀ¸·Î °³¼±ÇϰڽÀ´Ï´Ù. ÀÌ¿ëÇØ Áּż­ °¨»çÇÕ´Ï´Ù.