·Î±×ÀÎ
152
±Ù¸°»ó°¡
ûÁÖÁö¹æ¹ý¿ø
 °¨Á¤°¡394,000,000 ¿ø
 ÃÖÀú°¡(34%) 135,142,000 ¿ø
 º¸Áõ±Ý(10%) 13,514,200 ¿ø
 Ã»±¸¾×2,262,975,164 ¿ø
ÃæÃ»ºÏµµ ûÁֽà »ó´ç±¸ ¿ë¾Ïµ¿ 3085 ºÎ¼ºÅ¸¿ö 5Ãþ 501È£
»ç°Ç¹øÈ£ 2025Ÿ°æ1590 ¹°°Ç¹øÈ£
°æ¸ÅÁ¾·ùºÎµ¿»êÀÓÀǰæ¸Å
¸Å°¢´ë»óÅäÁö ¹× °Ç¹°Àϰý ¸Å°¢
¸Å°¢±âÀÏ    2026.02.11(¼ö) 10:00 ÀÔÂû 21ÀÏÀü    
ÅäÁö¸éÀû15.96§³(4.83 Æò)
°Ç¹°¸éÀû76.14§³(23.03 Æò)
乫/¼ÒÀ¯ÀÚ±ÇOO / ±ÇOO
ä±ÇÀÚ±«OOOO OOOOOOO
ÆäÀ̽ººÏ Æ®À§ÅÍ ±¸±Û+
īī¿À½ºÅ丮
īī¿ÀÅå sms¹®ÀÚº¸³»±â
 

±âÀϳ»¿ª

°æ°ú ³¯Â¥ Àú°¨ ÃÖÀú°¡ °á°ú
Á¢¼öÀÏ 2025-03-26 °æ¸ÅÁ¢¼ö
~0ÀÏ 
2025-03-26 °æ¸Å°³½Ã°áÁ¤
~97ÀÏ 
2025-07-01 ¹è´ç¿ä±¸Á¾±âÀÏ
~182ÀÏ 
2025-09-24 100%
394,000,000
À¯Âû
~217ÀÏ 
2025-10-29 70%
275,800,000
À¯Âû
~252ÀÏ 
2025-12-03 49%
193,060,000
º¯°æ
~287ÀÏ 
2026-01-07 49%
193,060,000
À¯Âû
~322ÀÏ 
2026-02-11 34%
135,142,000
ÁøÇà
¹°°Ç¸í¼¼¼­ ÇöȲÁ¶»ç¼­ ¹®°ÇÁ¢¼ö ¼Û´Þ³»¿ª

°¨Á¤Æò°¡ÇöȲ

¸ñ·Ï ÁÖ¼Ò ±¸Á¶/¿ëµµ/´ëÁö±Ç ¸éÀû ºñ°í
´ëÁö±Ç
¿ë¾Ïµ¿ 3085 1281ºÐÀÇ 15.9618 15.9618 §³
(4.83Æò)
°Ç¹°
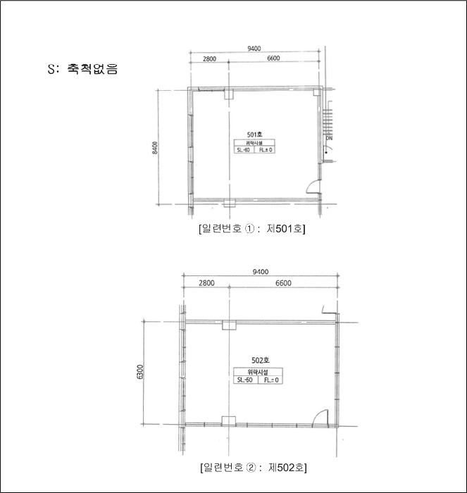
¿ë¾Ïµ¿ 3085 5Ãþ 501È£ ö±ÙÄÜÅ©¸®Æ®±¸Á¶ 76.14 §³
(23.03Æò)
Âü°í
»çÇ×
ÇöȲ»ó °ø½ÇÀÓ

°ÇÃ๰ÇöȲ

¼ÒÀçÁö ÃæÃ»ºÏµµ ûÁֽà »ó´ç±¸ ¿ë¾Ïµ¿ 3085¹øÁö
´ëÁö¸éÀû 1281§³
(388.18Æò)
¿¬¸éÀû 10465.9§³
(3171.48Æò)
°ÇÃà¸éÀû 1016.83§³
(308.13Æò)
¿ëÀû·ü»êÁ¤
¿¬¸éÀû
8368.07§³
(2535.78Æò)
°ÇÆóÀ² 79.38% ¿ëÀû·ü 653.25%
Áö»óÃþ¼ö 10Ãþ ÁöÇÏÃþ¼ö 2Ãþ
ÁÖ¿ëµµ Á¦2Á¾±Ù¸°»ýȰ½Ã¼³ ±¸Á¶ ö±ÙÄÜÅ©¸®Æ®±¸Á¶
Âø°øÀÏÀÚ 2020.07.06 »ç¿ë½ÂÀÎÀÏÀÚ 2021.11.24
°ÇÃ๰Ãþº°ÇöȲ [º¸±â]


µî±âºÎµîº» ¿ä¾à(°Ç¹°)

  Á¢¼öÀÏÀÚ µî±â¸ñÀû/±Ç¸®ÀÚ ±Ç¸®±Ý¾× ±âÁØ
1 2022³â5¿ù24ÀÏ
¼ÒÀ¯±Ç
±ÇOO
¼Ò¸ê
2 2022³â5¿ù24ÀÏ
±ÙÀú´ç±Ç
±«OOOO
2,710,000,000 ¼Ò¸ê±âÁØ
3 2023³â5¿ù31ÀÏ
±ÙÀú´ç±Ç
Á¤OO
104,000,000 ¼Ò¸ê
4 2025³â3¿ù27ÀÏ
ÀÓÀǰæ¸Å
±«OOOO
¼Ò¸ê
5 2025³â8¿ù25ÀÏ
¾Ð·ù
±¹
¼Ò¸ê

ÀÓÂ÷ÀÎÇöȲ (¹è´ç¿ä±¸Á¾±âÀÏ: 2025-07-01)


Á¶»çµÈ ÀÓÂ÷³»¿ªÀÌ ¾ø½À´Ï´Ù


¿©ÀÇÁÖ°æ¸Å Á¶¾ð ÇÑ ¸¶µð


ÁÖÀÇ»çÇ× (ÃÖ¼±¼øÀ§ ¼³Á¤ÀÏ: 2022.5.24.±ÙÀú´ç±Ç ¼³Á¤)

¸Å°¢À¸·Î ¼Ò¸êµÇÁö ¾Ê´Â µî±âºÎ±Ç¸®:
¸Å°¢À¸·Î ¼³Á¤µÈ °ÍÀ¸·Î º¸´Â Áö»ó±Ç:
ÇöȲ»ó °ø½ÇÀÓ
¡Ø¹Ì³³°ü¸®ºñ(°ø¿ë) Àμö¿©ºÎ¸¦ ÀÔÂû Àü¿¡ È®ÀÎÇϽñ⠹ٶø´Ï´Ù

 

Áö¿ªºÐ¼®

ÁöÇÏö¸í Á÷¼±°Å¸®

Çб³¸í ÀüÈ­¹øÈ£ ÁÖ¼Ò Á÷¼±°Å¸®

¹ý¿ø

ûÁÖÁö¹æ¹ý¿ø (286-24)ÃæÃ»ºÏµµ ûÁֽà ¼­¿ø±¸ »ê³²·Î 62¹ø±æ 51 (»ê³²µ¿)
´ëÇ¥ : 043)249-7114~5, ¹Î¿ø : 043)249-7465, ¾ß°£ : 043)249-7400
°üÇÒÁö¿ª : ûÁÖ½Ã, º¸Àº±º, ±«»ê±º, ÁõÆò±º, ÁøÃµ±º

µî±â¼Ò    (´ëÇ¥:, ÆÑ½º:, )
¼¼¹«¼­ µ¿Ã»ÁÖ¼¼¹«¼­ (´ëÇ¥:043-229-42, ÆÑ½º:043-229-4601, ÃæÃ»ºÏµµ ûÁֽà û¿ø±¸ 1¼øÈ¯·Î 44(À²·®µ¿))

Àαٳ«ÂûÅë°è

±â°£ ¸Å°¢°Ç¼ö Æò±Õ°¨Á¤°¡
Æò±Õ¸Å°¢°¡
¸Å°¢°¡À²
Æò±ÕÀ¯Âû¼ö
3°³¿ù 1°Ç 640,000,000¿ø
310,000,000¿ø
48%
3ȸ
6°³¿ù 4°Ç 1,050,430,348¿ø
565,475,000¿ø
57%
2.5ȸ
12°³¿ù 4°Ç 1,050,430,348¿ø
565,475,000¿ø
57%
2.5ȸ


º» °æ¸ÅÁ¤º¸´Â ¹ý¿øÀÚ·á¿Í ÀÏÄ¡Çϵµ·Ï ÇÏ¿´À¸³ª ±Ç¸®»çÇ׺¯µ¿, ÀÔ·ÂÂø¿À µîÀÇ ¿øÀÎÀ¸·Î »ç½Ç°ú ´Ù¸¦ ¼ö ÀÖ½À´Ï´Ù. ÀÌ¿ë¾à°ü¿¡ ÀǰЏéÃ¥Á¶°ÇÀ¸·Î Á¦°øµÊÀ» ¾Ë¸®¸ç, °æ¸ÅÀÔÂû½Ã ¹Ýµå½Ã °ü·Ã °øºÎ¸¦ ÀçÈ®ÀÎÇϽñ⠹ٶø´Ï´Ù. º¸´Ù Æí¸®ÇÑ °æ¸ÅÁ¤º¸ Á¦°øÀ» À§ÇØ Áö¼ÓÀûÀ¸·Î °³¼±ÇϰڽÀ´Ï´Ù. ÀÌ¿ëÇØ Áּż­ °¨»çÇÕ´Ï´Ù.