·Î±×ÀÎ
50
´Ù¼¼´ë(ºô¶ó)
¼ö¿øÁö¹æ¹ý¿ø ¿©ÁÖÁö¿ø
 °¨Á¤°¡356,000,000 ¿ø
 ÃÖÀú°¡(34%) 122,108,000 ¿ø
 º¸Áõ±Ý(10%) 12,210,800 ¿ø
 Ã»±¸¾×210,669,157 ¿ø
°æ±âµµ ÀÌõ½Ã ¹é»ç¸é û¹é¸®·Î89¹ø±æ 8-5, 1Ãþ4È£ (¿¥520ºô¸®Áö1µ¿)
°æ±âµµ ÀÌõ½Ã ¹é»ç¸é ¸ðÀü¸® 520-46
»ç°Ç¹øÈ£ 2024Ÿ°æ5245
°æ¸ÅÁ¾·ùºÎµ¿»êÀÓÀǰæ¸Å
¸Å°¢´ë»óÅäÁö ¹× °Ç¹°Àϰý ¸Å°¢
¸Å°¢±âÀÏ    2026.01.14(¼ö) 10:00 ÀÔÂû 37ÀÏÀü    
ÅäÁö¸éÀû109.88§³(33.24 Æò)
°Ç¹°¸éÀû82.90§³(25.08 Æò)
乫/¼ÒÀ¯ÀÚ»çOO / »çOO
ä±ÇÀÚÁÖOOO OOOOO OOO OOOOOOOOOOOO OOOO
ÆäÀ̽ººÏ Æ®À§ÅÍ ±¸±Û+
īī¿À½ºÅ丮
īī¿ÀÅå sms¹®ÀÚº¸³»±â
 

±âÀϳ»¿ª

°æ°ú ³¯Â¥ Àú°¨ ÃÖÀú°¡ °á°ú
Á¢¼öÀÏ 2024-09-06 °æ¸ÅÁ¢¼ö
~3ÀÏ 
2024-09-09 °æ¸Å°³½Ã°áÁ¤
~97ÀÏ 
2024-12-12 ¹è´ç¿ä±¸Á¾±âÀÏ
~383ÀÏ 
2025-09-24 100%
356,000,000
À¯Âû
~418ÀÏ 
2025-10-29 70%
249,200,000
À¯Âû
~453ÀÏ 
2025-12-03 49%
174,440,000
À¯Âû
~495ÀÏ 
2026-01-14 34%
122,108,000
ÁøÇà
¹°°Ç¸í¼¼¼­ ÇöȲÁ¶»ç¼­ ¹®°ÇÁ¢¼ö ¼Û´Þ³»¿ª

°¨Á¤Æò°¡ÇöȲ

¸ñ·Ï ÁÖ¼Ò ±¸Á¶/¿ëµµ/´ëÁö±Ç ¸éÀû ºñ°í
´ëÁö±Ç
¸ðÀü¸® 520-46 879ºÐÀÇ 109.875 109.875 §³
(33.24Æò)
°Ç¹°
¸ðÀü¸® 520-46 1Ãþ4È£ ö±ÙÄÜÅ©¸®Æ®±¸Á¶ 82.9 §³
(25.08Æò)
1) À§Ä¡/°èȹ°ü¸®Áö¿ª/¹ö½ºÁ¤·ùÀå/Â÷·®Á¢±ÙÀÌ °¡´É/ö±ÙÄÜÅ©¸®Æ®±¸Á¶ ´õº¸±â
°¨Á¤Æò°¡ ¿äÇ×Ç¥
1)À§Ä¡ ¹× ÁÖÀ§È¯°æ
º»°ÇÀº °æ±âµµ ÀÌõ½Ã ¹é»ç¸é ¸ðÀü¸® ¼ÒÀç "¸ðÀüÇö´ë¾ÆÆÄÆ®" µ¿Ãø Àαٿ¡ À§Ä¡Çϸç, ºÎ±ÙÀº ´Üµ¶ÁÖÅà ¹× ´Ù¼¼´ëÁÖÅÃ, ¾ÆÆÄÆ®, ±Ù¸°»ýȰ½Ã¼³ µîÀÌ È¥ÀçÇÏ´Â Áö¿ªÀÔ´Ï´Ù.
2)±³Åë»óȲ
º»°Ç±îÁö Á¦¹Ý Â÷·®Á¢±ÙÀÌ °¡´ÉÇϸç, ´ëÁß±³Åë»çÁ¤Àº ¹ö½ºÁ¤·ùÀå°úÀÇ °Å¸® ¹× ¿îÇàȽ¼ö µîÀ¸·Î º¸¾Æ º¸ÅëÀÔ´Ï´Ù.
3)°Ç¹°ÀÇ ±¸Á¶
ö±ÙÄÜÅ©¸®Æ®±¸Á¶ ¡ũÆÇ¸¶°¨ÁöºØ 3Ãþ ±¸Á¶(»ç¿ë½ÂÀÎÀÏÀÚ: 2020.05.27) ³» °³º° ¼¼´ë·Î,
¿Üº® : Ä¡À庮µ¹ µî ¸¶°¨
³»º® : º®Áöµµ¹è ¹× ŸÀϺÙÀÓ µî ¸¶°¨
âȣ : ÇÃ¶ó½ºÆ½»þ½Ã âȣ µî ÀÔ´Ï´Ù.
4)ÀÌ¿ë»óÅÂ
´Ù¼¼´ëÁÖÅÃ(ÈÄ÷ "³»ºÎÀ̿밳Ȳµµ" Âü°í)À¸·Î ÀÌ¿ë ÁßÀ̸ç, 3Ãþ »óºÎ¿¡ ´Ù¶ôÀÌ ¼ÒÀçÇÕ´Ï´Ù.
5)¼³ºñ³»¿ª
À§»ý¼³ºñ, ±Þ¹è¼ö¼³ºñ, ³­¹æ¼³ºñ µîÀÌ µÇ¾îÀÖ½À´Ï´Ù.
6)ÅäÁöÀÇ Çü»ó ¹× ÀÌ¿ë»óÅÂ
»ç´Ù¸®ÇüÀÇ ÆòÁö·Î, ´Ù¼¼´ëÁÖÅà °ÇºÎÁö·Î ÀÌ¿ë ÁßÀÔ´Ï´Ù.
7)ÀÎÁ¢ µµ·Î»óŵî
º»°ÇÀÇ ¼­ÃøÀ¸·Î ·ÎÆø ¾à 5¹ÌÅÍ, ³²ÃøÀ¸·Î ·ÎÆø ¾à6¹ÌÅÍ ³»¿ÜÀÇ Æ÷Àåµµ·Î¿Í °¢°¢ Á¢ÇÕ´Ï´Ù.
8)ÅäÁöÀÌ¿ë°èȹ ¹× Á¦ÇÑ»óÅÂ
°èȹ°ü¸®Áö¿ª , ¼ºÀå°ü¸®°èȹ±¸¿ª(¼ºÀå°ü¸®°èȹ±¸¿ª(ÀϹÝÇü)), °¡Ãà»çÀ°Á¦Çѱ¸¿ª(ÀüºÎÁ¦ÇÑÁö¿ª)<°¡ÃàºÐ´¢ÀÇ °ü¸® ¹× À̿뿡 °üÇÑ ¹ý·ü>, ¹èÃâ½Ã¼³¼³Ä¡Á¦ÇÑÁö¿ª<¹°È¯°æº¸Àü¹ý>, ÀÚ¿¬º¸Àü±Ç¿ª<¼öµµ±ÇÁ¤ºñ°èȹ¹ý>, ¼öÁúº¸ÀüƯº°´ëÃ¥Áö¿ª<ȯ°æÁ¤Ã¥±âº»¹ý>, <Ãß°¡±âÀç>°ÇÃà¹ý Á¦2Á¶Á¦1Ç×Á¦11È£³ª¸ñ¿¡ µû¸¥ µµ·Î(µµ·ÎÀÏºÎÆ÷ÇÔ)ÀÔ´Ï´Ù.
9)°øºÎ¿ÍÀÇ Â÷ÀÌ
¾ø½À´Ï´Ù.
10)±âŸÂü°í»çÇ×(ÀÓ´ë°ü·Ê ¹× ±âŸ)
ÀÓ´ë°ü°è: ¹Ì»óÀÔ´Ï´Ù.

±âŸ: º»°ÇÀº ±Í Á¦½Ã¸ñ·Ï »ó ¿¥520ºô¸®Áö 1µ¿À¸·Î µîÀçµÇ¾î ÀÖÀ¸³ª, °Ç¹°ÀÇ ¿ÜºÎÇ¥½Ã»ó "¿¥520ºô¸®Áö 201µ¿"À¸·Î Ç¥½ÃµÇ¾î ÀÖ½À´Ï´Ù.
Âü°í
»çÇ×
¿¥520ºô¸®Áö 1µ¿À¸·Î µîÀçµÇ¾î ÀÖÀ¸³ª, °Ç¹°ÀÇ ¿ÜºÎÇ¥½Ã»ó '¿¥520ºô¸®Áö 201µ¿'À¸·Î Ç¥½ÃµÇ¾î ÀÖÀ½
Á¦½Ã ¸ñ·Ï ºÎµ¿»êÀº µî±âºÎ Ç¥½Ã¿Í °°ÀÌ °øµ¿ÁÖÅÃÀ¸·Î ÀÌ¿ëÇϰí ÀÖÀ½

°ÇÃ๰ÇöȲ

¼ÒÀçÁö °æ±âµµ ÀÌõ½Ã ¹é»ç¸é ¸ðÀü¸® 520-46¹øÁö
´ëÁö¸éÀû   ¿¬¸éÀû 331.6§³
(100.48Æò)
°ÇÃà¸éÀû 173.56§³
(52.59Æò)
¿ëÀû·ü»êÁ¤
¿¬¸éÀû
331.6§³
(100.48Æò)
°ÇÆóÀ²   ¿ëÀû·ü  
Áö»óÃþ¼ö 3Ãþ ÁöÇÏÃþ¼ö  
ÁÖ¿ëµµ °øµ¿ÁÖÅà ±¸Á¶ ö±ÙÄÜÅ©¸®Æ®±¸Á¶
Âø°øÀÏÀÚ 2018.06.22 »ç¿ë½ÂÀÎÀÏÀÚ 2020.05.27
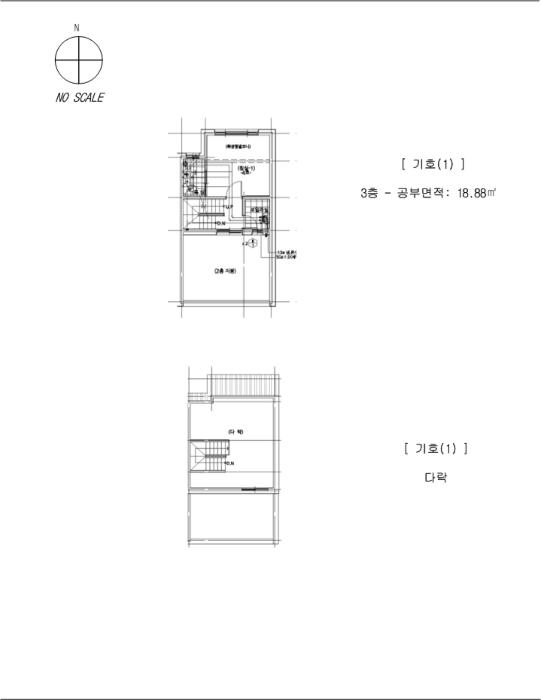
°ÇÃ๰Ãþº°ÇöȲ [º¸±â]


±¹ÅäºÎ½Ç°Å·¡°¡ °æ±âµµ ÀÌõ½Ã ¹é»ç¸é

¡Ü ¸Å¸Å

¸éÀû(§³), ±Ý¾×(¸¸¿ø)

¡Ü Àü¼¼

¸éÀû(§³), ±Ý¾×(¸¸¿ø)

°è¾àÀϰǹ°¸íĪÃþ¿¬¸éÀû´ëÁö±Ý¾×°ÇÃà
24.03.28ºÎÀϺô¶ó(32-33)250.7937.066,5001993
24.03.20ÀÌÆä¸®¿Â(105µ¿)164.6675.300914,2002017
24.03.07¾ÖÇÃÇϿ콺249.768.0914,0002016
24.01.29Çö´ëÆÄÅ©(2µ¿3µ¿)351.2858.6712,8002015
24.01.08Ǫ¸¥¸Ç¼Ç6µ¿368.38594.7511,0002003
¢Ñ ´õº¸±â

µî±âºÎµîº» ¿ä¾à(°Ç¹°)

  Á¢¼öÀÏÀÚ µî±â¸ñÀû/±Ç¸®ÀÚ ±Ç¸®±Ý¾× ±âÁØ
1 2021³â2¿ù5ÀÏ
¼ÒÀ¯±Ç
ȍOO
¼Ò¸ê
2 2021³â2¿ù5ÀÏ
±ÙÀú´ç±Ç
(OOOO
260,400,000 ¼Ò¸ê±âÁØ
3 2024³â9¿ù9ÀÏ
ÀÓÀǰæ¸Å
(OOOO
¼Ò¸ê
4 2025³â2¿ù24ÀÏ
±ÙÀú´ç±Ç
ÇÑOO
210,000,000 ¼Ò¸ê

ÀÓÂ÷ÀÎÇöȲ (¹è´ç¿ä±¸Á¾±âÀÏ: 2024-12-12)


Á¶»çµÈ ÀÓÂ÷³»¿ªÀÌ ¾ø½À´Ï´Ù


¿©ÀÇÁÖ°æ¸Å Á¶¾ð ÇÑ ¸¶µð


ÁÖÀÇ»çÇ× (ÃÖ¼±¼øÀ§ ¼³Á¤ÀÏ: 2021.02.05. ±ÙÀú´ç±Ç ¼³Á¤)

¸Å°¢À¸·Î ¼Ò¸êµÇÁö ¾Ê´Â µî±âºÎ±Ç¸®:
¸Å°¢À¸·Î ¼³Á¤µÈ °ÍÀ¸·Î º¸´Â Áö»ó±Ç:
¿¥520ºô¸®Áö 1µ¿À¸·Î µîÀçµÇ¾î ÀÖÀ¸³ª, °Ç¹°ÀÇ ¿ÜºÎÇ¥½Ã»ó '¿¥520ºô¸®Áö 201µ¿'À¸·Î Ç¥½ÃµÇ¾î ÀÖÀ½
¡Ø¹Ì³³°ü¸®ºñ(°ø¿ë) Àμö¿©ºÎ¸¦ ÀÔÂû Àü¿¡ È®ÀÎÇϽñ⠹ٶø´Ï´Ù

 

Áö¿ªºÐ¼®

ÁöÇÏö¸í Á÷¼±°Å¸®

Çб³¸í ÀüÈ­¹øÈ£ ÁÖ¼Ò Á÷¼±°Å¸®

¹ý¿ø

¼ö¿øÁö¹æ¹ý¿ø ¿©ÁÖÁö¿ø (126-38)°æ±âµµ ¿©Áֽà Çö¾Ïµ¿ 640-10 (Çö¾Ï·Î 21-12)
´ëÇ¥ : 031)880-7500, ¾ß°£ : 031)880-7501
°üÇÒÁö¿ª : ¿©ÁÖ½Ã, ÀÌõ½Ã, ¾çÆò±º

µî±â¼Ò ¼ö¿øÁö¹æ¹ý¿ø º»¿ø ÀÌõµî±â¼Ò (´ëÇ¥:1544-0773, ÆÑ½º:(031)637-6444, °æ±âµµ ÀÌõ½Ã ±¸¸¸¸®·Î 308 (¾ÈÈﵿ 116))
¼¼¹«¼­ ÀÌõ¼¼¹«¼­ (´ëÇ¥:031-644-02, ÆÑ½º:031-634-2103, °æ±âµµ ÀÌõ½Ã ºÎ¾Ç·Î 47 (Á߸®µ¿))

Àαٳ«ÂûÅë°è

±â°£ ¸Å°¢°Ç¼ö Æò±Õ°¨Á¤°¡
Æò±Õ¸Å°¢°¡
¸Å°¢°¡À²
Æò±ÕÀ¯Âû¼ö
3°³¿ù 2°Ç 146,500,000¿ø
84,350,000¿ø
61%
2ȸ
6°³¿ù 6°Ç 193,333,333¿ø
102,969,495¿ø
55%
3.8ȸ
12°³¿ù 20°Ç 187,750,000¿ø
108,997,674¿ø
57%
2.8ȸ


º» °æ¸ÅÁ¤º¸´Â ¹ý¿øÀÚ·á¿Í ÀÏÄ¡Çϵµ·Ï ÇÏ¿´À¸³ª ±Ç¸®»çÇ׺¯µ¿, ÀÔ·ÂÂø¿À µîÀÇ ¿øÀÎÀ¸·Î »ç½Ç°ú ´Ù¸¦ ¼ö ÀÖ½À´Ï´Ù. ÀÌ¿ë¾à°ü¿¡ ÀǰЏéÃ¥Á¶°ÇÀ¸·Î Á¦°øµÊÀ» ¾Ë¸®¸ç, °æ¸ÅÀÔÂû½Ã ¹Ýµå½Ã °ü·Ã °øºÎ¸¦ ÀçÈ®ÀÎÇϽñ⠹ٶø´Ï´Ù. º¸´Ù Æí¸®ÇÑ °æ¸ÅÁ¤º¸ Á¦°øÀ» À§ÇØ Áö¼ÓÀûÀ¸·Î °³¼±ÇϰڽÀ´Ï´Ù. ÀÌ¿ëÇØ Áּż­ °¨»çÇÕ´Ï´Ù.