·Î±×ÀÎ
2
´Ù¼¼´ë(ºô¶ó)
¼­¿ïÁß¾ÓÁö¹æ¹ý¿ø
 °¨Á¤°¡217,000,000 ¿ø
 ÃÖÀú°¡(80%) 173,600,000 ¿ø
 º¸Áõ±Ý(10%) 17,360,000 ¿ø
 Ã»±¸¾×300,000,000 ¿ø
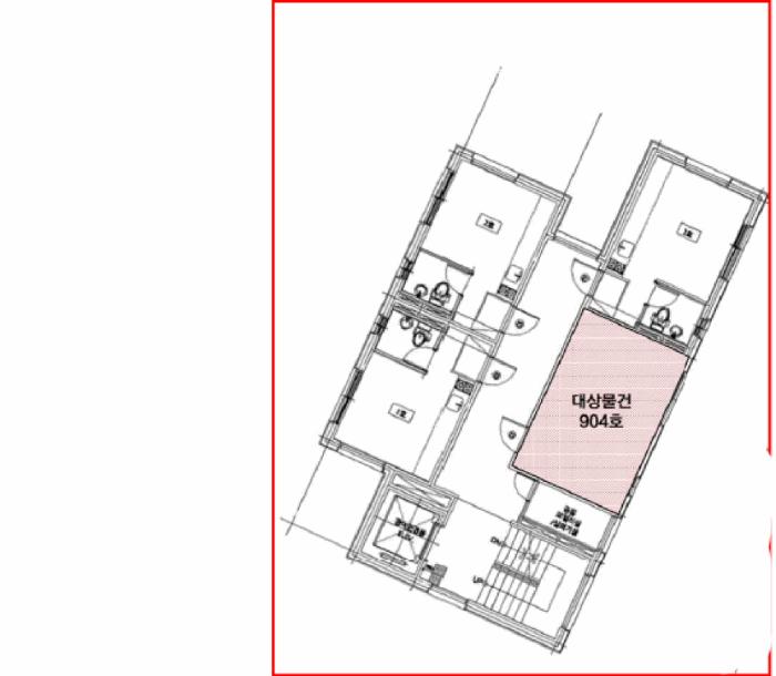
¼­¿ïƯº°½Ã µ¿ÀÛ±¸ »óµµ1µ¿ 519-1 ´õÆ÷·¹½ºÆ® 9Ãþ904È£
»ç°Ç¹øÈ£ 2025Ÿ°æ102446
°æ¸ÅÁ¾·ùºÎµ¿»ê°­Á¦°æ¸Å
¸Å°¢´ë»óÅäÁö ¹× °Ç¹°Àϰý ¸Å°¢
¸Å°¢±âÀÏ    2025.12.10(¼ö) 10:00 ÀÔÂû 27ÀÏÀü    
ÅäÁö¸éÀû11.26§³(3.41 Æò)
°Ç¹°¸éÀû16.40§³(4.96 Æò)
乫/¼ÒÀ¯ÀÚ¹®OO / ¹®OO
ä±ÇÀÚÁÖOOOOOOO
ÆäÀ̽ººÏ Æ®À§ÅÍ ±¸±Û+
īī¿À½ºÅ丮
īī¿ÀÅå sms¹®ÀÚº¸³»±â
 

±âÀϳ»¿ª

°æ°ú ³¯Â¥ Àú°¨ ÃÖÀú°¡ °á°ú
Á¢¼öÀÏ 2025-03-20 °æ¸ÅÁ¢¼ö
~5ÀÏ 
2025-03-25 °æ¸Å°³½Ã°áÁ¤
~77ÀÏ 
2025-06-05 ¹è´ç¿ä±¸Á¾±âÀÏ
~188ÀÏ 
2025-09-24 100%
217,000,000
À¯Âû
~230ÀÏ 
2025-11-05 80%
173,600,000
º¯°æ
~265ÀÏ 
2025-12-10 80%
173,600,000
ÁøÇà
¹°°Ç¸í¼¼¼­ ÇöȲÁ¶»ç¼­ ¹®°ÇÁ¢¼ö ¼Û´Þ³»¿ª

°¨Á¤Æò°¡ÇöȲ

¸ñ·Ï ÁÖ¼Ò ±¸Á¶/¿ëµµ/´ëÁö±Ç ¸éÀû ºñ°í
´ëÁö±Ç
»óµµ1µ¿ 519-1 422.5 ºÐÀÇ 11.2644 11.2644 §³
(3.41Æò)
°Ç¹°
»óµµ1µ¿ 519-1 9Ãþ904È£ ö±ÙÄÜÅ©¸®Æ®±¸Á¶ 16.4 §³
(4.96Æò)

°ÇÃ๰ÇöȲ

¼ÒÀçÁö ¼­¿ïƯº°½Ã µ¿ÀÛ±¸ »óµµ1µ¿ 519-1¹øÁö
´ëÁö¸éÀû 420.56§³
(127.44Æò)
¿¬¸éÀû 1284.66§³
(389.29Æò)
°ÇÃà¸éÀû 200.19§³
(60.66Æò)
¿ëÀû·ü»êÁ¤
¿¬¸éÀû
1049.12§³
(317.92Æò)
°ÇÆóÀ² 47.6% ¿ëÀû·ü 249.46%
Áö»óÃþ¼ö 9Ãþ ÁöÇÏÃþ¼ö 1Ãþ
ÁÖ¿ëµµ ¾÷¹«½Ã¼³ ±¸Á¶ ö±ÙÄÜÅ©¸®Æ®±¸Á¶
Âø°øÀÏÀÚ 2021.03.29 »ç¿ë½ÂÀÎÀÏÀÚ 2021.12.10
°ÇÃ๰Ãþº°ÇöȲ [º¸±â]


±¹ÅäºÎ½Ç°Å·¡°¡ ¼­¿ïƯº°½Ã µ¿ÀÛ±¸ »óµµ1µ¿

¡Ü ¸Å¸Å

¸éÀû(§³), ±Ý¾×(¸¸¿ø)

¡Ü Àü¼¼

¸éÀû(§³), ±Ý¾×(¸¸¿ø)

°è¾àÀϰǹ°¸íĪÃþ¿¬¸éÀû´ëÁö±Ý¾×°ÇÃà
24.03.23µå¸²ÇÏÀÌÃ÷266.8649.1845,0002002
24.03.18õÇÏÇÏÀÌÃ÷ºô¶ó254.9531.1330,0002001
24.03.04»ï¼º»óµµºô¶ó1162.09100.79187,5001995
24.03.01±ÝÈ£°ñµç¸Ç¼Ç184.353.5553,5001991
24.02.17±ÝÁ¤ºô¶ó(324-9)155.8525.6527,0001994
¢Ñ ´õº¸±â

µî±âºÎµîº» ¿ä¾à(°Ç¹°)

  Á¢¼öÀÏÀÚ µî±â¸ñÀû/±Ç¸®ÀÚ ±Ç¸®±Ý¾× ±âÁØ
1 2022³â3¿ù23ÀÏ
¼ÒÀ¯±Ç
¹®OO
¼Ò¸ê
2 2022³â3¿ù23ÀÏ
¾àÁ¤/±ÝÁö»çÇ×/ȯ¸ÅƯ¾à
Àμö
3 2023³â9¿ù15ÀÏ
¾Ð·ù
±¹
¼Ò¸ê±âÁØ
4 2023³â10¿ù17ÀÏ
°¡¾Ð·ù
ÁÖOOOO
1,023,000,000 ¼Ò¸ê
5 2023³â12¿ù14ÀÏ
ÀÓÂ÷±Ç¼³Á¤
±èOO
300,000,000 ¼Ò¸ê
6 2025³â3¿ù25ÀÏ
°­Á¦°æ¸Å
ÁÖOOOO
¼Ò¸ê

ÀÓÂ÷ÀÎÇöȲ (¹è´ç¿ä±¸Á¾±âÀÏ: 2025-06-05)

ÀÓÂ÷ÀÎ ¿ëµµ/Á¡À¯ º¸Áõ±Ý/¿ù¼¼ ´ëÇ×·Â
ÀüÀÔÀÏ/È®Á¤ÀÏ ¹è´ç¿ä±¸ ºñ°í
COOOOOOOOOOOO
X
2024.09.07
±èOO ÀüÀ¯ºÎºÐÀüºÎ 300,000,000
O
2022.03.23.
2022.03.04.
2022.03.23.
ÁÖOOOOOOOOOOOO ÀüÀ¯ºÎºÐÀüºÎ 300,000,000
O
2022.03.23.
2022.03.04.
2025.5.29. 2022.03.23.
ºñ°í
(¸Å°¢¹°°Ç
¸í¼¼¼­)
ÁÖÅõµ½Ãº¸Áõ°ø»ç°¡ ÀÓÂ÷ÀÎ ±è¼Ò¿µÀÇ ÀÓÂ÷º¸Áõ±Ý¹Ýȯä±ÇÀ» ½Â°èÇÔ(ÁÖÅÃÀÓ´ëÂ÷º¸È£¹ý Á¦3Á¶ÀÇ2 Á¦7Ç×).

¿©ÀÇÁÖ°æ¸Å Á¶¾ð ÇÑ ¸¶µð

¼±¼øÀ§ ÀÓÂ÷±Çµî±â°¡ µÇ¾î ÀÖ½À´Ï´Ù
´ëÇ×·ÂÀÌ ÀÖ´Â ¼±¼øÀ§ ÀÓÂ÷±Çµî±â ±Ç¸®ÀÚ°¡ ¹è´çÀ» Àü¾× ¹ÞÁö ¸øÇÒ °æ¿ì ³«ÂûÀÚ°¡ ÀÜ¿© º¸Áõ±ÝÀ» ÀμöÇØ¾ßÇÏ´Â °æ¿ìµµ ÀÖ½À´Ï´Ù.

ÁÖÀÇ»çÇ× (ÃÖ¼±¼øÀ§ ¼³Á¤ÀÏ: 2023.09.15. ¾Ð·ù ¼³Á¤)

¸Å°¢À¸·Î ¼Ò¸êµÇÁö ¾Ê´Â µî±âºÎ±Ç¸®:
¸Å°¢À¸·Î ¼³Á¤µÈ °ÍÀ¸·Î º¸´Â Áö»ó±Ç:
- ÁÖÅÃÀÓÂ÷±ÇÀÇ ½Â°èÀÎ ÁÖÅõµ½Ãº¸Áõ°ø»ç·ÎºÎÅÍ ¡®¿ì¼±º¯Á¦±Ç¸¸ ÁÖÀåÇÏ°í ´ëÇ×·ÂÀº Æ÷±âÇϸç, ¸Å¼öÀο¡ ´ëÇÑ ÀÜÁ¸ ÀÓ´ëÂ÷º¸Áõ±Ý ¹Ýȯû±¸±ÇÀ» Æ÷±âÇϰí ÀÓÂ÷±Çµî±â¸¦ ¸»¼Ò¿¡ µ¿ÀÇÇÑ´Ù¡¯´Â 2025. 10. 1.ÀÚ È®¾à¼­°¡ Á¦ÃâµÊ
¡Ø¹Ì³³°ü¸®ºñ(°ø¿ë) Àμö¿©ºÎ¸¦ ÀÔÂû Àü¿¡ È®ÀÎÇϽñ⠹ٶø´Ï´Ù

 

Áö¿ªºÐ¼®

ÁöÇÏö¸í Á÷¼±°Å¸®

Çб³¸í ÀüÈ­¹øÈ£ ÁÖ¼Ò Á÷¼±°Å¸®

¹ý¿ø

¼­¿ïÁß¾ÓÁö¹æ¹ý¿ø (065-94)¼­¿ïƯº°½Ã ¼­Ãʱ¸ ¼­ÃÊÁß¾Ó·Î 157 (¼­Ãʵ¿)
´ëÇ¥ : 02)530-1114, ¾ß°£ : 02)530-1280/536-8003
°üÇÒÁö¿ª : Á¾·Î±¸, Áß±¸, °­³²±¸, ¼­Ãʱ¸, °ü¾Ç±¸, µ¿ÀÛ±¸

µî±â¼Ò ¼­¿ïÁß¾ÓÁö¹æ¹ý¿ø º»¿ø µî±â±¹ (´ëÇ¥:1544-0773, ÆÑ½º:(02)590-1881, ¼­¿ïƯº°½Ã ¼­Ãʱ¸ ¹ý¿ø·Î3±æ 14 (¼­Ãʵ¿ 1707-4))
¼¼¹«¼­ µ¿ÀÛ¼¼¹«¼­ (´ëÇ¥:02-840-920, ÆÑ½º:02-831-4137, ¼­¿ïƯº°½Ã ¿µµîÆ÷±¸ ´ë¹æÃµ·Î 259 (½Å±æµ¿))

Àαٳ«ÂûÅë°è

±â°£ ¸Å°¢°Ç¼ö Æò±Õ°¨Á¤°¡
Æò±Õ¸Å°¢°¡
¸Å°¢°¡À²
Æò±ÕÀ¯Âû¼ö
3°³¿ù 15°Ç 463,983,797¿ø
411,428,560¿ø
89%
1.4ȸ
6°³¿ù 25°Ç 471,189,878¿ø
433,743,376¿ø
93%
1.2ȸ
12°³¿ù 28°Ç 453,562,391¿ø
420,917,693¿ø
94%
1ȸ


º» °æ¸ÅÁ¤º¸´Â ¹ý¿øÀÚ·á¿Í ÀÏÄ¡Çϵµ·Ï ÇÏ¿´À¸³ª ±Ç¸®»çÇ׺¯µ¿, ÀÔ·ÂÂø¿À µîÀÇ ¿øÀÎÀ¸·Î »ç½Ç°ú ´Ù¸¦ ¼ö ÀÖ½À´Ï´Ù. ÀÌ¿ë¾à°ü¿¡ ÀǰЏéÃ¥Á¶°ÇÀ¸·Î Á¦°øµÊÀ» ¾Ë¸®¸ç, °æ¸ÅÀÔÂû½Ã ¹Ýµå½Ã °ü·Ã °øºÎ¸¦ ÀçÈ®ÀÎÇϽñ⠹ٶø´Ï´Ù. º¸´Ù Æí¸®ÇÑ °æ¸ÅÁ¤º¸ Á¦°øÀ» À§ÇØ Áö¼ÓÀûÀ¸·Î °³¼±ÇϰڽÀ´Ï´Ù. ÀÌ¿ëÇØ Áּż­ °¨»çÇÕ´Ï´Ù.