·Î±×ÀÎ
1230
¿ÀÇǽºÅÚ
¼­¿ïºÏºÎÁö¹æ¹ý¿ø
 °¨Á¤°¡115,000,000 ¿ø
 ÃÖÀú°¡(41%) 47,104,000 ¿ø
 º¸Áõ±Ý(10%) 4,710,400 ¿ø
 Ã»±¸¾×139,000,000 ¿ø
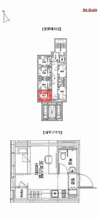
¼­¿ïƯº°½Ã µ¿´ë¹®±¸ Àü³óµ¿ 601-2 ¿¡½º¾ØÁ¦ÀÌÇÁ¸®¹Ì¾È 4Ãþ403È£
»ç°Ç¹øÈ£ 2025Ÿ°æ12282
°æ¸ÅÁ¾·ùºÎµ¿»ê°­Á¦°æ¸Å
¸Å°¢´ë»óÅäÁö ¹× °Ç¹°Àϰý ¸Å°¢
¸Å°¢±âÀÏ    2026.03.04(¼ö) 10:00 ÀÔÂû 10ÀÏÀü    
ÅäÁö¸éÀû4.10§³(1.24 Æò)
°Ç¹°¸éÀû16.58§³(5.01 Æò)
乫/¼ÒÀ¯ÀÚ¸Á OOOO OOOOOOO OOO / ¸Á OOOO OOOOOOO OOO
ä±ÇÀÚÁÖOOOOOOO
ÆäÀ̽ººÏ Æ®À§ÅÍ ±¸±Û+
īī¿À½ºÅ丮
īī¿ÀÅå sms¹®ÀÚº¸³»±â
 

±âÀϳ»¿ª

°æ°ú ³¯Â¥ Àú°¨ ÃÖÀú°¡ °á°ú
Á¢¼öÀÏ 2025-04-04 °æ¸ÅÁ¢¼ö
~3ÀÏ 
2025-04-07 °æ¸Å°³½Ã°áÁ¤
~82ÀÏ 
2025-06-25 ¹è´ç¿ä±¸Á¾±âÀÏ
~172ÀÏ 
2025-09-23 100%
115,000,000
À¯Âû
~214ÀÏ 
2025-11-04 80%
92,000,000
À¯Âû
~249ÀÏ 
2025-12-09 64%
73,600,000
À¯Âû
~291ÀÏ 
2026-01-20 51%
58,880,000
À¯Âû
~334ÀÏ 
2026-03-04 41%
47,104,000
ÁøÇà
¹°°Ç¸í¼¼¼­ ÇöȲÁ¶»ç¼­ ¹®°ÇÁ¢¼ö ¼Û´Þ³»¿ª

°¨Á¤Æò°¡ÇöȲ

¸ñ·Ï ÁÖ¼Ò ±¸Á¶/¿ëµµ/´ëÁö±Ç ¸éÀû ºñ°í
´ëÁö±Ç
Àü³óµ¿ 601-2 397.1ºÐÀÇ 4.1 4.1 §³
(1.24Æò)
°Ç¹°
Àü³óµ¿ 601-2 4Ãþ403È£ ö±ÙÄÜÅ©¸®Æ®±¸Á¶ 16.575 §³
(5.01Æò)
Âü°í
»çÇ×

1) ÇöÁö ¹æ¹®ÇÏ¿´À¸³ª Æó¹®ºÎÀç·Î ¾Æ¹«µµ ¸¸³ª

°ÇÃ๰ÇöȲ

¼ÒÀçÁö ¼­¿ïƯº°½Ã µ¿´ë¹®±¸ Àü³óµ¿ 601-2¹øÁö
´ëÁö¸éÀû 397.1§³
(120.33Æò)
¿¬¸éÀû 2944.45§³
(892.26Æò)
°ÇÃà¸éÀû 232.84§³
(70.56Æò)
¿ëÀû·ü»êÁ¤
¿¬¸éÀû
2725.85§³
(826.02Æò)
°ÇÆóÀ² 58.64% ¿ëÀû·ü 686.44%
Áö»óÃþ¼ö 17Ãþ ÁöÇÏÃþ¼ö 1Ãþ
ÁÖ¿ëµµ ¾÷¹«½Ã¼³ ±¸Á¶ ö±ÙÄÜÅ©¸®Æ®±¸Á¶
Âø°øÀÏÀÚ 2015.07.13 »ç¿ë½ÂÀÎÀÏÀÚ 2017.04.06
°ÇÃ๰Ãþº°ÇöȲ [º¸±â]


±¹ÅäºÎ½Ç°Å·¡°¡ ¼­¿ïƯº°½Ã µ¿´ë¹®±¸ Àü³óµ¿

¡Ü ¸Å¸Å

¸éÀû(§³), ±Ý¾×(¸¸¿ø)

¡Ü Àü¼¼

¸éÀû(§³), ±Ý¾×(¸¸¿ø)

°è¾àÀϰǹ°¸íĪÃþÀü¿ëº¸Áõ±Ý¿ù¼¼°ÇÃà
26.02.09¿¡½º¾ØÁ¦ÀÌÇÁ¸®¹Ì¾È716.5810,90052017
26.02.05¿¡½º¾ØÁ¦ÀÌÇÁ¸®¹Ì¾È916.5810,900102017
26.01.18¿¡½º¾ØÁ¦ÀÌÇÁ¸®¹Ì¾È217.98500602017
26.01.16¿¡½º¾ØÁ¦ÀÌÇÁ¸®¹Ì¾È1316.58500702017
25.12.31¿¡½º¾ØÁ¦ÀÌÇÁ¸®¹Ì¾È1217.988,000342017
¢Ñ ´õº¸±â

µî±âºÎµîº» ¿ä¾à(°Ç¹°)

  Á¢¼öÀÏÀÚ µî±â¸ñÀû/±Ç¸®ÀÚ ±Ç¸®±Ý¾× ±âÁØ
1 2021³â1¿ù19ÀÏ
¼ÒÀ¯±Ç
±èOO
¼Ò¸ê
2 2022³â12¿ù8ÀÏ
¾Ð·ù
±¹
¼Ò¸ê±âÁØ
3 2023³â2¿ù9ÀÏ
ÀÓÂ÷±Ç¼³Á¤
ÀÌOO
139,000,000 ¼Ò¸ê
4 2023³â5¿ù12ÀÏ
¾Ð·ù
µ¿OOO
¼Ò¸ê
5 2025³â4¿ù7ÀÏ
°­Á¦°æ¸Å
ÁÖOOOO
¼Ò¸ê

ÀÓÂ÷ÀÎÇöȲ (¹è´ç¿ä±¸Á¾±âÀÏ: 2025-06-25)

ÀÓÂ÷ÀÎ ¿ëµµ/Á¡À¯ º¸Áõ±Ý/¿ù¼¼ ´ëÇ×·Â
ÀüÀÔÀÏ/È®Á¤ÀÏ ¹è´ç¿ä±¸ ºñ°í
ÀÌOO Á¦403È£ÀüºÎ 139,000,000
O
2020.12.29.
2020.12.08.
2020.12.29. ~
ÁÖOOOOOOO Á¦403È£ÀüºÎ 139,000,000
O
2020.12.29.
2020.12.08.
2025.6.18. 2020.12.29. ~2023.03.02.
ºñ°í
(¸Å°¢¹°°Ç
¸í¼¼¼­)
ÁÖÅõµ½Ãº¸Áõ°ø»ç:°æ¸Å½Åûä±ÇÀÚÀ̸ç, ÀÓÂ÷ÀÎ ÀÌÁ¤ÈÆÀÇ ÀÓÂ÷º¸Áõ±Ýä±ÇÀ» ¾ç¼öÇÑ °ÍÀÓ

¿©ÀÇÁÖ°æ¸Å Á¶¾ð ÇÑ ¸¶µð

¼±¼øÀ§ ÀÓÂ÷±Çµî±â°¡ µÇ¾î ÀÖ½À´Ï´Ù
´ëÇ×·ÂÀÌ ÀÖ´Â ¼±¼øÀ§ ÀÓÂ÷±Çµî±â ±Ç¸®ÀÚ°¡ ¹è´çÀ» Àü¾× ¹ÞÁö ¸øÇÒ °æ¿ì ³«ÂûÀÚ°¡ ÀÜ¿© º¸Áõ±ÝÀ» ÀμöÇØ¾ßÇÏ´Â °æ¿ìµµ ÀÖ½À´Ï´Ù.

ÁÖÀÇ»çÇ× (ÃÖ¼±¼øÀ§ ¼³Á¤ÀÏ: 2022. 12. 8. ¾Ð·ù ¼³Á¤)

¸Å°¢À¸·Î ¼Ò¸êµÇÁö ¾Ê´Â µî±âºÎ±Ç¸®: À»±¸ 1¹ø 2023. 2. 9.ÀÚ ÁÖÅÃÀÓÂ÷±Çµî±â(´ëÇ×·Â ÀÖ´Â ÀÓÂ÷ÀÎÀ¸·Î ¹è´ç¿¡¼­ º¸Áõ±ÝÀÌ Àü¾× º¯Á¦µÇÁö ¾Æ´ÏÇϸé Àܾ׺κп¡ ´ëÇÏ ¿© ¸»¼ÒµÇÁö ¾Æ´ÏÇÔ)
¸Å°¢À¸·Î ¼³Á¤µÈ °ÍÀ¸·Î º¸´Â Áö»ó±Ç:
°¨Á¤Æò°¡¼­¿¡ ÀÇÇϸé, º»°ÇÀº °ü¸®ºñ(1.5³â ³»¿Ü ¹× 1,500,000¿ø ³»¿Ü)°¡ ¹Ì³³µÈ °ÍÀ¸·Î ±¸µÎ ޹®µÇ³ª Á¤È®¼º ¿©ºÎ´Â °ü¸®»ç¹« ¼Ò µî¿¡ ÀçÈ®ÀÎÀÌ ÇÊ¿äÇÔ
¡Ø¹Ì³³°ü¸®ºñ(°ø¿ë) Àμö¿©ºÎ¸¦ ÀÔÂû Àü¿¡ È®ÀÎÇϽñ⠹ٶø´Ï´Ù

 

Áö¿ªºÐ¼®

ÁöÇÏö¸í Á÷¼±°Å¸®

Çб³¸í ÀüÈ­¹øÈ£ ÁÖ¼Ò Á÷¼±°Å¸®

¹ý¿ø

¼­¿ïºÏºÎÁö¹æ¹ý¿ø (013-22)¼­¿ïƯº°½Ã µµºÀ±¸ ¸¶µé·Î749 (µµºÀ2µ¿ 626)
´ëÇ¥ : 02)910-3114
°üÇÒÁö¿ª : °­ºÏ±¸, ³ë¿ø±¸, µµºÀ±¸, µ¿´ë¹®±¸, ¼ººÏ±¸, Áß¶û±¸

µî±â¼Ò ¼­¿ïºÏºÎÁö¹æ¹ý¿ø º»¿ø µî±â±¹ (´ëÇ¥:1544-0773, ÆÑ½º:(02)2030-2330, ¼­¿ïƯº°½Ã µµºÀ±¸ ³ëÇØ·Î 325 (⵿ 337¹øÁö))
¼¼¹«¼­ µ¿´ë¹®¼¼¹«¼­ (´ëÇ¥:02-958-020, ÆÑ½º:02-967-7593, ¼­¿ïƯº°½Ã µ¿´ë¹®±¸ ¾à·É½Ã·Î 159 (û·®¸®1µ¿))

Àαٳ«ÂûÅë°è

±â°£ ¸Å°¢°Ç¼ö Æò±Õ°¨Á¤°¡
Æò±Õ¸Å°¢°¡
¸Å°¢°¡À²
Æò±ÕÀ¯Âû¼ö


º» °æ¸ÅÁ¤º¸´Â ¹ý¿øÀÚ·á¿Í ÀÏÄ¡Çϵµ·Ï ÇÏ¿´À¸³ª ±Ç¸®»çÇ׺¯µ¿, ÀÔ·ÂÂø¿À µîÀÇ ¿øÀÎÀ¸·Î »ç½Ç°ú ´Ù¸¦ ¼ö ÀÖ½À´Ï´Ù. ÀÌ¿ë¾à°ü¿¡ ÀǰЏéÃ¥Á¶°ÇÀ¸·Î Á¦°øµÊÀ» ¾Ë¸®¸ç, °æ¸ÅÀÔÂû½Ã ¹Ýµå½Ã °ü·Ã °øºÎ¸¦ ÀçÈ®ÀÎÇϽñ⠹ٶø´Ï´Ù. º¸´Ù Æí¸®ÇÑ °æ¸ÅÁ¤º¸ Á¦°øÀ» À§ÇØ Áö¼ÓÀûÀ¸·Î °³¼±ÇϰڽÀ´Ï´Ù. ÀÌ¿ëÇØ Áּż­ °¨»çÇÕ´Ï´Ù.