| °¨Á¤°¡ | 285,000,000 ¿ø |
| ÃÖÀú°¡ | (64%) 182,400,000 ¿ø |
| º¸Áõ±Ý | (10%) 18,240,000 ¿ø |
| û±¸¾× | 260,010,000 ¿ø |
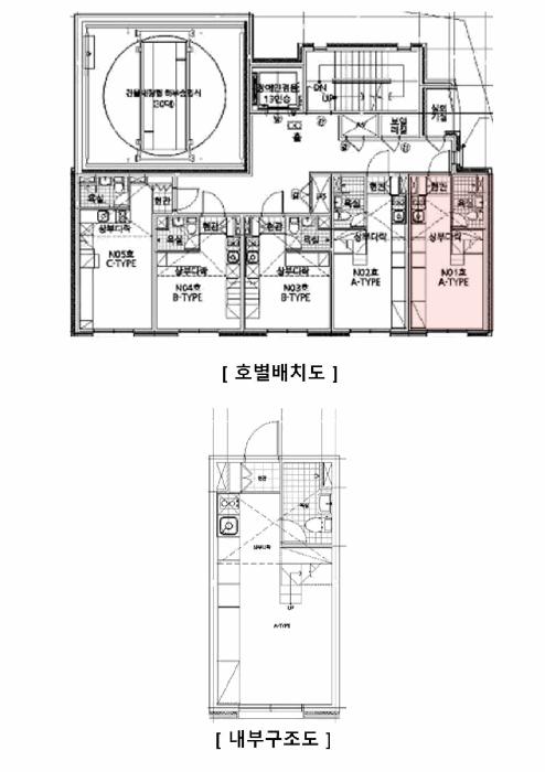
¼¿ïƯº°½Ã µ¿´ë¹®±¸ ´ä½Ê¸®µ¿ 243-6 ½á¹ÔÄ«¿îƼ 6Ãþ601È£
| »ç°Ç¹øÈ£ |
2025Ÿ°æ11858
|
| °æ¸ÅÁ¾·ù | ºÎµ¿»ê°Á¦°æ¸Å |
| ¸Å°¢´ë»ó | ÅäÁö ¹× °Ç¹°Àϰý ¸Å°¢ |
| ¸Å°¢±âÀÏ |
2025.12.09(È) 10:00
ÀÔÂû 31ÀÏÀü
|
| ÅäÁö¸éÀû | 7.66§³(2.32 Æò) |
| °Ç¹°¸éÀû | 20.88§³(6.32 Æò) |
| 乫/¼ÒÀ¯ÀÚ | ±èOO / ±èOO |
| ä±ÇÀÚ | ÁÖOOOOOOO |
±âÀϳ»¿ª
| °æ°ú |
³¯Â¥ |
Àú°¨ |
ÃÖÀú°¡ |
°á°ú |
| Á¢¼öÀÏ |
2025-02-12 |
°æ¸ÅÁ¢¼ö |
~0ÀÏ |
2025-02-12 |
°æ¸Å°³½Ã°áÁ¤ |
~96ÀÏ |
2025-05-19 |
¹è´ç¿ä±¸Á¾±âÀÏ |
~223ÀÏ |
2025-09-23 |
100% |
285,000,000 |
À¯Âû |
~265ÀÏ |
2025-11-04 |
80% |
228,000,000 |
À¯Âû |
~300ÀÏ |
2025-12-09 |
64% |
182,400,000 |
ÁøÇà |
°¨Á¤Æò°¡ÇöȲ
| ¸ñ·Ï |
ÁÖ¼Ò |
±¸Á¶/¿ëµµ/´ëÁö±Ç |
¸éÀû |
ºñ°í |
´ëÁö±Ç
|
´ä½Ê¸®µ¿ 243-6 |
409ºÐÀÇ 7.661 |
7.661 §³ (2.32Æò)
|
|
°Ç¹°
|
´ä½Ê¸®µ¿ 243-6 |
6Ãþ601È£ ö±ÙÄÜÅ©¸®Æ®±¸Á¶ |
20.88 §³ (6.32Æò)
|
|
Âü°í »çÇ× |
* ÀÓÂ÷ÀÎ Á¤¿© |
°ÇÃ๰ÇöȲ
| ¼ÒÀçÁö |
¼¿ïƯº°½Ã µ¿´ë¹®±¸ ´ä½Ê¸®µ¿ 243-6¹øÁö |
| ´ëÁö¸éÀû |
401.5§³ (121.67Æò) |
¿¬¸éÀû |
1769.34§³ (536.16Æò) |
| °ÇÃà¸éÀû |
216.9§³ (65.73Æò) |
¿ëÀû·ü»êÁ¤ ¿¬¸éÀû |
1508.36§³ (457.08Æò) |
| °ÇÆóÀ² |
54.02% |
¿ëÀû·ü |
375.68% |
| Áö»óÃþ¼ö |
11Ãþ |
ÁöÇÏÃþ¼ö |
1Ãþ |
| ÁÖ¿ëµµ |
¾÷¹«½Ã¼³ |
±¸Á¶ |
ö±ÙÄÜÅ©¸®Æ®±¸Á¶ |
| Âø°øÀÏÀÚ |
2020.07.06 |
»ç¿ë½ÂÀÎÀÏÀÚ |
2021.07.30 |
°ÇÃ๰Ãþº°ÇöȲ [º¸±â]| Ãþº° | ±¸Á¶ | ¿ëµµ | ¸éÀû |
|---|
| 1Ãþ | ö±ÙÄÜÅ©¸®Æ®±¸Á¶ | Á¦1Á¾±Ù¸°»ýȰ½Ã¼³(¼Ò¸ÅÁ¡) | 62.54§³ (18.95Æò) | | 1Ãþ | ö±ÙÄÜÅ©¸®Æ®±¸Á¶ | ±â°èÁÖÂ÷ | 52.44§³ (15.89Æò) | | 2Ãþ | ö±ÙÄÜÅ©¸®Æ®±¸Á¶ | ¾÷¹«½Ã¼³(¿ÀÇǽºÅÚ5È£) | 157.66§³ (47.78Æò) | | 3Ãþ | ö±ÙÄÜÅ©¸®Æ®±¸Á¶ | ¾÷¹«½Ã¼³(¿ÀÇǽºÅÚ5È£) | 157.66§³ (47.78Æò) | | 4Ãþ | ö±ÙÄÜÅ©¸®Æ®±¸Á¶ | ¾÷¹«½Ã¼³(¿ÀÇǽºÅÚ5È£) | 157.66§³ (47.78Æò) | | 5Ãþ | ö±ÙÄÜÅ©¸®Æ®±¸Á¶ | ¾÷¹«½Ã¼³(¿ÀÇǽºÅÚ5È£) | 157.66§³ (47.78Æò) | | 6Ãþ | ö±ÙÄÜÅ©¸®Æ®±¸Á¶ | ¾÷¹«½Ã¼³(¿ÀÇǽºÅÚ5È£) | 157.66§³ (47.78Æò) | | 7Ãþ | ö±ÙÄÜÅ©¸®Æ®±¸Á¶ | °øµ¿ÁÖÅÃ(µµ½ÃÇü»ýȰÁÖÅÃ3¼¼´ë) | 124.48§³ (37.72Æò) | | 8Ãþ | ö±ÙÄÜÅ©¸®Æ®±¸Á¶ | °øµ¿ÁÖÅÃ(µµ½ÃÇü»ýȰÁÖÅÃ3¼¼´ë) | 124.48§³ (37.72Æò) | | 9Ãþ | ö±ÙÄÜÅ©¸®Æ®±¸Á¶ | °øµ¿ÁÖÅÃ(µµ½ÃÇü»ýȰÁÖÅÃ3¼¼´ë) | 124.48§³ (37.72Æò) | | 10Ãþ | ö±ÙÄÜÅ©¸®Æ®±¸Á¶ | °øµ¿ÁÖÅÃ(µµ½ÃÇü»ýȰÁÖÅÃ4¼¼´ë) | 159.6§³ (48.36Æò) | | 11Ãþ | ö±ÙÄÜÅ©¸®Æ®±¸Á¶ | °øµ¿ÁÖÅÃ(µµ½ÃÇü»ýȰÁÖÅÃ4¼¼´ë) | 124.48§³ (37.72Æò) | | ¿Áž1Ãþ | ö±ÙÄÜÅ©¸®Æ®±¸Á¶ | Ȧ, °è´Ü½Ç(¿¬¸éÀûÁ¦¿Ü) | 25.78§³ (7.81Æò) | | Áö1Ãþ | ö±ÙÄÜÅ©¸®Æ®±¸Á¶ | Á¦2Á¾±Ù¸°»ýȰ½Ã¼³(»ç¹«¼Ò) | 208.54§³ (63.19Æò) |
|
±¹ÅäºÎ½Ç°Å·¡°¡ ¼¿ïƯº°½Ã µ¿´ë¹®±¸ ´ä½Ê¸®µ¿
| °è¾àÀÏ | °Ç¹°¸íĪ | Ãþ | Àü¿ë | ±Ý¾× | °ÇÃà |
| °Å·¡³»¿ªÀÌ ¾ø½À´Ï´Ù. |
| °è¾àÀÏ | °Ç¹°¸íĪ | Ãþ | Àü¿ë | º¸Áõ±Ý | ¿ù¼¼ | °ÇÃà |
| 25.07.10 | ½á¹Ô Ä«¿îƼ | 3 | 22.34 | 1,000 | 84 | 2021 |
| 24.10.02 | ½á¹Ô Ä«¿îƼ | 5 | 17.57 | 1,000 | 74 | 2021 |
| 24.08.18 | ½á¹Ô Ä«¿îƼ | 2 | 17.57 | 800 | 70 | 2021 |
| 24.04.19 | ½á¹Ô Ä«¿îƼ | 4 | 17.57 | 1,000 | 70 | 2021 |
| 24.02.01 | ½á¹Ô Ä«¿îƼ | 4 | 20.88 | 100 | 85 | 2021 |
µî±âºÎµîº» ¿ä¾à(°Ç¹°)
| |
Á¢¼öÀÏÀÚ |
µî±â¸ñÀû/±Ç¸®ÀÚ |
±Ç¸®±Ý¾× |
±âÁØ |
| 1 |
2022³â4¿ù29ÀÏ |
¼ÒÀ¯±Ç
±èOO
|
|
¼Ò¸ê |
| 2 |
2022³â4¿ù29ÀÏ |
¾àÁ¤/±ÝÁö»çÇ×/ȯ¸ÅƯ¾à
|
|
Àμö |
| 3 |
2023³â7¿ù24ÀÏ |
¾Ð·ù
±¹
|
|
¼Ò¸ê±âÁØ |
| 4 |
2023³â11¿ù22ÀÏ |
ÀÓÂ÷±Ç¼³Á¤
¹ÚOO
|
260,010,000 |
¼Ò¸ê |
| 5 |
2025³â2¿ù12ÀÏ |
°Á¦°æ¸Å
ÁÖOOOO
|
|
¼Ò¸ê |
ÀÓÂ÷ÀÎÇöȲ (¹è´ç¿ä±¸Á¾±âÀÏ: 2025-05-19)
| ÀÓÂ÷ÀÎ |
¿ëµµ/Á¡À¯ |
º¸Áõ±Ý/¿ù¼¼ |
´ëÇ×·Â |
| ÀüÀÔÀÏ/È®Á¤ÀÏ |
¹è´ç¿ä±¸ |
ºñ°í |
| ¹ÚOO |
Á¦601È£ÀüºÎ |
260,010,000
|
O |
2022.04.29. 2022.03.02. |
|
2022.04.29.~ |
| Á¤OO |
601È£ |
¹Ì»ó
[¿ù]¹Ì»ó |
X |
2024.05.01 ¹Ì»ó |
|
¹Ì»ó |
| ÁÖOOOOOOO |
Á¦601È£ÀüºÎ |
260,010,000
|
O |
2022.04.29. 2022.03.02. |
2025.2.12. |
2022.04.29.~ |
ºñ°í (¸Å°¢¹°°Ç ¸í¼¼¼) |
ÁÖÅõµ½Ãº¸Áõ°ø»ç:°æ¸Å½Åûä±ÇÀÚÀ̸ç, ÀÓÂ÷ÀÎ ¹Ú±Ô¸®ÀÇ ÀÓÂ÷º¸Áõ±Ýä±ÇÀ» ´ëÀ§º¯Á¦ÇÔÀ¸·Î½á ¹ß»ýÇÑ ±¸»ó±ÇÀ» Çà»çÇÏ´Â °ÍÀ¸·Î
¹è´ç¿ä±¸ÀÏÀº °æ¸Å½ÅûÀÏÀÓ |
¿©ÀÇÁÖ°æ¸Å Á¶¾ð ÇÑ ¸¶µð
¼±¼øÀ§ ÀÓÂ÷±Çµî±â°¡ µÇ¾î ÀÖ½À´Ï´Ù ´ëÇ×·ÂÀÌ ÀÖ´Â ¼±¼øÀ§ ÀÓÂ÷±Çµî±â ±Ç¸®ÀÚ°¡ ¹è´çÀ» Àü¾× ¹ÞÁö ¸øÇÒ °æ¿ì ³«ÂûÀÚ°¡ ÀÜ¿© º¸Áõ±ÝÀ» ÀμöÇØ¾ßÇÏ´Â °æ¿ìµµ ÀÖ½À´Ï´Ù. |
|
ÁÖÀÇ»çÇ× (ÃÖ¼±¼øÀ§ ¼³Á¤ÀÏ: 2023. 7. 24. ¾Ð·ù ¼³Á¤)
| ¸Å°¢À¸·Î ¼Ò¸êµÇÁö ¾Ê´Â µî±âºÎ±Ç¸®:
À»±¸ ¼øÀ§ 3¹ø ÀÓÂ÷±Çµî±â(2023³â 11¿ù 22ÀÏ Á¦172333È£) |
| ¸Å°¢À¸·Î ¼³Á¤µÈ °ÍÀ¸·Î º¸´Â Áö»ó±Ç: |
|
¡Ø¹Ì³³°ü¸®ºñ(°ø¿ë) Àμö¿©ºÎ¸¦ ÀÔÂû Àü¿¡ È®ÀÎÇϽñ⠹ٶø´Ï´Ù
|
Áö¿ªºÐ¼®
| Çб³¸í |
ÀüȹøÈ£ |
ÁÖ¼Ò |
Á÷¼±°Å¸® |
| ¹ý¿ø |
¼¿ïºÏºÎÁö¹æ¹ý¿ø (013-22)¼¿ïƯº°½Ã µµºÀ±¸ ¸¶µé·Î749 (µµºÀ2µ¿ 626) ´ëÇ¥ : 02)910-3114 °üÇÒÁö¿ª : °ºÏ±¸, ³ë¿ø±¸, µµºÀ±¸, µ¿´ë¹®±¸, ¼ººÏ±¸, Áß¶û±¸ |
| µî±â¼Ò |
¼¿ïºÏºÎÁö¹æ¹ý¿ø º»¿ø µî±â±¹ (´ëÇ¥:1544-0773, ÆÑ½º:(02)2030-2330, ¼¿ïƯº°½Ã µµºÀ±¸ ³ëÇØ·Î 325 (⵿ 337¹øÁö)) |
| ¼¼¹«¼ |
µ¿´ë¹®¼¼¹«¼ (´ëÇ¥:02-958-020, ÆÑ½º:02-967-7593, ¼¿ïƯº°½Ã µ¿´ë¹®±¸ ¾à·É½Ã·Î 159 (û·®¸®1µ¿)) |
Àαٳ«ÂûÅë°è
| ±â°£ |
¸Å°¢°Ç¼ö |
Æò±Õ°¨Á¤°¡ Æò±Õ¸Å°¢°¡ |
¸Å°¢°¡À² Æò±ÕÀ¯Âû¼ö |
| 3°³¿ù |
9°Ç |
1,401,010,511¿ø 1,069,517,453¿ø |
76% 1.7ȸ |
| 6°³¿ù |
15°Ç |
974,472,973¿ø 729,633,599¿ø |
72% 2.1ȸ |
| 12°³¿ù |
19°Ç |
829,636,558¿ø 617,667,322¿ø |
71% 2.1ȸ |
º» °æ¸ÅÁ¤º¸´Â ¹ý¿øÀÚ·á¿Í ÀÏÄ¡Çϵµ·Ï ÇÏ¿´À¸³ª ±Ç¸®»çÇ׺¯µ¿, ÀÔ·ÂÂø¿À µîÀÇ ¿øÀÎÀ¸·Î »ç½Ç°ú ´Ù¸¦ ¼ö ÀÖ½À´Ï´Ù.
ÀÌ¿ë¾à°ü¿¡ ÀǰЏéÃ¥Á¶°ÇÀ¸·Î Á¦°øµÊÀ» ¾Ë¸®¸ç, °æ¸ÅÀÔÂû½Ã ¹Ýµå½Ã °ü·Ã °øºÎ¸¦ ÀçÈ®ÀÎÇϽñ⠹ٶø´Ï´Ù.
º¸´Ù Æí¸®ÇÑ °æ¸ÅÁ¤º¸ Á¦°øÀ» À§ÇØ Áö¼ÓÀûÀ¸·Î °³¼±ÇϰڽÀ´Ï´Ù. ÀÌ¿ëÇØ Áּż °¨»çÇÕ´Ï´Ù.