·Î±×ÀÎ
22
¾ÆÆÄÆ®Çü°øÀå
ÀÇÁ¤ºÎÁö¹æ¹ý¿ø °í¾çÁö¿ø
 °¨Á¤°¡805,000,000 ¿ø
 ÃÖÀú°¡(49%) 394,450,000 ¿ø
 º¸Áõ±Ý(10%) 39,445,000 ¿ø
 Ã»±¸¾×505,608,119 ¿ø
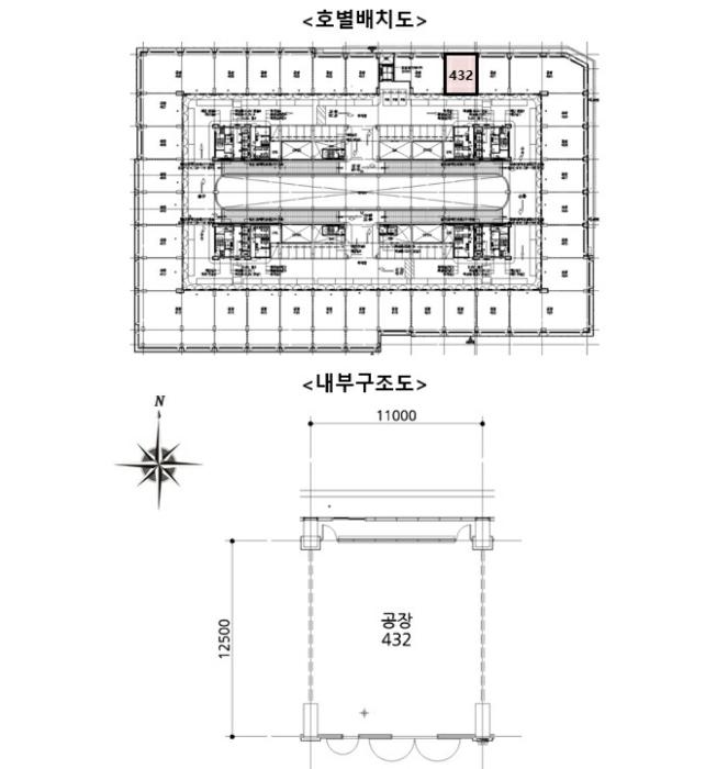
°æ±âµµ °í¾ç½Ã ´ö¾ç±¸ Ç⵿·Î 201, 4Ãþ432È£ (Ç⵿µ¿,Áö¿¤¸ÞÆ®·Î½ÃƼÇ⵿)
°æ±âµµ °í¾ç½Ã ´ö¾ç±¸ Ç⵿µ¿ 394
»ç°Ç¹øÈ£ 2024Ÿ°æ8894
°æ¸ÅÁ¾·ùºÎµ¿»êÀÓÀǰæ¸Å
¸Å°¢´ë»óÅäÁö ¹× °Ç¹°Àϰý ¸Å°¢
¸Å°¢±âÀÏ    2025.12.03(¼ö) 10:00 ÀÔÂû 12ÀÏÀü    
ÅäÁö¸éÀû34.60§³(10.47 Æò)
°Ç¹°¸éÀû137.50§³(41.59 Æò)
乫/¼ÒÀ¯ÀÚ±èOO / ±èOO
ä±ÇÀÚÀ¯OOOOOOOO OOOOOOOOO(OOOOOO OOOO)
ÆäÀ̽ººÏ Æ®À§ÅÍ ±¸±Û+
īī¿À½ºÅ丮
īī¿ÀÅå sms¹®ÀÚº¸³»±â
 

±âÀϳ»¿ª

°æ°ú ³¯Â¥ Àú°¨ ÃÖÀú°¡ °á°ú
Á¢¼öÀÏ 2024-12-04 °æ¸ÅÁ¢¼ö
~6ÀÏ 
2024-12-10 °æ¸Å°³½Ã°áÁ¤
~93ÀÏ 
2025-03-07 ¹è´ç¿ä±¸Á¾±âÀÏ
~287ÀÏ 
2025-09-17 100%
805,000,000
À¯Âû
~329ÀÏ 
2025-10-29 70%
563,500,000
À¯Âû
~364ÀÏ 
2025-12-03 49%
394,450,000
ÁøÇà
¹°°Ç¸í¼¼¼­ ÇöȲÁ¶»ç¼­ ¹®°ÇÁ¢¼ö ¼Û´Þ³»¿ª

°¨Á¤Æò°¡ÇöȲ

¸ñ·Ï ÁÖ¼Ò ±¸Á¶/¿ëµµ/´ëÁö±Ç ¸éÀû ºñ°í
´ëÁö±Ç
Ç⵿µ¿ 394 24444.4ºÐÀÇ 34.6 34.6 §³
(10.47Æò)
°Ç¹°
Ç⵿µ¿ 394 4Ãþ432È£ ÇÁ¸®ÄɽºÆ®ÄÜÅ©¸®Æ®±¸Á¶ 137.50 §³
(41.59Æò)
1) À§Ä¡/µµ½ÃÁö¿ª/ÁØÁÖ°ÅÁö¿ª/Áö±¸´ÜÀ§°èȹ±¸¿ª/¹ö½ºÁ¤·ùÀå/Â÷·®ÁøÃâÀÔ °¡´É/Â÷·®ÁøÃâÀÔ °¡´É ´õº¸±â
°¨Á¤Æò°¡ ¿äÇ×Ç¥
1)À§Ä¡ ¹× ÁÖÀ§È¯°æ
º»°ÇÀº °æ±âµµ °í¾ç½Ã ´ö¾ç±¸ Ç⵿µ¿ ¼ÒÀç "Ç⵿ÃʵîÇб³" ºÏ¼­Ãø Àαٿ¡ À§Ä¡ÇÏ¸ç ºÎ±ÙÀº ¾ÆÆÄÆ®´ÜÁö, ±Ù¸°»ýȰ½Ã¼³, Áö½Ä»ê¾÷¼¾ÅͰ¡ È¥ÀçÇÏ´Â Áö¿ªÀ¸·Î ÁÖÀ§È¯°æÀº º¸ÅëÀÓ.
2)±³Åë»óȲ
º»°Ç±îÁö Â÷·®ÁøÃâÀÔ °¡´ÉÇϸç Àαٿ¡ ¹ö½ºÁ¤·ùÀåÀÌ ¼ÒÀçÇÏ´Â µî ´ëÁß±³Åë»óȲÀº º¸ÅëÀÓ.
3)°Ç¹°ÀÇ ±¸Á¶
ÇÁ¸®ÄɽºÆ®ÄÜÅ©¸®Æ®±¸Á¶ ÇÁ¸®ÄɽºÆ®ÄÜÅ©¸®Æ®ÁöºØ ÁöÇÏ4Ãþ/Áö»ó14Ãþ Áß Á¦432È£·Î¼­

¿Üº®: Ŀư¿ù, µ¹ºÙÀÓ¸¶°¨ µî
³»º®: ÆäÀÎÆÃ¸¶°¨ µîÀÓ.
4)ÀÌ¿ë»óÅÂ
°øÀå(Áö½Ä»ê¾÷¼¾ÅÍ)À¸·Î ÀÌ¿ëÁßÀÓ.
5)¼³ºñ³»¿ª
À§»ý ¹× ±Þ¹è¼ö¼³ºñ, ½Â°­±â¼³ºñ, µå¶óÀ̺êÀμ³ºñ µî µÇ¾îÀÖÀ½.
6)ÅäÁöÀÇ Çü»ó ¹× ÀÌ¿ë»óÅÂ
ºÎÁ¤ÇüÀÇ ÅäÁö·Î "°øÀå(Áö½Ä»ê¾÷¼¾ÅÍ), Áö¿ø½Ã¼³" °ÇºÎÁö·Î ÀÌ¿ëÁßÀÓ.
7)ÀÎÁ¢ µµ·Î»óŵî
µ¿Ãø ¹× ºÏÃøÀ¸·Î µµ·Î Á¢ÇØÀÖÀ¸¸ç ºÏÃø ÃâÀԷθ¦ ÅëÇØ Â÷·®ÅëÇà °¡´ÉÇÔ.
8)ÅäÁöÀÌ¿ë°èȹ ¹× Á¦ÇÑ»óÅÂ
ÁØÁÖ°ÅÁö¿ª, Áö±¸´ÜÀ§°èȹ±¸¿ª(Ç⵿º¸±ÝÀÚ¸®), ´ë·Î2·ù(Æø 30m-35m)(Á¢ÇÕ), ¼Ò·Î3·ù(Æø 8m ¹Ì¸¸)(Á¢ÇÕ), Áß·Î1·ù(Æø 20m-25m)(Á¢ÇÕ) °¡Ãà»çÀ°Á¦Çѱ¸¿ª(2024-11-12)(ÀüºÎÁ¦Çѱ¸¿ª [µµ½ÃÁö¿ª{ÁÖ°Å,»ó¾÷,°ø¾÷,³ìÁö(ÀÚ¿¬Ãë¶ôÁö±¸)}¹×ÁְŹÐÁýÁö¿ª])<°¡ÃàºÐ´¢ÀÇ °ü¸® ¹× À̿뿡 °üÇÑ ¹ý·ü>, °ø°øÁÖÅÃÁö±¸<°ø°øÁÖÅà Ưº°¹ý>, ºñÇà¾ÈÀüÁ¦5±¸¿ª(Áö¿ø)(¼ö»öºñÇàÀå Ç¥°í(19.5m)±âÁØ °íµµ 45m-65m À§ÀÓÁö¿ª)<±º»ç±âÁö ¹× ±º»ç½Ã¼³ º¸È£¹ý>, Á¦ÇѺ¸È£±¸¿ª(Àü¹æÁö¿ª:25km)(°íµµ 85mÀ§ÀÓÁö¿ª)<±º»ç±âÁö ¹× ±º»ç½Ã¼³ º¸È£¹ý>, Á¦ÇѺ¸È£±¸¿ª(Àü¹æÁö¿ª:25km)(°íµµ30m À§ÀÓÁö¿ª)<±º»ç±âÁö ¹× ±º»ç½Ã¼³ º¸È£¹ý>, °ú¹Ð¾ïÁ¦±Ç¿ª<¼öµµ±ÇÁ¤ºñ°èȹ¹ý>
9)°øºÎ¿ÍÀÇ Â÷ÀÌ
¾ø À½.
10)±âŸÂü°í»çÇ×(ÀÓ´ë°ü·Ê ¹× ±âŸ)
ÀÓ´ë°ü°è µî ¹Ì»óÀÓ.
Âü°í
»çÇ×
1.°øÀå(Áö½Ä»ê¾÷¼¾ÅÍ)À¸·Î ÀÌ¿ëÁß. 2.ÁýÇÕ°ÇÃ๰´ëÀå(Ç¥Á¦ºÎ)»ó ¡®À§¹Ý°ÇÃ๰(¹«´ÜÁõÃà)¡¯ µîÀç 3.º» °Ç°ú ¿· 431È£ ¹× 433È£¸¦ Åͼ­ ÇÑ »ç¹«½Ç ¹× ÀÛ¾÷ÀåÀ¸·Î »ç¿ë Áß.
1.ÇÁ¸®ÄɽºÆ®ÄÜÅ©¸®Æ®±¸Á¶ ÇÁ¸®ÄɽºÆ®ÄÜÅ©¸®Æ®ÁöºØ ÁöÇÏ 4Ãþ, Áö»ó 14Ãþ °øÀå(Áö½Ä»ê¾÷¼¾ÅÍ),Áö¿ø½Ã¼³ 2.ÀÌ°Ç 432È£½Ç°ú ¿· 431È£ ¹× 433È£¸¦ Æ·¾î¼­ ÇÑ »ç¹«½Ç ¹× ÀÛ¾÷ÀåÀ¸·Î »ç¿ëÇϰí ÀÖÀ½

°ÇÃ๰ÇöȲ

¼ÒÀçÁö °æ±âµµ °í¾ç½Ã ´ö¾ç±¸ Ç⵿µ¿ 394¹øÁö
´ëÁö¸éÀû 24444.4§³
(7407.39Æò)
¿¬¸éÀû 194813§³
(59034.24Æò)
°ÇÃà¸éÀû 14660.67§³
(4442.63Æò)
¿ëÀû·ü»êÁ¤
¿¬¸éÀû
92688.12§³
(28087.31Æò)
°ÇÆóÀ² 59.9756% ¿ëÀû·ü 379.1793%
Áö»óÃþ¼ö 14Ãþ ÁöÇÏÃþ¼ö 4Ãþ
ÁÖ¿ëµµ °øÀå ±¸Á¶ ÇÁ¸®ÄɽºÆ®ÄÜÅ©¸®Æ®±¸Á¶
Âø°øÀÏÀÚ 2021.03.25 »ç¿ë½ÂÀÎÀÏÀÚ 2023.07.07
°ÇÃ๰Ãþº°ÇöȲ [º¸±â]


µî±âºÎµîº» ¿ä¾à(°Ç¹°)

  Á¢¼öÀÏÀÚ µî±â¸ñÀû/±Ç¸®ÀÚ ±Ç¸®±Ý¾× ±âÁØ
1 2023³â9¿ù11ÀÏ
¼ÒÀ¯±Ç
±èOO
¼Ò¸ê
2 2023³â9¿ù11ÀÏ
±ÙÀú´ç±Ç
(OOOO
640,800,000 ¼Ò¸ê±âÁØ
3 2024³â9¿ù6ÀÏ
°¡¾Ð·ù
ȕOOOO
26,225,030 ¼Ò¸ê
4 2024³â12¿ù11ÀÏ
ÀÓÀǰæ¸Å
(OOOO
¼Ò¸ê
5 2025³â8¿ù26ÀÏ
°¡¾Ð·ù
½ÅOOOO
159,227,600 ¼Ò¸ê

ÀÓÂ÷ÀÎÇöȲ (¹è´ç¿ä±¸Á¾±âÀÏ: 2025-03-07)

ÀÓÂ÷ÀÎ ¿ëµµ/Á¡À¯ º¸Áõ±Ý/¿ù¼¼ ´ëÇ×·Â
ÀüÀÔÀÏ/È®Á¤ÀÏ ¹è´ç¿ä±¸ ºñ°í
¸±OOOOOOOOOOOO ÀüºÎ 16,400,000
[¿ù]1,640,000

2025.03.04. 2024.04.24.~
¸¸OOOOOOOOOO

ºñ°í
(¸Å°¢¹°°Ç
¸í¼¼¼­)
¸±¸®ÁöÅ×Å©(´ëÇ¥ÀÚ ±èÀçȯ): ÀÓÂ÷ÀÎÀº ±Ç¸®½Å°í¼­¿¡ »ç¾÷ÀÚµî·Ï½ÅûÀÏÀ» 2025.02.19.·Î ±âÀçÇÏ¿´À¸³ª, ÷ºÎÇÑ µ¿°í¾ç¼¼¹«¼­ ¹ßÇà 'Á¢¼öÁõ'¿¡´Â 'º» °Ç »ó°¡°Ç¹°¿¡ ´ëÇÏ¿©´Â Á¦°øÇÒ Á¤º¸°¡ ¾ø¾î »ó°¡°Ç¹°ÀÓ´ëÂ÷ÇöȲ¼­ ¹ß±ÞÀÌ ºÒ°¡'ÇÏ´Ù°í ±âÀçµÇ¾îÀÖÀ½.

¿©ÀÇÁÖ°æ¸Å Á¶¾ð ÇÑ ¸¶µð


ÁÖÀÇ»çÇ× (ÃÖ¼±¼øÀ§ ¼³Á¤ÀÏ: 2023.09.11. ±ÙÀú´ç±Ç ¼³Á¤)

¸Å°¢À¸·Î ¼Ò¸êµÇÁö ¾Ê´Â µî±âºÎ±Ç¸®:
¸Å°¢À¸·Î ¼³Á¤µÈ °ÍÀ¸·Î º¸´Â Áö»ó±Ç:
1.°øÀå(Áö½Ä»ê¾÷¼¾ÅÍ)À¸·Î ÀÌ¿ëÁß. 2.ÁýÇÕ°ÇÃ๰´ëÀå(Ç¥Á¦ºÎ)»ó ¡®À§¹Ý°ÇÃ๰(¹«´ÜÁõÃà)¡¯ µîÀç 3.º» °Ç°ú ¿· 431È£ ¹× 433È£¸¦ Åͼ­ ÇÑ »ç¹«½Ç ¹× ÀÛ¾÷ÀåÀ¸·Î »ç¿ë Áß.
¡Ø¹Ì³³°ü¸®ºñ(°ø¿ë) Àμö¿©ºÎ¸¦ ÀÔÂû Àü¿¡ È®ÀÎÇϽñ⠹ٶø´Ï´Ù

 

Áö¿ªºÐ¼®

ÁöÇÏö¸í Á÷¼±°Å¸®

Çб³¸í ÀüÈ­¹øÈ£ ÁÖ¼Ò Á÷¼±°Å¸®

¹ý¿ø

ÀÇÁ¤ºÎÁö¹æ¹ý¿ø °í¾çÁö¿ø (104-13)°æ±âµµ °í¾ç½Ã Àϻ굿±¸ Àå¹é·Î 209
´ëÇ¥ : 031)920-6114, ¾ß°£ : 031)920-6550, ÆÑ½º : 031)920-6119
°üÇÒÁö¿ª : °í¾ç½Ã, ÆÄÁÖ½Ã

µî±â¼Ò ÀÇÁ¤ºÎÁö¹æ¹ý¿ø °í¾çÁö¿ø °í¾çµî±â¼Ò (´ëÇ¥:1544-0773, ÆÑ½º:(031)920-5959, °æ±âµµ °í¾ç½Ã Àϻ굿±¸ Áß¾Ó·Î1275¹ø±æ 38-30 (ÀåÇ×µ¿ 773))
¼¼¹«¼­ µ¿°í¾ç¼¼¹«¼­ (´ëÇ¥:031-900-62, ÆÑ½º:031-963-2979, °æ±âµµ °í¾ç½Ã ´ö¾ç±¸ È­Áß·Î 104¹ø±æ 16(È­Á¤µ¿))

Àαٳ«ÂûÅë°è

±â°£ ¸Å°¢°Ç¼ö Æò±Õ°¨Á¤°¡
Æò±Õ¸Å°¢°¡
¸Å°¢°¡À²
Æò±ÕÀ¯Âû¼ö
3°³¿ù 7°Ç 2,685,205,291¿ø
1,382,985,000¿ø
48%
2.9ȸ
6°³¿ù 11°Ç 2,091,421,704¿ø
1,130,711,273¿ø
56%
2.5ȸ
12°³¿ù 19°Ç 2,120,943,369¿ø
1,260,272,789¿ø
64%
2.1ȸ


º» °æ¸ÅÁ¤º¸´Â ¹ý¿øÀÚ·á¿Í ÀÏÄ¡Çϵµ·Ï ÇÏ¿´À¸³ª ±Ç¸®»çÇ׺¯µ¿, ÀÔ·ÂÂø¿À µîÀÇ ¿øÀÎÀ¸·Î »ç½Ç°ú ´Ù¸¦ ¼ö ÀÖ½À´Ï´Ù. ÀÌ¿ë¾à°ü¿¡ ÀǰЏéÃ¥Á¶°ÇÀ¸·Î Á¦°øµÊÀ» ¾Ë¸®¸ç, °æ¸ÅÀÔÂû½Ã ¹Ýµå½Ã °ü·Ã °øºÎ¸¦ ÀçÈ®ÀÎÇϽñ⠹ٶø´Ï´Ù. º¸´Ù Æí¸®ÇÑ °æ¸ÅÁ¤º¸ Á¦°øÀ» À§ÇØ Áö¼ÓÀûÀ¸·Î °³¼±ÇϰڽÀ´Ï´Ù. ÀÌ¿ëÇØ Áּż­ °¨»çÇÕ´Ï´Ù.