| °¨Á¤°¡ | 163,167,000 ¿ø |
| ÃÖÀú°¡ | (49%) 79,952,000 ¿ø |
| º¸Áõ±Ý | (10%) 7,995,200 ¿ø |
| û±¸¾× | 67,270,000 ¿ø |
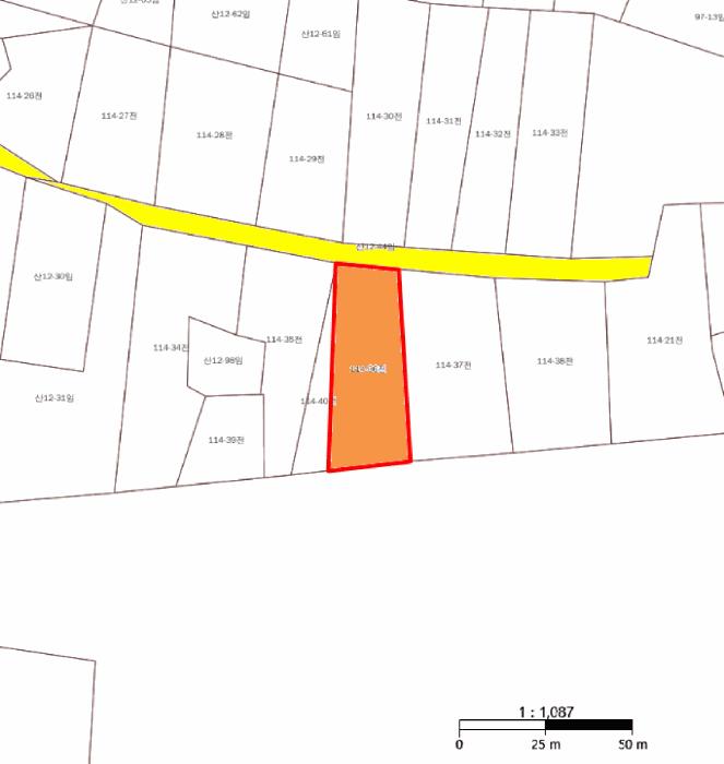
°æ»óºÏµµ °æÁֽà ¿Üµ¿À¾ ÀԽǸ® 114-36
| »ç°Ç¹øÈ£ |
2025Ÿ°æ10398
|
| °æ¸ÅÁ¾·ù | ºÎµ¿»êÀÓÀǰæ¸Å |
| ¸Å°¢´ë»ó | ÅäÁö¸Å°¢ |
| ¸Å°¢±âÀÏ |
2025.11.25(È) 10:00
ÀÔÂû 11ÀÏÀü
|
| ÅäÁö¸éÀû | 1,191.00§³(360.28 Æò) |
| °Ç¹°¸éÀû | |
| 乫/¼ÒÀ¯ÀÚ | ÀÌOO¿Ü 1¸í / ÀÌOO |
| ä±ÇÀÚ | ÁßOOOOOOO |
±âÀϳ»¿ª
| °æ°ú |
³¯Â¥ |
Àú°¨ |
ÃÖÀú°¡ |
°á°ú |
| Á¢¼öÀÏ |
2025-02-28 |
°æ¸ÅÁ¢¼ö |
~4ÀÏ |
2025-03-04 |
°æ¸Å°³½Ã°áÁ¤ |
~76ÀÏ |
2025-05-15 |
¹è´ç¿ä±¸Á¾±âÀÏ |
~200ÀÏ |
2025-09-16 |
100% |
163,167,000 |
À¯Âû |
~242ÀÏ |
2025-10-28 |
70% |
114,217,000 |
À¯Âû |
~270ÀÏ |
2025-11-25 |
49% |
79,952,000 |
ÁøÇà |
°¨Á¤Æò°¡ÇöȲ
| ¸ñ·Ï |
ÁÖ¼Ò |
±¸Á¶/¿ëµµ/´ëÁö±Ç |
¸éÀû |
ºñ°í |
ÅäÁö
|
ÀԽǸ® 114-36 |
Àü |
1191 §³ (360.28Æò)
|
|
Âü°í »çÇ× |
³óÁöÃëµæÀÚ°ÝÁõ¸í Á¦Ãâ ¿äÇÔ(¹ÌÁ¦Ãâ½Ã ¸Å¼öº¸Áõ±Ý ¹Ì¹Ýȯ). º°Áö »ç½ÇÁ¶È¸È¸½Å¼ ÂüÁ¶
|
±¹ÅäºÎ½Ç°Å·¡°¡ °æ»óºÏµµ °æÁֽà ¿Üµ¿À¾
| °è¾àÀÏ | Áö¸ñ | ¿ëµµÁö¿ª | µµ·Î | °è¾à¸éÀû | ±Ý¾× | ±¸ºÐ |
| 25.10.31 | ´ä | »ý»ê³ìÁö | 8m¹Ì¸¸ | 841.1 | 2,413 | |
| 25.10.31 | ´ä | »ý»ê³ìÁö | 8m¹Ì¸¸ | 2218.9 | 6,384 | |
| 25.10.31 | ´ä | »ý»ê³ìÁö | 8m¹Ì¸¸ | 2866.4 | 8,203 | |
| 25.10.31 | µµ·Î | ÀϹݰø¾÷ | - | 71.25 | 541 | ÁöºÐ |
| 25.10.31 | ÀÓ¾ß | ÀϹݰø¾÷ | 8m¹Ì¸¸ | 155 | 1,038 | ÁöºÐ |
| 25.10.29 | ´ä | Á¦2Á¾ÀϹÝÁÖ°Å | 8m¹Ì¸¸ | 199 | 3,500 | ÁöºÐ |
| 25.10.27 | ´ë | ÀÚ¿¬³ìÁö | 8m¹Ì¸¸ | 202 | 6,484 | |
| 25.10.17 | ±¸°Å | ÀϹݰø¾÷ | - | 476 | 11,400 | |
| 25.10.17 | ±¸°Å | ÀϹݰø¾÷ | - | 276 | 6,610 | |
| 25.10.15 | °øÀå¿ëÁö | ÀϹݰø¾÷ | 25m¹Ì¸¸ | 1836.8 | 137,000 | |
| 25.10.15 | ´ä | »ý»ê³ìÁö | - | 729 | 6,900 | ÁöºÐ |
| 25.10.15 | ´ä | »ý»ê³ìÁö | 12m¹Ì¸¸ | 874.5 | 8,200 | ÁöºÐ |
| 25.10.15 | °øÀå¿ëÁö | ÀϹݰø¾÷ | 25m¹Ì¸¸ | 370 | 27,000 | |
| 25.10.15 | ´ä | ÀϹݰø¾÷ | 8m¹Ì¸¸ | 2182 | 48,000 | |
| 25.10.14 | ´ä | »ý»ê³ìÁö | 8m¹Ì¸¸ | 1034 | 13,700 | |
| 25.10.13 | ÀÓ¾ß | ÀÚ¿¬³ìÁö | - | 1746 | 14,567 | |
| 25.10.13 | ÀÓ¾ß | ÀÚ¿¬³ìÁö | - | 113.48 | 1,303 | ÁöºÐ |
| 25.10.13 | ÀÓ¾ß | ÀÚ¿¬³ìÁö | - | 3047 | 24,880 | |
| 25.10.13 | ÀÓ¾ß | ÀÚ¿¬³ìÁö | - | 37.17 | 430 | ÁöºÐ |
| 25.10.13 | ÀÓ¾ß | ÀÚ¿¬³ìÁö | - | 567 | 4,630 | |
| 25.10.13 | ÀÓ¾ß | ÀÚ¿¬³ìÁö | - | 34.07 | 387 | ÁöºÐ |
| 25.10.13 | ´ä | ÀÚ¿¬³ìÁö | - | 36 | 255 | |
| 25.10.13 | ÀÓ¾ß | ÀÚ¿¬³ìÁö | - | 4538 | 37,100 | |
| 25.10.13 | ´ä | ÀÚ¿¬³ìÁö | - | 69 | 5,818 | |
| 25.10.10 | ´ë | º¸Àü³ìÁö | - | 455 | 3,174 | |
| 25.10.10 | µµ·Î | º¸Àü³ìÁö | - | 1.5 | 23 | ÁöºÐ |
| 25.10.10 | µµ·Î | º¸Àü³ìÁö | - | 17 | 23 | ÁöºÐ |
| 25.10.10 | µµ·Î | º¸Àü³ìÁö | - | 10 | 23 | ÁöºÐ |
| 25.10.10 | µµ·Î | º¸Àü³ìÁö | - | 12 | 23 | ÁöºÐ |
| 25.10.02 | °øÀå¿ëÁö | ÀϹݰø¾÷ | - | 69 | 2,218 | |
| 25.10.02 | °øÀå¿ëÁö | ÀϹݰø¾÷ | - | 159 | 5,112 | |
| 25.10.02 | °øÀå¿ëÁö | ÀϹݰø¾÷ | - | 291 | 9,356 | |
| 25.09.30 | ÀâÁ¾Áö | ÀÚ¿¬³ìÁö | 8m¹Ì¸¸ | 1369 | 12,185 | |
| 25.09.29 | ´ë | Á¦1Á¾ÀϹÝÁÖ°Å | 8m¹Ì¸¸ | 58 | 1,949 | |
| 25.09.29 | ´ä | ÀÚ¿¬³ìÁö | - | 560 | 23,700 | |
| 25.09.24 | °øÀå¿ëÁö | ÀϹݰø¾÷ | - | 406 | 200 | |
| 25.09.24 | Àü | ÀÚ¿¬³ìÁö | 8m¹Ì¸¸ | 221 | 4,900 | |
| 25.09.22 | Àü | º¸Àü³ìÁö | 8m¹Ì¸¸ | 1597 | 9,200 | |
| 25.09.19 | ´ä | »ý»ê³ìÁö | - | 106 | 600 | |
| 25.09.18 | ÀâÁ¾Áö | ÀÚ¿¬³ìÁö | 8m¹Ì¸¸ | 100 | 1,000 | |
| 25.09.15 | Àü | °èȹ°ü¸® | 8m¹Ì¸¸ | 430 | 4,550 | ÁöºÐ |
| 25.09.15 | Àü | °èȹ°ü¸® | 8m¹Ì¸¸ | 662 | 7,000 | |
| 25.09.14 | µµ·Î | º¸Àü³ìÁö | 8m¹Ì¸¸ | 20 | 90 | ÁöºÐ |
| 25.09.12 | ´ä | ÀϹݰø¾÷ | 8m¹Ì¸¸ | 1745 | 48,000 | |
| 25.09.12 | ÇÏõ | ³ó¸² | 8m¹Ì¸¸ | 74 | 622 | |
| 25.09.10 | µµ·Î | ÀÚ¿¬³ìÁö | 8m¹Ì¸¸ | 27.67 | 500 | ÁöºÐ |
| 25.09.10 | µµ·Î | °èȹ°ü¸® | 8m¹Ì¸¸ | 211 | 3,500 | |
| 25.09.10 | µµ·Î | »ý»ê³ìÁö | 8m¹Ì¸¸ | 158.33 | 3,000 | ÁöºÐ |
| 25.09.10 | µµ·Î | ÀÚ¿¬³ìÁö | 8m¹Ì¸¸ | 28.35 | 1,000 | ÁöºÐ |
| 25.09.10 | µµ·Î | ÀÚ¿¬³ìÁö | - | 41.67 | 1,000 | ÁöºÐ |
| 25.09.10 | µµ·Î | »ý»ê³ìÁö | 8m¹Ì¸¸ | 48.67 | 1,000 | ÁöºÐ |
| 25.09.10 | Àü | º¸Àü³ìÁö | 8m¹Ì¸¸ | 660 | 5,000 | |
| 25.09.09 | ´ä | º¸Àü³ìÁö | 8m¹Ì¸¸ | 5 | 100 | |
| 25.09.09 | ´ä | º¸Àü³ìÁö | 8m¹Ì¸¸ | 23 | 475 | |
| 25.09.09 | ´ä | º¸Àü³ìÁö | 8m¹Ì¸¸ | 707 | 14,600 | |
| 25.09.09 | ´ä | º¸Àü³ìÁö | - | 40 | 825 | |
| 25.09.09 | ´ë | Á¦2Á¾ÀϹÝÁÖ°Å | - | 28.9 | 3,555 | |
| 25.09.08 | ´ä | »ý»ê³ìÁö | 8m¹Ì¸¸ | 582 | 1,760 | |
| 25.09.08 | ´ä | »ý»ê³ìÁö | - | 492 | 1,490 | |
| 25.09.05 | ÀÓ¾ß | ÀÚ¿¬³ìÁö | - | 426 | 3,300 | |
| 25.09.05 | ¹¦Áö | ÀÚ¿¬³ìÁö | - | 458.6 | 3,505 | ÁöºÐ |
| 25.09.05 | ´ä | »ý»ê³ìÁö | - | 953 | 5,000 | |
| 25.09.05 | ´ä | »ý»ê³ìÁö | 8m¹Ì¸¸ | 700 | 5,000 | |
| 25.09.05 | ¹¦Áö | ÀÚ¿¬³ìÁö | - | 155.4 | 1,195 | ÁöºÐ |
| 25.09.05 | Àü | º¸Àü³ìÁö | - | 1461 | 12,600 | |
| 25.09.03 | Àü | ÀÚ¿¬³ìÁö | - | 1322 | 10,600 | |
| 25.09.03 | Àü | ÀÚ¿¬³ìÁö | 8m¹Ì¸¸ | 240 | 2,904 | |
| 25.09.03 | Àü | ÀÚ¿¬³ìÁö | 8m¹Ì¸¸ | 229 | 2,771 | |
| 25.09.01 | ´ä | º¸Àü³ìÁö | 25mÀÌ»ó | 1827 | 21,500 | |
| 25.08.28 | µµ·Î | Á¦2Á¾ÀϹÝÁÖ°Å | 8m¹Ì¸¸ | 8 | 150 | |
| 25.08.27 | Àü | º¸Àü³ìÁö | - | 568 | 9,460 | |
| 25.08.27 | Àü | º¸Àü³ìÁö | - | 569 | 9,460 | |
| 25.08.27 | Àü | º¸Àü³ìÁö | - | 568 | 9,460 | |
| 25.08.27 | Àü | º¸Àü³ìÁö | - | 568 | 9,460 | |
| 25.08.26 | µµ·Î | ÀϹݰø¾÷ | 8m¹Ì¸¸ | 40 | 200 | |
| 25.08.26 | Àü | ÀϹݰø¾÷ | 8m¹Ì¸¸ | 1630 | 20,500 | |
| 25.08.26 | ´ä | ÀϹݰø¾÷ | - | 150 | 2,000 | |
| 25.08.26 | ´ä | ÀϹݰø¾÷ | 8m¹Ì¸¸ | 1157 | 19,500 | |
| 25.08.26 | ÀÓ¾ß | ÀϹݰø¾÷ | - | 220 | 1,100 | |
| 25.08.26 | ÀÓ¾ß | ÀϹݰø¾÷ | - | 4306 | 63,432 | |
| 25.08.26 | ÀÓ¾ß | ÀϹݰø¾÷ | - | 3411 | 50,247 | |
| 25.08.26 | ÀÓ¾ß | ÀϹݰø¾÷ | - | 4909 | 72,314 | |
| 25.08.26 | ÀÓ¾ß | ÀϹݰø¾÷ | - | 272 | 4,007 | |
| 25.08.26 | ´ä | »ý»ê³ìÁö | 8m¹Ì¸¸ | 1663 | 10,000 | |
| 25.08.25 | ÀÓ¾ß | º¸Àü³ìÁö | - | 627 | 1,496 | |
| 25.08.25 | ´ä | º¸Àü³ìÁö | 8m¹Ì¸¸ | 444 | 9,815 | |
| 25.08.25 | ´ä | º¸Àü³ìÁö | 8m¹Ì¸¸ | 182 | 4,015 | |
| 25.08.25 | Àü | ÀÚ¿¬³ìÁö | 8m¹Ì¸¸ | 393 | 2,500 | |
| 25.08.25 | µµ·Î | ÀÚ¿¬³ìÁö | - | 10 | 30 | |
| 25.08.21 | ´ä | ÀÚ¿¬³ìÁö | - | 3801 | 8,400 | |
| 25.08.21 | µµ·Î | º¸Àü³ìÁö | 8m¹Ì¸¸ | 1.91 | 10 | ÁöºÐ |
| 25.08.21 | µµ·Î | º¸Àü³ìÁö | 8m¹Ì¸¸ | 13.38 | 40 | ÁöºÐ |
| 25.08.21 | µµ·Î | º¸Àü³ìÁö | 8m¹Ì¸¸ | 10.19 | 30 | ÁöºÐ |
| 25.08.21 | µµ·Î | º¸Àü³ìÁö | 8m¹Ì¸¸ | 6.37 | 20 | ÁöºÐ |
| 25.08.21 | ´ä | »ý»ê³ìÁö | 8m¹Ì¸¸ | 1039 | 3,140 | |
| 25.08.20 | ´ä | ÀÚ¿¬³ìÁö | 8m¹Ì¸¸ | 962 | 13,000 | |
| 25.08.20 | µµ·Î | º¸Àü³ìÁö | 8m¹Ì¸¸ | 3 | 30 | ÁöºÐ |
| 25.08.20 | Àü | »ý»ê³ìÁö | 8m¹Ì¸¸ | 122 | 400 | |
| 25.08.19 | Àü | º¸Àü³ìÁö | 8m¹Ì¸¸ | 6 | 7 | |
| 25.08.19 | Àü | º¸Àü³ìÁö | 8m¹Ì¸¸ | 49 | 11 | |
| 25.08.19 | Àü | º¸Àü³ìÁö | 8m¹Ì¸¸ | 43 | 82 | |
| 25.08.19 | ´ä | °èȹ°ü¸® | - | 572 | 9,949 | |
| 25.08.19 | ´ä | °èȹ°ü¸® | - | 1082 | 18,820 | |
| 25.08.19 | Àü | »ý»ê³ìÁö | - | 391 | 6,801 | |
| 25.08.19 | ´ä | °èȹ°ü¸® | - | 989 | 17,202 | |
| 25.08.19 | ´ä | °èȹ°ü¸® | 8m¹Ì¸¸ | 514 | 8,940 | |
| 25.08.19 | Àü | °èȹ°ü¸® | - | 14 | 244 | |
| 25.08.19 | ÀÓ¾ß | °èȹ°ü¸® | - | 533 | 9,271 | |
| 25.08.19 | ÀÓ¾ß | º¸Àü³ìÁö | - | 1329 | 23,116 | |
| 25.08.19 | ´ä | °èȹ°ü¸® | - | 150 | 2,609 | |
| 25.08.19 | ´ä | °èȹ°ü¸® | 8m¹Ì¸¸ | 2147 | 37,344 | |
| 25.08.18 | ÀÓ¾ß | »ý»ê³ìÁö | 8m¹Ì¸¸ | 1977 | 7,000 | |
| 25.08.13 | µµ·Î | º¸Àü³ìÁö | - | 60 | 462 | |
| 25.08.13 | ÀâÁ¾Áö | ÀϹݰø¾÷ | 8m¹Ì¸¸ | 359 | 10,874 | |
| 25.08.13 | ÀâÁ¾Áö | ÀϹݰø¾÷ | 8m¹Ì¸¸ | 1870 | 56,641 | |
| 25.08.13 | ÀÓ¾ß | ÀϹݰø¾÷ | - | 156 | 3,409 | |
| 25.08.13 | ÀâÁ¾Áö | ÀϹݰø¾÷ | 8m¹Ì¸¸ | 2255 | 68,302 | |
| 25.08.12 | ´ë | ÀÚ¿¬³ìÁö | 8m¹Ì¸¸ | 314 | 3,300 | |
| 25.08.12 | ÀÓ¾ß | º¸Àü³ìÁö | - | 595 | 1,000 | |
| 25.08.12 | ´ä | ÀÚ¿¬³ìÁö | 8m¹Ì¸¸ | 453 | 2,200 | |
| 25.08.12 | ´ä | °èȹ°ü¸® | - | 168 | 2,800 | |
| 25.08.12 | ´ä | °èȹ°ü¸® | - | 543 | 5,000 | |
| 25.08.10 | Àü | ÀÚ¿¬³ìÁö | 8m¹Ì¸¸ | 311 | 1,025 | |
| 25.08.10 | Àü | ÀÚ¿¬³ìÁö | - | 512 | 1,432 | |
| 25.08.10 | Àü | ÀÚ¿¬³ìÁö | 8m¹Ì¸¸ | 1144 | 2,898 | |
| 25.08.08 | ´ä | »ý»ê³ìÁö | 8m¹Ì¸¸ | 2935.8 | 12,500 | |
| 25.08.08 | ´ë | ÀϹݰø¾÷ | 25m¹Ì¸¸ | 272 | 17,279 | |
| 25.08.08 | Àü | »ý»ê³ìÁö | 8m¹Ì¸¸ | 244 | 450 | |
| 25.08.08 | Àü | »ý»ê³ìÁö | - | 586 | 1,300 | |
| 25.08.07 | ÀÓ¾ß | ÀϹݰø¾÷ | - | 812 | 10,000 | |
| 25.08.07 | ÀÓ¾ß | ÀϹݰø¾÷ | 8m¹Ì¸¸ | 3847 | 80,000 | |
| 25.08.07 | ÀÓ¾ß | ÀϹݰø¾÷ | 8m¹Ì¸¸ | 19.33 | 200 | ÁöºÐ |
| 25.08.07 | ÀÓ¾ß | ÀϹݰø¾÷ | - | 413 | 8,500 | |
| 25.08.07 | ÀÓ¾ß | ÀϹݰø¾÷ | - | 2136 | 44,000 | |
| 25.08.07 | ÀÓ¾ß | ÀϹݰø¾÷ | - | 1045 | 21,500 | |
| 25.08.07 | ÀÓ¾ß | ÀϹݰø¾÷ | - | 628 | 13,000 | |
| 25.08.07 | ÀÓ¾ß | ÀϹݰø¾÷ | 8m¹Ì¸¸ | 396.33 | 4,800 | ÁöºÐ |
| 25.08.07 | ÀÓ¾ß | ÀϹݰø¾÷ | 8m¹Ì¸¸ | 309 | 6,400 | |
| 25.08.07 | ÀÓ¾ß | ÀϹݰø¾÷ | 8m¹Ì¸¸ | 2303 | 47,500 | |
| 25.08.07 | ÀÓ¾ß | ÀϹݰø¾÷ | - | 485.5 | 10,000 | ÁöºÐ |
| 25.08.07 | ÀÓ¾ß | ÀϹݰø¾÷ | - | 2104 | 43,500 | |
| 25.08.07 | ÀÓ¾ß | ÀϹݰø¾÷ | - | 51.5 | 1,000 | ÁöºÐ |
| 25.08.07 | ÀÓ¾ß | ÀϹݰø¾÷ | - | 6362 | 131,000 | |
| 25.08.07 | ÀÓ¾ß | ÀϹݰø¾÷ | - | 324.5 | 6,800 | ÁöºÐ |
| 25.08.07 | ÀÓ¾ß | ÀϹݰø¾÷ | - | 332 | 6,800 | ÁöºÐ |
| 25.08.07 | ´ä | »ý»ê³ìÁö | 8m¹Ì¸¸ | 2222 | 10,752 | |
| 25.08.07 | ´ä | »ý»ê³ìÁö | 8m¹Ì¸¸ | 3015 | 10,032 | |
| 25.08.07 | ´ä | »ý»ê³ìÁö | 8m¹Ì¸¸ | 3045 | 10,131 | |
| 25.08.07 | ´ä | »ý»ê³ìÁö | 8m¹Ì¸¸ | 1488 | 7,200 | |
| 25.08.07 | ´ä | º¸Àü³ìÁö | - | 271 | 8,330 | |
| 25.08.07 | ´ä | º¸Àü³ìÁö | - | 93 | 2,859 | |
| 25.08.07 | ´ä | º¸Àü³ìÁö | - | 104 | 3,197 | |
| 25.08.07 | ´ä | º¸Àü³ìÁö | - | 397 | 12,203 | |
| 25.08.07 | ´ä | º¸Àü³ìÁö | - | 111 | 3,412 | |
| 25.08.07 | ´ä | »ý»ê³ìÁö | 12m¹Ì¸¸ | 1798 | 5,260 | |
| 25.08.06 | ´ä | »ý»ê³ìÁö | 8m¹Ì¸¸ | 3013 | 14,582 | |
| 25.08.04 | ´ä | »ý»ê³ìÁö | 8m¹Ì¸¸ | 647 | 2,847 | |
| 25.08.03 | ÀÓ¾ß | º¸Àü³ìÁö | 8m¹Ì¸¸ | 4760 | 9,500 | |
| 25.08.01 | ´ä | ÀÚ¿¬³ìÁö | 8m¹Ì¸¸ | 1590 | 7,730 | |
| 25.08.01 | ´ë | ÀÚ¿¬³ìÁö | 8m¹Ì¸¸ | 106 | 2,500 | |
| 25.08.01 | Àü | ÀÚ¿¬³ìÁö | 8m¹Ì¸¸ | 569 | 2,500 | |
| 25.08.01 | Àü | ÀÚ¿¬³ìÁö | 8m¹Ì¸¸ | 289 | 2,500 | |
| 25.08.01 | Àü | ÀÚ¿¬³ìÁö | 8m¹Ì¸¸ | 536 | 3,750 | |
| 25.08.01 | ´ä | ÀÚ¿¬³ìÁö | 8m¹Ì¸¸ | 466 | 3,750 | |
| 25.07.30 | Àü | ÀÚ¿¬³ìÁö | 8m¹Ì¸¸ | 99 | 1,000 | |
| 25.07.30 | ÀÓ¾ß | º¸Àü³ìÁö | 8m¹Ì¸¸ | 43.84 | 100 | ÁöºÐ |
| 25.07.29 | ´ä | º¸Àü³ìÁö | - | 662 | 450 | |
| 25.07.29 | Àü | º¸Àü³ìÁö | - | 12 | 77 | |
| 25.07.29 | Àü | º¸Àü³ìÁö | - | 80 | 601 | |
| 25.07.28 | ÀÓ¾ß | ÀϹݰø¾÷ | - | 3596 | 83,776 | |
| 25.07.28 | ÀÓ¾ß | ÀϹݰø¾÷ | 8m¹Ì¸¸ | 12093 | 281,666 | |
| 25.07.28 | ´ä | »ý»ê³ìÁö | 8m¹Ì¸¸ | 1913 | 10,000 | |
| 25.07.22 | µµ·Î | »ý»ê³ìÁö | 8m¹Ì¸¸ | 4 | 155 | |
| 25.07.22 | µµ·Î | »ý»ê³ìÁö | 8m¹Ì¸¸ | 61 | 2,345 | |
| 25.07.21 | Àü | º¸Àü³ìÁö | - | 731 | 3,536 | |
| 25.07.21 | Àü | º¸Àü³ìÁö | - | 165 | 784 | |
| 25.07.21 | ÀÓ¾ß | ÀϹݰø¾÷ | - | 5401 | 73,530 | |
| 25.07.21 | ´ë | °èȹ°ü¸® | 25mÀÌ»ó | 16 | 1,043 | |
| 25.07.18 | ÀÓ¾ß | º¸Àü³ìÁö | 8m¹Ì¸¸ | 727 | 5,386 | |
| 25.07.18 | ÀÓ¾ß | º¸Àü³ìÁö | 12m¹Ì¸¸ | 59.25 | 439 | ÁöºÐ |
| 25.07.18 | ÀÓ¾ß | º¸Àü³ìÁö | 12m¹Ì¸¸ | 40.5 | 300 | ÁöºÐ |
| 25.07.18 | ÀÓ¾ß | ÀÚ¿¬³ìÁö | 8m¹Ì¸¸ | 1355 | 9,000 | |
| 25.07.17 | °øÀå¿ëÁö | ÀÚ¿¬³ìÁö | 8m¹Ì¸¸ | 655 | 24,400 | |
| 25.07.17 | ´ä | ÀÚ¿¬³ìÁö | 8m¹Ì¸¸ | 268 | 10,000 | |
| 25.07.17 | °øÀå¿ëÁö | ÀÚ¿¬³ìÁö | 8m¹Ì¸¸ | 196 | 7,300 | |
| 25.07.17 | °øÀå¿ëÁö | ÀÚ¿¬³ìÁö | 8m¹Ì¸¸ | 314 | 11,700 | |
| 25.07.17 | ÀâÁ¾Áö | ÀÚ¿¬³ìÁö | 8m¹Ì¸¸ | 133 | 5,000 | |
| 25.07.17 | ´ë | ÀϹݰø¾÷ | 25m¹Ì¸¸ | 272 | 17,279 | |
| 25.07.14 | Àü | »ý»ê³ìÁö | 8m¹Ì¸¸ | 504 | 4,500 | |
| 25.07.11 | ´ä | »ý»ê³ìÁö | 8m¹Ì¸¸ | 2153 | 7,200 | |
| 25.07.11 | ´ä | »ý»ê³ìÁö | 8m¹Ì¸¸ | 2917 | 8,800 | |
| 25.07.09 | ÀÓ¾ß | »ý»ê³ìÁö | - | 70 | 250 | |
| 25.07.07 | Àü | »ý»ê³ìÁö | 8m¹Ì¸¸ | 744 | 11,000 | |
| 25.07.07 | Àü | »ý»ê³ìÁö | 8m¹Ì¸¸ | 803 | 12,000 | |
| 25.07.04 | ÀÓ¾ß | º¸Àü³ìÁö | - | 660 | 1,000 | |
| 25.07.04 | ÀÓ¾ß | º¸Àü³ìÁö | - | 438 | 840 | |
| 25.07.04 | ÀÓ¾ß | º¸Àü³ìÁö | - | 555 | 660 | |
| 25.07.04 | µµ·Î | º¸Àü³ìÁö | - | 59 | 1,500 | ÁöºÐ |
| 25.07.04 | ´ë | º¸Àü³ìÁö | - | 77 | 3,220 | |
| 25.07.04 | ´ë | º¸Àü³ìÁö | - | 15.5 | 700 | ÁöºÐ |
| 25.07.02 | ´ä | ÀÚ¿¬³ìÁö | - | 1104 | 8,849 | |
| 25.07.02 | ´ä | ÀÚ¿¬³ìÁö | - | 1263 | 10,121 | |
| 25.06.30 | Àü | Á¦2Á¾ÀϹÝÁÖ°Å | 8m¹Ì¸¸ | 46 | 1,923 | |
| 25.06.27 | ÀÓ¾ß | ÀÚ¿¬³ìÁö | - | 248 | 800 | |
| 25.06.26 | ¹¦Áö | ÀÚ¿¬³ìÁö | 8m¹Ì¸¸ | 403 | 4,800 | |
| 25.06.26 | Àü | ÀÚ¿¬³ìÁö | 8m¹Ì¸¸ | 334 | 1,500 | |
| 25.06.25 | ´ë | ÀϹݰø¾÷ | 25m¹Ì¸¸ | 475.2 | 33,120 | |
| 25.06.24 | Àü | ÀÚ¿¬³ìÁö | 8m¹Ì¸¸ | 347 | 3,500 | |
| 25.06.23 | ´ä | ÀÚ¿¬³ìÁö | 8m¹Ì¸¸ | 11 | 270 | |
| 25.06.20 | Àü | º¸Àü³ìÁö | 8m¹Ì¸¸ | 225 | 2,295 | |
| 25.06.20 | µµ·Î | ÀÚ¿¬³ìÁö | 8m¹Ì¸¸ | 495 | 150 | |
| 25.06.18 | ´ä | º¸Àü³ìÁö | - | 283 | 4,132 | |
| 25.06.18 | Àü | ÀÚ¿¬³ìÁö | - | 467 | 15,318 | |
| 25.06.18 | ´ë | ÀÚ¿¬³ìÁö | - | 135 | 4,712 | |
| 25.06.18 | Àü | º¸Àü³ìÁö | - | 113 | 3,175 | |
| 25.06.17 | ÀÓ¾ß | ÀϹݰø¾÷ | 12m¹Ì¸¸ | 25978 | 680,000 | |
| 25.06.17 | µµ·Î | º¸Àü³ìÁö | 8m¹Ì¸¸ | 27 | 500 | |
| 25.06.16 | ´ä | º¸Àü³ìÁö | 8m¹Ì¸¸ | 1095 | 18,000 | |
| 25.06.16 | ´ë | ÀÚ¿¬³ìÁö | 8m¹Ì¸¸ | 15 | 300 | |
| 25.06.11 | Àü | ÀÚ¿¬³ìÁö | - | 428 | 4,280 | |
| 25.06.11 | ´ë | ÀÚ¿¬³ìÁö | 8m¹Ì¸¸ | 140 | 3,110 | |
| 25.06.11 | Àü | ÀÚ¿¬³ìÁö | - | 231 | 2,310 | |
| 25.06.11 | ´ä | ÀÚ¿¬³ìÁö | - | 1025 | 20,000 | |
| 25.06.10 | ´ë | ÀÚ¿¬³ìÁö | 8m¹Ì¸¸ | 479 | 15,000 | |
| 25.06.10 | ´ä | °èȹ°ü¸® | 8m¹Ì¸¸ | 1719 | 5,200 | |
| 25.06.07 | µµ·Î | ÀÚ¿¬³ìÁö | 8m¹Ì¸¸ | 6 | 20 | |
| 25.06.05 | ´ä | »ý»ê³ìÁö | - | 1745 | 6,980 | |
| 25.06.05 | ´ä | »ý»ê³ìÁö | 8m¹Ì¸¸ | 1419 | 6,386 | |
| 25.06.05 | ´ä | »ý»ê³ìÁö | 8m¹Ì¸¸ | 2041 | 9,185 | |
| 25.06.04 | ´ä | »ý»ê³ìÁö | 8m¹Ì¸¸ | 1233 | 9,300 | |
| 25.06.04 | ´ä | ÀϹݰø¾÷ | 8m¹Ì¸¸ | 86.9 | 1,036 | ÁöºÐ |
| 25.06.04 | µµ·Î | ÀϹݰø¾÷ | - | 62.8 | 752 | ÁöºÐ |
| 25.06.02 | ÀÓ¾ß | º¸Àü³ìÁö | 12m¹Ì¸¸ | 8785 | 92,920 | |
| 25.06.02 | ÀÓ¾ß | º¸Àü³ìÁö | - | 13223 | 63,886 | |
| 25.06.02 | ÀÓ¾ß | º¸Àü³ìÁö | - | 7406 | 35,840 | |
| 25.06.02 | ÀÓ¾ß | ÀÚ¿¬³ìÁö | - | 1589 | 735 | |
| 25.06.02 | ÀÓ¾ß | º¸Àü³ìÁö | - | 9980 | 4,619 | |
| 25.05.30 | ´ä | »ý»ê³ìÁö | 8m¹Ì¸¸ | 2384 | 14,000 | |
| 25.05.29 | ´ä | ÀϹݰø¾÷ | 8m¹Ì¸¸ | 181 | 8,487 | ÁöºÐ |
| 25.05.29 | ´ä | ÀϹݰø¾÷ | 8m¹Ì¸¸ | 1152 | 54,019 | ÁöºÐ |
| 25.05.29 | °øÀå¿ëÁö | ÀϹݰø¾÷ | 8m¹Ì¸¸ | 433 | 20,304 | ÁöºÐ |
| 25.05.29 | ´ë | ÀϹݰø¾÷ | 8m¹Ì¸¸ | 412 | 19,319 | |
| 25.05.29 | ´ä | ÀϹݰø¾÷ | 8m¹Ì¸¸ | 439 | 20,585 | ÁöºÐ |
| 25.05.29 | ¸ñÀå¿ëÁö | ÀϹݰø¾÷ | 8m¹Ì¸¸ | 360 | 16,881 | ÁöºÐ |
| 25.05.29 | ÀÓ¾ß | ÀϹݰø¾÷ | 8m¹Ì¸¸ | 600.71 | 28,168 | ÁöºÐ |
| 25.05.29 | ´ä | ÀϹݰø¾÷ | 8m¹Ì¸¸ | 153 | 7,174 | ÁöºÐ |
| 25.05.29 | °øÀå¿ëÁö | ÀϹݰø¾÷ | 8m¹Ì¸¸ | 2 | 94 | ÁöºÐ |
| 25.05.29 | ÀÓ¾ß | ÀϹݰø¾÷ | 8m¹Ì¸¸ | 1010.14 | 47,367 | ÁöºÐ |
| 25.05.27 | ÀÓ¾ß | º¸Àü³ìÁö | - | 627 | 935 | |
| 25.05.27 | ÀÓ¾ß | º¸Àü³ìÁö | - | 617 | 935 | |
| 25.05.26 | ´ë | ÀÚ¿¬³ìÁö | 8m¹Ì¸¸ | 56 | 850 | ÁöºÐ |
| 25.05.26 | ´ë | ÀÚ¿¬³ìÁö | 8m¹Ì¸¸ | 45.5 | 600 | ÁöºÐ |
| 25.05.26 | ´ä | »ý»ê³ìÁö | 8m¹Ì¸¸ | 2162 | 7,700 | |
| 25.05.22 | ´ä | ÀÚ¿¬³ìÁö | 8m¹Ì¸¸ | 2089 | 31,600 | ÁöºÐ |
| 25.05.22 | ´ä | ÀÚ¿¬³ìÁö | 8m¹Ì¸¸ | 2914 | 44,050 | |
| 25.05.22 | ´ä | ÀÚ¿¬³ìÁö | 8m¹Ì¸¸ | 200 | 3,050 | ÁöºÐ |
| 25.05.19 | Àü | »ý»ê³ìÁö | - | 420 | 2,200 | |
| 25.05.19 | ´ë | ÀÚ¿¬³ìÁö | 8m¹Ì¸¸ | 44 | 1,330 | |
| 25.05.19 | ´ë | ÀÚ¿¬³ìÁö | 8m¹Ì¸¸ | 138 | 4,170 | |
| 25.05.16 | ÀÓ¾ß | ÀϹݰø¾÷ | - | 4704 | 149,412 | ÁöºÐ |
| 25.05.16 | ÀÓ¾ß | ÀϹݰø¾÷ | - | 172 | 5,463 | ÁöºÐ |
| 25.05.15 | ´ä | ÀÚ¿¬³ìÁö | 8m¹Ì¸¸ | 688 | 9,850 | |
| 25.05.15 | Àü | ÀÚ¿¬³ìÁö | 8m¹Ì¸¸ | 188 | 2,850 | |
| 25.05.15 | Àü | ÀÚ¿¬³ìÁö | 8m¹Ì¸¸ | 138 | 2,100 | |
| 25.05.15 | ´ä | ÀÚ¿¬³ìÁö | 8m¹Ì¸¸ | 1421 | 21,500 | |
| 25.05.15 | ´ä | ÀÚ¿¬³ìÁö | - | 1246 | 17,800 | |
| 25.05.15 | ´ä | ÀÚ¿¬³ìÁö | 12m¹Ì¸¸ | 3459 | 49,500 | |
| 25.05.15 | ´ä | ÀÚ¿¬³ìÁö | 8m¹Ì¸¸ | 840 | 12,700 | |
| 25.05.15 | ´ä | »ý»ê³ìÁö | 8m¹Ì¸¸ | 61 | 3,000 | |
| 25.05.13 | ´ä | »ý»ê³ìÁö | 8m¹Ì¸¸ | 1533 | 15,000 | |
| 25.05.12 | Àü | »ý»ê³ìÁö | 8m¹Ì¸¸ | 158 | 3,007 | |
| 25.05.12 | Àü | »ý»ê³ìÁö | 8m¹Ì¸¸ | 448 | 8,493 | |
| 25.05.12 | ±¸°Å | ÀÚ¿¬³ìÁö | - | 183 | 2,342 | |
| 25.05.10 | Àü | »ý»ê³ìÁö | - | 503.5 | 1,913 | ÁöºÐ |
| 25.05.10 | ÀÓ¾ß | »ý»ê³ìÁö | - | 405.5 | 149 | ÁöºÐ |
| 25.05.10 | Àü | »ý»ê³ìÁö | - | 78.5 | 314 | ÁöºÐ |
| 25.05.10 | ÇÏõ | ÀÚ¿¬³ìÁö | 8m¹Ì¸¸ | 38.17 | 124 | ÁöºÐ |
| 25.05.09 | Àü | ÀÚ¿¬³ìÁö | - | 1205 | 21,000 | |
| 25.05.09 | ÀÓ¾ß | ÀÚ¿¬³ìÁö | 8m¹Ì¸¸ | 48 | 900 | |
| 25.05.09 | Àü | ÀÚ¿¬³ìÁö | - | 157 | 2,820 | |
| 25.05.09 | Àü | ÀÚ¿¬³ìÁö | - | 1205 | 18,180 | |
| 25.05.09 | ÀÓ¾ß | ÀÚ¿¬³ìÁö | 8m¹Ì¸¸ | 47.52 | 900 | ÁöºÐ |
| 25.05.08 | Àü | º¸Àü³ìÁö | - | 238 | 4,320 | |
| 25.05.08 | Àü | º¸Àü³ìÁö | - | 4 | 60 | |
| 25.05.07 | ÀÓ¾ß | Áذø¾÷ | 8m¹Ì¸¸ | 304 | 13,800 | |
| 25.05.07 | µµ·Î | Áذø¾÷ | 12m¹Ì¸¸ | 105.5 | 4,800 | ÁöºÐ |
| 25.05.07 | ÀÓ¾ß | Áذø¾÷ | 8m¹Ì¸¸ | 276 | 12,500 | |
| 25.05.07 | °øÀå¿ëÁö | Áذø¾÷ | 12m¹Ì¸¸ | 832 | 37,800 | |
| 25.05.07 | ÀÓ¾ß | Áذø¾÷ | 8m¹Ì¸¸ | 521 | 23,600 | |
| 25.05.07 | Àü | »ý»ê³ìÁö | - | 10 | 50 | |
| 25.05.04 | Àü | ÀÚ¿¬³ìÁö | 8m¹Ì¸¸ | 681 | 6,780 | |
| 25.05.04 | ÀÓ¾ß | ÀÚ¿¬³ìÁö | 8m¹Ì¸¸ | 403 | 4,100 | |
| 25.05.04 | ÀÓ¾ß | ÀÚ¿¬³ìÁö | - | 797 | 7,820 | |
| 25.05.02 | ¹¦Áö | º¸Àü³ìÁö | 8m¹Ì¸¸ | 797 | 18,000 | |
| 25.05.01 | ´ä | »ý»ê³ìÁö | - | 1920 | 5,100 | |
| 25.05.01 | ´ä | »ý»ê³ìÁö | 8m¹Ì¸¸ | 1093 | 3,000 | |
| 25.05.01 | ´ä | »ý»ê³ìÁö | - | 1854 | 4,900 | |
| 25.04.30 | ´ä | ÀÚ¿¬³ìÁö | - | 149 | 1,300 | |
| 25.04.30 | ´ä | »ý»ê³ìÁö | 8m¹Ì¸¸ | 577 | 2,262 | |
| 25.04.30 | ´ä | ÀÚ¿¬³ìÁö | - | 743 | 11,235 | |
| 25.04.30 | Àü | Áذø¾÷ | - | 1263 | 13,300 | |
| 25.04.30 | ´ä | »ý»ê³ìÁö | - | 1805 | 7,098 | |
| 25.04.29 | ´ä | »ý»ê³ìÁö | 8m¹Ì¸¸ | 1600 | 7,200 | |
| 25.04.29 | Á¾±³¿ëÁö | º¸Àü³ìÁö | 8m¹Ì¸¸ | 627 | 14,925 | |
| 25.04.29 | Á¾±³¿ëÁö | º¸Àü³ìÁö | 8m¹Ì¸¸ | 16 | 75 | |
| 25.04.29 | Á¾±³¿ëÁö | º¸Àü³ìÁö | 8m¹Ì¸¸ | 16 | 75 | |
| 25.04.29 | Àü | º¸Àü³ìÁö | 8m¹Ì¸¸ | 3 | 15 | |
| 25.04.28 | ´ä | ÀÚ¿¬³ìÁö | - | 659.25 | 10,500 | ÁöºÐ |
| 25.04.28 | µµ·Î | Á¦2Á¾ÀϹÝÁÖ°Å | 12m¹Ì¸¸ | 11 | 100 | |
| 25.04.28 | µµ·Î | ÀϹݻó¾÷ | - | 30 | 1,400 | |
| 25.04.26 | ´ä | »ý»ê³ìÁö | 8m¹Ì¸¸ | 95 | 325 | |
| 25.04.26 | ´ä | »ý»ê³ìÁö | 8m¹Ì¸¸ | 2546 | 8,855 | |
| 25.04.25 | ´ä | º¸Àü³ìÁö | 8m¹Ì¸¸ | 489 | 6,200 | |
| 25.04.25 | ´ä | º¸Àü³ìÁö | 8m¹Ì¸¸ | 30 | 400 | |
| 25.04.23 | Àü | ÀÚ¿¬³ìÁö | 8m¹Ì¸¸ | 635 | 3,400 | |
| 25.04.23 | ´ä | ÀÚ¿¬³ìÁö | - | 1962 | 32,640 | |
| 25.04.23 | ´ë | ÀÚ¿¬³ìÁö | - | 959 | 15,950 | |
| 25.04.23 | ´ä | ÀÚ¿¬³ìÁö | 8m¹Ì¸¸ | 234 | 3,880 | |
| 25.04.23 | ´ë | ÀÚ¿¬³ìÁö | 8m¹Ì¸¸ | 179 | 2,800 | |
| 25.04.22 | °øÀå¿ëÁö | Áذø¾÷ | 8m¹Ì¸¸ | 1460 | 39,743 | |
| 25.04.22 | °øÀå¿ëÁö | Áذø¾÷ | 8m¹Ì¸¸ | 453 | 12,331 | |
| 25.04.22 | ÀÓ¾ß | Áذø¾÷ | 8m¹Ì¸¸ | 41 | 1,116 | |
| 25.04.22 | ´ä | »ý»ê³ìÁö | 8m¹Ì¸¸ | 2527 | 12,382 | |
| 25.04.22 | Àü | Á¦2Á¾ÀϹÝÁÖ°Å | - | 74 | 3,041 | |
| 25.04.22 | ´ä | »ý»ê³ìÁö | 8m¹Ì¸¸ | 2977 | 12,503 | |
| 25.04.22 | ´ä | »ý»ê³ìÁö | 8m¹Ì¸¸ | 1093 | 5,356 | |
| 25.04.21 | ´ä | Á¦2Á¾ÀϹÝÁÖ°Å | 8m¹Ì¸¸ | 1812 | 41,100 | |
| 25.04.21 | ´ä | ÀÚ¿¬³ìÁö | 8m¹Ì¸¸ | 72 | 840 | ÁöºÐ |
| 25.04.21 | ´ä | »ý»ê³ìÁö | - | 268 | 6,000 | |
| 25.04.17 | ÀÓ¾ß | ÀϹݰø¾÷ | - | 3730.9 | 65,000 | ÁöºÐ |
| 25.04.17 | ÀÓ¾ß | ÀϹݰø¾÷ | - | 271.36 | 5,000 | ÁöºÐ |
| 25.04.15 | ´ä | º¸Àü³ìÁö | - | 50 | 1,075 | |
| 25.04.10 | Àü | ÀÚ¿¬³ìÁö | 12m¹Ì¸¸ | 169.44 | 1,600 | ÁöºÐ |
| 25.04.10 | Àü | ÀÚ¿¬³ìÁö | 12m¹Ì¸¸ | 36.96 | 350 | ÁöºÐ |
| 25.04.10 | Àü | ÀÚ¿¬³ìÁö | - | 6.65 | 70 | ÁöºÐ |
| 25.04.10 | Àü | ÀÚ¿¬³ìÁö | - | 8.7 | 90 | ÁöºÐ |
| 25.04.10 | Àü | ÀÚ¿¬³ìÁö | 12m¹Ì¸¸ | 21.48 | 200 | ÁöºÐ |
| 25.04.10 | Àü | ÀÚ¿¬³ìÁö | - | 4.99 | 60 | ÁöºÐ |
| 25.04.10 | Àü | ÀÚ¿¬³ìÁö | - | 13.56 | 130 | ÁöºÐ |
| 25.04.10 | ´ä | °èȹ°ü¸® | 12m¹Ì¸¸ | 5619 | 102,000 | |
| 25.04.07 | Àü | »ý»ê³ìÁö | 8m¹Ì¸¸ | 234.67 | 1,150 | ÁöºÐ |
| 25.04.07 | µµ·Î | ÀÚ¿¬³ìÁö | 8m¹Ì¸¸ | 34.28 | 10 | ÁöºÐ |
| 25.04.07 | µµ·Î | ÀÚ¿¬³ìÁö | 8m¹Ì¸¸ | 22.86 | 10 | ÁöºÐ |
| 25.04.07 | µµ·Î | ÀÚ¿¬³ìÁö | 8m¹Ì¸¸ | 6.86 | 10 | ÁöºÐ |
| 25.04.07 | µµ·Î | ÀÚ¿¬³ìÁö | 8m¹Ì¸¸ | 39.14 | 10 | ÁöºÐ |
| 25.04.07 | Àü | ÀÚ¿¬³ìÁö | 8m¹Ì¸¸ | 7 | 10 | ÁöºÐ |
| 25.04.06 | Àü | »ý»ê³ìÁö | 8m¹Ì¸¸ | 234.67 | 1,150 | ÁöºÐ |
| 25.04.03 | Àü | ÀÚ¿¬³ìÁö | - | 194 | 58 | ÁöºÐ |
| 25.04.03 | Àü | ÀÚ¿¬³ìÁö | - | 643.33 | 1,242 | ÁöºÐ |
| 25.04.02 | µµ·Î | ÀÚ¿¬³ìÁö | 8m¹Ì¸¸ | 6 | 20 | |
| 25.04.01 | ÀâÁ¾Áö | Á¦2Á¾ÀϹÝÁÖ°Å | 8m¹Ì¸¸ | 430 | 54,000 | |
| 25.03.31 | ´ë | ÀÚ¿¬³ìÁö | 8m¹Ì¸¸ | 618 | 9,500 | |
| 25.03.31 | Àü | ÀϹݰø¾÷ | - | 1282 | 22,000 | |
| 25.03.31 | µµ·Î | Á¦2Á¾ÀϹÝÁÖ°Å | - | 337.21 | 12,290 | ÁöºÐ |
| 25.03.31 | µµ·Î | ÀÚ¿¬³ìÁö | 8m¹Ì¸¸ | 133 | 1,000 | ÁöºÐ |
| 25.03.27 | ´ä | »ý»ê³ìÁö | - | 108.5 | 400 | ÁöºÐ |
| 25.03.27 | ´ä | »ý»ê³ìÁö | - | 375.33 | 1,400 | ÁöºÐ |
| 25.03.27 | µµ·Î | ÀÚ¿¬³ìÁö | 8m¹Ì¸¸ | 67 | 1,880 | |
| 25.03.26 | ÀÓ¾ß | º¸Àü³ìÁö | 8m¹Ì¸¸ | 428 | 8,000 | |
| 25.03.26 | ´ä | ÀÚ¿¬³ìÁö | 8m¹Ì¸¸ | 744 | 6,000 | |
| 25.03.25 | ÀÓ¾ß | º¸Àü³ìÁö | - | 1036 | 1,500 | |
| 25.03.24 | Àü | °èȹ°ü¸® | - | 1326 | 10,000 | |
| 25.03.24 | ´ä | º¸Àü³ìÁö | - | 3170 | 14,385 | |
| 25.03.21 | ´ä | »ý»ê³ìÁö | 8m¹Ì¸¸ | 2097 | 6,800 | |
| 25.03.21 | ´ä | »ý»ê³ìÁö | 8m¹Ì¸¸ | 2525 | 8,200 | |
| 25.03.20 | ´ä | °èȹ°ü¸® | - | 330 | 5,000 | |
| 25.03.17 | ÀÓ¾ß | °èȹ°ü¸® | - | 39 | 767 | ÁöºÐ |
| 25.03.17 | ÀÓ¾ß | °èȹ°ü¸® | 8m¹Ì¸¸ | 12 | 236 | ÁöºÐ |
| 25.03.17 | ÀÓ¾ß | °èȹ°ü¸® | 8m¹Ì¸¸ | 27 | 531 | ÁöºÐ |
| 25.03.17 | ÀÓ¾ß | °èȹ°ü¸® | 8m¹Ì¸¸ | 71 | 1,398 | ÁöºÐ |
| 25.03.17 | ÀÓ¾ß | ÀÚ¿¬³ìÁö | 8m¹Ì¸¸ | 220 | 4,000 | |
| 25.03.17 | ÀÓ¾ß | ÀÚ¿¬³ìÁö | - | 120 | 2,000 | |
| 25.03.17 | ÀÓ¾ß | ÀÚ¿¬³ìÁö | 8m¹Ì¸¸ | 727 | 13,000 | |
| 25.03.17 | ÀÓ¾ß | ÀÚ¿¬³ìÁö | - | 8776 | 156,000 | |
| 25.03.14 | Àü | °èȹ°ü¸® | 8m¹Ì¸¸ | 1319.2 | 10,300 | |
| 25.03.14 | ´ä | »ý»ê³ìÁö | 8m¹Ì¸¸ | 1740 | 8,178 | |
| 25.03.14 | ´ä | »ý»ê³ìÁö | 8m¹Ì¸¸ | 2488 | 10,450 | |
| 25.03.14 | ´ä | »ý»ê³ìÁö | 8m¹Ì¸¸ | 3004 | 13,818 | |
| 25.03.14 | ´ä | »ý»ê³ìÁö | 8m¹Ì¸¸ | 2052 | 8,618 | |
| 25.03.14 | ´ä | »ý»ê³ìÁö | 8m¹Ì¸¸ | 2353 | 11,059 | |
| 25.03.14 | µµ·Î | »ý»ê³ìÁö | - | 46 | 500 | |
| 25.03.10 | ÀÓ¾ß | ÀϹݰø¾÷ | 25mÀÌ»ó | 62 | 500 | ÁöºÐ |
| 25.03.08 | ´ë | °èȹ°ü¸® | 8m¹Ì¸¸ | 281 | 8,000 | |
| 25.03.07 | ´ä | »ý»ê³ìÁö | 8m¹Ì¸¸ | 889.7 | 4,004 | |
| 25.03.07 | ´ä | »ý»ê³ìÁö | 8m¹Ì¸¸ | 1264.6 | 5,691 | |
| 25.03.05 | °øÀå¿ëÁö | ÀϹݰø¾÷ | - | 1128 | 50,400 | |
| 25.03.04 | ´ä | »ý»ê³ìÁö | 8m¹Ì¸¸ | 1761 | 7,450 | |
| 25.03.04 | ´ä | »ý»ê³ìÁö | 25mÀÌ»ó | 372 | 5,600 | |
| 25.02.26 | µµ·Î | ÀϹݰø¾÷ | 25m¹Ì¸¸ | 101.8 | 2,550 | ÁöºÐ |
| 25.02.25 | ´ë | ÀÚ¿¬³ìÁö | 8m¹Ì¸¸ | 79.73 | 800 | ÁöºÐ |
| 25.02.20 | Àü | ÁØÁÖ°Å | 8m¹Ì¸¸ | 1744 | 82,000 | |
| 25.02.19 | ÀÓ¾ß | ÀϹݰø¾÷ | 8m¹Ì¸¸ | 1053 | 6,023 | |
| 25.02.19 | ÀÓ¾ß | ÀÚ¿¬³ìÁö | 8m¹Ì¸¸ | 87 | 25 | |
| 25.02.19 | ´ä | ÀϹݰø¾÷ | 8m¹Ì¸¸ | 8 | 46 | |
| 25.02.19 | ÀÓ¾ß | ÀϹݰø¾÷ | 8m¹Ì¸¸ | 378 | 2,162 | |
| 25.02.19 | ´ä | ÀϹݰø¾÷ | 8m¹Ì¸¸ | 43 | 246 | |
| 25.02.19 | ÀÓ¾ß | ÀϹݰø¾÷ | 8m¹Ì¸¸ | 8829 | 200,813 | |
| 25.02.19 | ´ä | ÀϹݰø¾÷ | 8m¹Ì¸¸ | 47 | 413 | |
| 25.02.19 | ´ä | ÀϹݰø¾÷ | 8m¹Ì¸¸ | 10.81 | 95 | ÁöºÐ |
| 25.02.19 | ÀÓ¾ß | ÀÚ¿¬³ìÁö | 8m¹Ì¸¸ | 585 | 171 | |
| 25.02.18 | ´ä | »ý»ê³ìÁö | 8m¹Ì¸¸ | 3106 | 11,260 | |
| 25.02.17 | ´ë | ÀÚ¿¬³ìÁö | - | 54 | 1,000 | |
| 25.02.15 | ´ë | ÀÚ¿¬³ìÁö | 8m¹Ì¸¸ | 110 | 660 | |
| 25.02.15 | µµ·Î | ÀÚ¿¬³ìÁö | 8m¹Ì¸¸ | 69.48 | 191 | ÁöºÐ |
| 25.02.15 | ÀÓ¾ß | º¸Àü³ìÁö | 8m¹Ì¸¸ | 510 | 3,080 | |
| 25.02.15 | ÀÓ¾ß | º¸Àü³ìÁö | 8m¹Ì¸¸ | 46 | 280 | |
| 25.02.15 | Àü | ÀÚ¿¬³ìÁö | - | 130 | 780 | |
| 25.02.15 | µµ·Î | ÀÚ¿¬³ìÁö | 8m¹Ì¸¸ | 2.81 | 8 | ÁöºÐ |
| 25.02.14 | ´ä | »ý»ê³ìÁö | - | 767.5 | 2,558 | ÁöºÐ |
| 25.02.14 | ´ä | º¸Àü³ìÁö | 12m¹Ì¸¸ | 1712 | 7,800 | |
| 25.02.12 | ÇÏõ | ÀϹݰø¾÷ | 8m¹Ì¸¸ | 463 | 10,372 | |
| 25.02.12 | ÀÓ¾ß | ÀϹݰø¾÷ | 8m¹Ì¸¸ | 186 | 4,158 | |
| 25.02.12 | ÇÏõ | ÀϹݰø¾÷ | 8m¹Ì¸¸ | 1600 | 35,770 | |
| 25.02.12 | ´ä | ÀϹݰø¾÷ | 8m¹Ì¸¸ | 2560 | 57,200 | |
| 25.02.12 | ´ä | »ý»ê³ìÁö | 8m¹Ì¸¸ | 436 | 1,600 | ÁöºÐ |
| 25.02.12 | ´ä | »ý»ê³ìÁö | 8m¹Ì¸¸ | 823 | 3,030 | ÁöºÐ |
| 25.02.12 | ´ä | »ý»ê³ìÁö | 8m¹Ì¸¸ | 1023.67 | 3,380 | ÁöºÐ |
| 25.02.12 | ´ä | »ý»ê³ìÁö | 8m¹Ì¸¸ | 268.67 | 890 | ÁöºÐ |
| 25.02.10 | ´ë | ÀÚ¿¬³ìÁö | 8m¹Ì¸¸ | 390 | 11,469 | |
| 25.02.10 | Àü | ÀÚ¿¬³ìÁö | 8m¹Ì¸¸ | 477.23 | 8,083 | ÁöºÐ |
| 25.02.10 | Àü | ÀÚ¿¬³ìÁö | 8m¹Ì¸¸ | 2.77 | 48 | ÁöºÐ |
| 25.02.10 | ´ä | »ý»ê³ìÁö | 8m¹Ì¸¸ | 473 | 2,658 | |
| 25.02.10 | ´ä | »ý»ê³ìÁö | 8m¹Ì¸¸ | 826 | 4,640 | |
| 25.02.10 | ´ä | »ý»ê³ìÁö | 8m¹Ì¸¸ | 1549 | 8,702 | |
| 25.02.06 | ÇÏõ | ÀϹݰø¾÷ | - | 83.5 | 2,671 | ÁöºÐ |
| 25.02.06 | °øÀå¿ëÁö | °èȹ°ü¸® | 8m¹Ì¸¸ | 3564 | 39,714 | |
| 25.02.06 | ÀÓ¾ß | °èȹ°ü¸® | - | 372.33 | 2,286 | ÁöºÐ |
| 25.02.04 | ´ä | »ý»ê³ìÁö | - | 542 | 1,640 | |
| 25.02.03 | °øÀå¿ëÁö | ÀϹݰø¾÷ | 8m¹Ì¸¸ | 1416 | 56,000 | |
| 25.01.28 | ÇÏõ | ÀÚ¿¬³ìÁö | 12m¹Ì¸¸ | 746 | 6,500 | |
| 25.01.28 | ÀÓ¾ß | ÀÚ¿¬³ìÁö | 8m¹Ì¸¸ | 82 | 2,800 | |
| 25.01.28 | ÇÏõ | ÀÚ¿¬³ìÁö | 8m¹Ì¸¸ | 23 | 800 | |
| 25.01.27 | Àü | ÀϹݰø¾÷ | - | 906 | 17,128 | |
| 25.01.27 | Àü | ÀϹݰø¾÷ | - | 99 | 1,872 | |
| 25.01.25 | ´ä | ÀÚ¿¬³ìÁö | 8m¹Ì¸¸ | 83 | 300 | |
| 25.01.23 | ´ä | º¸Àü³ìÁö | 8m¹Ì¸¸ | 100 | 500 | ÁöºÐ |
| 25.01.23 | ´ä | º¸Àü³ìÁö | - | 407 | 4,920 | |
| 25.01.22 | ÀÓ¾ß | ÀÚ¿¬³ìÁö | - | 893 | 2,700 | |
| 25.01.21 | ´ä | º¸Àü³ìÁö | 8m¹Ì¸¸ | 1355 | 4,800 | |
| 25.01.20 | Àü | Áذø¾÷ | - | 387 | 4,000 | |
| 25.01.20 | Àü | ÀÚ¿¬³ìÁö | 12m¹Ì¸¸ | 661 | 12,000 | |
| 25.01.20 | µµ·Î | ÀÚ¿¬³ìÁö | - | 20 | 60 | |
| 25.01.20 | Àü | »ý»ê³ìÁö | - | 3427 | 16,576 | |
| 25.01.20 | °ú¼ö¿ø | ÀÚ¿¬³ìÁö | 8m¹Ì¸¸ | 663 | 5,000 | |
| 25.01.20 | ÀÓ¾ß | º¸Àü³ìÁö | - | 200 | 484 | |
| 25.01.20 | ÀÓ¾ß | º¸Àü³ìÁö | - | 200 | 484 | |
| 25.01.20 | ÀÓ¾ß | »ý»ê³ìÁö | 8m¹Ì¸¸ | 458 | 3,726 | |
| 25.01.18 | ´ä | º¸Àü³ìÁö | 8m¹Ì¸¸ | 215 | 2,600 | |
| 25.01.17 | ´ä | º¸Àü³ìÁö | - | 1498 | 5,000 | |
| 25.01.17 | ´ä | »ý»ê³ìÁö | 8m¹Ì¸¸ | 1693 | 10,000 | |
| 25.01.16 | ÀÓ¾ß | ÀϹݰø¾÷ | 8m¹Ì¸¸ | 183.77 | 1,048 | ÁöºÐ |
| 25.01.13 | ´ä | »ý»ê³ìÁö | 8m¹Ì¸¸ | 3275 | 11,880 | |
| 25.01.08 | Àü | º¸Àü³ìÁö | 8m¹Ì¸¸ | 1643 | 14,000 | |
| 25.01.08 | ´ä | º¸Àü³ìÁö | 8m¹Ì¸¸ | 856 | 5,900 | |
| 25.01.08 | ´ä | º¸Àü³ìÁö | 8m¹Ì¸¸ | 717 | 4,800 | |
| 25.01.06 | ´ä | »ý»ê³ìÁö | 8m¹Ì¸¸ | 2095 | 12,600 | |
| 25.01.04 | ´ä | ÀÚ¿¬³ìÁö | - | 3693 | 24,100 | |
| 25.01.04 | ´ä | ÀÚ¿¬³ìÁö | - | 522 | 3,400 | |
| 25.01.03 | ÀÓ¾ß | ÀÚ¿¬³ìÁö | - | 373 | 4,200 | |
| 24.12.24 | °øÀå¿ëÁö | ÀϹݰø¾÷ | 8m¹Ì¸¸ | 422 | 13,989 | |
| 24.12.23 | ÀÓ¾ß | º¸Àü³ìÁö | 8m¹Ì¸¸ | 480 | 10,150 | |
| 24.12.23 | µµ·Î | º¸Àü³ìÁö | 8m¹Ì¸¸ | 26 | 560 | |
| 24.12.22 | ´ä | ÀÚ¿¬³ìÁö | - | 69 | 6,300 | |
| 24.12.22 | ´ä | ÀÚ¿¬³ìÁö | 25mÀÌ»ó | 40 | 3,600 | |
| 24.12.22 | ´ä | ÀÚ¿¬³ìÁö | - | 54 | 4,800 | |
| 24.12.20 | ´ë | ÀÚ¿¬³ìÁö | 8m¹Ì¸¸ | 307 | 500 | |
| 24.12.20 | ´ë | º¸Àü³ìÁö | 8m¹Ì¸¸ | 745 | 12,250 | |
| 24.12.20 | ´ë | º¸Àü³ìÁö | 8m¹Ì¸¸ | 15 | 250 | |
| 24.12.18 | ´ë | ÀÚ¿¬³ìÁö | - | 339 | 4,000 | |
| 24.12.16 | µµ·Î | º¸Àü³ìÁö | 8m¹Ì¸¸ | 133.91 | 800 | ÁöºÐ |
| 24.12.16 | ´ä | °èȹ°ü¸® | 8m¹Ì¸¸ | 60 | 397 | |
| 24.12.13 | ´ä | ÀÚ¿¬³ìÁö | - | 763 | 15,400 | |
| 24.12.12 | µµ·Î | Á¦2Á¾ÀϹÝÁÖ°Å | 8m¹Ì¸¸ | 22.75 | 1,358 | ÁöºÐ |
| 24.12.12 | µµ·Î | Á¦2Á¾ÀϹÝÁÖ°Å | 8m¹Ì¸¸ | 28.75 | 1,717 | ÁöºÐ |
| 24.12.11 | Àü | º¸Àü³ìÁö | 8m¹Ì¸¸ | 1282 | 21,978 | |
| 24.12.11 | Àü | º¸Àü³ìÁö | 8m¹Ì¸¸ | 1938 | 33,222 | |
| 24.12.11 | µµ·Î | Áذø¾÷ | 8m¹Ì¸¸ | 57 | 517 | |
| 24.12.11 | µµ·Î | Áذø¾÷ | 8m¹Ì¸¸ | 37 | 337 | ÁöºÐ |
| 24.12.11 | ´ä | ÀÚ¿¬³ìÁö | - | 304 | 2,652 | |
| 24.12.11 | ÀÓ¾ß | ÀϹݰø¾÷ | 8m¹Ì¸¸ | 1167 | 22,400 | |
| 24.12.11 | µµ·Î | ÀϹݰø¾÷ | 8m¹Ì¸¸ | 66 | 4,800 | ÁöºÐ |
| 24.12.11 | ÀÓ¾ß | ÀϹݰø¾÷ | - | 47 | 800 | |
| 24.12.11 | ÀÓ¾ß | ÀϹݰø¾÷ | - | 620 | 12,000 | |
| 24.12.11 | ±¸°Å | »ý»ê³ìÁö | - | 361 | 1,552 | |
| 24.12.10 | ´ä | º¸Àü³ìÁö | 12m¹Ì¸¸ | 169 | 3,000 | |
| 24.12.10 | ´ë | ÀÚ¿¬³ìÁö | - | 33 | 600 | |
| 24.12.10 | ´ä | »ý»ê³ìÁö | 8m¹Ì¸¸ | 5 | 30 | |
| 24.12.05 | ´ë | ÀÚ¿¬³ìÁö | - | 320 | 5,000 | |
| 24.12.05 | ÀÓ¾ß | º¸Àü³ìÁö | 8m¹Ì¸¸ | 2003 | 9,999 | ÁöºÐ |
| 24.12.05 | ÀÓ¾ß | º¸Àü³ìÁö | 8m¹Ì¸¸ | 2003 | 9,999 | ÁöºÐ |
| 24.12.05 | ÀÓ¾ß | º¸Àü³ìÁö | 8m¹Ì¸¸ | 1058 | 5,280 | ÁöºÐ |
| 24.12.02 | ´ä | »ý»ê³ìÁö | 8m¹Ì¸¸ | 892.5 | 8,100 | ÁöºÐ |
| 24.11.30 | Àü | ÀÚ¿¬³ìÁö | 12m¹Ì¸¸ | 621 | 15,460 | |
| 24.11.29 | Àü | ÀϹݰø¾÷ | - | 111 | 2,908 | |
| 24.11.29 | Àü | ÀϹݰø¾÷ | 8m¹Ì¸¸ | 298 | 7,808 | |
| 24.11.29 | Àü | ÀϹݰø¾÷ | 8m¹Ì¸¸ | 56 | 1,467 | |
| 24.11.29 | ´ä | °èȹ°ü¸® | 8m¹Ì¸¸ | 731.8 | 11,000 | |
| 24.11.28 | °ú¼ö¿ø | °èȹ°ü¸® | - | 219 | 60 | |
| 24.11.27 | µµ·Î | ÀϹݰø¾÷ | 8m¹Ì¸¸ | 5.7 | 34 | ÁöºÐ |
| 24.11.27 | ÀÓ¾ß | ÀϹݰø¾÷ | 8m¹Ì¸¸ | 117.84 | 1,749 | ÁöºÐ |
| 24.11.27 | µµ·Î | ÀϹݰø¾÷ | 8m¹Ì¸¸ | 24.44 | 147 | ÁöºÐ |
| 24.11.27 | µµ·Î | ÀϹݰø¾÷ | 8m¹Ì¸¸ | 12.22 | 78 | ÁöºÐ |
| 24.11.27 | ÀÓ¾ß | ÀϹݰø¾÷ | - | 162 | 63 | |
| 24.11.27 | µµ·Î | ÀϹݰø¾÷ | 8m¹Ì¸¸ | 20.17 | 121 | ÁöºÐ |
| 24.11.27 | µµ·Î | ÀϹݰø¾÷ | 8m¹Ì¸¸ | 1.22 | 7 | ÁöºÐ |
| 24.11.27 | ´ë | º¸Àü³ìÁö | 8m¹Ì¸¸ | 357 | 6,420 | |
| 24.11.26 | Àü | Á¦1Á¾ÀϹÝÁÖ°Å | 8m¹Ì¸¸ | 50 | 3,900 | |
| 24.11.26 | ´ä | ÀÚ¿¬³ìÁö | 8m¹Ì¸¸ | 495 | 6,300 | |
| 24.11.26 | µµ·Î | ÀÚ¿¬³ìÁö | 8m¹Ì¸¸ | 10.3 | 200 | ÁöºÐ |
| 24.11.26 | µµ·Î | ÀÚ¿¬³ìÁö | - | 16 | 200 | ÁöºÐ |
| 24.11.25 | ´ë | Á¦1Á¾ÀϹÝÁÖ°Å | 8m¹Ì¸¸ | 436 | 19,500 | |
| 24.11.25 | ´ä | Á¦1Á¾ÀϹÝÁÖ°Å | - | 397 | 9,500 | |
| 24.11.25 | ´ë | Á¦1Á¾ÀϹÝÁÖ°Å | 8m¹Ì¸¸ | 446 | 20,500 | |
| 24.11.24 | Àü | ÀÚ¿¬³ìÁö | 8m¹Ì¸¸ | 33 | 400 | ÁöºÐ |
| 24.11.22 | Àü | ÀÚ¿¬³ìÁö | 8m¹Ì¸¸ | 191 | 3,000 | |
| 24.11.22 | Àü | ÀÚ¿¬³ìÁö | 8m¹Ì¸¸ | 15 | 3,000 | |
| 24.11.22 | Àü | ÀÚ¿¬³ìÁö | 25m¹Ì¸¸ | 1242 | 15,000 | |
| 24.11.22 | Àü | ÀÚ¿¬³ìÁö | 8m¹Ì¸¸ | 428 | 12,000 | |
| 24.11.22 | Àü | ÀÚ¿¬³ìÁö | - | 121 | 4,000 | |
| 24.11.22 | Àü | ÀÚ¿¬³ìÁö | - | 66 | 3,000 | |
| 24.11.22 | Àü | ÀÚ¿¬³ìÁö | 8m¹Ì¸¸ | 57 | 2,000 | |
| 24.11.22 | Àü | ÀÚ¿¬³ìÁö | 8m¹Ì¸¸ | 113 | 6,000 | |
| 24.11.22 | Àü | ÀÚ¿¬³ìÁö | - | 46 | 3,000 | |
| 24.11.22 | ´ë | ÀÚ¿¬³ìÁö | 8m¹Ì¸¸ | 24 | 480 | ÁöºÐ |
| 24.11.19 | °øÀå¿ëÁö | °èȹ°ü¸® | 8m¹Ì¸¸ | 2 | 7 | |
| 24.11.19 | °øÀå¿ëÁö | °èȹ°ü¸® | 12m¹Ì¸¸ | 83 | 2,472 | |
| 24.11.19 | °øÀå¿ëÁö | °èȹ°ü¸® | 12m¹Ì¸¸ | 2119 | 59,648 | |
| 24.11.19 | °øÀå¿ëÁö | °èȹ°ü¸® | 8m¹Ì¸¸ | 293 | 8,108 | |
| 24.11.19 | ÀÓ¾ß | º¸Àü³ìÁö | 8m¹Ì¸¸ | 332 | 11,400 | |
| 24.11.15 | ´ä | »ý»ê³ìÁö | 12m¹Ì¸¸ | 191 | 893 | |
| 24.11.15 | Àü | »ý»ê³ìÁö | 8m¹Ì¸¸ | 390 | 2,124 | |
| 24.11.14 | ´ë | Á¦1Á¾ÀϹÝÁÖ°Å | 12m¹Ì¸¸ | 28 | 2,000 | |
| 24.11.14 | Àü | ÀÚ¿¬³ìÁö | 8m¹Ì¸¸ | 182 | 2,180 | |
| 24.11.14 | Àü | ÀÚ¿¬³ìÁö | 8m¹Ì¸¸ | 179 | 2,150 | |
| 24.11.14 | Àü | ÀÚ¿¬³ìÁö | - | 6 | 151 | |
| 24.11.14 | Àü | ÀÚ¿¬³ìÁö | - | 151 | 3,790 | |
| 24.11.14 | ´ë | ÀÚ¿¬³ìÁö | 8m¹Ì¸¸ | 43 | 1,208 | |
| 24.11.12 | °øÀå¿ëÁö | ÀϹݰø¾÷ | 8m¹Ì¸¸ | 49 | 1,401 | |
| 24.11.11 | Àü | ÀÚ¿¬³ìÁö | 8m¹Ì¸¸ | 155 | 3,290 | |
| 24.11.11 | Àü | °èȹ°ü¸® | 8m¹Ì¸¸ | 43.6 | 430 | ÁöºÐ |
| 24.11.11 | ´ä | »ý»ê³ìÁö | 8m¹Ì¸¸ | 74.8 | 740 | ÁöºÐ |
| 24.11.11 | ´ä | »ý»ê³ìÁö | 8m¹Ì¸¸ | 138.27 | 1,380 | ÁöºÐ |
| 24.11.11 | ´ä | »ý»ê³ìÁö | 8m¹Ì¸¸ | 138.27 | 1,380 | ÁöºÐ |
| 24.11.11 | ÀÓ¾ß | °èȹ°ü¸® | 8m¹Ì¸¸ | 45.87 | 450 | ÁöºÐ |
| 24.11.11 | ÀÓ¾ß | °èȹ°ü¸® | 8m¹Ì¸¸ | 45.87 | 450 | ÁöºÐ |
| 24.11.11 | ÀÓ¾ß | °èȹ°ü¸® | 8m¹Ì¸¸ | 45.87 | 450 | ÁöºÐ |
| 24.11.11 | ´ä | »ý»ê³ìÁö | 8m¹Ì¸¸ | 74.8 | 740 | ÁöºÐ |
| 24.11.11 | Àü | °èȹ°ü¸® | 8m¹Ì¸¸ | 206.53 | 2,060 | ÁöºÐ |
| 24.11.11 | Àü | °èȹ°ü¸® | 8m¹Ì¸¸ | 206.53 | 2,060 | ÁöºÐ |
| 24.11.11 | Àü | °èȹ°ü¸® | 8m¹Ì¸¸ | 43.6 | 430 | ÁöºÐ |
| 24.11.11 | Àü | °èȹ°ü¸® | 8m¹Ì¸¸ | 206.53 | 2,060 | ÁöºÐ |
| 24.11.11 | Àü | °èȹ°ü¸® | 8m¹Ì¸¸ | 43.6 | 430 | ÁöºÐ |
| 24.11.11 | Àü | °èȹ°ü¸® | 8m¹Ì¸¸ | 87.2 | 870 | ÁöºÐ |
| 24.11.11 | Àü | °èȹ°ü¸® | 8m¹Ì¸¸ | 87.2 | 870 | ÁöºÐ |
| 24.11.11 | Àü | °èȹ°ü¸® | 8m¹Ì¸¸ | 87.2 | 870 | ÁöºÐ |
| 24.11.11 | ´ä | »ý»ê³ìÁö | 8m¹Ì¸¸ | 74.8 | 740 | ÁöºÐ |
| 24.11.11 | ´ä | »ý»ê³ìÁö | 8m¹Ì¸¸ | 138.27 | 1,380 | ÁöºÐ |
| 24.11.08 | ÀÓ¾ß | º¸Àü³ìÁö | - | 421 | 1,000 | |
| 24.11.08 | ÀÓ¾ß | º¸Àü³ìÁö | - | 421 | 1,000 | |
| 24.11.08 | ÀÓ¾ß | º¸Àü³ìÁö | - | 421 | 1,000 | |
| 24.11.08 | ÀÓ¾ß | º¸Àü³ìÁö | - | 421 | 1,000 | |
| 24.11.08 | ÀÓ¾ß | º¸Àü³ìÁö | - | 422 | 1,000 | |
| 24.11.08 | ÀÓ¾ß | º¸Àü³ìÁö | - | 421 | 1,000 | |
| 24.11.04 | Àü | Á¦1Á¾ÀϹÝÁÖ°Å | 8m¹Ì¸¸ | 118 | 3,882 | |
| 24.11.04 | ´ë | ÀÚ¿¬³ìÁö | 8m¹Ì¸¸ | 635 | 4,500 | |
| 24.11.01 | ´ä | »ý»ê°ü¸® | 8m¹Ì¸¸ | 383 | 3,500 | |
| 24.11.01 | ÀÓ¾ß | »ý»ê°ü¸® | 8m¹Ì¸¸ | 641 | 6,500 | |
| 24.11.01 | Àü | ÀÚ¿¬³ìÁö | - | 855 | 8,300 | |
| 24.11.01 | ÀÓ¾ß | ÀÚ¿¬³ìÁö | - | 147.5 | 500 | ÁöºÐ |
| 24.11.01 | ÀÓ¾ß | ÀÚ¿¬³ìÁö | - | 54.75 | 200 | ÁöºÐ |
| 24.11.01 | ´ä | »ý»ê³ìÁö | 8m¹Ì¸¸ | 2865 | 11,460 | |
| 24.11.01 | ´ä | »ý»ê³ìÁö | - | 6 | 270 | |
| 24.11.01 | Àü | ÀÚ¿¬³ìÁö | 8m¹Ì¸¸ | 258 | 4,700 | |
| 24.11.01 | ÀÓ¾ß | ÀÚ¿¬³ìÁö | 8m¹Ì¸¸ | 172 | 909 | ÁöºÐ |
| 24.11.01 | µµ·Î | ÀϹݰø¾÷ | - | 188 | 2,280 | |
| 24.10.30 | ´ë | ÀÚ¿¬³ìÁö | - | 19 | 2,500 | |
| 24.10.30 | ´ä | ÀÚ¿¬³ìÁö | - | 279 | 4,400 | |
| 24.10.30 | ´ë | »ý»ê³ìÁö | 25mÀÌ»ó | 682 | 23,600 | |
| 24.10.30 | ÀÓ¾ß | ÀϹݰø¾÷ | - | 4164 | 20,529 | ÁöºÐ |
| 24.10.30 | ÀÓ¾ß | ÀϹݰø¾÷ | - | 676 | 4,164 | |
| 24.10.30 | ÀÓ¾ß | ÀϹݰø¾÷ | 8m¹Ì¸¸ | 10131 | 385,781 | ÁöºÐ |
| 24.10.30 | °øÀå¿ëÁö | ÀϹݰø¾÷ | - | 236 | 3,526 | |
| 24.10.30 | ´ä | º¸Àü³ìÁö | 8m¹Ì¸¸ | 1990 | 6,600 | |
| 24.10.28 | ´ë | º¸Àü³ìÁö | - | 31 | 100 | |
| 24.10.26 | ÀâÁ¾Áö | ÀÚ¿¬³ìÁö | 8m¹Ì¸¸ | 880 | 26,605 | |
| 24.10.24 | ´ë | ÀÚ¿¬³ìÁö | - | 9 | 51 | |
| 24.10.24 | ´ä | ÀÚ¿¬³ìÁö | - | 302 | 3,239 | |
| 24.10.24 | ´ë | Á¦2Á¾ÀϹÝÁÖ°Å | 8m¹Ì¸¸ | 7.5 | 100 | ÁöºÐ |
| 24.10.24 | µµ·Î | Á¦2Á¾ÀϹÝÁÖ°Å | 8m¹Ì¸¸ | 9 | 200 | |
| 24.10.23 | °øÀå¿ëÁö | ÀÚ¿¬³ìÁö | 12m¹Ì¸¸ | 1358 | 52,555 | |
| 24.10.23 | ´ë | ÀϹݰø¾÷ | - | 475.2 | 31,680 | |
| 24.10.22 | Àü | ÀÚ¿¬³ìÁö | 8m¹Ì¸¸ | 694 | 10,000 | |
| 24.10.21 | ÀÓ¾ß | ÀÚ¿¬³ìÁö | 8m¹Ì¸¸ | 430 | 11,800 | |
| 24.10.19 | ´ä | º¸Àü³ìÁö | 8m¹Ì¸¸ | 603 | 11,820 | |
| 24.10.19 | µµ·Î | º¸Àü³ìÁö | 8m¹Ì¸¸ | 29.55 | 90 | ÁöºÐ |
| 24.10.19 | µµ·Î | º¸Àü³ìÁö | 8m¹Ì¸¸ | 30.12 | 90 | ÁöºÐ |
| 24.10.18 | ÀÓ¾ß | °èȹ°ü¸® | - | 1458 | 8,000 | |
| 24.10.18 | ÀÓ¾ß | °èȹ°ü¸® | 8m¹Ì¸¸ | 730 | 7,000 | |
| 24.10.16 | ÀÓ¾ß | ÀÚ¿¬³ìÁö | - | 5023 | 15,220 | |
| 24.10.15 | Àü | ÀÚ¿¬³ìÁö | 8m¹Ì¸¸ | 413 | 7,000 | |
| 24.10.12 | ´ä | »ý»ê³ìÁö | 8m¹Ì¸¸ | 1082 | 8,200 | |
| 24.10.10 | ´ä | ÀÚ¿¬³ìÁö | - | 905 | 4,500 | |
| 24.10.07 | ¹¦Áö | º¸Àü³ìÁö | 8m¹Ì¸¸ | 1772.33 | 7,000 | ÁöºÐ |
| 24.10.07 | Àü | º¸Àü³ìÁö | 8m¹Ì¸¸ | 2648 | 9,000 | |
| 24.10.07 | ´ä | »ý»ê³ìÁö | - | 931 | 3,800 | |
| 24.09.30 | ÀÓ¾ß | º¸Àü³ìÁö | - | 300 | 200 | |
| 24.09.30 | ´ë | º¸Àü³ìÁö | 8m¹Ì¸¸ | 873 | 22,000 | |
| 24.09.30 | Àü | °èȹ°ü¸® | 8m¹Ì¸¸ | 16 | 119 | ÁöºÐ |
| 24.09.30 | Àü | °èȹ°ü¸® | 8m¹Ì¸¸ | 16 | 119 | ÁöºÐ |
| 24.09.30 | Àü | °èȹ°ü¸® | 8m¹Ì¸¸ | 202.5 | 1,509 | ÁöºÐ |
| 24.09.30 | Àü | °èȹ°ü¸® | 8m¹Ì¸¸ | 202.5 | 1,509 | ÁöºÐ |
| 24.09.26 | ÀÓ¾ß | Áذø¾÷ | - | 3131 | 66,290 | ÁöºÐ |
| 24.09.26 | Àü | »ý»ê³ìÁö | 8m¹Ì¸¸ | 63 | 220 | |
| 24.09.26 | ´ä | »ý»ê³ìÁö | 8m¹Ì¸¸ | 2780 | 12,510 | |
| 24.09.26 | ´ä | »ý»ê³ìÁö | 8m¹Ì¸¸ | 1053 | 4,739 | |
| 24.09.26 | ´ä | »ý»ê³ìÁö | 8m¹Ì¸¸ | 833 | 3,749 | |
| 24.09.25 | ´ë | ÀϹݰø¾÷ | - | 475.2 | 31,680 | |
| 24.09.24 | ´ë | ÀÚ¿¬³ìÁö | 8m¹Ì¸¸ | 592 | 6,000 | |
| 24.09.10 | ´ä | ÀÚ¿¬³ìÁö | - | 12 | 150 | |
| 24.09.06 | ÀÓ¾ß | Á¦1Á¾ÀϹÝÁÖ°Å | 8m¹Ì¸¸ | 338.3 | 20,000 | |
| 24.09.06 | ´ä | »ý»ê³ìÁö | 8m¹Ì¸¸ | 1141 | 2,400 | |
| 24.09.05 | µµ·Î | ÀϹݰø¾÷ | - | 24.5 | 140 | ÁöºÐ |
| 24.09.05 | µµ·Î | ÀϹݰø¾÷ | - | 143.5 | 860 | ÁöºÐ |
| 24.09.05 | ±¸°Å | ÀÚ¿¬³ìÁö | 8m¹Ì¸¸ | 79 | 1,258 | |
| 24.09.05 | ÇÏõ | ÀÚ¿¬³ìÁö | 8m¹Ì¸¸ | 91 | 1,448 | |
| 24.09.05 | ´ë | ÀÚ¿¬³ìÁö | 8m¹Ì¸¸ | 351 | 7,298 | |
| 24.09.05 | ´ë | ÀÚ¿¬³ìÁö | 8m¹Ì¸¸ | 79 | 1,996 | |
| 24.09.05 | ´ä | »ý»ê³ìÁö | 8m¹Ì¸¸ | 2507 | 7,580 | |
| 24.09.04 | ´ä | »ý»ê³ìÁö | 8m¹Ì¸¸ | 2992 | 11,684 | |
| 24.09.04 | ´ä | »ý»ê³ìÁö | 8m¹Ì¸¸ | 849 | 3,316 | |
| 24.09.04 | ´ä | ÀÚ¿¬³ìÁö | 12m¹Ì¸¸ | 14 | 500 | |
| 24.09.03 | µµ·Î | ÀÚ¿¬³ìÁö | - | 1 | 50 | |
| 24.09.03 | µµ·Î | ÀÚ¿¬³ìÁö | - | 2 | 100 | |
| 24.09.03 | ÀÓ¾ß | °èȹ°ü¸® | - | 623 | 267 | |
| 24.09.03 | ÀÓ¾ß | °èȹ°ü¸® | - | 803 | 344 | |
| 24.09.03 | ´ä | °èȹ°ü¸® | 12m¹Ì¸¸ | 193 | 3,223 | |
| 24.09.03 | °øÀå¿ëÁö | °èȹ°ü¸® | 8m¹Ì¸¸ | 80 | 2,167 | |
| 24.09.02 | ´ä | ÀϹݰø¾÷ | 8m¹Ì¸¸ | 2.09 | 56 | ÁöºÐ |
| 24.09.02 | °øÀå¿ëÁö | ÀϹݰø¾÷ | 8m¹Ì¸¸ | 191 | 1,108 | ÁöºÐ |
| 24.09.02 | ´ä | ÀÚ¿¬³ìÁö | - | 2403 | 94,500 | |
| 24.08.30 | µµ·Î | Áذø¾÷ | 8m¹Ì¸¸ | 200 | 4,231 | |
| 24.08.30 | µµ·Î | Áذø¾÷ | 8m¹Ì¸¸ | 99 | 2,094 | |
| 24.08.29 | ÀÓ¾ß | º¸Àü³ìÁö | - | 270 | 200 | |
| 24.08.29 | ´ä | »ý»ê°ü¸® | 12m¹Ì¸¸ | 179 | 1,799 | |
| 24.08.28 | ´ä | »ý»ê³ìÁö | - | 1632 | 6,270 | |
| 24.08.28 | ´ä | »ý»ê³ìÁö | - | 665 | 2,560 | |
| 24.08.28 | ´ä | »ý»ê³ìÁö | - | 435 | 1,670 | |
| 24.08.24 | Àü | ÀϹݰø¾÷ | 8m¹Ì¸¸ | 111.98 | 5,000 | ÁöºÐ |
| 24.08.23 | Àü | »ý»ê³ìÁö | 8m¹Ì¸¸ | 206 | 1,172 | |
| 24.08.23 | ´ä | »ý»ê³ìÁö | 8m¹Ì¸¸ | 2057 | 8,639 | |
| 24.08.23 | ´ä | »ý»ê³ìÁö | 8m¹Ì¸¸ | 1707 | 8,194 | |
| 24.08.23 | ´ä | »ý»ê³ìÁö | 8m¹Ì¸¸ | 1481 | 6,813 | |
| 24.08.22 | ´ä | »ý»ê³ìÁö | 25mÀÌ»ó | 1003 | 19,500 | |
| 24.08.21 | ¹¦Áö | º¸Àü³ìÁö | 8m¹Ì¸¸ | 660 | 17,000 | |
| 24.08.21 | ´ë | Á¦2Á¾ÀϹÝÁÖ°Å | - | 81 | 3,185 | |
| 24.08.20 | ´ä | ÀÚ¿¬³ìÁö | 12m¹Ì¸¸ | 128 | 3,341 | |
| 24.08.15 | ´ë | Á¦2Á¾ÀϹÝÁÖ°Å | 8m¹Ì¸¸ | 229 | 7,000 | |
| 24.08.14 | ´ä | »ý»ê³ìÁö | 8m¹Ì¸¸ | 3821 | 35,800 | |
| 24.08.13 | °øÀå¿ëÁö | ÀϹݰø¾÷ | - | 243 | 7,400 | |
| 24.08.09 | ´ë | ÀÚ¿¬³ìÁö | 8m¹Ì¸¸ | 423 | 6,100 | |
| 24.08.08 | ´ä | ÀÚ¿¬³ìÁö | - | 374 | 1,500 | |
| 24.08.08 | ÀÓ¾ß | º¸Àü³ìÁö | - | 58.76 | 160 | ÁöºÐ |
| 24.08.08 | ÀÓ¾ß | º¸Àü³ìÁö | - | 264.4 | 720 | ÁöºÐ |
| 24.08.08 | ÀÓ¾ß | º¸Àü³ìÁö | - | 58.76 | 160 | ÁöºÐ |
| 24.08.08 | ÀÓ¾ß | º¸Àü³ìÁö | - | 88.13 | 240 | ÁöºÐ |
| 24.08.08 | ÀÓ¾ß | º¸Àü³ìÁö | - | 264.4 | 720 | ÁöºÐ |
| 24.08.08 | ÀÓ¾ß | º¸Àü³ìÁö | - | 264.4 | 720 | ÁöºÐ |
| 24.08.08 | ÀÓ¾ß | º¸Àü³ìÁö | - | 264.4 | 720 | ÁöºÐ |
| 24.08.08 | ÀÓ¾ß | º¸Àü³ìÁö | - | 58.76 | 160 | ÁöºÐ |
| 24.08.08 | ÀÓ¾ß | º¸Àü³ìÁö | - | 264.4 | 720 | ÁöºÐ |
| 24.08.08 | ÀÓ¾ß | º¸Àü³ìÁö | - | 396.6 | 1,080 | ÁöºÐ |
| 24.08.08 | ´ä | »ý»ê³ìÁö | 8m¹Ì¸¸ | 1096 | 5,100 | |
| 24.08.07 | ´ä | »ý»ê³ìÁö | 8m¹Ì¸¸ | 1170 | 5,664 | |
| 24.08.07 | ÀâÁ¾Áö | »ý»ê³ìÁö | 8m¹Ì¸¸ | 10 | 529 | |
| 24.08.05 | Àü | º¸Àü³ìÁö | 8m¹Ì¸¸ | 939 | 16,810 | |
| 24.08.05 | µµ·Î | º¸Àü³ìÁö | - | 87.87 | 440 | ÁöºÐ |
| 24.08.05 | µµ·Î | º¸Àü³ìÁö | 25mÀÌ»ó | 12 | 60 | ÁöºÐ |
| 24.08.05 | µµ·Î | º¸Àü³ìÁö | 8m¹Ì¸¸ | 138.25 | 690 | ÁöºÐ |
| 24.08.05 | ÀâÁ¾Áö | »ý»ê³ìÁö | 8m¹Ì¸¸ | 207 | 1,886 | |
| 24.08.05 | Àü | ÀÚ¿¬³ìÁö | 8m¹Ì¸¸ | 254 | 1,200 | |
| 24.08.01 | ´ä | ÀÚ¿¬³ìÁö | 8m¹Ì¸¸ | 743 | 11,250 | |
| 24.08.01 | ´ä | »ý»ê³ìÁö | 8m¹Ì¸¸ | 1954 | 10,640 | |
| 24.08.01 | ´ä | »ý»ê³ìÁö | 8m¹Ì¸¸ | 1892 | 10,302 | |
| 24.08.01 | ´ä | »ý»ê³ìÁö | 8m¹Ì¸¸ | 1442 | 7,852 | |
| 24.08.01 | ´ä | »ý»ê³ìÁö | 8m¹Ì¸¸ | 1993 | 10,852 | |
| 24.08.01 | ´ä | »ý»ê³ìÁö | 8m¹Ì¸¸ | 2013 | 10,961 | |
| 24.08.01 | ´ä | »ý»ê³ìÁö | 8m¹Ì¸¸ | 2058 | 11,206 | |
| 24.08.01 | ´ä | »ý»ê³ìÁö | 8m¹Ì¸¸ | 1361 | 7,411 | |
| 24.08.01 | ´ä | »ý»ê³ìÁö | 8m¹Ì¸¸ | 2489 | 14,908 | |
| 24.08.01 | ´ä | »ý»ê³ìÁö | 8m¹Ì¸¸ | 2027 | 12,141 | |
| 24.08.01 | ´ä | »ý»ê³ìÁö | 8m¹Ì¸¸ | 2375 | 14,226 | |
| 24.07.30 | Àü | º¸Àü°ü¸® | - | 558 | 10,500 | |
| 24.07.29 | ÀÓ¾ß | ÀϹݰø¾÷ | 8m¹Ì¸¸ | 44.5 | 1,000 | ÁöºÐ |
| 24.07.26 | ´ë | °èȹ°ü¸® | 8m¹Ì¸¸ | 60 | 1,979 | |
| 24.07.26 | Àü | °èȹ°ü¸® | 8m¹Ì¸¸ | 350.3 | 10,045 | |
| 24.07.26 | ÀÓ¾ß | °èȹ°ü¸® | - | 372.33 | 1,000 | ÁöºÐ |
| 24.07.24 | ÀÓ¾ß | º¸Àü³ìÁö | 8m¹Ì¸¸ | 72.95 | 109 | ÁöºÐ |
| 24.07.22 | Àü | º¸Àü³ìÁö | 8m¹Ì¸¸ | 549 | 3,700 | |
| 24.07.22 | ÀÓ¾ß | º¸Àü³ìÁö | 8m¹Ì¸¸ | 367 | 2,300 | |
| 24.07.22 | µµ·Î | ÀÚ¿¬³ìÁö | 8m¹Ì¸¸ | 75 | 124 | |
| 24.07.19 | ´ä | ÀÚ¿¬³ìÁö | - | 2028 | 8,600 | |
| 24.07.18 | ´ä | ÀϹݰø¾÷ | 12m¹Ì¸¸ | 86 | 3,000 | |
| 24.07.18 | ´ä | ÀϹݰø¾÷ | 12m¹Ì¸¸ | 72 | 2,000 | |
| 24.07.18 | Àü | ÀÚ¿¬³ìÁö | 8m¹Ì¸¸ | 164 | 2,700 | |
| 24.07.18 | ´ä | »ý»ê³ìÁö | 8m¹Ì¸¸ | 1845 | 8,487 | |
| 24.07.18 | ´ä | »ý»ê³ìÁö | 8m¹Ì¸¸ | 1742 | 8,013 | |
| 24.07.18 | ´ä | »ý»ê³ìÁö | 8m¹Ì¸¸ | 2433 | 11,678 | |
| 24.07.16 | ´ä | ÀϹݰø¾÷ | 8m¹Ì¸¸ | 1745 | 48,000 | |
| 24.07.15 | Àü | ÀÚ¿¬³ìÁö | - | 212 | 2,000 | |
| 24.07.12 | ´ë | ÀϹݰø¾÷ | 25m¹Ì¸¸ | 998.7 | 54,300 | |
| 24.07.12 | °ú¼ö¿ø | ÀϹݰø¾÷ | 8m¹Ì¸¸ | 4087 | 69,300 | |
| 24.07.12 | ÀÓ¾ß | »ý»ê³ìÁö | 8m¹Ì¸¸ | 456 | 5,500 | |
| 24.07.12 | °ú¼ö¿ø | ÀϹݰø¾÷ | 8m¹Ì¸¸ | 111 | 1,900 | |
| 24.07.11 | ÀÓ¾ß | ÀÚ¿¬³ìÁö | 8m¹Ì¸¸ | 591 | 1,600 | ÁöºÐ |
| 24.07.11 | ´ä | ÀÚ¿¬³ìÁö | 8m¹Ì¸¸ | 967.33 | 6,000 | ÁöºÐ |
| 24.07.10 | ´ä | º¸Àü³ìÁö | - | 3068 | 13,920 | |
| 24.07.08 | ÀÓ¾ß | ÀϹݰø¾÷ | 8m¹Ì¸¸ | 874 | 23,232 | |
| 24.07.08 | ÀÓ¾ß | ÀϹݰø¾÷ | 8m¹Ì¸¸ | 6744 | 179,520 | |
| 24.07.08 | µµ·Î | ÀϹݰø¾÷ | - | 295 | 7,832 | ÁöºÐ |
| 24.07.08 | µµ·Î | ÀϹݰø¾÷ | 8m¹Ì¸¸ | 226 | 1,266 | |
| 24.07.08 | µµ·Î | ÀϹݰø¾÷ | 8m¹Ì¸¸ | 226 | 1,266 | |
| 24.07.06 | ´ë | ÀÚ¿¬³ìÁö | 8m¹Ì¸¸ | 210 | 7,319 | |
| 24.07.05 | ÀÓ¾ß | ÀϹݰø¾÷ | - | 119 | 2,880 | |
| 24.07.05 | ÀÓ¾ß | ÀϹݰø¾÷ | - | 9429 | 228,160 | |
| 24.07.05 | ÀÓ¾ß | ÀϹݰø¾÷ | - | 3740 | 90,480 | |
| 24.07.04 | ÀÓ¾ß | ÀÚ¿¬³ìÁö | 12m¹Ì¸¸ | 284 | 3,000 | |
| 24.07.03 | Àü | ÀÚ¿¬³ìÁö | 8m¹Ì¸¸ | 9.67 | 30 | ÁöºÐ |
| 24.07.03 | ´ä | »ý»ê³ìÁö | 8m¹Ì¸¸ | 539.67 | 1,630 | ÁöºÐ |
| 24.07.03 | ´ä | »ý»ê³ìÁö | 8m¹Ì¸¸ | 233 | 700 | ÁöºÐ |
| 24.07.02 | ´ë | ÀÚ¿¬³ìÁö | 8m¹Ì¸¸ | 338 | 4,500 | |
| 24.07.02 | ´ë | ÀÚ¿¬³ìÁö | - | 338 | 4,500 | |
| 24.07.02 | ´ä | º¸Àü³ìÁö | 8m¹Ì¸¸ | 1108 | 24,130 | |
| 24.07.01 | ÀÓ¾ß | ÀÚ¿¬³ìÁö | - | 641.83 | 150 | ÁöºÐ |
| 24.06.30 | ÀÓ¾ß | º¸Àü³ìÁö | 8m¹Ì¸¸ | 63 | 95 | ÁöºÐ |
| 24.06.28 | ´ä | ÀϹݰø¾÷ | 8m¹Ì¸¸ | 929 | 7,471 | |
| 24.06.28 | Àü | ÀÚ¿¬³ìÁö | 8m¹Ì¸¸ | 324 | 1,800 | |
| 24.06.28 | ´ä | ÀϹݰø¾÷ | - | 700 | 5,629 | |
| 24.06.28 | Àü | ÀϹݰø¾÷ | 8m¹Ì¸¸ | 457 | 8,400 | |
| 24.06.28 | ÀÓ¾ß | ÀϹݰø¾÷ | 8m¹Ì¸¸ | 301 | 9,000 | |
| 24.06.28 | Àü | ÀÚ¿¬³ìÁö | 8m¹Ì¸¸ | 304 | 9,986 | |
| 24.06.28 | µµ·Î | º¸Àü³ìÁö | 8m¹Ì¸¸ | 35 | 200 | |
| 24.06.28 | ´ë | º¸Àü³ìÁö | 8m¹Ì¸¸ | 907 | 19,800 | |
| 24.06.26 | Àü | »ý»ê³ìÁö | 8m¹Ì¸¸ | 2412 | 12,060 | |
| 24.06.26 | ´ä | »ý»ê³ìÁö | 8m¹Ì¸¸ | 2995 | 12,579 | |
| 24.06.26 | ´ë | ÀÚ¿¬³ìÁö | 8m¹Ì¸¸ | 1177 | 25,480 | |
| 24.06.26 | Àü | ÀÚ¿¬³ìÁö | - | 334 | 5,050 | |
| 24.06.25 | Àü | °èȹ°ü¸® | - | 662 | 7,400 | |
| 24.06.25 | ´ë | ÀϹݰø¾÷ | 25m¹Ì¸¸ | 527 | 37,800 | |
| 24.06.25 | ´ë | ÀϹݰø¾÷ | 12m¹Ì¸¸ | 499.5 | 36,200 | |
| 24.06.25 | ´ë | ÀϹݰø¾÷ | 25m¹Ì¸¸ | 768.9 | 53,000 | |
| 24.06.24 | ´ë | ÀÚ¿¬³ìÁö | 8m¹Ì¸¸ | 545 | 3,700 | |
| 24.06.24 | ´ë | ÀÚ¿¬³ìÁö | 8m¹Ì¸¸ | 410 | 2,800 | |
| 24.06.22 | µµ·Î | ÀÚ¿¬³ìÁö | 8m¹Ì¸¸ | 10.3 | 10 | ÁöºÐ |
| 24.06.22 | µµ·Î | ÀÚ¿¬³ìÁö | 8m¹Ì¸¸ | 1.41 | 60 | ÁöºÐ |
| 24.06.22 | µµ·Î | ÀÚ¿¬³ìÁö | 8m¹Ì¸¸ | 40.87 | 55 | ÁöºÐ |
| 24.06.21 | ´ä | »ý»ê³ìÁö | 8m¹Ì¸¸ | 3013 | 12,655 | |
| 24.06.20 | ´ä | º¸Àü³ìÁö | 25mÀÌ»ó | 460 | 2,890 | |
| 24.06.20 | ´ä | º¸Àü³ìÁö | 25mÀÌ»ó | 277 | 1,730 | |
| 24.06.20 | ´ä | º¸Àü³ìÁö | 25mÀÌ»ó | 857 | 5,380 | |
| 24.06.20 | ´ä | º¸Àü³ìÁö | - | 340 | 4,650 | |
| 24.06.20 | ´ä | º¸Àü³ìÁö | - | 333 | 1,617 | ÁöºÐ |
| 24.06.20 | Àü | º¸Àü³ìÁö | 8m¹Ì¸¸ | 1597 | 15,000 | |
| 24.06.20 | ´ä | º¸Àü³ìÁö | - | 163 | 2,200 | |
| 24.06.20 | ´ä | º¸Àü³ìÁö | - | 166.5 | 808 | ÁöºÐ |
| 24.06.20 | ´ä | º¸Àü³ìÁö | - | 152.5 | 740 | ÁöºÐ |
| 24.06.20 | ´ä | º¸Àü³ìÁö | - | 333 | 1,617 | ÁöºÐ |
| 24.06.19 | ´ä | ÀÚ¿¬³ìÁö | - | 2182 | 9,000 | |
| 24.06.19 | Àü | º¸Àü³ìÁö | - | 165 | 1,000 | ÁöºÐ |
| 24.06.18 | µµ·Î | ÀϹݰø¾÷ | - | 67 | 889 | |
| 24.06.18 | µµ·Î | ÀϹݰø¾÷ | 12m¹Ì¸¸ | 3 | 40 | |
| 24.06.18 | µµ·Î | ÀϹݰø¾÷ | 12m¹Ì¸¸ | 42 | 557 | |
| 24.06.18 | °øÀå¿ëÁö | ÀϹݰø¾÷ | 12m¹Ì¸¸ | 82 | 3,300 | |
| 24.06.17 | °øÀå¿ëÁö | ÀϹݰø¾÷ | 25m¹Ì¸¸ | 15039.4 | 591,000 | |
| 24.06.17 | °øÀå¿ëÁö | ÀϹݰø¾÷ | 25m¹Ì¸¸ | 21856.6 | 859,000 | |
| 24.06.17 | Àü | º¸Àü³ìÁö | 8m¹Ì¸¸ | 573 | 10,000 | |
| 24.06.14 | ´ë | ÀÚ¿¬³ìÁö | - | 33 | 600 | |
| 24.06.12 | ÀÓ¾ß | ÀÚ¿¬³ìÁö | 8m¹Ì¸¸ | 1652 | 24,500 | ÁöºÐ |
| 24.06.12 | ´ë | °èȹ°ü¸® | 8m¹Ì¸¸ | 205 | 4,545 | |
| 24.06.11 | ÀÓ¾ß | ÀÚ¿¬³ìÁö | 12m¹Ì¸¸ | 555 | 1,500 | |
| 24.06.07 | ´ä | ÀÚ¿¬³ìÁö | 8m¹Ì¸¸ | 173.5 | 1,600 | ÁöºÐ |
| 24.06.07 | ÀÓ¾ß | ÀÚ¿¬³ìÁö | - | 119 | 360 | |
| 24.06.07 | ´ä | »ý»ê³ìÁö | - | 301 | 874 | |
| 24.06.07 | ´ä | »ý»ê³ìÁö | - | 1940 | 5,626 | |
| 24.06.05 | Àü | º¸Àü³ìÁö | 8m¹Ì¸¸ | 1779 | 15,500 | |
| 24.06.05 | °øÀå¿ëÁö | Áذø¾÷ | 8m¹Ì¸¸ | 492 | 7,500 | |
| 24.06.03 | ´ë | ÀÚ¿¬³ìÁö | 8m¹Ì¸¸ | 112.33 | 1,039 | ÁöºÐ |
| 24.06.03 | ´ä | ÀÚ¿¬³ìÁö | 8m¹Ì¸¸ | 45 | 306 | ÁöºÐ |
| 24.06.03 | ´ë | ÀÚ¿¬³ìÁö | 8m¹Ì¸¸ | 231.33 | 1,965 | ÁöºÐ |
| 24.06.03 | ´ä | ÀÚ¿¬³ìÁö | 8m¹Ì¸¸ | 46 | 306 | ÁöºÐ |
| 24.06.03 | ´ä | Áذø¾÷ | - | 202 | 4,000 | |
| 24.06.03 | Àü | ÀÚ¿¬³ìÁö | 8m¹Ì¸¸ | 199 | 1,690 | ÁöºÐ |
| 24.06.03 | Àü | ÀÚ¿¬³ìÁö | 8m¹Ì¸¸ | 199 | 1,690 | ÁöºÐ |
| 24.06.03 | ´ë | ÀÚ¿¬³ìÁö | 8m¹Ì¸¸ | 112.33 | 1,039 | ÁöºÐ |
| 24.06.03 | ´ë | ÀÚ¿¬³ìÁö | 8m¹Ì¸¸ | 231.33 | 1,965 | ÁöºÐ |
| 24.06.03 | ´ä | ÀÚ¿¬³ìÁö | - | 376 | 2,275 | |
| 24.06.03 | ÀÓ¾ß | ÀϹݰø¾÷ | - | 11008 | 142,000 | |
| 24.06.03 | °øÀå¿ëÁö | ÀÚ¿¬³ìÁö | 8m¹Ì¸¸ | 4353 | 74,338 | |
| 24.06.03 | °øÀå¿ëÁö | ÀÚ¿¬³ìÁö | 8m¹Ì¸¸ | 3760 | 64,211 | |
| 24.06.03 | µµ·Î | ÀÚ¿¬³ìÁö | 8m¹Ì¸¸ | 2 | 5 | |
| 24.06.03 | µµ·Î | ÀÚ¿¬³ìÁö | 8m¹Ì¸¸ | 70 | 170 | |
| 24.06.03 | ÀÓ¾ß | º¸Àü°ü¸® | - | 2261.2 | 300 | ÁöºÐ |
| 24.06.03 | ÀÓ¾ß | ³ó¸² | - | 3550.4 | 450 | ÁöºÐ |
| 24.06.01 | ´ä | ÀÚ¿¬³ìÁö | 8m¹Ì¸¸ | 3759 | 48,891 | |
| 24.05.30 | ´ä | ÀÚ¿¬³ìÁö | 8m¹Ì¸¸ | 1874 | 10,000 | |
| 24.05.30 | ´ä | ÀÚ¿¬³ìÁö | - | 536 | 3,300 | |
| 24.05.29 | ´ä | »ý»ê³ìÁö | 8m¹Ì¸¸ | 637 | 3,185 | |
| 24.05.29 | ´ä | »ý»ê³ìÁö | 8m¹Ì¸¸ | 1373 | 6,865 | |
| 24.05.29 | ´ä | »ý»ê³ìÁö | 8m¹Ì¸¸ | 2152 | 10,760 | |
| 24.05.29 | Àü | »ý»ê³ìÁö | 8m¹Ì¸¸ | 2899 | 48,000 | |
| 24.05.29 | ´ë | Á¦1Á¾ÀϹÝÁÖ°Å | 8m¹Ì¸¸ | 101 | 7,700 | ÁöºÐ |
| 24.05.29 | ´ä | »ý»ê³ìÁö | 8m¹Ì¸¸ | 2520 | 10,080 | |
| 24.05.29 | ´ä | »ý»ê³ìÁö | 8m¹Ì¸¸ | 1664 | 6,822 | |
| 24.05.29 | ´ä | »ý»ê³ìÁö | 8m¹Ì¸¸ | 3012 | 12,349 | |
| 24.05.29 | ´ë | ÀϹݰø¾÷ | 12m¹Ì¸¸ | 427.6 | 25,000 | |
| 24.05.28 | ÀÓ¾ß | ÀÚ¿¬³ìÁö | 8m¹Ì¸¸ | 1174.5 | 24,000 | ÁöºÐ |
| 24.05.27 | ´ä | º¸Àü³ìÁö | 8m¹Ì¸¸ | 728 | 13,800 | ÁöºÐ |
| 24.05.27 | ÀÓ¾ß | Áذø¾÷ | 8m¹Ì¸¸ | 9203 | 90,000 | |
| 24.05.27 | ´ä | Áذø¾÷ | - | 711 | 5,000 | |
| 24.05.27 | ´ä | ÀÚ¿¬³ìÁö | 8m¹Ì¸¸ | 1798 | 10,900 | |
| 24.05.27 | ´ë | °èȹ°ü¸® | 8m¹Ì¸¸ | 151 | 3,600 | |
| 24.05.27 | ´ë | ÀϹݰø¾÷ | 25m¹Ì¸¸ | 998.7 | 59,123 | |
| 24.05.26 | ´ä | ÀÚ¿¬³ìÁö | - | 2165 | 20,000 | |
| 24.05.24 | ´ë | ÀϹݰø¾÷ | 25m¹Ì¸¸ | 568.8 | 38,000 | |
| 24.05.24 | µµ·Î | ÀÚ¿¬³ìÁö | - | 14.05 | 103 | ÁöºÐ |
| 24.05.24 | Àü | ÀÚ¿¬³ìÁö | - | 42.47 | 317 | ÁöºÐ |
| 24.05.24 | Àü | ÀÚ¿¬³ìÁö | - | 559.84 | 4,130 | ÁöºÐ |
| 24.05.23 | µµ·Î | º¸Àü°ü¸® | 8m¹Ì¸¸ | 36 | 50 | |
| 24.05.22 | ´ë | ÀϹݰø¾÷ | 25m¹Ì¸¸ | 859.1 | 44,852 | |
| 24.05.21 | µµ·Î | ÀϹݰø¾÷ | 25m¹Ì¸¸ | 120.1 | 1,000 | ÁöºÐ |
| 24.05.21 | Àü | º¸Àü³ìÁö | - | 566 | 11,628 | |
| 24.05.20 | ÀÓ¾ß | ÀϹݰø¾÷ | 8m¹Ì¸¸ | 183.77 | 1,049 | ÁöºÐ |
| 24.05.20 | ÀÓ¾ß | ÀϹݰø¾÷ | 8m¹Ì¸¸ | 4260 | 86,000 | |
| 24.05.20 | ÀÓ¾ß | ÀϹݰø¾÷ | 8m¹Ì¸¸ | 757 | 15,000 | ÁöºÐ |
| 24.05.20 | ÀÓ¾ß | ÀϹݰø¾÷ | 8m¹Ì¸¸ | 1831 | 37,000 | ÁöºÐ |
| 24.05.20 | ÀÓ¾ß | ÀϹݰø¾÷ | 8m¹Ì¸¸ | 3348 | 67,700 | |
| 24.05.20 | ÀÓ¾ß | ÀϹݰø¾÷ | 8m¹Ì¸¸ | 309 | 6,200 | |
| 24.05.20 | ÀÓ¾ß | ÀϹݰø¾÷ | 8m¹Ì¸¸ | 671 | 13,600 | ÁöºÐ |
| 24.05.20 | ÀÓ¾ß | ÀϹݰø¾÷ | 8m¹Ì¸¸ | 110 | 2,200 | ÁöºÐ |
| 24.05.20 | ÀÓ¾ß | ÀϹݰø¾÷ | 8m¹Ì¸¸ | 1846 | 37,300 | ÁöºÐ |
| 24.05.20 | ÀÓ¾ß | ÀϹݰø¾÷ | 8m¹Ì¸¸ | 7419 | 150,000 | ÁöºÐ |
| 24.05.20 | ´ä | ÀÚ¿¬³ìÁö | - | 1150 | 32,600 | |
| 24.05.20 | ´ä | ÀÚ¿¬³ìÁö | - | 109.5 | 4,000 | ÁöºÐ |
| 24.05.20 | ´ë | ÀÚ¿¬³ìÁö | 8m¹Ì¸¸ | 15 | 1,600 | ÁöºÐ |
| 24.05.20 | ´ë | ÀϹݰø¾÷ | 8m¹Ì¸¸ | 90 | 25,800 | ÁöºÐ |
| 24.05.20 | ´ë | ÀÚ¿¬³ìÁö | 8m¹Ì¸¸ | 225 | 25,000 | ÁöºÐ |
| 24.05.20 | ´ë | ÀÚ¿¬³ìÁö | 8m¹Ì¸¸ | 15 | 3,770 | ÁöºÐ |
| 24.05.20 | ´ë | ÀϹݰø¾÷ | 8m¹Ì¸¸ | 90 | 11,300 | ÁöºÐ |
| 24.05.20 | ÀÓ¾ß | ÀÚ¿¬³ìÁö | - | 2589 | 10,130 | ÁöºÐ |
| 24.05.20 | ÀÓ¾ß | ÀÚ¿¬³ìÁö | - | 4242.5 | 16,650 | ÁöºÐ |
| 24.05.20 | ÀÓ¾ß | ÀÚ¿¬³ìÁö | - | 71.5 | 300 | ÁöºÐ |
| 24.05.20 | ÀÓ¾ß | ÀÚ¿¬³ìÁö | - | 274 | 1,100 | ÁöºÐ |
| 24.05.20 | ÀÓ¾ß | ÀÚ¿¬³ìÁö | - | 71.5 | 100 | ÁöºÐ |
| 24.05.20 | ÀÓ¾ß | ÀÚ¿¬³ìÁö | - | 4242.5 | 7,200 | ÁöºÐ |
| 24.05.20 | ÀÓ¾ß | ÀÚ¿¬³ìÁö | - | 2589 | 4,500 | ÁöºÐ |
| 24.05.20 | ´ä | ÀÚ¿¬³ìÁö | - | 21.5 | 800 | ÁöºÐ |
| 24.05.20 | ÀÓ¾ß | ÀÚ¿¬³ìÁö | - | 274 | 500 | ÁöºÐ |
| 24.05.20 | ´ä | ÀÚ¿¬³ìÁö | - | 109.5 | 9,152 | ÁöºÐ |
| 24.05.20 | ´ä | ÀÚ¿¬³ìÁö | - | 65.5 | 5,500 | ÁöºÐ |
| 24.05.20 | ´ä | ÀÚ¿¬³ìÁö | - | 65.5 | 2,400 | ÁöºÐ |
| 24.05.20 | ´ä | ÀÚ¿¬³ìÁö | - | 21.5 | 1,800 | ÁöºÐ |
| 24.05.20 | ´ë | ÀÚ¿¬³ìÁö | 8m¹Ì¸¸ | 225 | 56,550 | ÁöºÐ |
| 24.05.17 | ´ë | Á¦2Á¾ÀϹÝÁÖ°Å | 8m¹Ì¸¸ | 19 | 500 | ÁöºÐ |
| 24.05.16 | ´ë | º¸Àü³ìÁö | 8m¹Ì¸¸ | 396 | 13,000 | |
| 24.05.16 | ´ë | º¸Àü³ìÁö | 8m¹Ì¸¸ | 553 | 17,000 | |
| 24.05.14 | ´ë | »ý»ê³ìÁö | 12m¹Ì¸¸ | 594 | 52,000 | |
| 24.05.13 | ´ë | ÀϹݰø¾÷ | 8m¹Ì¸¸ | 32 | 609 | |
| 24.05.10 | ´ä | ÀÚ¿¬³ìÁö | 25mÀÌ»ó | 161 | 6,000 | |
| 24.05.09 | Àü | ÀÚ¿¬³ìÁö | - | 595 | 9,000 | |
| 24.05.08 | ÀÓ¾ß | ÀϹݰø¾÷ | 8m¹Ì¸¸ | 1831 | 37,000 | ÁöºÐ |
| 24.05.08 | ÀÓ¾ß | ÀϹݰø¾÷ | 8m¹Ì¸¸ | 4260 | 86,000 | |
| 24.05.08 | ÀÓ¾ß | ÀϹݰø¾÷ | 8m¹Ì¸¸ | 7419 | 150,000 | ÁöºÐ |
| 24.05.08 | ÀÓ¾ß | ÀϹݰø¾÷ | 8m¹Ì¸¸ | 3348 | 67,700 | |
| 24.05.08 | ÀÓ¾ß | ÀϹݰø¾÷ | 8m¹Ì¸¸ | 309 | 6,200 | |
| 24.05.08 | ÀÓ¾ß | ÀϹݰø¾÷ | 8m¹Ì¸¸ | 671 | 13,600 | ÁöºÐ |
| 24.05.08 | ÀÓ¾ß | ÀϹݰø¾÷ | 8m¹Ì¸¸ | 1846 | 37,300 | ÁöºÐ |
| 24.05.08 | ÀÓ¾ß | ÀϹݰø¾÷ | 8m¹Ì¸¸ | 110 | 2,200 | ÁöºÐ |
| 24.05.08 | ´ë | »ý»ê³ìÁö | - | 39 | 590 | |
| 24.05.07 | Àü | º¸Àü³ìÁö | 8m¹Ì¸¸ | 2860 | 26,000 | |
| 24.05.07 | µµ·Î | ÀϹݰø¾÷ | 8m¹Ì¸¸ | 226 | 1,266 | |
| 24.05.07 | ÀÓ¾ß | ÀÚ¿¬³ìÁö | 8m¹Ì¸¸ | 485 | 6,100 | |
| 24.05.07 | ÀÓ¾ß | ÀÚ¿¬³ìÁö | 8m¹Ì¸¸ | 668 | 8,400 | |
| 24.05.07 | ´ä | »ý»ê³ìÁö | 8m¹Ì¸¸ | 3016 | 10,043 | |
| 24.05.07 | ÀÓ¾ß | °èȹ°ü¸® | 8m¹Ì¸¸ | 13223 | 1,000 | ÁöºÐ |
| 24.05.07 | ´ä | °èȹ°ü¸® | 25m¹Ì¸¸ | 461 | 1,000 | ÁöºÐ |
| 24.05.03 | ´ä | °èȹ°ü¸® | 25m¹Ì¸¸ | 461 | 1,000 | ÁöºÐ |
| 24.05.03 | ´ä | »ý»ê³ìÁö | 8m¹Ì¸¸ | 3009 | 13,841 | |
| 24.05.01 | ´ë | ÀÚ¿¬³ìÁö | 8m¹Ì¸¸ | 605 | 7,000 | |
| 24.04.30 | ´ä | »ý»ê³ìÁö | 8m¹Ì¸¸ | 1126 | 5,200 | |
| 24.04.29 | ´ä | ÀÚ¿¬³ìÁö | - | 979 | 15,000 | |
| 24.04.29 | ´ä | °èȹ°ü¸® | - | 879 | 11,500 | |
| 24.04.29 | ´ä | °èȹ°ü¸® | - | 60 | 500 | |
| 24.04.29 | ´ë | »ý»ê³ìÁö | - | 200 | 6,000 | |
| 24.04.25 | ´ä | »ý»ê³ìÁö | 8m¹Ì¸¸ | 3016 | 10,043 | |
| 24.04.24 | ´ä | »ý»ê³ìÁö | 8m¹Ì¸¸ | 1739 | 7,890 | |
| 24.04.18 | ´ä | »ý»ê³ìÁö | 8m¹Ì¸¸ | 2321 | 6,500 | |
| 24.04.17 | ´ä | °èȹ°ü¸® | 8m¹Ì¸¸ | 679 | 6,000 | |
| 24.04.17 | °øÀå¿ëÁö | ÀϹݰø¾÷ | 25m¹Ì¸¸ | 5924.6 | 112,300 | |
| 24.04.16 | ´ä | ÀÚ¿¬³ìÁö | - | 90 | 2,092 | |
| 24.04.14 | Àü | º¸Àü³ìÁö | 8m¹Ì¸¸ | 2860 | 30,000 | |
| 24.04.12 | µµ·Î | ÀÚ¿¬³ìÁö | 8m¹Ì¸¸ | 352 | 61 | ÁöºÐ |
| 24.04.12 | ÀÓ¾ß | ÀÚ¿¬³ìÁö | 8m¹Ì¸¸ | 1415 | 882 | |
| 24.04.12 | ÀÓ¾ß | ÀϹݰø¾÷ | - | 8 | 100 | ÁöºÐ |
| 24.04.12 | ÀÓ¾ß | º¸Àü³ìÁö | 8m¹Ì¸¸ | 2869 | 1,286 | |
| 24.04.12 | ÀÓ¾ß | ÀϹݰø¾÷ | 8m¹Ì¸¸ | 156 | 1,433 | ÁöºÐ |
| 24.04.12 | Àü | ÀÚ¿¬³ìÁö | - | 1107 | 7,370 | |
| 24.04.12 | Àü | ÀÚ¿¬³ìÁö | - | 1835 | 12,210 | |
| 24.04.12 | ÀÓ¾ß | ÀÚ¿¬³ìÁö | 8m¹Ì¸¸ | 819.92 | 10,700 | ÁöºÐ |
| 24.04.12 | ´ë | ÀÚ¿¬³ìÁö | 8m¹Ì¸¸ | 46 | 1,600 | |
| 24.04.11 | Àü | ÀÚ¿¬³ìÁö | 8m¹Ì¸¸ | 52 | 1,500 | |
| 24.04.10 | ÀÓ¾ß | ÀÚ¿¬³ìÁö | 8m¹Ì¸¸ | 25 | 360 | |
| 24.04.08 | ´ä | º¸Àü³ìÁö | - | 94 | 949 | |
| 24.04.03 | ´ä | »ý»ê³ìÁö | 8m¹Ì¸¸ | 4290.7 | 20,166 | |
| 24.04.03 | ´ä | »ý»ê³ìÁö | 8m¹Ì¸¸ | 1427 | 6,422 | |
| 24.04.03 | Àü | ÀÚ¿¬³ìÁö | - | 668 | 12,700 | |
| 24.04.03 | Àü | º¸Àü³ìÁö | 8m¹Ì¸¸ | 3220 | 61,400 | |
| 24.04.03 | ´ä | »ý»ê³ìÁö | 8m¹Ì¸¸ | 2995 | 12,879 | |
| 24.04.03 | ´ä | »ý»ê³ìÁö | 8m¹Ì¸¸ | 279 | 1,200 | |
| 24.04.03 | ´ä | »ý»ê³ìÁö | 8m¹Ì¸¸ | 3317 | 14,595 | |
| 24.04.03 | ´ä | »ý»ê³ìÁö | 8m¹Ì¸¸ | 2166 | 9,530 | |
| 24.04.01 | Àü | Á¦2Á¾ÀϹÝÁÖ°Å | 8m¹Ì¸¸ | 23.64 | 1,000 | ÁöºÐ |
| 24.04.01 | ´ä | »ý»ê³ìÁö | 8m¹Ì¸¸ | 771 | 2,799 | |
| 24.04.01 | ´ä | »ý»ê³ìÁö | 8m¹Ì¸¸ | 2953 | 10,719 | |
| 24.04.01 | Àü | °èȹ°ü¸® | 8m¹Ì¸¸ | 98 | 2,700 | |
| 24.03.29 | ´ä | ÀÚ¿¬³ìÁö | 8m¹Ì¸¸ | 1516 | 40,000 | |
| 24.03.28 | ´ä | »ý»ê³ìÁö | 8m¹Ì¸¸ | 3235 | 14,500 | |
| 24.03.27 | µµ·Î | ÀÚ¿¬³ìÁö | 8m¹Ì¸¸ | 11 | 258 | |
| 24.03.27 | µµ·Î | ÀÚ¿¬³ìÁö | 8m¹Ì¸¸ | 4 | 94 | |
| 24.03.27 | ´ä | º¸Àü³ìÁö | - | 27 | 200 | |
| 24.03.26 | Àü | ÀÚ¿¬³ìÁö | - | 136 | 656 | |
| 24.03.25 | µµ·Î | ÀϹݰø¾÷ | - | 71.25 | 1,342 | ÁöºÐ |
| 24.03.25 | ÀÓ¾ß | ÀÚ¿¬³ìÁö | - | 1084 | 8,250 | |
| 24.03.25 | Àü | º¸Àü³ìÁö | - | 276 | 917 | |
| 24.03.22 | ´ä | ÀϹݰø¾÷ | 12m¹Ì¸¸ | 243 | 8,273 | |
| 24.03.22 | µµ·Î | ÀϹݰø¾÷ | 25m¹Ì¸¸ | 21 | 216 | |
| 24.03.22 | µµ·Î | ÀϹݰø¾÷ | 25m¹Ì¸¸ | 14 | 144 | |
| 24.03.22 | ´ä | »ý»ê³ìÁö | 8m¹Ì¸¸ | 263.75 | 960 | ÁöºÐ |
| 24.03.22 | ¸ñÀå¿ëÁö | °èȹ°ü¸® | 8m¹Ì¸¸ | 1072 | 1,300 | |
| 24.03.22 | ¸ñÀå¿ëÁö | °èȹ°ü¸® | 8m¹Ì¸¸ | 1072 | 1,300 | |
| 24.03.20 | ÀÓ¾ß | ÀϹݰø¾÷ | 8m¹Ì¸¸ | 155 | 1,000 | ÁöºÐ |
| 24.03.19 | ´ä | »ý»ê³ìÁö | - | 1981.8 | 8,720 | |
| 24.03.19 | ´ä | »ý»ê³ìÁö | 8m¹Ì¸¸ | 907 | 5,480 | |
| 24.03.19 | ´ä | »ý»ê³ìÁö | 8m¹Ì¸¸ | 1079.33 | 3,260 | ÁöºÐ |
| 24.03.19 | ¹¦Áö | »ý»ê³ìÁö | 8m¹Ì¸¸ | 599 | 2,172 | |
| 24.03.19 | ´ä | »ý»ê³ìÁö | 8m¹Ì¸¸ | 791.25 | 2,868 | ÁöºÐ |
| 24.03.19 | ´ä | »ý»ê³ìÁö | 8m¹Ì¸¸ | 466 | 1,410 | ÁöºÐ |
| 24.03.19 | ´ä | »ý»ê³ìÁö | - | 2034 | 9,763 | |
| 24.03.19 | ´ä | »ý»ê³ìÁö | - | 2753 | 13,490 | |
| 24.03.19 | ´ä | »ý»ê³ìÁö | 8m¹Ì¸¸ | 1888 | 9,440 | |
| 24.03.19 | ´ä | Á¦2Á¾ÀϹÝÁÖ°Å | 8m¹Ì¸¸ | 92 | 5,700 | |
| 24.03.19 | ´ä | »ý»ê³ìÁö | - | 2716 | 11,679 | |
| 24.03.19 | ´ä | »ý»ê³ìÁö | 8m¹Ì¸¸ | 2363 | 10,634 | |
| 24.03.19 | ´ä | »ý»ê³ìÁö | - | 1994 | 8,574 | |
| 24.03.18 | ÀÓ¾ß | ÀϹݰø¾÷ | 8m¹Ì¸¸ | 222.17 | 2,200 | ÁöºÐ |
| 24.03.16 | µµ·Î | ÀÚ¿¬³ìÁö | 8m¹Ì¸¸ | 22 | 2,300 | |
| 24.03.14 | ´ä | ÀÚ¿¬³ìÁö | 8m¹Ì¸¸ | 557 | 13,513 | ÁöºÐ |
| 24.03.14 | ´ä | ÀÚ¿¬³ìÁö | 8m¹Ì¸¸ | 795 | 19,287 | ÁöºÐ |
| 24.03.13 | ´ä | »ý»ê³ìÁö | 8m¹Ì¸¸ | 3421 | 13,468 | |
| 24.03.13 | ´ë | Á¦1Á¾ÀϹÝÁÖ°Å | - | 216 | 6,523 | |
| 24.03.13 | ´ë | Á¦1Á¾ÀϹÝÁÖ°Å | - | 54 | 1,631 | |
| 24.03.13 | Àü | Á¦1Á¾ÀϹÝÁÖ°Å | - | 10 | 282 | |
| 24.03.12 | ´ä | º¸Àü³ìÁö | 8m¹Ì¸¸ | 48 | 1,017 | |
| 24.03.12 | ´ä | º¸Àü³ìÁö | 8m¹Ì¸¸ | 15 | 58 | |
| 24.03.11 | Àü | »ý»ê³ìÁö | 8m¹Ì¸¸ | 397 | 1,500 | |
| 24.03.11 | µµ·Î | »ý»ê³ìÁö | 8m¹Ì¸¸ | 20 | 50 | |
| 24.03.11 | Àü | º¸Àü³ìÁö | 8m¹Ì¸¸ | 2586 | 40,880 | |
| 24.03.11 | Àü | º¸Àü³ìÁö | 8m¹Ì¸¸ | 418 | 6,618 | |
| 24.03.11 | ´ë | º¸Àü³ìÁö | - | 410 | 6,443 | |
| 24.03.11 | ´ë | º¸Àü³ìÁö | - | 410 | 6,480 | |
| 24.03.11 | Àü | º¸Àü³ìÁö | 8m¹Ì¸¸ | 418 | 6,575 | |
| 24.03.11 | Àü | º¸Àü³ìÁö | 8m¹Ì¸¸ | 2798 | 44,013 | |
| 24.03.11 | Àü | º¸Àü³ìÁö | 8m¹Ì¸¸ | 2586 | 40,678 | |
| 24.03.11 | Àü | º¸Àü³ìÁö | 8m¹Ì¸¸ | 2798 | 44,230 | |
| 24.03.07 | ´ë | ÀÚ¿¬³ìÁö | 8m¹Ì¸¸ | 496 | 4,300 | |
| 24.03.07 | Àü | ÀÚ¿¬³ìÁö | 8m¹Ì¸¸ | 288 | 1,700 | |
| 24.03.04 | ´ä | º¸Àü³ìÁö | - | 566 | 14,500 | |
| 24.03.04 | ´ä | »ý»ê³ìÁö | - | 12 | 150 | ÁöºÐ |
| 24.03.04 | ´ë | »ý»ê³ìÁö | - | 3.02 | 50 | ÁöºÐ |
| 24.03.04 | ´ë | »ý»ê³ìÁö | - | 3.02 | 60 | ÁöºÐ |
| 24.03.04 | ´ä | »ý»ê³ìÁö | - | 360 | 6,600 | |
| 24.03.04 | µµ·Î | »ý»ê³ìÁö | - | 3.01 | 50 | ÁöºÐ |
| 24.03.04 | µµ·Î | »ý»ê³ìÁö | - | 3 | 50 | ÁöºÐ |
| 24.03.04 | µµ·Î | »ý»ê³ìÁö | - | 3 | 60 | ÁöºÐ |
| 24.03.04 | µµ·Î | »ý»ê³ìÁö | - | 3.01 | 60 | ÁöºÐ |
| 24.03.04 | µµ·Î | ÀÚ¿¬³ìÁö | 8m¹Ì¸¸ | 14 | 220 | ÁöºÐ |
| 24.03.04 | ´ä | »ý»ê³ìÁö | - | 360 | 6,540 | |
| 24.03.04 | µµ·Î | ÀÚ¿¬³ìÁö | - | 14 | 160 | ÁöºÐ |
| 24.03.04 | ÀÓ¾ß | ÀÚ¿¬³ìÁö | - | 19856 | 56,192 | |
| 24.03.04 | ÀÓ¾ß | ÀÚ¿¬³ìÁö | - | 1665 | 7,160 | |
| 24.02.29 | ´ä | ÀÚ¿¬³ìÁö | 12m¹Ì¸¸ | 1025 | 25,000 | |
| 24.02.29 | Àü | ÀÚ¿¬³ìÁö | - | 215 | 5,000 | |
| 24.02.28 | Àü | ÀÚ¿¬³ìÁö | 8m¹Ì¸¸ | 808 | 7,711 | |
| 24.02.28 | Àü | »ý»ê³ìÁö | - | 1646 | 5,000 | |
| 24.02.27 | ´ä | º¸Àü³ìÁö | - | 1322.32 | 7,000 | ÁöºÐ |
| 24.02.26 | Àü | »ý»ê³ìÁö | 12m¹Ì¸¸ | 949 | 10,000 | |
| 24.02.26 | µµ·Î | ÀÚ¿¬³ìÁö | 12m¹Ì¸¸ | 9 | 155 | |
| 24.02.26 | µµ·Î | ÀÚ¿¬³ìÁö | 12m¹Ì¸¸ | 15 | 268 | |
| 24.02.26 | °øÀå¿ëÁö | °èȹ°ü¸® | 12m¹Ì¸¸ | 10 | 200 | |
| 24.02.23 | ÀÓ¾ß | ÀÚ¿¬³ìÁö | - | 1039 | 30,000 | |
| 24.02.23 | ÀÓ¾ß | ÀÚ¿¬³ìÁö | - | 9044 | 160,000 | |
| 24.02.23 | ´ä | ÀϹݰø¾÷ | - | 301 | 4,000 | |
| 24.02.23 | ´ä | ÀϹݰø¾÷ | - | 585 | 7,000 | |
| 24.02.23 | Àü | °èȹ°ü¸® | 8m¹Ì¸¸ | 399 | 16,500 | |
| 24.02.20 | ´ä | »ý»ê³ìÁö | 8m¹Ì¸¸ | 2900 | 15,660 | |
| 24.02.20 | ´ë | Á¦2Á¾ÀϹÝÁÖ°Å | 25m¹Ì¸¸ | 389 | 68,950 | |
| 24.02.20 | ´ë | Á¦2Á¾ÀϹÝÁÖ°Å | 25m¹Ì¸¸ | 367 | 63,150 | |
| 24.02.20 | ´ë | Á¦2Á¾ÀϹÝÁÖ°Å | 8m¹Ì¸¸ | 239 | 27,400 | |
| 24.02.13 | °øÀå¿ëÁö | ÀϹݰø¾÷ | 25m¹Ì¸¸ | 2406.7 | 67,700 | |
| 24.02.13 | °øÀå¿ëÁö | ÀϹݰø¾÷ | 25m¹Ì¸¸ | 10212 | 325,000 | |
| 24.02.07 | ÀâÁ¾Áö | ÀÚ¿¬³ìÁö | 12m¹Ì¸¸ | 176 | 5,716 | |
| 24.02.07 | ´ë | ÀÚ¿¬³ìÁö | 12m¹Ì¸¸ | 1553 | 50,430 | |
| 24.02.07 | ´ä | ÀÚ¿¬³ìÁö | - | 345 | 8,854 | |
| 24.02.07 | µµ·Î | ÀϹݰø¾÷ | 8m¹Ì¸¸ | 1174.1 | 100 | ÁöºÐ |
| 24.02.07 | Àü | Á¦1Á¾ÀϹÝÁÖ°Å | 8m¹Ì¸¸ | 136 | 7,500 | |
| 24.02.07 | Àü | Á¦1Á¾ÀϹÝÁÖ°Å | - | 136 | 7,500 | |
| 24.02.07 | Àü | »ý»ê³ìÁö | 8m¹Ì¸¸ | 1071 | 5,300 | |
| 24.02.05 | ±¸°Å | ÀÚ¿¬³ìÁö | 8m¹Ì¸¸ | 5 | 135 | ÁöºÐ |
| 24.02.05 | ±¸°Å | ÀÚ¿¬³ìÁö | 8m¹Ì¸¸ | 5 | 135 | ÁöºÐ |
| 24.02.05 | ±¸°Å | ÀÚ¿¬³ìÁö | 8m¹Ì¸¸ | 3.5 | 95 | ÁöºÐ |
| 24.02.05 | µµ·Î | ÀÚ¿¬³ìÁö | 8m¹Ì¸¸ | 5 | 135 | ÁöºÐ |
| 24.02.05 | ±¸°Å | ÀÚ¿¬³ìÁö | 8m¹Ì¸¸ | 3.5 | 95 | ÁöºÐ |
| 24.02.05 | ´ä | ÀÚ¿¬³ìÁö | 8m¹Ì¸¸ | 394 | 10,735 | ÁöºÐ |
| 24.02.05 | ´ä | ÀÚ¿¬³ìÁö | 8m¹Ì¸¸ | 394 | 10,735 | ÁöºÐ |
| 24.02.05 | µµ·Î | ÀÚ¿¬³ìÁö | 8m¹Ì¸¸ | 5 | 135 | ÁöºÐ |
| 24.02.05 | ´ä | ÀÚ¿¬³ìÁö | - | 4529 | 30,000 | |
| 24.02.05 | ÀÓ¾ß | º¸Àü³ìÁö | 8m¹Ì¸¸ | 3174 | 3,000 | |
| 24.02.05 | ´ä | »ý»ê³ìÁö | 8m¹Ì¸¸ | 971 | 7,350 | |
| 24.02.02 | ´ä | »ý»ê³ìÁö | - | 700 | 4,200 | |
| 24.02.02 | ´ä | »ý»ê³ìÁö | - | 953 | 4,300 | |
| 24.02.01 | ´ä | ÀÚ¿¬³ìÁö | - | 340 | 2,060 | |
| 24.02.01 | ´ä | »ý»ê³ìÁö | 8m¹Ì¸¸ | 3055 | 12,220 | |
| 24.02.01 | ¹¦Áö | ÀÚ¿¬³ìÁö | - | 60 | 1,100 | |
| 24.02.01 | ¹¦Áö | º¸Àü³ìÁö | 8m¹Ì¸¸ | 4552 | 86,773 | |
| 24.02.01 | ´ä | »ý»ê³ìÁö | 8m¹Ì¸¸ | 26 | 117 | |
| 24.02.01 | ´ä | »ý»ê³ìÁö | 8m¹Ì¸¸ | 1307 | 5,882 | |
| 24.02.01 | ´ä | »ý»ê³ìÁö | 8m¹Ì¸¸ | 2097 | 9,437 | |
| 24.02.01 | ´ä | »ý»ê³ìÁö | 8m¹Ì¸¸ | 3063 | 13,784 | |
| 24.02.01 | ´ä | »ý»ê³ìÁö | 8m¹Ì¸¸ | 865 | 3,893 | |
| 24.01.31 | Àü | ÀÚ¿¬³ìÁö | - | 1,224 | 22,200 | |
| 24.01.31 | ´ä | º¸Àü³ìÁö | - | 3,608 | 10,000 | |
| 24.01.26 | Àü | ÀÚ¿¬³ìÁö | - | 821 | 21,000 | |
| 24.01.25 | Àü | °èȹ°ü¸® | 8m¹Ì¸¸ | 588 | 1,600 | |
| 24.01.24 | ÀÓ¾ß | º¸Àü³ìÁö | - | 496 | 8,400 | |
| 24.01.24 | ÀÓ¾ß | º¸Àü³ìÁö | - | 1,221 | 20,664 | |
| 24.01.24 | Àü | ÀÚ¿¬³ìÁö | 12m¹Ì¸¸ | 2,649 | 54,468 | |
| 24.01.24 | ´ë | Á¦2Á¾ÀϹÝÁÖ°Å | 8m¹Ì¸¸ | 8 | 350 | |
| 24.01.24 | Àü | Á¦2Á¾ÀϹÝÁÖ°Å | 8m¹Ì¸¸ | 8 | 350 | |
| 24.01.23 | ÀÓ¾ß | º¸Àü³ìÁö | 8m¹Ì¸¸ | 428 | 10,000 | |
| 24.01.23 | ÀÓ¾ß | º¸Àü³ìÁö | 8m¹Ì¸¸ | 413 | 10,000 | |
| 24.01.20 | ÀÓ¾ß | ÀϹݰø¾÷ | - | 3,730 | 50,000 | ÁöºÐ |
| 24.01.20 | ÀÓ¾ß | ÀϹݰø¾÷ | - | 271 | 8,000 | ÁöºÐ |
| 24.01.19 | ´ä | »ý»ê³ìÁö | 8m¹Ì¸¸ | 2,844 | 17,000 | |
| 24.01.18 | ´ä | »ý»ê³ìÁö | 8m¹Ì¸¸ | 2,206 | 10,430 | |
| 24.01.18 | ´ä | »ý»ê³ìÁö | - | 24 | 90 | |
| 24.01.18 | ´ä | »ý»ê³ìÁö | 8m¹Ì¸¸ | 2,087 | 8,980 | |
| 24.01.15 | Àü | ÁØÁÖ°Å | 8m¹Ì¸¸ | 661 | 22,600 | |
| 24.01.15 | ÀÓ¾ß | ÁØÁÖ°Å | - | 216 | 7,400 | |
| 24.01.14 | µµ·Î | °èȹ°ü¸® | 8m¹Ì¸¸ | 3 | 132 | |
| 24.01.14 | µµ·Î | °èȹ°ü¸® | 8m¹Ì¸¸ | 15 | 668 | |
| 24.01.14 | Àü | °èȹ°ü¸® | 8m¹Ì¸¸ | 100 | 4,000 | |
| 24.01.12 | ´ä | »ý»ê³ìÁö | 8m¹Ì¸¸ | 3,062 | 9,900 | |
| 24.01.12 | ´ä | º¸Àü³ìÁö | 8m¹Ì¸¸ | 538 | 2,689 | |
| 24.01.11 | ´ä | º¸Àü³ìÁö | 8m¹Ì¸¸ | 1,888 | 3,600 | |
| 24.01.11 | Àü | º¸Àü³ìÁö | 8m¹Ì¸¸ | 658 | 1,400 | |
| 24.01.11 | ´ë | ÀÚ¿¬³ìÁö | 8m¹Ì¸¸ | 226 | 3,000 | |
| 24.01.11 | ÀÓ¾ß | »ý»ê³ìÁö | - | 2,068 | 2,000 | ÁöºÐ |
| 24.01.11 | ´ë | ÀϹݰø¾÷ | 25m¹Ì¸¸ | 1,352 | 92,000 | |
| 24.01.11 | Àü | ÀÚ¿¬³ìÁö | - | 172 | 1,273 | |
| 24.01.11 | ´ä | »ý»ê³ìÁö | - | 615 | 1,860 | |
| 24.01.11 | ´ä | º¸Àü³ìÁö | 8m¹Ì¸¸ | 628 | 3,000 | |
| 24.01.11 | ´ä | »ý»ê³ìÁö | - | 2,060 | 6,230 | |
| 24.01.09 | ´ä | º¸Àü³ìÁö | - | 795 | 15,660 | |
| 24.01.09 | µµ·Î | »ý»ê³ìÁö | 8m¹Ì¸¸ | 12 | 1,800 | |
| 24.01.09 | µµ·Î | »ý»ê³ìÁö | 8m¹Ì¸¸ | 5 | 75 | |
| 24.01.09 | µµ·Î | »ý»ê³ìÁö | 12m¹Ì¸¸ | 4 | 60 | |
| 24.01.09 | µµ·Î | »ý»ê³ìÁö | 8m¹Ì¸¸ | 15 | 200 | |
| 24.01.08 | ´ä | ÀÚ¿¬³ìÁö | - | 3,281 | 50,000 | |
| 24.01.08 | ÀÓ¾ß | º¸Àü³ìÁö | 8m¹Ì¸¸ | 805 | 3,000 | ÁöºÐ |
| 24.01.08 | ´ë | Á¦2Á¾ÀϹÝÁÖ°Å | 8m¹Ì¸¸ | 281 | 17,100 | |
| 24.01.05 | ´ä | »ý»ê³ìÁö | 8m¹Ì¸¸ | 622 | 2,600 | |
| 24.01.05 | Àü | »ý»ê³ìÁö | 8m¹Ì¸¸ | 76 | 1,380 | ÁöºÐ |
| 24.01.05 | µµ·Î | ÀϹݰø¾÷ | 25m¹Ì¸¸ | 16 | 300 | ÁöºÐ |
| 24.01.05 | ´ä | »ý»ê³ìÁö | 8m¹Ì¸¸ | 2,997 | 6,000 | |
| 24.01.05 | Àü | ÀÚ¿¬³ìÁö | 12m¹Ì¸¸ | 733 | 5,600 | |
| 24.01.04 | °øÀå¿ëÁö | ÀÚ¿¬³ìÁö | 8m¹Ì¸¸ | 1,441 | 24,929 | |
| 24.01.03 | Àü | ÀÚ¿¬³ìÁö | - | 200 | 500 | |
| 24.01.03 | ´ä | ÀÚ¿¬³ìÁö | - | 2,182 | 26,400 | |
| 24.01.03 | Àü | ÀÚ¿¬³ìÁö | 8m¹Ì¸¸ | 254 | 3,100 | |
| 24.01.02 | Àü | °èȹ°ü¸® | 8m¹Ì¸¸ | 56 | 148 | |
| 24.01.02 | Àü | °èȹ°ü¸® | 8m¹Ì¸¸ | 307 | 1,330 | |
µî±âºÎµîº» ¿ä¾à(ÅäÁö)
| |
Á¢¼öÀÏÀÚ |
µî±â¸ñÀû/±Ç¸®ÀÚ |
±Ç¸®±Ý¾× |
±âÁØ |
| 1 |
2019³â1¿ù9ÀÏ |
¼ÒÀ¯±Ç
ÀÌOO
|
|
¼Ò¸ê |
| 2 |
2023³â5¿ù12ÀÏ |
±ÙÀú´ç±Ç
ÁßOOOO
|
96,000,000 |
¼Ò¸ê±âÁØ |
| 3 |
2025³â3¿ù4ÀÏ |
ÀÓÀǰæ¸Å
ÁßOOOO
|
|
¼Ò¸ê |
ÀÓÂ÷ÀÎÇöȲ (¹è´ç¿ä±¸Á¾±âÀÏ: 2025-05-15)
Á¶»çµÈ ÀÓÂ÷³»¿ªÀÌ ¾ø½À´Ï´Ù
|
¿©ÀÇÁÖ°æ¸Å Á¶¾ð ÇÑ ¸¶µð
³óÁöÃëµæÀÚ°ÝÁõ¸í¿ø Á¦ÃâÀ» Á¶°ÇÀ¸·Î ÇÏ´Â ¹°°ÇÀÔ´Ï´Ù Àü, ´ä, °ú¼ö¿ø µî ³óÁö´Â ³«ÂûÀϷκÎÅÍ 7ÀÏ À̳»¿¡ ³óÁöÃëµæÀÚ°ÝÁõ¸íÀ» ÇØ´ç°üû¿¡¼ ¹ß±Þ¹Þ¾Æ °æ¸Å¹ý¿ø¿¡ Á¦ÃâÇÏ¿©¾ß ÇÕ´Ï´Ù. ¹ÌÁ¦Ãâ½Ã¿¡´Â ³«ÂûÀÌ ºÒÇã°¡µÇ°í ÀÔÂûº¸Áõ±ÝÀÌ ¸ô¼öµÉ ¼ö ÀÖ½À´Ï´Ù. ÇØ´ç ³óÁö°¡ ºÒ¹ýÀü¿ë ¶Ç´Â ÇüÁúº¯°æÀÌ µÈ °æ¿ì ¿øÄ¢ÀûÀ¸·Î ³óÁöÃëµæÀÚ°ÝÁõ¸íÀ» ¹ß±Þ¹ÞÀ» ¼ö ¾øÀ¸³ª »çÈÄ Á¶°ÇºÎ·Î ¹ß±Þ¹ÞÀ» ¼öµµ ÀÖ½À´Ï´Ù. ³ó¾÷ÀÎÀÌ ¾Æ´Ï¾îµµ µÇ°í ¸Õ °Å¸®¿¡ °ÅÁÖÇϴ ŸÁöÀεµ ¹ß±ÞÀÌ °¡´ÉÇÕ´Ï´Ù. |
|
ÁÖÀÇ»çÇ× (ÃÖ¼±¼øÀ§ ¼³Á¤ÀÏ: 2023.5.12. ±ÙÀú´ç±Ç ¼³Á¤)
| ¸Å°¢À¸·Î ¼Ò¸êµÇÁö ¾Ê´Â µî±âºÎ±Ç¸®: |
| ¸Å°¢À¸·Î ¼³Á¤µÈ °ÍÀ¸·Î º¸´Â Áö»ó±Ç: |
|
³óÁöÃëµæÀÚ°ÝÁõ¸í Á¦Ãâ ¿äÇÔ(¹ÌÁ¦Ãâ½Ã ¸Å¼öº¸Áõ±Ý ¹Ì¹Ýȯ). º°Áö »ç½ÇÁ¶È¸È¸½Å¼ ÂüÁ¶ ¡Ø¹Ì³³°ü¸®ºñ(°ø¿ë) Àμö¿©ºÎ¸¦ ÀÔÂû Àü¿¡ È®ÀÎÇϽñ⠹ٶø´Ï´Ù
|
Áö¿ªºÐ¼®
| Çб³¸í |
ÀüȹøÈ£ |
ÁÖ¼Ò |
Á÷¼±°Å¸® |
| ¹ý¿ø |
´ë±¸Áö¹æ¹ý¿ø °æÁÖÁö¿ø (381-45)°æ»óºÏµµ °æÁֽà ȶû·Î 89 (µ¿ºÎµ¿ 203) ´ëÇ¥ : 054)770-4300, ¾ß°£ : 054)770-4380 °üÇÒÁö¿ª : °æÁֽà |
| µî±â¼Ò |
´ë±¸Áö¹æ¹ý¿ø °æÁÖÁö¿ø µî±â°è (´ëÇ¥:1544-0773, ÆÑ½º:(054)742-9346, °æºÏ °æÁֽà ȶû·Î 89 (µ¿ºÎµ¿ 203)) |
| ¼¼¹«¼ |
°æÁÖ¼¼¹«¼ (´ëÇ¥:054-779-12, ÆÑ½º:054-743-4408, °æ»óºÏµµ °æÁֽà ¿øÈ·Î 335 (¼ºµ¿µ¿)) |
Àαٳ«ÂûÅë°è
| ±â°£ |
¸Å°¢°Ç¼ö |
Æò±Õ°¨Á¤°¡ Æò±Õ¸Å°¢°¡ |
¸Å°¢°¡À² Æò±ÕÀ¯Âû¼ö |
| 3°³¿ù |
27°Ç |
164,820,358¿ø 66,733,490¿ø |
41% 3.1ȸ |
| 6°³¿ù |
65°Ç |
158,863,386¿ø 60,486,773¿ø |
39% 3.5ȸ |
| 12°³¿ù |
136°Ç |
176,398,052¿ø 68,128,114¿ø |
40% 3.5ȸ |
º» °æ¸ÅÁ¤º¸´Â ¹ý¿øÀÚ·á¿Í ÀÏÄ¡Çϵµ·Ï ÇÏ¿´À¸³ª ±Ç¸®»çÇ׺¯µ¿, ÀÔ·ÂÂø¿À µîÀÇ ¿øÀÎÀ¸·Î »ç½Ç°ú ´Ù¸¦ ¼ö ÀÖ½À´Ï´Ù.
ÀÌ¿ë¾à°ü¿¡ ÀǰЏéÃ¥Á¶°ÇÀ¸·Î Á¦°øµÊÀ» ¾Ë¸®¸ç, °æ¸ÅÀÔÂû½Ã ¹Ýµå½Ã °ü·Ã °øºÎ¸¦ ÀçÈ®ÀÎÇϽñ⠹ٶø´Ï´Ù.
º¸´Ù Æí¸®ÇÑ °æ¸ÅÁ¤º¸ Á¦°øÀ» À§ÇØ Áö¼ÓÀûÀ¸·Î °³¼±ÇϰڽÀ´Ï´Ù. ÀÌ¿ëÇØ Áּż °¨»çÇÕ´Ï´Ù.