·Î±×ÀÎ
119
¾ÆÆÄÆ®
´ëÀüÁö¹æ¹ý¿ø ¼­»êÁö¿ø
 °¨Á¤°¡83,000,000 ¿ø
 ÃÖÀú°¡(34%) 28,469,000 ¿ø
 º¸Áõ±Ý(10%) 2,846,900 ¿ø
 Ã»±¸¾×75,000,000 ¿ø
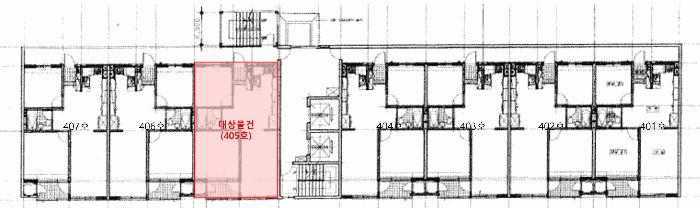
ÃæÃ»³²µµ ´çÁø½Ã ½Ã°îµ¿ 136-1 ¿ì¹Î´Ã»ç¶û¾ÆÆÄÆ® 103µ¿ 4Ãþ405È£
»ç°Ç¹øÈ£ 2025Ÿ°æ51124
°æ¸ÅÁ¾·ùºÎµ¿»ê°­Á¦°æ¸Å
¸Å°¢´ë»óÅäÁö ¹× °Ç¹°Àϰý ¸Å°¢
¸Å°¢±âÀÏ    2026.01.06(È­) 10:00 ÀÔÂû 12ÀÏÀü    
ÅäÁö¸éÀû30.11§³(9.11 Æò)
°Ç¹°¸éÀû59.94§³(18.13 Æò)
乫/¼ÒÀ¯ÀÚÁÖOOO OO / ÁÖOOO OO
ä±ÇÀÚÁÖOOOOOOO
ÆäÀ̽ººÏ Æ®À§ÅÍ ±¸±Û+
īī¿À½ºÅ丮
īī¿ÀÅå sms¹®ÀÚº¸³»±â
 

±âÀϳ»¿ª

°æ°ú ³¯Â¥ Àú°¨ ÃÖÀú°¡ °á°ú
Á¢¼öÀÏ 2025-03-13 °æ¸ÅÁ¢¼ö
~4ÀÏ 
2025-03-17 °æ¸Å°³½Ã°áÁ¤
~90ÀÏ 
2025-06-11 ¹è´ç¿ä±¸Á¾±âÀÏ
~187ÀÏ 
2025-09-16 100%
83,000,000
À¯Âû
~222ÀÏ 
2025-10-21 70%
58,100,000
À¯Âû
~257ÀÏ 
2025-11-25 49%
40,670,000
À¯Âû
~299ÀÏ 
2026-01-06 34%
28,469,000
ÁøÇà
¹°°Ç¸í¼¼¼­ ÇöȲÁ¶»ç¼­ ¹®°ÇÁ¢¼ö ¼Û´Þ³»¿ª

°¨Á¤Æò°¡ÇöȲ

¸ñ·Ï ÁÖ¼Ò ±¸Á¶/¿ëµµ/´ëÁö±Ç ¸éÀû ºñ°í
´ëÁö±Ç
½Ã°îµ¿ 136-1 26281ºÐÀÇ 30.11 30.11 §³
(9.11Æò)
°Ç¹°
½Ã°îµ¿ 136-1 103µ¿ 4Ãþ405È£ ö±ÙÄÜÅ©¸®Æ®±¸Á¶ 59.94 §³
(18.13Æò)
Âü°í
»çÇ×
- ÁÖÅõµ½Ãº¸Áõ°ø»ç´Â ÁÖÅÃÀÓÂ÷±ÇÀÚ ÇãÀ±ÀÇ ÁÖÅÃÀÓ´ëÂ÷º¸Áõ±Ý¹Ýȯä±Ç ¾ç¼öÀÎÀÓ. - ÁÖÅÃÀÓÂ÷±ÇÀÚ ÇãÀ±Àº ´ëÇ×·Â ÀÖ´Â ÀÓÂ÷ÀÎÀ¸·Î º¸Áõ±Ý Àü¾×À» ¹è´ç¹ÞÁö ¸øÇϸé, À»±¸ ¼øÀ§ 8¹ø ÁÖÅÃÀÓÂ÷±Ç¼³Á¤µî±â(2024. 2. 15.Á¢¼ö Á¦5051È£)´Â ¸»¼ÒµÇÁö ¾Ê°í º¸Áõ±Ý Àܾ×À» ¸Å¼öÀÎÀÌ ÀμöÇÔ.
°øºÎ¿Í

°ÇÃ๰ÇöȲ

¼ÒÀçÁö ÃæÃ»³²µµ ´çÁø½Ã ½Ã°îµ¿ 136-1¹øÁö
´ëÁö¸éÀû   ¿¬¸éÀû 18§³
(5.45Æò)
°ÇÃà¸éÀû 18§³
(5.45Æò)
¿ëÀû·ü»êÁ¤
¿¬¸éÀû
18§³
(5.45Æò)
°ÇÆóÀ²   ¿ëÀû·ü  
Áö»óÃþ¼ö 1Ãþ ÁöÇÏÃþ¼ö  
ÁÖ¿ëµµ °øµ¿ÁÖÅà ±¸Á¶ ±âŸ°­±¸Á¶
Âø°øÀÏÀÚ »ç¿ë½ÂÀÎÀÏÀÚ 2014.08.18
°ÇÃ๰Ãþº°ÇöȲ [º¸±â]


±¹ÅäºÎ½Ç°Å·¡°¡ ÃæÃ»³²µµ ´çÁø½Ã ½Ã°îµ¿

¡Ü ¸Å¸Å

¸éÀû(§³), ±Ý¾×(¸¸¿ø)

¡Ü Àü¼¼

¸éÀû(§³), ±Ý¾×(¸¸¿ø)

°è¾àÀÏARTÃþÀü¿ë±Ý¾×°ÇÃà
24.03.30¿ì¹Î´Ã»ç¶û1454.66,4002007
24.03.21¿ì¹Î´Ã»ç¶û554.66,4002007
24.03.16¿ì¹Î´Ã»ç¶û759.947,3002007
24.03.13¿ì¹Î´Ã»ç¶û559.946,9002007
24.03.06¿ì¹Î´Ã»ç¶û959.946,6002007
¢Ñ ´õº¸±â

µî±âºÎµîº» ¿ä¾à(°Ç¹°)

  Á¢¼öÀÏÀÚ µî±â¸ñÀû/±Ç¸®ÀÚ ±Ç¸®±Ý¾× ±âÁØ
1 2022³â2¿ù11ÀÏ
¼ÒÀ¯±Ç
(OOOO
¼Ò¸ê
2 2024³â2¿ù15ÀÏ
ÀÓÂ÷±Ç¼³Á¤
ÇãO
75,000,000 Àμö
3 2025³â3¿ù17ÀÏ
°­Á¦°æ¸Å
ÁÖOOOO
¼Ò¸ê±âÁØ

ÀÓÂ÷ÀÎÇöȲ (¹è´ç¿ä±¸Á¾±âÀÏ: 2025-06-11)

ÀÓÂ÷ÀÎ ¿ëµµ/Á¡À¯ º¸Áõ±Ý/¿ù¼¼ ´ëÇ×·Â
ÀüÀÔÀÏ/È®Á¤ÀÏ ¹è´ç¿ä±¸ ºñ°í
`OO ÀüÀ¯ºÎºÐÀüºÎ 75,000,000
O
2022. 2. 11.
2022. 2. 11.

¿©ÀÇÁÖ°æ¸Å Á¶¾ð ÇÑ ¸¶µð


ÁÖÀÇ»çÇ× (ÃÖ¼±¼øÀ§ ¼³Á¤ÀÏ: 2025. 3. 17. ¼³Á¤ °æ¸Å°³½Ã°áÁ¤)

¸Å°¢À¸·Î ¼Ò¸êµÇÁö ¾Ê´Â µî±âºÎ±Ç¸®: º¸Áõ±Ý Àü¾×À» ¹è´ç¹ÞÁö ¸øÇÒ °æ¿ì À»±¸ ¼øÀ§ 9¹ø ÁÖÅÃÀÓÂ÷±Ç¼³Á¤µî±â(2024. 2. 15.Á¢¼ö Á¦5051È£)
¸Å°¢À¸·Î ¼³Á¤µÈ °ÍÀ¸·Î º¸´Â Áö»ó±Ç:
- ÁÖÅõµ½Ãº¸Áõ°ø»ç´Â ÁÖÅÃÀÓÂ÷±ÇÀÚ ÇãÀ±ÀÇ ÁÖÅÃÀÓ´ëÂ÷º¸Áõ±Ý¹Ýȯä±Ç ¾ç¼öÀÎÀÓ. - ÁÖÅÃÀÓÂ÷±ÇÀÚ ÇãÀ±Àº ´ëÇ×·Â ÀÖ´Â ÀÓÂ÷ÀÎÀ¸·Î º¸Áõ±Ý Àü¾×À» ¹è´ç¹ÞÁö ¸øÇϸé, À»±¸ ¼øÀ§ 8¹ø ÁÖÅÃÀÓÂ÷±Ç¼³Á¤µî±â(2024. 2. 15.Á¢¼ö Á¦5051È£)´Â ¸»¼ÒµÇÁö ¾Ê°í º¸Áõ±Ý Àܾ×À» ¸Å¼öÀÎÀÌ ÀμöÇÔ.
¡Ø¹Ì³³°ü¸®ºñ(°ø¿ë) Àμö¿©ºÎ¸¦ ÀÔÂû Àü¿¡ È®ÀÎÇϽñ⠹ٶø´Ï´Ù

 

Áö¿ªºÐ¼®

ÁöÇÏö¸í Á÷¼±°Å¸®

Çб³¸í ÀüÈ­¹øÈ£ ÁÖ¼Ò Á÷¼±°Å¸®

¹ý¿ø

´ëÀüÁö¹æ¹ý¿ø ¼­»êÁö¿ø (319-88)ÃæÃ»³²µµ ¼­»ê½Ã °ø¸²4·Î 24 (¿¹Ãµµ¿ 600)
´ëÇ¥ : 041)660-0600, ¾ß°£ : 041)660-0725~6
°üÇÒÁö¿ª : ¼­»ê½Ã, ´çÁø½Ã, žȱº

µî±â¼Ò    (´ëÇ¥:, ÆÑ½º:, )
¼¼¹«¼­ ¿¹»ê¼¼¹«¼­ (´ëÇ¥:041-330-52, ÆÑ½º:041-335-2003, ÃæÃ»³²µµ ¿¹»ê±º ¿À°¡¸é À±ºÀ±æ·Î 1883)

Àαٳ«ÂûÅë°è

±â°£ ¸Å°¢°Ç¼ö Æò±Õ°¨Á¤°¡
Æò±Õ¸Å°¢°¡
¸Å°¢°¡À²
Æò±ÕÀ¯Âû¼ö
3°³¿ù 35°Ç 128,885,714¿ø
87,412,840¿ø
71%
1.8ȸ
6°³¿ù 61°Ç 150,588,000¿ø
100,317,092¿ø
69%
2ȸ
12°³¿ù 107°Ç 167,629,131¿ø
110,365,203¿ø
68%
2.3ȸ


º» °æ¸ÅÁ¤º¸´Â ¹ý¿øÀÚ·á¿Í ÀÏÄ¡Çϵµ·Ï ÇÏ¿´À¸³ª ±Ç¸®»çÇ׺¯µ¿, ÀÔ·ÂÂø¿À µîÀÇ ¿øÀÎÀ¸·Î »ç½Ç°ú ´Ù¸¦ ¼ö ÀÖ½À´Ï´Ù. ÀÌ¿ë¾à°ü¿¡ ÀǰЏéÃ¥Á¶°ÇÀ¸·Î Á¦°øµÊÀ» ¾Ë¸®¸ç, °æ¸ÅÀÔÂû½Ã ¹Ýµå½Ã °ü·Ã °øºÎ¸¦ ÀçÈ®ÀÎÇϽñ⠹ٶø´Ï´Ù. º¸´Ù Æí¸®ÇÑ °æ¸ÅÁ¤º¸ Á¦°øÀ» À§ÇØ Áö¼ÓÀûÀ¸·Î °³¼±ÇϰڽÀ´Ï´Ù. ÀÌ¿ëÇØ Áּż­ °¨»çÇÕ´Ï´Ù.