·Î±×ÀÎ
409
´Ù¼¼´ë(ºô¶ó)
ÀÎõÁö¹æ¹ý¿ø ºÎõÁö¿ø
 °¨Á¤°¡168,000,000 ¿ø
 ÃÖÀú°¡(49%) 82,320,000 ¿ø
 º¸Áõ±Ý(10%) 8,232,000 ¿ø
 Ã»±¸¾×24,228,654 ¿ø
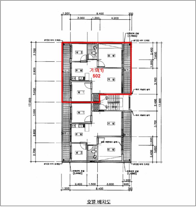
°æ±âµµ ºÎõ½Ã ¿ø¹Ì±¸ ¿ø¹Ìµ¿ 55-3 »ï¼º±×¸°ºô¶ó 5Ãþ 502È£
»ç°Ç¹øÈ£ 2025Ÿ°æ32775
°æ¸ÅÁ¾·ùºÎµ¿»ê°­Á¦°æ¸Å
¸Å°¢´ë»óÅäÁö ¹× °Ç¹°Àϰý ¸Å°¢
¸Å°¢±âÀÏ    2025.12.02(È­) 10:00 ÀÔÂû 27ÀÏÀü    
ÅäÁö¸éÀû30.21§³(9.14 Æò)
°Ç¹°¸éÀû59.79§³(18.09 Æò)
乫/¼ÒÀ¯ÀÚ³ªOO / ³ªOO
ä±ÇÀÚ°æOOOOOOO
ÆäÀ̽ººÏ Æ®À§ÅÍ ±¸±Û+
īī¿À½ºÅ丮
īī¿ÀÅå sms¹®ÀÚº¸³»±â
 

±âÀϳ»¿ª

°æ°ú ³¯Â¥ Àú°¨ ÃÖÀú°¡ °á°ú
Á¢¼öÀÏ 2025-03-03 °æ¸ÅÁ¢¼ö
~1ÀÏ 
2025-03-04 °æ¸Å°³½Ã°áÁ¤
~92ÀÏ 
2025-06-03 ¹è´ç¿ä±¸Á¾±âÀÏ
~197ÀÏ 
2025-09-16 100%
168,000,000
À¯Âû
~239ÀÏ 
2025-10-28 70%
117,600,000
À¯Âû
~274ÀÏ 
2025-12-02 49%
82,320,000
ÁøÇà
¹°°Ç¸í¼¼¼­ ÇöȲÁ¶»ç¼­ ¹®°ÇÁ¢¼ö ¼Û´Þ³»¿ª

°¨Á¤Æò°¡ÇöȲ

¸ñ·Ï ÁÖ¼Ò ±¸Á¶/¿ëµµ/´ëÁö±Ç ¸éÀû ºñ°í
´ëÁö±Ç
¿ø¹Ìµ¿ 55-3 273.7ºÐÀÇ 30.209 30.209 §³
(9.14Æò)
°Ç¹°
¿ø¹Ìµ¿ 55-3 5Ãþ 502È£ ö±ÙÄÜÅ©¸®Æ®Á¶ 59.79 §³
(18.09Æò)

°ÇÃ๰ÇöȲ

¼ÒÀçÁö °æ±âµµ ºÎõ½Ã ¿ø¹Ì±¸ ¿ø¹Ìµ¿ 55-3¹øÁö
´ëÁö¸éÀû 273.7§³
(82.94Æò)
¿¬¸éÀû 591.39§³
(179.21Æò)
°ÇÃà¸éÀû 136.06§³
(41.23Æò)
¿ëÀû·ü»êÁ¤
¿¬¸éÀû
591.39§³
(179.21Æò)
°ÇÆóÀ² 49.71% ¿ëÀû·ü 216.07%
Áö»óÃþ¼ö 5Ãþ ÁöÇÏÃþ¼ö  
ÁÖ¿ëµµ °øµ¿ÁÖÅà ±¸Á¶ ö±ÙÄÜÅ©¸®Æ®±¸Á¶
Âø°øÀÏÀÚ 2000.09.19 »ç¿ë½ÂÀÎÀÏÀÚ 2001.01.08
°ÇÃ๰Ãþº°ÇöȲ [º¸±â]


µî±âºÎµîº» ¿ä¾à(°Ç¹°)

  Á¢¼öÀÏÀÚ µî±â¸ñÀû/±Ç¸®ÀÚ ±Ç¸®±Ý¾× ±âÁØ
1 2008³â7¿ù11ÀÏ
¼ÒÀ¯±Ç
³ªOO
¼Ò¸ê
2 2016³â7¿ù15ÀÏ
±ÙÀú´ç±Ç
(OOOO
117,600,000 ¼Ò¸ê±âÁØ
3 2023³â6¿ù20ÀÏ
°¡¾Ð·ù
°æOOOO
20,000,000 ¼Ò¸ê
4 2025³â3¿ù4ÀÏ
°­Á¦°æ¸Å
°æOOOO
¼Ò¸ê

ÀÓÂ÷ÀÎÇöȲ (¹è´ç¿ä±¸Á¾±âÀÏ: 2025-06-03)


Á¶»çµÈ ÀÓÂ÷³»¿ªÀÌ ¾ø½À´Ï´Ù


¿©ÀÇÁÖ°æ¸Å Á¶¾ð ÇÑ ¸¶µð

ÃëÇÏ ¶Ç´Â Ãë¼ÒµÉ °¡´É¼º ÀÖ½À´Ï´Ù
ÀÌ ¹°°ÇÀÇ °¨Á¤°¡°ÝÀº 168,000,000¿øÀÔ´Ï´Ù. °æ¸Å¸¦ ½ÅûÇÑ Ã¤±ÇÀÚ°¡ ¹è´ç ¹Þ¾Æ¾ß ÇÒ ±Ý¾×Àº 24,228,654¿øÀ¸·Î °¨Á¤°¡°Ý ´ëºñ »ó´çÈ÷ ÀûÀº ±Ý¾×ÀÔ´Ï´Ù. ÀÌ·± °æ¿ì, 乫°¡°¡ º¯Á¦ÇÏ¿© °æ¸Å¸¦ ÃëÇϽÃŰ°Å³ª °æ¸Å½Åûä±ÇÀÚ°¡ ¹è´ç¹ÞÀº ±Ý¿øÀÌ ¾ø°ÔµÇ¾î À̸¥ ¹Ù "¹«À׿©¿¡ ÀÇÇÑ Ãë¼Ò"°¡ µÉ °¡´É¼ºÀÌ ÀÖ½À´Ï´Ù.

ÁÖÀÇ»çÇ× (ÃÖ¼±¼øÀ§ ¼³Á¤ÀÏ: 2016.7.15. ±ÙÀú´ç±Ç ¼³Á¤)

¸Å°¢À¸·Î ¼Ò¸êµÇÁö ¾Ê´Â µî±âºÎ±Ç¸®:
¸Å°¢À¸·Î ¼³Á¤µÈ °ÍÀ¸·Î º¸´Â Áö»ó±Ç:
¡Ø¹Ì³³°ü¸®ºñ(°ø¿ë) Àμö¿©ºÎ¸¦ ÀÔÂû Àü¿¡ È®ÀÎÇϽñ⠹ٶø´Ï´Ù

 

Áö¿ªºÐ¼®

ÁöÇÏö¸í Á÷¼±°Å¸®

Çб³¸í ÀüÈ­¹øÈ£ ÁÖ¼Ò Á÷¼±°Å¸®

¹ý¿ø

ÀÎõÁö¹æ¹ý¿ø ºÎõÁö¿ø (146-02)°æ±âµµ ºÎõ½Ã ¿ø¹Ì±¸ »óÀÏ·Î 129(»óµ¿)
´ëÇ¥ : 032)320-1114, ¹Î¿ø : 032)320-1234
°üÇÒÁö¿ª : ºÎõ½Ã, ±èÆ÷½Ã

µî±â¼Ò ÀÎõÁö¹æ¹ý¿ø ºÎõÁö¿ø µî±â°ú (´ëÇ¥:1544-0773, ÆÑ½º:(032)320-1484, 320-1485, °æ±âµµ ºÎõ½Ã »óÀÏ·Î 129 (»óµ¿ 445-1))
¼¼¹«¼­ ¼¼¹«¼­ (´ëÇ¥:, ÆÑ½º:, )

Àαٳ«ÂûÅë°è

±â°£ ¸Å°¢°Ç¼ö Æò±Õ°¨Á¤°¡
Æò±Õ¸Å°¢°¡
¸Å°¢°¡À²
Æò±ÕÀ¯Âû¼ö
3°³¿ù 9°Ç 185,666,667¿ø
137,161,233¿ø
73%
1.3ȸ
6°³¿ù 13°Ç 194,615,385¿ø
156,426,161¿ø
78%
1.2ȸ
12°³¿ù 14°Ç 199,285,714¿ø
164,717,150¿ø
80%
1.1ȸ


º» °æ¸ÅÁ¤º¸´Â ¹ý¿øÀÚ·á¿Í ÀÏÄ¡Çϵµ·Ï ÇÏ¿´À¸³ª ±Ç¸®»çÇ׺¯µ¿, ÀÔ·ÂÂø¿À µîÀÇ ¿øÀÎÀ¸·Î »ç½Ç°ú ´Ù¸¦ ¼ö ÀÖ½À´Ï´Ù. ÀÌ¿ë¾à°ü¿¡ ÀǰЏéÃ¥Á¶°ÇÀ¸·Î Á¦°øµÊÀ» ¾Ë¸®¸ç, °æ¸ÅÀÔÂû½Ã ¹Ýµå½Ã °ü·Ã °øºÎ¸¦ ÀçÈ®ÀÎÇϽñ⠹ٶø´Ï´Ù. º¸´Ù Æí¸®ÇÑ °æ¸ÅÁ¤º¸ Á¦°øÀ» À§ÇØ Áö¼ÓÀûÀ¸·Î °³¼±ÇϰڽÀ´Ï´Ù. ÀÌ¿ëÇØ Áּż­ °¨»çÇÕ´Ï´Ù.