·Î±×ÀÎ
166
´Ù¼¼´ë(ºô¶ó)
¼­¿ïºÏºÎÁö¹æ¹ý¿ø
 °¨Á¤°¡284,000,000 ¿ø
 ÃÖÀú°¡(51%) 145,408,000 ¿ø
 º¸Áõ±Ý(10%) 14,540,800 ¿ø
 Ã»±¸¾×285,000,000 ¿ø
¼­¿ïƯº°½Ã °­ºÏ±¸ ÀμöºÀ·Î51±æ 4, 5Ãþ502È£ (¼öÀ¯µ¿,±×·£µåij½½)
¼­¿ïƯº°½Ã °­ºÏ±¸ ¼öÀ¯µ¿ 441-60
»ç°Ç¹øÈ£ 2024Ÿ°æ122688
°æ¸ÅÁ¾·ùºÎµ¿»ê°­Á¦°æ¸Å
¸Å°¢´ë»óÅäÁö ¹× °Ç¹°Àϰý ¸Å°¢
¸Å°¢±âÀÏ    2026.01.13(È­) 10:00 ÀÔÂû 23ÀÏÀü    
ÅäÁö¸éÀû33.27§³(10.06 Æò)
°Ç¹°¸éÀû56.79§³(17.18 Æò)
乫/¼ÒÀ¯ÀÚÀÌOO / ÀÌOO
ä±ÇÀÚÁÖOOOOOOO
ÆäÀ̽ººÏ Æ®À§ÅÍ ±¸±Û+
īī¿À½ºÅ丮
īī¿ÀÅå sms¹®ÀÚº¸³»±â
 

±âÀϳ»¿ª

°æ°ú ³¯Â¥ Àú°¨ ÃÖÀú°¡ °á°ú
Á¢¼öÀÏ 2024-12-05 °æ¸ÅÁ¢¼ö
~4ÀÏ 
2024-12-09 °æ¸Å°³½Ã°áÁ¤
~81ÀÏ 
2025-02-24 ¹è´ç¿ä±¸Á¾±âÀÏ
~285ÀÏ 
2025-09-16 100%
284,000,000
À¯Âû
~322ÀÏ 
2025-10-23 80%
227,200,000
À¯Âû
~362ÀÏ 
2025-12-02 64%
181,760,000
À¯Âû
~404ÀÏ 
2026-01-13 51%
145,408,000
ÁøÇà
¹°°Ç¸í¼¼¼­ ÇöȲÁ¶»ç¼­ ¹®°ÇÁ¢¼ö ¼Û´Þ³»¿ª

°¨Á¤Æò°¡ÇöȲ

¸ñ·Ï ÁÖ¼Ò ±¸Á¶/¿ëµµ/´ëÁö±Ç ¸éÀû ºñ°í
´ëÁö±Ç
¼öÀ¯µ¿ 441-60 343ºÐÀÇ 33.27 33.27 §³
(10.06Æò)
°Ç¹°
¼öÀ¯µ¿ 441-60 5Ãþ502È£ ö±ÙÄÜÅ©¸®Æ®±¸Á¶ 56.79 §³
(17.18Æò)
1) À§Ä¡/µµ½ÃÁö¿ª/Á¦2Á¾ÀϹÝÁÖ°ÅÁö¿ª/Â÷·®ÀÇ Á¢±ÙÀÌ °¡´É/³ë¼±¹ö½ºÁ¤·ùÀå/ö±ÙÄÜÅ©¸®Æ®±¸Á¶/Æò½½·¡ºêÁöºØ ´õº¸±â
°¨Á¤Æò°¡ ¿äÇ×Ç¥
1)À§Ä¡ ¹× ÁÖÀ§È¯°æ
º»°ÇÀº ¼­¿ïƯº°½Ã °­ºÏ±¸ ¼öÀ¯µ¿ ¼ÒÀç "ÇѽŴëÇб³½ÅÇдëÇпø" ºÏÃø Àαٿ¡ À§Ä¡Çϰí ÀÖÀ¸¸ç, º»°Ç ÁÖÀ§´Â ´Üµ¶¡¤ ´Ù¼¼´ëÁÖÅÃ, ±Ù¸°»ýȰ½Ã¼³, Çб³ µîÀÌ È¥ÀçÇÏ´Â Áö¿ªÀ¸·Î Á¦¹Ý ÁÖÀ§È¯°æ º¸Åë½ÃµÊ.
2)±³Åë»óȲ
º»°Ç±îÁö Á¦¹Ý Â÷·®ÀÇ Á¢±ÙÀÌ °¡´ÉÇϸç, Àαٿ¡ ¿ìÀ̽ż³¼± "È­°è¿ª" ¹× ³ë¼±¹ö½ºÁ¤·ùÀåÀÌ ¼ÒÀçÇÏ´Â µî ±³Åë»óȲÀº º¸Åë½Ã µÊ.
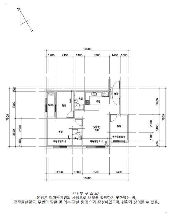
3)°Ç¹°ÀÇ ±¸Á¶
ö±ÙÄÜÅ©¸®Æ®±¸Á¶ Æò½½·¡ºêÁöºØ 5Ãþ °Ç¹° ³» Á¦5Ãþ Á¦502È£·Î¼­
¿Üº®: µ¹ºÙÀÓ ¸¶°¨ µî, âȣ: »õ½Ãâȣ µî ÀÓ.
4)ÀÌ¿ë»óÅÂ
µµ½ÃÇü»ýȰÁÖÅÃ(´ÜÁöÇü ´Ù¼¼´ëÁÖÅÃ)À¸·Î ÀÌ¿ë ÁßÀÓ.(Èĸé "°Ç¹°°³È²µµ" ÂüÁ¶)
5)¼³ºñ³»¿ª
³­¹æ¼³ºñ, À§»ý¼³ºñ ¹× ±Þ¹è¼ö¼³ºñ µîÀÌ µÇ¾îÀÖÀ½.
6)ÅäÁöÀÇ Çü»ó ¹× ÀÌ¿ë»óÅÂ
ÀÎÁ¢ ÇÊÁö ´ëºñ µî°íÆòźÇÑ »ç´Ù¸®ÇüÀÇ ÅäÁö·Î¼­ ÇöȲ µµ½ÃÇü»ýȰÁÖÅà °ÇºÎÁö·Î¼­ ÀÌ¿ëÁßÀÓ.
7)ÀÎÁ¢ µµ·Î»óŵî
º»°Ç µ¿ÃøÀ¸·Î ¾à20¹ÌÅÍ, ³²ÃøÀ¸·Î ¾à4¹ÌÅÍ ³»¿ÜÀÇ µµ·Î¿Í Á¢ÇÔ.
8)ÅäÁöÀÌ¿ë°èȹ ¹× Á¦ÇÑ»óÅÂ
µµ½ÃÁö¿ª, Á¦2Á¾ÀϹÝÁÖ°ÅÁö¿ª(7ÃþÀÌÇÏ), °íµµÁö±¸(28mÀÌÇÏ), Áß·Î1·ù(Æø 20m-25m)(Á¢ÇÕ) °¡Ãà»çÀ°Á¦Çѱ¸¿ª<°¡ÃàºÐ´¢ÀÇ °ü¸® ¹× À̿뿡 °üÇÑ ¹ý·ü>, »ó´ëº¸È£±¸¿ª(ÃÖÁ¾È®ÀÎÀº°üÇÒ±³À°Ã»¿¡È®ÀÎ)<±³À°È¯°æ º¸È£¿¡ °üÇÑ ¹ý·ü>, ´ë°ø¹æ¾îÇùÁ¶±¸¿ª(77-257m)<±º»ç±âÁö ¹× ±º»ç½Ã¼³ º¸È£¹ý>, °ú¹Ð¾ïÁ¦±Ç¿ª<¼öµµ±ÇÁ¤ºñ°èȹ¹ý>ÀÓ.
9)°øºÎ¿ÍÀÇ Â÷ÀÌ
¾ø À½.

10)±âŸÂü°í»çÇ×(ÀÓ´ë°ü·Ê ¹× ±âŸ)
º»°Ç ÇöÀåÁ¶»ç½Ã Æó¹®ºÎÀç µîÀ¸·Î °ÇÃ๰ÇöȲµµ, À¯»ç°¨Á¤Æò°¡Àü·Ê, ¿ÜºÎ°üÂû ¹× ޹®Á¶»ç µîÀ» Á¾ÇÕ °í·ÁÇÏ¿© Æò°¡ÇÏ¿´À¸¹Ç·Î °æ¸ÅÁøÇà½Ã Âü°íÇϱâ¹Ù¶÷.
ÀÓ´ë³»¿ªÀº ¹Ì»óÀÓ.
Âü°í
»çÇ×

* °øµ¿ÃâÀÔ¹®ÀÌ Àá°Ü ÀÖ°í, È£ÃâÇÏ¿´À¸³ª

°ÇÃ๰ÇöȲ

¼ÒÀçÁö ¼­¿ïƯº°½Ã °­ºÏ±¸ ¼öÀ¯µ¿ 441-60¹øÁö
´ëÁö¸éÀû 322§³
(97.58Æò)
¿¬¸éÀû 643.82§³
(195.1Æò)
°ÇÃà¸éÀû 192.35§³
(58.29Æò)
¿ëÀû·ü»êÁ¤
¿¬¸éÀû
643.82§³
(195.1Æò)
°ÇÆóÀ² 59.74% ¿ëÀû·ü 199.94%
Áö»óÃþ¼ö 5Ãþ ÁöÇÏÃþ¼ö  
ÁÖ¿ëµµ °øµ¿ÁÖÅà ±¸Á¶ ö±ÙÄÜÅ©¸®Æ®±¸Á¶
Âø°øÀÏÀÚ 2014.03.03 »ç¿ë½ÂÀÎÀÏÀÚ 2014.07.11
°ÇÃ๰Ãþº°ÇöȲ [º¸±â]


±¹ÅäºÎ½Ç°Å·¡°¡ ¼­¿ïƯº°½Ã °­ºÏ±¸ ¼öÀ¯µ¿

¡Ü ¸Å¸Å

¸éÀû(§³), ±Ý¾×(¸¸¿ø)

¡Ü Àü¼¼

¸éÀû(§³), ±Ý¾×(¸¸¿ø)

°è¾àÀϰǹ°¸íĪÃþ¿¬¸éÀû´ëÁö±Ý¾×°ÇÃà
24.03.30µå¸²Å¸¿î¥±443.9522.02116,0002002
24.03.30¼º¿ì½ºÅ¸ÆÓ¸®½º6µ¿252.3528.905429,0002014
24.03.30°ñµçºô229.9920.90317,5002016
24.03.30¿¹¿òÇϿ콺529.9918.921,7002023
24.03.29ÁøÁÖ(C)-126.3125.628,3001990
¢Ñ ´õº¸±â

µî±âºÎµîº» ¿ä¾à(°Ç¹°)

  Á¢¼öÀÏÀÚ µî±â¸ñÀû/±Ç¸®ÀÚ ±Ç¸®±Ý¾× ±âÁØ
1 2021³â6¿ù2ÀÏ
¼ÒÀ¯±Ç
ÀÌOO
¼Ò¸ê
2 2021³â8¿ù5ÀÏ
¾Ð·ù
±¹
¼Ò¸ê±âÁØ
3 2021³â11¿ù17ÀÏ
¾Ð·ù
´ëOOOO
¼Ò¸ê
4 2021³â12¿ù9ÀÏ
¾Ð·ù
µ¿O
¼Ò¸ê
5 2021³â12¿ù10ÀÏ
¾Ð·ù
ÁßO
¼Ò¸ê
6 2023³â2¿ù20ÀÏ
¾Ð·ù
°­OO
¼Ò¸ê
7 2023³â5¿ù25ÀÏ
ÀÓÂ÷±Ç¼³Á¤
±èOO
285,000,000 ¼Ò¸ê
8 2023³â6¿ù29ÀÏ
¾Ð·ù
±¹OOOO
¼Ò¸ê
9 2024³â4¿ù11ÀÏ
°¡¾Ð·ù
ÁÖOOOO
20,000,000 ¼Ò¸ê
10 2024³â12¿ù9ÀÏ
°­Á¦°æ¸Å
ÁÖOOOO
¼Ò¸ê

ÀÓÂ÷ÀÎÇöȲ (¹è´ç¿ä±¸Á¾±âÀÏ: 2025-02-24)

ÀÓÂ÷ÀÎ ¿ëµµ/Á¡À¯ º¸Áõ±Ý/¿ù¼¼ ´ëÇ×·Â
ÀüÀÔÀÏ/È®Á¤ÀÏ ¹è´ç¿ä±¸ ºñ°í
±èOO Á¦5ÃþÁ¦502È£ 285,000,000
O
2021.05.14.
2021.04.27.
2021.05.14.~
ºñ°í
(¸Å°¢¹°°Ç
¸í¼¼¼­)
±èÁöÀº:1. ÁÖÅõµ½Ãº¸Áõ°ø»ç¿¡°Ô º¸Áõ±Ý¹Ýȯä±Ç ¹× ÁÖÅÃÀÓÂ÷±ÇÀڷμ­ ±Ç¸®¸¦ ¾çµµÇÔ 2. ÁÖÅõµ½Ãº¸Áõ°ø»ç´Â ÀÓ´ëÂ÷º¸Áõ±Ý¹Ýȯä±Ç Àü¾×À» ¹è´ç¹ÞÁö ¸øÇÏ´õ¶óµµ ¸Å¼öÀο¡ ´ëÇÑ ÀÜÁ¸ ÀÓ´ëÂ÷º¸Áõ±Ý¹Ýȯ û±¸±ÇÀ» Æ÷ ±âÇϰí ÀÓÂ÷±Çµî±â¸¦ ¸»¼ÒÇÏ´Â °Í¿¡ µ¿ÀÇÇÔ(2025.07.29.ÀÚ È®¾à¼­)

¿©ÀÇÁÖ°æ¸Å Á¶¾ð ÇÑ ¸¶µð


ÁÖÀÇ»çÇ× (ÃÖ¼±¼øÀ§ ¼³Á¤ÀÏ: 2021.08.05. ¾Ð·ù ¼³Á¤)

¸Å°¢À¸·Î ¼Ò¸êµÇÁö ¾Ê´Â µî±âºÎ±Ç¸®:
¸Å°¢À¸·Î ¼³Á¤µÈ °ÍÀ¸·Î º¸´Â Áö»ó±Ç:
¡Ø¹Ì³³°ü¸®ºñ(°ø¿ë) Àμö¿©ºÎ¸¦ ÀÔÂû Àü¿¡ È®ÀÎÇϽñ⠹ٶø´Ï´Ù

 

Áö¿ªºÐ¼®

ÁöÇÏö¸í Á÷¼±°Å¸®

Çб³¸í ÀüÈ­¹øÈ£ ÁÖ¼Ò Á÷¼±°Å¸®

¹ý¿ø

¼­¿ïºÏºÎÁö¹æ¹ý¿ø (013-22)¼­¿ïƯº°½Ã µµºÀ±¸ ¸¶µé·Î749 (µµºÀ2µ¿ 626)
´ëÇ¥ : 02)910-3114
°üÇÒÁö¿ª : °­ºÏ±¸, ³ë¿ø±¸, µµºÀ±¸, µ¿´ë¹®±¸, ¼ººÏ±¸, Áß¶û±¸

µî±â¼Ò ¼­¿ïºÏºÎÁö¹æ¹ý¿ø º»¿ø µî±â±¹ (´ëÇ¥:1544-0773, ÆÑ½º:(02)2030-2330, ¼­¿ïƯº°½Ã µµºÀ±¸ ³ëÇØ·Î 325 (⵿ 337¹øÁö))
¼¼¹«¼­ µµºÀ¼¼¹«¼­ (´ëÇ¥:02-944-020, ÆÑ½º:02-984-2580, ¼­¿ïƯº°½Ã °­ºÏ±¸ µµºÀ·Î 117 (¹Ì¾Æµ¿))

Àαٳ«ÂûÅë°è

±â°£ ¸Å°¢°Ç¼ö Æò±Õ°¨Á¤°¡
Æò±Õ¸Å°¢°¡
¸Å°¢°¡À²
Æò±ÕÀ¯Âû¼ö
3°³¿ù 32°Ç 242,929,688¿ø
184,614,691¿ø
76%
3.9ȸ
6°³¿ù 62°Ç 243,757,258¿ø
193,249,887¿ø
80%
3.1ȸ
12°³¿ù 112°Ç 238,102,232¿ø
183,030,334¿ø
77%
3.3ȸ


º» °æ¸ÅÁ¤º¸´Â ¹ý¿øÀÚ·á¿Í ÀÏÄ¡Çϵµ·Ï ÇÏ¿´À¸³ª ±Ç¸®»çÇ׺¯µ¿, ÀÔ·ÂÂø¿À µîÀÇ ¿øÀÎÀ¸·Î »ç½Ç°ú ´Ù¸¦ ¼ö ÀÖ½À´Ï´Ù. ÀÌ¿ë¾à°ü¿¡ ÀǰЏéÃ¥Á¶°ÇÀ¸·Î Á¦°øµÊÀ» ¾Ë¸®¸ç, °æ¸ÅÀÔÂû½Ã ¹Ýµå½Ã °ü·Ã °øºÎ¸¦ ÀçÈ®ÀÎÇϽñ⠹ٶø´Ï´Ù. º¸´Ù Æí¸®ÇÑ °æ¸ÅÁ¤º¸ Á¦°øÀ» À§ÇØ Áö¼ÓÀûÀ¸·Î °³¼±ÇϰڽÀ´Ï´Ù. ÀÌ¿ëÇØ Áּż­ °¨»çÇÕ´Ï´Ù.