·Î±×ÀÎ
452
±Ù¸°½Ã¼³
¼ö¿øÁö¹æ¹ý¿ø ÆòÅÃÁö¿ø
 °¨Á¤°¡502,853,400 ¿ø
 ÃÖÀú°¡(70%) 351,997,380 ¿ø
 º¸Áõ±Ý(10%) 35,199,738 ¿ø
 Ã»±¸¾×339,608,939 ¿ø
°æ±âµµ ÆòÅýà ¾ÈÁßÀ¾ ÇöÈ­¸® 313
»ç°Ç¹øÈ£ 2025Ÿ°æ97
°æ¸ÅÁ¾·ùºÎµ¿»êÀÓÀǰæ¸Å
¸Å°¢´ë»óÅäÁö ¹× °Ç¹°Àϰý¸Å°¢
¸Å°¢±âÀÏ    2025.11.03(¿ù) 10:00    
ÅäÁö¸éÀû119.00§³(36.00 Æò)
°Ç¹°¸éÀû237.59§³(71.87 Æò)
乫/¼ÒÀ¯ÀÚÃÖOO / ÃÖOO
ä±ÇÀÚ³óOOO OOOO
ÆäÀ̽ººÏ Æ®À§ÅÍ ±¸±Û+
īī¿À½ºÅ丮
īī¿ÀÅå sms¹®ÀÚº¸³»±â
 

±âÀϳ»¿ª

°æ°ú ³¯Â¥ Àú°¨ ÃÖÀú°¡ °á°ú
Á¢¼öÀÏ 2025-01-08 °æ¸ÅÁ¢¼ö
~1ÀÏ 
2025-01-09 °æ¸Å°³½Ã°áÁ¤
~90ÀÏ 
2025-04-08 ¹è´ç¿ä±¸Á¾±âÀÏ
~250ÀÏ 
2025-09-15 100%
502,853,400
À¯Âû
~299ÀÏ 
2025-11-03 70%
351,997,380
º¯°æ
¹°°Ç¸í¼¼¼­ ÇöȲÁ¶»ç¼­ ¹®°ÇÁ¢¼ö ¼Û´Þ³»¿ª

°¨Á¤Æò°¡ÇöȲ

¸ñ·Ï ÁÖ¼Ò ±¸Á¶/¿ëµµ/´ëÁö±Ç ¸éÀû ºñ°í
ÅäÁö
ÇöÈ­¸® 313 Àü 119 §³
(36.00Æò)
°Ç¹°
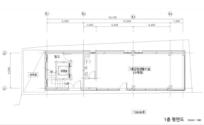
ÇöÈ­¸® 313 1Ãþ ±Ù¸°»ýȰ½Ã¼³ ö±ÙÄÜÅ©¸®Æ®±¸Á¶ 69.75 §³
(21.10Æò)
 
ÇöÈ­¸® 313 2Ãþ ±Ù¸°»ýȰ½Ã¼³ ö±ÙÄÜÅ©¸®Æ®±¸Á¶ 63.91 §³
(19.33Æò)
 
ÇöÈ­¸® 313 3Ãþ ±Ù¸°»ýȰ½Ã¼³ ö±ÙÄÜÅ©¸®Æ®±¸Á¶ 63.91 §³
(19.33Æò)
 
ÇöÈ­¸® 313 4Ãþ ±Ù¸°»ýȰ½Ã¼³ ö±ÙÄÜÅ©¸®Æ®±¸Á¶ 40.02 §³
(12.11Æò)
 
1) À§Ä¡/Á¦1Á¾ÀϹÝÁÖ°ÅÁö¿ª/¹ö½ºÁ¤·ùÀå/ö±ÙÄÜÅ©¸®Æ®±¸Á¶ ´õº¸±â
°¨Á¤Æò°¡ ¿äÇ×Ç¥
1)À§Ä¡ ¹× ÁÖÀ§È¯°æ
º»°ÇÀº °æ±âµµ ÆòÅýà ¾ÈÁßÀ¾ ÇöÈ­¸® ¼ÒÀç "¾ÈÁß°íµîÇб³" ºÏÃø Àαٿ¡ ¼ÒÀçÇϸç, º»°Ç ÁÖÀ§´Â ÀúÃþÀÇ ´Üµ¶ÁÖÅà ¹× ´Ù°¡±¸ÁÖÅÃ, ³ëº¯»ó°¡ µîÀÌ È¥ÀçÇÏ´Â Áö¿ªÀ¸·Î¼­ Á¦¹Ý ÁÖÀ§È¯°æÀº ´ëü·Î ¹«³­ÇÔ.
2)±³Åë»óȲ
º»°Ç±îÁö Â÷·® ÁøÃâÀÔ ÀÚÀ¯·Î¿ì¸ç, Àα٠¹ö½ºÁ¤·ùÀå±îÁöÀÇ °Å¸® ¹× ¿îÇàºóµµ µîÀ¸·Î º¸¾Æ ´ëÁß±³ÅëÀÌ¿ë»óȲÀº º¸ÅëÀÓ.
3)ÇüÅ ¹× ÀÌ¿ë»óÅÂ
º»°ÇÀº °¡ÀåÇüÀÇ ÅäÁö·Î¼­ »ó¾÷¿ë°ÇºÎÁö·Î ÀÌ¿ëÁßÀÓ.
4)ÀÎÁ¢ µµ·Î»óÅÂ
º»°Ç ºÏÃøÀ¸·Î ³ëÆø ¾à 8m ³»¿ÜÀÇ ±³Çà°¡´ÉÇÑ ¾Æ½ºÆÈÆ®Æ÷Àåµµ·Î¿Í Á¢Çϸç, Æ÷Àå»óÅ ¹× °èÅ뼺 µîÀº ¹«³­ÇÔ.
5)ÅäÁöÀÌ¿ë°èȹ ¹× Á¦ÇÑ»óÅÂ
ÀϷùøÈ£(1) :Á¦1Á¾ÀϹÝÁÖ°ÅÁö¿ª, °¡Ãà»çÀ°Á¦Çѱ¸¿ª(2022-01-26)(ÀüºÎÁ¦Çѱ¸¿ª)<°¡ÃàºÐ´¢ÀÇ °ü¸® ¹× À̿뿡 °üÇÑ ¹ý·ü>, »ó´ëº¸È£±¸¿ª(¾ÈÁßÁß°í±³)<±³À°È¯°æ º¸È£¿¡ °üÇÑ ¹ý·ü>, »ó´ëº¸È£±¸¿ª(¾ÈÁßÃÊ,°æ±âµµÆòÅñ³À°Áö¿øÃ»°í½ÃÁ¦2015-2È£(2015.02.23))<±³À°È¯°æ º¸È£¿¡ °üÇÑ ¹ý·ü>, Àý´ëº¸È£±¸¿ª(¾ÈÁßÁß°í)<±³À°È¯°æ º¸È£¿¡ °üÇÑ ¹ý·ü>
6)Á¦½Ã¸ñ·Ï ¿ÜÀÇ ¹°°Ç
-.
7)°øºÎ¿ÍÀÇ Â÷ÀÌ
-.
8)±âŸÂü°í»çÇ×(ÀÓ´ë°ü·Ê ¹× ±âŸ)
-.
1)°Ç¹°ÀÇ ±¸Á¶
ö±ÙÄÜÅ©¸®Æ®±¸Á¶ (ö±Ù)ÄÜÅ©¸®Æ®ÁöºØ 4Ãþ, Á¦1Á¾±Ù»ý, Á¦2Á¾±Ù»ý °ÇÀ¸·Î¼­, (»ç¿ë½ÂÀÎÀÏ:2021.09.28)

¿Üº®:¼®Àç ºÙÀÓ ¸¶°¨ µî,
³»º®:ÆäÀÎÆÃ ¸¶°¨ µî,
¹Ù´Ú:µ¥ÄÚŸÀÏ µî ¸¶°¨,
âȣ:¾Ë·ç¹Ì´½ ¼¦½Ã µî ¸¶°¨.

2)ÀÌ¿ë»óÅÂ
1,2Ãþ:Á¦1Á¾±Ù»ý(¼Ò¸ÅÁ¡),
3,4Ãþ:Á¦2Á¾±Ù»ý(»ç¹«¼Ò)·Î ÀÌ¿ëÁßÀÓ.
3)¼³ºñ³»¿ª
À§»ý¼³ºñ,±Þ¹è¼ö¼³ºñ, È­ÀçŽÁö, ½Â°­±â¼³ºñ µîÀÌ ±¸ºñµÇ¾î ÀÖÀ½.
4)ºÎÇÕ¹° ¹× Á¾¹°
-.
5)°øºÎ¿ÍÀÇ Â÷ÀÌ
-.
6)±âŸÂü°í»çÇ×(ÀÓ´ë°ü·Ê ¹× ±âŸ)
-.
Âü°í
»çÇ×
1. Àϰý¸Å°¢ 2. ¸ñ·Ï 1 Áö¸ñÀº 'Àü'À̳ª ÇöȲÀº »ó¾÷¿ë°ÇºÎÁö·Î ÀÌ¿ëÁßÀÓ
* º»°Ç ¸ñ·Ï 1.Àº Áö¸ñ `Àü`À̳ª, ÇöȲ °Ç¹°ºÎÁöÀÓ. * º»°Ç ¸ñ·Ï 2.

°ÇÃ๰ÇöȲ

¼ÒÀçÁö °æ±âµµ ÆòÅýà ¾ÈÁßÀ¾ ÇöÈ­¸® 313¹øÁö
´ëÁö¸éÀû 119§³
(36.06Æò)
¿¬¸éÀû 237.59§³
(72Æò)
°ÇÃà¸éÀû 69.75§³
(21.14Æò)
¿ëÀû·ü»êÁ¤
¿¬¸éÀû
237.59§³
(72Æò)
°ÇÆóÀ² 58.61% ¿ëÀû·ü 199.66%
Áö»óÃþ¼ö 4Ãþ ÁöÇÏÃþ¼ö  
ÁÖ¿ëµµ Á¦1Á¾±Ù¸°»ýȰ½Ã¼³ ±¸Á¶ ö±ÙÄÜÅ©¸®Æ®±¸Á¶
Âø°øÀÏÀÚ 2018.10.27 »ç¿ë½ÂÀÎÀÏÀÚ 2021.09.28
°ÇÃ๰Ãþº°ÇöȲ [º¸±â]


µî±âºÎµîº» ¿ä¾à(ÅäÁö)

  Á¢¼öÀÏÀÚ µî±â¸ñÀû/±Ç¸®ÀÚ ±Ç¸®±Ý¾× ±âÁØ
1 2018³â4¿ù13ÀÏ
¼ÒÀ¯±Ç
ÃÖOO
¼Ò¸ê
2 2018³â4¿ù13ÀÏ
±ÙÀú´ç±Ç
³óOOOO
380,400,000 ¼Ò¸ê±âÁØ
3 2024³â5¿ù29ÀÏ
°¡¾Ð·ù
¿ìOOOO
44,618,237 ¼Ò¸ê
4 2024³â7¿ù8ÀÏ
°¡¾Ð·ù
¼­OOOO
15,660,230 ¼Ò¸ê
5 2024³â8¿ù6ÀÏ
°¡¾Ð·ù
°æOOOO
6,204,785 ¼Ò¸ê
6 2024³â8¿ù21ÀÏ
°¡¾Ð·ù
½ÅOOOO
17,102,003 ¼Ò¸ê
7 2024³â10¿ù21ÀÏ
¾Ð·ù
ÆòOO
¼Ò¸ê
8 2024³â10¿ù21ÀÏ
¾Ð·ù
±¹OOOO
¼Ò¸ê
9 2024³â12¿ù3ÀÏ
°¡¾Ð·ù
³óOOOO
12,927,318 ¼Ò¸ê
10 2025³â1¿ù9ÀÏ
ÀÓÀǰæ¸Å
³óOOOO
¼Ò¸ê

µî±âºÎµîº» ¿ä¾à(°Ç¹°)

  Á¢¼öÀÏÀÚ µî±â¸ñÀû/±Ç¸®ÀÚ ±Ç¸®±Ý¾× ±âÁØ
1 2021³â11¿ù9ÀÏ
¼ÒÀ¯±Ç
ÃÖOO
¼Ò¸ê
2 2021³â11¿ù9ÀÏ
±ÙÀú´ç±Ç
³óOOOO
380,400,000 ¼Ò¸ê±âÁØ
3 2024³â5¿ù29ÀÏ
°¡¾Ð·ù
¿ìOOOO
44,618,237 ¼Ò¸ê
4 2024³â6¿ù12ÀÏ
¾Ð·ù
±¹OOOO
¼Ò¸ê
5 2024³â7¿ù8ÀÏ
°¡¾Ð·ù
¼­OOOO
15,660,230 ¼Ò¸ê
6 2024³â8¿ù6ÀÏ
°¡¾Ð·ù
°æOOOO
6,204,785 ¼Ò¸ê
7 2024³â8¿ù21ÀÏ
°¡¾Ð·ù
½ÅOOOO
17,102,003 ¼Ò¸ê
8 2024³â10¿ù21ÀÏ
¾Ð·ù
ÆòOO
¼Ò¸ê
9 2024³â12¿ù3ÀÏ
°¡¾Ð·ù
³óOOOO
12,927,318 ¼Ò¸ê
10 2025³â1¿ù9ÀÏ
ÀÓÀǰæ¸Å
³óOOOO
¼Ò¸ê

ÀÓÂ÷ÀÎÇöȲ (¹è´ç¿ä±¸Á¾±âÀÏ: 2025-04-08)

ÀÓÂ÷ÀÎ ¿ëµµ/Á¡À¯ º¸Áõ±Ý/¿ù¼¼ ´ëÇ×·Â
ÀüÀÔÀÏ/È®Á¤ÀÏ ¹è´ç¿ä±¸ ºñ°í
(OOOOOOOOOOOO 3Ãþ63.91Á¦°ö¹ÌÅÍ 5,000,000
[¿ù]350,000
X
2024.07.12
¾øÀ½
 

¿©ÀÇÁÖ°æ¸Å Á¶¾ð ÇÑ ¸¶µð


ÁÖÀÇ»çÇ× (ÃÖ¼±¼øÀ§ ¼³Á¤ÀÏ: ¸ñ·Ï1: 2018. 4. 13.±ÙÀú ´ç±Ç, ¸ñ·Ï2: 2021. 11. 9. ¼³Á¤ ±ÙÀú´ç±Ç)

¸Å°¢À¸·Î ¼Ò¸êµÇÁö ¾Ê´Â µî±âºÎ±Ç¸®:
¸Å°¢À¸·Î ¼³Á¤µÈ °ÍÀ¸·Î º¸´Â Áö»ó±Ç:
1. Àϰý¸Å°¢ 2. ¸ñ·Ï 1 Áö¸ñÀº 'Àü'À̳ª ÇöȲÀº »ó¾÷¿ë°ÇºÎÁö·Î ÀÌ¿ëÁßÀÓ
¡Ø¹Ì³³°ü¸®ºñ(°ø¿ë) Àμö¿©ºÎ¸¦ ÀÔÂû Àü¿¡ È®ÀÎÇϽñ⠹ٶø´Ï´Ù

 

Áö¿ªºÐ¼®

ÁöÇÏö¸í Á÷¼±°Å¸®

Çб³¸í ÀüÈ­¹øÈ£ ÁÖ¼Ò Á÷¼±°Å¸®

¹ý¿ø

¼ö¿øÁö¹æ¹ý¿ø ÆòÅÃÁö¿ø (178-48)°æ±âµµ ÆòÅýà Æò³²·Î 1036 (µ¿»èµ¿)
´ëÇ¥ : 031)650-3114, ¾ß°£ : 031)650-3150
°üÇÒÁö¿ª : ÆòÅýÃ, ¾È¼º½Ã

µî±â¼Ò ¼ö¿øÁö¹æ¹ý¿ø º»¿ø ¼Ûźµî±â¼Ò (´ëÇ¥:1544-0773, ÆÑ½º:(031)665-3769, °æ±âµµ ÆòÅýà °æ±â´ë·Î 1351 (¼­Á¤µ¿ 813-3))
¼¼¹«¼­ ÆòÅü¼¹«¼­ (´ëÇ¥:031-650-02, ÆÑ½º:031-658-1116, °æ±âµµ ÆòÅýà Á×¹é6·Î6 (Á׹鵿 796))

Àαٳ«ÂûÅë°è

±â°£ ¸Å°¢°Ç¼ö Æò±Õ°¨Á¤°¡
Æò±Õ¸Å°¢°¡
¸Å°¢°¡À²
Æò±ÕÀ¯Âû¼ö
3°³¿ù 6°Ç 473,683,703¿ø
290,923,407¿ø
56%
2.3ȸ
6°³¿ù 8°Ç 446,669,575¿ø
290,855,681¿ø
62%
2ȸ
12°³¿ù 9°Ç 450,461,043¿ø
296,438,383¿ø
63%
2ȸ


º» °æ¸ÅÁ¤º¸´Â ¹ý¿øÀÚ·á¿Í ÀÏÄ¡Çϵµ·Ï ÇÏ¿´À¸³ª ±Ç¸®»çÇ׺¯µ¿, ÀÔ·ÂÂø¿À µîÀÇ ¿øÀÎÀ¸·Î »ç½Ç°ú ´Ù¸¦ ¼ö ÀÖ½À´Ï´Ù. ÀÌ¿ë¾à°ü¿¡ ÀǰЏéÃ¥Á¶°ÇÀ¸·Î Á¦°øµÊÀ» ¾Ë¸®¸ç, °æ¸ÅÀÔÂû½Ã ¹Ýµå½Ã °ü·Ã °øºÎ¸¦ ÀçÈ®ÀÎÇϽñ⠹ٶø´Ï´Ù. º¸´Ù Æí¸®ÇÑ °æ¸ÅÁ¤º¸ Á¦°øÀ» À§ÇØ Áö¼ÓÀûÀ¸·Î °³¼±ÇϰڽÀ´Ï´Ù. ÀÌ¿ëÇØ Áּż­ °¨»çÇÕ´Ï´Ù.