·Î±×ÀÎ
35
´Ù¼¼´ë(ºô¶ó)
¼­¿ïµ¿ºÎÁö¹æ¹ý¿ø
 °¨Á¤°¡371,000,000 ¿ø
 ÃÖÀú°¡(64%) 237,440,000 ¿ø
 º¸Áõ±Ý(10%) 23,744,000 ¿ø
 Ã»±¸¾×411,267,671 ¿ø
¼­¿ïƯº°½Ã ±¤Áø±¸ ¿ë¸¶»ê·Î8±æ 55, 2Ãþ201È£
¼­¿ïƯº°½Ã ±¤Áø±¸ Á߰ 64-10
»ç°Ç¹øÈ£ 2024Ÿ°æ58095
°æ¸ÅÁ¾·ùºÎµ¿»ê°­Á¦°æ¸Å
¸Å°¢´ë»óÅäÁö ¹× °Ç¹°Àϰý ¸Å°¢
¸Å°¢±âÀÏ    2025.12.08(¿ù) 10:00 ÀÔÂû 12ÀÏÀü    
ÅäÁö¸éÀû30.33§³(9.17 Æò)
°Ç¹°¸éÀû40.60§³(12.28 Æò)
乫/¼ÒÀ¯ÀÚÀÌOO / ÀÌOO
ä±ÇÀÚÁÖOOOOOOO
ÆäÀ̽ººÏ Æ®À§ÅÍ ±¸±Û+
īī¿À½ºÅ丮
īī¿ÀÅå sms¹®ÀÚº¸³»±â
 

±âÀϳ»¿ª

°æ°ú ³¯Â¥ Àú°¨ ÃÖÀú°¡ °á°ú
Á¢¼öÀÏ 2024-07-02 °æ¸ÅÁ¢¼ö
~8ÀÏ 
2024-07-10 °æ¸Å°³½Ã°áÁ¤
~84ÀÏ 
2024-09-24 ¹è´ç¿ä±¸Á¾±âÀÏ
~440ÀÏ 
2025-09-15 100%
371,000,000
À¯Âû
~489ÀÏ 
2025-11-03 80%
296,800,000
À¯Âû
~524ÀÏ 
2025-12-08 64%
237,440,000
ÁøÇà
¹°°Ç¸í¼¼¼­ ÇöȲÁ¶»ç¼­ ¹®°ÇÁ¢¼ö ¼Û´Þ³»¿ª

°¨Á¤Æò°¡ÇöȲ

¸ñ·Ï ÁÖ¼Ò ±¸Á¶/¿ëµµ/´ëÁö±Ç ¸éÀû ºñ°í
´ëÁö±Ç
Á߰ 64-10 297.2ºÐÀÇ 30.33 30.33 §³
(9.17Æò)
°Ç¹°
Á߰ 64-10 2Ãþ201È£ ö±ÙÄÜÅ©¸®Æ®±¸Á¶ 40.6 §³
(12.28Æò)
1) À§Ä¡/µµ½ÃÁö¿ª/Á¦1Á¾ÀϹÝÁÖ°ÅÁö¿ª/¹ö½ºÁ¤·ùÀå/Â÷·®Á¢±ÙÀÌ °¡´É/ö±ÙÄÜÅ©¸®Æ®±¸Á¶ ´õº¸±â
°¨Á¤Æò°¡ ¿äÇ×Ç¥
1)À§Ä¡ ¹× ÁÖÀ§È¯°æ
º»°ÇÀº ¼­¿ïƯº°½Ã ±¤Áø±¸ Á߰ ¼ÒÀç "Áß°î4µ¿Áֹμ¾ÅÍ" ºÏµ¿Ãø Àαٿ¡ À§Ä¡Çϸç, ºÎ±ÙÀº ´Ù¼¼´ëÁÖÅÃ, ´Ù°¡±¸ÁÖÅÃ, ±Ù¸°»ýȰ½Ã¼³ µîÀÌ È¥ÀçµÈ Áö¿ªÀÓ.
2)±³Åë»óȲ
º»°Ç±îÁö Á¦¹Ý Â÷·®Á¢±ÙÀÌ °¡´ÉÇϸç, Àαٿ¡ ¹ö½ºÁ¤·ùÀåÀÌ ¼ÒÀçÇÏ´Â µî Á¦¹Ý ´ëÁß±³ÅëÀº º¸Åë½ÃµÊ.
3)°Ç¹°ÀÇ ±¸Á¶
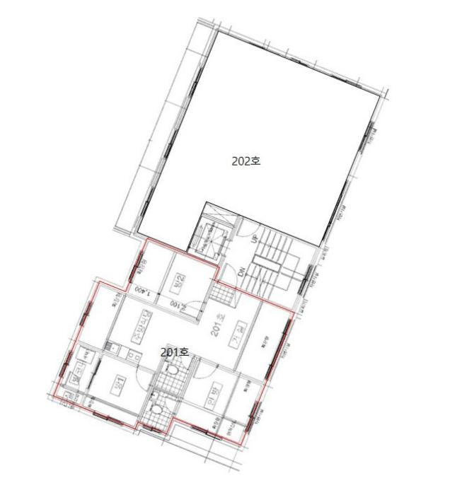
º»°ÇÀº ö±ÙÄÜÅ©¸®Æ®±¸Á¶ Æò½½¶óºêÁöºØ Áö»ó5Ãþ°Ç³» Á¦2Ãþ Á¦201È£·Î¼­,

¿Ü º® : ¿ÜÀå¼®Àç ºÙÀÓ µî
â È£ : »õ½ÃÁ¶ µîÀÓ.
4)ÀÌ¿ë»óÅÂ
°ÇÃ๰´ëÀå»ó µµ½ÃÇü»ýȰÁÖÅôÜÁöÇü´Ù¼¼´ëÀÓ.
5)¼³ºñ³»¿ª
À§»ý¼³ºñ, ±Þ¹è¼ö¼³ºñ, ³­¹æ¼³ºñ, ½Â°­±â¼³ºñ µîÀÌ µÇ¾îÀÖÀ½.
6)ÅäÁöÀÇ Çü»ó ¹× ÀÌ¿ë»óÅÂ
º»°ÇÀº 2ÇÊÁö ÀÏ´ÜÀÇ »ç´Ù¸®Çü ÅäÁö·Î¼­, ÁÖ°Å¿ë °ÇºÎÁö·Î ÀÌ¿ëÁßÀÓ.
7)ÀÎÁ¢ µµ·Î»óŵî
º»°ÇÀº ³²¼­ÃøÀ¸·Î ³ëÆø ¾à 6m µµ·Î¿Í ºÏ¼­ÃøÀ¸·Î °³ÀμÒÀ¯ÀÇ ³ëÆø ¾à 3m µµ·Î¿Í Á¢Çϰí ÀÖÀ½.
8)ÅäÁöÀÌ¿ë°èȹ ¹× Á¦ÇÑ»óÅÂ
64-10¹øÁö, 64-13¹øÁö °øÈ÷ µµ½ÃÁö¿ª, Á¦1Á¾ÀϹÝÁÖ°ÅÁö¿ª °¡Ãà»çÀ°Á¦Çѱ¸¿ª<°¡ÃàºÐ´¢ÀÇ °ü¸® ¹× À̿뿡 °üÇÑ ¹ý·ü>, ´ë°ø¹æ¾îÇùÁ¶±¸¿ª(À§Å¹°íµµ:77-257m)<±º»ç±âÁö ¹× ±º»ç½Ã¼³ º¸È£¹ý>, °ú¹Ð¾ïÁ¦±Ç¿ª<¼öµµ±ÇÁ¤ºñ°èȹ¹ý>ÀÓ.
9)°øºÎ¿ÍÀÇ Â÷ÀÌ
-
10)±âŸÂü°í»çÇ×(ÀÓ´ë°ü·Ê ¹× ±âŸ)
ÀÓ´ë°ü°è´Â ¹Ì»óÀÓ.

°ÇÃ๰ÇöȲ

¼ÒÀçÁö ¼­¿ïƯº°½Ã ±¤Áø±¸ Á߰ 64-10¹øÁö
´ëÁö¸éÀû 297.2§³
(90.06Æò)
¿¬¸éÀû 445.64§³
(135.04Æò)
°ÇÃà¸éÀû 150.83§³
(45.71Æò)
¿ëÀû·ü»êÁ¤
¿¬¸éÀû
445.64§³
(135.04Æò)
°ÇÆóÀ² 50.75% ¿ëÀû·ü 149.95%
Áö»óÃþ¼ö 5Ãþ ÁöÇÏÃþ¼ö  
ÁÖ¿ëµµ °øµ¿ÁÖÅà ±¸Á¶ ö±ÙÄÜÅ©¸®Æ®±¸Á¶
Âø°øÀÏÀÚ 2019.04.18 »ç¿ë½ÂÀÎÀÏÀÚ 2019.10.22
°ÇÃ๰Ãþº°ÇöȲ [º¸±â]


±¹ÅäºÎ½Ç°Å·¡°¡ ¼­¿ïƯº°½Ã ±¤Áø±¸ Á߰

¡Ü ¸Å¸Å

¸éÀû(§³), ±Ý¾×(¸¸¿ø)

¡Ü Àü¼¼

¸éÀû(§³), ±Ý¾×(¸¸¿ø)

°è¾àÀϰǹ°¸íĪÃþ¿¬¸éÀû´ëÁö±Ý¾×°ÇÃà
24.03.30ºê¶ó¿îÇϿ콺445.5630.6334,3002016
24.03.30À£ÄÄ½ÃÆ¼3Â÷354.0734.2439,0002016
24.03.27¼±°æ½¦¸£ºô454.362831,0002002
24.03.27µµ¿ø¾ÆÆ®ºô3Â÷275.1645.1143,5002008
24.03.27Çà¿îºôµù245.4221.651227,5002002
¢Ñ ´õº¸±â

µî±âºÎµîº» ¿ä¾à(°Ç¹°)

  Á¢¼öÀÏÀÚ µî±â¸ñÀû/±Ç¸®ÀÚ ±Ç¸®±Ý¾× ±âÁØ
1 2020³â11¿ù13ÀÏ
¼ÒÀ¯±Ç
ÀÌOO
¼Ò¸ê
2 2022³â6¿ù8ÀÏ
¾Ð·ù
±¹
¼Ò¸ê±âÁØ
3 2022³â12¿ù19ÀÏ
ÀÓÂ÷±Ç¼³Á¤
ÃÖOO
370,000,000 ¼Ò¸ê
4 2023³â1¿ù11ÀÏ
¾Ð·ù
±¤OO
¼Ò¸ê
5 2024³â7¿ù10ÀÏ
°­Á¦°æ¸Å
ÁÖOOOO
¼Ò¸ê
6 2025³â2¿ù11ÀÏ
¾Ð·ù
±¹
¼Ò¸ê

ÀÓÂ÷ÀÎÇöȲ (¹è´ç¿ä±¸Á¾±âÀÏ: 2024-09-24)

ÀÓÂ÷ÀÎ ¿ëµµ/Á¡À¯ º¸Áõ±Ý/¿ù¼¼ ´ëÇ×·Â
ÀüÀÔÀÏ/È®Á¤ÀÏ ¹è´ç¿ä±¸ ºñ°í
ÁÖOOOOOOOOOOOO 370,000,000
O
2020.11.13.
2020.10.22.
2024.7.2. 2020.11.13.~2022.11.12.
ÃÖOO Á¦2ÃþÁ¦201È£40.6§³ÀüºÎ 370,000,000
O
2020.11.13.
2020.10.22.
ºñ°í
(¸Å°¢¹°°Ç
¸í¼¼¼­)
ÁÖÅõµ½Ãº¸Áõ°ø»ç(ÃÖÀºÁø):½Åûä±ÇÀÚ·Î ÀÓÂ÷±ÇÀÚ ÃÖÀºÁøÀÇ ÀÓÂ÷º¸Áõ±ÝÀ» ´ëÀ§º¯Á¦ÇÔ. ¹è´ç¿ä±¸ÀÏÀÚ´Â °æ¸Å½ÅûÀÏÀÓ. ÃÖÀºÁø:ÁÖÅÃÀÓÂ÷±ÇÀڷμ­ ÀÓÂ÷±Çµî±âÀÏÀº 2022.12.19.À̰í ÇâÈÄ ¹è´ç¿¡¼­ º¸Áõ±ÝÀÌ Àü¾× º¯Á¦µÇÁö ¾ÊÀ¸¸é ¸»¼ÒµÇÁö ¾Ê°í ±× Àܾ×À» ¸Å¼öÀÎÀÌ ÀμöÇÔ

¿©ÀÇÁÖ°æ¸Å Á¶¾ð ÇÑ ¸¶µð

¼±¼øÀ§ ÀÓÂ÷±Çµî±â°¡ µÇ¾î ÀÖ½À´Ï´Ù
´ëÇ×·ÂÀÌ ÀÖ´Â ¼±¼øÀ§ ÀÓÂ÷±Çµî±â ±Ç¸®ÀÚ°¡ ¹è´çÀ» Àü¾× ¹ÞÁö ¸øÇÒ °æ¿ì ³«ÂûÀÚ°¡ ÀÜ¿© º¸Áõ±ÝÀ» ÀμöÇØ¾ßÇÏ´Â °æ¿ìµµ ÀÖ½À´Ï´Ù.

ÁÖÀÇ»çÇ× (ÃÖ¼±¼øÀ§ ¼³Á¤ÀÏ: 2022. 6. 8. ¾Ð·ù ¼³Á¤)

¸Å°¢À¸·Î ¼Ò¸êµÇÁö ¾Ê´Â µî±âºÎ±Ç¸®: À»±¸ ¼øÀ§¹øÈ£ 3¹ø 2022. 12. 19. Á¦163389È£·Î °æ·áµÈ ÁÖÅÃÀÓÂ÷±Çµî±â´Â ¹è´ç¿¡¼­ º¸Áõ±ÝÀÌ Àü¾× º¯Á¦µÇÁö ¾ÊÀ¸¸é ¸»¼ÒµÇÁö ¾Ê°í ±× Àܾ×À» ¸Å¼öÀÎÀÌ ÀμöÇÔ
¸Å°¢À¸·Î ¼³Á¤µÈ °ÍÀ¸·Î º¸´Â Áö»ó±Ç: ÇØ´ç»çÇ×¾øÀ½
¡Ø¹Ì³³°ü¸®ºñ(°ø¿ë) Àμö¿©ºÎ¸¦ ÀÔÂû Àü¿¡ È®ÀÎÇϽñ⠹ٶø´Ï´Ù

 

Áö¿ªºÐ¼®

ÁöÇÏö¸í Á÷¼±°Å¸®

Çб³¸í ÀüÈ­¹øÈ£ ÁÖ¼Ò Á÷¼±°Å¸®

¹ý¿ø

¼­¿ïµ¿ºÎÁö¹æ¹ý¿ø (058-56)¼­¿ïƯº°½Ã ¼ÛÆÄ±¸ ¹ý¿ø·Î 101 (¹®Á¤µ¿)
´ëÇ¥ : 02)2204-2114, ¾ß°£ : 02)2204-2701
°üÇÒÁö¿ª : ¼ºµ¿±¸, ±¤Áø±¸, °­µ¿±¸, ¼ÛÆÄ±¸

µî±â¼Ò ¼­¿ïµ¿ºÎÁö¹æ¹ý¿ø º»¿ø µî±â±¹ (´ëÇ¥:1544-0773, ÆÑ½º:(02)2204-2181, ¼­¿ïƯº°½Ã ¼ÛÆÄ±¸ ¹ý¿ø·Î 101 (¹®Á¤µ¿ 650))
¼¼¹«¼­ ¼ºµ¿¼¼¹«¼­ (´ëÇ¥:02-460-420, ÆÑ½º:02-468-8455, ¼­¿ïƯº°½Ã ¼ºµ¿±¸ ±¤³ª·ç·Î 297 (¼ÛÁ¤µ¿))

Àαٳ«ÂûÅë°è

±â°£ ¸Å°¢°Ç¼ö Æò±Õ°¨Á¤°¡
Æò±Õ¸Å°¢°¡
¸Å°¢°¡À²
Æò±ÕÀ¯Âû¼ö
3°³¿ù 9°Ç 478,632,474¿ø
417,334,944¿ø
86%
1.8ȸ
6°³¿ù 12°Ç 449,891,023¿ø
400,839,959¿ø
86%
1.8ȸ
12°³¿ù 37°Ç 382,858,278¿ø
346,135,851¿ø
89%
1.8ȸ


º» °æ¸ÅÁ¤º¸´Â ¹ý¿øÀÚ·á¿Í ÀÏÄ¡Çϵµ·Ï ÇÏ¿´À¸³ª ±Ç¸®»çÇ׺¯µ¿, ÀÔ·ÂÂø¿À µîÀÇ ¿øÀÎÀ¸·Î »ç½Ç°ú ´Ù¸¦ ¼ö ÀÖ½À´Ï´Ù. ÀÌ¿ë¾à°ü¿¡ ÀǰЏéÃ¥Á¶°ÇÀ¸·Î Á¦°øµÊÀ» ¾Ë¸®¸ç, °æ¸ÅÀÔÂû½Ã ¹Ýµå½Ã °ü·Ã °øºÎ¸¦ ÀçÈ®ÀÎÇϽñ⠹ٶø´Ï´Ù. º¸´Ù Æí¸®ÇÑ °æ¸ÅÁ¤º¸ Á¦°øÀ» À§ÇØ Áö¼ÓÀûÀ¸·Î °³¼±ÇϰڽÀ´Ï´Ù. ÀÌ¿ëÇØ Áּż­ °¨»çÇÕ´Ï´Ù.