·Î±×ÀÎ
29
´Ù¼¼´ë(ºô¶ó)
ÀÎõÁö¹æ¹ý¿ø
 °¨Á¤°¡165,000,000 ¿ø
 ÃÖÀú°¡(49%) 80,850,000 ¿ø
 º¸Áõ±Ý(10%) 8,085,000 ¿ø
 Ã»±¸¾×170,000,000 ¿ø
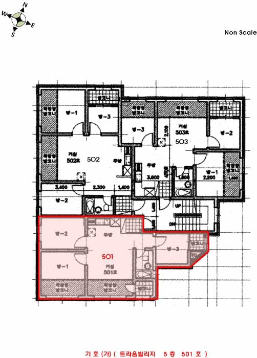
ÀÎõ±¤¿ª½Ã ºÎÆò±¸ ½ÊÁ¤µ¿ 182-18 Æ®¶ó¿òºô¸®Áö 5Ãþ501È£
»ç°Ç¹øÈ£ 2025Ÿ°æ508328
°æ¸ÅÁ¾·ùºÎµ¿»ê°­Á¦°æ¸Å
¸Å°¢´ë»óÅäÁö ¹× °Ç¹°Àϰý ¸Å°¢
¸Å°¢±âÀÏ    2025.11.26(¼ö) 10:00 (¿À´Ã ÀÔÂû)    
ÅäÁö¸éÀû29.08§³(8.80 Æò)
°Ç¹°¸éÀû47.54§³(14.38 Æò)
乫/¼ÒÀ¯ÀÚÃÖOO / ÃÖOO
ä±ÇÀÚÁÖOOOOOOO
ÆäÀ̽ººÏ Æ®À§ÅÍ ±¸±Û+
īī¿À½ºÅ丮
īī¿ÀÅå sms¹®ÀÚº¸³»±â
 

±âÀϳ»¿ª

°æ°ú ³¯Â¥ Àú°¨ ÃÖÀú°¡ °á°ú
Á¢¼öÀÏ 2025-03-18 °æ¸ÅÁ¢¼ö
~6ÀÏ 
2025-03-24 °æ¸Å°³½Ã°áÁ¤
~93ÀÏ 
2025-06-19 ¹è´ç¿ä±¸Á¾±âÀÏ
~175ÀÏ 
2025-09-09 100%
165,000,000
À¯Âû
~223ÀÏ 
2025-10-27 70%
115,500,000
À¯Âû
~253ÀÏ 
2025-11-26 49%
80,850,000
ÁøÇà
¹°°Ç¸í¼¼¼­ ÇöȲÁ¶»ç¼­ ¹®°ÇÁ¢¼ö ¼Û´Þ³»¿ª

°¨Á¤Æò°¡ÇöȲ

¸ñ·Ï ÁÖ¼Ò ±¸Á¶/¿ëµµ/´ëÁö±Ç ¸éÀû ºñ°í
´ëÁö±Ç
½ÊÁ¤µ¿ 182-18 358ºÐÀÇ 29.08 29.08 §³
(8.80Æò)
°Ç¹°
½ÊÁ¤µ¿ 182-18 5Ãþ501È£ ö±ÙÄÜÅ©¸®Æ®±¸Á¶ 47.54 §³
(14.38Æò)
Âü°í
»çÇ×

º» °ÇÀº 5Ãþ

°ÇÃ๰ÇöȲ

¼ÒÀçÁö ÀÎõ±¤¿ª½Ã ºÎÆò±¸ ½ÊÁ¤µ¿ 182-18¹øÁö
´ëÁö¸éÀû 358§³
(108.48Æò)
¿¬¸éÀû 657.25§³
(199.17Æò)
°ÇÃà¸éÀû 211.66§³
(64.14Æò)
¿ëÀû·ü»êÁ¤
¿¬¸éÀû
657.25§³
(199.17Æò)
°ÇÆóÀ² 59.12% ¿ëÀû·ü 183.59%
Áö»óÃþ¼ö 5Ãþ ÁöÇÏÃþ¼ö  
ÁÖ¿ëµµ °øµ¿ÁÖÅà ±¸Á¶ ö±ÙÄÜÅ©¸®Æ®±¸Á¶
Âø°øÀÏÀÚ 2008.05.10 »ç¿ë½ÂÀÎÀÏÀÚ 2008.09.17
°ÇÃ๰Ãþº°ÇöȲ [º¸±â]


±¹ÅäºÎ½Ç°Å·¡°¡ ÀÎõ±¤¿ª½Ã ºÎÆò±¸ ½ÊÁ¤µ¿

¡Ü ¸Å¸Å

¸éÀû(§³), ±Ý¾×(¸¸¿ø)

¡Ü Àü¼¼

¸éÀû(§³), ±Ý¾×(¸¸¿ø)

°è¾àÀϰǹ°¸íĪÃþ¿¬¸éÀû´ëÁö±Ý¾×°ÇÃà
24.03.30ÇѼºÆÄÅ©ºô252.8526.7525,4002001
24.03.30¿¡µ§ºô¶ó(315-73)232.6824.0026,8001988
24.03.29Àå¿øºô¶ó235.5524.4612,8001990
24.03.29(568-1)255.551.0622,4001987
24.03.29(568-4)250.6516.5296,7501987
¢Ñ ´õº¸±â

µî±âºÎµîº» ¿ä¾à(°Ç¹°)

  Á¢¼öÀÏÀÚ µî±â¸ñÀû/±Ç¸®ÀÚ ±Ç¸®±Ý¾× ±âÁØ
1 2022³â2¿ù25ÀÏ
¼ÒÀ¯±Ç
ÃÖOO
¼Ò¸ê
2 2022³â11¿ù11ÀÏ
°¡¾Ð·ù
(OOOO
8,100,056 ¼Ò¸ê±âÁØ
3 2023³â5¿ù4ÀÏ
°¡¾Ð·ù
½ÅOOOO
12,958,022 ¼Ò¸ê
4 2023³â5¿ù17ÀÏ
¾Ð·ù
±¹
¼Ò¸ê
5 2024³â3¿ù11ÀÏ
ÀÓÂ÷±Ç¼³Á¤
ÀÌOO
170,000,000 ¼Ò¸ê
6 2024³â4¿ù18ÀÏ
¾Ð·ù
±¹
¼Ò¸ê
7 2025³â3¿ù24ÀÏ
°­Á¦°æ¸Å
ÁÖOOOO
¼Ò¸ê

ÀÓÂ÷ÀÎÇöȲ (¹è´ç¿ä±¸Á¾±âÀÏ: 2025-06-19)

ÀÓÂ÷ÀÎ ¿ëµµ/Á¡À¯ º¸Áõ±Ý/¿ù¼¼ ´ëÇ×·Â
ÀüÀÔÀÏ/È®Á¤ÀÏ ¹è´ç¿ä±¸ ºñ°í
HOOOOOOOOOOOO
X
2024. 12. 7.
POOOOOOOOOO
X
2024. 12. 7.
TOOOOOOOOOOOO
X
2024. 12. 7.
ÀÌOO 170,000,000
O
2022. 2. 4.
2021. 11. 15.
2022. 2. 4.~
ÁÖOOOOOOOOOOOOOOO ÀüºÎ 170,000,000
O
2022. 2. 4.
2021. 11. 15.
2025. 5. 20. 2022. 2. 4.~2024. 7. 19.
ºñ°í
(¸Å°¢¹°°Ç
¸í¼¼¼­)
- À̼ö¿¬ : ÁÖÅÃÀÓÂ÷±Çµî±â±ÇÀڷμ­ ÁÖÅÃÀÓÂ÷±Çµî±âÀÏÀº 2024. 3. 11.ÀÓ - ÁÖÅõµ½Ãº¸Áõ°ø»ç(ÀÓÂ÷ÀÎ À̼ö¿¬) : °æ¸Å½Åû±ÇÀÚÀ̸ç ÁÖÅÃÀÓ´ëÂ÷º¸È£¹ý Á¦3Á¶ÀÇ2 Á¦7Ç× Á¦9È£ÀÇ ±â°üÀ¸·Î ÀÓÂ÷ÀÎ À̼ö¿¬À¸·Î

¿©ÀÇÁÖ°æ¸Å Á¶¾ð ÇÑ ¸¶µð

¼±¼øÀ§ ÀÓÂ÷±Çµî±â°¡ µÇ¾î ÀÖ½À´Ï´Ù
´ëÇ×·ÂÀÌ ÀÖ´Â ¼±¼øÀ§ ÀÓÂ÷±Çµî±â ±Ç¸®ÀÚ°¡ ¹è´çÀ» Àü¾× ¹ÞÁö ¸øÇÒ °æ¿ì ³«ÂûÀÚ°¡ ÀÜ¿© º¸Áõ±ÝÀ» ÀμöÇØ¾ßÇÏ´Â °æ¿ìµµ ÀÖ½À´Ï´Ù.

ÁÖÀÇ»çÇ× (ÃÖ¼±¼øÀ§ ¼³Á¤ÀÏ: 2022. 11. 11. °¡¾Ð·ù ¼³Á¤)

¸Å°¢À¸·Î ¼Ò¸êµÇÁö ¾Ê´Â µî±âºÎ±Ç¸®: À»±¸ ¼øÀ§ 5¹ø ÁÖÅÃÀÓÂ÷±Çµî±â(´Ù¸¸ ÁÖÅõµ½Ãº¸Áõ°ø»çÀÇ ¸»¼Òµ¿ÀÇ È®¾à¼­°¡ Á¦ÃâµÊ)
¸Å°¢À¸·Î ¼³Á¤µÈ °ÍÀ¸·Î º¸´Â Áö»ó±Ç:
¡Ø¹Ì³³°ü¸®ºñ(°ø¿ë) Àμö¿©ºÎ¸¦ ÀÔÂû Àü¿¡ È®ÀÎÇϽñ⠹ٶø´Ï´Ù

 

Áö¿ªºÐ¼®

ÁöÇÏö¸í Á÷¼±°Å¸®

Çб³¸í ÀüÈ­¹øÈ£ ÁÖ¼Ò Á÷¼±°Å¸®

¹ý¿ø

ÀÎõÁö¹æ¹ý¿ø (222-20)ÀÎõ±¤¿ª½Ã ¹ÌÃßȦ±¸ ¼Ò¼º·Î 163¹ø±æ 17(ÇÐÀ͵¿)
´ëÇ¥ : 032)860-1113~4
°üÇÒÁö¿ª : Áß±¸, µ¿±¸, ³²±¸, ¿¬¼ö±¸, ³²µ¿±¸, ºÎÆò±¸, °è¾ç±¸, ¼­±¸, ¿ËÁø±º, °­È­±º

µî±â¼Ò ÀÎõÁö¹æ¹ý¿ø º»¿ø µî±â±¹ (´ëÇ¥:1544-0773, ÆÑ½º:(032)620-9099, ÀÎõ±¤¿ª½Ã ¹ÌÃßȦ±¸ °æ¿ø´ë·Î 881(Á־ȵ¿ 983))
¼¼¹«¼­ ºÏÀÎõ¼¼¹«¼­ (´ëÇ¥:032-540-62, ÆÑ½º:032-545-0411, ÀÎõ±¤¿ª½Ã °è¾ç±¸ È¿¼­·Î244(ÀÛÀüµ¿ 422-1) )

Àαٳ«ÂûÅë°è

±â°£ ¸Å°¢°Ç¼ö Æò±Õ°¨Á¤°¡
Æò±Õ¸Å°¢°¡
¸Å°¢°¡À²
Æò±ÕÀ¯Âû¼ö
3°³¿ù 41°Ç 144,512,195¿ø
91,516,674¿ø
63%
2.6ȸ
6°³¿ù 96°Ç 144,156,250¿ø
90,520,204¿ø
62%
2.4ȸ
12°³¿ù 196°Ç 143,707,143¿ø
93,668,510¿ø
64%
2.3ȸ


º» °æ¸ÅÁ¤º¸´Â ¹ý¿øÀÚ·á¿Í ÀÏÄ¡Çϵµ·Ï ÇÏ¿´À¸³ª ±Ç¸®»çÇ׺¯µ¿, ÀÔ·ÂÂø¿À µîÀÇ ¿øÀÎÀ¸·Î »ç½Ç°ú ´Ù¸¦ ¼ö ÀÖ½À´Ï´Ù. ÀÌ¿ë¾à°ü¿¡ ÀǰЏéÃ¥Á¶°ÇÀ¸·Î Á¦°øµÊÀ» ¾Ë¸®¸ç, °æ¸ÅÀÔÂû½Ã ¹Ýµå½Ã °ü·Ã °øºÎ¸¦ ÀçÈ®ÀÎÇϽñ⠹ٶø´Ï´Ù. º¸´Ù Æí¸®ÇÑ °æ¸ÅÁ¤º¸ Á¦°øÀ» À§ÇØ Áö¼ÓÀûÀ¸·Î °³¼±ÇϰڽÀ´Ï´Ù. ÀÌ¿ëÇØ Áּż­ °¨»çÇÕ´Ï´Ù.