·Î±×ÀÎ
6
´Ù¼¼´ë(ºô¶ó)
ÀÎõÁö¹æ¹ý¿ø
 °¨Á¤°¡63,000,000 ¿ø
 ÃÖÀú°¡(70%) 44,100,000 ¿ø
 º¸Áõ±Ý(10%) 4,410,000 ¿ø
 Ã»±¸¾×70,000,000 ¿ø
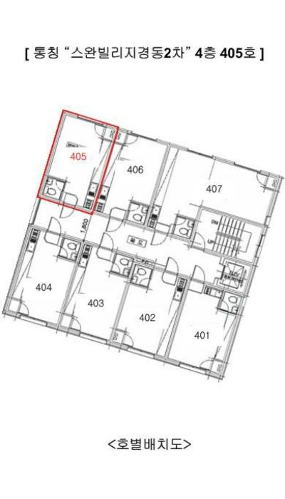
ÀÎõ±¤¿ª½Ã Áß±¸ °³Ç×·Î 63, 4Ãþ405È£
ÀÎõ±¤¿ª½Ã Áß±¸ °æµ¿ 239-3
»ç°Ç¹øÈ£ 2024Ÿ°æ557798
°æ¸ÅÁ¾·ùºÎµ¿»ê°­Á¦°æ¸Å
¸Å°¢´ë»óÅäÁö ¹× °Ç¹°Àϰý ¸Å°¢
¸Å°¢±âÀÏ    2025.11.26(¼ö) 10:00 ÀÔÂû 12ÀÏÀü    
ÅäÁö¸éÀû7.36§³(2.22 Æò)
°Ç¹°¸éÀû17.82§³(5.39 Æò)
乫/¼ÒÀ¯ÀÚº¯OO / º¯OO
ä±ÇÀÚÁÖOOOOOOO
ÆäÀ̽ººÏ Æ®À§ÅÍ ±¸±Û+
īī¿À½ºÅ丮
īī¿ÀÅå sms¹®ÀÚº¸³»±â
 

±âÀϳ»¿ª

°æ°ú ³¯Â¥ Àú°¨ ÃÖÀú°¡ °á°ú
Á¢¼öÀÏ 2024-08-30 °æ¸ÅÁ¢¼ö
~7ÀÏ 
2024-09-06 °æ¸Å°³½Ã°áÁ¤
~90ÀÏ 
2024-11-28 ¹è´ç¿ä±¸Á¾±âÀÏ
~375ÀÏ 
2025-09-09 100%
63,000,000
À¯Âû
~423ÀÏ 
2025-10-27 70%
44,100,000
º¯°æ
~423ÀÏ 
2025-10-27 100%
63,000,000
À¯Âû
~453ÀÏ 
2025-11-26 70%
44,100,000
ÁøÇà
¹°°Ç¸í¼¼¼­ ÇöȲÁ¶»ç¼­ ¹®°ÇÁ¢¼ö ¼Û´Þ³»¿ª

°¨Á¤Æò°¡ÇöȲ

¸ñ·Ï ÁÖ¼Ò ±¸Á¶/¿ëµµ/´ëÁö±Ç ¸éÀû ºñ°í
´ëÁö±Ç
°æµ¿ 239-3 282.4ºÐÀÇ 7.355 7.355 §³
(2.22Æò)
°Ç¹°
°æµ¿ 239-3 4Ãþ405È£ ö±ÙÄÜÅ©¸®Æ®±¸Á¶ 17.82 §³
(5.39Æò)
1) À§Ä¡/ÀϹݻó¾÷Áö¿ª/¹ö½ºÁ¤·ùÀå/ÁöÇÏö/ö±ÙÄÜÅ©¸®Æ®±¸Á¶ ´õº¸±â
°¨Á¤Æò°¡ ¿äÇ×Ç¥
1)À§Ä¡ ¹× ÁÖÀ§È¯°æ
´ë»ó¹°°ÇÀº ÀÎõ±¤¿ª½Ã Áß±¸ ´äµ¿ ¼ÒÀç "½ÅÈïÃʵîÇб³" ºÏÃø Àαٿ¡ À§Ä¡Çϸç, ºÎ±ÙÀº
°øµ¿ÁÖÅà ¹× °¢Á¾ ±Ù¸°»ýȰ½Ã¼³ µîÀÌ È¥ÀçÇÏ´Â Áö¿ªÀ¸·Î¼­ Á¦¹Ý ÁÖÀ§È¯°æÀº º¸ÅëÀÓ.
2)±³Åë»óȲ
´ë»ó¹°°Ç±îÁö í¶û µîÀÇ ÁøÃâÀÔÀÌ °¡´ÉÇϸç, Àαٿ¡ ¹ö½ºÁ¤·ùÀå ¹× ÁöÇÏö1È£¼± "µ¿ÀÎõ
¿ª" µîÀÌ ¼ÒÀçÇÏ¿© ´ëÁß±³Åë ÀÌ¿ëÆíÀÍÀº º¸ÅëÀÓ.
3)°Ç¹°ÀÇ ±¸Á¶
ö±ÙÄÜÅ©¸®Æ®±¸Á¶ (ö±Ù)ÄÜÅ©¸®Æ®ÁöºØ 6Ãþ °Ç¹° ³» 4Ãþ 405È£·Î¼­,
2012³â 06¿ù 21ÀÏ »ç¿ë½ÂÀεǾúÀ¸¸ç,
¿Ü º® : ¼®Àç ºÙÀÓ ¹× ÆäÀÎÆÃ ¸¶°¨ µî,
³» º® : º®Áöµµ¹è ¹× ÀϺΠŸÀϸ¶°¨ µî,
â È£ : ¼¦½Ãâ µîÀÓ.
4)ÀÌ¿ë»óÅÂ
´ë»ó¹°°ÇÀº µµ½ÃÇü-¿ø·ëÀ¸·Î ÀÌ¿ëÁßÀÓ.
(ÈÄ÷ "³»ºÎ±¸Á¶µµ" ÂüÁ¶)
5)¼³ºñ³»¿ª
±âº»ÀûÀÎ À§»ý¼³ºñ ¹× ±Þ¹è¼ö¼³ºñ, ³­¹æ¼³ºñ, ½Â°­±â¼³ºñ µîÀ» °®Ãß¾úÀ½.

6)ÅäÁöÀÇ Çü»ó ¹× ÀÌ¿ë»óÅÂ
´ëü·Î µî°íÆòźÇÑ »ç´Ù¸®ÇüÀÇ ÅäÁö·Î¼­, ¿¬¸³ÁÖÅà ¹× Á¦1Á¾±Ù¸°»ýȰ½Ã¼³, Á¦2Á¾±Ù¸°»ýȰ
½Ã¼³ °ÇºÎÁö·Î ÀÌ¿ëÁßÀÓ.
7)ÀÎÁ¢ µµ·Î»óŵî
´ë»ó¹°°Ç ³²ÃøÀ¸·Î ³ëÆø ¾à 12mÀÇ Æ÷Àåµµ·Î¿Í Á¢Çϸç, µµ·Î»óÅ º¸ÅëÀÓ.
8)ÅäÁöÀÌ¿ë°èȹ ¹× Á¦ÇÑ»óÅÂ
ÀϹݻó¾÷Áö¿ª(2017-08-28), ¹æÈ­Áö±¸, ½Ã°¡Áö°æ°üÁö±¸, Áß·Î3·ù(Æø 12m-15m)(2022-07-11)
(ÀúÃË), °ÇÃà¿ëµµÁö¿ª±âŸ(°ÇÃ༱ 2m(11Ãþ ÀÌ»óÀÎ °ÇÃ๰Àº 3m, °ÇÃà°ú·Î ¹®ÀÇ))<°ÇÃà¹ý>
, »ó´ëº¸È£±¸¿ª(2021-05-14)<±³À°È¯°æ º¸È£¿¡ °üÇÑ ¹ý·ü>, ¿ª»ç¹®È­È¯°æº¸Á¸Áö¿ª(2016-12
-26)(¹®È­À纸ȣ¹ý)<¹®È­À¯»êÀÇ º¸Á¸ ¹× Ȱ¿ë¿¡ °üÇÑ ¹ý·ü>, ¿ª»ç¹®È­È¯°æº¸Á¸Áö¿ª(2024-
06-10)(ÀÎõ±¤¿ª½Ã °í½Ã Á¦2024-149È£)<¹®È­À¯»êÀÇ º¸Á¸ ¹× Ȱ¿ë¿¡ °üÇÑ ¹ý·ü>, °ú¹Ð¾ïÁ¦
±Ç¿ª<¼öµµ±ÇÁ¤ºñ°èȹ¹ý>, Ưº°°ü¸®ÇØ¿ª(½ÃÈ­È£-ÀÎõ¿¬¾È(2007.04.16.))<ÇØ¾çȯ°æ°ü¸®¹ý>,
ÁßÁ¡°æ°ü°ü¸®±¸¿ª(2022-06-20)(°³Ç׿ª»ç¡¤¹®È­ ÁßÁ¡°æ°ü°ü¸®±¸¿ª).
9)°øºÎ¿ÍÀÇ Â÷ÀÌ
¾ø À½.
10)±âŸÂü°í»çÇ×(ÀÓ´ë°ü·Ê ¹× ±âŸ)
ÀÓ´ë°ü°è´Â ¹Ì»óÀÓ.
Âü°í
»çÇ×
- ¡®µµ½ÃÇü-¿ø·ë¡¯À¸·Î ÀÌ¿ë ÁßÀÓ.
- º»°ÇÀº ÀÎõ½ÅÈïÃʵîÇб³ ºÎ±Ù¿¡

°ÇÃ๰ÇöȲ

¼ÒÀçÁö ÀÎõ±¤¿ª½Ã Áß±¸ °æµ¿ 239-3¹øÁö
´ëÁö¸éÀû 282.4§³
(85.58Æò)
¿¬¸éÀû 968.79§³
(293.57Æò)
°ÇÃà¸éÀû 190.92§³
(57.85Æò)
¿ëÀû·ü»êÁ¤
¿¬¸éÀû
968.79§³
(293.57Æò)
°ÇÆóÀ² 67.61% ¿ëÀû·ü 343.06%
Áö»óÃþ¼ö 6Ãþ ÁöÇÏÃþ¼ö  
ÁÖ¿ëµµ °øµ¿ÁÖÅà ±¸Á¶ ö±ÙÄÜÅ©¸®Æ®±¸Á¶
Âø°øÀÏÀÚ 2011.10.27 »ç¿ë½ÂÀÎÀÏÀÚ 2012.06.21
°ÇÃ๰Ãþº°ÇöȲ [º¸±â]


±¹ÅäºÎ½Ç°Å·¡°¡ ÀÎõ±¤¿ª½Ã Áß±¸ °æµ¿

¡Ü ¸Å¸Å

¸éÀû(§³), ±Ý¾×(¸¸¿ø)

¡Ü Àü¼¼

¸éÀû(§³), ±Ý¾×(¸¸¿ø)

°è¾àÀϰǹ°¸íĪÃþ¿¬¸éÀûº¸Áõ±Ý¿ù¼¼°ÇÃà
25.09.17½º¿Ïºô¸®Áö°æµ¿2Â÷617.86300402012
25.09.09ÇØµ¿ºô¶ó153.428,0001991
24.11.30½º¿Ïºô¸®Áö°æµ¿2Â÷417.86200472012
24.11.16½º¿Ïºô¸®Áö°æµ¿2Â÷617.86500352012
24.11.15½º¿Ïºô¸®Áö°æµ¿2Â÷317.824,5002012
¢Ñ ´õº¸±â

µî±âºÎµîº» ¿ä¾à(°Ç¹°)

  Á¢¼öÀÏÀÚ µî±â¸ñÀû/±Ç¸®ÀÚ ±Ç¸®±Ý¾× ±âÁØ
1 2021³â9¿ù7ÀÏ
¼ÒÀ¯±Ç
º¯OO
¼Ò¸ê
2 2023³â7¿ù13ÀÏ
°¡¾Ð·ù
ÁÖOOOO
1,131,000,000 ¼Ò¸ê±âÁØ
3 2023³â8¿ù7ÀÏ
ÀÓÂ÷±Ç¼³Á¤
À¯OO
70,000,000 ¼Ò¸ê
4 2024³â9¿ù6ÀÏ
°­Á¦°æ¸Å
ÁÖOOOO
¼Ò¸ê

ÀÓÂ÷ÀÎÇöȲ (¹è´ç¿ä±¸Á¾±âÀÏ: 2024-11-28)

ÀÓÂ÷ÀÎ ¿ëµµ/Á¡À¯ º¸Áõ±Ý/¿ù¼¼ ´ëÇ×·Â
ÀüÀÔÀÏ/È®Á¤ÀÏ ¹è´ç¿ä±¸ ºñ°í
À¯OO 70,000,000
O
2021. 10. 8.
2021. 9. 14.
2021. 10. 8.~
ÁÖOOOOOOOOOOOOOOO ÀüºÎ 70,000,000
O
2021. 10. 8.
2021. 9. 14.
2024. 11. 23. 2021. 10. 8.~2023. 10. 7.
ºñ°í
(¸Å°¢¹°°Ç
¸í¼¼¼­)
- À¯Çö°æ: ÁÖÅÃÀÓÂ÷±Çµî±â±ÇÀڷμ­ ÁÖÅÃÀÓÂ÷±Çµî±âÀÏÀº 2023. 8. 7. ÀÓ. - ÁÖÅõµ½Ãº¸Áõ°ø»ç(ÀÓÂ÷ÀÎ À¯Çö°æ): °æ¸Å½Åû±ÇÀÚÀ̸ç ÁÖÅÃÀÓ´ëÂ÷º¸È£¹ý Á¦3Á¶ÀÇ2 Á¦7Ç× Á¦9È£ÀÇ ±â°üÀ¸·Î ÀÓÂ÷ÀÎ À¯Çö°æÀ¸·Î

¿©ÀÇÁÖ°æ¸Å Á¶¾ð ÇÑ ¸¶µð

¼±¼øÀ§ ÀÓÂ÷±Çµî±â°¡ µÇ¾î ÀÖ½À´Ï´Ù
´ëÇ×·ÂÀÌ ÀÖ´Â ¼±¼øÀ§ ÀÓÂ÷±Çµî±â ±Ç¸®ÀÚ°¡ ¹è´çÀ» Àü¾× ¹ÞÁö ¸øÇÒ °æ¿ì ³«ÂûÀÚ°¡ ÀÜ¿© º¸Áõ±ÝÀ» ÀμöÇØ¾ßÇÏ´Â °æ¿ìµµ ÀÖ½À´Ï´Ù.

ÁÖÀÇ»çÇ× (ÃÖ¼±¼øÀ§ ¼³Á¤ÀÏ: 2023. 7. 13. °¡¾Ð·ù ¼³Á¤)

¸Å°¢À¸·Î ¼Ò¸êµÇÁö ¾Ê´Â µî±âºÎ±Ç¸®: À»±¸ ¼øÀ§ 5¹ø ÁÖÅÃÀÓÂ÷±Çµî±â(´Ù¸¸ ÁÖÅõµ½Ãº¸Áõ°ø»çÀÇ ¸»¼Òµ¿ÀÇ È®¾à¼­°¡ Á¦ÃâµÊ)
¸Å°¢À¸·Î ¼³Á¤µÈ °ÍÀ¸·Î º¸´Â Áö»ó±Ç:
- ¡®µµ½ÃÇü-¿ø·ë¡¯À¸·Î ÀÌ¿ë ÁßÀÓ.
¡Ø¹Ì³³°ü¸®ºñ(°ø¿ë) Àμö¿©ºÎ¸¦ ÀÔÂû Àü¿¡ È®ÀÎÇϽñ⠹ٶø´Ï´Ù

 

Áö¿ªºÐ¼®

ÁöÇÏö¸í Á÷¼±°Å¸®

Çб³¸í ÀüÈ­¹øÈ£ ÁÖ¼Ò Á÷¼±°Å¸®

¹ý¿ø

ÀÎõÁö¹æ¹ý¿ø (222-20)ÀÎõ±¤¿ª½Ã ¹ÌÃßȦ±¸ ¼Ò¼º·Î 163¹ø±æ 17(ÇÐÀ͵¿)
´ëÇ¥ : 032)860-1113~4
°üÇÒÁö¿ª : Áß±¸, µ¿±¸, ³²±¸, ¿¬¼ö±¸, ³²µ¿±¸, ºÎÆò±¸, °è¾ç±¸, ¼­±¸, ¿ËÁø±º, °­È­±º

µî±â¼Ò ÀÎõÁö¹æ¹ý¿ø º»¿ø µî±â±¹ (´ëÇ¥:1544-0773, ÆÑ½º:(032)620-9099, ÀÎõ±¤¿ª½Ã ¹ÌÃßȦ±¸ °æ¿ø´ë·Î 881(Á־ȵ¿ 983))
¼¼¹«¼­ ÀÎõ¼¼¹«¼­ (´ëÇ¥:032-770-02, ÆÑ½º:032-777-8104, ÀÎõ±¤¿ª½Ã µ¿±¸ ¿ì°¢·Î 75 (⿵µ¿))

Àαٳ«ÂûÅë°è

±â°£ ¸Å°¢°Ç¼ö Æò±Õ°¨Á¤°¡
Æò±Õ¸Å°¢°¡
¸Å°¢°¡À²
Æò±ÕÀ¯Âû¼ö
3°³¿ù 7°Ç 419,403,143¿ø
320,527,430¿ø
56%
2.6ȸ
6°³¿ù 19°Ç 889,429,255¿ø
452,084,253¿ø
45%
3.1ȸ
12°³¿ù 40°Ç 625,900,110¿ø
336,992,520¿ø
49%
2.9ȸ


º» °æ¸ÅÁ¤º¸´Â ¹ý¿øÀÚ·á¿Í ÀÏÄ¡Çϵµ·Ï ÇÏ¿´À¸³ª ±Ç¸®»çÇ׺¯µ¿, ÀÔ·ÂÂø¿À µîÀÇ ¿øÀÎÀ¸·Î »ç½Ç°ú ´Ù¸¦ ¼ö ÀÖ½À´Ï´Ù. ÀÌ¿ë¾à°ü¿¡ ÀǰЏéÃ¥Á¶°ÇÀ¸·Î Á¦°øµÊÀ» ¾Ë¸®¸ç, °æ¸ÅÀÔÂû½Ã ¹Ýµå½Ã °ü·Ã °øºÎ¸¦ ÀçÈ®ÀÎÇϽñ⠹ٶø´Ï´Ù. º¸´Ù Æí¸®ÇÑ °æ¸ÅÁ¤º¸ Á¦°øÀ» À§ÇØ Áö¼ÓÀûÀ¸·Î °³¼±ÇϰڽÀ´Ï´Ù. ÀÌ¿ëÇØ Áּż­ °¨»çÇÕ´Ï´Ù.