·Î±×ÀÎ
148
ÁÖÅÃ
Á¦ÁÖÁö¹æ¹ý¿ø
 °¨Á¤°¡487,396,320 ¿ø
 ÃÖÀú°¡(49%) 238,824,000 ¿ø
 º¸Áõ±Ý(10%) 23,882,400 ¿ø
 Ã»±¸¾×318,730,020 ¿ø
Á¦ÁÖÆ¯º°ÀÚÄ¡µµ ¼­±ÍÆ÷½Ã Ç¥¼±¸é Ç¥¼±¸® 2498-14
»ç°Ç¹øÈ£ 2024Ÿ°æ32169
°æ¸ÅÁ¾·ùºÎµ¿»êÀÓÀǰæ¸Å
¸Å°¢´ë»óÅäÁö ¹× °Ç¹°Àϰý¸Å°¢
¸Å°¢±âÀÏ    2026.01.06(È­) 10:00 ÀÔÂû 11ÀÏÀü    
ÅäÁö¸éÀû456.00§³(137.94 Æò)
°Ç¹°¸éÀû139.44§³(42.18 Æò)
乫/¼ÒÀ¯ÀÚ±èOO / ÀÌOO¿Ü 1¸í
ä±ÇÀÚÁ¦OOOOOOOOOO
ÆäÀ̽ººÏ Æ®À§ÅÍ ±¸±Û+
īī¿À½ºÅ丮
īī¿ÀÅå sms¹®ÀÚº¸³»±â
 

±âÀϳ»¿ª

°æ°ú ³¯Â¥ Àú°¨ ÃÖÀú°¡ °á°ú
Á¢¼öÀÏ 2024-09-02 °æ¸ÅÁ¢¼ö
~30ÀÏ 
2024-10-02 °æ¸Å°³½Ã°áÁ¤
~122ÀÏ 
2025-01-02 ¹è´ç¿ä±¸Á¾±âÀÏ
~372ÀÏ 
2025-09-09 100%
487,396,320
À¯Âû
~414ÀÏ 
2025-10-21 70%
341,177,000
º¯°æ
~414ÀÏ 
2025-10-21 100%
487,396,320
À¯Âû
~449ÀÏ 
2025-11-25 70%
341,177,000
À¯Âû
~491ÀÏ 
2026-01-06 49%
238,824,000
ÁøÇà
¹°°Ç¸í¼¼¼­ ÇöȲÁ¶»ç¼­ ¹®°ÇÁ¢¼ö ¼Û´Þ³»¿ª

°¨Á¤Æò°¡ÇöȲ

¸ñ·Ï ÁÖ¼Ò ±¸Á¶/¿ëµµ/´ëÁö±Ç ¸éÀû ºñ°í
ÅäÁö
Ç¥¼±¸® 2498-14 ´ë 456 §³
(137.94Æò)
°Ç¹°
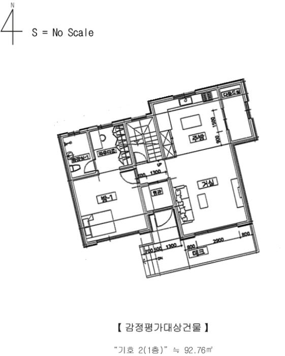
Ç¥¼±¸® 2498-14 1Ãþ ÁÖÅà ö±ÙÄÜÅ©¸®Æ®±¸Á¶ 92.76 §³
(28.06Æò)
Ç¥¼±¸® 2498-14 2Ãþ ÁÖÅà ö±ÙÄÜÅ©¸®Æ®±¸Á¶ 46.68 §³
(14.12Æò)
1) À§Ä¡/°èȹ°ü¸®Áö¿ª/Â÷·®Á¢±ÙÀÌ °¡´É/ö±ÙÄÜÅ©¸®Æ®±¸Á¶/½½·¡ºêÁöºØ/°¡½ºº¸ÀÏ·¯ ´õº¸±â
°¨Á¤Æò°¡ ¿äÇ×Ç¥
1)À§Ä¡ ¹× ÁÖÀ§È¯°æ
º»°ÇÀº ¼­±ÍÆ÷½Ã Ç¥¼±¸é Ç¥¼±¸® ¼ÒÀç "Ç¥¼±ÆÄÃâ¼Ò" ¼­Ãø ¿ø°Å¸®(¾à 1.26km)¿¡ À§Ä¡ÇÏ¸ç ºÎ±ÙÀº ³ó°æÁö(°ú¼ö¿ø µî)ÀÌ ÁÖ¸¦ ÀÌ·ç´Â Áö¿ªÀ¸·Î ´Üµ¶ÁÖÅà ´ÜÁö µîÀÌ Çü¼ºµÇ¾î ÀÖÀ½.
2)±³Åë»óȲ
º»°Ç±îÁö Â÷·®Á¢±ÙÀÌ °¡´ÉÇÏ¿© Á¦¹Ý±³Åë»çÁ¤Àº º¸ÅëÀÓ.
3)ÇüÅ ¹× ÀÌ¿ë»óÅÂ
ÀÎÁ¢µµ·Î ´ëºñ ´ëü·Î µî°í ÆòźÇÑ »ç´Ù¸®ÇüÀÇ ÅäÁö·Î¼­, ÁÖ°Å¿ë°ÇºÎÁö·Î ÀÌ¿ëÁßÀÓ.
4)ÀÎÁ¢ µµ·Î»óÅÂ
µ¿ÃøÀ¸·Î Æø ¾à 4m ³»¿ÜÀÇ ÄÜÅ©¸®Æ®Æ÷Àåµµ·Î¿¡ Á¢ÇÔ.
5)ÅäÁöÀÌ¿ë°èȹ ¹× Á¦ÇÑ»óÅÂ
°èȹ°ü¸®Áö¿ª, °¡Ãà»çÀ°Á¦Çѱ¸¿ª(2023. 10. 20. °í½Ã(1000m À̳» ÀϺÎÁ¦ÇÑ))<°¡ÃàºÐ´¢ÀÇ °ü¸® ¹× À̿뿡 °üÇÑ ¹ý·ü>, °æ°üº¸ÀüÁö±¸4µî±Þ<Á¦ÁÖÆ¯º°ÀÚÄ¡µµ ¼³Ä¡ ¹× ±¹Á¦ÀÚÀ¯µµ½Ã Á¶¼ºÀ» À§ÇÑ Æ¯º°¹ý>, »ýŰ躸ÀüÁö±¸5µî±Þ<Á¦ÁÖÆ¯º°ÀÚÄ¡µµ ¼³Ä¡ ¹× ±¹Á¦ÀÚÀ¯µµ½Ã Á¶¼ºÀ» À§ÇÑ Æ¯º°¹ý>, ÁöÇϼöÀÚ¿øº¸Àü3µî±Þ<Á¦ÁÖÆ¯º°ÀÚÄ¡µµ ¼³Ä¡ ¹× ±¹Á¦ÀÚÀ¯µµ½Ã Á¶¼ºÀ» À§ÇÑ Æ¯º°¹ý>ÀÓ.
6)Á¦½Ã¸ñ·Ï ¿ÜÀÇ ¹°°Ç
¾ø À½.
7)°øºÎ¿ÍÀÇ Â÷ÀÌ
¾ø À½.
8)±âŸÂü°í»çÇ×(ÀÓ´ë°ü·Ê ¹× ±âŸ)
ÀÓ´ë°ü°è´Â ¹Ì»óÀÓ.
1)°Ç¹°ÀÇ ±¸Á¶
±âÈ£2(´Üµ¶ÁÖÅÃ): ö±ÙÄÜÅ©¸®Æ®±¸Á¶ ½½·¡ºêÁöºØ 2Ãþ ±¸Á¶·Î¼­,
¿Ü º® : Á¦ÁÖ¼® ¹× ¡ũ, ½ºÅ¸ÄÚ¸¶°¨ µî, â È£ : ½Ã½ºÅÛâȣ µîÀÓ.
2)ÀÌ¿ë»óÅÂ
ÁÖÅÃÀ¸·Î ÀÌ¿ëÁßÀÓ.
3)¼³ºñ³»¿ª
±âº»ÀûÀÎ À§»ý¼³ºñ ¹× °¡½ºº¸ÀÏ·¯¿¡ ÀÇÇÑ ³­¹æ¼³ºñ°¡ µÇ¾î ÀÖÀ½.
4)ºÎÇÕ¹° ¹× Á¾¹°
¾ø À½.
5)°øºÎ¿ÍÀÇ Â÷ÀÌ
¾ø À½.
6)±âŸÂü°í»çÇ×(ÀÓ´ë°ü·Ê ¹× ±âŸ)
ÀÓ´ë°ü°è´Â ¹Ì»óÀÓ.
Âü°í
»çÇ×
Àϰý¸Å°¢, Á¶°æ¼ö¸ñ, µ¥Å©½Ã¼³ µî Æ÷ÇÔ Æò°¡
- ¼ÒÀçÁö1(Ç¥¼±¸® 2498-14) ´ëÁö(Á¦½Ã °Ç¹° ºÎÁöÀÓ. ÀϺÎÁö»ó¿¡ Á¶°æ¼ö°¡ ½ÄÀçµÇ¾î ÀÖÀ½) - ¼ÒÀçÁö2(ÀÏÁÖµ¿·Î 6062-105) Á¦½Ã °Ç¹° ö±ÙÄÜÅ©¸®Æ®±¸Á¶ ½½·¡ºêÁöºØ 2Ãþ ´Üµ¶ÁÖÅà 1Ãþ 92.76 §³ 2Ãþ 46.68 §³ µîÀÌ ¼ÒÀçÇÔ

°ÇÃ๰ÇöȲ

¼ÒÀçÁö Á¦ÁÖÆ¯º°ÀÚÄ¡µµ ¼­±ÍÆ÷½Ã Ç¥¼±¸é Ç¥¼±¸® 2498-14¹øÁö
´ëÁö¸éÀû 456§³
(138.18Æò)
¿¬¸éÀû 139.44§³
(42.25Æò)
°ÇÃà¸éÀû 92.76§³
(28.11Æò)
¿ëÀû·ü»êÁ¤
¿¬¸éÀû
139.44§³
(42.25Æò)
°ÇÆóÀ² 20.34% ¿ëÀû·ü 30.58%
Áö»óÃþ¼ö 2Ãþ ÁöÇÏÃþ¼ö  
ÁÖ¿ëµµ ´Üµ¶ÁÖÅà ±¸Á¶ ö±ÙÄÜÅ©¸®Æ®±¸Á¶
Âø°øÀÏÀÚ »ç¿ë½ÂÀÎÀÏÀÚ 2017.05.01
°ÇÃ๰Ãþº°ÇöȲ [º¸±â]


±¹ÅäºÎ½Ç°Å·¡°¡ Á¦ÁÖÆ¯º°ÀÚÄ¡µµ ¼­±ÍÆ÷½Ã Ç¥¼±¸é

¡Ü ¸Å¸Å

¸éÀû(§³), ±Ý¾×(¸¸¿ø)

¡Ü Àü¼¼

¸éÀû(§³), ±Ý¾×(¸¸¿ø)

°è¾àÀÏÀ¯Çü¿¬¸éÀû´ëÁö±Ý¾×°ÇÃà
24.03.21´Üµ¶162.09127931,8001960
24.03.04´Üµ¶86.571531,0002009
24.02.22´Üµ¶91.4435312,6001988
24.02.19´Üµ¶52.8927310,0001998
24.02.16´Üµ¶63.6920623,0002023
¢Ñ ´õº¸±â

µî±âºÎµîº» ¿ä¾à(ÅäÁö)

  Á¢¼öÀÏÀÚ µî±â¸ñÀû/±Ç¸®ÀÚ ±Ç¸®±Ý¾× ±âÁØ
1 2018³â12¿ù31ÀÏ
¼ÒÀ¯±Ç
ÀÌOO
¼Ò¸ê
2 2018³â12¿ù31ÀÏ
¼ÒÀ¯±Ç
±èOO
¼Ò¸ê
3 2016³â7¿ù14ÀÏ
±ÙÀú´ç±Ç
Á¦OOOO
117,000,000 ¼Ò¸ê±âÁØ
4 2016³â7¿ù14ÀÏ
Áö»ó±Ç
Á¦OOOO
¼Ò¸ê
5 2016³â11¿ù1ÀÏ
±ÙÀú´ç±Ç
Á¦OOOO
39,000,000 ¼Ò¸ê
6 2017³â5¿ù4ÀÏ
±ÙÀú´ç±Ç
Á¦OOOO
390,000,000 ¼Ò¸ê
7 2024³â10¿ù2ÀÏ
ÀÓÀǰæ¸Å
Á¦OOOO
¼Ò¸ê

µî±âºÎµîº» ¿ä¾à(°Ç¹°)

  Á¢¼öÀÏÀÚ µî±â¸ñÀû/±Ç¸®ÀÚ ±Ç¸®±Ý¾× ±âÁØ
1 2018³â12¿ù31ÀÏ
¼ÒÀ¯±Ç
ÀÌOO
¼Ò¸ê
2 2018³â12¿ù31ÀÏ
¼ÒÀ¯±Ç
±èOO
¼Ò¸ê
3 2017³â5¿ù4ÀÏ
±ÙÀú´ç±Ç
Á¦OOOO
390,000,000 ¼Ò¸ê±âÁØ
4 2024³â10¿ù2ÀÏ
ÀÓÀǰæ¸Å
Á¦OOOO
¼Ò¸ê

ÀÓÂ÷ÀÎÇöȲ (¹è´ç¿ä±¸Á¾±âÀÏ: 2025-01-02)


Á¶»çµÈ ÀÓÂ÷³»¿ªÀÌ ¾ø½À´Ï´Ù


¿©ÀÇÁÖ°æ¸Å Á¶¾ð ÇÑ ¸¶µð


ÁÖÀÇ»çÇ× (ÃÖ¼±¼øÀ§ ¼³Á¤ÀÏ: ¸ñ·Ï1.2016.07.14.±ÙÀú´ç±Ç ¼³Á¤ ¸ñ·Ï2.2017.05.04.±ÙÀú´ç±Ç)

¸Å°¢À¸·Î ¼Ò¸êµÇÁö ¾Ê´Â µî±âºÎ±Ç¸®: ÇØ´ç»çÇ×¾øÀ½
¸Å°¢À¸·Î ¼³Á¤µÈ °ÍÀ¸·Î º¸´Â Áö»ó±Ç: ÇØ´ç»çÇ×¾øÀ½
1. Àϰý¸Å°¢ 2. Á¶°æ¼ö¸ñ, µ¥Å©½Ã¼³ µî Æ÷ÇÔ Æò°¡
¡Ø¹Ì³³°ü¸®ºñ(°ø¿ë) Àμö¿©ºÎ¸¦ ÀÔÂû Àü¿¡ È®ÀÎÇϽñ⠹ٶø´Ï´Ù

 

Áö¿ªºÐ¼®

ÁöÇÏö¸í Á÷¼±°Å¸®

Çб³¸í ÀüÈ­¹øÈ£ ÁÖ¼Ò Á÷¼±°Å¸®

¹ý¿ø

Á¦ÁÖÁö¹æ¹ý¿ø (632-23)Á¦ÁÖÆ¯º°ÀÚÄ¡µµ Á¦Áֽà ³²±¤ºÏ5±æ 3 (À̵µ2µ¿)
´ëÇ¥ : 064)729-2000
°üÇÒÁö¿ª : Á¦ÁÖ½Ã, ¼­±ÍÆ÷½Ã

µî±â¼Ò Á¦ÁÖÁö¹æ¹ý¿ø º»¿ø ¼­±ÍÆ÷µî±â¼Ò (´ëÇ¥:1544-0773, ÆÑ½º:(064)762-1039, Á¦ÁÖÆ¯º°ÀÚÄ¡µµ ¼­±ÍÆ÷½Ã ÀÏÁÖµ¿·Î 8690(¼­È«µ¿ 441-15))
¼¼¹«¼­ Á¦ÁÖ¼¼¹«¼­ (´ëÇ¥:064-720-52, ÆÑ½º:064-724-1107, Á¦ÁÖÆ¯º°ÀÚÄ¡µµ Á¦Áֽà û»ç·Î 59 (µµ³²µ¿))

Àαٳ«ÂûÅë°è

±â°£ ¸Å°¢°Ç¼ö Æò±Õ°¨Á¤°¡
Æò±Õ¸Å°¢°¡
¸Å°¢°¡À²
Æò±ÕÀ¯Âû¼ö
3°³¿ù 7°Ç 925,908,400¿ø
395,674,714¿ø
48%
2.7ȸ
6°³¿ù 12°Ç 777,649,703¿ø
371,250,250¿ø
56%
2.3ȸ
12°³¿ù 16°Ç 688,978,675¿ø
356,400,188¿ø
60%
2.1ȸ


º» °æ¸ÅÁ¤º¸´Â ¹ý¿øÀÚ·á¿Í ÀÏÄ¡Çϵµ·Ï ÇÏ¿´À¸³ª ±Ç¸®»çÇ׺¯µ¿, ÀÔ·ÂÂø¿À µîÀÇ ¿øÀÎÀ¸·Î »ç½Ç°ú ´Ù¸¦ ¼ö ÀÖ½À´Ï´Ù. ÀÌ¿ë¾à°ü¿¡ ÀǰЏéÃ¥Á¶°ÇÀ¸·Î Á¦°øµÊÀ» ¾Ë¸®¸ç, °æ¸ÅÀÔÂû½Ã ¹Ýµå½Ã °ü·Ã °øºÎ¸¦ ÀçÈ®ÀÎÇϽñ⠹ٶø´Ï´Ù. º¸´Ù Æí¸®ÇÑ °æ¸ÅÁ¤º¸ Á¦°øÀ» À§ÇØ Áö¼ÓÀûÀ¸·Î °³¼±ÇϰڽÀ´Ï´Ù. ÀÌ¿ëÇØ Áּż­ °¨»çÇÕ´Ï´Ù.