·Î±×ÀÎ
103
´Ù¼¼´ë(ºô¶ó)
¼­¿ï³²ºÎÁö¹æ¹ý¿ø
 °¨Á¤°¡290,000,000 ¿ø
 ÃÖÀú°¡(51%) 148,480,000 ¿ø
 º¸Áõ±Ý(10%) 14,848,000 ¿ø
 Ã»±¸¾×55,162,739 ¿ø
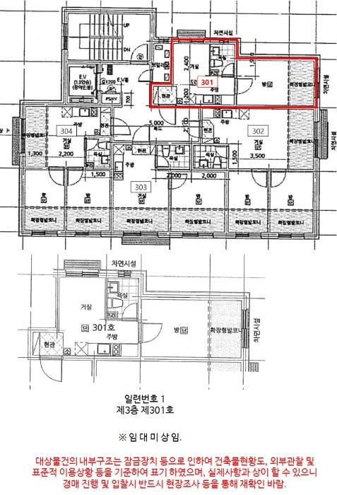
¼­¿ïƯº°½Ã ¿µµîÆ÷±¸ µµ¿µ·Î11±æ 8-6, Á¦3Ãþ Á¦301È£
¼­¿ïƯº°½Ã ¿µµîÆ÷±¸ µµ¸²µ¿ 187-61
»ç°Ç¹øÈ£ 2025Ÿ°æ5336
°æ¸ÅÁ¾·ùºÎµ¿»ê°­Á¦°æ¸Å
¸Å°¢´ë»óÅäÁö ¹× °Ç¹°Àϰý ¸Å°¢
¸Å°¢±âÀÏ    2026.01.22(¸ñ) 10:00 ÀÔÂû 28ÀÏÀü    
ÅäÁö¸éÀû13.81§³(4.18 Æò)
°Ç¹°¸éÀû22.48§³(6.80 Æò)
乫/¼ÒÀ¯ÀÚ¼­OOOOO OOOO / ¼­OOOOO OOOO
ä±ÇÀÚÃÖOO
ÆäÀ̽ººÏ Æ®À§ÅÍ ±¸±Û+
īī¿À½ºÅ丮
īī¿ÀÅå sms¹®ÀÚº¸³»±â
 

±âÀϳ»¿ª

°æ°ú ³¯Â¥ Àú°¨ ÃÖÀú°¡ °á°ú
Á¢¼öÀÏ 2025-01-09 °æ¸ÅÁ¢¼ö
~4ÀÏ 
2025-01-13 °æ¸Å°³½Ã°áÁ¤
~96ÀÏ 
2025-04-15 ¹è´ç¿ä±¸Á¾±âÀÏ
~237ÀÏ 
2025-09-03 100%
290,000,000
À¯Âû
~292ÀÏ 
2025-10-28 80%
232,000,000
À¯Âû
~322ÀÏ 
2025-11-27 64%
185,600,000
À¯Âû
~378ÀÏ 
2026-01-22 51%
148,480,000
ÁøÇà
¹°°Ç¸í¼¼¼­ ÇöȲÁ¶»ç¼­ ¹®°ÇÁ¢¼ö ¼Û´Þ³»¿ª

°¨Á¤Æò°¡ÇöȲ

¸ñ·Ï ÁÖ¼Ò ±¸Á¶/¿ëµµ/´ëÁö±Ç ¸éÀû ºñ°í
´ëÁö±Ç
µµ¸²µ¿ 187-61 310ºÐÀÇ 13.81 13.81 §³
(4.18Æò)
°Ç¹°
µµ¸²µ¿ 187-61 Á¦3Ãþ Á¦301È£ ö±ÙÄÜÅ©¸®Æ®±¸Á¶ 22.48 §³
(6.80Æò)
1) À§Ä¡/µµ½ÃÁö¿ª/Áذø¾÷Áö¿ª/¹ö½ºÁ¤·ùÀå/ÁöÇÏö/ö±ÙÄÜÅ©¸®Æ®±¸Á¶ ´õº¸±â
°¨Á¤Æò°¡ ¿äÇ×Ç¥
1)À§Ä¡ ¹× ÁÖÀ§È¯°æ
´ë»ó¹°°ÇÀº ¼­¿ïƯº°½Ã ¿µµîÆ÷±¸ µµ¸²µ¿ ¼ÒÀç "µµ¸²µ¿ Áֹμ¾ÅÍ" ºÏµ¿Ãø Àαٿ¡ À§Ä¡Çϸç,
ÁÖÀ§´Â ´Üµ¶ÁÖÅÃ, ´Ù¼¼´ëÁÖÅà ¹× ±Ù¸°»ýȰ½Ã¼³ µîÀÌ ¼ÒÀçÇÏ´Â µî ÁÖÀ§È¯°æÀº º¸ÅëÀÓ.
2)±³Åë»óȲ
´ë»ó¹°°Ç±îÁö Â÷·®ÀÇ Áø¡¤ÃâÀÔ °¡´ÉÇϸç Àαٿ¡ ¹ö½ºÁ¤·ùÀå ¹× ÁöÇÏö¿ª µîÀÌ ¼ÒÀçÇÏ´Â µî
±³Åë»óȲÀº º¸ÅëÀÓ.
3)°Ç¹°ÀÇ ±¸Á¶
ö±ÙÄÜÅ©¸®Æ®±¸Á¶ (ö±Ù)ÄÜÅ©¸®Æ®ÁöºØ 6Ãþ °Ç¹° ³» Á¦3Ãþ Á¦301È£·Î¼­,
¿Ü º® : ¼®ÀçºÙÀÓ ¸¶°¨ µî,
â È£ : »õ½Ã âȣ µîÀÓ.
4)ÀÌ¿ë»óÅÂ
ÀϷùøÈ£ 1Àº ¡®´Ù¼¼´ëÁÖÅá¯À¸·Î ÀÌ¿ëÁßÀÓ.
5)¼³ºñ³»¿ª
Åë»óÀÇ ±Þ¡¤¹è¼ö¼³ºñ ¹× À§»ý¼³ºñ, ³­¹æ¼³ºñ, ½Â°­±â¼³ºñ µîÀÌ µÇ¾îÀÖÀ½.




6)ÅäÁöÀÇ Çü»ó ¹× ÀÌ¿ë»óÅÂ
ÀÎÁ¢ÇÊÁö ´ëºñ µî°íÆòźÇÑ 2ÇÊ ÀÏ´ÜÀÇ »ç´Ù¸®Çü ÅäÁö·Î¼­, °ÇºÎÁö·Î ÀÌ¿ëÁßÀÓ.
7)ÀÎÁ¢ µµ·Î»óŵî
´ë»ó¹°°ÇÀÇ ¼­Ãø ¹× ³²ÃøÀ¸·Î µµ·Î¿¡ Á¢ÇÔ.
8)ÅäÁöÀÌ¿ë°èȹ ¹× Á¦ÇÑ»óÅÂ
µµ¸²µ¿ 187-61 ¹× 187-5 °øÈ÷,
µµ½ÃÁö¿ª, Áذø¾÷Áö¿ª, °¡Ãà»çÀ°Á¦Çѱ¸¿ª((¿¹¿Ü : ¾Ö¿Ï ¹× ¹æ¹ü¿ë °¡Ãà)Áö¿ª°æÁ¦°ú ¹®ÀÇ)
<°¡ÃàºÐ´¢ÀÇ °ü¸® ¹× À̿뿡 °üÇÑ ¹ý·ü>, °¡·Î±¸¿ªº° ÃÖ°í³ôÀÌ Á¦ÇÑÁö¿ª(2015-08-27)(°ÇÃà°ú
¹®ÀÇ)<°ÇÃà¹ý>, ±³À°È¯°æº¸È£±¸¿ª(¼¼ºÎ»çÇ× : ³²ºÎ±³À°Ã»¿¡ ¹Ýµå½Ã È®ÀÎ ¿ä¸Á)<±³À°È¯°æ
º¸È£¿¡ °üÇÑ ¹ý·ü>, ´ë°ø¹æ¾îÇùÁ¶±¸¿ª(À§Å¹°íµµ:ÇØ¹ß165m(Áö¹Ý+°ÇÃà+¿Áž µî),À°±º ¼öµµ¹æÀ§
»ç·ÉºÎ(02-524-3146)°üÇÒ)<±º»ç±âÁö ¹× ±º»ç½Ã¼³ º¸È£¹ý>, °ú¹Ð¾ïÁ¦±Ç¿ª(¼¼ºÎ»çÇ× : ¼­¿ï
½Ãû µµ½Ã°èȹ°ú ¹®ÀÇ)<¼öµµ±ÇÁ¤ºñ°èȹ¹ý>.
9)°øºÎ¿ÍÀÇ Â÷ÀÌ
¾øÀ½.
10)±âŸÂü°í»çÇ×(ÀÓ´ë°ü·Ê ¹× ±âŸ)
ÀÓ´ë°ü°è´Â ¹Ì»óÀ̸ç, ±âŸ»çÇ× ¾øÀ½.

°ÇÃ๰ÇöȲ

¼ÒÀçÁö ¼­¿ïƯº°½Ã ¿µµîÆ÷±¸ µµ¸²µ¿ 187-61¹øÁö
´ëÁö¸éÀû 286§³
(86.67Æò)
¿¬¸éÀû 711.31§³
(215.55Æò)
°ÇÃà¸éÀû 167.07§³
(50.63Æò)
¿ëÀû·ü»êÁ¤
¿¬¸éÀû
711.31§³
(215.55Æò)
°ÇÆóÀ² 58.42% ¿ëÀû·ü 248.71%
Áö»óÃþ¼ö 6Ãþ ÁöÇÏÃþ¼ö  
ÁÖ¿ëµµ °øµ¿ÁÖÅà ±¸Á¶ ö±ÙÄÜÅ©¸®Æ®±¸Á¶
Âø°øÀÏÀÚ 2022.05.13 »ç¿ë½ÂÀÎÀÏÀÚ 2023.10.04
°ÇÃ๰Ãþº°ÇöȲ [º¸±â]


±¹ÅäºÎ½Ç°Å·¡°¡ ¼­¿ïƯº°½Ã ¿µµîÆ÷±¸ µµ¸²µ¿

¡Ü ¸Å¸Å

¸éÀû(§³), ±Ý¾×(¸¸¿ø)

¡Ü Àü¼¼

¸éÀû(§³), ±Ý¾×(¸¸¿ø)

°è¾àÀϰǹ°¸íĪÃþ¿¬¸éÀû´ëÁö±Ý¾×°ÇÃà
24.03.25·ÎÁîÈú217.2512.23825,0002023
24.03.21µµ¸²ºô¶ó(84-0)141.8834.2439,0001991
24.03.15´õŬ·¡½Ä(250-4)528.5117.43640,0002020
24.03.14°í·Á·Î¾âŸ¿î°¡µ¿(234-17)272.094156,0002003
24.03.06È£¾ÏÆÄÅ©ºô329.9517.0625,0002015
¢Ñ ´õº¸±â

µî±âºÎµîº» ¿ä¾à(°Ç¹°)

  Á¢¼öÀÏÀÚ µî±â¸ñÀû/±Ç¸®ÀÚ ±Ç¸®±Ý¾× ±âÁØ
1 2024³â6¿ù17ÀÏ
¼ÒÀ¯±Ç
¼­OOOO
¼Ò¸ê
2 2025³â1¿ù10ÀÏ
¾Ð·ù
¼­OOOO
¼Ò¸ê±âÁØ
3 2025³â1¿ù13ÀÏ
°­Á¦°æ¸Å
ÃÖOO
¼Ò¸ê
4 2025³â2¿ù4ÀÏ
¾Ð·ù
±¹OOOO
¼Ò¸ê

ÀÓÂ÷ÀÎÇöȲ (¹è´ç¿ä±¸Á¾±âÀÏ: 2025-04-15)

ÀÓÂ÷ÀÎ ¿ëµµ/Á¡À¯ º¸Áõ±Ý/¿ù¼¼ ´ëÇ×·Â
ÀüÀÔÀÏ/È®Á¤ÀÏ ¹è´ç¿ä±¸ ºñ°í
±èOO 301È£ 190,000,000
O
2024.06.17.
2024.05.31.
2025.3.21. 2024.06.17.~

¿©ÀÇÁÖ°æ¸Å Á¶¾ð ÇÑ ¸¶µð

ÃëÇÏ ¶Ç´Â Ãë¼ÒµÉ °¡´É¼º ÀÖ½À´Ï´Ù
ÀÌ ¹°°ÇÀÇ °¨Á¤°¡°ÝÀº 290,000,000¿øÀÔ´Ï´Ù. °æ¸Å¸¦ ½ÅûÇÑ Ã¤±ÇÀÚ°¡ ¹è´ç ¹Þ¾Æ¾ß ÇÒ ±Ý¾×Àº 55,162,739¿øÀ¸·Î °¨Á¤°¡°Ý ´ëºñ »ó´çÈ÷ ÀûÀº ±Ý¾×ÀÔ´Ï´Ù. ÀÌ·± °æ¿ì, 乫°¡°¡ º¯Á¦ÇÏ¿© °æ¸Å¸¦ ÃëÇϽÃŰ°Å³ª °æ¸Å½Åûä±ÇÀÚ°¡ ¹è´ç¹ÞÀº ±Ý¿øÀÌ ¾ø°ÔµÇ¾î À̸¥ ¹Ù "¹«À׿©¿¡ ÀÇÇÑ Ãë¼Ò"°¡ µÉ °¡´É¼ºÀÌ ÀÖ½À´Ï´Ù.

ÁÖÀÇ»çÇ× (ÃÖ¼±¼øÀ§ ¼³Á¤ÀÏ: 2025.01.10. ¾Ð·ù ¼³Á¤)

¸Å°¢À¸·Î ¼Ò¸êµÇÁö ¾Ê´Â µî±âºÎ±Ç¸®:
¸Å°¢À¸·Î ¼³Á¤µÈ °ÍÀ¸·Î º¸´Â Áö»ó±Ç:
¡Ø¹Ì³³°ü¸®ºñ(°ø¿ë) Àμö¿©ºÎ¸¦ ÀÔÂû Àü¿¡ È®ÀÎÇϽñ⠹ٶø´Ï´Ù

 

Áö¿ªºÐ¼®

ÁöÇÏö¸í Á÷¼±°Å¸®

Çб³¸í ÀüÈ­¹øÈ£ ÁÖ¼Ò Á÷¼±°Å¸®

¹ý¿ø

¼­¿ï³²ºÎÁö¹æ¹ý¿ø (080-88)¼­¿ïƯº°½Ã ¾çõ±¸ ½Å¿ù·Î 386(½ÅÁ¤µ¿)
´ëÇ¥ : 02)2192-1114
°üÇÒÁö¿ª : ¿µµîÆ÷±¸, °­¼­±¸, ¾çõ±¸, ±¸·Î±¸, ±Ýõ±¸

µî±â¼Ò ¼­¿ï³²ºÎÁö¹æ¹ý¿ø º»¿ø µî±â±¹ (´ëÇ¥:1544-0773, ÆÑ½º:(02)2629-7307, ¼­¿ïƯº°½Ã ¿µµîÆ÷±¸ °æÀηΠ772 (¹®·¡µ¿ 1°¡))
¼¼¹«¼­ µ¿ÀÛ¼¼¹«¼­ (´ëÇ¥:02-840-920, ÆÑ½º:02-831-4137, ¼­¿ïƯº°½Ã ¿µµîÆ÷±¸ ´ë¹æÃµ·Î 259 (½Å±æµ¿))

Àαٳ«ÂûÅë°è

±â°£ ¸Å°¢°Ç¼ö Æò±Õ°¨Á¤°¡
Æò±Õ¸Å°¢°¡
¸Å°¢°¡À²
Æò±ÕÀ¯Âû¼ö
3°³¿ù 21°Ç 297,100,190¿ø
244,588,609¿ø
84%
1.8ȸ
6°³¿ù 42°Ç 301,002,476¿ø
247,550,290¿ø
83%
1.8ȸ
12°³¿ù 68°Ç 290,711,824¿ø
232,553,298¿ø
79%
2ȸ


º» °æ¸ÅÁ¤º¸´Â ¹ý¿øÀÚ·á¿Í ÀÏÄ¡Çϵµ·Ï ÇÏ¿´À¸³ª ±Ç¸®»çÇ׺¯µ¿, ÀÔ·ÂÂø¿À µîÀÇ ¿øÀÎÀ¸·Î »ç½Ç°ú ´Ù¸¦ ¼ö ÀÖ½À´Ï´Ù. ÀÌ¿ë¾à°ü¿¡ ÀǰЏéÃ¥Á¶°ÇÀ¸·Î Á¦°øµÊÀ» ¾Ë¸®¸ç, °æ¸ÅÀÔÂû½Ã ¹Ýµå½Ã °ü·Ã °øºÎ¸¦ ÀçÈ®ÀÎÇϽñ⠹ٶø´Ï´Ù. º¸´Ù Æí¸®ÇÑ °æ¸ÅÁ¤º¸ Á¦°øÀ» À§ÇØ Áö¼ÓÀûÀ¸·Î °³¼±ÇϰڽÀ´Ï´Ù. ÀÌ¿ëÇØ Áּż­ °¨»çÇÕ´Ï´Ù.