·Î±×ÀÎ
162
´Ù°¡±¸ÁÖÅÃ
ÀÇÁ¤ºÎÁö¹æ¹ý¿ø °í¾çÁö¿ø
 °¨Á¤°¡491,957,640 ¿ø
 ÃÖÀú°¡(24%) 118,120,000 ¿ø
 º¸Áõ±Ý(10%) 11,812,000 ¿ø
 Ã»±¸¾×220,636,800 ¿ø
°æ±âµµ ÆÄÁֽà ¿ù·Õ¸é ´É»ê¸® 287-4
»ç°Ç¹øÈ£ 2024Ÿ°æ9477
°æ¸ÅÁ¾·ùºÎµ¿»êÀÓÀǰæ¸Å
¸Å°¢´ë»óÅäÁö ¹× °Ç¹°Àϰý¸Å°¢
¸Å°¢±âÀÏ    2026.02.04(¼ö) 10:00 ÀÔÂû 26ÀÏÀü    
ÅäÁö¸éÀû270.00§³(81.68 Æò)
°Ç¹°¸éÀû281.58§³(85.18 Æò)
乫/¼ÒÀ¯ÀÚÀ±OO / À¯OO
ä±ÇÀÚÀ¯OOOOOOOOOOOOOOOOO
ÆäÀ̽ººÏ Æ®À§ÅÍ ±¸±Û+
īī¿À½ºÅ丮
īī¿ÀÅå sms¹®ÀÚº¸³»±â
 

±âÀϳ»¿ª

°æ°ú ³¯Â¥ Àú°¨ ÃÖÀú°¡ °á°ú
Á¢¼öÀÏ 2024-12-20 °æ¸ÅÁ¢¼ö
~3ÀÏ 
2024-12-23 °æ¸Å°³½Ã°áÁ¤
~91ÀÏ 
2025-03-21 ¹è´ç¿ä±¸Á¾±âÀÏ
~257ÀÏ 
2025-09-03 100%
491,957,640
À¯Âû
~299ÀÏ 
2025-10-15 70%
344,370,000
À¯Âû
~334ÀÏ 
2025-11-19 49%
241,059,000
À¯Âû
~369ÀÏ 
2025-12-24 34%
168,741,000
À¯Âû
~411ÀÏ 
2026-02-04 24%
118,120,000
ÁøÇà
¹°°Ç¸í¼¼¼­ ÇöȲÁ¶»ç¼­ ¹®°ÇÁ¢¼ö ¼Û´Þ³»¿ª

°¨Á¤Æò°¡ÇöȲ

¸ñ·Ï ÁÖ¼Ò ±¸Á¶/¿ëµµ/´ëÁö±Ç ¸éÀû ºñ°í
ÅäÁö
´É»ê¸® 287-4 ´ë 270 §³
(81.68Æò)
°Ç¹°
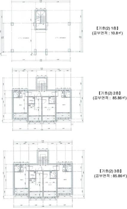
´É»ê¸® 287-4 1Ãþ °è´Ü½Ç ö±ÙÄÜÅ©¸®Æ®±¸Á¶ 10.8 §³
(3.27Æò)
´É»ê¸® 287-4 2Ãþ ´Ù°¡±¸ÁÖÅà ö±ÙÄÜÅ©¸®Æ®±¸Á¶ 85.86 §³
(25.97Æò)
´É»ê¸® 287-4 3Ãþ ´Ù°¡±¸ÁÖÅà ö±ÙÄÜÅ©¸®Æ®±¸Á¶ 85.86 §³
(25.97Æò)
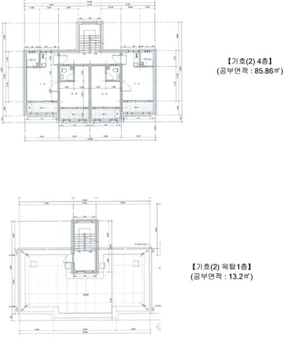
´É»ê¸® 287-4 4Ãþ ´Ù°¡±¸ÁÖÅà ö±ÙÄÜÅ©¸®Æ®±¸Á¶ 85.86 §³
(25.97Æò)
´É»ê¸® 287-4 ¿Áž1Ãþ °è´Ü½Ç ö±ÙÄÜÅ©¸®Æ®±¸Á¶ 13.2 §³
(3.99Æò)
1) À§Ä¡/°èȹ°ü¸®Áö¿ª/¹ö½ºÁ¤·ùÀå/ÁÖÂ÷Àå/ö±ÙÄÜÅ©¸®Æ®±¸Á¶ ´õº¸±â
°¨Á¤Æò°¡ ¿äÇ×Ç¥
1)À§Ä¡ ¹× ÁÖÀ§È¯°æ
º»°ÇÀº °æ±âµµ ÆÄÁֽà ¿ù·Õ¸é ´É»ê¸® ¼ÒÀç "¼­¿µ´ëÇб³ ÆÄÁÖÄ·ÆÛ½º" ºÏ¼­Ãø Àαٿ¡
À§Ä¡Çϸç, ÀÏ´ë´Â ´Ù°¡±¸ÁÖÅà ¹× ´Üµ¶ÁÖÅÃ, ³ó°æÁö µîÀÌ È¥ÀçÇÏ´Â ¸¶À»ÁÖº¯ ³ó°æÁö´ë
ÀÔ´Ï´Ù.


2)±³Åë»óȲ
º»°Ç±îÁö Â÷·® ÁøÃâÀÔ ÀÚÀ¯·Ó°í Àαٿ¡ ¹ö½ºÁ¤·ùÀåÀÌ ¼ÒÀçÇÏ¿© ´ëÁß±³Åë À̿뿩°ÇÀº
º¸Åë½ÃµË´Ï´Ù.


3)ÇüÅ ¹× ÀÌ¿ë»óÅÂ
ÀÎÁ¢Áö¿Í µî°íÆòźÇÑ Á¤¹æÇüÀÇ ÅäÁö·Î¼­, ´Üµ¶ÁÖÅà °ÇºÎÁö·Î ÀÌ¿ëÁßÀÔ´Ï´Ù.


4)ÀÎÁ¢ µµ·Î»óÅÂ
º»°Ç ³²¼­ÃøÀ¸·Î µµ·Î Æø ¾à 6¹ÌÅÍ ³»¿ÜÀÇ ´ÜÁö³» µµ·Î¿Í Á¢Çϸç, À̸¦ ÅëÇÏ¿©
¿ÜºÎ °øµµ¿Í ¿¬°èµË´Ï´Ù.


5)ÅäÁöÀÌ¿ë°èȹ ¹× Á¦ÇÑ»óÅÂ
°èȹ°ü¸®Áö¿ª, °¡Ãà»çÀ°Á¦Çѱ¸¿ª(¸ðµçÃàÁ¾ »çÀ°Á¦ÇÑ)<°¡ÃàºÐ´¢ÀÇ °ü¸® ¹× À̿뿡 °üÇÑ ¹ý·ü>, ±º»ç±âÁö ¹× ±º»ç½Ã¼³±âŸ(15¹ÌÅÍÀ§ÀÓ)<±º»ç±âÁö ¹× ±º»ç½Ã¼³ º¸È£¹ý>, Á¦ÇѺ¸È£±¸¿ª(Àü¹æÁö¿ª:25km)<±º»ç±âÁö ¹× ±º»ç½Ã¼³ º¸È£¹ý>.


6)Á¦½Ã¸ñ·Ï ¿ÜÀÇ ¹°°Ç
¾ø½À´Ï´Ù.


7)°øºÎ¿ÍÀÇ Â÷ÀÌ
¾ø½À´Ï´Ù.


8)±âŸÂü°í»çÇ×(ÀÓ´ë°ü·Ê ¹× ±âŸ)
ÀÓ´ë°ü°è: ¹Ì»óÀÔ´Ï´Ù.
±âŸ: ¾ø½À´Ï´Ù.
1)°Ç¹°ÀÇ ±¸Á¶
ö±ÙÄÜÅ©¸®Æ®±¸Á¶ ±âŸÁöºØ 4Ãþ °ÇÀ¸·Î¼­,
¿Üº®: ¼®Àç ¹× º®µ¹½×±â µî.
âȣ: ¼¦½ÃÀ¯¸®Ã¢.


2)ÀÌ¿ë»óÅÂ
´Üµ¶ÁÖÅÃ(´Ù°¡±¸ÁÖÅÃ)À¸·Î ÀÌ¿ëÁßÀÔ´Ï´Ù.


3)¼³ºñ³»¿ª
À§»ý ¹× ±Þ¹è¼ö¼³ºñ, ÁÖÂ÷Àå½Ã¼³, ³­¹æ¼³ºñ µîÀÌ µÇ¾îÀÖ½À´Ï´Ù.


4)ºÎÇÕ¹° ¹× Á¾¹°
¦¡


5)°øºÎ¿ÍÀÇ Â÷ÀÌ
¾ø½À´Ï´Ù.


6)±âŸÂü°í»çÇ×(ÀÓ´ë°ü·Ê ¹× ±âŸ)
ÀÓ´ë°ü°è: ¹Ì»óÀÔ´Ï´Ù.
±âŸ: ¾ø½À´Ï´Ù.


Âü°í
»çÇ×
Àϰý¸Å°¢
1.¸ñ·Ï1ÅäÁö : ¸ñ·Ï2 °Ç¹°ÀÇ ´ëÁö·Î º¸À̰í, Á¤È®ÇÑ

°ÇÃ๰ÇöȲ

¼ÒÀçÁö °æ±âµµ ÆÄÁֽà ¿ù·Õ¸é ´É»ê¸® 287-4¹øÁö
´ëÁö¸éÀû 270§³
(81.82Æò)
¿¬¸éÀû 268.38§³
(81.33Æò)
°ÇÃà¸éÀû 107.04§³
(32.44Æò)
¿ëÀû·ü»êÁ¤
¿¬¸éÀû
268.38§³
(81.33Æò)
°ÇÆóÀ² 39.64% ¿ëÀû·ü 99.4%
Áö»óÃþ¼ö 4Ãþ ÁöÇÏÃþ¼ö  
ÁÖ¿ëµµ ´Üµ¶ÁÖÅà ±¸Á¶ ö±ÙÄÜÅ©¸®Æ®±¸Á¶
Âø°øÀÏÀÚ 2010.12.16 »ç¿ë½ÂÀÎÀÏÀÚ 2011.12.06
°ÇÃ๰Ãþº°ÇöȲ [º¸±â]


±¹ÅäºÎ½Ç°Å·¡°¡ °æ±âµµ ÆÄÁֽà ¿ù·Õ¸é

¡Ü ¸Å¸Å

¸éÀû(§³), ±Ý¾×(¸¸¿ø)

¡Ü Àü¼¼

¸éÀû(§³), ±Ý¾×(¸¸¿ø)

°è¾àÀÏ¿¬¸éÀûº¸Áõ±Ý¿ù¼¼°ÇÃà
25.12.20132.343,0002022
25.12.1650200652012
25.12.16244,0000
25.12.1350300602012
25.12.1133200352011
¢Ñ ´õº¸±â

µî±âºÎµîº» ¿ä¾à(ÅäÁö)

  Á¢¼öÀÏÀÚ µî±â¸ñÀû/±Ç¸®ÀÚ ±Ç¸®±Ý¾× ±âÁØ
1 2024³â12¿ù5ÀÏ
¼ÒÀ¯±Ç
À¯OO
¼Ò¸ê
2 2022³â5¿ù16ÀÏ
±ÙÀú´ç±Ç
(OOOO
220,636,800 ¼Ò¸ê±âÁØ
3 2024³â12¿ù13ÀÏ
±ÙÀú´ç±Ç
¼­OOOO
480,000,000 ¼Ò¸ê
4 2024³â12¿ù24ÀÏ
ÀÓÀǰæ¸Å
(OOOO
¼Ò¸ê
5 2025³â7¿ù8ÀÏ
¾Ð·ù
ÆÄOO
¼Ò¸ê

µî±âºÎµîº» ¿ä¾à(°Ç¹°)

  Á¢¼öÀÏÀÚ µî±â¸ñÀû/±Ç¸®ÀÚ ±Ç¸®±Ý¾× ±âÁØ
1 2024³â12¿ù5ÀÏ
¼ÒÀ¯±Ç
À¯OO
¼Ò¸ê
2 2022³â5¿ù16ÀÏ
±ÙÀú´ç±Ç
(OOOO
220,636,800 ¼Ò¸ê±âÁØ
3 2024³â12¿ù13ÀÏ
±ÙÀú´ç±Ç
¼­OOOO
480,000,000 ¼Ò¸ê
4 2024³â12¿ù24ÀÏ
ÀÓÀǰæ¸Å
(OOOO
¼Ò¸ê
5 2025³â7¿ù8ÀÏ
¾Ð·ù
ÆÄOO
¼Ò¸ê

ÀÓÂ÷ÀÎÇöȲ (¹è´ç¿ä±¸Á¾±âÀÏ: 2025-03-21)


Á¶»çµÈ ÀÓÂ÷³»¿ªÀÌ ¾ø½À´Ï´Ù


¿©ÀÇÁÖ°æ¸Å Á¶¾ð ÇÑ ¸¶µð


ÁÖÀÇ»çÇ× (ÃÖ¼±¼øÀ§ ¼³Á¤ÀÏ: 2022.5.16. ±ÙÀú´ç(°øµ¿´ã ¼³Á¤ º¸))

¸Å°¢À¸·Î ¼Ò¸êµÇÁö ¾Ê´Â µî±âºÎ±Ç¸®: ÇØ´ç»çÇ×¾øÀ½
¸Å°¢À¸·Î ¼³Á¤µÈ °ÍÀ¸·Î º¸´Â Áö»ó±Ç: ÇØ´ç»çÇ×¾øÀ½
Àϰý¸Å°¢
¡Ø¹Ì³³°ü¸®ºñ(°ø¿ë) Àμö¿©ºÎ¸¦ ÀÔÂû Àü¿¡ È®ÀÎÇϽñ⠹ٶø´Ï´Ù

 

Áö¿ªºÐ¼®

ÁöÇÏö¸í Á÷¼±°Å¸®

Çб³¸í ÀüÈ­¹øÈ£ ÁÖ¼Ò Á÷¼±°Å¸®

¹ý¿ø

ÀÇÁ¤ºÎÁö¹æ¹ý¿ø °í¾çÁö¿ø (104-13)°æ±âµµ °í¾ç½Ã Àϻ굿±¸ Àå¹é·Î 209
´ëÇ¥ : 031)920-6114, ¾ß°£ : 031)920-6550, ÆÑ½º : 031)920-6119
°üÇÒÁö¿ª : °í¾ç½Ã, ÆÄÁÖ½Ã

µî±â¼Ò ÀÇÁ¤ºÎÁö¹æ¹ý¿ø °í¾çÁö¿ø ÆÄÁÖµî±â¼Ò (´ëÇ¥:1544-0773, ÆÑ½º:(031)945-4764, 3628, °æ±âµµ ÆÄÁֽà ±ÝÁ¤·Î 45 (±ÝÃ̵¿ 947-28))
¼¼¹«¼­ ÆÄÁÖ¼¼¹«¼­ (´ëÇ¥:031-956-02, ÆÑ½º:031-957-0315, °æ±âµµ ÆÄÁֽà ±Ý¸ª¿ª·Î 62 (±ÝÃ̵¿))

Àαٳ«ÂûÅë°è

±â°£ ¸Å°¢°Ç¼ö Æò±Õ°¨Á¤°¡
Æò±Õ¸Å°¢°¡
¸Å°¢°¡À²
Æò±ÕÀ¯Âû¼ö
3°³¿ù 4°Ç 185,863,940¿ø
62,265,000¿ø
38%
3.3ȸ
6°³¿ù 7°Ç 329,283,553¿ø
128,538,571¿ø
43%
2.9ȸ
12°³¿ù 9°Ç 312,502,244¿ø
134,137,778¿ø
48%
2.6ȸ


º» °æ¸ÅÁ¤º¸´Â ¹ý¿øÀÚ·á¿Í ÀÏÄ¡Çϵµ·Ï ÇÏ¿´À¸³ª ±Ç¸®»çÇ׺¯µ¿, ÀÔ·ÂÂø¿À µîÀÇ ¿øÀÎÀ¸·Î »ç½Ç°ú ´Ù¸¦ ¼ö ÀÖ½À´Ï´Ù. ÀÌ¿ë¾à°ü¿¡ ÀǰЏéÃ¥Á¶°ÇÀ¸·Î Á¦°øµÊÀ» ¾Ë¸®¸ç, °æ¸ÅÀÔÂû½Ã ¹Ýµå½Ã °ü·Ã °øºÎ¸¦ ÀçÈ®ÀÎÇϽñ⠹ٶø´Ï´Ù. º¸´Ù Æí¸®ÇÑ °æ¸ÅÁ¤º¸ Á¦°øÀ» À§ÇØ Áö¼ÓÀûÀ¸·Î °³¼±ÇϰڽÀ´Ï´Ù. ÀÌ¿ëÇØ Áּż­ °¨»çÇÕ´Ï´Ù.