·Î±×ÀÎ
43
´Ù¼¼´ë(ºô¶ó)
¼­¿ï³²ºÎÁö¹æ¹ý¿ø
 °¨Á¤°¡246,000,000 ¿ø
 ÃÖÀú°¡(51%) 125,952,000 ¿ø
 º¸Áõ±Ý(10%) 12,595,200 ¿ø
 Ã»±¸¾×223,000,000 ¿ø
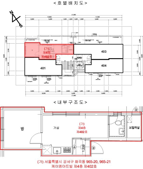
¼­¿ïƯº°½Ã °­¼­±¸ ±îÄ¡»ê·Î18°¡±æ 15, Á¦4Ãþ Á¦402È£ (È­°îµ¿, ÄÉÀÌ¿¥¾ÆÆ®ºô)
¼­¿ïƯº°½Ã °­¼­±¸ È­°îµ¿ 965-20
»ç°Ç¹øÈ£ 2024Ÿ°æ144227
°æ¸ÅÁ¾·ùºÎµ¿»ê°­Á¦°æ¸Å
¸Å°¢´ë»óÅäÁö ¹× °Ç¹°Àϰý ¸Å°¢
¸Å°¢±âÀÏ    2026.01.21(¼ö) 10:00 ÀÔÂû 27ÀÏÀü    
ÅäÁö¸éÀû19.00§³(5.75 Æò)
°Ç¹°¸éÀû29.46§³(8.91 Æò)
乫/¼ÒÀ¯ÀÚ±èOO / ±èOO
ä±ÇÀÚÁÖOOOOOOO
ÆäÀ̽ººÏ Æ®À§ÅÍ ±¸±Û+
īī¿À½ºÅ丮
īī¿ÀÅå sms¹®ÀÚº¸³»±â
 

±âÀϳ»¿ª

°æ°ú ³¯Â¥ Àú°¨ ÃÖÀú°¡ °á°ú
Á¢¼öÀÏ 2024-11-22 °æ¸ÅÁ¢¼ö
~10ÀÏ 
2024-12-02 °æ¸Å°³½Ã°áÁ¤
~102ÀÏ 
2025-03-04 ¹è´ç¿ä±¸Á¾±âÀÏ
~284ÀÏ 
2025-09-02 100%
246,000,000
À¯Âû
~335ÀÏ 
2025-10-23 80%
196,800,000
À¯Âû
~369ÀÏ 
2025-11-26 64%
157,440,000
À¯Âû
~425ÀÏ 
2026-01-21 51%
125,952,000
ÁøÇà
¹°°Ç¸í¼¼¼­ ÇöȲÁ¶»ç¼­ ¹®°ÇÁ¢¼ö ¼Û´Þ³»¿ª

°¨Á¤Æò°¡ÇöȲ

¸ñ·Ï ÁÖ¼Ò ±¸Á¶/¿ëµµ/´ëÁö±Ç ¸éÀû ºñ°í
´ëÁö±Ç
È­°îµ¿ 965-20 299.9ºÐÀÇ 19 19 §³
(5.75Æò)
°Ç¹°
È­°îµ¿ 965-20 Á¦4Ãþ Á¦402È£ ö±ÙÄÜÅ©¸®Æ®±¸Á¶ 29.46 §³
(8.91Æò)
1) À§Ä¡/µµ½ÃÁö¿ª/Á¦2Á¾ÀϹÝÁÖ°ÅÁö¿ª/ÁöÇÏö/³ë¼±¹ö½ºÁ¤·ùÀå/ö±ÙÄÜÅ©¸®Æ®±¸Á¶/µµ½Ã°¡½º/°¡½ºº¸ÀÏ·¯ ´õº¸±â
°¨Á¤Æò°¡ ¿äÇ×Ç¥
1)À§Ä¡ ¹× ÁÖÀ§È¯°æ
º»°ÇÀº ¼­¿ïƯº°½Ã °­¼­±¸ È­°îµ¿ ¼ÒÀç¡®¿ìÀåÃʵîÇб³¡¯³²µ¿Ãø Àαٿ¡ À§Ä¡ÇÏ´Â ºÎµ¿»ê
(±¸ºÐ°Ç¹° ÄÉÀÌ¿¥¾ÆÆ®ºô Á¦4Ãþ Á¦402È£)À¸·Î¼­, ÁÖÀ§´Â ¾ÆÆÄÆ®, ´Ù¼¼´ëÁÖÅÃ, °ø¿ø, Çб³,
°¢Á¾ ±Ù¸°»ýȰ½Ã¼³ µîÀÌ È¥ÀçÇÏ´Â Áö¿ªÀ¸·Î Á¦¹Ý ÁÖÀ§ ȯ°æÀº ¹«³­ÇÑ ÆíÀÔ´Ï´Ù.
2)±³Åë»óȲ
º»°Ç±îÁö Â÷·®ÀÇ Áø¤ýÃâÀÔÀÌ °¡´ÉÇϸç, ³²¼­Ãø ±Ù°Å¸®¿¡ ÁöÇÏö 5È£¼± "È­°î¿ª"ÀÌ À§Ä¡Çϰí,
¼­Ãø(È­°î·Î)À¸·Î ´ëÁß±³Åë¼ö´ÜÀ» ÀÌ¿ëÇÒ ¼ö ÀÖ´Â ³ë¼±¹ö½ºÁ¤·ùÀåÀÌ ¼ÒÀçÇÕ´Ï´Ù.
3)°Ç¹°ÀÇ ±¸Á¶
ö±ÙÄÜÅ©¸®Æ®±¸Á¶ (ö±Ù)ÄÜÅ©¸®Æ®ÁöºØ Áö»ó6Ãþ °Ç¹° ³» Á¦4Ãþ Á¦402È£·Î¼­,
(»ç¿ë½ÂÀÎÀÏ : 2020.05.13.)

¿Üº® : Ä¡À庮µ¹ ºÙÀÓ ¸¶°¨ µî.
âȣ : ÇÏÀÌ»õ½Ã âȣ ¸¶°¨ µîÀÔ´Ï´Ù.
4)ÀÌ¿ë»óÅÂ
º»°ÇÀº ´Ù¼¼´ëÁÖÅÃÀ¸·Î ÀÌ¿ëÁßÀÔ´Ï´Ù.
5)¼³ºñ³»¿ª
À§»ý¼³ºñ(±Þ¹è¼ö, ±ÞÅÁ), ³­¹æ¼³ºñ(µµ½Ã°¡½ºº¸ÀÏ·¯), È­Àç°æº¸¼³ºñ, ½Â°­±â¼³ºñ µîÀÌ µÇ¾î
ÀÖ½À´Ï´Ù.
6)ÅäÁöÀÇ Çü»ó ¹× ÀÌ¿ë»óÅÂ
ÀÎÁ¢µµ·Î ¹× ÀÎÁ¢ÇÊÁö¿Í µî°í ÆòźÇÑ 2ÇÊ ÀÏ´ÜÀÇ ¼¼ÀåÇü ÅäÁö·Î¼­, ÁÖ°Å¿ë(µµ½ÃÇü»ýȰÁÖÅÃ(
´ÜÁöÇü´Ù¼¼´ë)) °ÇºÎÁö·Î ÀÌ¿ëÁßÀÔ´Ï´Ù.
7)ÀÎÁ¢ µµ·Î»óŵî
2ÇÊ ÀÏ´ÜÀÇ ÅäÁö·Î¼­, ºÏ¼­ÃøÀ¸·Î ³ëÆø ¾à 6m ³»¿ÜÀÇ ¾Æ½ºÆÈÆ® Æ÷Àåµµ·Î¿Í Á¢ÇÕ´Ï´Ù.
8)ÅäÁöÀÌ¿ë°èȹ ¹× Á¦ÇÑ»óÅÂ
ÅäÁö±âÈ£ (1),(2) : µµ½ÃÁö¿ª, Á¦2Á¾ÀϹÝÁÖ°ÅÁö¿ª(7ÃþÀÌÇÏ), Áß¿ä½Ã¼³¹°º¸È£Áö±¸(°øÇ×), °¡
Ãà»çÀ°Á¦Çѱ¸¿ª(Áö¿ª°æÁ¦°ú È®ÀÎ ¿ä¸Á)<°¡ÃàºÐ´¢ÀÇ °ü¸® ¹× À̿뿡 °üÇÑ ¹ý·ü>, ¼öÆòÇ¥¸é±¸
¿ª(¼öÆòÇ¥¸é)<°øÇ׽ü³¹ý>, »ó´ëº¸È£±¸¿ª(°­¼­±³À°Áö¿øÃ»¿¡ ¹Ýµå½Ã È®ÀÎ ¿ä¸Á)<±³À°È¯°æ º¸
È£¿¡ °üÇÑ ¹ý·ü>, ´ë°ø¹æ¾îÇùÁ¶±¸¿ª(À§Å¹°íµµ:77-257m)<±º»ç±âÁö ¹× ±º»ç½Ã¼³ º¸È£¹ý>, °ú¹Ð
¾ïÁ¦±Ç¿ª<¼öµµ±ÇÁ¤ºñ°èȹ¹ý>.
9)°øºÎ¿ÍÀÇ Â÷ÀÌ
¾ø½À´Ï´Ù.
10)±âŸÂü°í»çÇ×(ÀÓ´ë°ü·Ê ¹× ±âŸ)
ÀÓ´ë°ü°è : ¹Ì»óÀÔ´Ï´Ù.
±âŸ»çÇ× : ¾ø½À´Ï´Ù.
Âü°í
»çÇ×
- ÀÓÂ÷ÀÎ ¹× ÁÖÅÃÀÓÂ÷±Ç ½Â°èÀÎ ÁÖÅõµ½Ãº¸Áõ°ø»çÀÇ ¹è´ç¹ÞÁö ¸øÇÏ´Â Àܾ׿¡ ´ëÇÑ ÀÓÂ÷º¸Áõ±Ý¹Ýȯû±¸±Ç Æ÷±â Á¶°Ç ¸Å°¢

°ÇÃ๰ÇöȲ

¼ÒÀçÁö ¼­¿ïƯº°½Ã °­¼­±¸ È­°îµ¿ 965-20¹øÁö
´ëÁö¸éÀû 299.54§³
(90.77Æò)
¿¬¸éÀû 586.34§³
(177.68Æò)
°ÇÃà¸éÀû 177.16§³
(53.68Æò)
¿ëÀû·ü»êÁ¤
¿¬¸éÀû
586.34§³
(177.68Æò)
°ÇÆóÀ² 59.14% ¿ëÀû·ü 195.75%
Áö»óÃþ¼ö 6Ãþ ÁöÇÏÃþ¼ö  
ÁÖ¿ëµµ °øµ¿ÁÖÅà ±¸Á¶ ö±ÙÄÜÅ©¸®Æ®±¸Á¶
Âø°øÀÏÀÚ 2019.12.02 »ç¿ë½ÂÀÎÀÏÀÚ 2020.05.13
°ÇÃ๰Ãþº°ÇöȲ [º¸±â]


±¹ÅäºÎ½Ç°Å·¡°¡ ¼­¿ïƯº°½Ã °­¼­±¸ È­°îµ¿

¡Ü ¸Å¸Å

¸éÀû(§³), ±Ý¾×(¸¸¿ø)

¡Ü Àü¼¼

¸éÀû(§³), ±Ý¾×(¸¸¿ø)

°è¾àÀϰǹ°¸íĪÃþ¿¬¸éÀû´ëÁö±Ý¾×°ÇÃà
24.03.30ÇÏÀÌÆ®¸Ç¼Ç159.3127.8923,0002000
24.03.30´õŬ·¡½Ä(857-19)628.5218.221,5002018
24.03.30ÇØºñÄ¡ºô226.2315.3722,2002019
24.03.30µ¿µµÇÏÀÌÃ÷ºô¶ó(56-335)158.5629.415,0002000
24.03.30¸®´õ½ºÅ¸¿î529.8819.321,9002016
¢Ñ ´õº¸±â

µî±âºÎµîº» ¿ä¾à(°Ç¹°)

  Á¢¼öÀÏÀÚ µî±â¸ñÀû/±Ç¸®ÀÚ ±Ç¸®±Ý¾× ±âÁØ
1 2020³â8¿ù7ÀÏ
¼ÒÀ¯±Ç
±èOO
¼Ò¸ê
2 2022³â11¿ù24ÀÏ
¾àÁ¤/±ÝÁö»çÇ×/ȯ¸ÅƯ¾à
Àμö
3 2023³â1¿ù11ÀÏ
¾Ð·ù
±¹
¼Ò¸ê±âÁØ
4 2023³â5¿ù23ÀÏ
¾Ð·ù
±¹
¼Ò¸ê
5 2023³â8¿ù29ÀÏ
ÀÓÂ÷±Ç¼³Á¤
±èOO
223,000,000 ¼Ò¸ê
6 2024³â12¿ù2ÀÏ
°­Á¦°æ¸Å
ÁÖOOOO
¼Ò¸ê

ÀÓÂ÷ÀÎÇöȲ (¹è´ç¿ä±¸Á¾±âÀÏ: 2025-03-04)

ÀÓÂ÷ÀÎ ¿ëµµ/Á¡À¯ º¸Áõ±Ý/¿ù¼¼ ´ëÇ×·Â
ÀüÀÔÀÏ/È®Á¤ÀÏ ¹è´ç¿ä±¸ ºñ°í
±èOO °Ç¹°ÀüºÎ 223,000,000
O
2022.06.29
2022.05.21
2022.06.29 ~
ÁÖOOOOOOO 402È£ÀüºÎ 223,000,000
2022.06.29(±è³­Èñ)
2022.05.21
2025.2.26. 2022.06.29 ~2023.10.23
ºñ°í
(¸Å°¢¹°°Ç
¸í¼¼¼­)
±è³­Èñ : ÁÖÅÃÀÓÂ÷±Ç µî±âÀÏÀº 2023.08.29.ÀÓ ÁÖÅõµ½Ãº¸Áõ°ø»ç : ÀÌ »ç°Ç ½Åûä±ÇÀÚ·Î ÁÖÅÃÀÓÂ÷±ÇÀÚ ±è³­ÈñÀÇ ÁöÀ§¸¦ ½Â°èÇÏ¿© ±Ç¸®½Å°í ¹× ¹è´ç¿ä±¸ÇÔ

¿©ÀÇÁÖ°æ¸Å Á¶¾ð ÇÑ ¸¶µð

¼±¼øÀ§ ÀÓÂ÷±Çµî±â°¡ µÇ¾î ÀÖ½À´Ï´Ù
´ëÇ×·ÂÀÌ ÀÖ´Â ¼±¼øÀ§ ÀÓÂ÷±Çµî±â ±Ç¸®ÀÚ°¡ ¹è´çÀ» Àü¾× ¹ÞÁö ¸øÇÒ °æ¿ì ³«ÂûÀÚ°¡ ÀÜ¿© º¸Áõ±ÝÀ» ÀμöÇØ¾ßÇÏ´Â °æ¿ìµµ ÀÖ½À´Ï´Ù.

ÁÖÀÇ»çÇ× (ÃÖ¼±¼øÀ§ ¼³Á¤ÀÏ: 2023.01.11. ¾Ð·ù ¼³Á¤)

¸Å°¢À¸·Î ¼Ò¸êµÇÁö ¾Ê´Â µî±âºÎ±Ç¸®:
¸Å°¢À¸·Î ¼³Á¤µÈ °ÍÀ¸·Î º¸´Â Áö»ó±Ç:
- ÀÓÂ÷ÀÎ ±è³­Èñ ¹× ÁÖÅÃÀÓÂ÷±Ç ½Â°èÀÎ ÁÖÅõµ½Ãº¸Áõ°ø»ç´Â ¸Å¼öÀο¡ ´ëÇÏ¿© ¹è´ç¹ÞÁö ¸øÇÏ´Â Àܾ׿¡ ´ëÇÑ ÀÓÂ÷º¸Áõ±Ý¹Ýȯû ±¸±ÇÀ» Æ÷±âÇϰí, ÁÖÅÃÀÓÂ÷±Çµî±â¸¦ ¸»¼ÒÇÏ´Â °ÍÀ» Á¶°ÇÀ¸·Î ¸Å°¢
¡Ø¹Ì³³°ü¸®ºñ(°ø¿ë) Àμö¿©ºÎ¸¦ ÀÔÂû Àü¿¡ È®ÀÎÇϽñ⠹ٶø´Ï´Ù

 

Áö¿ªºÐ¼®

ÁöÇÏö¸í Á÷¼±°Å¸®

Çб³¸í ÀüÈ­¹øÈ£ ÁÖ¼Ò Á÷¼±°Å¸®

¹ý¿ø

¼­¿ï³²ºÎÁö¹æ¹ý¿ø (080-88)¼­¿ïƯº°½Ã ¾çõ±¸ ½Å¿ù·Î 386(½ÅÁ¤µ¿)
´ëÇ¥ : 02)2192-1114
°üÇÒÁö¿ª : ¿µµîÆ÷±¸, °­¼­±¸, ¾çõ±¸, ±¸·Î±¸, ±Ýõ±¸

µî±â¼Ò ¼­¿ï³²ºÎÁö¹æ¹ý¿ø º»¿ø µî±â±¹ (´ëÇ¥:1544-0773, ÆÑ½º:(02)2629-7307, ¼­¿ïƯº°½Ã ¿µµîÆ÷±¸ °æÀηΠ772 (¹®·¡µ¿ 1°¡))
¼¼¹«¼­ °­¼­¼¼¹«¼­ (´ëÇ¥:02-2630-42, ÆÑ½º:02-2679-8777, ¼­¿ïƯº°½Ã °­¼­±¸ ¸¶°î¼­1·Î 60 (¸¶°îµ¿))

Àαٳ«ÂûÅë°è

±â°£ ¸Å°¢°Ç¼ö Æò±Õ°¨Á¤°¡
Æò±Õ¸Å°¢°¡
¸Å°¢°¡À²
Æò±ÕÀ¯Âû¼ö
3°³¿ù 280°Ç 262,166,474¿ø
197,503,464¿ø
76%
2.2ȸ
6°³¿ù 538°Ç 260,351,873¿ø
199,390,761¿ø
78%
2.3ȸ
12°³¿ù 1,027°Ç 258,976,305¿ø
201,315,710¿ø
78%
2.3ȸ


º» °æ¸ÅÁ¤º¸´Â ¹ý¿øÀÚ·á¿Í ÀÏÄ¡Çϵµ·Ï ÇÏ¿´À¸³ª ±Ç¸®»çÇ׺¯µ¿, ÀÔ·ÂÂø¿À µîÀÇ ¿øÀÎÀ¸·Î »ç½Ç°ú ´Ù¸¦ ¼ö ÀÖ½À´Ï´Ù. ÀÌ¿ë¾à°ü¿¡ ÀǰЏéÃ¥Á¶°ÇÀ¸·Î Á¦°øµÊÀ» ¾Ë¸®¸ç, °æ¸ÅÀÔÂû½Ã ¹Ýµå½Ã °ü·Ã °øºÎ¸¦ ÀçÈ®ÀÎÇϽñ⠹ٶø´Ï´Ù. º¸´Ù Æí¸®ÇÑ °æ¸ÅÁ¤º¸ Á¦°øÀ» À§ÇØ Áö¼ÓÀûÀ¸·Î °³¼±ÇϰڽÀ´Ï´Ù. ÀÌ¿ëÇØ Áּż­ °¨»çÇÕ´Ï´Ù.