·Î±×ÀÎ
1648
¾ÆÆÄÆ®
¼­¿ï³²ºÎÁö¹æ¹ý¿ø
 °¨Á¤°¡323,000,000 ¿ø
 ÃÖÀú°¡(80%) 258,400,000 ¿ø
 º¸Áõ±Ý(10%) 25,840,000 ¿ø
 Ã»±¸¾×275,000,000 ¿ø
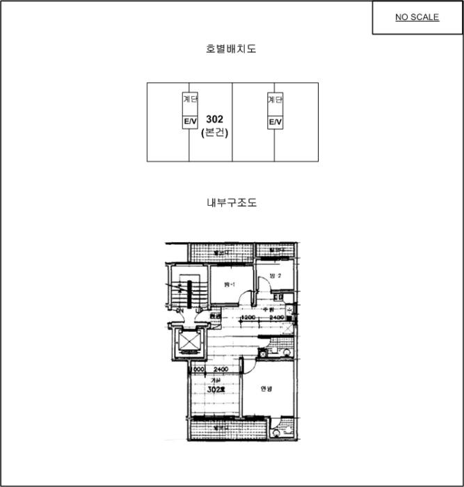
¼­¿ïƯº°½Ã ±¸·Î±¸ °³ºÀ·Î17¸¶±æ 9-22, Á¦3Ãþ Á¦302È£ (°³ºÀµ¿, Áß¾ÓÈú¾ÆÆÄÆ®)
¼­¿ïƯº°½Ã ±¸·Î±¸ °³ºÀµ¿ 322-12
»ç°Ç¹øÈ£ 2024Ÿ°æ128133
°æ¸ÅÁ¾·ùºÎµ¿»ê°­Á¦°æ¸Å
¸Å°¢´ë»óÅäÁö ¹× °Ç¹°Àϰý ¸Å°¢
¸Å°¢±âÀÏ    2026.04.16(¸ñ) 10:00 ÀÔÂû 5ÀÏÀü    
ÅäÁö¸éÀû30.43§³(9.21 Æò)
°Ç¹°¸éÀû67.44§³(20.40 Æò)
乫/¼ÒÀ¯ÀÚÀåOO / ÀåOO
ä±ÇÀÚÁÖOOOOOOO
ÆäÀ̽ººÏ Æ®À§ÅÍ ±¸±Û+
īī¿À½ºÅ丮
īī¿ÀÅå sms¹®ÀÚº¸³»±â
 

±âÀϳ»¿ª

°æ°ú ³¯Â¥ Àú°¨ ÃÖÀú°¡ °á°ú
Á¢¼öÀÏ 2024-07-19 °æ¸ÅÁ¢¼ö
~12ÀÏ 
2024-07-31 °æ¸Å°³½Ã°áÁ¤
~104ÀÏ 
2024-10-31 ¹è´ç¿ä±¸Á¾±âÀÏ
~410ÀÏ 
2025-09-02 100%
323,000,000
À¯Âû
~461ÀÏ 
2025-10-23 80%
258,400,000
À¯Âû
~495ÀÏ 
2025-11-26 64%
206,720,000
À¯Âû
~551ÀÏ 
2026-01-21 51%
165,376,000
º¯°æ
~600ÀÏ 
2026-03-11 100%
323,000,000
À¯Âû
~636ÀÏ 
2026-04-16 80%
258,400,000
ÁøÇà
¹°°Ç¸í¼¼¼­ ÇöȲÁ¶»ç¼­ ¹®°ÇÁ¢¼ö ¼Û´Þ³»¿ª

°¨Á¤Æò°¡ÇöȲ

¸ñ·Ï ÁÖ¼Ò ±¸Á¶/¿ëµµ/´ëÁö±Ç ¸éÀû ºñ°í
´ëÁö±Ç
°³ºÀµ¿ 322-11 585.4ºÐÀÇ 30.43 30.43 §³
(9.21Æò)
°Ç¹°
°³ºÀµ¿ 322-11 Á¦3Ãþ Á¦302È£ ö±ÙÄÜÅ©¸®Æ®Á¶ 67.44 §³
(20.40Æò)
1) À§Ä¡/Á¦2Á¾ÀϹÝÁÖ°ÅÁö¿ª/³ë¼±¹ö½ºÁ¤·ùÀå/ö±ÙÄÜÅ©¸®Æ®Á¶/Æò½º¶óºêÁöºØ ´õº¸±â
°¨Á¤Æò°¡ ¿äÇ×Ç¥
1)À§Ä¡ ¹× ÁÖÀ§È¯°æ
º»°ÇÀº ¼­¿ïƯº°½Ã ±¸·Î±¸ °³ºÀµ¿ ¼ÒÀç "°³¿õÃʵîÇб³" ºÏµ¿Ãø Àαٿ¡ À§Ä¡Çϸç, ÁÖÀ§´Â ´Ù¼¼´ëÁÖÅÃ, ´Üµ¶ÁÖÅÃ, ¾ÆÆÄÆ® ¹× ±Ù¸°»ýȰ½Ã¼³ µîÀÌ È¥ÀçÇÏ´Â Áö´ë·Î¼­, Àü¹ÝÀûÀÎ ÁÖÀ§È¯°æÀº º¸ÅëÀÓ.
2)±³Åë»óȲ
º»°Ç±îÁö Â÷·® Áø¡¤ÃâÀÔÀÌ °¡´ÉÇϸç, Àαٿ¡ ³ë¼±¹ö½ºÁ¤·ùÀå µîÀÌ ¼ÒÀçÇÏ´Â ¹Ù, Àü¹ÝÀûÀÎ ´ëÁß±³Åë ÀÌ¿ëÆíÀǵµ´Â º¸ÅëÀÓ.
3)°Ç¹°ÀÇ ±¸Á¶
2000³â 4¿ù¿¡ »ç¿ë½ÂÀÎµÈ Ã¶±ÙÄÜÅ©¸®Æ®Á¶ Æò½º¶óºêÁöºØ Áö»ó 5Ãþ°Ç³»
Á¦3Ãþ Á¦302È£·Î¼­
¿Üº®: ¸ð¸£Å¸¸£À§ ÆäÀÎÆÃ ¸¶°¨ µî,
³»º®: º®Áö µµ¹è ¸¶°¨ µî,
âȣ: »õ½Ã âȣÀÓ.
4)ÀÌ¿ë»óÅÂ
¾ÆÆÄÆ®·Î ÀÌ¿ëÁßÀÓ.
5)¼³ºñ³»¿ª
±Þ¡¤¹è¼ö¼³ºñ ¹× À§»ý¼³ºñ, ³­¹æ¼³ºñ, ½Â°­±â¼³ºñ µîÀÌ ¼³Ä¡µÇ¾î ÀÖÀ½.


6)ÅäÁöÀÇ Çü»ó ¹× ÀÌ¿ë»óÅÂ
3ÇÊÁö ÀÏ´ÜÀÇ °¡ÀåÇü ÅäÁö·Î¼­, "¾ÆÆÄÆ®" ºÎÁö·Î ÀÌ¿ëÁßÀÓ.
7)ÀÎÁ¢ µµ·Î»óŵî
³²ÃøÀ¸·Î Æø ¾à 6¹ÌÅÍÀÇ Æ÷Àåµµ·Î¿Í Á¢Çϰí ÀÖÀ½.
8)ÅäÁöÀÌ¿ë°èȹ ¹× Á¦ÇÑ»óÅÂ
Á¦2Á¾ÀϹÝÁÖ°ÅÁö¿ª(7ÃþÀÌÇÏ), µµ·Î(Á¢ÇÕ), Àå¾Ö¹°Á¦ÇÑÇ¥¸é±¸¿ª(ÁøÀÔÇ¥¸é)<°øÇ׽ü³¹ý>, ´ë°ø¹æ¾îÇùÁ¶±¸¿ª(À§Å¹°íµµ:ÇØ¹ß165m(Áö¹Ý+°ÇÃà+¿Áž µî), À°±º¼öµµ¹æÀ§»ç·ÉºÎ(02-524-3146)°üÇÒ)<±º»ç±âÁö ¹× ±º»ç½Ã¼³ º¸È£¹ý>, °ú¹Ð¾ïÁ¦±Ç¿ª<¼öµµ±ÇÁ¤ºñ°èȹ¹ý>ÀÓ.
9)°øºÎ¿ÍÀÇ Â÷ÀÌ
ÇØ´ç »çÇ× ¾øÀ½.
10)±âŸÂü°í»çÇ×(ÀÓ´ë°ü·Ê ¹× ±âŸ)
ÀÓ´ë°ü°è´Â ¹Ì»óÀÓ.
Âü°í
»çÇ×
- ÀÓÂ÷ÀÎ ¹× ÁÖÅÃÀÓÂ÷±Ç ½Â°èÀÎ ÁÖÅõµ½Ãº¸Áõ°ø»çÀÇ ¹è´ç¹ÞÁö ¸øÇÏ´Â Àܾ׿¡ ´ëÇÑ ÀÓÂ÷º¸Áõ±Ý¹Ýȯû±¸±Ç Æ÷±â Á¶°Ç ¸Å°¢


µî±âºÎµîº» ¿ä¾à(°Ç¹°)

  Á¢¼öÀÏÀÚ µî±â¸ñÀû/±Ç¸®ÀÚ ±Ç¸®±Ý¾× ±âÁØ
1 2021³â4¿ù8ÀÏ
¼ÒÀ¯±Ç
ÀåOO
¼Ò¸ê
2 2023³â5¿ù15ÀÏ
ÀÓÂ÷±Ç¼³Á¤
ȫOO
275,000,000 Àμö
3 2024³â8¿ù1ÀÏ
°­Á¦°æ¸Å
ÁÖOOOO
¼Ò¸ê±âÁØ
4 2024³â12¿ù19ÀÏ
°¡¾Ð·ù
°æOOOO
26,405,550 ¼Ò¸ê

ÀÓÂ÷ÀÎÇöȲ (¹è´ç¿ä±¸Á¾±âÀÏ: 2024-10-31)

ÀÓÂ÷ÀÎ ¿ëµµ/Á¡À¯ º¸Áõ±Ý/¿ù¼¼ ´ëÇ×·Â
ÀüÀÔÀÏ/È®Á¤ÀÏ ¹è´ç¿ä±¸ ºñ°í
¹®OO 302È£ ¹Ì»ó
[¿ù]¹Ì»ó
O
2024.01.30
¹Ì»ó
¹Ì»ó
ÁÖOOOOOOO 302È£ÀüºÎ 275,000,000
2021.03.25(È«À翬)
2021.03.05
2024.7.19. 2021.03.25 ~2023.03.25
È«OO °Ç¹°ÀÇÀüºÎ 275,000,000
O
2021.03.25
2021.03.05
2021.03.25 ~
ºñ°í
(¸Å°¢¹°°Ç
¸í¼¼¼­)
ÁÖÅõµ½Ãº¸Áõ°ø»ç : ÁÖÅÃÀÓÂ÷±ÇÀÚ È«À翬ÀÇ ÁöÀ§¸¦ ½Â°èÇÑ ÀÌ »ç°Ç ½Åûä±ÇÀÚ·Î ±Ç¸®½Å°í ¹× ¹è´ç¿ä±¸ÀÏÀº °æ¸Å½ÅûÀÏÀÓ È«À翬 : ÁÖÅÃÀÓÂ÷±Ç µî±âÀÏÀº 2023.05.15.ÀÓ

¿©ÀÇÁÖ°æ¸Å Á¶¾ð ÇÑ ¸¶µð

¼±¼øÀ§ ÀÓÂ÷±Çµî±â°¡ µÇ¾î ÀÖ½À´Ï´Ù
´ëÇ×·ÂÀÌ ÀÖ´Â ¼±¼øÀ§ ÀÓÂ÷±Çµî±â ±Ç¸®ÀÚ°¡ ¹è´çÀ» Àü¾× ¹ÞÁö ¸øÇÒ °æ¿ì ³«ÂûÀÚ°¡ ÀÜ¿© º¸Áõ±ÝÀ» ÀμöÇØ¾ßÇÏ´Â °æ¿ìµµ ÀÖ½À´Ï´Ù.

ÁÖÀÇ»çÇ× (ÃÖ¼±¼øÀ§ ¼³Á¤ÀÏ: 2024.08.01. ¼³Á¤ °­Á¦°æ¸Å°³½Ã°áÁ¤)

¸Å°¢À¸·Î ¼Ò¸êµÇÁö ¾Ê´Â µî±âºÎ±Ç¸®:
¸Å°¢À¸·Î ¼³Á¤µÈ °ÍÀ¸·Î º¸´Â Áö»ó±Ç:
- ÀÓÂ÷ÀÎ È«À翬 ¹× ÁÖÅÃÀÓÂ÷±Ç ½Â°èÀÎ ÁÖÅõµ½Ãº¸Áõ°ø»ç´Â ¸Å¼öÀο¡ ´ëÇÏ¿© ¹è´ç¹ÞÁö ¸øÇÏ´Â Àܾ׿¡ ´ëÇÑ ÀÓÂ÷º¸Áõ±Ý¹Ýȯû ±¸±ÇÀ» Æ÷±âÇϰí, ÁÖÅÃÀÓÂ÷±Çµî±â¸¦ ¸»¼ÒÇÏ´Â °ÍÀ» Á¶°ÇÀ¸·Î ¸Å°¢
¡Ø¹Ì³³°ü¸®ºñ(°ø¿ë) Àμö¿©ºÎ¸¦ ÀÔÂû Àü¿¡ È®ÀÎÇϽñ⠹ٶø´Ï´Ù

 

Áö¿ªºÐ¼®

ÁöÇÏö¸í Á÷¼±°Å¸®

Çб³¸í ÀüÈ­¹øÈ£ ÁÖ¼Ò Á÷¼±°Å¸®

¹ý¿ø

¼­¿ï³²ºÎÁö¹æ¹ý¿ø (080-88)¼­¿ïƯº°½Ã ¾çõ±¸ ½Å¿ù·Î 386(½ÅÁ¤µ¿)
´ëÇ¥ : 02)2192-1114
°üÇÒÁö¿ª : ¿µµîÆ÷±¸, °­¼­±¸, ¾çõ±¸, ±¸·Î±¸, ±Ýõ±¸

µî±â¼Ò ¼­¿ï³²ºÎÁö¹æ¹ý¿ø º»¿ø µî±â±¹ (´ëÇ¥:1544-0773, ÆÑ½º:(02)2629-7307, ¼­¿ïƯº°½Ã ¿µµîÆ÷±¸ °æÀηΠ772 (¹®·¡µ¿ 1°¡))
¼¼¹«¼­ ±¸·Î¼¼¹«¼­ (´ëÇ¥:02-2630-72, ÆÑ½º:02-2679-6394, ¼­¿ïƯº°½Ã ¿µµîÆ÷±¸ °æÀηΠ778 (¹®·¡µ¿1°¡))

Àαٳ«ÂûÅë°è

±â°£ ¸Å°¢°Ç¼ö Æò±Õ°¨Á¤°¡
Æò±Õ¸Å°¢°¡
¸Å°¢°¡À²
Æò±ÕÀ¯Âû¼ö
3°³¿ù 16°Ç 537,000,000¿ø
497,468,869¿ø
90%
1.3ȸ
6°³¿ù 35°Ç 573,114,286¿ø
522,333,651¿ø
88%
1.3ȸ
12°³¿ù 66°Ç 606,454,545¿ø
555,733,647¿ø
89%
1.3ȸ


º» °æ¸ÅÁ¤º¸´Â ¹ý¿øÀÚ·á¿Í ÀÏÄ¡Çϵµ·Ï ÇÏ¿´À¸³ª ±Ç¸®»çÇ׺¯µ¿, ÀÔ·ÂÂø¿À µîÀÇ ¿øÀÎÀ¸·Î »ç½Ç°ú ´Ù¸¦ ¼ö ÀÖ½À´Ï´Ù. ÀÌ¿ë¾à°ü¿¡ ÀǰЏéÃ¥Á¶°ÇÀ¸·Î Á¦°øµÊÀ» ¾Ë¸®¸ç, °æ¸ÅÀÔÂû½Ã ¹Ýµå½Ã °ü·Ã °øºÎ¸¦ ÀçÈ®ÀÎÇϽñ⠹ٶø´Ï´Ù. º¸´Ù Æí¸®ÇÑ °æ¸ÅÁ¤º¸ Á¦°øÀ» À§ÇØ Áö¼ÓÀûÀ¸·Î °³¼±ÇϰڽÀ´Ï´Ù. ÀÌ¿ëÇØ Áּż­ °¨»çÇÕ´Ï´Ù.