·Î±×ÀÎ
735
ÁÖÅÃ
ÀÇÁ¤ºÎÁö¹æ¹ý¿ø °í¾çÁö¿ø
 °¨Á¤°¡1,620,660,960 ¿ø
 ÃÖÀú°¡(70%) 1,134,462,700 ¿ø
 º¸Áõ±Ý(20%) 226,892,540 ¿ø
 Ã»±¸¾×739,676,108 ¿ø
°æ±âµµ °í¾ç½Ã Àϻ굿±¸ Á¤¹ß»êµ¿ 792-10
»ç°Ç¹øÈ£ 2024Ÿ°æ7839
°æ¸ÅÁ¾·ùºÎµ¿»êÀÓÀǰæ¸Å
¸Å°¢´ë»óÅäÁö ¹× °Ç¹°Àϰý¸Å°¢
¸Å°¢±âÀÏ    2026.01.29(¸ñ) 10:00 ÀÔÂû 4ÀÏÀü    
ÅäÁö¸éÀû231.00§³(69.88 Æò)
°Ç¹°¸éÀû287.82§³(87.07 Æò)
乫/¼ÒÀ¯ÀÚÆÄOOOO OOOO OOOOO OOO OOO / ¼ÒOO¿Ü 1¸í
ä±ÇÀÚÀ¯OOOOOOOOOOOOO OOOO(OOOO OOOO OOOO)
ÆäÀ̽ººÏ Æ®À§ÅÍ ±¸±Û+
īī¿À½ºÅ丮
īī¿ÀÅå sms¹®ÀÚº¸³»±â
 

±âÀϳ»¿ª

°æ°ú ³¯Â¥ Àú°¨ ÃÖÀú°¡ °á°ú
Á¢¼öÀÏ 2024-10-15 °æ¸ÅÁ¢¼ö
~2ÀÏ 
2024-10-17 °æ¸Å°³½Ã°áÁ¤
~90ÀÏ 
2025-01-13 ¹è´ç¿ä±¸Á¾±âÀÏ
~317ÀÏ 
2025-08-28 100%
1,620,660,960
À¯Âû
~352ÀÏ 
2025-10-02 70%
1,134,462,700
¸Å°¢
³«Âû°¡ 1,142,565,000 (70%)
~409ÀÏ 
2025-11-28 ¹Ì³³
~471ÀÏ 
2026-01-29 70%
1,134,462,700
ÁøÇà
¹°°Ç¸í¼¼¼­ ÇöȲÁ¶»ç¼­ ¹®°ÇÁ¢¼ö ¼Û´Þ³»¿ª

°¨Á¤Æò°¡ÇöȲ

¸ñ·Ï ÁÖ¼Ò ±¸Á¶/¿ëµµ/´ëÁö±Ç ¸éÀû ºñ°í
ÅäÁö
Á¤¹ß»êµ¿ 792-10 ´ë 231 §³
(69.88Æò)
°Ç¹°
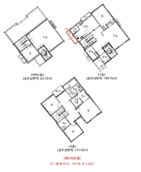
Á¤¹ß»êµ¿ 792-10 ÁöÇÏ1Ãþ ´Üµ¶ÁÖÅà ö±ÙÄÜÅ©¸®Æ®±¸Á¶ 63.73 §³
(19.28Æò)
Á¤¹ß»êµ¿ 792-10 1Ãþ ´Üµ¶ÁÖÅà ö±ÙÄÜÅ©¸®Æ®±¸Á¶ 109.15 §³
(33.02Æò)
Á¤¹ß»êµ¿ 792-10 2Ãþ ´Üµ¶ÁÖÅà ö±ÙÄÜÅ©¸®Æ®±¸Á¶ 111.52 §³
(33.73Æò)
Á¦½Ã¿Ü
°Ç¹°
Á¤¹ß»êµ¿ 792-10 ¹ßÄÚ´Ï 3.42 §³
(1.03Æò)
Æ÷ÇÔ
1) À§Ä¡/µµ½ÃÁö¿ª/Á¦1Á¾Àü¿ëÁÖ°ÅÁö¿ª/Áö±¸´ÜÀ§°èȹ±¸¿ª/ÁöÇÏö/³ë¼±¹ö½ºÁ¤·ùÀå/ö±ÙÄÜÅ©¸®Æ®±¸Á¶ ´õº¸±â
°¨Á¤Æò°¡ ¿äÇ×Ç¥
1)À§Ä¡ ¹× ÁÖÀ§È¯°æ
º»°ÇÀº °æ±âµµ °í¾ç½Ã Àϻ굿±¸ Á¤¹ß»êµ¿ ¼ÒÀç "Àúµ¿ÃʵîÇб³" ³²¼­Ãø Àαٿ¡ À§Ä¡Çϸç,
ÁÖÀ§´Â ´Üµ¶ÁÖÅà ¹× ¾ÆÆÄÆ®´ÜÁö, °¢Á¾ ±Ù¸°»ýȰ½Ã¼³, Çб³, °ø¿ø µîÀÌ È¥ÀçÇÏ´Â Áö¿ªÀÓ.
2)±³Åë»óȲ
º»°Ç±îÁö Â÷·®Á¢±Ù °¡´ÉÇϸç, Àαٿ¡ ³ë¼±¹ö½ºÁ¤·ùÀå ¹× ÁöÇÏö¿ª(3È£¼± Á¤¹ß»ê¿ª)ÀÌ ¼ÒÀçÇÏ
´Â µî Á¦¹Ý ±³Åë»óȲÀº º¸Åë½Ã µÊ.
3)ÇüÅ ¹× ÀÌ¿ë»óÅÂ
ÀÎÁ¢Áö¿Í µî°íÆòźÇÑ ¼¼ÀåÇüÀÇ ÅäÁö·Î¼­, ´Üµ¶ÁÖÅà °ÇºÎÁö·Î ÀÌ¿ëÁßÀÓ.
4)ÀÎÁ¢ µµ·Î»óÅÂ
º»°Ç ³²µ¿ÃøÀ¸·Î ³ëÆø ¾à 8m ³»¿ÜÀÇ Æ÷Àåµµ·Î¿¡ Á¢ÇØÀÖÀ½.
5)ÅäÁöÀÌ¿ë°èȹ ¹× Á¦ÇÑ»óÅÂ
Á¦1Á¾Àü¿ëÁÖ°ÅÁö¿ª, Áö±¸´ÜÀ§°èȹ±¸¿ª, ¼Ò·Î2·ù(Æø 8m-10m)(Á¢ÇÕ)
°¡Ãà»çÀ°Á¦Çѱ¸¿ª(2024-11-12)(ÀüºÎÁ¦Çѱ¸¿ª [µµ½ÃÁö¿ª{ÁÖ°Å,»ó¾÷,°ø¾÷,³ìÁö(ÀÚ¿¬Ãë¶ôÁö±¸)}
¹×ÁְŹÐÁýÁö¿ª])<°¡ÃàºÐ´¢ÀÇ °ü¸® ¹× À̿뿡 °üÇÑ ¹ý·ü>, »ó´ëº¸È£±¸¿ª(±×·çÅͱâÀ¯Ä¡¿ø)
<±³À°È¯°æ º¸È£¿¡ °üÇÑ ¹ý·ü>, »ó´ëº¸È£±¸¿ª(Àúµ¿ÃʵîÇб³)<±³À°È¯°æ º¸È£¿¡ °üÇÑ ¹ý·ü>,
°ú¹Ð¾ïÁ¦±Ç¿ª<¼öµµ±ÇÁ¤ºñ°èȹ¹ý> ÀÓ.



6)Á¦½Ã¸ñ·Ï ¿ÜÀÇ ¹°°Ç
°Ç¹° °¨Á¤Æò°¡¿äÇ×Ç¥ ÂüÁ¶ ¿äÇÔ.
7)°øºÎ¿ÍÀÇ Â÷ÀÌ
¾ø À½.
8)±âŸÂü°í»çÇ×(ÀÓ´ë°ü·Ê ¹× ±âŸ)
-
1)°Ç¹°ÀÇ ±¸Á¶
ö±ÙÄÜÅ©¸®Æ®±¸Á¶ ¹× ±âŸÁöºØ 2Ãþ°ÇÀ¸·Î¼­,
(»ç¿ë½ÂÀÎÀÏ: 2007.07.11)
¿Üº®: ¼®ÀçºÙÀÓ¸¶°¨, µå¶óÀ̺ñÆ®¸¶°¨ ¹× ÆÇ³Ú¸¶°¨ µî,
³»º®: º®Áöµµ¹è ¹× ÀϺΟÀϸ¶°¨ µî,
âȣ: ¼¦½Ã âȣ µîÀÓ.
2)ÀÌ¿ë»óÅÂ
´Üµ¶ÁÖÅÃÀ¸·Î ÀÌ¿ëÁßÀÓ.
3)¼³ºñ³»¿ª
±âº»ÀûÀÎ À§»ý¼³ºñ ¹× ±Þ¹è¼ö¼³ºñ, ³­¹æ¼³ºñ µîÀÌ µÇ¾îÀÖÀ½.
4)ºÎÇÕ¹° ¹× Á¾¹°
Á¦½Ã¿Ü°Ç¹°(¨±)ÀÌ ¼ÒÀçÇÔ.
(ÈÄ÷ "°Ç¹°°³È²µµ" ¹× "»çÁø¿ëÁö" ÂüÁ¶)
5)°øºÎ¿ÍÀÇ Â÷ÀÌ
¾ø À½.
6)±âŸÂü°í»çÇ×(ÀÓ´ë°ü·Ê ¹× ±âŸ)
ÀÓ´ë°ü°è´Â ¹Ì»óÀÓ.
Âü°í
»çÇ×
Àϰý¸Å°¢. Á¦½Ã¿Ü °Ç¹° Æ÷ÇÔ Æ¯º°¸Å°¢Á¶°Ç ¸Å¼ö½Åûº¸Áõ±Ý ÃÖÀú¸Å°¢°¡°ÝÀÇ 20%
ö±ÙÄÜÅ©¸®Æ®

°ÇÃ๰ÇöȲ

¼ÒÀçÁö °æ±âµµ °í¾ç½Ã Àϻ굿±¸ Á¤¹ß»êµ¿ 792-10¹øÁö
´ëÁö¸éÀû 231§³
(70Æò)
¿¬¸éÀû 284.4§³
(86.18Æò)
°ÇÃà¸éÀû 113.62§³
(34.43Æò)
¿ëÀû·ü»êÁ¤
¿¬¸éÀû
220.67§³
(66.87Æò)
°ÇÆóÀ² 49.19% ¿ëÀû·ü 95.53%
Áö»óÃþ¼ö 2Ãþ ÁöÇÏÃþ¼ö 1Ãþ
ÁÖ¿ëµµ ´Üµ¶ÁÖÅà ±¸Á¶ ö±ÙÄÜÅ©¸®Æ®±¸Á¶
Âø°øÀÏÀÚ 2005.11.16 »ç¿ë½ÂÀÎÀÏÀÚ 2007.07.11
°ÇÃ๰Ãþº°ÇöȲ [º¸±â]


µî±âºÎµîº» ¿ä¾à(ÅäÁö)

  Á¢¼öÀÏÀÚ µî±â¸ñÀû/±Ç¸®ÀÚ ±Ç¸®±Ý¾× ±âÁØ
1 2007³â4¿ù5ÀÏ
¼ÒÀ¯±Ç
¼ÒOO
¼Ò¸ê
2 2007³â4¿ù5ÀÏ
¼ÒÀ¯±Ç
°­OO
¼Ò¸ê
3 2007³â7¿ù12ÀÏ
±ÙÀú´ç±Ç
(OOOO
541,400,000 ¼Ò¸ê±âÁØ
4 2009³â10¿ù30ÀÏ
±ÙÀú´ç±Ç
(OOOO
312,000,000 ¼Ò¸ê
5 2021³â5¿ù4ÀÏ
±ÙÀú´ç±Ç
(OOOO
600,000,000 ¼Ò¸ê
6 2023³â6¿ù16ÀÏ
±ÙÀú´ç±Ç
(OOOO
600,000,000 ¼Ò¸ê
7 2024³â7¿ù3ÀÏ
°¡¾Ð·ù
³óOOOO
6,677,859 ¼Ò¸ê
8 2024³â7¿ù19ÀÏ
°¡¾Ð·ù
ÁßOOOO
90,807,679 ¼Ò¸ê
9 2024³â10¿ù17ÀÏ
ÀÓÀǰæ¸Å
(OOOO
¼Ò¸ê

µî±âºÎµîº» ¿ä¾à(°Ç¹°)

  Á¢¼öÀÏÀÚ µî±â¸ñÀû/±Ç¸®ÀÚ ±Ç¸®±Ý¾× ±âÁØ
1 2007³â7¿ù12ÀÏ
¼ÒÀ¯±Ç
¼ÒOO
¼Ò¸ê
2 2007³â7¿ù12ÀÏ
¼ÒÀ¯±Ç
°­OO
¼Ò¸ê
3 2007³â7¿ù12ÀÏ
±ÙÀú´ç±Ç
(OOOO
541,400,000 ¼Ò¸ê±âÁØ
4 2009³â10¿ù30ÀÏ
±ÙÀú´ç±Ç
(OOOO
312,000,000 ¼Ò¸ê
5 2021³â5¿ù4ÀÏ
±ÙÀú´ç±Ç
(OOOO
600,000,000 ¼Ò¸ê
6 2023³â6¿ù16ÀÏ
±ÙÀú´ç±Ç
(OOOO
600,000,000 ¼Ò¸ê
7 2024³â7¿ù3ÀÏ
°¡¾Ð·ù
³óOOOO
6,677,859 ¼Ò¸ê
8 2024³â7¿ù19ÀÏ
°¡¾Ð·ù
ÁßOOOO
90,807,679 ¼Ò¸ê
9 2024³â10¿ù17ÀÏ
ÀÓÀǰæ¸Å
(OOOO
¼Ò¸ê

ÀÓÂ÷ÀÎÇöȲ (¹è´ç¿ä±¸Á¾±âÀÏ: 2025-01-13)


Á¶»çµÈ ÀÓÂ÷³»¿ªÀÌ ¾ø½À´Ï´Ù


¿©ÀÇÁÖ°æ¸Å Á¶¾ð ÇÑ ¸¶µð

Á¦½Ã¿Ü ¹°°ÇÀÌ Æ÷ÇԵǾî ÀÖ½À´Ï´Ù
¡®Á¦½Ã¿Ü ¹°°Ç¡¯Àº ÇØ´ç °øºÎ»ó¿¡´Â Á¸ÀçÇÏÁö ¾ÊÁö¸¸, ÇöÀå¿¡ Á¸Àç°¡ È®ÀεǴ ¿©·¯ ÇüÅÂÀÇ °Ç¹°, ±â°è±â±¸ µîÀ» ¸»ÇÕ´Ï´Ù. ÀÌµé ´ëºÎºÐÀº ¹«Çã°¡, ¹«½Å°íÀ̰ųª »ç¿ë½ÂÀÎÀ» ¹ÞÁö ¾ÊÀº °ÍÀÔ´Ï´Ù. ¡®Á¦½Ã¿Ü ¹°°Ç¡¯ÀÌ °æ¸Å´ë»ó¿¡ Æ÷ÇԵǾî ÀÖ´Ù¸é ³«ÂûÀÚÀÇ ¼ÒÀ¯±Ç Ãëµæ¿¡´Â ¾Æ¹«·± ¹®Á¦°¡ ¾ø½À´Ï´Ù.

ÁÖÀÇ»çÇ× (ÃÖ¼±¼øÀ§ ¼³Á¤ÀÏ: 2007.07.12 ±ÙÀú´ç±Ç ¼³Á¤)

¸Å°¢À¸·Î ¼Ò¸êµÇÁö ¾Ê´Â µî±âºÎ±Ç¸®:
¸Å°¢À¸·Î ¼³Á¤µÈ °ÍÀ¸·Î º¸´Â Áö»ó±Ç:
2025.10.10 ÃÖ°í°¡¸Å¼ö½Å°íÀÎ ¸Å°¢ºÒÇã°¡½Åû¼­ Á¦Ãâ
Àϰý¸Å°¢. Á¦½Ã¿Ü °Ç¹° Æ÷ÇÔ Æ¯º°¸Å°¢Á¶°Ç ¸Å¼ö½Åûº¸Áõ±Ý ÃÖÀú¸Å°¢°¡°ÝÀÇ 20%
¡Ø¹Ì³³°ü¸®ºñ(°ø¿ë) Àμö¿©ºÎ¸¦ ÀÔÂû Àü¿¡ È®ÀÎÇϽñ⠹ٶø´Ï´Ù

 

Áö¿ªºÐ¼®

ÁöÇÏö¸í Á÷¼±°Å¸®

Çб³¸í ÀüÈ­¹øÈ£ ÁÖ¼Ò Á÷¼±°Å¸®

¹ý¿ø

ÀÇÁ¤ºÎÁö¹æ¹ý¿ø °í¾çÁö¿ø (104-13)°æ±âµµ °í¾ç½Ã Àϻ굿±¸ Àå¹é·Î 209
´ëÇ¥ : 031)920-6114, ¾ß°£ : 031)920-6550, ÆÑ½º : 031)920-6119
°üÇÒÁö¿ª : °í¾ç½Ã, ÆÄÁÖ½Ã

µî±â¼Ò ÀÇÁ¤ºÎÁö¹æ¹ý¿ø °í¾çÁö¿ø °í¾çµî±â¼Ò (´ëÇ¥:1544-0773, ÆÑ½º:(031)920-5959, °æ±âµµ °í¾ç½Ã Àϻ굿±¸ Áß¾Ó·Î1275¹ø±æ 38-30 (ÀåÇ×µ¿ 773))
¼¼¹«¼­ °í¾ç¼¼¹«¼­ (´ëÇ¥:031-900-92, ÆÑ½º:031-907-9177, °æ±âµµ °í¾ç½Ã Àϻ굿±¸ Áß¾Ó·Î1275¹ø±æ 14-43 (ÀåÇ×µ¿) )

Àαٳ«ÂûÅë°è

±â°£ ¸Å°¢°Ç¼ö Æò±Õ°¨Á¤°¡
Æò±Õ¸Å°¢°¡
¸Å°¢°¡À²
Æò±ÕÀ¯Âû¼ö
3°³¿ù 0°Ç 0¿ø
0¿ø
0%
0ȸ
6°³¿ù 0°Ç 0¿ø
0¿ø
0%
0ȸ
12°³¿ù 3°Ç 897,369,903¿ø
636,296,000¿ø
71%
1.3ȸ


º» °æ¸ÅÁ¤º¸´Â ¹ý¿øÀÚ·á¿Í ÀÏÄ¡Çϵµ·Ï ÇÏ¿´À¸³ª ±Ç¸®»çÇ׺¯µ¿, ÀÔ·ÂÂø¿À µîÀÇ ¿øÀÎÀ¸·Î »ç½Ç°ú ´Ù¸¦ ¼ö ÀÖ½À´Ï´Ù. ÀÌ¿ë¾à°ü¿¡ ÀǰЏéÃ¥Á¶°ÇÀ¸·Î Á¦°øµÊÀ» ¾Ë¸®¸ç, °æ¸ÅÀÔÂû½Ã ¹Ýµå½Ã °ü·Ã °øºÎ¸¦ ÀçÈ®ÀÎÇϽñ⠹ٶø´Ï´Ù. º¸´Ù Æí¸®ÇÑ °æ¸ÅÁ¤º¸ Á¦°øÀ» À§ÇØ Áö¼ÓÀûÀ¸·Î °³¼±ÇϰڽÀ´Ï´Ù. ÀÌ¿ëÇØ Áּż­ °¨»çÇÕ´Ï´Ù.