·Î±×ÀÎ
922
±Ù¸°»ó°¡
ÀÎõÁö¹æ¹ý¿ø ºÎõÁö¿ø
 °¨Á¤°¡708,000,000 ¿ø
 ÃÖÀú°¡(49%) 346,920,000 ¿ø
 º¸Áõ±Ý(10%) 34,692,000 ¿ø
 Ã»±¸¾×300,000,000 ¿ø
°æ±âµµ ºÎõ½Ã ¼Ò»ç±¸ ¼Ò»ï·Î36¹ø±æ 6, 2Ãþ201È£ (¼Ò»çº»µ¿,Áö¿¡ºê¸®)
°æ±âµµ ºÎõ½Ã ¼Ò»ç±¸ ¼Ò»çº»µ¿ 138-2
»ç°Ç¹øÈ£ 2024Ÿ°æ38597 ¹°°Ç¹øÈ£
Áߺ¹»ç°ÇÁߺ¹ 2024Ÿ°æ43612,2024Ÿ°æ43629,2024Ÿ°æ40675,2024Ÿ°æ40651, º´ÇÕ 2024Ÿ°æ3416,
°æ¸ÅÁ¾·ùºÎµ¿»ê°­Á¦°æ¸Å
¸Å°¢´ë»óÅäÁö ¹× °Ç¹°Àϰý ¸Å°¢
¸Å°¢±âÀÏ    2025.11.20(¸ñ) 10:00 ÀÔÂû 13ÀÏÀü    
ÅäÁö¸éÀû73.04§³(22.10 Æò)
°Ç¹°¸éÀû176.93§³(53.52 Æò)
乫/¼ÒÀ¯ÀÚ±èOO / ±èOO
ä±ÇÀÚ±èOO
ÆäÀ̽ººÏ Æ®À§ÅÍ ±¸±Û+
īī¿À½ºÅ丮
īī¿ÀÅå sms¹®ÀÚº¸³»±â
 

±âÀϳ»¿ª

°æ°ú ³¯Â¥ Àú°¨ ÃÖÀú°¡ °á°ú
Á¢¼öÀÏ 2024-04-18 °æ¸ÅÁ¢¼ö
~8ÀÏ 
2024-04-26 °æ¸Å°³½Ã°áÁ¤
~568ÀÏ 
¹è´ç¿ä±¸Á¾±âÀÏ
~497ÀÏ 
2025-08-28 100%
708,000,000
À¯Âû
~546ÀÏ 
2025-10-16 70%
495,600,000
À¯Âû
~581ÀÏ 
2025-11-20 49%
346,920,000
ÁøÇà
¹°°Ç¸í¼¼¼­ ÇöȲÁ¶»ç¼­ ¹®°ÇÁ¢¼ö ¼Û´Þ³»¿ª

°¨Á¤Æò°¡ÇöȲ

¸ñ·Ï ÁÖ¼Ò ±¸Á¶/¿ëµµ/´ëÁö±Ç ¸éÀû ºñ°í
´ëÁö±Ç
¼Ò»çº»µ¿ 138-2 331ºÐÀÇ 73.0441 73.0441 §³
(22.10Æò)
°Ç¹°
¼Ò»çº»µ¿ 138-2 2Ãþ201È£ ö±ÙÄÜÅ©¸®Æ®±¸Á¶ 176.93 §³
(53.52Æò)
1) À§Ä¡/Á¦3Á¾ÀϹÝÁÖ°ÅÁö¿ª/Áö±¸´ÜÀ§°èȹ±¸¿ª/Â÷·® Á¢±ÙÀÌ °¡´É/°£¼±µµ·Î/ö±ÙÄÜÅ©¸®Æ®Á¶ ´õº¸±â
°¨Á¤Æò°¡ ¿äÇ×Ç¥
1)À§Ä¡ ¹× ÁÖÀ§È¯°æ
´ë»ó¹°°ÇÀº °æ±âµµ ºÎõ½Ã ¼Ò»çº»µ¿ ¼ÒÀç "¼Ò»ç¿ª" ³²µ¿Ãø Àαٿ¡ À§Ä¡Çϸç, ÁÖÀ§´Â
°¢Á¾ ±Ù¸°»ýȰ½Ã¼³, ´Ù¼¼´ë ¹× ´Üµ¶ÁÖÅÃ, ¾ÆÆÄÆ®´ÜÁö µîÀÌ È¥ÀçÇÏ´Â ÁÖÅûó°¡Áö´ëÀÓ.

2)±³Åë»óȲ
º»°Ç ÀαٱîÁö Â÷·® Á¢±ÙÀÌ °¡´ÉÇϸç, Àα٠±³Åë½Ã¼³ ¹× °£¼±µµ·Î¿ÍÀÇ °Å¸®, ÆíÀǼº µî
°í·Á ½Ã Á¦¹Ý ±³Åë»óȲÀº ºñ±³Àû ¾çÈ£ÇÑ ÆíÀÓ.
3)°Ç¹°ÀÇ ±¸Á¶
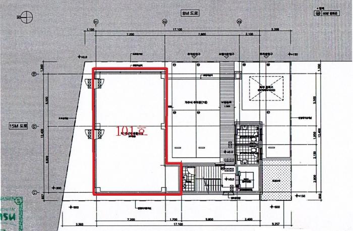
ö±ÙÄÜÅ©¸®Æ®Á¶ Æò½½¶óºêÁöºØ 5Ãþ °Ç¹° ³» 1Ãþ 101È£·Î¼­,(»ç¿ë½ÂÀÎÀÏ: 2023.02.16)

¿Ü º® : À¯¸® ¹× ÀϺΠ¼®ÀçºÙÀÓ µî ¸¶°¨.
â È£ : ¼¦½Ãâȣ µî
4)ÀÌ¿ë»óÅÂ
°øºÎ»ó ÁÖ¿ëµµ´Â Á¦1Á¾±Ù¸°»ýȰ½Ã¼³ ¼Ò¸ÅÁ¡À̸ç, ±âÁؽÃÁ¡ ÇöÀç °ø½Ç»óÅÂÀÓ.
5)¼³ºñ³»¿ª
±âº»ÀûÀÎ À§»ý ¹× ±Þ¹è¼ö¼³ºñ, ½Â°­±â¼³ºñ µîÀÌ °®Ãß¾îÁ® ÀÖÀ½.
6)ÅäÁöÀÇ Çü»ó ¹× ÀÌ¿ë»óÅÂ
´ëü·Î À广Çü ÅäÁö·Î¼­, ±Ù¸°»ýȰ½Ã¼³(Áö¿¡ºê¸®) °ÇºÎÁö·Î ÀÌ¿ëÁßÀÓ.
7)ÀÎÁ¢ µµ·Î»óŵî
º»°Ç °Ç¹° ºÏÃø ¹× µ¿ÃøÀ¸·Î °¢°¢ Æø 15¹ÌÅÍ ¹× 8¹ÌÅÍ ³»¿ÜÀÇ Áö¼±µµ·Î¿¡ Á¢Çϰí ÀÖÀ½.
8)ÅäÁöÀÌ¿ë°èȹ ¹× Á¦ÇÑ»óÅÂ

Á¦3Á¾ÀϹÝÁÖ°ÅÁö¿ª, Áö±¸´ÜÀ§°èȹ±¸¿ª(¼Ò»ç¿ª¼¼±Ç Áö±¸´ÜÀ§°èȹ±¸¿ª), ¼Ò·Î2·ù(Æø8m-10m)
(Á¢ÇÕ), Áß·Î2·ù(Æø 15m-20m)(Á¢ÇÕ), °¡Ãà»çÀ°Á¦Çѱ¸¿ª<°¡ÃàºÐ´¢ÀÇ °ü¸® ¹× À̿뿡 °üÇÑ
¹ý·ü>, °ú¹Ð¾ïÁ¦±Ç¿ª<¼öµµ±ÇÁ¤ºñ°èȹ¹ý>
9)°øºÎ¿ÍÀÇ Â÷ÀÌ
ÇØ´ç»çÇ× ¾øÀ½.
10)±âŸÂü°í»çÇ×(ÀÓ´ë°ü·Ê ¹× ±âŸ)
ÀÓ´ë°ü°è´Â ¹Ì»óÀÓ.
Âü°í
»çÇ×

ÇöÀåÀº ŹÀÚ¿Í ÀÇÀÚ µî °£´ÜÇÑ »ç¹«°¡

°ÇÃ๰ÇöȲ

¼ÒÀçÁö °æ±âµµ ºÎõ½Ã ¼Ò»ç±¸ ¼Ò»çº»µ¿ 138-2¹øÁö
´ëÁö¸éÀû 331§³
(100.3Æò)
¿¬¸éÀû 966.87§³
(292.99Æò)
°ÇÃà¸éÀû 194.19§³
(58.85Æò)
¿ëÀû·ü»êÁ¤
¿¬¸éÀû
893.28§³
(270.69Æò)
°ÇÆóÀ² 58.67% ¿ëÀû·ü 269.87%
Áö»óÃþ¼ö 5Ãþ ÁöÇÏÃþ¼ö  
ÁÖ¿ëµµ Á¦1Á¾±Ù¸°»ýȰ½Ã¼³ ±¸Á¶ ö±ÙÄÜÅ©¸®Æ®±¸Á¶
Âø°øÀÏÀÚ 2022.08.01 »ç¿ë½ÂÀÎÀÏÀÚ 2023.02.16
°ÇÃ๰Ãþº°ÇöȲ [º¸±â]


µî±âºÎµîº» ¿ä¾à(°Ç¹°)

  Á¢¼öÀÏÀÚ µî±â¸ñÀû/±Ç¸®ÀÚ ±Ç¸®±Ý¾× ±âÁØ
1 2023³â8¿ù3ÀÏ
¼ÒÀ¯±Ç
±èOO
¼Ò¸ê
2 2023³â8¿ù3ÀÏ
(1)±ÙÀú´ç±Ç¼³Á¤
˱OO
130,000,000 ¼Ò¸ê±âÁØ
3 2023³â8¿ù3ÀÏ
(2)±ÙÀú´ç±Ç¼³Á¤
¹ÚOO
130,000,000 ¼Ò¸ê
4 2023³â8¿ù14ÀÏ
±ÙÀú´ç±Ç
±¤OOOO
3,471,000,000 ¼Ò¸ê
5 2024³â6¿ù20ÀÏ
ÀÓÀǰæ¸Å
Á¦OOOO
¼Ò¸ê
6 2024³â6¿ù25ÀÏ
°­Á¦°æ¸Å
±èOO
¼Ò¸ê
7 2025³â2¿ù18ÀÏ
¾Ð·ù
ºÎOO
¼Ò¸ê

ÀÓÂ÷ÀÎÇöȲ (¹è´ç¿ä±¸Á¾±âÀÏ: )


Á¶»çµÈ ÀÓÂ÷³»¿ªÀÌ ¾ø½À´Ï´Ù


¿©ÀÇÁÖ°æ¸Å Á¶¾ð ÇÑ ¸¶µð

À¯Ä¡±Ç½Å°í°¡ ÀÖ´Â ¹°°ÇÀÔ´Ï´Ù
À¯Ä¡±ÇÀ̶õ ŸÀÎÀÇ ºÎµ¿»êÀ» Á¡À¯Çϰí ÀÖ´Â ÀÚ°¡ ±× ºÎµ¿»ê¿¡ °üÇÏ¿© »ý±ä (°ø»ç´ë±Ý)ä±ÇÀÌ ÀÖ´Â °æ¿ì ±× ä±ÇÀ» º¯Á¦¹ÞÀ» ¶§±îÁö ºÎµ¿»êÀÇ Àεµ¸¦ °ÅÀýÇϰí À¯Ä¡ÇÒ ¼ö ÀÖ´Â ±Ç¸®ÀÔ´Ï´Ù. ÁøÁ¤ÇÑ À¯Ä¡±ÇÀº ³«Âû·Î ¸»¼ÒµÇÁö ¾Ê°í ³«ÂûÀÚ°¡ ±× ºÎ´ãÀ» ÀμöÇÕ´Ï´Ù. ±×·±µ¥, À¯Ä¡±ÇÀº °ß·Ã¼º, ÇǴ㺸ä±Ç, º¯Á¦±â, Á¡À¯ µî ±× ¼º¸³ ¹× Á¸¼Ó¿ä°ÇÀÌ ¸Å¿ì ¾ö°ÝÇÏ¿© ½ÇÁ¦ À¯Ä¡±ÇÀÌ ¼º¸³ÇÏ´Â °æ¿ì´Â ±ØÈ÷ µå¹´´Ï´Ù.

ÁÖÀÇ»çÇ× (ÃÖ¼±¼øÀ§ ¼³Á¤ÀÏ: °Ç¹°: 2023.8.3.±ÙÀú´ç ¼³Á¤ ÅäÁö: 2022.3.15.±ÙÀú´ç)

¸Å°¢À¸·Î ¼Ò¸êµÇÁö ¾Ê´Â µî±âºÎ±Ç¸®:
¸Å°¢À¸·Î ¼³Á¤µÈ °ÍÀ¸·Î º¸´Â Áö»ó±Ç:
2024.10.29 À¯Ä¡±ÇÀÚ ¾¾OOO OOOO À¯Ä¡±ÇÇØÁ¦½Åû Á¦Ãâ
2024.08.30 À¯Ä¡±ÇÀÚ ¾¾OOO OOOO À¯Ä¡±Ç½Å°í¼­ Á¦Ãâ
2025.11.05 ±ÙÀú´ç±ÇÀÚ Á¦OOOOOO(OOOOOOOOOOOOO) °æ¸ÅÀýÂ÷Á¤Áö½Åû Á¦Ãâ
¾¾Áö°Ç¼³ ÁÖ½Äȸ»ç°¡ 2024. 8. 30. À¯Ä¡±Ç½Å°í(°ø»ç´ë±Ý:891,700,000¿ø)ÇÏ¿´À¸³ª, 2024.10.29.ÀÚ À¯Ä¡±Ç½Å°í ÇØÁ¦ÇÔ
¡Ø¹Ì³³°ü¸®ºñ(°ø¿ë) Àμö¿©ºÎ¸¦ ÀÔÂû Àü¿¡ È®ÀÎÇϽñ⠹ٶø´Ï´Ù

 

Áö¿ªºÐ¼®

ÁöÇÏö¸í Á÷¼±°Å¸®

Çб³¸í ÀüÈ­¹øÈ£ ÁÖ¼Ò Á÷¼±°Å¸®

¹ý¿ø

ÀÎõÁö¹æ¹ý¿ø ºÎõÁö¿ø (146-02)°æ±âµµ ºÎõ½Ã ¿ø¹Ì±¸ »óÀÏ·Î 129(»óµ¿)
´ëÇ¥ : 032)320-1114, ¹Î¿ø : 032)320-1234
°üÇÒÁö¿ª : ºÎõ½Ã, ±èÆ÷½Ã

µî±â¼Ò ÀÎõÁö¹æ¹ý¿ø ºÎõÁö¿ø µî±â°ú (´ëÇ¥:1544-0773, ÆÑ½º:(032)320-1484, 320-1485, °æ±âµµ ºÎõ½Ã »óÀÏ·Î 129 (»óµ¿ 445-1))
¼¼¹«¼­ ¼¼¹«¼­ (´ëÇ¥:, ÆÑ½º:, )

Àαٳ«ÂûÅë°è

±â°£ ¸Å°¢°Ç¼ö Æò±Õ°¨Á¤°¡
Æò±Õ¸Å°¢°¡
¸Å°¢°¡À²
Æò±ÕÀ¯Âû¼ö
3°³¿ù 4°Ç 297,250,000¿ø
187,620,000¿ø
65%
1.8ȸ
6°³¿ù 4°Ç 297,250,000¿ø
187,620,000¿ø
65%
1.8ȸ
12°³¿ù 5°Ç 293,200,000¿ø
201,775,930¿ø
71%
1.6ȸ


º» °æ¸ÅÁ¤º¸´Â ¹ý¿øÀÚ·á¿Í ÀÏÄ¡Çϵµ·Ï ÇÏ¿´À¸³ª ±Ç¸®»çÇ׺¯µ¿, ÀÔ·ÂÂø¿À µîÀÇ ¿øÀÎÀ¸·Î »ç½Ç°ú ´Ù¸¦ ¼ö ÀÖ½À´Ï´Ù. ÀÌ¿ë¾à°ü¿¡ ÀǰЏéÃ¥Á¶°ÇÀ¸·Î Á¦°øµÊÀ» ¾Ë¸®¸ç, °æ¸ÅÀÔÂû½Ã ¹Ýµå½Ã °ü·Ã °øºÎ¸¦ ÀçÈ®ÀÎÇϽñ⠹ٶø´Ï´Ù. º¸´Ù Æí¸®ÇÑ °æ¸ÅÁ¤º¸ Á¦°øÀ» À§ÇØ Áö¼ÓÀûÀ¸·Î °³¼±ÇϰڽÀ´Ï´Ù. ÀÌ¿ëÇØ Áּż­ °¨»çÇÕ´Ï´Ù.