·Î±×ÀÎ
10
´Ù¼¼´ë(ºô¶ó)
ÀÇÁ¤ºÎÁö¹æ¹ý¿ø °í¾çÁö¿ø
 °¨Á¤°¡315,000,000 ¿ø
 ÃÖÀú°¡(34%) 108,045,000 ¿ø
 º¸Áõ±Ý(10%) 10,804,500 ¿ø
 Ã»±¸¾×193,094,945 ¿ø
°æ±âµµ °í¾ç½Ã Àϻ굿±¸ µ¿±¹·Î197¹ø±æ 113-1, 102µ¿ 4Ãþ402È£ (¼º¼®µ¿,ºê¶ó¿îÈú½º)
°æ±âµµ °í¾ç½Ã Àϻ굿±¸ ¼º¼®µ¿ 195-38
»ç°Ç¹øÈ£ 2024Ÿ°æ82533
°æ¸ÅÁ¾·ùºÎµ¿»êÀÓÀǰæ¸Å
¸Å°¢´ë»óÅäÁö ¹× °Ç¹°Àϰý ¸Å°¢
¸Å°¢±âÀÏ    2025.12.11(¸ñ) 10:00 ÀÔÂû 26ÀÏÀü    
ÅäÁö¸éÀû70.11§³(21.21 Æò)
°Ç¹°¸éÀû64.56§³(19.53 Æò)
乫/¼ÒÀ¯ÀÚÀåOO / ÀåOO
ä±ÇÀÚÇÑOOOOOOOOO
ÆäÀ̽ººÏ Æ®À§ÅÍ ±¸±Û+
īī¿À½ºÅ丮
īī¿ÀÅå sms¹®ÀÚº¸³»±â
 

±âÀϳ»¿ª

°æ°ú ³¯Â¥ Àú°¨ ÃÖÀú°¡ °á°ú
Á¢¼öÀÏ 2024-10-10 °æ¸ÅÁ¢¼ö
~1ÀÏ 
2024-10-11 °æ¸Å°³½Ã°áÁ¤
~88ÀÏ 
2025-01-06 ¹è´ç¿ä±¸Á¾±âÀÏ
~322ÀÏ 
2025-08-28 100%
315,000,000
À¯Âû
~357ÀÏ 
2025-10-02 70%
220,500,000
À¯Âû
~392ÀÏ 
2025-11-06 49%
154,350,000
À¯Âû
~427ÀÏ 
2025-12-11 34%
108,045,000
ÁøÇà
¹°°Ç¸í¼¼¼­ ÇöȲÁ¶»ç¼­ ¹®°ÇÁ¢¼ö ¼Û´Þ³»¿ª

°¨Á¤Æò°¡ÇöȲ

¸ñ·Ï ÁÖ¼Ò ±¸Á¶/¿ëµµ/´ëÁö±Ç ¸éÀû ºñ°í
´ëÁö±Ç
¼º¼®µ¿ 195-38 1675ºÐÀÇ 70.1121 70.1121 §³
(21.21Æò)
°Ç¹°
¼º¼®µ¿ 195-38 102µ¿ 4Ãþ402È£ ö±ÙÄÜÅ©¸®Æ®±¸Á¶ 64.5572 §³
(19.53Æò)
ÁöÇÏâ°íÆ÷ÇÔ
1) À§Ä¡/µµ½ÃÁö¿ª/°èȹ°ü¸®Áö¿ª/³ë¼±¹ö½ºÁ¤·ùÀå/ö±ÙÄÜÅ©¸®Æ®±¸Á¶/°æ»çÁöºØ/µµ½Ã°¡½º ´õº¸±â
°¨Á¤Æò°¡ ¿äÇ×Ç¥
1)À§Ä¡ ¹× ÁÖÀ§È¯°æ
º»°ÇÀº °æ±âµµ °í¾ç½Ã Àϻ굿±¸ ½Ä»çµ¿ ¼ÒÀç "°í¾ç±¹Á¦°íµîÇб³" ºÏ¼­Ãø Àαٿ¡ À§Ä¡Çϸç,
ÁÖÀ§´Â ´Ù¼¼´ëÁÖÅà ¹× °¢Á¾ ±Ù¸°»ýȰ½Ã¼³, ³ó°æÁö, ÀÓ¾ß µîÀÌ È¥ÀçÇÏ´Â Áö¿ªÀÓ.
2)±³Åë»óȲ
º»°Ç±îÁö Â÷·®Á¢±Ù °¡´ÉÇϸç, Àαٿ¡ ³ë¼±¹ö½ºÁ¤·ùÀåÀÌ ¼ÒÀçÇÏ´Â µî Á¦¹Ý ±³Åë»óȲÀº º¸Åë½Ã
µÊ.
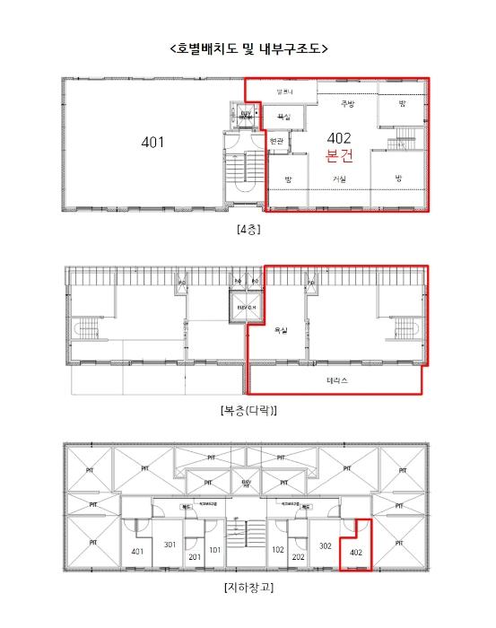
3)°Ç¹°ÀÇ ±¸Á¶
ö±ÙÄÜÅ©¸®Æ®±¸Á¶ ±âŸÁöºØ(°æ»çÁöºØ) 4Ãþ°Ç³» 4Ãþ 402È£·Î¼­,
(»ç¿ë½ÂÀÎÀÏ: 2019.10.15)

¿Üº®: ÆäÀÎÆÃ¸¶°¨ ¹× ¼®ÀçºÙÀÓ¸¶°¨ µî,
³»º®: º®Áöµµ¹è ¹× ÀϺΠŸÀϸ¶°¨ µî,
âȣ: ¼¦½Ã âȣ µîÀÓ.
4)ÀÌ¿ë»óÅÂ
º¹ÃþÇü ±¸Á¶ÀÇ ´Ù¼¼´ëÁÖÅÃ(ÈÄ÷ ³»ºÎ±¸Á¶µµ ÂüÁ¶)À¸·Î ÀÌ¿ëÁßÀÓ.
5)¼³ºñ³»¿ª
±âº»ÀûÀÎ À§»ý¼³ºñ ¹× ±Þ¹è¼ö¼³ºñ, µµ½Ã°¡½º ³­¹æ¼³ºñ, ½Â°­±â¼³ºñ µîÀÌ µÇ¾îÀÖÀ½.

6)ÅäÁöÀÇ Çü»ó ¹× ÀÌ¿ë»óÅÂ
ÀÎÁ¢Áö¿Í µî°íÆòźÇÑ »ç´Ù¸®Çü¿¡ °¡±î¿î ÅäÁö·Î¼­, °øµ¿ÁÖÅÃ(´Ù¼¼´ëÁÖÅÃ) °ÇºÎÁö·Î ÀÌ¿ëÁß
ÀÓ.
7)ÀÎÁ¢ µµ·Î»óŵî
º»°Ç µ¿ÃøÀ¸·Î ³ëÆø ¾à 6-8m ³»¿ÜÀÇ Æ÷Àåµµ·Î¿¡ Á¢ÇØÀÖÀ½.
8)ÅäÁöÀÌ¿ë°èȹ ¹× Á¦ÇÑ»óÅÂ
°èȹ°ü¸®Áö¿ª, ¼ºÀå°ü¸®°èȹ±¸¿ª(ÁÖ°Åzone)
°¡Ãà»çÀ°Á¦Çѱ¸¿ª(2019-11-29)(µµ½ÃÁö¿ª[ÁÖ°Å,»ó¾÷,°ø¾÷,³ìÁö(ÀÚ¿¬Ãë¶ôÁö±¸)]¹×ÁְŹÐÁýÁö¿ª
50m³»)<°¡ÃàºÐ´¢ÀÇ °ü¸® ¹× À̿뿡 °üÇÑ ¹ý·ü>, Á¦ÇѺ¸È£±¸¿ª(Àü¹æÁö¿ª:25km)(º¸È£)<±º»ç±â
Áö ¹× ±º»ç½Ã¼³ º¸È£¹ý>, °ú¹Ð¾ïÁ¦±Ç¿ª<¼öµµ±ÇÁ¤ºñ°èȹ¹ý> ÀÓ.
9)°øºÎ¿ÍÀÇ Â÷ÀÌ
¾ø À½.
10)±âŸÂü°í»çÇ×(ÀÓ´ë°ü·Ê ¹× ±âŸ)
ÀÓ´ë°ü°è´Â ¹Ì»óÀÓ.
Âü°í
»çÇ×

1. º»°Ç °Ç¹°Àº ö±ÙÄÜÅ©¸®Æ®±¸Á¶ ±âŸÁöºØ(°æ»çÁöºØ) 4Ãþ °øµ¿ÁÖÅÃ(´Ù¼¼´ëÁÖÅÃ)ÀÓ. 2. °Ç¹° ¿Üº®¿¡ `102` Ç¥½Ã ÀÖÀ¸¸ç, ½Â°­±â¸¦ ÅëÇØ ÀüÀ¯ºÎºÐÀ» ÃâÀÔÇÒ ¼ö ÀÖÀ½.

°ÇÃ๰ÇöȲ

¼ÒÀçÁö °æ±âµµ °í¾ç½Ã Àϻ굿±¸ ¼º¼®µ¿ 195-38¹øÁö
´ëÁö¸éÀû   ¿¬¸éÀû 634.91§³
(192.4Æò)
°ÇÃà¸éÀû 191.54§³
(58.04Æò)
¿ëÀû·ü»êÁ¤
¿¬¸éÀû
558.3§³
(169.18Æò)
°ÇÆóÀ²   ¿ëÀû·ü  
Áö»óÃþ¼ö 4Ãþ ÁöÇÏÃþ¼ö 1Ãþ
ÁÖ¿ëµµ °øµ¿ÁÖÅà ±¸Á¶ ö±ÙÄÜÅ©¸®Æ®±¸Á¶
Âø°øÀÏÀÚ 2019.04.09 »ç¿ë½ÂÀÎÀÏÀÚ 2019.10.15
°ÇÃ๰Ãþº°ÇöȲ [º¸±â]


µî±âºÎµîº» ¿ä¾à(°Ç¹°)

  Á¢¼öÀÏÀÚ µî±â¸ñÀû/±Ç¸®ÀÚ ±Ç¸®±Ý¾× ±âÁØ
1 2020³â3¿ù19ÀÏ
¼ÒÀ¯±Ç
ÀåOO
¼Ò¸ê
2 2020³â3¿ù19ÀÏ
±ÙÀú´ç±Ç
ÇÑOOOO
246,000,000 ¼Ò¸ê±âÁØ
3 2024³â10¿ù11ÀÏ
ÀÓÀǰæ¸Å
ÇÑOOOO
¼Ò¸ê

ÀÓÂ÷ÀÎÇöȲ (¹è´ç¿ä±¸Á¾±âÀÏ: 2025-01-06)

ÀÓÂ÷ÀÎ ¿ëµµ/Á¡À¯ º¸Áõ±Ý/¿ù¼¼ ´ëÇ×·Â
ÀüÀÔÀÏ/È®Á¤ÀÏ ¹è´ç¿ä±¸ ºñ°í
YOOOOOOOOO ÀüºÎ 40,000,000
[¿ù]600,000
X
2024.06.27.
2023.11.21.
2024.10.31. 2023.09.23.~2025.09.23.
¹ÚOO
X
2023.10.04.
ºñ°í
(¸Å°¢¹°°Ç
¸í¼¼¼­)
¹ÚÁ¤ÅÃ:¹ÚÁ¤ÅÃÀº ÀÓÂ÷ÀÎÀ¸·Î ½Å°íÇÑ YINYINGHUAÀÇ ¹è¿ìÀÚÀÓ.

¿©ÀÇÁÖ°æ¸Å Á¶¾ð ÇÑ ¸¶µð


ÁÖÀÇ»çÇ× (ÃÖ¼±¼øÀ§ ¼³Á¤ÀÏ: 2020.03.19. ±ÙÀú´ç ¼³Á¤)

¸Å°¢À¸·Î ¼Ò¸êµÇÁö ¾Ê´Â µî±âºÎ±Ç¸®:
¸Å°¢À¸·Î ¼³Á¤µÈ °ÍÀ¸·Î º¸´Â Áö»ó±Ç:
¡Ø¹Ì³³°ü¸®ºñ(°ø¿ë) Àμö¿©ºÎ¸¦ ÀÔÂû Àü¿¡ È®ÀÎÇϽñ⠹ٶø´Ï´Ù

 

Áö¿ªºÐ¼®

ÁöÇÏö¸í Á÷¼±°Å¸®

Çб³¸í ÀüÈ­¹øÈ£ ÁÖ¼Ò Á÷¼±°Å¸®

¹ý¿ø

ÀÇÁ¤ºÎÁö¹æ¹ý¿ø °í¾çÁö¿ø (104-13)°æ±âµµ °í¾ç½Ã Àϻ굿±¸ Àå¹é·Î 209
´ëÇ¥ : 031)920-6114, ¾ß°£ : 031)920-6550, ÆÑ½º : 031)920-6119
°üÇÒÁö¿ª : °í¾ç½Ã, ÆÄÁÖ½Ã

µî±â¼Ò ÀÇÁ¤ºÎÁö¹æ¹ý¿ø °í¾çÁö¿ø °í¾çµî±â¼Ò (´ëÇ¥:1544-0773, ÆÑ½º:(031)920-5959, °æ±âµµ °í¾ç½Ã Àϻ굿±¸ Áß¾Ó·Î1275¹ø±æ 38-30 (ÀåÇ×µ¿ 773))
¼¼¹«¼­ °í¾ç¼¼¹«¼­ (´ëÇ¥:031-900-92, ÆÑ½º:031-907-9177, °æ±âµµ °í¾ç½Ã Àϻ굿±¸ Áß¾Ó·Î1275¹ø±æ 14-43 (ÀåÇ×µ¿) )

Àαٳ«ÂûÅë°è

±â°£ ¸Å°¢°Ç¼ö Æò±Õ°¨Á¤°¡
Æò±Õ¸Å°¢°¡
¸Å°¢°¡À²
Æò±ÕÀ¯Âû¼ö
3°³¿ù 16°Ç 226,562,500¿ø
128,243,031¿ø
57%
3ȸ
6°³¿ù 42°Ç 228,619,048¿ø
137,880,533¿ø
60%
2.6ȸ
12°³¿ù 96°Ç 247,458,333¿ø
158,032,933¿ø
63%
2.3ȸ


º» °æ¸ÅÁ¤º¸´Â ¹ý¿øÀÚ·á¿Í ÀÏÄ¡Çϵµ·Ï ÇÏ¿´À¸³ª ±Ç¸®»çÇ׺¯µ¿, ÀÔ·ÂÂø¿À µîÀÇ ¿øÀÎÀ¸·Î »ç½Ç°ú ´Ù¸¦ ¼ö ÀÖ½À´Ï´Ù. ÀÌ¿ë¾à°ü¿¡ ÀǰЏéÃ¥Á¶°ÇÀ¸·Î Á¦°øµÊÀ» ¾Ë¸®¸ç, °æ¸ÅÀÔÂû½Ã ¹Ýµå½Ã °ü·Ã °øºÎ¸¦ ÀçÈ®ÀÎÇϽñ⠹ٶø´Ï´Ù. º¸´Ù Æí¸®ÇÑ °æ¸ÅÁ¤º¸ Á¦°øÀ» À§ÇØ Áö¼ÓÀûÀ¸·Î °³¼±ÇϰڽÀ´Ï´Ù. ÀÌ¿ëÇØ Áּż­ °¨»çÇÕ´Ï´Ù.