·Î±×ÀÎ
1155
¾ÆÆÄÆ®
ÀÎõÁö¹æ¹ý¿ø ºÎõÁö¿ø
 °¨Á¤°¡396,000,000 ¿ø
 ÃÖÀú°¡(70%) 277,200,000 ¿ø
 º¸Áõ±Ý(10%) 27,720,000 ¿ø
 Ã»±¸¾×225,303,156 ¿ø
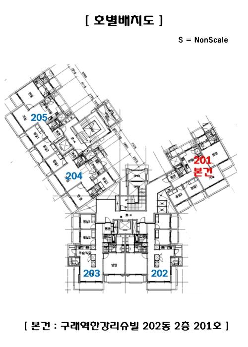
°æ±âµµ ±èÆ÷½Ã ±èÆ÷ÇѰ­8·Î 377, 202µ¿ 2Ãþ201È£ (±¸·¡µ¿,±¸·¡¿ªÇѰ­¸®½´ºô)
°æ±âµµ ±èÆ÷½Ã ±¸·¡µ¿ 6888-2
»ç°Ç¹øÈ£ 2024Ÿ°æ5962
°æ¸ÅÁ¾·ùºÎµ¿»êÀÓÀǰæ¸Å
¸Å°¢´ë»óÅäÁö ¹× °Ç¹°Àϰý ¸Å°¢
¸Å°¢±âÀÏ    2026.04.07(È­) 10:00 ÀÔÂû 1ÀÏÀü    
ÅäÁö¸éÀû54.13§³(16.37 Æò)
°Ç¹°¸éÀû84.96§³(25.70 Æò)
乫/¼ÒÀ¯ÀÚÀÌOO / ÀÌOO
ä±ÇÀÚÀ¯OOOOOOOOOOOOOOOOO(OOOO(O)OOOO)
ÆäÀ̽ººÏ Æ®À§ÅÍ ±¸±Û+
īī¿À½ºÅ丮
īī¿ÀÅå sms¹®ÀÚº¸³»±â
 

±âÀϳ»¿ª

°æ°ú ³¯Â¥ Àú°¨ ÃÖÀú°¡ °á°ú
Á¢¼öÀÏ 2024-11-05 °æ¸ÅÁ¢¼ö
~1ÀÏ 
2024-11-06 °æ¸Å°³½Ã°áÁ¤
~83ÀÏ 
2025-01-27 ¹è´ç¿ä±¸Á¾±âÀÏ
~287ÀÏ 
2025-08-19 100%
396,000,000
À¯Âû
~322ÀÏ 
2025-09-23 70%
277,200,000
º¯°æ
~518ÀÏ 
2026-04-07 70%
277,200,000
ÁøÇà
¹°°Ç¸í¼¼¼­ ÇöȲÁ¶»ç¼­ ¹®°ÇÁ¢¼ö ¼Û´Þ³»¿ª

°¨Á¤Æò°¡ÇöȲ

¸ñ·Ï ÁÖ¼Ò ±¸Á¶/¿ëµµ/´ëÁö±Ç ¸éÀû ºñ°í
´ëÁö±Ç
±¸·¡µ¿ 6888-2 29825ºÐÀÇ 54.129 54.129 §³
(16.37Æò)
°Ç¹°
±¸·¡µ¿ 6888-2 202µ¿ 2Ãþ201È£ ö±ÙÄÜÅ©¸®Æ®±¸Á¶ 84.959 §³
(25.70Æò)
1) À§Ä¡/µµ½ÃÁö¿ª/Á¦3Á¾ÀϹÝÁÖ°ÅÁö¿ª/Á¦1Á¾Áö±¸´ÜÀ§°èȹ±¸¿ª/½Ã³»¹ö½ºÁ¤·ùÀå/Â÷·®ÀÇ Á¢±ÙÀÌ °¡´É/ö±ÙÄÜÅ©¸®Æ®±¸Á¶/°æ»çÁöºØ ´õº¸±â
°¨Á¤Æò°¡ ¿äÇ×Ç¥
1)À§Ä¡ ¹× ÁÖÀ§È¯°æ
°æ±âµµ ±èÆ÷½Ã ±¸·¡µ¿ ¼ÒÀç "±¸·¡ÃʵîÇб³" ºÏÃø Àαٿ¡ À§Ä¡Çϸç ÀαÙÀº Áß.´ë´ÜÁö ¾ÆÆÄÆ®Áö¿ªÀ¸·Î¼­ ÁÖÀ§È¯°æÀÌ ¹«³­½ÃµÊ.
2)±³Åë»óȲ
º»°Ç(ÀαÙ)±îÁö Â÷·®ÀÇ Á¢±ÙÀÌ °¡´ÉÇϰí Àαٿ¡ ½Ã³»¹ö½ºÁ¤·ùÀåÀÌ À§Ä¡ÇÏ¿© ´ëÁß±³Åë»óȲÀº ¹«³­½ÃµÊ.
3)°Ç¹°ÀÇ ±¸Á¶
ö±ÙÄÜÅ©¸®Æ®±¸Á¶ (ö±Ù)ÄÜÅ©¸®Æ®°æ»çÁöºØ 20Ãþ °Ç³» 2Ãþ 201È£·Î¼­

¿Üº® : ¼ö¼ºÆäÀÎÆÃ ¸¶°¨.
³»º® : ÀÎÅ׸®¾î ¸¶°¨.
âȣ : ¼¦½Ã âȣÀÓ.
4)ÀÌ¿ë»óÅÂ
¾ÆÆÄÆ®ÀÓ.
5)¼³ºñ³»¿ª
±Þ.¹è¼ö½Ã¼³, À§»ý¼³ºñ, °¡½º¼³ºñ, ½Â°­±â¼³ºñ µîÀ» °®Ãß¾úÀ½.


6)ÅäÁöÀÇ Çü»ó ¹× ÀÌ¿ë»óÅÂ
±¤Æò¼öÀÇ ÅäÁö·Î¼­ ¾ÆÆÄÆ®ÀÇ ºÎÁö·Î ÀÌ¿ëÁßÀÓ.
7)ÀÎÁ¢ µµ·Î»óŵî
´ÜÁö³» µµ·Î ¹× º»°Ç°ú ¿¬°áµÈ ÀÎÁ¢°øµµ¸¦ ÀÌ¿ëÇÏ¿© ÃâÀÔÇÔ.
8)ÅäÁöÀÌ¿ë°èȹ ¹× Á¦ÇÑ»óÅÂ
µµ½ÃÁö¿ª, Á¦3Á¾ÀϹÝÁÖ°ÅÁö¿ª(2014-11-27), Á¦1Á¾Áö±¸´ÜÀ§°èȹ±¸¿ª(±èÆ÷ÇѰ­½Åµµ½Ã), ´ë·Î3·ù(Æø 25m-30m)(2014-11-27)(Á¢ÇÕ), Áß·Î1·ù(Æø 20m-25m)(2014-11-27)(Á¢ÇÕ), Áß·Î2·ù(Æø 15m-20m)(2014-11-27)(Á¢ÇÕ), °¡Ãà»çÀ°Á¦Çѱ¸¿ª(¸ðµçÃàÁ¾ Á¦ÇÑ)<°¡ÃàºÐ´¢ÀÇ °ü¸® ¹× À̿뿡 °üÇÑ ¹ý·ü>, »ó´ëº¸È£±¸¿ª(2023-06-22)(±èÆ÷±¸·¡ÃʵîÇб³)<±³À°È¯°æ º¸È£¿¡ °üÇÑ ¹ý·ü>, »ó´ëº¸È£±¸¿ª(2023-06-28)(¹ÝµðÀ¯Ä¡¿ø)<±³À°È¯°æ º¸È£¿¡ °üÇÑ ¹ý·ü>, »ó´ëº¸È£±¸¿ª(³ª·¡ÁßÇб³)<±³À°È¯°æ º¸È£¿¡ °üÇÑ ¹ý·ü>, »ó´ëº¸È£±¸¿ª(³ªºñÃʵîÇб³)<±³À°È¯°æ º¸È£¿¡ °üÇÑ ¹ý·ü>, Àý´ëº¸È£±¸¿ª(2023-06-28)(¹ÝµðÀ¯Ä¡¿ø)<±³À°È¯°æ º¸È£¿¡ °üÇÑ ¹ý·ü>, µµ·Î±¸¿ª(Áö¹æµµ355È£¼±)<µµ·Î¹ý>, ¼ºÀå°ü¸®±Ç¿ª<¼öµµ±ÇÁ¤ºñ°èȹ¹ý>, ÅÃÁö°³¹ßÁö±¸(±èÆ÷½Åµµ½ÃÅÃÁö°³¹ß)<ÅÃÁö°³¹ßÃËÁø¹ý>, Çϼö󸮱¸¿ª(¾çÃÌ󸮺б¸)<Çϼöµµ¹ý>.
9)°øºÎ¿ÍÀÇ Â÷ÀÌ
--
10)±âŸÂü°í»çÇ×(ÀÓ´ë°ü·Ê ¹× ±âŸ)
- ÀÓ´ë°ü°è´Â ¹Ì»ó.

°ÇÃ๰ÇöȲ

¼ÒÀçÁö °æ±âµµ ±èÆ÷½Ã ±¸·¡µ¿ 6888-2¹øÁö
´ëÁö¸éÀû   ¿¬¸éÀû 10878.734§³
(3296.59Æò)
°ÇÃà¸éÀû 800.941§³
(242.71Æò)
¿ëÀû·ü»êÁ¤
¿¬¸éÀû
10754.45§³
(3258.92Æò)
°ÇÆóÀ²   ¿ëÀû·ü  
Áö»óÃþ¼ö 20Ãþ ÁöÇÏÃþ¼ö 1Ãþ
ÁÖ¿ëµµ °øµ¿ÁÖÅà ±¸Á¶ ö±ÙÄÜÅ©¸®Æ®±¸Á¶
Âø°øÀÏÀÚ 2010.07.15 »ç¿ë½ÂÀÎÀÏÀÚ 2012.12.27
°ÇÃ๰Ãþº°ÇöȲ [º¸±â]


±¹ÅäºÎ½Ç°Å·¡°¡ °æ±âµµ ±èÆ÷½Ã ±¸·¡µ¿

¡Ü ¸Å¸Å

¸éÀû(§³), ±Ý¾×(¸¸¿ø)

¡Ü Àü¼¼

¸éÀû(§³), ±Ý¾×(¸¸¿ø)

°è¾àÀÏARTÃþÀü¿ëº¸Áõ±Ý¿ù¼¼°ÇÃà
26.03.27±¸·¡¿ªÇѰ­¸®½´ºô1784.92635,00002012
26.03.24±¸·¡¿ªÇѰ­¸®½´ºô1084.95929,00002012
26.03.21±¸·¡¿ªÇѰ­¸®½´ºô1474.37724,00002012
26.03.20±¸·¡¿ªÇѰ­¸®½´ºô1074.37728,00002012
26.03.11±¸·¡¿ªÇѰ­¸®½´ºô1784.69137,0002012
¢Ñ ´õº¸±â

µî±âºÎµîº» ¿ä¾à(°Ç¹°)

  Á¢¼öÀÏÀÚ µî±â¸ñÀû/±Ç¸®ÀÚ ±Ç¸®±Ý¾× ±âÁØ
1 2018³â3¿ù29ÀÏ
¼ÒÀ¯±Ç
ÀÌOO
¼Ò¸ê
2 2018³â3¿ù29ÀÏ
±ÙÀú´ç±Ç
(OOOO
246,400,000 ¼Ò¸ê±âÁØ
3 2022³â6¿ù28ÀÏ
±ÙÀú´ç±Ç
¿ÀOOOO
243,600,000 ¼Ò¸ê
4 2023³â11¿ù24ÀÏ
°¡¾Ð·ù
°æOOOO
40,246,668 ¼Ò¸ê
5 2024³â11¿ù6ÀÏ
ÀÓÀǰæ¸Å
À¯OOOO
¼Ò¸ê

ÀÓÂ÷ÀÎÇöȲ (¹è´ç¿ä±¸Á¾±âÀÏ: 2025-01-27)


Á¶»çµÈ ÀÓÂ÷³»¿ªÀÌ ¾ø½À´Ï´Ù


¿©ÀÇÁÖ°æ¸Å Á¶¾ð ÇÑ ¸¶µð


ÁÖÀÇ»çÇ× (ÃÖ¼±¼øÀ§ ¼³Á¤ÀÏ: 2018.03.29. ±ÙÀú´ç±Ç ¼³Á¤)

¸Å°¢À¸·Î ¼Ò¸êµÇÁö ¾Ê´Â µî±âºÎ±Ç¸®:
¸Å°¢À¸·Î ¼³Á¤µÈ °ÍÀ¸·Î º¸´Â Áö»ó±Ç:
¡Ø¹Ì³³°ü¸®ºñ(°ø¿ë) Àμö¿©ºÎ¸¦ ÀÔÂû Àü¿¡ È®ÀÎÇϽñ⠹ٶø´Ï´Ù

 

Áö¿ªºÐ¼®

ÁöÇÏö¸í Á÷¼±°Å¸®

Çб³¸í ÀüÈ­¹øÈ£ ÁÖ¼Ò Á÷¼±°Å¸®

¹ý¿ø

ÀÎõÁö¹æ¹ý¿ø ºÎõÁö¿ø (146-02)°æ±âµµ ºÎõ½Ã ¿ø¹Ì±¸ »óÀÏ·Î 129(»óµ¿)
´ëÇ¥ : 032)320-1114, ¹Î¿ø : 032)320-1234
°üÇÒÁö¿ª : ºÎõ½Ã, ±èÆ÷½Ã

µî±â¼Ò ÀÎõÁö¹æ¹ý¿ø ºÎõÁö¿ø ±èÆ÷µî±â¼Ò (´ëÇ¥:1544-0773, ÆÑ½º:(031)982-6997, °æ±âµµ ±èÆ÷½Ã ºÀÈ­·Î 16 (»ç¿ìµ¿ 240-2))
¼¼¹«¼­ ±èÆ÷¼¼¹«¼­ (´ëÇ¥:031-980-32, ÆÑ½º:031-987-9932, °æ±âµµ ±èÆ÷½Ã ±èÆ÷ÇѰ­1·Î 22 (Àå±âµ¿))

Àαٳ«ÂûÅë°è

±â°£ ¸Å°¢°Ç¼ö Æò±Õ°¨Á¤°¡
Æò±Õ¸Å°¢°¡
¸Å°¢°¡À²
Æò±ÕÀ¯Âû¼ö
3°³¿ù 45°Ç 494,711,111¿ø
408,792,994¿ø
83%
1.1ȸ
6°³¿ù 108°Ç 487,000,000¿ø
409,100,063¿ø
84%
1ȸ
12°³¿ù 205°Ç 492,273,171¿ø
415,142,291¿ø
85%
1ȸ


º» °æ¸ÅÁ¤º¸´Â ¹ý¿øÀÚ·á¿Í ÀÏÄ¡Çϵµ·Ï ÇÏ¿´À¸³ª ±Ç¸®»çÇ׺¯µ¿, ÀÔ·ÂÂø¿À µîÀÇ ¿øÀÎÀ¸·Î »ç½Ç°ú ´Ù¸¦ ¼ö ÀÖ½À´Ï´Ù. ÀÌ¿ë¾à°ü¿¡ ÀǰЏéÃ¥Á¶°ÇÀ¸·Î Á¦°øµÊÀ» ¾Ë¸®¸ç, °æ¸ÅÀÔÂû½Ã ¹Ýµå½Ã °ü·Ã °øºÎ¸¦ ÀçÈ®ÀÎÇϽñ⠹ٶø´Ï´Ù. º¸´Ù Æí¸®ÇÑ °æ¸ÅÁ¤º¸ Á¦°øÀ» À§ÇØ Áö¼ÓÀûÀ¸·Î °³¼±ÇϰڽÀ´Ï´Ù. ÀÌ¿ëÇØ Áּż­ °¨»çÇÕ´Ï´Ù.