·Î±×ÀÎ
4
´Ù¼¼´ë(ºô¶ó)
¼ö¿øÁö¹æ¹ý¿ø ¾È»êÁö¿ø
 °¨Á¤°¡190,000,000 ¿ø
 ÃÖÀú°¡(49%) 93,100,000 ¿ø
 º¸Áõ±Ý(10%) 9,310,000 ¿ø
 Ã»±¸¾×190,000,000 ¿ø
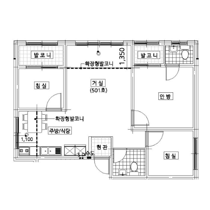
°æ±âµµ ¾È»ê½Ã »ó·Ï±¸ ´óÀ̱æ 75-1, 5Ãþ501È£ (»çµ¿,½ºÀ§Æ®ºô)
°æ±âµµ ¾È»ê½Ã »ó·Ï±¸ »çµ¿ 1349-5
»ç°Ç¹øÈ£ 2024Ÿ°æ72540
°æ¸ÅÁ¾·ùºÎµ¿»ê°­Á¦°æ¸Å
¸Å°¢´ë»óÅäÁö ¹× °Ç¹°Àϰý ¸Å°¢
¸Å°¢±âÀÏ    2025.12.04(¸ñ) 10:30 ÀÔÂû 21ÀÏÀü    
ÅäÁö¸éÀû31.13§³(9.42 Æò)
°Ç¹°¸éÀû55.40§³(16.76 Æò)
乫/¼ÒÀ¯ÀÚÁ¶OO / Á¶OO
ä±ÇÀÚÁÖOOOOOOO
ÆäÀ̽ººÏ Æ®À§ÅÍ ±¸±Û+
īī¿À½ºÅ丮
īī¿ÀÅå sms¹®ÀÚº¸³»±â
 

±âÀϳ»¿ª

°æ°ú ³¯Â¥ Àú°¨ ÃÖÀú°¡ °á°ú
Á¢¼öÀÏ 2024-12-19 °æ¸ÅÁ¢¼ö
~8ÀÏ 
2024-12-27 °æ¸Å°³½Ã°áÁ¤
~89ÀÏ 
2025-03-18 ¹è´ç¿ä±¸Á¾±âÀÏ
~238ÀÏ 
2025-08-14 100%
190,000,000
º¯°æ
~273ÀÏ 
2025-09-18 100%
190,000,000
À¯Âû
~308ÀÏ 
2025-10-23 70%
133,000,000
À¯Âû
~350ÀÏ 
2025-12-04 49%
93,100,000
ÁøÇà
¹°°Ç¸í¼¼¼­ ÇöȲÁ¶»ç¼­ ¹®°ÇÁ¢¼ö ¼Û´Þ³»¿ª

°¨Á¤Æò°¡ÇöȲ

¸ñ·Ï ÁÖ¼Ò ±¸Á¶/¿ëµµ/´ëÁö±Ç ¸éÀû ºñ°í
´ëÁö±Ç
»çµ¿ 1349-5 250.1ºÐÀÇ 31.130 31.13 §³
(9.42Æò)
°Ç¹°
»çµ¿ 1349-5 5Ãþ501È£ ö±ÙÄÜÅ©¸®Æ®±¸Á¶ 55.4 §³
(16.76Æò)
1) À§Ä¡/µµ½ÃÁö¿ª/°ü¸®Áö¿ª/Á¦1Á¾ÀϹÝÁÖ°ÅÁö¿ª/³ë¼±¹ö½ºÁ¤·ùÀå/ö±ÙÄÜÅ©¸®Æ®±¸Á¶ ´õº¸±â
°¨Á¤Æò°¡ ¿äÇ×Ç¥
1)À§Ä¡ ¹× ÁÖÀ§È¯°æ
º»°ÇÀº °æ±âµµ ¾È»ê½Ã »ó·Ï±¸ »çµ¿ ¼ÒÀç "»ó·Ï±¸Ã»" ³²¼­Ãø Àαٿ¡ À§Ä¡Çϸç, ÁÖÀ§´Â ´Ù¼¼´ëÁÖÅÃ, ´Üµ¶ÁÖÅÃ, °ø°ø±â°ü, ´ëÇб³ µîÀÌ È¥ÀçÇϰí ÀÖÀ½.
2)±³Åë»óȲ
º»°Ç±îÁö Á¦¹Ý Â÷·®ÀÇ ÁøÃâÀÔÀÌ °¡´ÉÇϰí Àαٿ¡ ³ë¼±¹ö½ºÁ¤·ùÀåÀÌ ¼ÒÀçÇÏ´Â µî Á¦¹Ý ´ëÁß±³ÅëÀÌ¿ë»çÁ¤Àº º¸ÅëÀÓ.
3)°Ç¹°ÀÇ ±¸Á¶
ö±ÙÄÜÅ©¸®Æ®±¸Á¶ Æò½½¶óºêÁöºØ 5Ãþ°Ç³» 5Ãþ 501È£·Î¼­,

¿Üº®: ¼®Àç ºÙÀÓ ¸¶°¨ µî,
³»º®: º®Áöµµ¹è ¹× ŸÀϺÙÀÓ ¸¶°¨ µî,
âȣ: ¼¦½Ãâȣ ÀÓ.
4)ÀÌ¿ë»óÅÂ
´Ù¼¼´ëÁÖÅÃÀ¸·Î ÀÌ¿ë ÁßÀÓ.
5)¼³ºñ³»¿ª
À§»ý ±Þ¹è¼ö ¼³ºñ, ³­¹æ¼³ºñ, Çϼö󸮼³ºñ, ³»Áø¼³°è Àû¿ë µÇ¾î ÀÖÀ¸¸ç, ½Â°­±â ¼³ºñ ¾øÀ½.
6)ÅäÁöÀÇ Çü»ó ¹× ÀÌ¿ë»óÅÂ
ÀÎÁ¢ ÅäÁö¿Í µî°íÆòźÇÑ ¼¼ÀåÇü ÅäÁöÀ̸ç, ´Ù¼¼´ëÁÖÅà ºÎÁö·Î ÀÌ¿ë ÁßÀÓ.
7)ÀÎÁ¢ µµ·Î»óŵî
º»°Ç ºÏÃøÀ¸·Î 9¹ÌÅÍ ³»¿ÜÀÇ Æ÷Àåµµ·Î¿Í Á¢ÇÔ.
8)ÅäÁöÀÌ¿ë°èȹ ¹× Á¦ÇÑ»óÅÂ
µµ½ÃÁö¿ª, Á¦1Á¾ÀϹÝÁÖ°ÅÁö¿ª, ½Ã°¡Áö°æ°üÁö±¸(ÀϹÝ), ¼Ò·Î2·ù(Æø 8m-10m)(Á¢ÇÕ) °¡Ãà»çÀ°Á¦Çѱ¸¿ª<°¡ÃàºÐ´¢ÀÇ °ü¸® ¹× À̿뿡 °üÇÑ ¹ý·ü>, »ó´ëº¸È£±¸¿ª(ÇѾç´ëÇб³)<±³À°È¯°æ º¸È£¿¡ °üÇÑ ¹ý·ü>, ´ë±â°ü¸®±Ç¿ª<´ë±â°ü¸®±Ç¿ªÀÇ ´ë±âȯ°æ°³¼±¿¡ °üÇÑ Æ¯º°¹ý>, µµ½Ã±³ÅëÁ¤ºñÁö¿ª<µµ½Ã±³ÅëÁ¤ºñÃËÁø¹ý>, »ýȰ¼ÒÀ½Áøµ¿°ü¸®Áö¿ª<¼ÒÀ½Áøµ¿°ü¸®¹ý>, ¼ºÀå°ü¸®±Ç¿ª<¼öµµ±ÇÁ¤ºñ°èȹ¹ý>
9)°øºÎ¿ÍÀÇ Â÷ÀÌ
-
10)±âŸÂü°í»çÇ×(ÀÓ´ë°ü·Ê ¹× ±âŸ)
ÀÓ´ë°ü°è´Â ¹Ì»óÀÓ.
Âü°í
»çÇ×
-2025.08.11.ÀÚ·Î ÁÖÅÃÀÓÂ÷±ÇÀÇ ½Â°èÀÎ ÁÖÅõµ½Ãº¸Áõ°ø»ç´Â ¿ì¼±º¯Á¦±Ç¸¸ ÁÖÀåÇϰí, ´ëÇ×·ÂÀ» Æ÷±âÇÑ´Ù´Â È®¾à¼­ Á¦ÃâÇÔ.
Ãþ2°¡±¸Áß ¿ÞÂÊÀÓ.

°ÇÃ๰ÇöȲ

¼ÒÀçÁö °æ±âµµ ¾È»ê½Ã »ó·Ï±¸ »çµ¿ 1349-5¹øÁö
´ëÁö¸éÀû 250.1§³
(75.79Æò)
¿¬¸éÀû 499.72§³
(151.43Æò)
°ÇÃà¸éÀû 148.74§³
(45.07Æò)
¿ëÀû·ü»êÁ¤
¿¬¸éÀû
499.72§³
(151.43Æò)
°ÇÆóÀ² 59.47% ¿ëÀû·ü 199.81%
Áö»óÃþ¼ö 5Ãþ ÁöÇÏÃþ¼ö  
ÁÖ¿ëµµ °øµ¿ÁÖÅà ±¸Á¶ ö±ÙÄÜÅ©¸®Æ®±¸Á¶
Âø°øÀÏÀÚ 2012.02.10 »ç¿ë½ÂÀÎÀÏÀÚ 2012.08.06
°ÇÃ๰Ãþº°ÇöȲ [º¸±â]


µî±âºÎµîº» ¿ä¾à(°Ç¹°)

  Á¢¼öÀÏÀÚ µî±â¸ñÀû/±Ç¸®ÀÚ ±Ç¸®±Ý¾× ±âÁØ
1 2022³â3¿ù10ÀÏ
¼ÒÀ¯±Ç
Á¶OO
¼Ò¸ê
2 2024³â2¿ù20ÀÏ
ÀÓÂ÷±Ç¼³Á¤
½ÅOO
190,000,000 Àμö
3 2024³â8¿ù21ÀÏ
¾Ð·ù
±¹
¼Ò¸ê±âÁØ
4 2024³â10¿ù28ÀÏ
¾Ð·ù
¾ÈOO
¼Ò¸ê
5 2024³â12¿ù27ÀÏ
°­Á¦°æ¸Å
ÁÖOOOO
¼Ò¸ê

ÀÓÂ÷ÀÎÇöȲ (¹è´ç¿ä±¸Á¾±âÀÏ: 2025-03-18)

ÀÓÂ÷ÀÎ ¿ëµµ/Á¡À¯ º¸Áõ±Ý/¿ù¼¼ ´ëÇ×·Â
ÀüÀÔÀÏ/È®Á¤ÀÏ ¹è´ç¿ä±¸ ºñ°í
½ÅOO 501È£ÀüºÎ 190,000,000
O
2022.02.09.
2022.01.18.
2022.02.09.~
ÁÖOOOOOOOOOOOOOOO 501È£ÀüºÎ 190,000,000
O
2022.02.09.
2022.01.18.
2024.12.19. 2022.02.09.~
ºñ°í
(¸Å°¢¹°°Ç
¸í¼¼¼­)
ÁÖÅõµ½Ãº¸Áõ°ø»ç(¾çµµÀÎ ½ÅÇý¸°):ÀÌ »ç°Ç °æ¸Å½Åûä±ÇÀÚ·Î ÁÖÅÃÀÓÂ÷±Çµî±âÀÏÀº 2024.02.20.ÀÓ , ÁÖÅÃÀÓ´ëÂ÷º¸È£¹ý Á¦3Á¶ÀÇ2 Á¦7Ç× Á¦9È£¿¡ ÀÇÇÑ ½Â°èÀÎÀÓ.

¿©ÀÇÁÖ°æ¸Å Á¶¾ð ÇÑ ¸¶µð


ÁÖÀÇ»çÇ× (ÃÖ¼±¼øÀ§ ¼³Á¤ÀÏ: )

¸Å°¢À¸·Î ¼Ò¸êµÇÁö ¾Ê´Â µî±âºÎ±Ç¸®:
¸Å°¢À¸·Î ¼³Á¤µÈ °ÍÀ¸·Î º¸´Â Áö»ó±Ç:
-2025.08.11.ÀÚ·Î ÁÖÅÃÀÓÂ÷±ÇÀÇ ½Â°èÀÎ ÁÖÅõµ½Ãº¸Áõ°ø»ç´Â ¿ì¼±º¯Á¦±Ç¸¸ ÁÖÀåÇϰí, ´ëÇ×·ÂÀ» Æ÷±âÇÑ´Ù´Â È®¾à¼­ Á¦ÃâÇÔ.
¡Ø¹Ì³³°ü¸®ºñ(°ø¿ë) Àμö¿©ºÎ¸¦ ÀÔÂû Àü¿¡ È®ÀÎÇϽñ⠹ٶø´Ï´Ù

 

Áö¿ªºÐ¼®

ÁöÇÏö¸í Á÷¼±°Å¸®

Çб³¸í ÀüÈ­¹øÈ£ ÁÖ¼Ò Á÷¼±°Å¸®

¹ý¿ø

¼ö¿øÁö¹æ¹ý¿ø ¾È»êÁö¿ø (140-54)°æ±âµµ ¾È»ê½Ã ´Ü¿ø±¸ ±¤´ö¼­·Î 75 (°íÀܵ¿)
´ëÇ¥ : 031)481-1114, ¹Î¿ø : 031)481-1238, ¾ß°£ : 031)481-1112
°üÇÒÁö¿ª : ¾È»ê½Ã, ±¤¸í½Ã, ½ÃÈï½Ã

µî±â¼Ò ¼ö¿øÁö¹æ¹ý¿ø ¾È»êÁö¿ø µî±â°ú (´ëÇ¥:1544-0773, ÆÑ½º:(031)481-1290~1292, °æ±âµµ ¾È»ê½Ã ´Ü¿ø±¸ ±¤´ö¼­·Î 75 (°íÀܵ¿ 711))
¼¼¹«¼­ ¾È»ê¼¼¹«¼­ (´ëÇ¥:031-412-32, ÆÑ½º:031-412-3268, °æ±âµµ ¾È»ê½Ã ´Ü¿ø±¸ È­¶û·Î 350 (°íÀܵ¿ 517))

Àαٳ«ÂûÅë°è

±â°£ ¸Å°¢°Ç¼ö Æò±Õ°¨Á¤°¡
Æò±Õ¸Å°¢°¡
¸Å°¢°¡À²
Æò±ÕÀ¯Âû¼ö
3°³¿ù 24°Ç 146,465,417¿ø
99,188,783¿ø
64%
1.9ȸ
6°³¿ù 54°Ç 150,447,593¿ø
107,791,681¿ø
70%
1.5ȸ
12°³¿ù 55°Ç 149,912,182¿ø
105,922,742¿ø
69%
1.6ȸ


º» °æ¸ÅÁ¤º¸´Â ¹ý¿øÀÚ·á¿Í ÀÏÄ¡Çϵµ·Ï ÇÏ¿´À¸³ª ±Ç¸®»çÇ׺¯µ¿, ÀÔ·ÂÂø¿À µîÀÇ ¿øÀÎÀ¸·Î »ç½Ç°ú ´Ù¸¦ ¼ö ÀÖ½À´Ï´Ù. ÀÌ¿ë¾à°ü¿¡ ÀǰЏéÃ¥Á¶°ÇÀ¸·Î Á¦°øµÊÀ» ¾Ë¸®¸ç, °æ¸ÅÀÔÂû½Ã ¹Ýµå½Ã °ü·Ã °øºÎ¸¦ ÀçÈ®ÀÎÇϽñ⠹ٶø´Ï´Ù. º¸´Ù Æí¸®ÇÑ °æ¸ÅÁ¤º¸ Á¦°øÀ» À§ÇØ Áö¼ÓÀûÀ¸·Î °³¼±ÇϰڽÀ´Ï´Ù. ÀÌ¿ëÇØ Áּż­ °¨»çÇÕ´Ï´Ù.