·Î±×ÀÎ
21
±Ù¸°»ó°¡
¿ï»êÁö¹æ¹ý¿ø
 °¨Á¤°¡650,000,000 ¿ø
 ÃÖÀú°¡(34%) 222,950,000 ¿ø
 º¸Áõ±Ý(10%) 22,295,000 ¿ø
 Ã»±¸¾×112,328,767 ¿ø
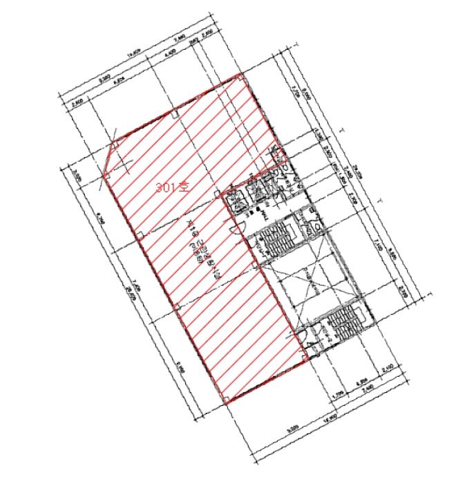
¿ï»ê±¤¿ª½Ã ¿ïÁÖ±º ¹ü¼­À¾ ±¸¿µ·Î 155, 3Ãþ301È£
¿ï»ê±¤¿ª½Ã ¿ïÁÖ±º ¹ü¼­À¾ ±¸¿µ¸® 378-9
»ç°Ç¹øÈ£ 2024Ÿ°æ113549
Áߺ¹»ç°ÇÁߺ¹ 2024Ÿ°æ120288,
°æ¸ÅÁ¾·ùºÎµ¿»êÀÓÀǰæ¸Å
¸Å°¢´ë»óÅäÁö ¹× °Ç¹°Àϰý ¸Å°¢
¸Å°¢±âÀÏ    2025.11.25(È­) 10:00 ÀÔÂû 8ÀÏÀü    
ÅäÁö¸éÀû68.54§³(20.73 Æò)
°Ç¹°¸éÀû309.59§³(93.65 Æò)
乫/¼ÒÀ¯ÀÚÁÖOOO OOOO¿Ü 1¸í / ÁÖOOOOOOOO¿Ü 1¸í
ä±ÇÀÚÁÖOOO OOOOO¿Ü 1¸í
ÆäÀ̽ººÏ Æ®À§ÅÍ ±¸±Û+
īī¿À½ºÅ丮
īī¿ÀÅå sms¹®ÀÚº¸³»±â
 

±âÀϳ»¿ª

°æ°ú ³¯Â¥ Àú°¨ ÃÖÀú°¡ °á°ú
Á¢¼öÀÏ 2024-08-08 °æ¸ÅÁ¢¼ö
~1ÀÏ 
2024-08-09 °æ¸Å°³½Ã°áÁ¤
~84ÀÏ 
2024-10-31 ¹è´ç¿ä±¸Á¾±âÀÏ
~369ÀÏ 
2025-08-12 100%
650,000,000
À¯Âû
~404ÀÏ 
2025-09-16 70%
455,000,000
À¯Âû
~439ÀÏ 
2025-10-21 49%
318,500,000
À¯Âû
~474ÀÏ 
2025-11-25 34%
222,950,000
ÁøÇà
¹°°Ç¸í¼¼¼­ ÇöȲÁ¶»ç¼­ ¹®°ÇÁ¢¼ö ¼Û´Þ³»¿ª

°¨Á¤Æò°¡ÇöȲ

¸ñ·Ï ÁÖ¼Ò ±¸Á¶/¿ëµµ/´ëÁö±Ç ¸éÀû ºñ°í
´ëÁö±Ç
±¸¿µ¸® 378-1 642.6ºÐÀÇ 68.539 68.539 §³
(20.73Æò)
°Ç¹°
±¸¿µ¸® 378-1 3Ãþ301È£ ö±ÙÄÜÅ©¸®Æ®±¸Á¶ 309.59 §³
(93.65Æò)
1) À§Ä¡/µµ½ÃÁö¿ª/ÁØÁÖ°ÅÁö¿ª/Áö±¸´ÜÀ§°èȹ±¸¿ª/¹ö½ºÁ¤·ùÀå/ÁÖÂ÷Àå/ö±ÙÄÜÅ©¸®Æ®±¸Á¶ ´õº¸±â
°¨Á¤Æò°¡ ¿äÇ×Ç¥
1)À§Ä¡ ¹× ÁÖÀ§È¯°æ
º»°ÇÀº ¿ï»ê±¤¿ª½Ã ¿ïÁÖ±º ¹ü¼­À¾ ±¸¿©¸® ¼ÒÀç "¿ï»ê¿ïÁÖ°æÂû¼­" ³²µ¿Ãø Àαٿ¡ À§Ä¡Çϸç,
ÁÖÀ§´Â ¾ÆÆÄÆ®´ÜÁö, ±Ù¸°»ýȰ½Ã¼³ÀÌ È¥ÀçÇÏ´Â Áö¿ªÀÓ.
2)±³Åë»óȲ
º»°Ç±îÁö Â÷·®Á¢±Ù °¡´ÉÇϸç Àαٿ¡ ¹ö½ºÁ¤·ùÀåÀÌ ¼ÒÀçÇÏ¿© Á¦¹Ý ±³Åë»óȲÀº º¸Åë½ÃµÊ.
3)°Ç¹°ÀÇ ±¸Á¶
ö±ÙÄÜÅ©¸®Æ®±¸Á¶ (ö±Ù)ÄÜÅ©¸®Æ®ÁöºØ 9Ãþ ³» 3Ãþ 301È£·Î¼­
¿Üº®: È­°­¼® ¹× ´ë¸®¼® ºÙÀÓ, ¸ôÅ»À§ ÆäÀÎÆÃ ¸¶°¨µî,
³»º®: ÀÎÅ׸®¾î ¸¶°¨µî,
âȣ:¼¦½Ã âȣÀÓ.
4)ÀÌ¿ë»óÅÂ
±Ù¸°»ýȰ½Ã¼³·Î ÀÌ¿ëÁß.
5)¼³ºñ³»¿ª
À§»ý¼³ºñ, ±Þ¹è¼ö¼³ºñ, ½Â°­±â¼³ºñ, ¼ÒÈ­Àü¼³ºñ, ±â°è½Ä ÁÖÂ÷Àå¼³ºñ µîÀÌ ±¸ºñµÇ¾î ÀÖÀ½.
6)ÅäÁöÀÇ Çü»ó ¹× ÀÌ¿ë»óÅÂ
ÀÏ´ÜÀ¸·Î µî°íÆòźÇÑ °¡ÀåÇü ÅäÁö·Î »ó¾÷¿ë °ÇºÎÁö·Î ÀÌ¿ëÁß.
7)ÀÎÁ¢ µµ·Î»óŵî
º»°Ç °¡·Î¸Á »óÅ º¸ÅëÀ̸ç, µµ·ÎÀÇ Æø ¹× Æ÷Àå»óÅ µîÀ¸·Î º¸¾Æ ÀÎÁ¢ µµ·Î»óÅ´Â
º¸Åë½ÃµÊ.


8)ÅäÁöÀÌ¿ë°èȹ ¹× Á¦ÇÑ»óÅÂ
±¸¿µ¸® 378-1¹øÁö:
µµ½ÃÁö¿ª, ÁØÁÖ°ÅÁö¿ª, Áö±¸´ÜÀ§°èȹ±¸¿ª(±¸¿µÁö±¸), ¼Ò·Î2·ù(Æø 8m-10m)(Á¢ÇÕ), Áß·Î1·ù
(Æø 20m-25m)(Á¢ÇÕ), °¡Ãà»çÀ°Á¦Çѱ¸¿ª(2024-06-27)(ÃàÁ¾º° Á¦ÇѰŸ® 250m ¹Ì¸¸ ÃàÁ¾)<°¡Ãà
ºÐ´¢ÀÇ °ü¸® ¹× À̿뿡 °üÇÑ ¹ý·ü>, »ó´ëº¸È£±¸¿ª<±³À°È¯°æ º¸È£¿¡ °üÇÑ ¹ý·ü>, »ó´ëº¸È£±¸
¿ª(2014-03-24)<±³À°È¯°æ º¸È£¿¡ °üÇÑ ¹ý·ü>, Àý´ëº¸È£±¸¿ª(2014-03-24)<±³À°È¯°æ º¸È£¿¡ °ü
ÇÑ ¹ý·ü>

±¸¿µ¸® 378-9¹øÁö:
µµ½ÃÁö¿ª, ÁØÁÖ°ÅÁö¿ª, Áö±¸´ÜÀ§°èȹ±¸¿ª(±¸¿µÁö±¸), Áß·Î1·ù(Æø 20m-25m)(Á¢ÇÕ), °¡Ãà»çÀ°
Á¦Çѱ¸¿ª(2024-06-27)(ÃàÁ¾º° Á¦ÇѰŸ® 250m ¹Ì¸¸ ÃàÁ¾)<°¡ÃàºÐ´¢ÀÇ °ü¸® ¹× À̿뿡 °üÇÑ ¹ý
·ü>, »ó´ëº¸È£±¸¿ª<±³À°È¯°æ º¸È£¿¡ °üÇÑ ¹ý·ü>, »ó´ëº¸È£±¸¿ª(2014-03-24)<±³À°È¯°æ º¸È£¿¡
°üÇÑ ¹ý·ü>, Àý´ëº¸È£±¸¿ª(2014-03-24)<±³À°È¯°æ º¸È£¿¡ °üÇÑ ¹ý·ü>
9)°øºÎ¿ÍÀÇ Â÷ÀÌ
¾ø À½.
10)±âŸÂü°í»çÇ×(ÀÓ´ë°ü·Ê ¹× ±âŸ)
ÀÓ´ë°ü°è ¹Ì»óÀÓ.
Âü°í
»çÇ×

º»°Ç ºÎµ¿»êÀº ¿ï»ê ¿ïÁÖ±º ¹ü¼­À¾

°ÇÃ๰ÇöȲ

¼ÒÀçÁö ¿ï»ê±¤¿ª½Ã ¿ïÁÖ±º ¹ü¼­À¾ ±¸¿µ¸® 378-1¹øÁö
´ëÁö¸éÀû 642.6§³
(194.73Æò)
¿¬¸éÀû 3793.31§³
(1149.49Æò)
°ÇÃà¸éÀû 432.28§³
(130.99Æò)
¿ëÀû·ü»êÁ¤
¿¬¸éÀû
3440.05§³
(1042.44Æò)
°ÇÆóÀ² 67.27% ¿ëÀû·ü 535.33%
Áö»óÃþ¼ö 9Ãþ ÁöÇÏÃþ¼ö 1Ãþ
ÁÖ¿ëµµ Á¦1Á¾±Ù¸°»ýȰ½Ã¼³ ±¸Á¶ ö±ÙÄÜÅ©¸®Æ®±¸Á¶
Âø°øÀÏÀÚ 2007.10.17 »ç¿ë½ÂÀÎÀÏÀÚ 2008.10.17
°ÇÃ๰Ãþº°ÇöȲ [º¸±â]


µî±âºÎµîº» ¿ä¾à(°Ç¹°)

  Á¢¼öÀÏÀÚ µî±â¸ñÀû/±Ç¸®ÀÚ ±Ç¸®±Ý¾× ±âÁØ
1 2018³â9¿ù21ÀÏ
¼ÒÀ¯±Ç
(OOOO
¼Ò¸ê
2 2020³â9¿ù21ÀÏ
±ÙÀú´ç±Ç
ºÏOOOO
336,000,000 ¼Ò¸ê±âÁØ
3 2022³â12¿ù22ÀÏ
±ÙÀú´ç±Ç
(OOOO
150,000,000 ¼Ò¸ê
4 2024³â8¿ù9ÀÏ
ÀÓÀǰæ¸Å
(OOOO
¼Ò¸ê
5 2024³â12¿ù20ÀÏ
ÀÓÀǰæ¸Å
ºÏOOOO
¼Ò¸ê
6 2025³â2¿ù18ÀÏ
¾Ð·ù
±¹
¼Ò¸ê

ÀÓÂ÷ÀÎÇöȲ (¹è´ç¿ä±¸Á¾±âÀÏ: 2024-10-31)

ÀÓÂ÷ÀÎ ¿ëµµ/Á¡À¯ º¸Áõ±Ý/¿ù¼¼ ´ëÇ×·Â
ÀüÀÔÀÏ/È®Á¤ÀÏ ¹è´ç¿ä±¸ ºñ°í
¹ÎOO 301È£ÀüºÎ 30,000,000
[¿ù]1,480,000
X
2023.11.22.
2022.01.27.
2024.9.27. 2020.02.15.~
ÁÖOOOOOOOOOOOOO ⼺¸ÞµðĮŸ¿ö301-1È£10§³ 1,000,000
[¿ù]200,000
O
2016.11.10.
2016.10.30.~2018.10.29.
ºñ°í
(¸Å°¢¹°°Ç
¸í¼¼¼­)
¹Îº¸¼º:±Ç¸®½Å°í ¹× ¹è´ç¿ä±¸½Åû¼­ »ó ±âÀç¿¡ µû¸£¸é '±âÁ¸ 2020³â 1¿ù »ç¾÷À» ÁøÇàÇÏ¿´À¸³ª, Á¤ºÎÁöħÀ¸·Î ÀÎÇØ ±âÁ¸»ç¾÷ÀÚ Æó¾÷ ÈÄ Àç½Å°í'¶ó°í ±âÀçµÇ¾î ÀÖÀ¸¸ç, Á¦ÃâÇÑ ºÎµ¿»ê(»ó°¡)¿ù¼¼°è¾à¼­ ¹× »ç¾÷ÀÚµî·ÏÁõ¿¡ ÀÇÇϸé Àç½Å°íÇÑ »ç¾÷ÀÚµî·Ï½ÅûÀÏ ¹× È®Á¤ÀÏÀÚ´Â 2023. 11. 22.ÀÓ ÁÖ½Äȸ»ç ¸Þµð½ºÄù¾î(Ãß¼ººó):ÇöȲÁ¶»ç ³»¿ë Áß ÀÓ´ëÂ÷±â°£, º¸Áõ±Ý µîÀº »ó°¡°Ç¹° ÀÓ´ëÂ÷ÇöȲ¼­¿¡ ±Ù°ÅÇÔ.

¿©ÀÇÁÖ°æ¸Å Á¶¾ð ÇÑ ¸¶µð

ÃëÇÏ ¶Ç´Â Ãë¼ÒµÉ °¡´É¼ºÀº ÀÖÀ¸³ª ±×´ë·Î ÁøÇàµÉ °¡´É¼ºµµ ¸¹½À´Ï´Ù
¼±Çà°æ¸Å¸¦ ½ÅûÇÑ Ã¤±ÇÀÚ°¡ ¹è´ç ¹Þ¾Æ¾ß ÇÒ ±Ý¾×Àº 112,328,767¿øÀ¸·Î °¨Á¤°¡°Ý ´ëºñ »ó´çÈ÷ ÀûÀº ±Ý¾×À̼­ °æ¸Å°¡ ÃëÇϵǰųª Ãë¼Ò µÉ °¡´É¼ºÀÌ ÀÖ½À´Ï´Ù. ±×·±µ¥ ÈÄÇà°æ¸Å »ç°Ç (Áߺ¹ 2024Ÿ°æ120288,)ÀÌ À־ ÃëÇÏ,Ãë¼ÒµÇÁö ¾Ê°í ÁøÇàµÉ °¡´É¼ºµµ ¸¹½À´Ï´Ù.

ÁÖÀÇ»çÇ× (ÃÖ¼±¼øÀ§ ¼³Á¤ÀÏ: 2020.09.21.±ÙÀú´ç±Ç ¼³Á¤)

¸Å°¢À¸·Î ¼Ò¸êµÇÁö ¾Ê´Â µî±âºÎ±Ç¸®:
¸Å°¢À¸·Î ¼³Á¤µÈ °ÍÀ¸·Î º¸´Â Áö»ó±Ç:
¡Ø¹Ì³³°ü¸®ºñ(°ø¿ë) Àμö¿©ºÎ¸¦ ÀÔÂû Àü¿¡ È®ÀÎÇϽñ⠹ٶø´Ï´Ù

 

Áö¿ªºÐ¼®

ÁöÇÏö¸í Á÷¼±°Å¸®

Çб³¸í ÀüÈ­¹øÈ£ ÁÖ¼Ò Á÷¼±°Å¸®

¹ý¿ø

¿ï»êÁö¹æ¹ý¿ø (446-43)¿ï»ê±¤¿ª½Ã ³²±¸ ¹ý´ë·Î 55(¿Áµ¿ 1415)
´ëÇ¥ : 052)216-8000, ¹Î¿ø : 052)216-8021~3
°üÇÒÁö¿ª : ¿ï»ê±¤¿ª½Ã, ¾ç»ê½Ã

µî±â¼Ò ¿ï»êÁö¹æ¹ý¿ø º»¿ø µî±â°ú (´ëÇ¥:1544-0773, ÆÑ½º:(052)260-6293, ¿ï»ê±¤¿ª½Ã ³²±¸ ¹ý´ë·Î 55 (¿Áµ¿ 1415))
¼¼¹«¼­ µ¿¿ï»ê¼¼¹«¼­ (´ëÇ¥:052-219-92, ÆÑ½º:052-289-8365, ¿ï»ê±¤¿ª½Ã ºÏ±¸ »çû2±æ 7 (È­ºÀµ¿))

Àαٳ«ÂûÅë°è

±â°£ ¸Å°¢°Ç¼ö Æò±Õ°¨Á¤°¡
Æò±Õ¸Å°¢°¡
¸Å°¢°¡À²
Æò±ÕÀ¯Âû¼ö
3°³¿ù 4°Ç 1,452,438,053¿ø
723,155,472¿ø
49%
2.8ȸ
6°³¿ù 7°Ç 1,029,489,721¿ø
507,338,841¿ø
44%
3ȸ
12°³¿ù 18°Ç 815,698,217¿ø
358,903,716¿ø
36%
3.7ȸ


º» °æ¸ÅÁ¤º¸´Â ¹ý¿øÀÚ·á¿Í ÀÏÄ¡Çϵµ·Ï ÇÏ¿´À¸³ª ±Ç¸®»çÇ׺¯µ¿, ÀÔ·ÂÂø¿À µîÀÇ ¿øÀÎÀ¸·Î »ç½Ç°ú ´Ù¸¦ ¼ö ÀÖ½À´Ï´Ù. ÀÌ¿ë¾à°ü¿¡ ÀǰЏéÃ¥Á¶°ÇÀ¸·Î Á¦°øµÊÀ» ¾Ë¸®¸ç, °æ¸ÅÀÔÂû½Ã ¹Ýµå½Ã °ü·Ã °øºÎ¸¦ ÀçÈ®ÀÎÇϽñ⠹ٶø´Ï´Ù. º¸´Ù Æí¸®ÇÑ °æ¸ÅÁ¤º¸ Á¦°øÀ» À§ÇØ Áö¼ÓÀûÀ¸·Î °³¼±ÇϰڽÀ´Ï´Ù. ÀÌ¿ëÇØ Áּż­ °¨»çÇÕ´Ï´Ù.