·Î±×ÀÎ
128
±Ù¸°»ó°¡
ÀÎõÁö¹æ¹ý¿ø ºÎõÁö¿ø
 °¨Á¤°¡814,000,000 ¿ø
 ÃÖÀú°¡(34%) 279,202,000 ¿ø
 º¸Áõ±Ý(10%) 27,920,200 ¿ø
 Ã»±¸¾×550,000,000 ¿ø
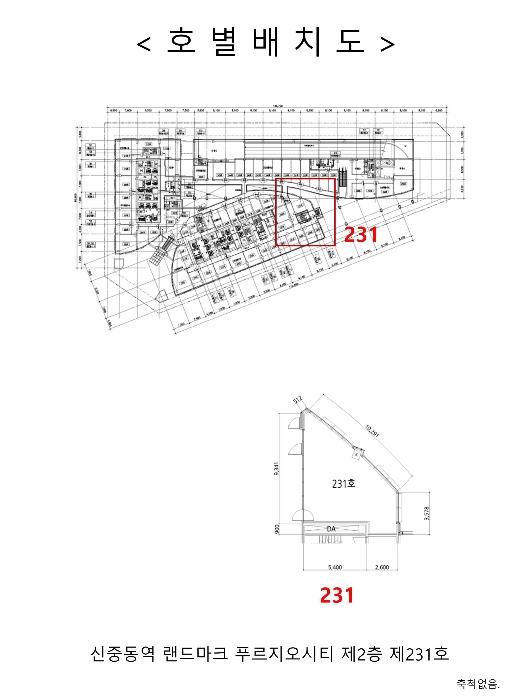
°æ±âµµ ºÎõ½Ã ¿ø¹Ì±¸ ½ÅÈï·Î 223, 2Ãþ 231È£ (Áßµ¿, ½ÅÁßµ¿¿ª ·£µå¸¶Å© Ǫ¸£Áö¿À½ÃƼ)
°æ±âµµ ºÎõ½Ã ¿ø¹Ì±¸ Áßµ¿ 1059
»ç°Ç¹øÈ£ 2024Ÿ°æ48433
°æ¸ÅÁ¾·ùºÎµ¿»êÀÓÀǰæ¸Å
¸Å°¢´ë»óÅäÁö ¹× °Ç¹°Àϰý ¸Å°¢
¸Å°¢±âÀÏ    2026.02.12(¸ñ) 10:00 ÀÔÂû 22ÀÏÀü    
ÅäÁö¸éÀû8.49§³(2.57 Æò)
°Ç¹°¸éÀû54.97§³(16.63 Æò)
乫/¼ÒÀ¯ÀÚÀÓOO / ÀÓOO
ä±ÇÀÚ¾ÈOOOOOOO
ÆäÀ̽ººÏ Æ®À§ÅÍ ±¸±Û+
īī¿À½ºÅ丮
īī¿ÀÅå sms¹®ÀÚº¸³»±â
 

±âÀϳ»¿ª

°æ°ú ³¯Â¥ Àú°¨ ÃÖÀú°¡ °á°ú
Á¢¼öÀÏ 2024-08-28 °æ¸ÅÁ¢¼ö
~2ÀÏ 
2024-08-30 °æ¸Å°³½Ã°áÁ¤
~79ÀÏ 
2024-11-15 ¹è´ç¿ä±¸Á¾±âÀÏ
~349ÀÏ 
2025-08-12 100%
814,000,000
À¯Âû
~384ÀÏ 
2025-09-16 70%
569,800,000
º¯°æ
~461ÀÏ 
2025-12-02 70%
569,800,000
À¯Âû
~496ÀÏ 
2026-01-06 49%
398,860,000
À¯Âû
~533ÀÏ 
2026-02-12 34%
279,202,000
ÁøÇà
¹°°Ç¸í¼¼¼­ ÇöȲÁ¶»ç¼­ ¹®°ÇÁ¢¼ö ¼Û´Þ³»¿ª

°¨Á¤Æò°¡ÇöȲ

¸ñ·Ï ÁÖ¼Ò ±¸Á¶/¿ëµµ/´ëÁö±Ç ¸éÀû ºñ°í
´ëÁö±Ç
Áßµ¿ 1059 9008.3ºÐÀÇ 8.493 8.493 §³
(2.57Æò)
°Ç¹°
Áßµ¿ 1059 2Ãþ 231È£ ö±ÙÄÜÅ©¸®Æ®±¸Á¶ 54.967 §³
(16.63Æò)
1) À§Ä¡/ÀϹݻó¾÷Áö¿ª/Áö±¸´ÜÀ§°èȹ±¸¿ª/¹ö½ºÁ¤·ùÀå/ÁöÇÏö/ö±ÙÄÜÅ©¸®Æ®±¸Á¶/°³º°³­¹æ ´õº¸±â
°¨Á¤Æò°¡ ¿äÇ×Ç¥
1)À§Ä¡ ¹× ÁÖÀ§È¯°æ
º»°ÇÀº °æ±âµµ ºÎõ½Ã ¿ø¹Ì±¸ Áßµ¿ ¼ÒÀç "½ÅÁßµ¿¿ª" ºÏ¼­Ãø Àαٿ¡ À§Ä¡Çϸç ÁÖÀ§´Â »ó¾÷¿ë½Ã¼³, ¾÷¹«½Ã¼³, Çб³, °ü°ø¼­, ±Ù¸°»ýȰ½Ã¼³ µîÀÌ È¥ÀçÇÏ´Â Áö¿ªÀ¸·Î ÁÖÀ§È¯°æÀº º¸Åë½ÃµÊ.
2)±³Åë»óȲ
º»°Ç±îÁö Â÷·®ÃâÀÔÀÌ °¡´ÉÇϸç Àαٿ¡ ¹ö½ºÁ¤·ùÀå ¹× ÁöÇÏö¿ªÀÌ ¼ÒÀçÇÏ¿© ´ëÁß±³ÅëÀÌ¿ë ÆíÀǵµ´Â º¸ÅëÀÓ.
3)°Ç¹°ÀÇ ±¸Á¶
ö°ñö±ÙÄÜÅ©¸®Æ®±¸Á¶, ö±ÙÄÜÅ©¸®Æ®±¸Á¶ ÆòÁöºØ ÁöÇÏ7Ãþ Á¦»ó49Ãþ Áß Á¦2Ãþ Á¦231È£
¿Üº®: ¿ÜÀå¼®Àç µî ¸¶°¨
³»º®: ¸ôÅ» À§ ÆäÀÎÆÃ ¹× ÀϺΠŸÀÏ ºÙÀÓ µî
âȣ: ¼¦½Ãâȣ ÀÓ.
4)ÀÌ¿ë»óÅÂ
±Ù¸°»ýȰ½Ã¼³·Î ÀÌ¿ëÁßÀÓ.
5)¼³ºñ³»¿ª
À§»ý ¹× ±Þ ¹è¼ö ½Ã¼³, °³º°³­¹æ½Ã¼³, ½Â°­±â, È­ÀçŽÁö¼³ºñ µîÀÌ µÇ¾î ÀÖÀ½.
6)ÅäÁöÀÇ Çü»ó ¹× ÀÌ¿ë»óÅÂ
ÀÎÁ¢ÇÊÁö¿Í ´ëü·Î µî°íÆòźÇÑ »ç´Ù¸®ÇüÀÇ ÅäÁö·Î ¾÷¹«½Ã¼³ ¹× ±Ù¸°»ýȰ½Ã¼³ ºÎÁö·Î ÀÌ¿ëÁßÀÓ.
7)ÀÎÁ¢ µµ·Î»óŵî
º»°Ç °¢ ¹æÇâÀ¸·Î °øµµ¿Í Á¢Çϰí ÀÖÀ½.
8)ÅäÁöÀÌ¿ë°èȹ ¹× Á¦ÇÑ»óÅÂ
ÀϹݻó¾÷Áö¿ª, ¹æÈ­Áö±¸, Áö±¸´ÜÀ§°èȹ±¸¿ª(Áßµ¿Áö±¸), Áß·Î2·ù(Æø 15m-20m)(Á¢ÇÕ),
»ó´ëº¸È£±¸¿ª((ÁßÈïÃÊ)<±âŸ»çÇ×Àº ºÎõ±³À°Áö¿øÃ»¿¡ ¹®ÀÇ>)<±³À°È¯°æ º¸È£¿¡ °üÇÑ ¹ý·ü>,
»ó´ëº¸È£±¸¿ª(»ó´ëº¸È£±¸¿ª(ºÎõºÎÈïÁß)(±âŸ»çÇ×ÀººÎõ±³À°Áö¿øÃ»¹®ÀÇ))<±³À°È¯°æ º¸È£¿¡ °üÇÑ ¹ý·ü>,
»ó´ëº¸È£±¸¿ª(»ó´ëº¸È£±¸¿ª(ÁßÈïÁß)[±âŸ»çÇ×Àº ºÎõ±³À°Áö¿øÃ»¿¡ ¹®ÀÇ]<±³À°È¯°æº¸È£¿¡°üÇѹý·ü>)<±³À°È¯°æ º¸È£¿¡ °üÇÑ
¹ý·ü>, »ó´ëº¸È£±¸¿ª(Áßµ¿»ûº°À¯Ä¡¿ø-ºÎõ±³À°Áö¿øÃ»¹®ÀÇ)<±³À°È¯°æ º¸È£¿¡ °üÇÑ ¹ý·ü>,
°ú¹Ð¾ïÁ¦±Ç¿ª<¼öµµ±ÇÁ¤ºñ°èȹ¹ý>, öµµº¸È£Áö±¸<öµµ¾ÈÀü¹ý>.
-º°Ã· ÅäÁöÀÌ¿ë°èȹȮÀμ­ ÂüÁ¶.
9)°øºÎ¿ÍÀÇ Â÷ÀÌ
-
10)±âŸÂü°í»çÇ×(ÀÓ´ë°ü·Ê ¹× ±âŸ)
-ÀÓ´ë°ü°è ¹Ì»óÀÓ.


Âü°í
»çÇ×

º»°Ç ºÎµ¿»êÀº ¹æ¹® ´ç½Ã ³»ºÎ°¡ ºñ¾î ÀÖ´Â °ø½Ç »óÅÂÀÓ.

°ÇÃ๰ÇöȲ

¼ÒÀçÁö °æ±âµµ ºÎõ½Ã ¿ø¹Ì±¸ Áßµ¿ 1059¹øÁö
´ëÁö¸éÀû 9008.3§³
(2729.79Æò)
¿¬¸éÀû 146028.45§³
(44251.05Æò)
°ÇÃà¸éÀû 6152.744§³
(1864.47Æò)
¿ëÀû·ü»êÁ¤
¿¬¸éÀû
89039.884§³
(26981.78Æò)
°ÇÆóÀ² 68.3% ¿ëÀû·ü 988.42%
Áö»óÃþ¼ö 49Ãþ ÁöÇÏÃþ¼ö 7Ãþ
ÁÖ¿ëµµ ¾÷¹«½Ã¼³ ±¸Á¶ ö±ÙÄÜÅ©¸®Æ®±¸Á¶
Âø°øÀÏÀÚ 2019.01.15 »ç¿ë½ÂÀÎÀÏÀÚ 2022.11.18
°ÇÃ๰Ãþº°ÇöȲ [º¸±â]


µî±âºÎµîº» ¿ä¾à(°Ç¹°)

  Á¢¼öÀÏÀÚ µî±â¸ñÀû/±Ç¸®ÀÚ ±Ç¸®±Ý¾× ±âÁØ
1 2023³â1¿ù26ÀÏ
¼ÒÀ¯±Ç
ÀÓOO
¼Ò¸ê
2 2023³â1¿ù26ÀÏ
±ÙÀú´ç±Ç
¾ÈOOOO
660,000,000 ¼Ò¸ê±âÁØ
3 2024³â8¿ù30ÀÏ
ÀÓÀǰæ¸Å
¾ÈOOOO
¼Ò¸ê

ÀÓÂ÷ÀÎÇöȲ (¹è´ç¿ä±¸Á¾±âÀÏ: 2024-11-15)


Á¶»çµÈ ÀÓÂ÷³»¿ªÀÌ ¾ø½À´Ï´Ù


¿©ÀÇÁÖ°æ¸Å Á¶¾ð ÇÑ ¸¶µð


ÁÖÀÇ»çÇ× (ÃÖ¼±¼øÀ§ ¼³Á¤ÀÏ: 2023.1.26. ±ÙÀú´ç±Ç ¼³Á¤)

¸Å°¢À¸·Î ¼Ò¸êµÇÁö ¾Ê´Â µî±âºÎ±Ç¸®:
¸Å°¢À¸·Î ¼³Á¤µÈ °ÍÀ¸·Î º¸´Â Áö»ó±Ç:
2025.09.02 ä±ÇÀÚ ¾ÈOOOOOOO ±âÀϺ¯°æ½Åû¼­ Á¦Ãâ
2025.12.01 ä±ÇÀÚ ¾ÈOOOOOOO ±âÀϺ¯°æ½Åû¼­ Á¦Ãâ
¡Ø¹Ì³³°ü¸®ºñ(°ø¿ë) Àμö¿©ºÎ¸¦ ÀÔÂû Àü¿¡ È®ÀÎÇϽñ⠹ٶø´Ï´Ù

 

Áö¿ªºÐ¼®

ÁöÇÏö¸í Á÷¼±°Å¸®

Çб³¸í ÀüÈ­¹øÈ£ ÁÖ¼Ò Á÷¼±°Å¸®

¹ý¿ø

ÀÎõÁö¹æ¹ý¿ø ºÎõÁö¿ø (146-02)°æ±âµµ ºÎõ½Ã ¿ø¹Ì±¸ »óÀÏ·Î 129(»óµ¿)
´ëÇ¥ : 032)320-1114, ¹Î¿ø : 032)320-1234
°üÇÒÁö¿ª : ºÎõ½Ã, ±èÆ÷½Ã

µî±â¼Ò ÀÎõÁö¹æ¹ý¿ø ºÎõÁö¿ø µî±â°ú (´ëÇ¥:1544-0773, ÆÑ½º:(032)320-1484, 320-1485, °æ±âµµ ºÎõ½Ã »óÀÏ·Î 129 (»óµ¿ 445-1))
¼¼¹«¼­ ¼¼¹«¼­ (´ëÇ¥:, ÆÑ½º:, )

Àαٳ«ÂûÅë°è

±â°£ ¸Å°¢°Ç¼ö Æò±Õ°¨Á¤°¡
Æò±Õ¸Å°¢°¡
¸Å°¢°¡À²
Æò±ÕÀ¯Âû¼ö
3°³¿ù 16°Ç 337,000,000¿ø
219,689,188¿ø
67%
1.9ȸ
6°³¿ù 29°Ç 450,076,243¿ø
302,983,813¿ø
75%
1.6ȸ
12°³¿ù 33°Ç 418,400,335¿ø
285,301,010¿ø
76%
1.5ȸ


º» °æ¸ÅÁ¤º¸´Â ¹ý¿øÀÚ·á¿Í ÀÏÄ¡Çϵµ·Ï ÇÏ¿´À¸³ª ±Ç¸®»çÇ׺¯µ¿, ÀÔ·ÂÂø¿À µîÀÇ ¿øÀÎÀ¸·Î »ç½Ç°ú ´Ù¸¦ ¼ö ÀÖ½À´Ï´Ù. ÀÌ¿ë¾à°ü¿¡ ÀǰЏéÃ¥Á¶°ÇÀ¸·Î Á¦°øµÊÀ» ¾Ë¸®¸ç, °æ¸ÅÀÔÂû½Ã ¹Ýµå½Ã °ü·Ã °øºÎ¸¦ ÀçÈ®ÀÎÇϽñ⠹ٶø´Ï´Ù. º¸´Ù Æí¸®ÇÑ °æ¸ÅÁ¤º¸ Á¦°øÀ» À§ÇØ Áö¼ÓÀûÀ¸·Î °³¼±ÇϰڽÀ´Ï´Ù. ÀÌ¿ëÇØ Áּż­ °¨»çÇÕ´Ï´Ù.