·Î±×ÀÎ
235
µµ½ÃÇü»ýȰÁÖÅÃ
¼ö¿øÁö¹æ¹ý¿ø ÆòÅÃÁö¿ø
 °¨Á¤°¡124,000,000 ¿ø
 ÃÖÀú°¡(24%) 29,772,000 ¿ø
 º¸Áõ±Ý(10%) 2,977,200 ¿ø
 Ã»±¸¾×95,242,190 ¿ø
°æ±âµµ ÆòÅýà ÁøÀ§¸é ÁøÀ§2»ê´Ü·Î 16-18, 8Ãþ804È£ (´õ½ºÅ×ÀÌ)
°æ±âµµ ÆòÅýà ÁøÀ§¸é °¥°ù¸® 725-1
»ç°Ç¹øÈ£ 2024Ÿ°æ3600
°æ¸ÅÁ¾·ùºÎµ¿»ê°­Á¦°æ¸Å
¸Å°¢´ë»óÅäÁö ¹× °Ç¹°Àϰý ¸Å°¢
¸Å°¢±âÀÏ    2026.01.26(¿ù) 10:00 ÀÔÂû 6ÀÏÀü    
ÅäÁö¸éÀû7.78§³(2.35 Æò)
°Ç¹°¸éÀû19.67§³(5.95 Æò)
乫/¼ÒÀ¯ÀÚÁÖOOO OOOOO / ÁÖOOO OOOOO
ä±ÇÀÚ¹ÎOO
ÆäÀ̽ººÏ Æ®À§ÅÍ ±¸±Û+
īī¿À½ºÅ丮
īī¿ÀÅå sms¹®ÀÚº¸³»±â
 

±âÀϳ»¿ª

°æ°ú ³¯Â¥ Àú°¨ ÃÖÀú°¡ °á°ú
Á¢¼öÀÏ 2024-08-08 °æ¸ÅÁ¢¼ö
~1ÀÏ 
2024-08-09 °æ¸Å°³½Ã°áÁ¤
~90ÀÏ 
2024-11-06 ¹è´ç¿ä±¸Á¾±âÀÏ
~368ÀÏ 
2025-08-11 100%
124,000,000
À¯Âû
~403ÀÏ 
2025-09-15 70%
86,800,000
À¯Âû
~452ÀÏ 
2025-11-03 49%
60,760,000
À¯Âû
~487ÀÏ 
2025-12-08 34%
42,532,000
À¯Âû
~536ÀÏ 
2026-01-26 24%
29,772,000
ÁøÇà
¹°°Ç¸í¼¼¼­ ÇöȲÁ¶»ç¼­ ¹®°ÇÁ¢¼ö ¼Û´Þ³»¿ª

°¨Á¤Æò°¡ÇöȲ

¸ñ·Ï ÁÖ¼Ò ±¸Á¶/¿ëµµ/´ëÁö±Ç ¸éÀû ºñ°í
´ëÁö±Ç
°¥°ù¸® 725-1 810.4ºÐÀÇ 7.7849 7.7849 §³
(2.35Æò)
°Ç¹°
°¥°ù¸® 725-1 8Ãþ804È£ ö±ÙÄÜÅ©¸®Æ®±¸Á¶ 19.6741 §³
(5.95Æò)
1) À§Ä¡/Áذø¾÷Áö¿ª/Áö±¸´ÜÀ§°èȹ±¸¿ª/¹ö½ºÁ¤·ùÀå/°£¼±µµ·Î/Â÷·®Á¢±Ù ¿ëÀÌ/ö±ÙÄÜÅ©¸®Æ®±¸Á¶/°³º°³­¹æ ´õº¸±â
°¨Á¤Æò°¡ ¿äÇ×Ç¥
1)À§Ä¡ ¹× ÁÖÀ§È¯°æ
°æ±âµµ ÆòÅýà ÁøÀ§¸é °¥°ù¸® ¼ÒÀç "°¥°ùÃʵîÇб³" ³²¼­Ãø Á÷¼±°Å¸® ¾à700¹ÌÅÍ ÁöÁ¡¿¡ À§Ä¡
ÇÏ´Â ´õ½ºÅ×ÀÌ(±Ù¸°»ýȰ½Ã¼³,¾÷¹«½Ã¼³,°øµ¿ÁÖÅÃ) ³»¿¡ ¼ÒÀçÇϸç, ÀαÙÀÏ´ë´Â »ó¾÷ ¹× ¾÷¹«
¿ë ºÎµ¿»ê, ³ªÁö, °ø¾÷¿ëºÎµ¿»ê µîÀÌ È¥ÀçÇÏ´Â °£¼±µµ·Îº¯ Áö¿ªÀÓ.
2)±³Åë»óȲ
1¹ø±¹µµº¯¿¡ À§Ä¡ÇÏ¿© º» °Ç¹°±îÁö Â÷·®Á¢±Ù ¿ëÀÌÇϰí Àαٿ¡ ¹ö½ºÁ¤·ùÀåÀÌ ¼ÒÀçÇϸç, ³²¼­
Ãø Á÷¼±°Å¸® ¾à1.2kmÁöÁ¡¿¡ ÁøÀ§¿ªÀÌ À§Ä¡ÇÔ.
3)°Ç¹°ÀÇ ±¸Á¶
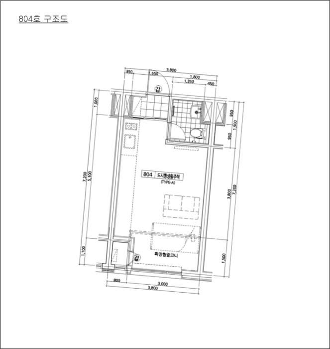
ö±ÙÄÜÅ©¸®Æ®±¸Á¶ ÆòÁöºØ 8Ãþ°Ç ³» 8Ãþ 804È£·Î¼­
¿Üº® : µ¹ºÙÀÓ, ÆäÀÎÆÃ µî ¸¶°¨.
³»º® : º®Áö ¹× ŸÀÏ µî ¸¶°¨.
âȣ : ÇÏÀ̼¦½Ã ¹× Ä®¶ó¼¦½Ã µî âȣÀÓ.
4)ÀÌ¿ë»óÅÂ
µµ½ÃÇü»ýȰÁÖÅÃ(¿ø·ëÇü)À¸·Î ÀÌ¿ëÁßÀÓ.
5)¼³ºñ³»¿ª
º¸ÀÏ·¯¼³ºñ¿¡ ÀÇÇÑ °³º°³­¹æ ±¸Á¶À̸ç, À§»ý¼³ºñ, ±Þ.¹è¼ö¼³ºñ, ¿¤¸®º£ÀÌÅͼ³ºñ, ÁöÇÏÁÖÂ÷
¼³ºñ µî µÇ¾îÀÖÀ½.
6)ÅäÁöÀÇ Çü»ó ¹× ÀÌ¿ë»óÅÂ
À广ÇüÀÇ ÅäÁö·Î¼­ ºÏ¼­ÇÏÇâÀÇ ¿Ï°æ»çÁö¸¦ ÆòźÈ÷ Á¶¼ºÇÏ¿´À¸¸ç, ±Ù¸°»ýȰ½Ã¼³ ¹× ¾÷¹«½Ã¼³
¹× °øµ¿ÁÖÅà °ÇºÎÁö·Î ÀÌ¿ëÁßÀÓ.
7)ÀÎÁ¢ µµ·Î»óŵî
¼­ÃøÀ¸·Î Æø35¹ÌÅÍ, ºÏÃøÀ¸·Î Æø25¹ÌÅÍ, ³²ÃøÀ¸·Î Æø8¹ÌÅÍ Á¤µµÀÇ Æ÷Àåµµ·Î¿¡ Á¢ÇÔ.
8)ÅäÁöÀÌ¿ë°èȹ ¹× Á¦ÇÑ»óÅÂ
Áذø¾÷Áö¿ª, Áö±¸´ÜÀ§°èȹ±¸¿ª(ÁøÀ§2»ê´Ü), ´ë·Î1·ù(Æø 35m-40m)(2019-01-15)(Á¢ÇÕ), ´ë·Î
3·ù(Æø 25m-30m)(Á¢ÇÕ), ¼Ò·Î2·ù(Æø 8m-10m)(2015-01-08)(Á¢ÇÕ), Áß·Î2·ù(Æø 15m-20m)(2017
-10-17)(Á¢ÇÕ) °¡Ãà»çÀ°Á¦Çѱ¸¿ª(2022-01-26)(ÀüºÎÁ¦Çѱ¸¿ª)<°¡ÃàºÐ´¢ÀÇ °ü¸® ¹× À̿뿡 °ü
ÇÑ ¹ý·ü>, ºñÇà¾ÈÀüÁ¦6±¸¿ª(Àü¼ú)(ºñÇà¾ÈÀüÁ¦6±¸¿ª ÇØ¹ß 56m-140m¹Ì¸¸ ÇùÀǾ÷¹«À§Å¹ 2016.9
.9)<±º»ç±âÁö ¹× ±º»ç½Ã¼³ º¸È£¹ý>, ÀϹݻê¾÷´ÜÁö<»ê¾÷ÀÔÁö ¹× °³¹ß¿¡ °üÇÑ ¹ý·ü>.
9)°øºÎ¿ÍÀÇ Â÷ÀÌ
¾ø À½.
10)±âŸÂü°í»çÇ×(ÀÓ´ë°ü·Ê ¹× ±âŸ)
ÀÓ´ë°ü°è : ¹Ì »ó ÀÓ.
±â Ÿ : º»°Ç ³»ºÎÀÌ¿ë»óÅ´ °ü°èÀÎ ºÎÀç·Î ÀÎÇÏ¿© °ÇÃ๰ÇöȲµµ ¹× ޹®Á¶»ç¿¡
ÀǰÅÇÏ¿´À¸¸ç, µ¿ À¯Çü °øµ¿ÁÖÅÃÀÇ ÀϹÝÀûÀÎ ¼³ºñ»óȲÀ» ±âÁØÇÏ¿© Æò°¡
ÇÏ¿´À¸´Ï °æ¸ÅÁøÇà½Ã Âü°íÇϽñ⠹ٶ÷.
Âü°í
»çÇ×

* º»°Ç ¸ñÀû¹°Àº

°ÇÃ๰ÇöȲ

¼ÒÀçÁö °æ±âµµ ÆòÅýà ÁøÀ§¸é °¥°ù¸® 725-1¹øÁö
´ëÁö¸éÀû 810.4§³
(245.58Æò)
¿¬¸éÀû 5464.1951§³
(1655.82Æò)
°ÇÃà¸éÀû 580.75§³
(175.98Æò)
¿ëÀû·ü»êÁ¤
¿¬¸éÀû
2999.356§³
(908.9Æò)
°ÇÆóÀ² 71.66% ¿ëÀû·ü 370.11%
Áö»óÃþ¼ö 8Ãþ ÁöÇÏÃþ¼ö 4Ãþ
ÁÖ¿ëµµ Á¦2Á¾±Ù¸°»ýȰ½Ã¼³ ±¸Á¶ ö±ÙÄÜÅ©¸®Æ®±¸Á¶
Âø°øÀÏÀÚ 2019.01.21 »ç¿ë½ÂÀÎÀÏÀÚ 2020.06.10
°ÇÃ๰Ãþº°ÇöȲ [º¸±â]


µî±âºÎµîº» ¿ä¾à(°Ç¹°)

  Á¢¼öÀÏÀÚ µî±â¸ñÀû/±Ç¸®ÀÚ ±Ç¸®±Ý¾× ±âÁØ
1 2021³â4¿ù8ÀÏ
¼ÒÀ¯±Ç
(OOOO
¼Ò¸ê
2 2024³â1¿ù25ÀÏ
ÀÓÂ÷±Ç¼³Á¤
¹ÎOO
90,000,000 Àμö
3 2024³â8¿ù9ÀÏ
°­Á¦°æ¸Å
¹ÎOO
¼Ò¸ê±âÁØ

ÀÓÂ÷ÀÎÇöȲ (¹è´ç¿ä±¸Á¾±âÀÏ: 2024-11-06)

ÀÓÂ÷ÀÎ ¿ëµµ/Á¡À¯ º¸Áõ±Ý/¿ù¼¼ ´ëÇ×·Â
ÀüÀÔÀÏ/È®Á¤ÀÏ ¹è´ç¿ä±¸ ºñ°í
¹ÎOO ÀüºÎ 90,000,000
O
2021.04.21.
2021.03.10.
2024. 8. 8.
ºñ°í
(¸Å°¢¹°°Ç
¸í¼¼¼­)
¹ÎÁÖ¿¬:ÀÓÂ÷ÀÎÀº °æ¸Å½Åûä±ÇÀÚÀÌ°í ¹è´ç¿ä±¸ÀÏÀÚ´Â °æ¸Å½ÅûÀÏ(2024. 8. 8.)ÀÓ

¿©ÀÇÁÖ°æ¸Å Á¶¾ð ÇÑ ¸¶µð


ÁÖÀÇ»çÇ× (ÃÖ¼±¼øÀ§ ¼³Á¤ÀÏ: 2024. 8. 9.°­Á¦°æ¸Å°³½Ã ¼³Á¤ °áÁ¤)

¸Å°¢À¸·Î ¼Ò¸êµÇÁö ¾Ê´Â µî±âºÎ±Ç¸®:
¸Å°¢À¸·Î ¼³Á¤µÈ °ÍÀ¸·Î º¸´Â Áö»ó±Ç:
¡Ø¹Ì³³°ü¸®ºñ(°ø¿ë) Àμö¿©ºÎ¸¦ ÀÔÂû Àü¿¡ È®ÀÎÇϽñ⠹ٶø´Ï´Ù

 

Áö¿ªºÐ¼®

ÁöÇÏö¸í Á÷¼±°Å¸®

Çб³¸í ÀüÈ­¹øÈ£ ÁÖ¼Ò Á÷¼±°Å¸®

¹ý¿ø

¼ö¿øÁö¹æ¹ý¿ø ÆòÅÃÁö¿ø (178-48)°æ±âµµ ÆòÅýà Æò³²·Î 1036 (µ¿»èµ¿)
´ëÇ¥ : 031)650-3114, ¾ß°£ : 031)650-3150
°üÇÒÁö¿ª : ÆòÅýÃ, ¾È¼º½Ã

µî±â¼Ò ¼ö¿øÁö¹æ¹ý¿ø º»¿ø ¼Ûźµî±â¼Ò (´ëÇ¥:1544-0773, ÆÑ½º:(031)665-3769, °æ±âµµ ÆòÅýà °æ±â´ë·Î 1351 (¼­Á¤µ¿ 813-3))
¼¼¹«¼­ ÆòÅü¼¹«¼­ (´ëÇ¥:031-650-02, ÆÑ½º:031-658-1116, °æ±âµµ ÆòÅýà Á×¹é6·Î6 (Á׹鵿 796))

Àαٳ«ÂûÅë°è

±â°£ ¸Å°¢°Ç¼ö Æò±Õ°¨Á¤°¡
Æò±Õ¸Å°¢°¡
¸Å°¢°¡À²
Æò±ÕÀ¯Âû¼ö
3°³¿ù 67°Ç 311,791,045¿ø
230,561,652¿ø
73%
1.5ȸ
6°³¿ù 99°Ç 320,032,323¿ø
223,144,598¿ø
72%
1.7ȸ
12°³¿ù 204°Ç 308,486,765¿ø
216,242,643¿ø
70%
1.7ȸ


º» °æ¸ÅÁ¤º¸´Â ¹ý¿øÀÚ·á¿Í ÀÏÄ¡Çϵµ·Ï ÇÏ¿´À¸³ª ±Ç¸®»çÇ׺¯µ¿, ÀÔ·ÂÂø¿À µîÀÇ ¿øÀÎÀ¸·Î »ç½Ç°ú ´Ù¸¦ ¼ö ÀÖ½À´Ï´Ù. ÀÌ¿ë¾à°ü¿¡ ÀǰЏéÃ¥Á¶°ÇÀ¸·Î Á¦°øµÊÀ» ¾Ë¸®¸ç, °æ¸ÅÀÔÂû½Ã ¹Ýµå½Ã °ü·Ã °øºÎ¸¦ ÀçÈ®ÀÎÇϽñ⠹ٶø´Ï´Ù. º¸´Ù Æí¸®ÇÑ °æ¸ÅÁ¤º¸ Á¦°øÀ» À§ÇØ Áö¼ÓÀûÀ¸·Î °³¼±ÇϰڽÀ´Ï´Ù. ÀÌ¿ëÇØ Áּż­ °¨»çÇÕ´Ï´Ù.