·Î±×ÀÎ
2842
´Ù¼¼´ë(ºô¶ó)
¼­¿ï³²ºÎÁö¹æ¹ý¿ø
 °¨Á¤°¡275,000,000 ¿ø
 ÃÖÀú°¡(51%) 140,800,000 ¿ø
 º¸Áõ±Ý(10%) 14,080,000 ¿ø
 Ã»±¸¾×309,000,000 ¿ø
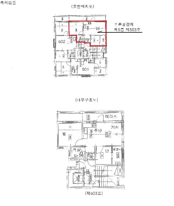
¼­¿ïƯº°½Ã °­¼­±¸ È­°î·Î13±æ 118, Á¦5Ãþ Á¦503È£ (È­°îµ¿, Ǫ¸¥Ç³°æÃ¤)
¼­¿ïƯº°½Ã °­¼­±¸ È­°îµ¿ 1016-6
»ç°Ç¹øÈ£ 2024Ÿ°æ143293
°æ¸ÅÁ¾·ùºÎµ¿»ê°­Á¦°æ¸Å
¸Å°¢´ë»óÅäÁö ¹× °Ç¹°Àϰý ¸Å°¢
¸Å°¢±âÀÏ    2025.12.11(¸ñ) 10:00 ÀÔÂû 32ÀÏÀü    
ÅäÁö¸éÀû14.52§³(4.39 Æò)
°Ç¹°¸éÀû23.96§³(7.25 Æò)
乫/¼ÒÀ¯ÀÚ±èOO / ±èOO
ä±ÇÀÚÁÖOOOOOOO
ÆäÀ̽ººÏ Æ®À§ÅÍ ±¸±Û+
īī¿À½ºÅ丮
īī¿ÀÅå sms¹®ÀÚº¸³»±â
 

±âÀϳ»¿ª

°æ°ú ³¯Â¥ Àú°¨ ÃÖÀú°¡ °á°ú
Á¢¼öÀÏ 2024-11-20 °æ¸ÅÁ¢¼ö
~7ÀÏ 
2024-11-27 °æ¸Å°³½Ã°áÁ¤
~99ÀÏ 
2025-02-27 ¹è´ç¿ä±¸Á¾±âÀÏ
~259ÀÏ 
2025-08-06 100%
275,000,000
À¯Âû
~308ÀÏ 
2025-09-24 80%
220,000,000
À¯Âû
~349ÀÏ 
2025-11-04 64%
176,000,000
À¯Âû
~386ÀÏ 
2025-12-11 51%
140,800,000
ÁøÇà
¹°°Ç¸í¼¼¼­ ÇöȲÁ¶»ç¼­ ¹®°ÇÁ¢¼ö ¼Û´Þ³»¿ª

°¨Á¤Æò°¡ÇöȲ

¸ñ·Ï ÁÖ¼Ò ±¸Á¶/¿ëµµ/´ëÁö±Ç ¸éÀû ºñ°í
´ëÁö±Ç
È­°îµ¿ 1016-6 236.8ºÐÀÇ 14.52 14.52 §³
(4.39Æò)
°Ç¹°
È­°îµ¿ 1016-6 Á¦5Ãþ Á¦503È£ ö±ÙÄÜÅ©¸®Æ®±¸Á¶ 23.96 §³
(7.25Æò)
1) À§Ä¡/µµ½ÃÁö¿ª/Á¦2Á¾ÀϹÝÁÖ°ÅÁö¿ª/ÁÖÂ÷Àå/¸¶À»¹ö½º Á¤·ùÀå/ö±ÙÄÜÅ©¸®Æ®±¸Á¶/µµ½Ã°¡½º/°¡½ºº¸ÀÏ·¯/¹æ2/È­Àå½Ç1/ÁÖ¹æ1 ´õº¸±â
°¨Á¤Æò°¡ ¿äÇ×Ç¥
1)À§Ä¡ ¹× ÁÖÀ§È¯°æ
º»°ÇÀº ¼­¿ïƯº°½Ã °­¼­±¸ È­°îµ¿ ¼ÒÀç "È­°î°íµîÇб³" ³²µ¿Ãø Àαٿ¡ À§Ä¡ÇÏ´Â
Ǫ¸¥Ç³°æÃ¤ Á¦5Ãþ Á¦503È£(ÀüÀ¯¸éÀû 23.96§³)·Î¼­ ÁÖÀ§´Â Áß.¼Ò±Ô¸ðÁ¡Æ÷ ¹× ±Ù¸°»ýȰ½Ã¼³, °¢±ÞÇб³, °ü°ø¼­ ¹× °ø°ø½Ã¼³, ¾ÆÆÄÆ® µî ±âÁ¸ÁÖÅà ¹× °øµ¿ÁÖÅà µîÀÌ È¥ÀçÇÏ´Â Áö¿ªÀ¸·Î¼­ Á¦¹ÝÁÖ°Åȯ°æÀº º¸Åë½ÃµÊ.
2)±³Åë»óȲ
º»°Ç±îÁö Â÷·® ÃâÀÔ °¡´ÉÇϸç, Àαٿ¡ ´Ù¼öÀÇ ³ë¼±¹ö½º ¹× ¸¶À»¹ö½º Á¤·ùÀå, ¿ìÀå»ê¿ª(5È£¼±)ÀÌ À§Ä¡ÇÏ¸ç °Å¸® ¹× ¿îÇàºóµµ µîÀ¸·Î º¸¾Æ ´ëÁß±³Åë»çÁ¤Àº ¹«³­ÇÔ.
3)°Ç¹°ÀÇ ±¸Á¶
ö±ÙÄÜÅ©¸®Æ®±¸Á¶ Æò½½¶óºêÁöºØ 6Ãþ °Ç¹°³» Á¦5Ãþ Á¦503È£·Î¼­
¿Üº® : Ä¡Àå¼®ÀçºÙÀÓ¸¶°¨
³»º® : º®Áöµµ¹è ¹× ÁÖ¹æÀϺΠŸÀϸ¶°¨
¹Ù´Ú : Ç÷θµº¸µå¸¶°¨
âȣ : ÇÏÀ̼¦½Ã ÀÌÁßâȣÀÓ.
4)ÀÌ¿ë»óÅÂ
µµ½ÃÇü»ýȰÁÖÅÃ:(¹æ2, °Å½Ç1, ÁÖ¹æ1, ¿å½Ç°âÈ­Àå½Ç1, ¹ßÄÚ´Ï1)ÀÓ.
5)¼³ºñ³»¿ª
µµ½Ã°¡½ºº¸ÀÏ·¯¿¡ ÀÇÇÑ ³­¹æ½Ã¼³À̰í, À§»ý.±Þ¹è¼ö ¹× ±ÞÅÁ¼³ºñ, È­ÀçŽÁö±â¼³ºñ, ½Â°­±â¼³ºñ, 1Ãþ ÇÊ·ÎÆ¼ ÁÖÂ÷Àå½Ã¼³ ±¸ºñµÊ.
6)ÅäÁöÀÇ Çü»ó ¹× ÀÌ¿ë»óÅÂ
¼¼·ÎÀ广ÇüÀÇ ÅäÁö·Î ÀÎÁ¢ÅäÁö¿Í µî°íÆòźÇÏ¸ç °ÇºÎÁö(µµ½ÃÇü»ýȰÁÖÅÃ(´ÜÁöÇü´Ù¼¼´ë))·Î ÀÌ¿ëÁßÀÓ.
7)ÀÎÁ¢ µµ·Î»óŵî
º»°Ç ºÏÃøÀ¸·Î ³ëÆø ¾à 8¹ÌÅÍ, µ¿ÃøÀ¸·Î ³ëÆø ¾à 4¹ÌÅÍ ³»¿ÜÀÇ ¾Æ½ºÆÈÆ® Æ÷Àåµµ·Î¿Í Á¢ÇÔ.
8)ÅäÁöÀÌ¿ë°èȹ ¹× Á¦ÇÑ»óÅÂ
µµ½ÃÁö¿ª, Á¦2Á¾ÀϹÝÁÖ°ÅÁö¿ª(7ÃþÀÌÇÏ), Áß¿ä½Ã¼³¹°º¸È£Áö±¸(°øÇ×) °¡Ãà»çÀ°Á¦Çѱ¸¿ª(Áö¿ª°æÁ¦°ú È®ÀÎ ¿ä¸Á)<°¡ÃàºÐ´¢ÀÇ °ü¸® ¹× À̿뿡 °üÇÑ ¹ý·ü>, ¼öÆòÇ¥¸é±¸¿ª(¼öÆòÇ¥¸é)<°øÇ׽ü³¹ý>, ´ë°ø¹æ¾îÇùÁ¶±¸¿ª(À§Å¹°íµµ:77-257m)<±º»ç±âÁö ¹× ±º»ç½Ã¼³ º¸È£¹ý>, °ú¹Ð¾ïÁ¦±Ç¿ª<¼öµµ±ÇÁ¤ºñ°èȹ¹ý>
9)°øºÎ¿ÍÀÇ Â÷ÀÌ
ÇØ´ç»çÇ× ¾øÀ½.
10)±âŸÂü°í»çÇ×(ÀÓ´ë°ü·Ê ¹× ±âŸ)
ÀÓ´ë°ü°è´Â ¹Ì»óÀÓ.
Âü°í
»çÇ×
ÀÓÂ÷ÀÎ ¹× ÀÓÂ÷±Ç½Â°èÀÎ ÁÖÅõµ½Ãº¸Áõ°ø»çÀÇ ¸Å¼öÀο¡ ´ëÇÑ ´ëÇ×·Â Æ÷±âÁ¶°Ç ¸Å°¢

°ÇÃ๰ÇöȲ

¼ÒÀçÁö ¼­¿ïƯº°½Ã °­¼­±¸ È­°îµ¿ 1016-6¹øÁö
´ëÁö¸éÀû 236.8§³
(71.76Æò)
¿¬¸éÀû 473.53§³
(143.49Æò)
°ÇÃà¸éÀû 138.86§³
(42.08Æò)
¿ëÀû·ü»êÁ¤
¿¬¸éÀû
473.53§³
(143.49Æò)
°ÇÆóÀ² 58.64% ¿ëÀû·ü 199.97%
Áö»óÃþ¼ö 6Ãþ ÁöÇÏÃþ¼ö  
ÁÖ¿ëµµ °øµ¿ÁÖÅà ±¸Á¶ ö±ÙÄÜÅ©¸®Æ®±¸Á¶
Âø°øÀÏÀÚ 2020.07.09 »ç¿ë½ÂÀÎÀÏÀÚ 2021.01.04
°ÇÃ๰Ãþº°ÇöȲ [º¸±â]


±¹ÅäºÎ½Ç°Å·¡°¡ ¼­¿ïƯº°½Ã °­¼­±¸ È­°îµ¿

¡Ü ¸Å¸Å

¸éÀû(§³), ±Ý¾×(¸¸¿ø)

¡Ü Àü¼¼

¸éÀû(§³), ±Ý¾×(¸¸¿ø)

°è¾àÀϰǹ°¸íĪÃþ¿¬¸éÀû´ëÁö±Ý¾×°ÇÃà
24.03.30ÇÏÀÌÆ®¸Ç¼Ç159.3127.8923,0002000
24.03.30´õŬ·¡½Ä(857-19)628.5218.221,5002018
24.03.30ÇØºñÄ¡ºô226.2315.3722,2002019
24.03.30µ¿µµÇÏÀÌÃ÷ºô¶ó(56-335)158.5629.415,0002000
24.03.30¸®´õ½ºÅ¸¿î529.8819.321,9002016
¢Ñ ´õº¸±â

µî±âºÎµîº» ¿ä¾à(°Ç¹°)

  Á¢¼öÀÏÀÚ µî±â¸ñÀû/±Ç¸®ÀÚ ±Ç¸®±Ý¾× ±âÁØ
1 2021³â5¿ù28ÀÏ
¼ÒÀ¯±Ç
±èOO
¼Ò¸ê
2 2021³â9¿ù7ÀÏ
¾àÁ¤/±ÝÁö»çÇ×/ȯ¸ÅƯ¾à
Àμö
3 2023³â6¿ù13ÀÏ
ÀÓÂ÷±Ç¼³Á¤
ÀÌOO
309,000,000 Àμö
4 2023³â7¿ù28ÀÏ
¾Ð·ù
±¹
¼Ò¸ê±âÁØ
5 2024³â11¿ù27ÀÏ
°­Á¦°æ¸Å
ÁÖOOOO
¼Ò¸ê
6 2025³â5¿ù27ÀÏ
¾Ð·ù
±¹
¼Ò¸ê

ÀÓÂ÷ÀÎÇöȲ (¹è´ç¿ä±¸Á¾±âÀÏ: 2025-02-27)

ÀÓÂ÷ÀÎ ¿ëµµ/Á¡À¯ º¸Áõ±Ý/¿ù¼¼ ´ëÇ×·Â
ÀüÀÔÀÏ/È®Á¤ÀÏ ¹è´ç¿ä±¸ ºñ°í
ÀÌOO ÀüºÎ 309,000,000
O
2021.5.6.
2021.4.15.
2021.5.12.~
ÁÖOOOOOOO ÀüºÎ 309,000,000
O
2021.5.6.
2021.4.15.
2025.2.21. 2021.5.12.~
ºñ°í
(¸Å°¢¹°°Ç
¸í¼¼¼­)
ÁÖÅõµ½Ãº¸Áõ°ø»ç:ÀÌ »ç°Ç ½Åûä±ÇÀÚ·Î ÁÖÅÃÀÓÂ÷±ÇÀÚ ÀÌ»óÇöÀÇ ÁöÀ§¸¦ ½Â°èÇÏ¿© ±Ç¸®½Å°í ¹× ¹è´ç¿ä±¸ÇÔ

¿©ÀÇÁÖ°æ¸Å Á¶¾ð ÇÑ ¸¶µð

¼±¼øÀ§ ÀÓÂ÷±Çµî±â°¡ µÇ¾î ÀÖ½À´Ï´Ù
´ëÇ×·ÂÀÌ ÀÖ´Â ¼±¼øÀ§ ÀÓÂ÷±Çµî±â ±Ç¸®ÀÚ°¡ ¹è´çÀ» Àü¾× ¹ÞÁö ¸øÇÒ °æ¿ì ³«ÂûÀÚ°¡ ÀÜ¿© º¸Áõ±ÝÀ» ÀμöÇØ¾ßÇÏ´Â °æ¿ìµµ ÀÖ½À´Ï´Ù.

ÁÖÀÇ»çÇ× (ÃÖ¼±¼øÀ§ ¼³Á¤ÀÏ: 2023.7.28. ¾Ð·ù ¼³Á¤)

¸Å°¢À¸·Î ¼Ò¸êµÇÁö ¾Ê´Â µî±âºÎ±Ç¸®:
¸Å°¢À¸·Î ¼³Á¤µÈ °ÍÀ¸·Î º¸´Â Áö»ó±Ç:
Ưº°¸Å°¢Á¶°Ç: ä±ÇÀÚ´Â ¸Å¼öÀο¡ ´ëÇØ ¹è´ç¹ÞÁö ¸øÇÏ´Â Àܾ׿¡ ´ëÇÑ ÀÓ´ëÂ÷º¸Áõ±Ý ¹Ýȯû±¸±ÇÀ» Æ÷±âÇϰí, ÀÓÂ÷±Çµî±â¸¦ ¸»¼Ò ÇÏ´Â °ÍÀ» Á¶°ÇÀ¸·Î ¸Å°¢
¡Ø¹Ì³³°ü¸®ºñ(°ø¿ë) Àμö¿©ºÎ¸¦ ÀÔÂû Àü¿¡ È®ÀÎÇϽñ⠹ٶø´Ï´Ù

 

Áö¿ªºÐ¼®

ÁöÇÏö¸í Á÷¼±°Å¸®

Çб³¸í ÀüÈ­¹øÈ£ ÁÖ¼Ò Á÷¼±°Å¸®

¹ý¿ø

¼­¿ï³²ºÎÁö¹æ¹ý¿ø (080-88)¼­¿ïƯº°½Ã ¾çõ±¸ ½Å¿ù·Î 386(½ÅÁ¤µ¿)
´ëÇ¥ : 02)2192-1114
°üÇÒÁö¿ª : ¿µµîÆ÷±¸, °­¼­±¸, ¾çõ±¸, ±¸·Î±¸, ±Ýõ±¸

µî±â¼Ò ¼­¿ï³²ºÎÁö¹æ¹ý¿ø º»¿ø µî±â±¹ (´ëÇ¥:1544-0773, ÆÑ½º:(02)2629-7307, ¼­¿ïƯº°½Ã ¿µµîÆ÷±¸ °æÀηΠ772 (¹®·¡µ¿ 1°¡))
¼¼¹«¼­ °­¼­¼¼¹«¼­ (´ëÇ¥:02-2630-42, ÆÑ½º:02-2679-8777, ¼­¿ïƯº°½Ã °­¼­±¸ ¸¶°î¼­1·Î 60 (¸¶°îµ¿))

Àαٳ«ÂûÅë°è

±â°£ ¸Å°¢°Ç¼ö Æò±Õ°¨Á¤°¡
Æò±Õ¸Å°¢°¡
¸Å°¢°¡À²
Æò±ÕÀ¯Âû¼ö
3°³¿ù 252°Ç 259,908,479¿ø
201,158,218¿ø
78%
2.2ȸ
6°³¿ù 465°Ç 259,049,452¿ø
201,233,710¿ø
79%
2.3ȸ
12°³¿ù 1,006°Ç 258,021,017¿ø
202,000,293¿ø
79%
2.3ȸ


º» °æ¸ÅÁ¤º¸´Â ¹ý¿øÀÚ·á¿Í ÀÏÄ¡Çϵµ·Ï ÇÏ¿´À¸³ª ±Ç¸®»çÇ׺¯µ¿, ÀÔ·ÂÂø¿À µîÀÇ ¿øÀÎÀ¸·Î »ç½Ç°ú ´Ù¸¦ ¼ö ÀÖ½À´Ï´Ù. ÀÌ¿ë¾à°ü¿¡ ÀǰЏéÃ¥Á¶°ÇÀ¸·Î Á¦°øµÊÀ» ¾Ë¸®¸ç, °æ¸ÅÀÔÂû½Ã ¹Ýµå½Ã °ü·Ã °øºÎ¸¦ ÀçÈ®ÀÎÇϽñ⠹ٶø´Ï´Ù. º¸´Ù Æí¸®ÇÑ °æ¸ÅÁ¤º¸ Á¦°øÀ» À§ÇØ Áö¼ÓÀûÀ¸·Î °³¼±ÇϰڽÀ´Ï´Ù. ÀÌ¿ëÇØ Áּż­ °¨»çÇÕ´Ï´Ù.