·Î±×ÀÎ
96
±Ù¸°½Ã¼³
ÃáõÁö¹æ¹ý¿ø
 °¨Á¤°¡3,455,453,130 ¿ø
 ÃÖÀú°¡(34%) 1,185,220,000 ¿ø
 º¸Áõ±Ý(10%) 118,522,000 ¿ø
 Ã»±¸¾×2,030,791,633 ¿ø
°­¿øÆ¯º°ÀÚÄ¡µµ Ãáõ½Ã ¼®»çµ¿ 827-1
»ç°Ç¹øÈ£ 2024Ÿ°æ53993
°æ¸ÅÁ¾·ùºÎµ¿»êÀÓÀǰæ¸Å
¸Å°¢´ë»óÅäÁö ¹× °Ç¹°Àϰý¸Å°¢
¸Å°¢±âÀÏ    2026.02.02(¿ù) 10:00 ÀÔÂû 21ÀÏÀü    
ÅäÁö¸éÀû719.40§³(217.62 Æò)
°Ç¹°¸éÀû998.87§³(302.16 Æò)
乫/¼ÒÀ¯ÀÚ¸Á OOOO OOOOOOO OOO OOO / ¸Á OOOO OOOOOOO OOO OOO
ä±ÇÀÚ°¡OOOOOOOO
ÆäÀ̽ººÏ Æ®À§ÅÍ ±¸±Û+
īī¿À½ºÅ丮
īī¿ÀÅå sms¹®ÀÚº¸³»±â
 

±âÀϳ»¿ª

°æ°ú ³¯Â¥ Àú°¨ ÃÖÀú°¡ °á°ú
Á¢¼öÀÏ 2024-08-13 °æ¸ÅÁ¢¼ö
~104ÀÏ 
2024-11-25 °æ¸Å°³½Ã°áÁ¤
~196ÀÏ 
2025-02-25 ¹è´ç¿ä±¸Á¾±âÀÏ
~349ÀÏ 
2025-07-28 100%
3,455,453,130
À¯Âû
~384ÀÏ 
2025-09-01 70%
2,418,817,000
À¯Âû
~426ÀÏ 
2025-10-13 49%
1,693,172,000
À¯Âû
~461ÀÏ 
2025-11-17 34%
1,185,220,000
º¯°æ
~538ÀÏ 
2026-02-02 34%
1,185,220,000
ÁøÇà
¹°°Ç¸í¼¼¼­ ÇöȲÁ¶»ç¼­ ¹®°ÇÁ¢¼ö ¼Û´Þ³»¿ª

°¨Á¤Æò°¡ÇöȲ

¸ñ·Ï ÁÖ¼Ò ±¸Á¶/¿ëµµ/´ëÁö±Ç ¸éÀû ºñ°í
ÅäÁö
¼®»çµ¿ 827-1 ´ë 719.4 §³
(217.62Æò)
°Ç¹°
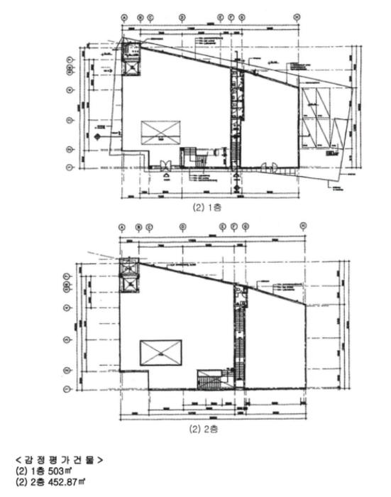
¼®»çµ¿ 827-1 1Ãþ ±Ù¸°»ýȰ½Ã¼³ ö°ñÁ¶ 503.0 §³
(152.16Æò)
¼®»çµ¿ 827-1 2Ãþ ±Ù¸°»ýȰ½Ã¼³ ö°ñÁ¶ 452.87 §³
(136.99Æò)
Á¦½Ã¿Ü
°Ç¹°
¼®»çµ¿ 827-1 ±â°è½Ç 13 §³
(3.93Æò)
Æ÷ÇÔ
¼®»çµ¿ 827-1 °è´Ü½Ç 30 §³
(9.08Æò)
Æ÷ÇÔ
1) À§Ä¡/µµ½ÃÁö¿ª/ÁØÁÖ°ÅÁö¿ª/½º¶óºêÁöºØ/ö°ñÁ¶ ´õº¸±â
°¨Á¤Æò°¡ ¿äÇ×Ç¥
1)À§Ä¡ ¹× ÁÖÀ§È¯°æ
º»°ÇÀº °­¿øÆ¯º°ÀÚÄ¡µµ Ãáõ½Ã ¼®»çµ¿ ¼ÒÀç "Åð°èÁÖ°ø4´ÜÁö¾ÆÆÄÆ®" µ¿Ãø ¿¡ À§Ä¡Çϸç ÀαÙÀº °¢ Á¾ ±Ù¸°»ýȰ½Ã¼³, ¾ÆÆÄÆ®, ÁÖ»ó¿ë°Ç¹°, ´Üµ¶ÁÖÅà µîÀÌ È¥ÀçÇÏ´Â Áö¿ªÀ¸·Î Á¦¹Ý ÁÖÀ§È¯°æÀº º¸Åë ÀÔ´Ï´Ù.
2)±³Åë»óȲ
º»°Ç±îÁö Â÷·® Á¢±Ù °¡´ÉÇϸç, À§Ä¡ ¹× ´ëÁß±³ÅëÀÇ ¿îÇàȽ¼ö µîÀ» °í·ÁÇÒ¶§ ÀϹÝÀûÀÎ ±³Åë»çÁ¤ Àº º¸Åë½ÃµË´Ï´Ù.
3)ÇüÅ ¹× ÀÌ¿ë»óÅÂ
ÀÎÁ¢Áö¿Í µî°í ÆòźÇÑ »ç´Ù¸®Çü ÆòÁöÀÇ ÅäÁö·Î¼­, »ó¾÷¿ë °ÇºÎÁö·Î ÀÌ¿ëÁßÀÔ´Ï´Ù.
4)ÀÎÁ¢ µµ·Î»óÅÂ
º»°Ç ºÏÃøÀ¸·Î ³ëÆø ¾à 35M, ¼­ÃøÀ¸·Î ³ëÆø ¾à 10M ³»¿ÜÀÇ Æ÷Àåµµ·Î¿Í Á¢ÇÕ´Ï´Ù.
5)ÅäÁöÀÌ¿ë°èȹ ¹× Á¦ÇÑ»óÅÂ
µµ½ÃÁö¿ª,ÁØÁÖ°ÅÁö¿ª(ÁØÁÖ°ÅÁö¿ª),°íµµÁö±¸(18mÀÌÇÏ),´ë·Î1·ù(Æø 35m-40m)(ÀúÃË),¼Ò·Î1·ù (Æø 10m-12m)(Á¢ÇÕ),°¡Ãà»çÀ°Á¦Çѱ¸¿ª(2024-12-12)(ÀüÃàÁ¾Á¦ÇÑ)<°¡ÃàºÐ´¢ÀÇ °ü¸® ¹× ÀÌ¿ë ¿¡ °üÇÑ ¹ý·ü>,ÁßÁ¡°æ°ü°ü¸®±¸¿ª(2019-04-08)
6)Á¦½Ã¸ñ·Ï ¿ÜÀÇ ¹°°Ç
¾ø½À´Ï´Ù.
7)°øºÎ¿ÍÀÇ Â÷ÀÌ
¾ø½À´Ï´Ù.
8)±âŸÂü°í»çÇ×(ÀÓ´ë°ü·Ê ¹× ±âŸ)
¾ø½À´Ï´Ù.
1)°Ç¹°ÀÇ ±¸Á¶
ö°ñÁ¶ ö±ÙÄÜÅ©¸®Æ® ½º¶óºêÁöºØ 2Ãþ °ÇÀ¸·Î¼­, ¿Üº® : ¼®ÆÇºÙÀÓ, Ä¡À庮µ¹ ¹× ¸ôÅ»À§ ÆäÀÌÆ® µî ¸¶°¨, ³»º® : ŸÀÏ ¹× ÀÎÅ׸®¾î µî ¸¶°¨,
¹Ù´Ú : ŸÀÏ µî ¸¶°¨
âȣ : °­È­À¯¸® µî ¸¶°¨ÀÔ´Ï´Ù.
2)ÀÌ¿ë»óÅÂ
±Ù¸°»ýȰ½Ã¼³(ÀÇ·ù»ó¼³¸ÅÀå, ÂøÇÑÇÑ¿ì°öâ, ÅÍÇÁ³ë·¡¿¬½ÀÀå)·Î ÀÌ¿ëÁßÀÔ´Ï´Ù.
3)¼³ºñ³»¿ª
°Ç¹°ÀÇ ÀϺο¡ ½Ã½ºÅÛ ³Ã¹æ±â µîÀÌ µÇ¾î ÀÖ½À´Ï´Ù.
±âº»ÀûÀÎ À§»ý ¹× ±Þ¹è¼ö¼³ºñ, Â÷·®¿ë ½Â°­±â µîÀÌ µÇ¾î ÀÖ½À´Ï´Ù.
4)ºÎÇÕ¹° ¹× Á¾¹°
º»°Ç ±âÈ£(1)ÀÇ ÅäÁö»ó¿¡ ÈÄ÷ "ÁöÀû ¹× °Ç¹°°³È²µµ"¿Í °°ÀÌ Á¦½Ã¿Ü ºÎÇÕ¹° ¹× Á¾ ¹° ±âÈ£¨±, ¨² ÀÌ ¼ÒÀçÇÏ´Â ¹Ù, Çö»ó µîÀ» °í·ÁÇÏ¿© ¿ø°¡¹ý¿¡ Àǰа¨Á¤Æò°¡ÇϵÇ, ¸é Àû »çÁ¤Àº °³·«ÀûÀ¸·Î ½ÇÃø »çÁ¤ÇÏ¿´À¸´Ï, °æ¸ÅÁøÇà ½Ã Âü°íÇϽñ⠹ٶø´Ï´Ù.
¡Ø Â÷·®¿ë½Â°­±â, À§¹Ý°ÇÃ๰(À§¹Ý¸éÀû 24.64§³)Àº ÀçÁ¶´Þ¿ø°¡¿¡ Æ÷ÇÔ Æò°¡ÇÏ¿´½À´Ï´Ù.
5)°øºÎ¿ÍÀÇ Â÷ÀÌ
¾ø½À´Ï´Ù.
6)±âŸÂü°í»çÇ×(ÀÓ´ë°ü·Ê ¹× ±âŸ)
º»°Ç ±âÈ£(2)´Â ÀϹݰÇÃ๰´ëÀå»ó À§¹Ý°ÇÃ๰(À§¹Ý¸éÀû 24.64§³)·Î µîÀçµÇ¾î ÀÖÀ¸¹Ç·Î °æ¸Å¾÷¹« ÁøÇà ½Ã Âü°íÇϽñ⠹ٶø´Ï´Ù.
Âü°í
»çÇ×
Àϰý¸Å°¢. Á¦½Ã¿Ü °Ç¹° Æ÷ÇÔ. ¸ñ·Ï1-ÅäÁö Áß ÀϺΠµµ½Ã°èȹ½Ã¼³(µµ·Î µî)¿¡ ÀúÃ˵Ê(ÀúÃËÀÇ Á¤µµ °¨¾ÈÇÑ °¡°ÝÀÓ, ÀúÃ˺°µµÈ®ÀοäÇÔ). ¸ñ·Ï2-°ÇÃ๰´ëÀå»ó À§¹Ý°ÇÃ๰(À§¹Ý¸éÀû 24.64§³ µîÀçµÇ¾î ÀÖÀ¸¹Ç·Î º°µµÈ®ÀÎ ¿äÇÔ(°ÇÃà¹ýÀ§¹Ý Á¦14Á¶ ½ÃÁ¤¸í·É³»¿ë:¿ø»óº¹±¸). ÀÓÂ÷ÀÎ À̼¼¿øÀº ´ëÇ×·ÂÀÖ´Â ÀÓÂ÷ÀÎÀÌ¸ç ±× º¸Áõ±Ý Àü¾×À» ¸Å¼öÀÎÀÌ ÀμöÇÔ(À̼¼¿øÀº ±Ç¸®½Å°í¸¸ ÇÏ°í ¹è´ç¿ä±¸ÇÏÁö ¾ÊÀ½).
1.Á¦½ÃºÎµ¿»ê ¸ñ·Ï1¹ø -`´ë

°ÇÃ๰ÇöȲ

¼ÒÀçÁö °­¿øÆ¯º°ÀÚÄ¡µµ Ãáõ½Ã ¼®»çµ¿ 827-1¹øÁö
´ëÁö¸éÀû 719.4§³
(218Æò)
¿¬¸éÀû 955.87§³
(289.66Æò)
°ÇÃà¸éÀû 503§³
(152.42Æò)
¿ëÀû·ü»êÁ¤
¿¬¸éÀû
955.87§³
(289.66Æò)
°ÇÆóÀ² 69.92% ¿ëÀû·ü 132.87%
Áö»óÃþ¼ö 2Ãþ ÁöÇÏÃþ¼ö  
ÁÖ¿ëµµ Á¦1Á¾±Ù¸°»ýȰ½Ã¼³ ±¸Á¶ ÀϹÝö°ñ±¸Á¶
Âø°øÀÏÀÚ 2003.01.04 »ç¿ë½ÂÀÎÀÏÀÚ 2003.05.21
°ÇÃ๰Ãþº°ÇöȲ [º¸±â]


µî±âºÎµîº» ¿ä¾à(ÅäÁö)

  Á¢¼öÀÏÀÚ µî±â¸ñÀû/±Ç¸®ÀÚ ±Ç¸®±Ý¾× ±âÁØ
1 2024³â10¿ù25ÀÏ
¼ÒÀ¯±Ç
ÀÌOO
¼Ò¸ê
2 2024³â10¿ù25ÀÏ
¼ÒÀ¯±Ç
À¯OO
¼Ò¸ê
3 2024³â10¿ù25ÀÏ
¼ÒÀ¯±Ç
À¯OO
¼Ò¸ê
4 2024³â10¿ù25ÀÏ
¼ÒÀ¯±Ç
À¯O
¼Ò¸ê
5 2024³â10¿ù25ÀÏ
¼ÒÀ¯±Ç
À¯OO
¼Ò¸ê
6 2016³â4¿ù12ÀÏ
±ÙÀú´ç±Ç
³óOOOO
2,016,000,000 ¼Ò¸ê±âÁØ
7 2021³â6¿ù29ÀÏ
±ÙÀú´ç±Ç
³óOOOO
360,000,000 ¼Ò¸ê
8 2021³â7¿ù13ÀÏ
±ÙÀú´ç±Ç
¹ÚOO
300,000,000 ¼Ò¸ê
9 2023³â8¿ù16ÀÏ
¾Ð·ù
±¹
¼Ò¸ê
10 2024³â11¿ù15ÀÏ
°¡¾Ð·ù
³²OOOO
5,349,262 ¼Ò¸ê
11 2024³â11¿ù25ÀÏ
ÀÓÀǰæ¸Å
°¡OOOO
¼Ò¸ê

µî±âºÎµîº» ¿ä¾à(°Ç¹°)

  Á¢¼öÀÏÀÚ µî±â¸ñÀû/±Ç¸®ÀÚ ±Ç¸®±Ý¾× ±âÁØ
1 2024³â10¿ù25ÀÏ
¼ÒÀ¯±Ç
ÀÌOO
¼Ò¸ê
2 2024³â10¿ù25ÀÏ
¼ÒÀ¯±Ç
À¯OO
¼Ò¸ê
3 2024³â10¿ù25ÀÏ
¼ÒÀ¯±Ç
À¯OO
¼Ò¸ê
4 2024³â10¿ù25ÀÏ
¼ÒÀ¯±Ç
À¯O
¼Ò¸ê
5 2024³â10¿ù25ÀÏ
¼ÒÀ¯±Ç
À¯OO
¼Ò¸ê
6 2016³â4¿ù12ÀÏ
±ÙÀú´ç±Ç
³óOOOO
2,016,000,000 ¼Ò¸ê±âÁØ
7 2021³â6¿ù29ÀÏ
±ÙÀú´ç±Ç
³óOOOO
360,000,000 ¼Ò¸ê
8 2021³â7¿ù13ÀÏ
±ÙÀú´ç±Ç
¹ÚOO
300,000,000 ¼Ò¸ê
9 2023³â8¿ù16ÀÏ
¾Ð·ù
±¹
¼Ò¸ê
10 2024³â11¿ù15ÀÏ
°¡¾Ð·ù
³²OOOO
5,349,262 ¼Ò¸ê
11 2024³â11¿ù25ÀÏ
ÀÓÀǰæ¸Å
°¡OOOO
¼Ò¸ê

ÀÓÂ÷ÀÎÇöȲ (¹è´ç¿ä±¸Á¾±âÀÏ: 2025-02-25)

ÀÓÂ÷ÀÎ ¿ëµµ/Á¡À¯ º¸Áõ±Ý/¿ù¼¼ ´ëÇ×·Â
ÀüÀÔÀÏ/È®Á¤ÀÏ ¹è´ç¿ä±¸ ºñ°í
±æOO 1Ãþ(ÂøÇѰöÇÑ¿ì°öâ) 20,000,000
[¿ù]1,600,000
X
2020.09.10.
2025.02.10.
2025.2.10. 2020.09.20.~2024.09.19.
ÀÌOO 2Ãþ Áß98§© 35,000,000
[¿ù]1,200,000
O
2010.04.06.
2010.04.06.
2006.09.21.~ÇöÀç
ºñ°í
(¸Å°¢¹°°Ç
¸í¼¼¼­)
À̼¼¿ø:±Ç¸®½Å°íÀÓ(¹è´ç¿ä±¸´Â ÇØ´ç»çÇ× ¾øÀ½)

¿©ÀÇÁÖ°æ¸Å Á¶¾ð ÇÑ ¸¶µð

Á¦½Ã¿Ü ¹°°ÇÀÌ Æ÷ÇԵǾî ÀÖ½À´Ï´Ù
¡®Á¦½Ã¿Ü ¹°°Ç¡¯Àº ÇØ´ç °øºÎ»ó¿¡´Â Á¸ÀçÇÏÁö ¾ÊÁö¸¸, ÇöÀå¿¡ Á¸Àç°¡ È®ÀεǴ ¿©·¯ ÇüÅÂÀÇ °Ç¹°, ±â°è±â±¸ µîÀ» ¸»ÇÕ´Ï´Ù. ÀÌµé ´ëºÎºÐÀº ¹«Çã°¡, ¹«½Å°íÀ̰ųª »ç¿ë½ÂÀÎÀ» ¹ÞÁö ¾ÊÀº °ÍÀÔ´Ï´Ù. ¡®Á¦½Ã¿Ü ¹°°Ç¡¯ÀÌ °æ¸Å´ë»ó¿¡ Æ÷ÇԵǾî ÀÖ´Ù¸é ³«ÂûÀÚÀÇ ¼ÒÀ¯±Ç Ãëµæ¿¡´Â ¾Æ¹«·± ¹®Á¦°¡ ¾ø½À´Ï´Ù.

ÁÖÀÇ»çÇ× (ÃÖ¼±¼øÀ§ ¼³Á¤ÀÏ: 2016.04.12.±ÙÀú´ç±Ç ¼³Á¤)

¸Å°¢À¸·Î ¼Ò¸êµÇÁö ¾Ê´Â µî±âºÎ±Ç¸®:
¸Å°¢À¸·Î ¼³Á¤µÈ °ÍÀ¸·Î º¸´Â Áö»ó±Ç:
2025.01.14 ä±ÇÀÚ ³óOOOOOOOOOOO °æ¸ÅÀýÂ÷ ½Â°è½Åû¼­ Á¦Ãâ
Àϰý¸Å°¢. Á¦½Ã¿Ü °Ç¹° Æ÷ÇÔ. ¸ñ·Ï1-ÅäÁö Áß ÀϺΠµµ½Ã°èȹ½Ã¼³(µµ·Î µî)¿¡ ÀúÃ˵Ê(ÀúÃËÀÇ Á¤µµ °¨¾ÈÇÑ °¡°ÝÀÓ, ÀúÃ˺°µµÈ®ÀοäÇÔ). ¸ñ·Ï2-°ÇÃ๰´ëÀå»ó À§¹Ý°ÇÃ๰(À§¹Ý¸éÀû 24.64§³ µîÀçµÇ¾î ÀÖÀ¸¹Ç·Î º°µµÈ®ÀÎ ¿äÇÔ(°ÇÃà¹ýÀ§¹Ý Á¦14Á¶ ½ÃÁ¤¸í·É³»¿ë:¿ø»ó º¹±¸). ÀÓÂ÷ÀÎ À̼¼¿øÀº ´ëÇ×·ÂÀÖ´Â ÀÓÂ÷ÀÎÀÌ¸ç ±× º¸Áõ±Ý Àü¾×À» ¸Å¼öÀÎÀÌ ÀμöÇÔ(À̼¼¿øÀº ±Ç¸®½Å°í¸¸ ÇÏ°í ¹è´ç¿ä±¸ÇÏÁö ¾Ê À½).
¡Ø¹Ì³³°ü¸®ºñ(°ø¿ë) Àμö¿©ºÎ¸¦ ÀÔÂû Àü¿¡ È®ÀÎÇϽñ⠹ٶø´Ï´Ù

 

Áö¿ªºÐ¼®

ÁöÇÏö¸í Á÷¼±°Å¸®

Çб³¸í ÀüÈ­¹øÈ£ ÁÖ¼Ò Á÷¼±°Å¸®

¹ý¿ø

ÃáõÁö¹æ¹ý¿ø (243-42)°­¿øµµ Ãáõ½Ã °øÁö·Î 284 (È¿ÀÚ2µ¿)
´ëÇ¥ : 033)259-9000
°üÇÒÁö¿ª : Ãáõ½Ã, ÀÎÁ¦±º, ȫõ±º, ¾ç±¸±º, ȭõ±º(1½Ã4±º)

µî±â¼Ò ÃáõÁö¹æ¹ý¿ø º»¿ø µî±â°ú (´ëÇ¥:1544-0773, ÆÑ½º:(033)242-8812, °­¿øµµ Ãáõ½Ã °øÁö·Î 284 (È¿ÀÚµ¿ 356))
¼¼¹«¼­ Ãáõ¼¼¹«¼­ (´ëÇ¥:033-2500-2, ÆÑ½º:033) 252-3589, °­¿øµµ Ãáõ½Ã Áß¾Ó·Î 115 (Áß¾Ó·Î3°¡))

Àαٳ«ÂûÅë°è

±â°£ ¸Å°¢°Ç¼ö Æò±Õ°¨Á¤°¡
Æò±Õ¸Å°¢°¡
¸Å°¢°¡À²
Æò±ÕÀ¯Âû¼ö
3°³¿ù 1°Ç 631,830,400¿ø
316,770,000¿ø
50%
2ȸ
6°³¿ù 2°Ç 455,915,200¿ø
234,875,000¿ø
52%
2ȸ
12°³¿ù 2°Ç 455,915,200¿ø
234,875,000¿ø
52%
2ȸ


º» °æ¸ÅÁ¤º¸´Â ¹ý¿øÀÚ·á¿Í ÀÏÄ¡Çϵµ·Ï ÇÏ¿´À¸³ª ±Ç¸®»çÇ׺¯µ¿, ÀÔ·ÂÂø¿À µîÀÇ ¿øÀÎÀ¸·Î »ç½Ç°ú ´Ù¸¦ ¼ö ÀÖ½À´Ï´Ù. ÀÌ¿ë¾à°ü¿¡ ÀǰЏéÃ¥Á¶°ÇÀ¸·Î Á¦°øµÊÀ» ¾Ë¸®¸ç, °æ¸ÅÀÔÂû½Ã ¹Ýµå½Ã °ü·Ã °øºÎ¸¦ ÀçÈ®ÀÎÇϽñ⠹ٶø´Ï´Ù. º¸´Ù Æí¸®ÇÑ °æ¸ÅÁ¤º¸ Á¦°øÀ» À§ÇØ Áö¼ÓÀûÀ¸·Î °³¼±ÇϰڽÀ´Ï´Ù. ÀÌ¿ëÇØ Áּż­ °¨»çÇÕ´Ï´Ù.