·Î±×ÀÎ
1
µµ½ÃÇü»ýȰÁÖÅÃ
¿ï»êÁö¹æ¹ý¿ø
 °¨Á¤°¡76,000,000 ¿ø
 ÃÖÀú°¡(24%) 18,248,000 ¿ø
 º¸Áõ±Ý(10%) 1,824,800 ¿ø
 Ã»±¸¾×87,164,059 ¿ø
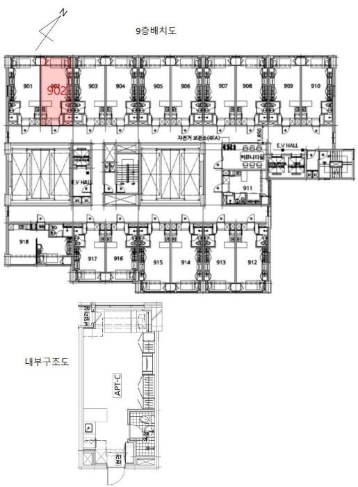
¿ï»ê±¤¿ª½Ã Áß±¸ È­ÇÕ·Î 379, 9Ãþ902È£ (¹Ý±¸µ¿,¼Ò´ãÆÓ¸®½º)
¿ï»ê±¤¿ª½Ã Áß±¸ ¹Ý±¸µ¿ 106-3
»ç°Ç¹øÈ£ 2024Ÿ°æ115965
°æ¸ÅÁ¾·ùºÎµ¿»ê°­Á¦°æ¸Å
¸Å°¢´ë»óÅäÁö ¹× °Ç¹°Àϰý ¸Å°¢
¸Å°¢±âÀÏ    2025.12.02(È­) 10:00 ÀÔÂû 18ÀÏÀü    
ÅäÁö¸éÀû4.68§³(1.42 Æò)
°Ç¹°¸éÀû22.83§³(6.90 Æò)
乫/¼ÒÀ¯ÀÚ¸Á OOOO OOOOOOO OOO OOO / ¸Á OOOO OOOOOOO OOO OOO
ä±ÇÀÚÁÖOOOOOOO
ÆäÀ̽ººÏ Æ®À§ÅÍ ±¸±Û+
īī¿À½ºÅ丮
īī¿ÀÅå sms¹®ÀÚº¸³»±â
 

±âÀϳ»¿ª

°æ°ú ³¯Â¥ Àú°¨ ÃÖÀú°¡ °á°ú
Á¢¼öÀÏ 2024-09-23 °æ¸ÅÁ¢¼ö
~1ÀÏ 
2024-09-24 °æ¸Å°³½Ã°áÁ¤
~84ÀÏ 
2024-12-16 ¹è´ç¿ä±¸Á¾±âÀÏ
~295ÀÏ 
2025-07-15 100%
76,000,000
À¯Âû
~330ÀÏ 
2025-08-19 70%
53,200,000
À¯Âû
~365ÀÏ 
2025-09-23 49%
37,240,000
À¯Âû
~400ÀÏ 
2025-10-28 34%
26,068,000
À¯Âû
~435ÀÏ 
2025-12-02 24%
18,248,000
ÁøÇà
¹°°Ç¸í¼¼¼­ ÇöȲÁ¶»ç¼­ ¹®°ÇÁ¢¼ö ¼Û´Þ³»¿ª

°¨Á¤Æò°¡ÇöȲ

¸ñ·Ï ÁÖ¼Ò ±¸Á¶/¿ëµµ/´ëÁö±Ç ¸éÀû ºñ°í
´ëÁö±Ç
¹Ý±¸µ¿ 106-3 1288.4ºÐÀÇ 4.6813 4.6813 §³
(1.42Æò)
°Ç¹°
¹Ý±¸µ¿ 106-3 9Ãþ 902È£ ö±ÙÄÜÅ©¸®Æ®±¸Á¶ 22.8263 §³
(6.90Æò)
1) À§Ä¡/ÀϹݻó¾÷Áö¿ª/Â÷·®ÃâÀÔ °¡´É/¹ö½ºÁ¤·ùÀå/ö±ÙÄÜÅ©¸®Æ®Á¶/µµ½Ã°¡½º ´õº¸±â
°¨Á¤Æò°¡ ¿äÇ×Ç¥
1)À§Ä¡ ¹× ÁÖÀ§È¯°æ
¿ï»ê±¤¿ª½Ã Áß±¸ ¹Ý±¸µ¿ ÇмºÃʵîÇб³ ¼­Ãø Àαٿ¡ ¼ÒÀçÇϸç ÁÖº¯ ÀÏ´ë´Â ¼Ò±Ô¸ð°øµ¿ÁÖÅÃ,
´Üµ¶ÁÖÅÃ, ±Ù¸°»ýȰ½Ã¼³ µîÀ¸·Î Çü¼ºµÇ¾î ÀÖÀ¸¸ç Àαٿ¡ ÃæÀÇ»ç, ¿ï»êMBC, ¿ï»êÁ¾ÇտÀå
, À幫°ø¿ø µîÀÌ ¼ÒÀçÇÔ.
2)±³Åë»óȲ
°Ç¹°³» Â÷·®ÃâÀÔ °¡´ÉÇϰí Àαٿ¡ ¹ö½ºÁ¤·ùÀåÀÌ ¼ÒÀçÇÔ.
3)°Ç¹°ÀÇ ±¸Á¶
ö±ÙÄÜÅ©¸®Æ®Á¶ (ö±Ù)ÄÜÅ©¸®Æ®ÁöºØ ÁöÇÏ5Ãþ Áö»ó17Ãþ°Ç³» 9ÃþÀ¸·Î
¿Üº® : ¼®Àç, ÆäÀÎÆÃ
âȣ : »þ½Ã
³»ºÎ : º®Áö µîÀ¸·Î ³»ºÎ´Â ¹ÌÈ®ÀÎ.

4)ÀÌ¿ë»óÅÂ
µµ½ÃÇü»ýȰÁÖÅÃ(¿ø·ëÇü).
5)¼³ºñ³»¿ª
À§»ý ¹× ±Þ¹è¼ö, µµ½Ã°¡½º ¼³ºñ, ³­¹æ¼³ºñ, ½Â°­±â, È­Àç°ü¸®½Ã¼³ µî.
6)ÅäÁöÀÇ Çü»ó ¹× ÀÌ¿ë»óÅÂ
´ëü·Î ÆòźÇÑ Áö´ë¿¡ Á¶¼ºµÈ ´Ù°¢ÇüÀÇ ÅäÁö·Î ¿ÀÇǽºÅÚ ¹× µµ½ÃÇü»ýȰÁÖÅà ºÎÁöÀÓ.
7)ÀÎÁ¢ µµ·Î»óŵî
ºÏµ¿Ãø Æø 25¹ÌÅÍ, ºÏ¼­Ãø 8¹ÌÅÍ Á¤µµÀÇ µµ·Î ¹× ³²¼­Ãø ¼ÒÆøÀÇ µµ·Î¿Í Á¢ÇÔ.
8)ÅäÁöÀÌ¿ë°èȹ ¹× Á¦ÇÑ»óÅÂ
ÀϹݻó¾÷Áö¿ª, ´ë·Î3·ù(Æø 25m-30m)(Á¢ÇÕ), ¼Ò·Î2·ù(Æø 8m-10m)(Á¢ÇÕ) °¡Ãà»çÀ°Á¦Çѱ¸¿ª<°¡ÃàºÐ´¢ÀÇ °ü¸® ¹× À̿뿡 °üÇÑ ¹ý·ü>, Àå¾Ö¹°Á¦ÇÑÇ¥¸é±¸¿ª<°øÇ׽ü³¹ý>, »ó´ëº¸È£±¸¿ª(ÇмºÃʵîÇб³)<±³À°È¯°æ º¸È£¿¡ °üÇÑ ¹ý·ü>
9)°øºÎ¿ÍÀÇ Â÷ÀÌ
¾øÀ½.
10)±âŸÂü°í»çÇ×(ÀÓ´ë°ü·Ê ¹× ±âŸ)
ÀÓ´ë°ü°è ¹Ì»óÀÓ.





Âü°í
»çÇ×

º» °ÇÀº ¿ï»ê Áß±¸

°ÇÃ๰ÇöȲ

¼ÒÀçÁö ¿ï»ê±¤¿ª½Ã Áß±¸ ¹Ý±¸µ¿ 106-3¹øÁö
´ëÁö¸éÀû 1288.4§³
(390.42Æò)
¿¬¸éÀû 15377.4942§³
(4659.85Æò)
°ÇÃà¸éÀû 896.7475§³
(271.74Æò)
¿ëÀû·ü»êÁ¤
¿¬¸éÀû
10679.0505§³
(3236.08Æò)
°ÇÆóÀ² 69.6% ¿ëÀû·ü 828.86%
Áö»óÃþ¼ö 17Ãþ ÁöÇÏÃþ¼ö 5Ãþ
ÁÖ¿ëµµ °øµ¿ÁÖÅà ±¸Á¶ ö±ÙÄÜÅ©¸®Æ®±¸Á¶
Âø°øÀÏÀÚ 2014.11.10 »ç¿ë½ÂÀÎÀÏÀÚ 2017.01.11
°ÇÃ๰Ãþº°ÇöȲ [º¸±â]


µî±âºÎµîº» ¿ä¾à(°Ç¹°)

  Á¢¼öÀÏÀÚ µî±â¸ñÀû/±Ç¸®ÀÚ ±Ç¸®±Ý¾× ±âÁØ
1 2017³â3¿ù30ÀÏ
¼ÒÀ¯±Ç
¹ÚOO
¼Ò¸ê
2 2020³â10¿ù13ÀÏ
°¡¾Ð·ù
(OOOO
50,690,357 ¼Ò¸ê±âÁØ
3 2021³â1¿ù26ÀÏ
°¡¾Ð·ù
ÇÏOOOO
5,672,737 ¼Ò¸ê
4 2023³â3¿ù7ÀÏ
ÀÓÂ÷±Ç¼³Á¤
¹éOO
84,000,000 ¼Ò¸ê
5 2024³â9¿ù24ÀÏ
°­Á¦°æ¸Å
ÁÖOOOO
¼Ò¸ê

ÀÓÂ÷ÀÎÇöȲ (¹è´ç¿ä±¸Á¾±âÀÏ: 2024-12-16)

ÀÓÂ÷ÀÎ ¿ëµµ/Á¡À¯ º¸Áõ±Ý/¿ù¼¼ ´ëÇ×·Â
ÀüÀÔÀÏ/È®Á¤ÀÏ ¹è´ç¿ä±¸ ºñ°í
¹éOO °Ç¹°ÀÇÁ¦9ÃþÁ¦902È£22.8263§³ÀüºÎ 84,000,000
O
2018.12.17.
2018.11.29.
2018.12.17 ~
ºñ°í
(¸Å°¢¹°°Ç
¸í¼¼¼­)
¹é½ÂÈ£:Àü¼¼º¸Áõ±Ý¹Ýȯä±ÇÀ» ½Åûä±ÇÀÚÀÎ ÁÖÅõµ½Ãº¸Áõ°ø»ç¿¡°Ô ¾çµµÇÔ

¿©ÀÇÁÖ°æ¸Å Á¶¾ð ÇÑ ¸¶µð

¼±¼øÀ§ ÀÓÂ÷±Çµî±â°¡ µÇ¾î ÀÖ½À´Ï´Ù
´ëÇ×·ÂÀÌ ÀÖ´Â ¼±¼øÀ§ ÀÓÂ÷±Çµî±â ±Ç¸®ÀÚ°¡ ¹è´çÀ» Àü¾× ¹ÞÁö ¸øÇÒ °æ¿ì ³«ÂûÀÚ°¡ ÀÜ¿© º¸Áõ±ÝÀ» ÀμöÇØ¾ßÇÏ´Â °æ¿ìµµ ÀÖ½À´Ï´Ù.

ÁÖÀÇ»çÇ× (ÃÖ¼±¼øÀ§ ¼³Á¤ÀÏ: 2020.10.13. °¡¾Ð·ù ¼³Á¤)

¸Å°¢À¸·Î ¼Ò¸êµÇÁö ¾Ê´Â µî±âºÎ±Ç¸®: ¸Å¼öÀο¡°Ô ´ëÇ×ÇÒ ¼ö ÀÖ´Â À»±¸ ¼øÀ§ 1¹ø ÁÖÅÃÀÓÂ÷±Çµî±â(2023. 3. 7. µî±â) ÀÖÀ½(ÀÓÂ÷º¸Áõ±Ý ±Ý 84,000,000¿ø, ÀüÀÔÀÏ 2018. 12. 17., È®Á¤ÀÏÀÚ 2018. 11. 29.). ¹è´ç¿¡¼­ º¸Áõ±Ý Àü¾×ÀÌ º¯Á¦µÇÁö ¾Æ´ÏÇϸé Àܾ×À» ¸Å¼öÀÎÀÌ ÀμöÇÔ
¸Å°¢À¸·Î ¼³Á¤µÈ °ÍÀ¸·Î º¸´Â Áö»ó±Ç:
¡Ø¹Ì³³°ü¸®ºñ(°ø¿ë) Àμö¿©ºÎ¸¦ ÀÔÂû Àü¿¡ È®ÀÎÇϽñ⠹ٶø´Ï´Ù

 

Áö¿ªºÐ¼®

ÁöÇÏö¸í Á÷¼±°Å¸®

Çб³¸í ÀüÈ­¹øÈ£ ÁÖ¼Ò Á÷¼±°Å¸®

¹ý¿ø

¿ï»êÁö¹æ¹ý¿ø (446-43)¿ï»ê±¤¿ª½Ã ³²±¸ ¹ý´ë·Î 55(¿Áµ¿ 1415)
´ëÇ¥ : 052)216-8000, ¹Î¿ø : 052)216-8021~3
°üÇÒÁö¿ª : ¿ï»ê±¤¿ª½Ã, ¾ç»ê½Ã

µî±â¼Ò ¿ï»êÁö¹æ¹ý¿ø º»¿ø µî±â°ú (´ëÇ¥:1544-0773, ÆÑ½º:(052)260-6293, ¿ï»ê±¤¿ª½Ã ³²±¸ ¹ý´ë·Î 55 (¿Áµ¿ 1415))
¼¼¹«¼­ µ¿¿ï»ê¼¼¹«¼­ (´ëÇ¥:052-219-92, ÆÑ½º:052-289-8365, ¿ï»ê±¤¿ª½Ã ºÏ±¸ »çû2±æ 7 (È­ºÀµ¿))

Àαٳ«ÂûÅë°è

±â°£ ¸Å°¢°Ç¼ö Æò±Õ°¨Á¤°¡
Æò±Õ¸Å°¢°¡
¸Å°¢°¡À²
Æò±ÕÀ¯Âû¼ö
3°³¿ù 1°Ç 431,168,000¿ø
307,700,000¿ø
71%
1ȸ
6°³¿ù 3°Ç 500,936,267¿ø
356,770,000¿ø
71%
1ȸ
12°³¿ù 5°Ç 342,161,760¿ø
243,330,000¿ø
71%
1ȸ


º» °æ¸ÅÁ¤º¸´Â ¹ý¿øÀÚ·á¿Í ÀÏÄ¡Çϵµ·Ï ÇÏ¿´À¸³ª ±Ç¸®»çÇ׺¯µ¿, ÀÔ·ÂÂø¿À µîÀÇ ¿øÀÎÀ¸·Î »ç½Ç°ú ´Ù¸¦ ¼ö ÀÖ½À´Ï´Ù. ÀÌ¿ë¾à°ü¿¡ ÀǰЏéÃ¥Á¶°ÇÀ¸·Î Á¦°øµÊÀ» ¾Ë¸®¸ç, °æ¸ÅÀÔÂû½Ã ¹Ýµå½Ã °ü·Ã °øºÎ¸¦ ÀçÈ®ÀÎÇϽñ⠹ٶø´Ï´Ù. º¸´Ù Æí¸®ÇÑ °æ¸ÅÁ¤º¸ Á¦°øÀ» À§ÇØ Áö¼ÓÀûÀ¸·Î °³¼±ÇϰڽÀ´Ï´Ù. ÀÌ¿ëÇØ Áּż­ °¨»çÇÕ´Ï´Ù.