·Î±×ÀÎ
1150
¾ÆÆÄÆ®
ºÎ»êÁö¹æ¹ý¿ø
 °¨Á¤°¡195,000,000 ¿ø
 ÃÖÀú°¡(24%) 46,820,000 ¿ø
 º¸Áõ±Ý(10%) 4,682,000 ¿ø
 Ã»±¸¾×180,000,000 ¿ø
ºÎ»ê±¤¿ª½Ã ºÎ»êÁø±¸ ¼ºÁö·Î8¹ø±æ 30, 3Ãþ303È£ (¿¬Áöµ¿,¿¬Áö¼¾Æ®·²ÆÄÅ©)
ºÎ»ê±¤¿ª½Ã ºÎ»êÁø±¸ ¿¬Áöµ¿ 41-7
»ç°Ç¹øÈ£ 2024Ÿ°æ65975
°æ¸ÅÁ¾·ùºÎµ¿»ê°­Á¦°æ¸Å
¸Å°¢´ë»óÅäÁö ¹× °Ç¹°Àϰý ¸Å°¢
¸Å°¢±âÀÏ    2026.03.11(¼ö) 10:00 ÀÔÂû 16ÀÏÀü    
ÅäÁö¸éÀû11.93§³(3.61 Æò)
°Ç¹°¸éÀû48.91§³(14.79 Æò)
乫/¼ÒÀ¯ÀÚÁÖOOO OOOO / ÁÖOOO OOOO
ä±ÇÀÚÀ¯OO
ÆäÀ̽ººÏ Æ®À§ÅÍ ±¸±Û+
īī¿À½ºÅ丮
īī¿ÀÅå sms¹®ÀÚº¸³»±â
 

±âÀϳ»¿ª

°æ°ú ³¯Â¥ Àú°¨ ÃÖÀú°¡ °á°ú
Á¢¼öÀÏ 2024-11-25 °æ¸ÅÁ¢¼ö
~2ÀÏ 
2024-11-27 °æ¸Å°³½Ã°áÁ¤
~73ÀÏ 
2025-02-06 ¹è´ç¿ä±¸Á¾±âÀÏ
~226ÀÏ 
2025-07-09 100%
195,000,000
À¯Âû
~261ÀÏ 
2025-08-13 70%
136,500,000
À¯Âû
~296ÀÏ 
2025-09-17 49%
95,550,000
À¯Âû
~331ÀÏ 
2025-10-22 34%
66,885,000
º¯°æ
~436ÀÏ 
2026-02-04 34%
66,885,000
À¯Âû
~471ÀÏ 
2026-03-11 24%
46,820,000
ÁøÇà
¹°°Ç¸í¼¼¼­ ÇöȲÁ¶»ç¼­ ¹®°ÇÁ¢¼ö ¼Û´Þ³»¿ª

°¨Á¤Æò°¡ÇöȲ

¸ñ·Ï ÁÖ¼Ò ±¸Á¶/¿ëµµ/´ëÁö±Ç ¸éÀû ºñ°í
´ëÁö±Ç
¿¬Áöµ¿ 41-7 340.8ºÐÀÇ 11.9324 11.9324 §³
(3.61Æò)
°Ç¹°
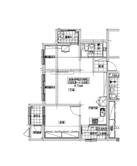
¿¬Áöµ¿ 41-7 3Ãþ 303È£ ö±ÙÄÜÅ©¸®Æ®±¸Á¶ 48.9077 §³
(14.79Æò)
1) À§Ä¡/ÀϹݻó¾÷Áö¿ª/Â÷·®ÃâÀÔ °¡´É/½Ã³»¹ö½ºÁ¤·ùÀå/ö±ÙÄÜÅ©¸®Æ®±¸Á¶/µµ½Ã°¡½º ´õº¸±â
°¨Á¤Æò°¡ ¿äÇ×Ç¥
1)À§Ä¡ ¹× ÁÖÀ§È¯°æ
º»°ÇÀº ºÎ»ê±¤¿ª½Ã ºÎ»êÁø±¸ ¿¬Áöµ¿ ¼ÒÀç "ºÎ»ê½Ã¹Î°ø¿ø" ºÏÃø Àαٿ¡ À§Ä¡ÇÏ´Â ¿¬Áö¼¾Æ®·²ÆÄÅ© 3Ãþ 303È£·Î¼­, ÁÖÀ§´Â °øµ¿ÁÖÅÃ, ´Üµ¶ÁÖÅÃ, ¼Ò±Ô¸ð Á¡Æ÷ ¹× °ø¿ø µîÀ¸·Î Çü¼ºµÇ¾î ÀÖÀ¸¸ç, Á¦¹Ý ÁÖÀ§È¯°æÀº º¸ÅëÀÓ.
2)±³Åë»óȲ
º»°Ç±îÁö Â÷·®ÃâÀÔ °¡´ÉÇϸç, Àαٿ¡ ½Ã³»¹ö½ºÁ¤·ùÀåÀÌ ¼ÒÀçÇÏ¿© Á¦¹Ý ±³Åë»çÁ¤Àº º¸ÅëÀÓ.
3)°Ç¹°ÀÇ ±¸Á¶
ö±ÙÄÜÅ©¸®Æ®±¸Á¶ (ö±Ù)ÄÜÅ©¸®Æ®ÁöºØ ÁöÇÏ1Ãþ Áö»ó12Ãþ °Ç¹° ³» 3Ãþ 303È£·Î¼­,
(»ç¿ë½ÂÀÎÀÏÀÚ:2018.01.18)

¿Üº®: È­°­¼® ºÙÀÓ ¹× ¸ôÅ»À§ ÆäÀÎÆÃ ¸¶°¨ µî,
âȣ: ¼¦½ÃâÀÓ.
4)ÀÌ¿ë»óÅÂ
°øµ¿ÁÖÅÃ(¾ÆÆÄÆ®)·Î ÀÌ¿ëÁßÀÓ.
5)¼³ºñ³»¿ª
À§»ý¼³ºñ, ±Þ¹è¼ö¼³ºñ, È­Àç°æº¸ ¹× ŽÁö¼³ºñ, ¼ÒÈ­Àü¼³ºñ, ½Â°­±â¼³ºñ, ¹«Àΰæºñ½Ã½ºÅÛ, ½ºÇÁ¸µÅ¬·¯, ÁÖÂ÷Ÿ¿ö¼³ºñ, µµ½Ã°¡½º¿¡ ÀÇÇÑ ³­¹æ¼³ºñ µîÀÌ µÇ¾î ÀÖÀ½.
6)ÅäÁöÀÇ Çü»ó ¹× ÀÌ¿ë»óÅÂ
ÀÎÁ¢Áö¿Í ´ëü·Î µî°íÆòźÇÑ 3ÇÊ ÀÏ´ÜÀÇ ¼¼ÀåÇüÀÇ ÅäÁö·Î¼­, °øµ¿ÁÖÅà °ÇºÎÁö·Î ÀÌ¿ëÁßÀÓ.
7)ÀÎÁ¢ µµ·Î»óŵî
º»°ÇÀº ºÏÃøÀ¸·Î Æø ¾à 8¹ÌÅÍ ³»¿ÜÀÇ µµ·Î¿Í Á¢ÇÔ.
8)ÅäÁöÀÌ¿ë°èȹ ¹× Á¦ÇÑ»óÅÂ
ÅäÁö #1-3 : ÀϹݻó¾÷Áö¿ª, ¹æÈ­Áö±¸ °¡·Î±¸¿ªº° ÃÖ°í³ôÀÌ Á¦ÇÑÁö¿ª(2024-06-12)(±âÁسôÀÌ 110m)<°ÇÃà¹ý>, °¡·Î±¸¿ªº° ÃÖ°í³ôÀÌ Á¦ÇÑÁö¿ª(2024-06-12)(ÃÖ°í³ôÀÌ 155m)<°ÇÃà¹ý>, »ó´ëº¸È£±¸¿ª<±³À°È¯°æ º¸È£¿¡ °üÇÑ ¹ý·ü>
9)°øºÎ¿ÍÀÇ Â÷ÀÌ
¾ø À½.
10)±âŸÂü°í»çÇ×(ÀÓ´ë°ü·Ê ¹× ±âŸ)
°¡. ÀÓ´ë°ü°è : ¹Ì»óÀÓ.

³ª. ±â Ÿ : º»°ÇÀº ÇöÀåÁ¶»ç½Ã ÀÌÇØ°ü°èÀÎÀÇ ºÎÀç ¹× Æó¹® µîÀ¸·Î ÀÎÇÏ¿© ³»ºÎÈ®ÀÎÀÌ ºÒ°¡´ÉÇÏ¿©, ¿ÜºÎ°üÂû, Àα٠޹® µî¿¡ ÀÇÇÏ¿© Åë»óÀûÀÎ »óŸ¦ »óÁ¤ÇÏ¿© °¨Á¤Æò°¡ÇÏ¿´À¸¹Ç·Î °æ¸ÅÁøÇà ¹× ÀÀÂû½Ã À¯ÀÇÇϽñ⠹ٶ÷.

°ÇÃ๰ÇöȲ

¼ÒÀçÁö ºÎ»ê±¤¿ª½Ã ºÎ»êÁø±¸ ¿¬Áöµ¿ 41-7¹øÁö
´ëÁö¸éÀû 340.8§³
(103.27Æò)
¿¬¸éÀû 2169.22§³
(657.34Æò)
°ÇÃà¸éÀû 239.53§³
(72.58Æò)
¿ëÀû·ü»êÁ¤
¿¬¸éÀû
1929.06§³
(584.56Æò)
°ÇÆóÀ² 70.28% ¿ëÀû·ü 566.04%
Áö»óÃþ¼ö 12Ãþ ÁöÇÏÃþ¼ö 1Ãþ
ÁÖ¿ëµµ °øµ¿ÁÖÅà ±¸Á¶ ö±ÙÄÜÅ©¸®Æ®±¸Á¶
Âø°øÀÏÀÚ 2017.01.03 »ç¿ë½ÂÀÎÀÏÀÚ 2018.01.18
°ÇÃ๰Ãþº°ÇöȲ [º¸±â]


±¹ÅäºÎ½Ç°Å·¡°¡ ºÎ»ê±¤¿ª½Ã ºÎ»êÁø±¸ ¿¬Áöµ¿

¡Ü ¸Å¸Å

¸éÀû(§³), ±Ý¾×(¸¸¿ø)

¡Ü Àü¼¼

¸éÀû(§³), ±Ý¾×(¸¸¿ø)

°è¾àÀÏARTÃþÀü¿ëº¸Áõ±Ý¿ù¼¼°ÇÃà
26.01.20¿¬Áö¼¾Æ®·²ÆÄÅ©436.687610,00002018
25.12.30¿¬Áö¼¾Æ®·²ÆÄÅ©744.458918,0002018
25.12.19¿¬Áö¼¾Æ®·²ÆÄÅ©436.687614,0002018
25.09.03¿¬Áö¼¾Æ®·²ÆÄÅ©1144.458917,4002018
25.08.16¿¬Áö¼¾Æ®·²ÆÄÅ©1248.470916,00002018
¢Ñ ´õº¸±â

µî±âºÎµîº» ¿ä¾à(°Ç¹°)

  Á¢¼öÀÏÀÚ µî±â¸ñÀû/±Ç¸®ÀÚ ±Ç¸®±Ý¾× ±âÁØ
1 2018³â5¿ù28ÀÏ
¼ÒÀ¯±Ç
(OOOO
¼Ò¸ê
2 2024³â5¿ù2ÀÏ
ÀÓÂ÷±Ç¼³Á¤
À¯OO
180,000,000 Àμö
3 2024³â11¿ù27ÀÏ
°­Á¦°æ¸Å
À¯OO
¼Ò¸ê±âÁØ

ÀÓÂ÷ÀÎÇöȲ (¹è´ç¿ä±¸Á¾±âÀÏ: 2025-02-06)

ÀÓÂ÷ÀÎ ¿ëµµ/Á¡À¯ º¸Áõ±Ý/¿ù¼¼ ´ëÇ×·Â
ÀüÀÔÀÏ/È®Á¤ÀÏ ¹è´ç¿ä±¸ ºñ°í
À¯OO ÀüÀ¯ºÎºÐÀüºÎ 180,000,000
O
2018.04.25.
2018.04.04.
2018.04.25.~
ºñ°í
(¸Å°¢¹°°Ç
¸í¼¼¼­)
À¯ÀºÇý:½Åûä±ÇÀÚÀ̸ç ÁÖÅÃÀÓÂ÷±Çµî±âÀÏÀº 2024.05.02.ÀÓ.

¿©ÀÇÁÖ°æ¸Å Á¶¾ð ÇÑ ¸¶µð


ÁÖÀÇ»çÇ× (ÃÖ¼±¼øÀ§ ¼³Á¤ÀÏ: 2024.11.27. °­Á¦°æ¸Å°³½Ã ¼³Á¤)

¸Å°¢À¸·Î ¼Ò¸êµÇÁö ¾Ê´Â µî±âºÎ±Ç¸®: ¸Å¼öÀο¡°Ô ´ëÇ×ÇÒ ¼ö ÀÖ´Â ÀÓÂ÷ÀÎÀÌ ÀÖÀ½(ÀÓ´ëÂ÷º¸Áõ±Ý: 180,000,000¿ø, ÀüÀÔÀÏ: 2018.04.25. È®Á¤ÀÏÀÚ: 2018.04.04.) ¹è´ç¿¡¼­ º¸Áõ±ÝÀÌ Àü¾× º¯Á¦µÇÁö ¾ÊÀ¸¸é Àܾ×À» ¸Å¼öÀÎÀÌ ÀμöÇÔ.
¸Å°¢À¸·Î ¼³Á¤µÈ °ÍÀ¸·Î º¸´Â Áö»ó±Ç:
¡Ø¹Ì³³°ü¸®ºñ(°ø¿ë) Àμö¿©ºÎ¸¦ ÀÔÂû Àü¿¡ È®ÀÎÇϽñ⠹ٶø´Ï´Ù

 

Áö¿ªºÐ¼®

ÁöÇÏö¸í Á÷¼±°Å¸®

Çб³¸í ÀüÈ­¹øÈ£ ÁÖ¼Ò Á÷¼±°Å¸®

¹ý¿ø

ºÎ»êÁö¹æ¹ý¿ø (475-10)ºÎ»ê±¤¿ª½Ã ¿¬Á¦±¸ ¹ý¿ø·Î 31(°ÅÁ¦µ¿ 1500)
´ëÇ¥ : 051)590-1114, ¾ß°£ : 051)590-1112
°üÇÒÁö¿ª : Áß±¸, ¼­±¸(µî±â¸¸), µ¿±¸, ¿µµµ±¸, ºÎ»êÁø±¸, µ¿·¡±¸, ¿¬Á¦±¸, ±ÝÁ¤±¸

µî±â¼Ò ºÎ»êÁö¹æ¹ý¿ø º»¿ø ºÎ»êÁøµî±â¼Ò (´ëÇ¥:1544-0773, ÆÑ½º:(051)804-6292, ºÎ»ê±¤¿ª½Ã ºÎ»êÁø±¸ Áß¾Ó´ë·Î783¹ø±æ 9 (ºÎÀüµ¿ 573-5))
¼¼¹«¼­ ºÎ»êÁø¼¼¹«¼­ (´ëÇ¥:051-461-92, ÆÑ½º:051-467-1969, ºÎ»ê±¤¿ª½Ã µ¿±¸ Áø¼º·Î 23 (¼öÁ¤µ¿ 247-7))

Àαٳ«ÂûÅë°è

±â°£ ¸Å°¢°Ç¼ö Æò±Õ°¨Á¤°¡
Æò±Õ¸Å°¢°¡
¸Å°¢°¡À²
Æò±ÕÀ¯Âû¼ö
3°³¿ù 33°Ç 258,606,061¿ø
206,067,693¿ø
76%
2.1ȸ
6°³¿ù 77°Ç 285,100,000¿ø
219,322,012¿ø
73%
2ȸ
12°³¿ù 170°Ç 271,474,706¿ø
207,972,436¿ø
74%
2ȸ


º» °æ¸ÅÁ¤º¸´Â ¹ý¿øÀÚ·á¿Í ÀÏÄ¡Çϵµ·Ï ÇÏ¿´À¸³ª ±Ç¸®»çÇ׺¯µ¿, ÀÔ·ÂÂø¿À µîÀÇ ¿øÀÎÀ¸·Î »ç½Ç°ú ´Ù¸¦ ¼ö ÀÖ½À´Ï´Ù. ÀÌ¿ë¾à°ü¿¡ ÀǰЏéÃ¥Á¶°ÇÀ¸·Î Á¦°øµÊÀ» ¾Ë¸®¸ç, °æ¸ÅÀÔÂû½Ã ¹Ýµå½Ã °ü·Ã °øºÎ¸¦ ÀçÈ®ÀÎÇϽñ⠹ٶø´Ï´Ù. º¸´Ù Æí¸®ÇÑ °æ¸ÅÁ¤º¸ Á¦°øÀ» À§ÇØ Áö¼ÓÀûÀ¸·Î °³¼±ÇϰڽÀ´Ï´Ù. ÀÌ¿ëÇØ Áּż­ °¨»çÇÕ´Ï´Ù.