·Î±×ÀÎ
68
ÁÖÅÃ
ûÁÖÁö¹æ¹ý¿ø ÃæÁÖÁö¿ø
 °¨Á¤°¡148,415,580 ¿ø
 ÃÖÀú°¡(80%) 118,732,000 ¿ø
 º¸Áõ±Ý(10%) 11,873,200 ¿ø
 Ã»±¸¾×61,388,992 ¿ø
ÃæÃ»ºÏµµ ÃæÁֽà »ì¹Ì¸é ³»»ç¸® 795-7
»ç°Ç¹øÈ£ 2024Ÿ°æ35278
°æ¸ÅÁ¾·ùºÎµ¿»êÀÓÀǰæ¸Å
¸Å°¢´ë»óÅäÁö ¹× °Ç¹°Àϰý¸Å°¢
¸Å°¢±âÀÏ    2026.01.12(¿ù) 10:00 ÀÔÂû 3ÀÏÀü    
ÅäÁö¸éÀû420.00§³(127.05 Æò)
°Ç¹°¸éÀû169.38§³(51.24 Æò)
乫/¼ÒÀ¯ÀÚ¾ÈOO / ÀÌOO
ä±ÇÀÚÃæO OOOOOOO
ÆäÀ̽ººÏ Æ®À§ÅÍ ±¸±Û+
īī¿À½ºÅ丮
īī¿ÀÅå sms¹®ÀÚº¸³»±â
 

±âÀϳ»¿ª

°æ°ú ³¯Â¥ Àú°¨ ÃÖÀú°¡ °á°ú
Á¢¼öÀÏ 2024-10-14 °æ¸ÅÁ¢¼ö
~2ÀÏ 
2024-10-16 °æ¸Å°³½Ã°áÁ¤
~94ÀÏ 
2025-01-16 ¹è´ç¿ä±¸Á¾±âÀÏ
~266ÀÏ 
2025-07-07 100%
148,415,580
À¯Âû
~301ÀÏ 
2025-08-11 80%
118,732,000
º¯°æ
~378ÀÏ 
2025-10-27 80%
118,732,000
º¯°æ
~455ÀÏ 
2026-01-12 80%
118,732,000
ÁøÇà
¹°°Ç¸í¼¼¼­ ÇöȲÁ¶»ç¼­ ¹®°ÇÁ¢¼ö ¼Û´Þ³»¿ª

°¨Á¤Æò°¡ÇöȲ

¸ñ·Ï ÁÖ¼Ò ±¸Á¶/¿ëµµ/´ëÁö±Ç ¸éÀû ºñ°í
ÅäÁö
³»»ç¸® 795-7 ´ë 420 §³
(127.05Æò)
°Ç¹°
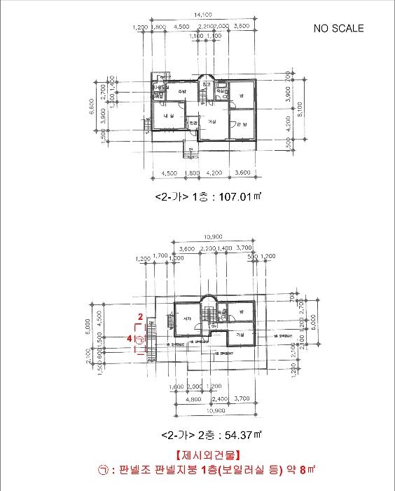
³»»ç¸® 795-7 1Ãþ ÁÖÅà ġÀ庮µ¹Á¶ 107.01 §³
(32.37Æò)
³»»ç¸® 795-7 2Ãþ ÁÖÅà ġÀ庮µ¹Á¶ 54.37 §³
(16.45Æò)
Á¦½Ã¿Ü
°Ç¹°
³»»ç¸® 795-7 º¸ÀÏ·¯½Ç µî 8 §³
(2.42Æò)
Æ÷ÇÔ
1) À§Ä¡/°èȹ°ü¸®Áö¿ª/¹ö½ºÁ¤·ùÀå/°£¼±µµ·Î/Æò½½·¡ºêÁöºØ ´õº¸±â
°¨Á¤Æò°¡ ¿äÇ×Ç¥
1)À§Ä¡ ¹× ÁÖÀ§È¯°æ
º»°ÇÀº ÃæÃ»ºÏµµ ÃæÁֽà »ì¹Ì¸é ³»»ç¸® ¼ÒÀç "³»»ç2µ¿¸¶À»È¸°ü" ºÏÃø Àαٿ¡ À§Ä¡Çϸç, ÁÖÀ§´Â ´Üµ¶ÁÖÅÃ,³ó°æÁö µîÀÌ È¥ÀçÇÏ´Â µî Á¦¹Ý ÁÖÀ§È¯°æÀº º¸Åë½Ã µÊ.

2)±³Åë»óȲ
º»°Ç±îÁö Â÷·®ÁøÃâÀÔÀÌ °¡´ÉÇϸç, Àαٿ¡ ¹ö½ºÁ¤·ùÀå ¹× °£¼±µµ·Î µîÀÌ ¼ÒÀçÇÏ´Â µî Á¦¹Ý ±³Åë»óȲÀº º¸Åë½Ã µÊ.

3)ÇüÅ ¹× ÀÌ¿ë»óÅÂ
±âÈ£(1) : Á¤¹æÇü ÆòÁö ÅäÁö·Î¼­, ´Üµ¶ÁÖÅà °ÇºÎÁö·Î ÀÌ¿ëÁßÀÓ.

4)ÀÎÁ¢ µµ·Î»óÅÂ
±âÈ£(1) : ÁöÀûµµ»ó ¸ÍÁöÀ̳ª, ¼­ÃøÀ¸·Î ³ëÆø ¾à 2-3¹ÌÅÍ ³»¿ÜÀÇ µµ·Î°¡ ¼ÒÀçÇÔ.

5)ÅäÁöÀÌ¿ë°èȹ ¹× Á¦ÇÑ»óÅÂ
±âÈ£(1) : °èȹ°ü¸®Áö¿ª, ¼ºÀå°ü¸®°èȹ±¸¿ª(2024-01-26)(º¹ÇÕÇü),°¡Ãà»çÀ°Á¦Çѱ¸¿ª(¼Ò¡¤¸»¡¤¾ç¡¤¿°¼Ò¡¤»ç½¿¡¤Á¥¼Ò¡¤¸ÞÃ߸®)<°¡ÃàºÐ´¢ÀÇ °ü¸® ¹× À̿뿡 °üÇÑ ¹ý·ü>, °øÀå¼³¸³½ÂÀÎÁö¿ª(2019-06-28)(¼öµµ¹ý½ÃÇà·É Á¦14Á¶ÀÇ3 1È£)<¼öµµ¹ý>, (ÇѰ­)Æó±â¹°¸Å¸³½Ã¼³ ¼³Ä¡Á¦ÇÑÁö¿ª<ÇѰ­¼ö°è »ó¼ö¿ø¼öÁú°³¼± ¹× ÁÖ¹ÎÁö¿ø µî¿¡ °üÇÑ ¹ý·ü> ÀÓ.

6)Á¦½Ã¸ñ·Ï ¿ÜÀÇ ¹°°Ç
ÈÄ÷. "ÁöÀû ¹× °Ç¹°°³È²µµ" ÂüÁ¶.

7)°øºÎ¿ÍÀÇ Â÷ÀÌ
-

8)±âŸÂü°í»çÇ×(ÀÓ´ë°ü·Ê ¹× ±âŸ)
ÀÓ´ë°ü°è ¹Ì»óÀÓ.
±âŸ»çÇ×¾øÀ½.

1)°Ç¹°ÀÇ ±¸Á¶
±âÈ£(2) : Ä¡À庮µ¹Á¶ Æò½½·¡ºêÁöºØ 2Ãþ °Ç¹°·Î¼­,
¿Üº® : º®µ¹½×±â ¸¶°¨ µî,
³»º® : º®Áö ¹× ÀÎÅ׸®¾î µî ¸¶°¨,
¹Ù´Ú : ÀåÆÇ ¹× ŸÀÏ µî ¸¶°¨,
âȣ : ¼¦½ÃâȣÀÓ.

2)ÀÌ¿ë»óÅÂ
´Üµ¶ÁÖÅÃÀ¸·Î ÀÌ¿ëÁßÀÓ.

3)¼³ºñ³»¿ª
À§»ý ¹× ±Þ¹è¼ö¼³ºñ, ³­¹æ¼³ºñ µî ±¸ºñµÇ¾î ÀÖÀ½.

4)ºÎÇÕ¹° ¹× Á¾¹°
ÈÄ÷ "ÁöÀû ¹× °Ç¹°°³È²µµ" ÂüÁ¶.

5)°øºÎ¿ÍÀÇ Â÷ÀÌ
-

6)±âŸÂü°í»çÇ×(ÀÓ´ë°ü·Ê ¹× ±âŸ)
ÀÓ´ë°ü°è ¹Ì»óÀÓ.
±âŸ»çÇ× ¾øÀ½.

Âü°í
»çÇ×
Àϰý¸Å°¢. ¸ñ·Ï1 ÁöÀûµµ»ó ¸ÍÁöÀ̳ª ¼­ÃøÀ¸·Î ³ëÆø ¾à 2~3¹ÌÅÍ ³»¿ÜÀÇ µµ·Î°¡ ¼ÒÀçÇÔ(°¨Á¤Æò°¡¼­ ÂüÁ¶). Á¦½Ã¿Ü °Ç¹°(°¨Á¤Æò°¡¼­»ó ¨±) ¸Å°¢ Æ÷ÇÔ.
¸ñÀû¹° 2¹ø¿¡ ¼ÒÀ¯ÀÚ ¹Ì»óÀÇ ÆÇ³ÚÁ¶ ÆÇ³ÚÁöºØ â°í ¼ÒÀçÇÔ.

°ÇÃ๰ÇöȲ

¼ÒÀçÁö ÃæÃ»ºÏµµ ÃæÁֽà »ì¹Ì¸é ³»»ç¸® 795-7¹øÁö
´ëÁö¸éÀû 420§³
(127.27Æò)
¿¬¸éÀû 161.38§³
(48.9Æò)
°ÇÃà¸éÀû 118.06§³
(35.78Æò)
¿ëÀû·ü»êÁ¤
¿¬¸éÀû
161.38§³
(48.9Æò)
°ÇÆóÀ² 28.11% ¿ëÀû·ü 38.42%
Áö»óÃþ¼ö 2Ãþ ÁöÇÏÃþ¼ö  
ÁÖ¿ëµµ ´Üµ¶ÁÖÅà ±¸Á¶ º®µ¹±¸Á¶
Âø°øÀÏÀÚ 1998.04.10 »ç¿ë½ÂÀÎÀÏÀÚ 1998.08.01
°ÇÃ๰Ãþº°ÇöȲ [º¸±â]


±¹ÅäºÎ½Ç°Å·¡°¡ ÃæÃ»ºÏµµ ÃæÁֽà »ì¹Ì¸é

¡Ü ¸Å¸Å

¸éÀû(§³), ±Ý¾×(¸¸¿ø)

¡Ü Àü¼¼

¸éÀû(§³), ±Ý¾×(¸¸¿ø)

°è¾àÀÏ¿¬¸éÀûº¸Áõ±Ý¿ù¼¼°ÇÃà
25.12.13106.1713,2861994
25.11.1186.8812,5002003
25.11.05122.6924,0002016
25.10.1864.5319,00002022
25.10.1864.5310,00002022
¢Ñ ´õº¸±â

µî±âºÎµîº» ¿ä¾à(ÅäÁö)

  Á¢¼öÀÏÀÚ µî±â¸ñÀû/±Ç¸®ÀÚ ±Ç¸®±Ý¾× ±âÁØ
1 2024³â2¿ù5ÀÏ
¼ÒÀ¯±Ç
ÀÌOO
¼Ò¸ê
2 2013³â3¿ù5ÀÏ
±ÙÀú´ç±Ç
ÃæOOOO
72,000,000 ¼Ò¸ê±âÁØ
3 2018³â11¿ù16ÀÏ
±ÙÀú´ç±Ç
½ÅOOOO
82,000,000 ¼Ò¸ê
4 2022³â11¿ù4ÀÏ
¾Ð·ù
ÃæOO
¼Ò¸ê
5 2024³â10¿ù16ÀÏ
ÀÓÀǰæ¸Å
ÃæOOOO
¼Ò¸ê

µî±âºÎµîº» ¿ä¾à(°Ç¹°)

  Á¢¼öÀÏÀÚ µî±â¸ñÀû/±Ç¸®ÀÚ ±Ç¸®±Ý¾× ±âÁØ
1 2024³â2¿ù5ÀÏ
¼ÒÀ¯±Ç
ÀÌOO
¼Ò¸ê
2 2013³â3¿ù5ÀÏ
±ÙÀú´ç±Ç
ÃæOOOO
72,000,000 ¼Ò¸ê±âÁØ
3 2018³â11¿ù16ÀÏ
±ÙÀú´ç±Ç
½ÅOOOO
82,000,000 ¼Ò¸ê
4 2023³â8¿ù2ÀÏ
¾Ð·ù
±¹
¼Ò¸ê
5 2024³â2¿ù1ÀÏ
¾Ð·ù
ÃæOO
¼Ò¸ê
6 2024³â10¿ù16ÀÏ
ÀÓÀǰæ¸Å
ÃæOOOO
¼Ò¸ê

ÀÓÂ÷ÀÎÇöȲ (¹è´ç¿ä±¸Á¾±âÀÏ: 2025-01-16)

ÀÓÂ÷ÀÎ ¿ëµµ/Á¡À¯ º¸Áõ±Ý/¿ù¼¼ ´ëÇ×·Â
ÀüÀÔÀÏ/È®Á¤ÀÏ ¹è´ç¿ä±¸ ºñ°í
ÀÌOO ¹Ì»ó ¹Ì»ó
[¿ù]¹Ì»ó
X
2020.12.21
¹Ì»ó

¿©ÀÇÁÖ°æ¸Å Á¶¾ð ÇÑ ¸¶µð

Á¦½Ã¿Ü ¹°°ÇÀÌ Æ÷ÇԵǾî ÀÖ½À´Ï´Ù
¡®Á¦½Ã¿Ü ¹°°Ç¡¯Àº ÇØ´ç °øºÎ»ó¿¡´Â Á¸ÀçÇÏÁö ¾ÊÁö¸¸, ÇöÀå¿¡ Á¸Àç°¡ È®ÀεǴ ¿©·¯ ÇüÅÂÀÇ °Ç¹°, ±â°è±â±¸ µîÀ» ¸»ÇÕ´Ï´Ù. ÀÌµé ´ëºÎºÐÀº ¹«Çã°¡, ¹«½Å°íÀ̰ųª »ç¿ë½ÂÀÎÀ» ¹ÞÁö ¾ÊÀº °ÍÀÔ´Ï´Ù. ¡®Á¦½Ã¿Ü ¹°°Ç¡¯ÀÌ °æ¸Å´ë»ó¿¡ Æ÷ÇԵǾî ÀÖ´Ù¸é ³«ÂûÀÚÀÇ ¼ÒÀ¯±Ç Ãëµæ¿¡´Â ¾Æ¹«·± ¹®Á¦°¡ ¾ø½À´Ï´Ù.

ÁÖÀÇ»çÇ× (ÃÖ¼±¼øÀ§ ¼³Á¤ÀÏ: 2013.03.05. ±ÙÀú´ç±Ç ¼³Á¤)

¸Å°¢À¸·Î ¼Ò¸êµÇÁö ¾Ê´Â µî±âºÎ±Ç¸®:
¸Å°¢À¸·Î ¼³Á¤µÈ °ÍÀ¸·Î º¸´Â Áö»ó±Ç:
2025.08.04 ä±ÇÀÚ õ÷O OOOOOOO ±âÀϺ¯°æ½Åû¼­ Á¦Ãâ
2025.10.22 ä±ÇÀÚ õ÷O OOOOOOO ±âÀϺ¯°æ½Åû¼­ Á¦Ãâ
Àϰý¸Å°¢. ¸ñ·Ï1 ÁöÀûµµ»ó ¸ÍÁöÀ̳ª ¼­ÃøÀ¸·Î ³ëÆø ¾à 2~3¹ÌÅÍ ³»¿ÜÀÇ µµ·Î°¡ ¼ÒÀçÇÔ(°¨Á¤Æò°¡¼­ ÂüÁ¶). Á¦½Ã¿Ü °Ç¹°(°¨Á¤Æò°¡¼­»ó ¨±) ¸Å°¢ Æ÷ÇÔ.
¡Ø¹Ì³³°ü¸®ºñ(°ø¿ë) Àμö¿©ºÎ¸¦ ÀÔÂû Àü¿¡ È®ÀÎÇϽñ⠹ٶø´Ï´Ù

 

Áö¿ªºÐ¼®

ÁöÇÏö¸í Á÷¼±°Å¸®

Çб³¸í ÀüÈ­¹øÈ£ ÁÖ¼Ò Á÷¼±°Å¸®

¹ý¿ø

ûÁÖÁö¹æ¹ý¿ø ÃæÁÖÁö¿ø (273-57)ÃæÃ»ºÏµµ ÃæÁֽà °è¸í´ë·Î 103 (±³Çö2µ¿ 720-2)
´ëÇ¥ : 043)841-9119
°üÇÒÁö¿ª : À½¼º±º, ÃæÁÖ½Ã

µî±â¼Ò ûÁÖÁö¹æ¹ý¿ø ÃæÁÖÁö¿ø µî±â°è (´ëÇ¥:1544-0773, ÆÑ½º:(043)848-6461~2, ÃæºÏ ÃæÁֽà °è¸í´ë·Î 103 (±³Çöµ¿ 720-2))
¼¼¹«¼­ ÃæÁÖ¼¼¹«¼­ (´ëÇ¥:043-841-62, ÆÑ½º:043-845-3320, ÃæÃ»ºÏµµ ÃæÁÖ½Ã Ãæ¿ø´ë·Î 724 (±Ý¸ªµ¿))

Àαٳ«ÂûÅë°è

±â°£ ¸Å°¢°Ç¼ö Æò±Õ°¨Á¤°¡
Æò±Õ¸Å°¢°¡
¸Å°¢°¡À²
Æò±ÕÀ¯Âû¼ö
3°³¿ù 1°Ç 32,685,440¿ø
30,299,000¿ø
93%
1ȸ
6°³¿ù 4°Ç 69,589,125¿ø
47,077,805¿ø
79%
2ȸ
12°³¿ù 5°Ç 65,458,500¿ø
44,328,844¿ø
76%
2ȸ


º» °æ¸ÅÁ¤º¸´Â ¹ý¿øÀÚ·á¿Í ÀÏÄ¡Çϵµ·Ï ÇÏ¿´À¸³ª ±Ç¸®»çÇ׺¯µ¿, ÀÔ·ÂÂø¿À µîÀÇ ¿øÀÎÀ¸·Î »ç½Ç°ú ´Ù¸¦ ¼ö ÀÖ½À´Ï´Ù. ÀÌ¿ë¾à°ü¿¡ ÀǰЏéÃ¥Á¶°ÇÀ¸·Î Á¦°øµÊÀ» ¾Ë¸®¸ç, °æ¸ÅÀÔÂû½Ã ¹Ýµå½Ã °ü·Ã °øºÎ¸¦ ÀçÈ®ÀÎÇϽñ⠹ٶø´Ï´Ù. º¸´Ù Æí¸®ÇÑ °æ¸ÅÁ¤º¸ Á¦°øÀ» À§ÇØ Áö¼ÓÀûÀ¸·Î °³¼±ÇϰڽÀ´Ï´Ù. ÀÌ¿ëÇØ Áּż­ °¨»çÇÕ´Ï´Ù.